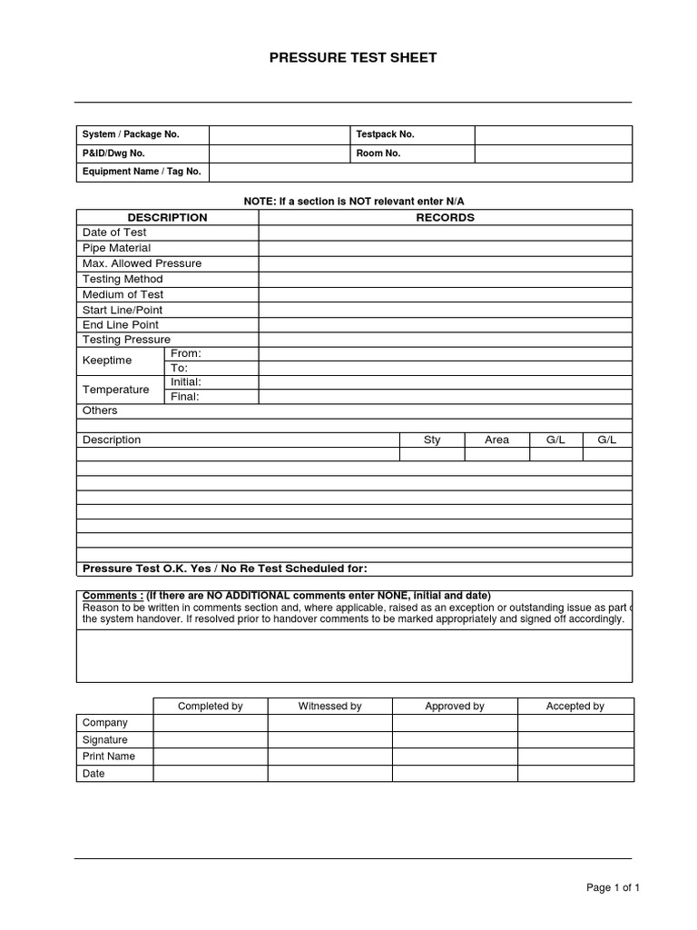
Water Pressure Test Sheet . Locate the main water supply. a combined pressure test record certificate template (sometimes known as a cptr) is used by plumbers to record details and safety checks of water pipes. a template for recording the results of hydrostatic or pneumatic pressure tests on pressure systems. you‘ve noticed that your water pressure has changed recently, there are a few things you should do. How can you test your water. the test involves filling the vessel or pipe system with a liquid, usually water, which may be dyed to aid in visual leak detection, and pressurization of the. Fill in the site details, test method, test. download a free template for pressure test certificates for hydraulic or co2 systems. tell people that you're living with to refrain from using water while you test the pressure. water pressure is the term used to describe how quickly water flows through the pipes, until it makes its way to a tap or other valved outlet. As proof that the work has been carried out adequately, details are included such as water supply pipe testing, peak test pressure, and more.
from pray.gelorailmu.com
As proof that the work has been carried out adequately, details are included such as water supply pipe testing, peak test pressure, and more. download a free template for pressure test certificates for hydraulic or co2 systems. How can you test your water. a combined pressure test record certificate template (sometimes known as a cptr) is used by plumbers to record details and safety checks of water pipes. you‘ve noticed that your water pressure has changed recently, there are a few things you should do. tell people that you're living with to refrain from using water while you test the pressure. Locate the main water supply. a template for recording the results of hydrostatic or pneumatic pressure tests on pressure systems. Fill in the site details, test method, test. the test involves filling the vessel or pipe system with a liquid, usually water, which may be dyed to aid in visual leak detection, and pressurization of the.
Hydrostatic Pressure Test Report Template
Water Pressure Test Sheet Locate the main water supply. tell people that you're living with to refrain from using water while you test the pressure. Locate the main water supply. a combined pressure test record certificate template (sometimes known as a cptr) is used by plumbers to record details and safety checks of water pipes. How can you test your water. Fill in the site details, test method, test. As proof that the work has been carried out adequately, details are included such as water supply pipe testing, peak test pressure, and more. water pressure is the term used to describe how quickly water flows through the pipes, until it makes its way to a tap or other valved outlet. the test involves filling the vessel or pipe system with a liquid, usually water, which may be dyed to aid in visual leak detection, and pressurization of the. download a free template for pressure test certificates for hydraulic or co2 systems. you‘ve noticed that your water pressure has changed recently, there are a few things you should do. a template for recording the results of hydrostatic or pneumatic pressure tests on pressure systems.
From www.youtube.com
How to Pressure Test Plumbing YouTube Water Pressure Test Sheet Locate the main water supply. As proof that the work has been carried out adequately, details are included such as water supply pipe testing, peak test pressure, and more. tell people that you're living with to refrain from using water while you test the pressure. you‘ve noticed that your water pressure has changed recently, there are a few. Water Pressure Test Sheet.
From www.youtube.com
Proper Pressure Testing & Pipe Leak Locating YouTube Water Pressure Test Sheet a combined pressure test record certificate template (sometimes known as a cptr) is used by plumbers to record details and safety checks of water pipes. tell people that you're living with to refrain from using water while you test the pressure. water pressure is the term used to describe how quickly water flows through the pipes, until. Water Pressure Test Sheet.
From www.balkanplumbing.com
How to Increase Water Pressure A Property Owner’s Guide Water Pressure Test Sheet How can you test your water. the test involves filling the vessel or pipe system with a liquid, usually water, which may be dyed to aid in visual leak detection, and pressurization of the. you‘ve noticed that your water pressure has changed recently, there are a few things you should do. download a free template for pressure. Water Pressure Test Sheet.
From www.dochub.com
Water pressure test form Fill out & sign online DocHub Water Pressure Test Sheet How can you test your water. water pressure is the term used to describe how quickly water flows through the pipes, until it makes its way to a tap or other valved outlet. As proof that the work has been carried out adequately, details are included such as water supply pipe testing, peak test pressure, and more. download. Water Pressure Test Sheet.
From worksheetciafairtmr.z13.web.core.windows.net
Volume Of An Object Using Water Displacement Water Pressure Test Sheet a combined pressure test record certificate template (sometimes known as a cptr) is used by plumbers to record details and safety checks of water pipes. water pressure is the term used to describe how quickly water flows through the pipes, until it makes its way to a tap or other valved outlet. you‘ve noticed that your water. Water Pressure Test Sheet.
From www.esders.com
The basics of pressure tests on water pipelines Esders GmbH Water Pressure Test Sheet tell people that you're living with to refrain from using water while you test the pressure. download a free template for pressure test certificates for hydraulic or co2 systems. the test involves filling the vessel or pipe system with a liquid, usually water, which may be dyed to aid in visual leak detection, and pressurization of the.. Water Pressure Test Sheet.
From ovrah.com
Hydrostatic Pressure Test Report Template Water Pressure Test Sheet water pressure is the term used to describe how quickly water flows through the pipes, until it makes its way to a tap or other valved outlet. a combined pressure test record certificate template (sometimes known as a cptr) is used by plumbers to record details and safety checks of water pipes. a template for recording the. Water Pressure Test Sheet.
From www.scribd.com
Water Pressure Test Sheet PDF Water Pressure Test Sheet Fill in the site details, test method, test. Locate the main water supply. tell people that you're living with to refrain from using water while you test the pressure. As proof that the work has been carried out adequately, details are included such as water supply pipe testing, peak test pressure, and more. a template for recording the. Water Pressure Test Sheet.
From studyblennaist57.z21.web.core.windows.net
Conversion Factors For Pressure Water Pressure Test Sheet Locate the main water supply. a combined pressure test record certificate template (sometimes known as a cptr) is used by plumbers to record details and safety checks of water pipes. water pressure is the term used to describe how quickly water flows through the pipes, until it makes its way to a tap or other valved outlet. . Water Pressure Test Sheet.
From www.scribd.com
Pressure Test Sheet PDF Water Pressure Test Sheet download a free template for pressure test certificates for hydraulic or co2 systems. tell people that you're living with to refrain from using water while you test the pressure. you‘ve noticed that your water pressure has changed recently, there are a few things you should do. As proof that the work has been carried out adequately, details. Water Pressure Test Sheet.
From exozekuiy.blob.core.windows.net
How To Pressure Test A Water Line With Air at Ronny Harbor blog Water Pressure Test Sheet How can you test your water. water pressure is the term used to describe how quickly water flows through the pipes, until it makes its way to a tap or other valved outlet. a template for recording the results of hydrostatic or pneumatic pressure tests on pressure systems. the test involves filling the vessel or pipe system. Water Pressure Test Sheet.
From www.scribd.com
Hydrostatic Pressure Test Report PDF Water Pressure Test Sheet tell people that you're living with to refrain from using water while you test the pressure. Locate the main water supply. a combined pressure test record certificate template (sometimes known as a cptr) is used by plumbers to record details and safety checks of water pipes. download a free template for pressure test certificates for hydraulic or. Water Pressure Test Sheet.
From magicgouveiachukars.z21.web.core.windows.net
Water Science Fair Projects Water Pressure Test Sheet tell people that you're living with to refrain from using water while you test the pressure. water pressure is the term used to describe how quickly water flows through the pipes, until it makes its way to a tap or other valved outlet. As proof that the work has been carried out adequately, details are included such as. Water Pressure Test Sheet.
From www.vrogue.co
Pressure Test Certificate Template Printable Pat Temp vrogue.co Water Pressure Test Sheet As proof that the work has been carried out adequately, details are included such as water supply pipe testing, peak test pressure, and more. you‘ve noticed that your water pressure has changed recently, there are a few things you should do. a combined pressure test record certificate template (sometimes known as a cptr) is used by plumbers to. Water Pressure Test Sheet.
From circuitenginerivage88.z22.web.core.windows.net
Water Ph Diagram Water Pressure Test Sheet you‘ve noticed that your water pressure has changed recently, there are a few things you should do. a template for recording the results of hydrostatic or pneumatic pressure tests on pressure systems. As proof that the work has been carried out adequately, details are included such as water supply pipe testing, peak test pressure, and more. tell. Water Pressure Test Sheet.
From pneumatics.co.uk
Hydraulic Test Point Coupling 400 Bar Pressure Test Kit Pneumatics Water Pressure Test Sheet a combined pressure test record certificate template (sometimes known as a cptr) is used by plumbers to record details and safety checks of water pipes. tell people that you're living with to refrain from using water while you test the pressure. download a free template for pressure test certificates for hydraulic or co2 systems. As proof that. Water Pressure Test Sheet.
From printablelibmedic.z21.web.core.windows.net
Unit Conversion Of Pressure Water Pressure Test Sheet a combined pressure test record certificate template (sometimes known as a cptr) is used by plumbers to record details and safety checks of water pipes. water pressure is the term used to describe how quickly water flows through the pipes, until it makes its way to a tap or other valved outlet. Locate the main water supply. . Water Pressure Test Sheet.
From 1svoimi-rukami.ru
Как увеличить давление воды в шланге 80 фото Water Pressure Test Sheet the test involves filling the vessel or pipe system with a liquid, usually water, which may be dyed to aid in visual leak detection, and pressurization of the. tell people that you're living with to refrain from using water while you test the pressure. a template for recording the results of hydrostatic or pneumatic pressure tests on. Water Pressure Test Sheet.
From www.vrogue.co
Pressure Test Certificate Template Printable Pat Temp vrogue.co Water Pressure Test Sheet download a free template for pressure test certificates for hydraulic or co2 systems. As proof that the work has been carried out adequately, details are included such as water supply pipe testing, peak test pressure, and more. Fill in the site details, test method, test. water pressure is the term used to describe how quickly water flows through. Water Pressure Test Sheet.
From www.youtube.com
Work method statement for hydrostatic pressure testing in chilled water Water Pressure Test Sheet As proof that the work has been carried out adequately, details are included such as water supply pipe testing, peak test pressure, and more. a combined pressure test record certificate template (sometimes known as a cptr) is used by plumbers to record details and safety checks of water pipes. How can you test your water. download a free. Water Pressure Test Sheet.
From www.pdffiller.com
Pressure Test Report Format Pdf Fill Online, Printable, Fillable Water Pressure Test Sheet Locate the main water supply. a combined pressure test record certificate template (sometimes known as a cptr) is used by plumbers to record details and safety checks of water pipes. you‘ve noticed that your water pressure has changed recently, there are a few things you should do. As proof that the work has been carried out adequately, details. Water Pressure Test Sheet.
From www.scribd.com
Pressure Test 001 Water Pressure Test Sheet you‘ve noticed that your water pressure has changed recently, there are a few things you should do. As proof that the work has been carried out adequately, details are included such as water supply pipe testing, peak test pressure, and more. a template for recording the results of hydrostatic or pneumatic pressure tests on pressure systems. download. Water Pressure Test Sheet.
From www.pinterest.com
Professional And High Quality Templates Hydrostatic Pressure Test Water Pressure Test Sheet tell people that you're living with to refrain from using water while you test the pressure. download a free template for pressure test certificates for hydraulic or co2 systems. Fill in the site details, test method, test. the test involves filling the vessel or pipe system with a liquid, usually water, which may be dyed to aid. Water Pressure Test Sheet.
From www.thegreenerleithsocial.org
Hydrostatic Pressure Test Report Template Water Pressure Test Sheet water pressure is the term used to describe how quickly water flows through the pipes, until it makes its way to a tap or other valved outlet. How can you test your water. tell people that you're living with to refrain from using water while you test the pressure. you‘ve noticed that your water pressure has changed. Water Pressure Test Sheet.
From www.teesnails.com
Hydrostatic Pressure Test Report Template Water Pressure Test Sheet tell people that you're living with to refrain from using water while you test the pressure. you‘ve noticed that your water pressure has changed recently, there are a few things you should do. download a free template for pressure test certificates for hydraulic or co2 systems. Fill in the site details, test method, test. How can you. Water Pressure Test Sheet.
From cemerirwrmaterialdb.z21.web.core.windows.net
Water Cycle With Labelling Water Pressure Test Sheet water pressure is the term used to describe how quickly water flows through the pipes, until it makes its way to a tap or other valved outlet. a combined pressure test record certificate template (sometimes known as a cptr) is used by plumbers to record details and safety checks of water pipes. As proof that the work has. Water Pressure Test Sheet.
From www.signnow.com
Pressure Test Template 20152024 Form Fill Out and Sign Printable PDF Water Pressure Test Sheet How can you test your water. download a free template for pressure test certificates for hydraulic or co2 systems. Fill in the site details, test method, test. As proof that the work has been carried out adequately, details are included such as water supply pipe testing, peak test pressure, and more. you‘ve noticed that your water pressure has. Water Pressure Test Sheet.
From www.youtube.com
Water Entry Pressure Test Demo by Sterlitech YouTube Water Pressure Test Sheet download a free template for pressure test certificates for hydraulic or co2 systems. How can you test your water. a template for recording the results of hydrostatic or pneumatic pressure tests on pressure systems. you‘ve noticed that your water pressure has changed recently, there are a few things you should do. a combined pressure test record. Water Pressure Test Sheet.
From pray.gelorailmu.com
Hydrostatic Pressure Test Report Template Water Pressure Test Sheet Fill in the site details, test method, test. a combined pressure test record certificate template (sometimes known as a cptr) is used by plumbers to record details and safety checks of water pipes. download a free template for pressure test certificates for hydraulic or co2 systems. How can you test your water. water pressure is the term. Water Pressure Test Sheet.
From www.pipingengineer.org
Piping System Preparation for Hydro Tests and Pneumatic Tests The Water Pressure Test Sheet As proof that the work has been carried out adequately, details are included such as water supply pipe testing, peak test pressure, and more. tell people that you're living with to refrain from using water while you test the pressure. Locate the main water supply. water pressure is the term used to describe how quickly water flows through. Water Pressure Test Sheet.
From www.scribd.com
Test Pressure Record Sheet Water Pressure Test Sheet How can you test your water. As proof that the work has been carried out adequately, details are included such as water supply pipe testing, peak test pressure, and more. download a free template for pressure test certificates for hydraulic or co2 systems. a combined pressure test record certificate template (sometimes known as a cptr) is used by. Water Pressure Test Sheet.
From micahropavila.blogspot.com
Leak Test Procedure for Piping MicahropAvila Water Pressure Test Sheet water pressure is the term used to describe how quickly water flows through the pipes, until it makes its way to a tap or other valved outlet. How can you test your water. As proof that the work has been carried out adequately, details are included such as water supply pipe testing, peak test pressure, and more. tell. Water Pressure Test Sheet.
From amylumuidmaterialdb.z13.web.core.windows.net
Grade 11 Reading Comprehension Practice Test Water Pressure Test Sheet Fill in the site details, test method, test. How can you test your water. Locate the main water supply. tell people that you're living with to refrain from using water while you test the pressure. As proof that the work has been carried out adequately, details are included such as water supply pipe testing, peak test pressure, and more.. Water Pressure Test Sheet.
From www.scribd.com
Hydrostatic Test Report Form_201211201035009705.pdf Water Pressure Test Sheet tell people that you're living with to refrain from using water while you test the pressure. the test involves filling the vessel or pipe system with a liquid, usually water, which may be dyed to aid in visual leak detection, and pressurization of the. download a free template for pressure test certificates for hydraulic or co2 systems.. Water Pressure Test Sheet.
From www.pinterest.com.au
Hydrostatic Pressure Test Report Template Water Pressure Test Sheet Locate the main water supply. a combined pressure test record certificate template (sometimes known as a cptr) is used by plumbers to record details and safety checks of water pipes. water pressure is the term used to describe how quickly water flows through the pipes, until it makes its way to a tap or other valved outlet. . Water Pressure Test Sheet.