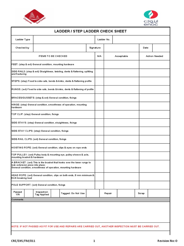
Ladder Inspection Checklist Pdf . Always follow ladder manufacturer instructions and comply with applicable state and federal osha standards. Use this checklist before you. More than 24,000 injuries and 36 deaths occur every year in the us from ladder accidents. Are rungs, cleats or steps intact and free from damage? The checklist covers ladder identification, structural integrity, surface. The osha regulations state that ladders should be inspected before initial use in each work shift, and more. Are rails free from cracks or splitting? Download a free pdf checklist to inspect ladders in your facility.
from www.dexform.com
The checklist covers ladder identification, structural integrity, surface. Use this checklist before you. More than 24,000 injuries and 36 deaths occur every year in the us from ladder accidents. Are rungs, cleats or steps intact and free from damage? The osha regulations state that ladders should be inspected before initial use in each work shift, and more. Are rails free from cracks or splitting? Always follow ladder manufacturer instructions and comply with applicable state and federal osha standards. Download a free pdf checklist to inspect ladders in your facility.
Ladder inspection checklist in Word and Pdf formats
Ladder Inspection Checklist Pdf Use this checklist before you. More than 24,000 injuries and 36 deaths occur every year in the us from ladder accidents. Are rails free from cracks or splitting? The osha regulations state that ladders should be inspected before initial use in each work shift, and more. Are rungs, cleats or steps intact and free from damage? Use this checklist before you. The checklist covers ladder identification, structural integrity, surface. Always follow ladder manufacturer instructions and comply with applicable state and federal osha standards. Download a free pdf checklist to inspect ladders in your facility.
From www.scribd.com
Form No 67 Ladder Inspection Checklist PDF Ladder Inspection Checklist Pdf The checklist covers ladder identification, structural integrity, surface. Use this checklist before you. Download a free pdf checklist to inspect ladders in your facility. Are rails free from cracks or splitting? Always follow ladder manufacturer instructions and comply with applicable state and federal osha standards. Are rungs, cleats or steps intact and free from damage? More than 24,000 injuries and. Ladder Inspection Checklist Pdf.
From www.scribd.com
Monthly Ladder Inspection Checklist PDF Ladder Inspection Checklist Pdf Always follow ladder manufacturer instructions and comply with applicable state and federal osha standards. The osha regulations state that ladders should be inspected before initial use in each work shift, and more. Are rungs, cleats or steps intact and free from damage? The checklist covers ladder identification, structural integrity, surface. Use this checklist before you. Download a free pdf checklist. Ladder Inspection Checklist Pdf.
From www.dexform.com
Ladder inspection checklist in Word and Pdf formats Ladder Inspection Checklist Pdf Download a free pdf checklist to inspect ladders in your facility. Are rails free from cracks or splitting? The checklist covers ladder identification, structural integrity, surface. Use this checklist before you. Are rungs, cleats or steps intact and free from damage? Always follow ladder manufacturer instructions and comply with applicable state and federal osha standards. More than 24,000 injuries and. Ladder Inspection Checklist Pdf.
From www.scribd.com
Ladder Inspection Checklist PDF Ladder Inspection Checklist Pdf The checklist covers ladder identification, structural integrity, surface. The osha regulations state that ladders should be inspected before initial use in each work shift, and more. Download a free pdf checklist to inspect ladders in your facility. Always follow ladder manufacturer instructions and comply with applicable state and federal osha standards. Are rungs, cleats or steps intact and free from. Ladder Inspection Checklist Pdf.
From industrialladder.com
Ladders *** Ladder Information Ladder Inspection Video & Form Ladder Inspection Checklist Pdf Are rails free from cracks or splitting? Download a free pdf checklist to inspect ladders in your facility. The osha regulations state that ladders should be inspected before initial use in each work shift, and more. Use this checklist before you. More than 24,000 injuries and 36 deaths occur every year in the us from ladder accidents. The checklist covers. Ladder Inspection Checklist Pdf.
From www.examples.com
Inspection Checklist 25+ Examples, Format, How to Prepare, Pdf Ladder Inspection Checklist Pdf The osha regulations state that ladders should be inspected before initial use in each work shift, and more. More than 24,000 injuries and 36 deaths occur every year in the us from ladder accidents. Use this checklist before you. Are rungs, cleats or steps intact and free from damage? Always follow ladder manufacturer instructions and comply with applicable state and. Ladder Inspection Checklist Pdf.
From www.templateroller.com
Ladder Inspection Checklist Template Public Services Health and Ladder Inspection Checklist Pdf Download a free pdf checklist to inspect ladders in your facility. Are rungs, cleats or steps intact and free from damage? Are rails free from cracks or splitting? The checklist covers ladder identification, structural integrity, surface. Always follow ladder manufacturer instructions and comply with applicable state and federal osha standards. More than 24,000 injuries and 36 deaths occur every year. Ladder Inspection Checklist Pdf.
From www.dexform.com
Ladder inspection checklist in Word and Pdf formats Ladder Inspection Checklist Pdf Are rungs, cleats or steps intact and free from damage? More than 24,000 injuries and 36 deaths occur every year in the us from ladder accidents. Use this checklist before you. The checklist covers ladder identification, structural integrity, surface. The osha regulations state that ladders should be inspected before initial use in each work shift, and more. Download a free. Ladder Inspection Checklist Pdf.
From onlinesafetydepot.com
Ladder Inspection Checklist and Why you Should do it! Ladder Inspection Checklist Pdf The osha regulations state that ladders should be inspected before initial use in each work shift, and more. Use this checklist before you. Always follow ladder manufacturer instructions and comply with applicable state and federal osha standards. Download a free pdf checklist to inspect ladders in your facility. More than 24,000 injuries and 36 deaths occur every year in the. Ladder Inspection Checklist Pdf.
From safetyspecialists.com.au
Portable Ladder Inspection Checklist NECA Safety Specialists Ladder Inspection Checklist Pdf Use this checklist before you. Download a free pdf checklist to inspect ladders in your facility. More than 24,000 injuries and 36 deaths occur every year in the us from ladder accidents. Are rungs, cleats or steps intact and free from damage? Are rails free from cracks or splitting? The osha regulations state that ladders should be inspected before initial. Ladder Inspection Checklist Pdf.
From www.scribd.com
Monthly Ladder Inspection Checklist PDF Ladder Inspection Checklist Pdf Download a free pdf checklist to inspect ladders in your facility. Are rails free from cracks or splitting? More than 24,000 injuries and 36 deaths occur every year in the us from ladder accidents. The checklist covers ladder identification, structural integrity, surface. The osha regulations state that ladders should be inspected before initial use in each work shift, and more.. Ladder Inspection Checklist Pdf.
From www.scribd.com
Portable Ladder Inspection Checklist.pdf Ladder Inspection Checklist Pdf The checklist covers ladder identification, structural integrity, surface. Download a free pdf checklist to inspect ladders in your facility. More than 24,000 injuries and 36 deaths occur every year in the us from ladder accidents. Use this checklist before you. Are rails free from cracks or splitting? The osha regulations state that ladders should be inspected before initial use in. Ladder Inspection Checklist Pdf.
From www.templateroller.com
Ladder Inspection Checklist Template Fill Out, Sign Online and Ladder Inspection Checklist Pdf More than 24,000 injuries and 36 deaths occur every year in the us from ladder accidents. Use this checklist before you. Are rungs, cleats or steps intact and free from damage? Are rails free from cracks or splitting? Download a free pdf checklist to inspect ladders in your facility. The checklist covers ladder identification, structural integrity, surface. The osha regulations. Ladder Inspection Checklist Pdf.
From www.dexform.com
Sample ladder inspection checklist in Word and Pdf formats Ladder Inspection Checklist Pdf Always follow ladder manufacturer instructions and comply with applicable state and federal osha standards. The checklist covers ladder identification, structural integrity, surface. Are rungs, cleats or steps intact and free from damage? More than 24,000 injuries and 36 deaths occur every year in the us from ladder accidents. Are rails free from cracks or splitting? The osha regulations state that. Ladder Inspection Checklist Pdf.
From www.scribd.com
Portable Ladder Annual Inspection Checklist PDF Ladder Screw Ladder Inspection Checklist Pdf Are rungs, cleats or steps intact and free from damage? The checklist covers ladder identification, structural integrity, surface. Use this checklist before you. More than 24,000 injuries and 36 deaths occur every year in the us from ladder accidents. Always follow ladder manufacturer instructions and comply with applicable state and federal osha standards. The osha regulations state that ladders should. Ladder Inspection Checklist Pdf.
From www.dexform.com
Ladder inspection checklist in Word and Pdf formats Ladder Inspection Checklist Pdf Download a free pdf checklist to inspect ladders in your facility. The osha regulations state that ladders should be inspected before initial use in each work shift, and more. Always follow ladder manufacturer instructions and comply with applicable state and federal osha standards. More than 24,000 injuries and 36 deaths occur every year in the us from ladder accidents. The. Ladder Inspection Checklist Pdf.
From www.uslegalforms.com
Ladder Inspection Checklist 20202021 Fill and Sign Printable Ladder Inspection Checklist Pdf More than 24,000 injuries and 36 deaths occur every year in the us from ladder accidents. Use this checklist before you. Download a free pdf checklist to inspect ladders in your facility. Always follow ladder manufacturer instructions and comply with applicable state and federal osha standards. Are rails free from cracks or splitting? Are rungs, cleats or steps intact and. Ladder Inspection Checklist Pdf.
From www.scribd.com
Checklist Ladder Inspection PDF Ladder Inspection Checklist Pdf The checklist covers ladder identification, structural integrity, surface. Download a free pdf checklist to inspect ladders in your facility. The osha regulations state that ladders should be inspected before initial use in each work shift, and more. Always follow ladder manufacturer instructions and comply with applicable state and federal osha standards. Are rails free from cracks or splitting? Are rungs,. Ladder Inspection Checklist Pdf.
From www.scribd.com
Ladder Inspection Checklist PDF Ladder Screw Ladder Inspection Checklist Pdf Use this checklist before you. More than 24,000 injuries and 36 deaths occur every year in the us from ladder accidents. Always follow ladder manufacturer instructions and comply with applicable state and federal osha standards. Are rungs, cleats or steps intact and free from damage? Are rails free from cracks or splitting? Download a free pdf checklist to inspect ladders. Ladder Inspection Checklist Pdf.
From www.scribd.com
Ladder Inspection Checklist PDF Ladder Inspection Checklist Pdf Are rails free from cracks or splitting? The checklist covers ladder identification, structural integrity, surface. Always follow ladder manufacturer instructions and comply with applicable state and federal osha standards. More than 24,000 injuries and 36 deaths occur every year in the us from ladder accidents. Download a free pdf checklist to inspect ladders in your facility. The osha regulations state. Ladder Inspection Checklist Pdf.
From formspal.com
Ladder Inspection Checklist Form ≡ Fill Out Printable PDF Forms Online Ladder Inspection Checklist Pdf Use this checklist before you. The checklist covers ladder identification, structural integrity, surface. Download a free pdf checklist to inspect ladders in your facility. Are rungs, cleats or steps intact and free from damage? More than 24,000 injuries and 36 deaths occur every year in the us from ladder accidents. Are rails free from cracks or splitting? Always follow ladder. Ladder Inspection Checklist Pdf.
From www.pdffiller.com
Fillable Online Ladder Inspection Checklist Environmental Health and Ladder Inspection Checklist Pdf More than 24,000 injuries and 36 deaths occur every year in the us from ladder accidents. Use this checklist before you. Download a free pdf checklist to inspect ladders in your facility. The osha regulations state that ladders should be inspected before initial use in each work shift, and more. Always follow ladder manufacturer instructions and comply with applicable state. Ladder Inspection Checklist Pdf.
From www.dexform.com
Ladder inspection checklist in Word and Pdf formats Ladder Inspection Checklist Pdf More than 24,000 injuries and 36 deaths occur every year in the us from ladder accidents. Always follow ladder manufacturer instructions and comply with applicable state and federal osha standards. Use this checklist before you. The osha regulations state that ladders should be inspected before initial use in each work shift, and more. The checklist covers ladder identification, structural integrity,. Ladder Inspection Checklist Pdf.
From www.pdffiller.com
Ladder Inspection Form Pdf Fill Online, Printable, Fillable, Blank Ladder Inspection Checklist Pdf Always follow ladder manufacturer instructions and comply with applicable state and federal osha standards. Download a free pdf checklist to inspect ladders in your facility. Use this checklist before you. More than 24,000 injuries and 36 deaths occur every year in the us from ladder accidents. The checklist covers ladder identification, structural integrity, surface. Are rails free from cracks or. Ladder Inspection Checklist Pdf.
From mavink.com
Osha Ladder Safety Inspection Checklist Ladder Inspection Checklist Pdf Are rails free from cracks or splitting? Are rungs, cleats or steps intact and free from damage? Use this checklist before you. Download a free pdf checklist to inspect ladders in your facility. More than 24,000 injuries and 36 deaths occur every year in the us from ladder accidents. The checklist covers ladder identification, structural integrity, surface. The osha regulations. Ladder Inspection Checklist Pdf.
From www.pinterest.ph
The Ladder Inspection Checklist is a stepbystep guide that you can Ladder Inspection Checklist Pdf The osha regulations state that ladders should be inspected before initial use in each work shift, and more. The checklist covers ladder identification, structural integrity, surface. Are rungs, cleats or steps intact and free from damage? Download a free pdf checklist to inspect ladders in your facility. Are rails free from cracks or splitting? Use this checklist before you. More. Ladder Inspection Checklist Pdf.
From www.scribd.com
Ladder Log Ladder Inspection Checklist PDF Ladder Ladder Inspection Checklist Pdf Always follow ladder manufacturer instructions and comply with applicable state and federal osha standards. Download a free pdf checklist to inspect ladders in your facility. Are rails free from cracks or splitting? The checklist covers ladder identification, structural integrity, surface. Are rungs, cleats or steps intact and free from damage? More than 24,000 injuries and 36 deaths occur every year. Ladder Inspection Checklist Pdf.
From www.scribd.com
Ladder Safety Checklist PDF Ladder Inspection Checklist Pdf More than 24,000 injuries and 36 deaths occur every year in the us from ladder accidents. Are rails free from cracks or splitting? The osha regulations state that ladders should be inspected before initial use in each work shift, and more. Are rungs, cleats or steps intact and free from damage? The checklist covers ladder identification, structural integrity, surface. Download. Ladder Inspection Checklist Pdf.
From www.scribd.com
Cre Ladder Inspection Checklist PDF Ladder Inspection Checklist Pdf Are rails free from cracks or splitting? The osha regulations state that ladders should be inspected before initial use in each work shift, and more. The checklist covers ladder identification, structural integrity, surface. Download a free pdf checklist to inspect ladders in your facility. Are rungs, cleats or steps intact and free from damage? Always follow ladder manufacturer instructions and. Ladder Inspection Checklist Pdf.
From www.dexform.com
Ladder inspection checklist in Word and Pdf formats Ladder Inspection Checklist Pdf The checklist covers ladder identification, structural integrity, surface. Always follow ladder manufacturer instructions and comply with applicable state and federal osha standards. Are rails free from cracks or splitting? The osha regulations state that ladders should be inspected before initial use in each work shift, and more. Are rungs, cleats or steps intact and free from damage? Download a free. Ladder Inspection Checklist Pdf.
From www.scribd.com
Ladder Inspection Checklist PDF Ladder Inspection Checklist Pdf More than 24,000 injuries and 36 deaths occur every year in the us from ladder accidents. Use this checklist before you. The osha regulations state that ladders should be inspected before initial use in each work shift, and more. Download a free pdf checklist to inspect ladders in your facility. Are rungs, cleats or steps intact and free from damage?. Ladder Inspection Checklist Pdf.
From www.scribd.com
Ladder Self Inspection Checklist PDF Ladder Ladder Inspection Checklist Pdf More than 24,000 injuries and 36 deaths occur every year in the us from ladder accidents. The checklist covers ladder identification, structural integrity, surface. Use this checklist before you. The osha regulations state that ladders should be inspected before initial use in each work shift, and more. Are rails free from cracks or splitting? Download a free pdf checklist to. Ladder Inspection Checklist Pdf.
From www.safetymint.com
Ladder Inspection Checklist Download Free PDF Ladder Inspection Checklist Pdf Download a free pdf checklist to inspect ladders in your facility. Are rails free from cracks or splitting? More than 24,000 injuries and 36 deaths occur every year in the us from ladder accidents. Are rungs, cleats or steps intact and free from damage? The osha regulations state that ladders should be inspected before initial use in each work shift,. Ladder Inspection Checklist Pdf.
From safetyculture.com
Free Ladder Inspection Checklist PDF SafetyCulture Ladder Inspection Checklist Pdf The osha regulations state that ladders should be inspected before initial use in each work shift, and more. Download a free pdf checklist to inspect ladders in your facility. Always follow ladder manufacturer instructions and comply with applicable state and federal osha standards. Use this checklist before you. The checklist covers ladder identification, structural integrity, surface. Are rails free from. Ladder Inspection Checklist Pdf.
From asmarkt24.de
Printable Ladder Inspection Checklist Use Only Ladders That Are In Good Ladder Inspection Checklist Pdf The osha regulations state that ladders should be inspected before initial use in each work shift, and more. Are rails free from cracks or splitting? More than 24,000 injuries and 36 deaths occur every year in the us from ladder accidents. Download a free pdf checklist to inspect ladders in your facility. Use this checklist before you. Are rungs, cleats. Ladder Inspection Checklist Pdf.