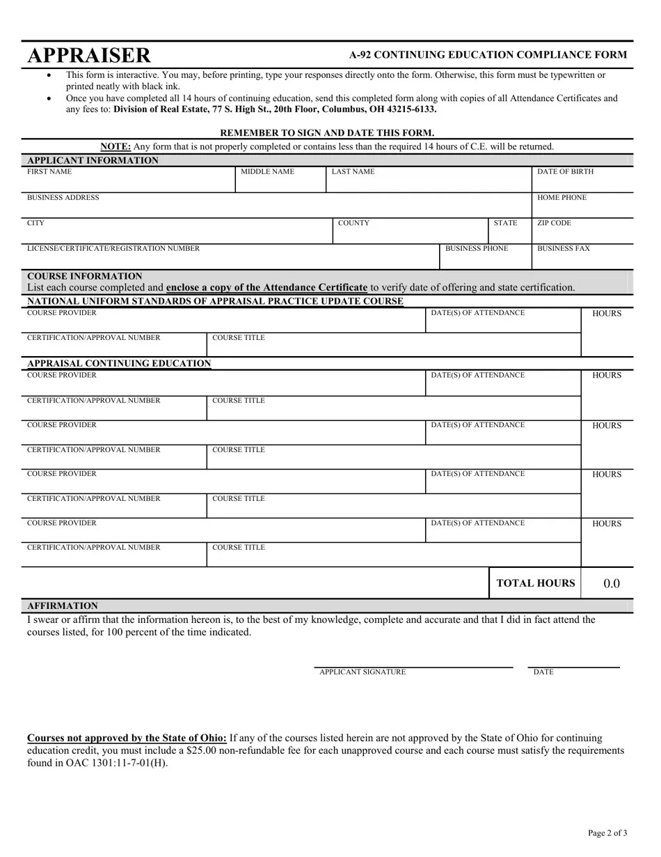
Ohio Real Estate Continuing Education Compliance Form . Proof of continuing education compliance may not be submitted earlier than 60 days before the licensee’s due. Ohio realtors partners with nar, the ce shop, and mckissock to offer online programs approved for real estate continuing education credit through the ohio division of. Pre‐approved by this division, refer to the a‐92 compliance form for further instructions. Answer the ethical conduct and legal history questions. To check if a course has been approved, visit the. Sign and date the certification on page 1. Complete the renewal application and the continuing education compliance form. Each active broker and management level licensee is required to submit to the ohio real estate commission proof of completing 30. Complete the renewal application and the continuing education compliance form. Answer the ethical conduct and legal history. Completed 30 hours of continuing education, including the three required courses, civil rights, core law and ohio canons of ethics (all 3 hours.
from www.pdffiller.com
Complete the renewal application and the continuing education compliance form. Ohio realtors partners with nar, the ce shop, and mckissock to offer online programs approved for real estate continuing education credit through the ohio division of. Answer the ethical conduct and legal history. Complete the renewal application and the continuing education compliance form. Completed 30 hours of continuing education, including the three required courses, civil rights, core law and ohio canons of ethics (all 3 hours. Each active broker and management level licensee is required to submit to the ohio real estate commission proof of completing 30. To check if a course has been approved, visit the. Pre‐approved by this division, refer to the a‐92 compliance form for further instructions. Answer the ethical conduct and legal history questions. Sign and date the certification on page 1.
Fillable Online Real Estate Continuing Education Common Questions Fax Email Print pdfFiller
Ohio Real Estate Continuing Education Compliance Form Sign and date the certification on page 1. Sign and date the certification on page 1. Ohio realtors partners with nar, the ce shop, and mckissock to offer online programs approved for real estate continuing education credit through the ohio division of. Complete the renewal application and the continuing education compliance form. Pre‐approved by this division, refer to the a‐92 compliance form for further instructions. Answer the ethical conduct and legal history questions. Proof of continuing education compliance may not be submitted earlier than 60 days before the licensee’s due. Answer the ethical conduct and legal history. Completed 30 hours of continuing education, including the three required courses, civil rights, core law and ohio canons of ethics (all 3 hours. Complete the renewal application and the continuing education compliance form. Each active broker and management level licensee is required to submit to the ohio real estate commission proof of completing 30. To check if a course has been approved, visit the.
From www.templateroller.com
Form SFN12190 Fill Out, Sign Online and Download Fillable PDF, North Dakota Templateroller Ohio Real Estate Continuing Education Compliance Form Answer the ethical conduct and legal history. Ohio realtors partners with nar, the ce shop, and mckissock to offer online programs approved for real estate continuing education credit through the ohio division of. Complete the renewal application and the continuing education compliance form. Completed 30 hours of continuing education, including the three required courses, civil rights, core law and ohio. Ohio Real Estate Continuing Education Compliance Form.
From www.pdffiller.com
Fillable Online Real Estate Continuing Education Course Approval Application. Apply for approval Ohio Real Estate Continuing Education Compliance Form To check if a course has been approved, visit the. Pre‐approved by this division, refer to the a‐92 compliance form for further instructions. Each active broker and management level licensee is required to submit to the ohio real estate commission proof of completing 30. Ohio realtors partners with nar, the ce shop, and mckissock to offer online programs approved for. Ohio Real Estate Continuing Education Compliance Form.
From www.templateroller.com
Ohio Committee Review of Continuing Education Presentation/Independent Study Fill Out, Sign Ohio Real Estate Continuing Education Compliance Form Answer the ethical conduct and legal history questions. Complete the renewal application and the continuing education compliance form. To check if a course has been approved, visit the. Pre‐approved by this division, refer to the a‐92 compliance form for further instructions. Complete the renewal application and the continuing education compliance form. Ohio realtors partners with nar, the ce shop, and. Ohio Real Estate Continuing Education Compliance Form.
From legaltemplates.net
Free Ohio Real Estate Power of Attorney Form PDF & Word Ohio Real Estate Continuing Education Compliance Form Complete the renewal application and the continuing education compliance form. Ohio realtors partners with nar, the ce shop, and mckissock to offer online programs approved for real estate continuing education credit through the ohio division of. Complete the renewal application and the continuing education compliance form. Sign and date the certification on page 1. Answer the ethical conduct and legal. Ohio Real Estate Continuing Education Compliance Form.
From www.formsbank.com
Continuing Education Transmittal Form Office Of Banks And Real Estate printable pdf download Ohio Real Estate Continuing Education Compliance Form Complete the renewal application and the continuing education compliance form. Pre‐approved by this division, refer to the a‐92 compliance form for further instructions. To check if a course has been approved, visit the. Answer the ethical conduct and legal history questions. Each active broker and management level licensee is required to submit to the ohio real estate commission proof of. Ohio Real Estate Continuing Education Compliance Form.
From www.signnow.com
Ohio Real Estate Continuing Education Compliance 20232024 Form Fill Out and Sign Printable Ohio Real Estate Continuing Education Compliance Form Complete the renewal application and the continuing education compliance form. Answer the ethical conduct and legal history questions. Ohio realtors partners with nar, the ce shop, and mckissock to offer online programs approved for real estate continuing education credit through the ohio division of. Proof of continuing education compliance may not be submitted earlier than 60 days before the licensee’s. Ohio Real Estate Continuing Education Compliance Form.
From www.templateroller.com
Form COM3654 Fill Out, Sign Online and Download Fillable PDF, Ohio Templateroller Ohio Real Estate Continuing Education Compliance Form Ohio realtors partners with nar, the ce shop, and mckissock to offer online programs approved for real estate continuing education credit through the ohio division of. To check if a course has been approved, visit the. Complete the renewal application and the continuing education compliance form. Complete the renewal application and the continuing education compliance form. Answer the ethical conduct. Ohio Real Estate Continuing Education Compliance Form.
From cerxiuaq.blob.core.windows.net
State Of Ohio Real Estate Continuing Education Compliance Form at Thomas Garcia blog Ohio Real Estate Continuing Education Compliance Form To check if a course has been approved, visit the. Completed 30 hours of continuing education, including the three required courses, civil rights, core law and ohio canons of ethics (all 3 hours. Complete the renewal application and the continuing education compliance form. Answer the ethical conduct and legal history. Pre‐approved by this division, refer to the a‐92 compliance form. Ohio Real Estate Continuing Education Compliance Form.
From www.nachi.org
Free Continuing Education for Real Estate Agents Licensed in Ohio InterNACHI® Ohio Real Estate Continuing Education Compliance Form Sign and date the certification on page 1. Complete the renewal application and the continuing education compliance form. Complete the renewal application and the continuing education compliance form. Each active broker and management level licensee is required to submit to the ohio real estate commission proof of completing 30. Completed 30 hours of continuing education, including the three required courses,. Ohio Real Estate Continuing Education Compliance Form.
From prntbl.concejomunicipaldechinu.gov.co
Real Estate Certification Form prntbl.concejomunicipaldechinu.gov.co Ohio Real Estate Continuing Education Compliance Form Each active broker and management level licensee is required to submit to the ohio real estate commission proof of completing 30. Complete the renewal application and the continuing education compliance form. Complete the renewal application and the continuing education compliance form. Ohio realtors partners with nar, the ce shop, and mckissock to offer online programs approved for real estate continuing. Ohio Real Estate Continuing Education Compliance Form.
From www.pdffiller.com
Fillable Online Recertification of Real Estate Continuing Education Course Fax Email Print Ohio Real Estate Continuing Education Compliance Form Sign and date the certification on page 1. Ohio realtors partners with nar, the ce shop, and mckissock to offer online programs approved for real estate continuing education credit through the ohio division of. Complete the renewal application and the continuing education compliance form. Complete the renewal application and the continuing education compliance form. Proof of continuing education compliance may. Ohio Real Estate Continuing Education Compliance Form.
From www.allbusinesstemplates.com
Real Estate Certification Form Templates at Ohio Real Estate Continuing Education Compliance Form Complete the renewal application and the continuing education compliance form. Completed 30 hours of continuing education, including the three required courses, civil rights, core law and ohio canons of ethics (all 3 hours. To check if a course has been approved, visit the. Proof of continuing education compliance may not be submitted earlier than 60 days before the licensee’s due.. Ohio Real Estate Continuing Education Compliance Form.
From cesacademy2.blogspot.com
Another Milestone Hit! CES Academy is Officially PRCAccredited! CES Academy (sample) Ohio Real Estate Continuing Education Compliance Form Answer the ethical conduct and legal history questions. Answer the ethical conduct and legal history. Sign and date the certification on page 1. Pre‐approved by this division, refer to the a‐92 compliance form for further instructions. Ohio realtors partners with nar, the ce shop, and mckissock to offer online programs approved for real estate continuing education credit through the ohio. Ohio Real Estate Continuing Education Compliance Form.
From www.templateroller.com
Form REPL190035 Fill Out, Sign Online and Download Printable PDF, Ohio Templateroller Ohio Real Estate Continuing Education Compliance Form Each active broker and management level licensee is required to submit to the ohio real estate commission proof of completing 30. Proof of continuing education compliance may not be submitted earlier than 60 days before the licensee’s due. Sign and date the certification on page 1. Ohio realtors partners with nar, the ce shop, and mckissock to offer online programs. Ohio Real Estate Continuing Education Compliance Form.
From happeningnext.com
Real Estate Continuing Education Class Eastwood Event Centre, Niles, OH July 19, 2022 Ohio Real Estate Continuing Education Compliance Form Answer the ethical conduct and legal history questions. Each active broker and management level licensee is required to submit to the ohio real estate commission proof of completing 30. Pre‐approved by this division, refer to the a‐92 compliance form for further instructions. Completed 30 hours of continuing education, including the three required courses, civil rights, core law and ohio canons. Ohio Real Estate Continuing Education Compliance Form.
From cerxiuaq.blob.core.windows.net
State Of Ohio Real Estate Continuing Education Compliance Form at Thomas Garcia blog Ohio Real Estate Continuing Education Compliance Form Ohio realtors partners with nar, the ce shop, and mckissock to offer online programs approved for real estate continuing education credit through the ohio division of. Complete the renewal application and the continuing education compliance form. Answer the ethical conduct and legal history questions. Each active broker and management level licensee is required to submit to the ohio real estate. Ohio Real Estate Continuing Education Compliance Form.
From www.templateroller.com
Form 526 Download Fillable PDF or Fill Online Real Estate Continuing Education Course Ohio Real Estate Continuing Education Compliance Form Each active broker and management level licensee is required to submit to the ohio real estate commission proof of completing 30. Pre‐approved by this division, refer to the a‐92 compliance form for further instructions. Ohio realtors partners with nar, the ce shop, and mckissock to offer online programs approved for real estate continuing education credit through the ohio division of.. Ohio Real Estate Continuing Education Compliance Form.
From allevents.in
Real Estate Continuing Education Classes. 2 Hrs, 2599 S. Waterside Ct., Lakeside Marblehead, OH Ohio Real Estate Continuing Education Compliance Form Pre‐approved by this division, refer to the a‐92 compliance form for further instructions. Complete the renewal application and the continuing education compliance form. Each active broker and management level licensee is required to submit to the ohio real estate commission proof of completing 30. Answer the ethical conduct and legal history. Proof of continuing education compliance may not be submitted. Ohio Real Estate Continuing Education Compliance Form.
From www.formsbank.com
Real Estate Continuing Education Course Application printable pdf download Ohio Real Estate Continuing Education Compliance Form To check if a course has been approved, visit the. Pre‐approved by this division, refer to the a‐92 compliance form for further instructions. Completed 30 hours of continuing education, including the three required courses, civil rights, core law and ohio canons of ethics (all 3 hours. Each active broker and management level licensee is required to submit to the ohio. Ohio Real Estate Continuing Education Compliance Form.
From www.templateroller.com
Form REPL190034 Fill Out, Sign Online and Download Printable PDF, Ohio Templateroller Ohio Real Estate Continuing Education Compliance Form Sign and date the certification on page 1. Ohio realtors partners with nar, the ce shop, and mckissock to offer online programs approved for real estate continuing education credit through the ohio division of. Pre‐approved by this division, refer to the a‐92 compliance form for further instructions. Completed 30 hours of continuing education, including the three required courses, civil rights,. Ohio Real Estate Continuing Education Compliance Form.
From www.nachi.org
Free Continuing Education for Real Estate Agents Licensed in Ohio InterNACHI® Ohio Real Estate Continuing Education Compliance Form Complete the renewal application and the continuing education compliance form. Proof of continuing education compliance may not be submitted earlier than 60 days before the licensee’s due. Ohio realtors partners with nar, the ce shop, and mckissock to offer online programs approved for real estate continuing education credit through the ohio division of. Answer the ethical conduct and legal history.. Ohio Real Estate Continuing Education Compliance Form.
From www.pdffiller.com
Fillable Online Real Estate Continuing Education Common Questions Fax Email Print pdfFiller Ohio Real Estate Continuing Education Compliance Form Completed 30 hours of continuing education, including the three required courses, civil rights, core law and ohio canons of ethics (all 3 hours. Complete the renewal application and the continuing education compliance form. Answer the ethical conduct and legal history. To check if a course has been approved, visit the. Each active broker and management level licensee is required to. Ohio Real Estate Continuing Education Compliance Form.
From cerxiuaq.blob.core.windows.net
State Of Ohio Real Estate Continuing Education Compliance Form at Thomas Garcia blog Ohio Real Estate Continuing Education Compliance Form Answer the ethical conduct and legal history. Pre‐approved by this division, refer to the a‐92 compliance form for further instructions. Answer the ethical conduct and legal history questions. Complete the renewal application and the continuing education compliance form. To check if a course has been approved, visit the. Completed 30 hours of continuing education, including the three required courses, civil. Ohio Real Estate Continuing Education Compliance Form.
From www.templateroller.com
Form COM3654 Fill Out, Sign Online and Download Fillable PDF, Ohio Templateroller Ohio Real Estate Continuing Education Compliance Form To check if a course has been approved, visit the. Proof of continuing education compliance may not be submitted earlier than 60 days before the licensee’s due. Answer the ethical conduct and legal history questions. Complete the renewal application and the continuing education compliance form. Ohio realtors partners with nar, the ce shop, and mckissock to offer online programs approved. Ohio Real Estate Continuing Education Compliance Form.
From www.templateroller.com
Ohio Auctioneer/Auction Firm Manager Continuing Education Log Fill Out, Sign Online and Ohio Real Estate Continuing Education Compliance Form Complete the renewal application and the continuing education compliance form. Each active broker and management level licensee is required to submit to the ohio real estate commission proof of completing 30. Sign and date the certification on page 1. Complete the renewal application and the continuing education compliance form. Pre‐approved by this division, refer to the a‐92 compliance form for. Ohio Real Estate Continuing Education Compliance Form.
From cerxiuaq.blob.core.windows.net
State Of Ohio Real Estate Continuing Education Compliance Form at Thomas Garcia blog Ohio Real Estate Continuing Education Compliance Form Complete the renewal application and the continuing education compliance form. Sign and date the certification on page 1. To check if a course has been approved, visit the. Each active broker and management level licensee is required to submit to the ohio real estate commission proof of completing 30. Ohio realtors partners with nar, the ce shop, and mckissock to. Ohio Real Estate Continuing Education Compliance Form.
From www.templateroller.com
Ohio Nurses Continuing Education Application Form Fill Out, Sign Online and Download PDF Ohio Real Estate Continuing Education Compliance Form Each active broker and management level licensee is required to submit to the ohio real estate commission proof of completing 30. Complete the renewal application and the continuing education compliance form. Complete the renewal application and the continuing education compliance form. To check if a course has been approved, visit the. Pre‐approved by this division, refer to the a‐92 compliance. Ohio Real Estate Continuing Education Compliance Form.
From auditstudent.com
Real Estate Continuing Education Requirements for All 50 States Audit Student Ohio Real Estate Continuing Education Compliance Form Sign and date the certification on page 1. Complete the renewal application and the continuing education compliance form. Answer the ethical conduct and legal history. Completed 30 hours of continuing education, including the three required courses, civil rights, core law and ohio canons of ethics (all 3 hours. Ohio realtors partners with nar, the ce shop, and mckissock to offer. Ohio Real Estate Continuing Education Compliance Form.
From www.templateroller.com
CCLE Form 6 Fill Out, Sign Online and Download Fillable PDF, Ohio Templateroller Ohio Real Estate Continuing Education Compliance Form Answer the ethical conduct and legal history. Complete the renewal application and the continuing education compliance form. Each active broker and management level licensee is required to submit to the ohio real estate commission proof of completing 30. Pre‐approved by this division, refer to the a‐92 compliance form for further instructions. Ohio realtors partners with nar, the ce shop, and. Ohio Real Estate Continuing Education Compliance Form.
From template.ourinsurance.web.id
Continuing Education Certificate Template Professional Template Examples Ohio Real Estate Continuing Education Compliance Form To check if a course has been approved, visit the. Answer the ethical conduct and legal history questions. Each active broker and management level licensee is required to submit to the ohio real estate commission proof of completing 30. Complete the renewal application and the continuing education compliance form. Proof of continuing education compliance may not be submitted earlier than. Ohio Real Estate Continuing Education Compliance Form.
From www.templateroller.com
Form 613 Fill Out, Sign Online and Download Fillable PDF, Nevada Templateroller Ohio Real Estate Continuing Education Compliance Form Pre‐approved by this division, refer to the a‐92 compliance form for further instructions. To check if a course has been approved, visit the. Ohio realtors partners with nar, the ce shop, and mckissock to offer online programs approved for real estate continuing education credit through the ohio division of. Each active broker and management level licensee is required to submit. Ohio Real Estate Continuing Education Compliance Form.
From www.templateroller.com
Form COM3654 Fill Out, Sign Online and Download Fillable PDF, Ohio Templateroller Ohio Real Estate Continuing Education Compliance Form Ohio realtors partners with nar, the ce shop, and mckissock to offer online programs approved for real estate continuing education credit through the ohio division of. Complete the renewal application and the continuing education compliance form. Sign and date the certification on page 1. Each active broker and management level licensee is required to submit to the ohio real estate. Ohio Real Estate Continuing Education Compliance Form.
From www.templateroller.com
Ohio Nurse Continuing Education Application Form Download Fillable PDF Templateroller Ohio Real Estate Continuing Education Compliance Form Completed 30 hours of continuing education, including the three required courses, civil rights, core law and ohio canons of ethics (all 3 hours. Pre‐approved by this division, refer to the a‐92 compliance form for further instructions. Sign and date the certification on page 1. Complete the renewal application and the continuing education compliance form. Ohio realtors partners with nar, the. Ohio Real Estate Continuing Education Compliance Form.
From revivalportal.goodwood.com
Ohio Real Estate Post Licensing Requirements Ohio Real Estate Continuing Education Compliance Form Each active broker and management level licensee is required to submit to the ohio real estate commission proof of completing 30. Complete the renewal application and the continuing education compliance form. Complete the renewal application and the continuing education compliance form. Answer the ethical conduct and legal history. To check if a course has been approved, visit the. Answer the. Ohio Real Estate Continuing Education Compliance Form.
From www.uslegalforms.com
Sample Continuing Education Form Fill and Sign Printable Template Online US Legal Forms Ohio Real Estate Continuing Education Compliance Form Pre‐approved by this division, refer to the a‐92 compliance form for further instructions. Ohio realtors partners with nar, the ce shop, and mckissock to offer online programs approved for real estate continuing education credit through the ohio division of. To check if a course has been approved, visit the. Sign and date the certification on page 1. Answer the ethical. Ohio Real Estate Continuing Education Compliance Form.