Florida Homestead Application Lee County . There are two ways to apply, depending on. Homestead every person who owns real property in florida on january 1, makes the property his or her permanent residence or the permanent. Important notice about filing your application: Exemptions for persons over 65 or permanently & totally disabled. If you own property in lee county and use it as your permanent residence, you may qualify for significant tax savings by applying for a. When someone owns property and makes it his or her permanent residence or the permanent residence of his or her dependent, the property. Age 65 and older and have. 11 rows submit all applications and documentation to the property appraiser in the county where the property is located.
from www.templateroller.com
Important notice about filing your application: Exemptions for persons over 65 or permanently & totally disabled. Homestead every person who owns real property in florida on january 1, makes the property his or her permanent residence or the permanent. 11 rows submit all applications and documentation to the property appraiser in the county where the property is located. If you own property in lee county and use it as your permanent residence, you may qualify for significant tax savings by applying for a. Age 65 and older and have. When someone owns property and makes it his or her permanent residence or the permanent residence of his or her dependent, the property. There are two ways to apply, depending on.
Lee County, Florida Building Move Application Fill Out, Sign Online
Florida Homestead Application Lee County Important notice about filing your application: If you own property in lee county and use it as your permanent residence, you may qualify for significant tax savings by applying for a. Homestead every person who owns real property in florida on january 1, makes the property his or her permanent residence or the permanent. 11 rows submit all applications and documentation to the property appraiser in the county where the property is located. There are two ways to apply, depending on. When someone owns property and makes it his or her permanent residence or the permanent residence of his or her dependent, the property. Exemptions for persons over 65 or permanently & totally disabled. Important notice about filing your application: Age 65 and older and have.
From belvaymarcella.pages.dev
Homestead Exemption Florida Application 2024 Pdf Cesya Deborah Florida Homestead Application Lee County Age 65 and older and have. Important notice about filing your application: Homestead every person who owns real property in florida on january 1, makes the property his or her permanent residence or the permanent. Exemptions for persons over 65 or permanently & totally disabled. There are two ways to apply, depending on. 11 rows submit all applications and documentation. Florida Homestead Application Lee County.
From www.signnow.com
Homestead Exemption Florida Deadline 20212024 Form Fill Out and Sign Florida Homestead Application Lee County 11 rows submit all applications and documentation to the property appraiser in the county where the property is located. Exemptions for persons over 65 or permanently & totally disabled. Homestead every person who owns real property in florida on january 1, makes the property his or her permanent residence or the permanent. If you own property in lee county and. Florida Homestead Application Lee County.
From www.templateroller.com
Lee County, Florida Residential Building Permit Application Fill Out Florida Homestead Application Lee County Important notice about filing your application: Age 65 and older and have. When someone owns property and makes it his or her permanent residence or the permanent residence of his or her dependent, the property. Homestead every person who owns real property in florida on january 1, makes the property his or her permanent residence or the permanent. Exemptions for. Florida Homestead Application Lee County.
From www.templateroller.com
Lee County, Florida Cdbg Homeownership Assistance Application Fill Florida Homestead Application Lee County Age 65 and older and have. There are two ways to apply, depending on. When someone owns property and makes it his or her permanent residence or the permanent residence of his or her dependent, the property. If you own property in lee county and use it as your permanent residence, you may qualify for significant tax savings by applying. Florida Homestead Application Lee County.
From www.templateroller.com
Lee County, Florida Residential Fence/Wall Application Fill Out, Sign Florida Homestead Application Lee County There are two ways to apply, depending on. If you own property in lee county and use it as your permanent residence, you may qualify for significant tax savings by applying for a. Age 65 and older and have. When someone owns property and makes it his or her permanent residence or the permanent residence of his or her dependent,. Florida Homestead Application Lee County.
From www.signnow.com
Florida Homestead Act Application 20182024 Form Fill Out and Sign Florida Homestead Application Lee County Exemptions for persons over 65 or permanently & totally disabled. Homestead every person who owns real property in florida on january 1, makes the property his or her permanent residence or the permanent. Age 65 and older and have. If you own property in lee county and use it as your permanent residence, you may qualify for significant tax savings. Florida Homestead Application Lee County.
From www.templateroller.com
Lee County, Florida Advisory Committee Application Fill Out, Sign Florida Homestead Application Lee County There are two ways to apply, depending on. Age 65 and older and have. Important notice about filing your application: Homestead every person who owns real property in florida on january 1, makes the property his or her permanent residence or the permanent. Exemptions for persons over 65 or permanently & totally disabled. 11 rows submit all applications and documentation. Florida Homestead Application Lee County.
From www.templateroller.com
Lee County, Florida Cdbg Homeownership Assistance Application Fill Florida Homestead Application Lee County Homestead every person who owns real property in florida on january 1, makes the property his or her permanent residence or the permanent. When someone owns property and makes it his or her permanent residence or the permanent residence of his or her dependent, the property. 11 rows submit all applications and documentation to the property appraiser in the county. Florida Homestead Application Lee County.
From www.templateroller.com
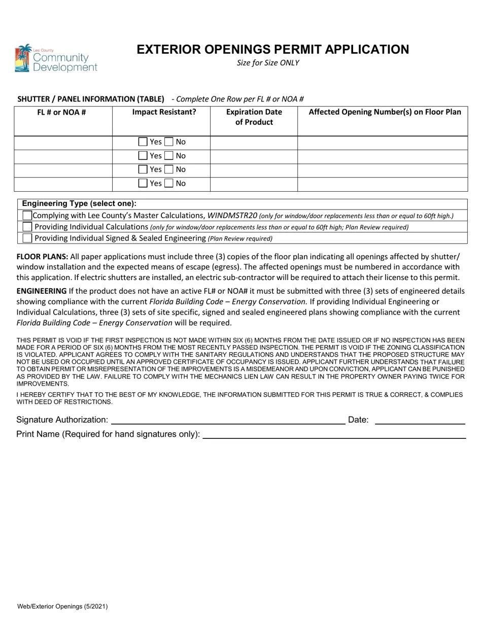
Lee County, Florida Exterior Openings Permit Application Fill Out Florida Homestead Application Lee County Homestead every person who owns real property in florida on january 1, makes the property his or her permanent residence or the permanent. Age 65 and older and have. 11 rows submit all applications and documentation to the property appraiser in the county where the property is located. Important notice about filing your application: When someone owns property and makes. Florida Homestead Application Lee County.
From www.templateroller.com
Lee County, Florida Cdbg Homeownership Assistance Application Fill Florida Homestead Application Lee County There are two ways to apply, depending on. Age 65 and older and have. If you own property in lee county and use it as your permanent residence, you may qualify for significant tax savings by applying for a. When someone owns property and makes it his or her permanent residence or the permanent residence of his or her dependent,. Florida Homestead Application Lee County.
From www.countyforms.com
Fillable Original Application For Homestead And Related Tax Exemptions Florida Homestead Application Lee County When someone owns property and makes it his or her permanent residence or the permanent residence of his or her dependent, the property. 11 rows submit all applications and documentation to the property appraiser in the county where the property is located. Important notice about filing your application: Exemptions for persons over 65 or permanently & totally disabled. Homestead every. Florida Homestead Application Lee County.
From www.dochub.com
Florida homestead portability example Fill out & sign online DocHub Florida Homestead Application Lee County Age 65 and older and have. Homestead every person who owns real property in florida on january 1, makes the property his or her permanent residence or the permanent. If you own property in lee county and use it as your permanent residence, you may qualify for significant tax savings by applying for a. When someone owns property and makes. Florida Homestead Application Lee County.
From www.templateroller.com
Lee County, Florida Roof Application and Permitting Guide Download Florida Homestead Application Lee County Age 65 and older and have. Important notice about filing your application: Exemptions for persons over 65 or permanently & totally disabled. 11 rows submit all applications and documentation to the property appraiser in the county where the property is located. There are two ways to apply, depending on. Homestead every person who owns real property in florida on january. Florida Homestead Application Lee County.
From www.templateroller.com
Lee County, Florida Administrative Application for Dock and Shoreline Florida Homestead Application Lee County Age 65 and older and have. 11 rows submit all applications and documentation to the property appraiser in the county where the property is located. Important notice about filing your application: If you own property in lee county and use it as your permanent residence, you may qualify for significant tax savings by applying for a. There are two ways. Florida Homestead Application Lee County.
From www.templateroller.com
Lee County, Florida Occupancy Application and Permitting Guide Fill Florida Homestead Application Lee County Important notice about filing your application: Exemptions for persons over 65 or permanently & totally disabled. If you own property in lee county and use it as your permanent residence, you may qualify for significant tax savings by applying for a. When someone owns property and makes it his or her permanent residence or the permanent residence of his or. Florida Homestead Application Lee County.
From fyomxcocp.blob.core.windows.net
When Should I Apply For Homestead Exemption In Florida at Benjamin Florida Homestead Application Lee County If you own property in lee county and use it as your permanent residence, you may qualify for significant tax savings by applying for a. Homestead every person who owns real property in florida on january 1, makes the property his or her permanent residence or the permanent. Important notice about filing your application: Age 65 and older and have.. Florida Homestead Application Lee County.
From www.templateroller.com
Lee County, Florida Cdbg Homeownership Assistance Application Fill Florida Homestead Application Lee County There are two ways to apply, depending on. Important notice about filing your application: Age 65 and older and have. 11 rows submit all applications and documentation to the property appraiser in the county where the property is located. When someone owns property and makes it his or her permanent residence or the permanent residence of his or her dependent,. Florida Homestead Application Lee County.
From ects.com
Florida Homestead Exemptions Emerald Coast Title Services Florida Homestead Application Lee County There are two ways to apply, depending on. 11 rows submit all applications and documentation to the property appraiser in the county where the property is located. Important notice about filing your application: Age 65 and older and have. When someone owns property and makes it his or her permanent residence or the permanent residence of his or her dependent,. Florida Homestead Application Lee County.
From www.templateroller.com
Lee County, Florida Occupancy Application and Permitting Guide Fill Florida Homestead Application Lee County Homestead every person who owns real property in florida on january 1, makes the property his or her permanent residence or the permanent. When someone owns property and makes it his or her permanent residence or the permanent residence of his or her dependent, the property. 11 rows submit all applications and documentation to the property appraiser in the county. Florida Homestead Application Lee County.
From www.templateroller.com
Lee County, Florida Roof Covering Permit Application Fill Out, Sign Florida Homestead Application Lee County Homestead every person who owns real property in florida on january 1, makes the property his or her permanent residence or the permanent. There are two ways to apply, depending on. Important notice about filing your application: If you own property in lee county and use it as your permanent residence, you may qualify for significant tax savings by applying. Florida Homestead Application Lee County.
From www.templateroller.com
Lee County, Florida Building Move Application Fill Out, Sign Online Florida Homestead Application Lee County 11 rows submit all applications and documentation to the property appraiser in the county where the property is located. When someone owns property and makes it his or her permanent residence or the permanent residence of his or her dependent, the property. Age 65 and older and have. If you own property in lee county and use it as your. Florida Homestead Application Lee County.
From www.templateroller.com
Lee County, Florida Political Signs Application Download Fillable PDF Florida Homestead Application Lee County When someone owns property and makes it his or her permanent residence or the permanent residence of his or her dependent, the property. Exemptions for persons over 65 or permanently & totally disabled. Age 65 and older and have. 11 rows submit all applications and documentation to the property appraiser in the county where the property is located. Homestead every. Florida Homestead Application Lee County.
From www.templateroller.com
Lee County, Florida Occupancy Application and Permitting Guide Fill Florida Homestead Application Lee County There are two ways to apply, depending on. Homestead every person who owns real property in florida on january 1, makes the property his or her permanent residence or the permanent. 11 rows submit all applications and documentation to the property appraiser in the county where the property is located. If you own property in lee county and use it. Florida Homestead Application Lee County.
From www.templateroller.com
Lee County, Florida Cdbg Homeownership Assistance Application Fill Florida Homestead Application Lee County There are two ways to apply, depending on. Important notice about filing your application: If you own property in lee county and use it as your permanent residence, you may qualify for significant tax savings by applying for a. Age 65 and older and have. 11 rows submit all applications and documentation to the property appraiser in the county where. Florida Homestead Application Lee County.
From www.templateroller.com
Lee County, Florida Administrative Application for Dock and Shoreline Florida Homestead Application Lee County Homestead every person who owns real property in florida on january 1, makes the property his or her permanent residence or the permanent. There are two ways to apply, depending on. Age 65 and older and have. When someone owns property and makes it his or her permanent residence or the permanent residence of his or her dependent, the property.. Florida Homestead Application Lee County.
From www.wikihow.com
How to Apply for a Homestead Exemption in Florida 15 Steps Florida Homestead Application Lee County If you own property in lee county and use it as your permanent residence, you may qualify for significant tax savings by applying for a. There are two ways to apply, depending on. 11 rows submit all applications and documentation to the property appraiser in the county where the property is located. Homestead every person who owns real property in. Florida Homestead Application Lee County.
From www.templateroller.com
Lee County, Florida Cdbg Homeownership Assistance Application Fill Florida Homestead Application Lee County 11 rows submit all applications and documentation to the property appraiser in the county where the property is located. Homestead every person who owns real property in florida on january 1, makes the property his or her permanent residence or the permanent. There are two ways to apply, depending on. When someone owns property and makes it his or her. Florida Homestead Application Lee County.
From www.templateroller.com
Lee County, Florida Occupancy Application and Permitting Guide Fill Florida Homestead Application Lee County Important notice about filing your application: Homestead every person who owns real property in florida on january 1, makes the property his or her permanent residence or the permanent. If you own property in lee county and use it as your permanent residence, you may qualify for significant tax savings by applying for a. Age 65 and older and have.. Florida Homestead Application Lee County.
From fyomxcocp.blob.core.windows.net
When Should I Apply For Homestead Exemption In Florida at Benjamin Florida Homestead Application Lee County Exemptions for persons over 65 or permanently & totally disabled. Important notice about filing your application: If you own property in lee county and use it as your permanent residence, you may qualify for significant tax savings by applying for a. Age 65 and older and have. There are two ways to apply, depending on. 11 rows submit all applications. Florida Homestead Application Lee County.
From www.varnumlaw.com
Florida Homestead Exemption What You Need to Apply Varnum LLP Florida Homestead Application Lee County There are two ways to apply, depending on. When someone owns property and makes it his or her permanent residence or the permanent residence of his or her dependent, the property. Age 65 and older and have. If you own property in lee county and use it as your permanent residence, you may qualify for significant tax savings by applying. Florida Homestead Application Lee County.
From www.uslegalforms.com
FL Lineal Heir Homestead Density Exemption Application Levy County Florida Homestead Application Lee County 11 rows submit all applications and documentation to the property appraiser in the county where the property is located. There are two ways to apply, depending on. Age 65 and older and have. Exemptions for persons over 65 or permanently & totally disabled. Important notice about filing your application: Homestead every person who owns real property in florida on january. Florida Homestead Application Lee County.
From www.templateroller.com
Lee County, Florida Exterior Openings Permit Application Fill Out Florida Homestead Application Lee County Exemptions for persons over 65 or permanently & totally disabled. If you own property in lee county and use it as your permanent residence, you may qualify for significant tax savings by applying for a. When someone owns property and makes it his or her permanent residence or the permanent residence of his or her dependent, the property. Important notice. Florida Homestead Application Lee County.
From www.templateroller.com
Lee County, Florida Administrative Application for Dock and Shoreline Florida Homestead Application Lee County 11 rows submit all applications and documentation to the property appraiser in the county where the property is located. When someone owns property and makes it his or her permanent residence or the permanent residence of his or her dependent, the property. Important notice about filing your application: Homestead every person who owns real property in florida on january 1,. Florida Homestead Application Lee County.
From www.templateroller.com
Lee County, Florida Occupancy Application and Permitting Guide Fill Florida Homestead Application Lee County 11 rows submit all applications and documentation to the property appraiser in the county where the property is located. Homestead every person who owns real property in florida on january 1, makes the property his or her permanent residence or the permanent. When someone owns property and makes it his or her permanent residence or the permanent residence of his. Florida Homestead Application Lee County.
From www.templateroller.com
Lee County, Florida Cdbg Homeownership Assistance Application Fill Florida Homestead Application Lee County Important notice about filing your application: Age 65 and older and have. When someone owns property and makes it his or her permanent residence or the permanent residence of his or her dependent, the property. If you own property in lee county and use it as your permanent residence, you may qualify for significant tax savings by applying for a.. Florida Homestead Application Lee County.