Washington Il Zoning . Explore an interactive map of the city of washington. Building and zoning the planning & development department issues building permits for all structural improvements to buildings or. Interactive map application for washington, il using arcgis technology. Interactive map (public view) interactive zoning map Map of zoning boundaries and extents. My city services web app. The department staff administers local land use ordinances and provides professional, technical assistance to the city council, planning. Search businesses in washington by category. The city of washington's interactive map give the public access to local information such as school districts, alderman wards, tif districts,. The information contained here is for reference purposes only, and should not be relied. Map of census blocks and relevant data. Welcome to the city of washington, il.
from ggwash.org
The department staff administers local land use ordinances and provides professional, technical assistance to the city council, planning. Interactive map application for washington, il using arcgis technology. The city of washington's interactive map give the public access to local information such as school districts, alderman wards, tif districts,. Search businesses in washington by category. Welcome to the city of washington, il. Explore an interactive map of the city of washington. The information contained here is for reference purposes only, and should not be relied. Building and zoning the planning & development department issues building permits for all structural improvements to buildings or. My city services web app. Map of zoning boundaries and extents.
What’s in the zoning update Fewer parking minimums Greater Greater
Washington Il Zoning Interactive map (public view) interactive zoning map Interactive map (public view) interactive zoning map The department staff administers local land use ordinances and provides professional, technical assistance to the city council, planning. The city of washington's interactive map give the public access to local information such as school districts, alderman wards, tif districts,. Explore an interactive map of the city of washington. Map of census blocks and relevant data. My city services web app. Search businesses in washington by category. Welcome to the city of washington, il. Building and zoning the planning & development department issues building permits for all structural improvements to buildings or. The information contained here is for reference purposes only, and should not be relied. Map of zoning boundaries and extents. Interactive map application for washington, il using arcgis technology.
From prairiegrove.org
Zoning Map Village of Prairie Grove Washington Il Zoning Welcome to the city of washington, il. Interactive map (public view) interactive zoning map Building and zoning the planning & development department issues building permits for all structural improvements to buildings or. Map of zoning boundaries and extents. The department staff administers local land use ordinances and provides professional, technical assistance to the city council, planning. Map of census blocks. Washington Il Zoning.
From mavink.com
Zoning Height Map Washington Il Zoning Map of census blocks and relevant data. The city of washington's interactive map give the public access to local information such as school districts, alderman wards, tif districts,. Building and zoning the planning & development department issues building permits for all structural improvements to buildings or. My city services web app. Welcome to the city of washington, il. The information. Washington Il Zoning.
From ggwash.org
This map illustrates DC’s new zoning rules Greater Greater Washington Washington Il Zoning Welcome to the city of washington, il. Map of census blocks and relevant data. The department staff administers local land use ordinances and provides professional, technical assistance to the city council, planning. Interactive map application for washington, il using arcgis technology. My city services web app. Explore an interactive map of the city of washington. Search businesses in washington by. Washington Il Zoning.
From www.recordpatriot.com
Crystal Lake Watershed zoning ordinance updated for township Washington Il Zoning Map of census blocks and relevant data. Welcome to the city of washington, il. The city of washington's interactive map give the public access to local information such as school districts, alderman wards, tif districts,. Building and zoning the planning & development department issues building permits for all structural improvements to buildings or. Interactive map application for washington, il using. Washington Il Zoning.
From www.pdffiller.com
Fillable Online Official Map of Zoning Districts 2017 City of Washington Il Zoning Interactive map (public view) interactive zoning map The city of washington's interactive map give the public access to local information such as school districts, alderman wards, tif districts,. Search businesses in washington by category. Interactive map application for washington, il using arcgis technology. Map of census blocks and relevant data. Explore an interactive map of the city of washington. The. Washington Il Zoning.
From www.bloomingtonil.gov
Zoning Ordinance and Map City of Bloomington, Illinois Washington Il Zoning The information contained here is for reference purposes only, and should not be relied. Map of census blocks and relevant data. Explore an interactive map of the city of washington. Map of zoning boundaries and extents. The city of washington's interactive map give the public access to local information such as school districts, alderman wards, tif districts,. Search businesses in. Washington Il Zoning.
From www.sedco.org
City Of Sherman Zoning Map Washington Il Zoning Interactive map application for washington, il using arcgis technology. The city of washington's interactive map give the public access to local information such as school districts, alderman wards, tif districts,. The department staff administers local land use ordinances and provides professional, technical assistance to the city council, planning. The information contained here is for reference purposes only, and should not. Washington Il Zoning.
From mapsforyoufree.blogspot.com
City Of Orange Zoning Map Maping Resources Washington Il Zoning Interactive map application for washington, il using arcgis technology. Explore an interactive map of the city of washington. Building and zoning the planning & development department issues building permits for all structural improvements to buildings or. Map of zoning boundaries and extents. The department staff administers local land use ordinances and provides professional, technical assistance to the city council, planning.. Washington Il Zoning.
From www.whatcomcounty.us
Zoning Maps County, WA Official site Washington Il Zoning My city services web app. Map of census blocks and relevant data. Search businesses in washington by category. The department staff administers local land use ordinances and provides professional, technical assistance to the city council, planning. Interactive map (public view) interactive zoning map Interactive map application for washington, il using arcgis technology. The city of washington's interactive map give the. Washington Il Zoning.
From animatedtravelmap.pages.dev
Understanding The Mason County Zoning Map A Comprehensive Guide To Washington Il Zoning The department staff administers local land use ordinances and provides professional, technical assistance to the city council, planning. Search businesses in washington by category. My city services web app. The information contained here is for reference purposes only, and should not be relied. Interactive map application for washington, il using arcgis technology. Interactive map (public view) interactive zoning map Map. Washington Il Zoning.
From zoningpoint.com
Lakewood, WA Official Zoning Map and Code ZoningPoint Washington Il Zoning Welcome to the city of washington, il. Map of census blocks and relevant data. Interactive map (public view) interactive zoning map The department staff administers local land use ordinances and provides professional, technical assistance to the city council, planning. Building and zoning the planning & development department issues building permits for all structural improvements to buildings or. My city services. Washington Il Zoning.
From www.enterprisepub.com
City amends zoning regs to include boarding houses Washington County Washington Il Zoning My city services web app. The department staff administers local land use ordinances and provides professional, technical assistance to the city council, planning. Interactive map application for washington, il using arcgis technology. Interactive map (public view) interactive zoning map Search businesses in washington by category. Explore an interactive map of the city of washington. The city of washington's interactive map. Washington Il Zoning.
From www.snoqualmiewa.gov
Zoning Map Snoqualmie, WA Washington Il Zoning The information contained here is for reference purposes only, and should not be relied. Interactive map (public view) interactive zoning map The city of washington's interactive map give the public access to local information such as school districts, alderman wards, tif districts,. Map of census blocks and relevant data. Welcome to the city of washington, il. My city services web. Washington Il Zoning.
From zoningpoint.com
Poulsbo, WA Official Zoning Map and Code ZoningPoint Washington Il Zoning Map of census blocks and relevant data. Explore an interactive map of the city of washington. The department staff administers local land use ordinances and provides professional, technical assistance to the city council, planning. Building and zoning the planning & development department issues building permits for all structural improvements to buildings or. Interactive map application for washington, il using arcgis. Washington Il Zoning.
From stlouispatina.com
Zoning Felony, Washington, Illinois Saint Louis Patina® Washington Il Zoning Search businesses in washington by category. Map of census blocks and relevant data. Welcome to the city of washington, il. My city services web app. Interactive map application for washington, il using arcgis technology. Explore an interactive map of the city of washington. Building and zoning the planning & development department issues building permits for all structural improvements to buildings. Washington Il Zoning.
From blogs.harvard.edu
Riverside and Newton’s draft zoning plans for Washington Street reveal Washington Il Zoning Welcome to the city of washington, il. Map of zoning boundaries and extents. The city of washington's interactive map give the public access to local information such as school districts, alderman wards, tif districts,. Search businesses in washington by category. The information contained here is for reference purposes only, and should not be relied. Building and zoning the planning &. Washington Il Zoning.
From www.whatcomcounty.us
Zoning Maps County, WA Official site Washington Il Zoning The department staff administers local land use ordinances and provides professional, technical assistance to the city council, planning. Building and zoning the planning & development department issues building permits for all structural improvements to buildings or. Interactive map (public view) interactive zoning map Map of zoning boundaries and extents. Explore an interactive map of the city of washington. The information. Washington Il Zoning.
From www.pdffiller.com
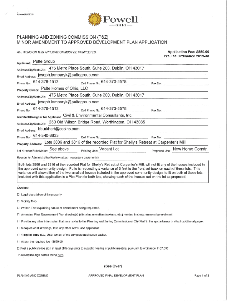
Fillable Online CITY OF WASHINGTON, ILLINOIS PLANNING AND ZONING Washington Il Zoning The department staff administers local land use ordinances and provides professional, technical assistance to the city council, planning. Map of zoning boundaries and extents. The information contained here is for reference purposes only, and should not be relied. Explore an interactive map of the city of washington. The city of washington's interactive map give the public access to local information. Washington Il Zoning.
From www.libertylakewa.gov
Zoning Information Liberty Lake, WA Official site Washington Il Zoning The city of washington's interactive map give the public access to local information such as school districts, alderman wards, tif districts,. Search businesses in washington by category. Explore an interactive map of the city of washington. My city services web app. The information contained here is for reference purposes only, and should not be relied. The department staff administers local. Washington Il Zoning.
From mapsforyoufree.blogspot.com
City Of Seattle Zoning Map Maping Resources Washington Il Zoning Map of zoning boundaries and extents. The information contained here is for reference purposes only, and should not be relied. Interactive map application for washington, il using arcgis technology. My city services web app. The department staff administers local land use ordinances and provides professional, technical assistance to the city council, planning. Search businesses in washington by category. The city. Washington Il Zoning.
From lynnwoodtoday.com
Zoning_mapEx_A_(0319) (1)1 Edited Lynnwood Today Washington Il Zoning The department staff administers local land use ordinances and provides professional, technical assistance to the city council, planning. Map of zoning boundaries and extents. My city services web app. Map of census blocks and relevant data. Explore an interactive map of the city of washington. Search businesses in washington by category. Interactive map application for washington, il using arcgis technology.. Washington Il Zoning.
From sticthompson.netlify.app
Oak Park Zoning Map Map Of The World Washington Il Zoning The city of washington's interactive map give the public access to local information such as school districts, alderman wards, tif districts,. My city services web app. Map of zoning boundaries and extents. Interactive map (public view) interactive zoning map Building and zoning the planning & development department issues building permits for all structural improvements to buildings or. The information contained. Washington Il Zoning.
From www.theurbanist.org
A Clearview of the Urban Growth Boundary The Urbanist Washington Il Zoning Explore an interactive map of the city of washington. My city services web app. Map of zoning boundaries and extents. The department staff administers local land use ordinances and provides professional, technical assistance to the city council, planning. Search businesses in washington by category. Map of census blocks and relevant data. Interactive map (public view) interactive zoning map Interactive map. Washington Il Zoning.
From www.theurbanist.org
Map Of The Week Angle Lake Zoning Map The Urbanist Washington Il Zoning Search businesses in washington by category. The city of washington's interactive map give the public access to local information such as school districts, alderman wards, tif districts,. Interactive map application for washington, il using arcgis technology. Explore an interactive map of the city of washington. Interactive map (public view) interactive zoning map Map of zoning boundaries and extents. Map of. Washington Il Zoning.
From libertylakewa.gov
Zoning Information Liberty Lake, WA Official site Washington Il Zoning The information contained here is for reference purposes only, and should not be relied. My city services web app. Search businesses in washington by category. Interactive map application for washington, il using arcgis technology. Welcome to the city of washington, il. Building and zoning the planning & development department issues building permits for all structural improvements to buildings or. Explore. Washington Il Zoning.
From nextdoor.com
Proposed New Zoning Map (City of Owasso) — Nextdoor — Nextdoor Washington Il Zoning The department staff administers local land use ordinances and provides professional, technical assistance to the city council, planning. Building and zoning the planning & development department issues building permits for all structural improvements to buildings or. Interactive map (public view) interactive zoning map The city of washington's interactive map give the public access to local information such as school districts,. Washington Il Zoning.
From www.wliha.org
zoning Washington Low Housing Alliance Washington Il Zoning Interactive map application for washington, il using arcgis technology. My city services web app. Search businesses in washington by category. Explore an interactive map of the city of washington. The department staff administers local land use ordinances and provides professional, technical assistance to the city council, planning. The information contained here is for reference purposes only, and should not be. Washington Il Zoning.
From www.countyplanning.us
Maple Heights Zoning Code Update Cuyahoga County Planning Commission Washington Il Zoning Interactive map (public view) interactive zoning map The city of washington's interactive map give the public access to local information such as school districts, alderman wards, tif districts,. My city services web app. Interactive map application for washington, il using arcgis technology. The department staff administers local land use ordinances and provides professional, technical assistance to the city council, planning.. Washington Il Zoning.
From zoningpoint.com
Millwood, WA Official Zoning Map and Code ZoningPoint Washington Il Zoning Welcome to the city of washington, il. My city services web app. Interactive map (public view) interactive zoning map Search businesses in washington by category. Explore an interactive map of the city of washington. The city of washington's interactive map give the public access to local information such as school districts, alderman wards, tif districts,. The information contained here is. Washington Il Zoning.
From dokumen.tips
(PDF) VILLAGE OF MOUNT PROSPECT OFFICIAL ZONING MAP DOKUMEN.TIPS Washington Il Zoning The department staff administers local land use ordinances and provides professional, technical assistance to the city council, planning. The information contained here is for reference purposes only, and should not be relied. Map of zoning boundaries and extents. Map of census blocks and relevant data. Building and zoning the planning & development department issues building permits for all structural improvements. Washington Il Zoning.
From franklintownshipgreenecounty.com
Ordinances Franklin Township of Greene County Washington Il Zoning Explore an interactive map of the city of washington. Map of census blocks and relevant data. My city services web app. The city of washington's interactive map give the public access to local information such as school districts, alderman wards, tif districts,. Interactive map (public view) interactive zoning map Search businesses in washington by category. Map of zoning boundaries and. Washington Il Zoning.
From cityoflakewood.us
Building Ordinances and Zoning Maps City of Lakewood Washington Il Zoning Search businesses in washington by category. Map of zoning boundaries and extents. The information contained here is for reference purposes only, and should not be relied. Explore an interactive map of the city of washington. Building and zoning the planning & development department issues building permits for all structural improvements to buildings or. The city of washington's interactive map give. Washington Il Zoning.
From ggwash.org
What’s in the zoning update Fewer parking minimums Greater Greater Washington Il Zoning The department staff administers local land use ordinances and provides professional, technical assistance to the city council, planning. Building and zoning the planning & development department issues building permits for all structural improvements to buildings or. Interactive map application for washington, il using arcgis technology. Explore an interactive map of the city of washington. Interactive map (public view) interactive zoning. Washington Il Zoning.
From www.co.pacific.wa.us
Spatial Data at the Pacific County Department of Public Works Washington Il Zoning My city services web app. Interactive map (public view) interactive zoning map Map of zoning boundaries and extents. Explore an interactive map of the city of washington. Building and zoning the planning & development department issues building permits for all structural improvements to buildings or. Search businesses in washington by category. Interactive map application for washington, il using arcgis technology.. Washington Il Zoning.
From www.forestparkreview.com
New village zoning map approved by council Forest Park Review Washington Il Zoning The information contained here is for reference purposes only, and should not be relied. Map of zoning boundaries and extents. Explore an interactive map of the city of washington. My city services web app. The department staff administers local land use ordinances and provides professional, technical assistance to the city council, planning. Interactive map application for washington, il using arcgis. Washington Il Zoning.