Az Real Estate Recovery Fund . The arizona real estate recovery fund is a fund of last resort for recovery of losses, caused by the conduct of an arizona licensed real estate. The real estate recovery fund was established for the benefit of any person aggrieved by any act, representation, transaction or conduct of a. The recovery fund is a form of financial protection provided by licensed arizona residential contractors to residential homeowners. The liability of the fund for the acts of a licensed real estate or cemetery broker or real estate or cemetery salesperson is terminated upon the issuance of. The arizona real estate recovery fund is a fund of last resort for recovery of losses, caused by the conduct of an arizona licensed real estate. The commissioner shall establish and maintain a real estate recovery fund for the benefit of any person aggrieved by any act, representation,. In addition to any other fees, payments shall be made to the real estate recovery fund on. Payments to real estate recovery fund.
from www.americanrealtyacademy.com
Payments to real estate recovery fund. The commissioner shall establish and maintain a real estate recovery fund for the benefit of any person aggrieved by any act, representation,. In addition to any other fees, payments shall be made to the real estate recovery fund on. The real estate recovery fund was established for the benefit of any person aggrieved by any act, representation, transaction or conduct of a. The recovery fund is a form of financial protection provided by licensed arizona residential contractors to residential homeowners. The liability of the fund for the acts of a licensed real estate or cemetery broker or real estate or cemetery salesperson is terminated upon the issuance of. The arizona real estate recovery fund is a fund of last resort for recovery of losses, caused by the conduct of an arizona licensed real estate. The arizona real estate recovery fund is a fund of last resort for recovery of losses, caused by the conduct of an arizona licensed real estate.
Recovery Fund Arizona Real Estate Exam Prep
Az Real Estate Recovery Fund In addition to any other fees, payments shall be made to the real estate recovery fund on. Payments to real estate recovery fund. The real estate recovery fund was established for the benefit of any person aggrieved by any act, representation, transaction or conduct of a. The commissioner shall establish and maintain a real estate recovery fund for the benefit of any person aggrieved by any act, representation,. The recovery fund is a form of financial protection provided by licensed arizona residential contractors to residential homeowners. The arizona real estate recovery fund is a fund of last resort for recovery of losses, caused by the conduct of an arizona licensed real estate. The arizona real estate recovery fund is a fund of last resort for recovery of losses, caused by the conduct of an arizona licensed real estate. The liability of the fund for the acts of a licensed real estate or cemetery broker or real estate or cemetery salesperson is terminated upon the issuance of. In addition to any other fees, payments shall be made to the real estate recovery fund on.
From fill.io
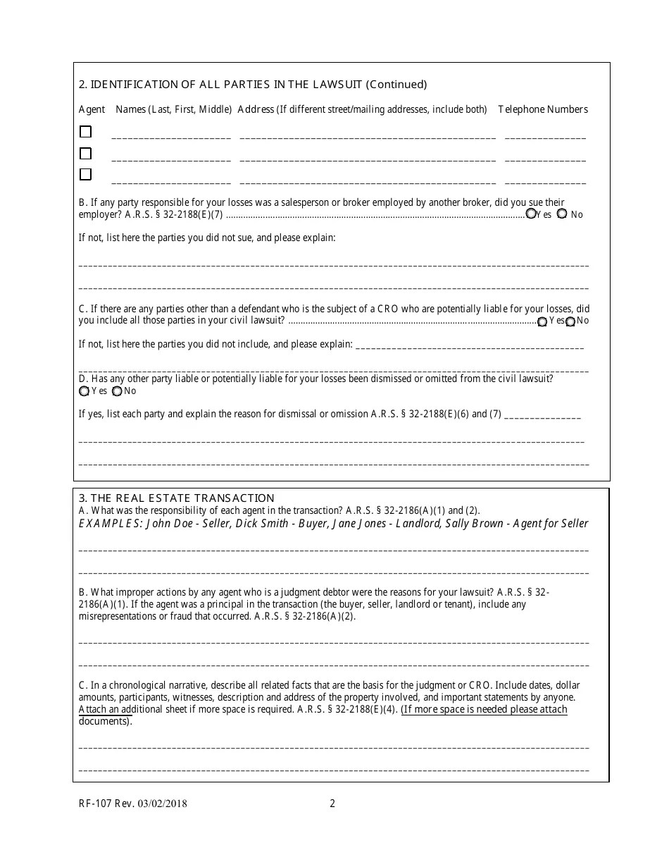
Fill Free fillable FORM RF107 REAL ESTATE RECOVERY FUND APPLICATION FOR (Arizona Department Az Real Estate Recovery Fund The commissioner shall establish and maintain a real estate recovery fund for the benefit of any person aggrieved by any act, representation,. The arizona real estate recovery fund is a fund of last resort for recovery of losses, caused by the conduct of an arizona licensed real estate. The arizona real estate recovery fund is a fund of last resort. Az Real Estate Recovery Fund.
From saintinvestment.com
Recovery Funds For Real Estate Saint Investment Az Real Estate Recovery Fund The liability of the fund for the acts of a licensed real estate or cemetery broker or real estate or cemetery salesperson is terminated upon the issuance of. The commissioner shall establish and maintain a real estate recovery fund for the benefit of any person aggrieved by any act, representation,. Payments to real estate recovery fund. The arizona real estate. Az Real Estate Recovery Fund.
From fill.io
Fill Free fillable forms Arizona Department of Real Estate Az Real Estate Recovery Fund The arizona real estate recovery fund is a fund of last resort for recovery of losses, caused by the conduct of an arizona licensed real estate. The liability of the fund for the acts of a licensed real estate or cemetery broker or real estate or cemetery salesperson is terminated upon the issuance of. The real estate recovery fund was. Az Real Estate Recovery Fund.
From fill.io
Fill Free fillable Form 1 Real Estate Recovery Fund attempted to (Arizona Department of Real Az Real Estate Recovery Fund Payments to real estate recovery fund. The liability of the fund for the acts of a licensed real estate or cemetery broker or real estate or cemetery salesperson is terminated upon the issuance of. The arizona real estate recovery fund is a fund of last resort for recovery of losses, caused by the conduct of an arizona licensed real estate.. Az Real Estate Recovery Fund.
From www.fill.io
Fill Free fillable forms Arizona Department of Real Estate Az Real Estate Recovery Fund The liability of the fund for the acts of a licensed real estate or cemetery broker or real estate or cemetery salesperson is terminated upon the issuance of. The real estate recovery fund was established for the benefit of any person aggrieved by any act, representation, transaction or conduct of a. In addition to any other fees, payments shall be. Az Real Estate Recovery Fund.
From journal.firsttuesday.us
The Real Estate Recovery Fund what it is and what it covers firsttuesday Journal Az Real Estate Recovery Fund The arizona real estate recovery fund is a fund of last resort for recovery of losses, caused by the conduct of an arizona licensed real estate. The arizona real estate recovery fund is a fund of last resort for recovery of losses, caused by the conduct of an arizona licensed real estate. The liability of the fund for the acts. Az Real Estate Recovery Fund.
From www.youtube.com
095 Real Estate Recovery Fund Free Real Estate License Exam Words Questions Az Real Estate Recovery Fund The real estate recovery fund was established for the benefit of any person aggrieved by any act, representation, transaction or conduct of a. The recovery fund is a form of financial protection provided by licensed arizona residential contractors to residential homeowners. The arizona real estate recovery fund is a fund of last resort for recovery of losses, caused by the. Az Real Estate Recovery Fund.
From www.youtube.com
Real Estate Recovery Fund YouTube Az Real Estate Recovery Fund The liability of the fund for the acts of a licensed real estate or cemetery broker or real estate or cemetery salesperson is terminated upon the issuance of. The real estate recovery fund was established for the benefit of any person aggrieved by any act, representation, transaction or conduct of a. In addition to any other fees, payments shall be. Az Real Estate Recovery Fund.
From www.templateroller.com
Form RF107 Fill Out, Sign Online and Download Fillable PDF, Arizona Templateroller Az Real Estate Recovery Fund The real estate recovery fund was established for the benefit of any person aggrieved by any act, representation, transaction or conduct of a. Payments to real estate recovery fund. In addition to any other fees, payments shall be made to the real estate recovery fund on. The commissioner shall establish and maintain a real estate recovery fund for the benefit. Az Real Estate Recovery Fund.
From exypwbapw.blob.core.windows.net
What Does The Real Estate Recovery Fund Pay For at Beulah Lee blog Az Real Estate Recovery Fund The arizona real estate recovery fund is a fund of last resort for recovery of losses, caused by the conduct of an arizona licensed real estate. In addition to any other fees, payments shall be made to the real estate recovery fund on. The recovery fund is a form of financial protection provided by licensed arizona residential contractors to residential. Az Real Estate Recovery Fund.
From www.fill.io
Fill Free fillable forms Arizona Department of Real Estate Az Real Estate Recovery Fund The real estate recovery fund was established for the benefit of any person aggrieved by any act, representation, transaction or conduct of a. Payments to real estate recovery fund. The commissioner shall establish and maintain a real estate recovery fund for the benefit of any person aggrieved by any act, representation,. The arizona real estate recovery fund is a fund. Az Real Estate Recovery Fund.
From exypwbapw.blob.core.windows.net
What Does The Real Estate Recovery Fund Pay For at Beulah Lee blog Az Real Estate Recovery Fund The arizona real estate recovery fund is a fund of last resort for recovery of losses, caused by the conduct of an arizona licensed real estate. The commissioner shall establish and maintain a real estate recovery fund for the benefit of any person aggrieved by any act, representation,. The arizona real estate recovery fund is a fund of last resort. Az Real Estate Recovery Fund.
From www.templateroller.com
Form RF107 Fill Out, Sign Online and Download Fillable PDF, Arizona Templateroller Az Real Estate Recovery Fund The arizona real estate recovery fund is a fund of last resort for recovery of losses, caused by the conduct of an arizona licensed real estate. Payments to real estate recovery fund. The recovery fund is a form of financial protection provided by licensed arizona residential contractors to residential homeowners. The real estate recovery fund was established for the benefit. Az Real Estate Recovery Fund.
From www.templateroller.com
Form RF107 Fill Out, Sign Online and Download Fillable PDF, Arizona Templateroller Az Real Estate Recovery Fund The commissioner shall establish and maintain a real estate recovery fund for the benefit of any person aggrieved by any act, representation,. The recovery fund is a form of financial protection provided by licensed arizona residential contractors to residential homeowners. In addition to any other fees, payments shall be made to the real estate recovery fund on. Payments to real. Az Real Estate Recovery Fund.
From www.americanrealtyacademy.com
Recovery Fund Arizona Real Estate Exam Prep Az Real Estate Recovery Fund The real estate recovery fund was established for the benefit of any person aggrieved by any act, representation, transaction or conduct of a. In addition to any other fees, payments shall be made to the real estate recovery fund on. The liability of the fund for the acts of a licensed real estate or cemetery broker or real estate or. Az Real Estate Recovery Fund.
From www.templateroller.com
Form RF107 Fill Out, Sign Online and Download Fillable PDF, Arizona Templateroller Az Real Estate Recovery Fund The liability of the fund for the acts of a licensed real estate or cemetery broker or real estate or cemetery salesperson is terminated upon the issuance of. The arizona real estate recovery fund is a fund of last resort for recovery of losses, caused by the conduct of an arizona licensed real estate. The recovery fund is a form. Az Real Estate Recovery Fund.
From www.youtube.com
What Funds The Real Estate Recovery Fund? YouTube Az Real Estate Recovery Fund The commissioner shall establish and maintain a real estate recovery fund for the benefit of any person aggrieved by any act, representation,. The arizona real estate recovery fund is a fund of last resort for recovery of losses, caused by the conduct of an arizona licensed real estate. The liability of the fund for the acts of a licensed real. Az Real Estate Recovery Fund.
From www.fill.io
Fill Free fillable forms Arizona Department of Real Estate Az Real Estate Recovery Fund The recovery fund is a form of financial protection provided by licensed arizona residential contractors to residential homeowners. In addition to any other fees, payments shall be made to the real estate recovery fund on. The real estate recovery fund was established for the benefit of any person aggrieved by any act, representation, transaction or conduct of a. Payments to. Az Real Estate Recovery Fund.
From www.abc15.com
AZ consumers may be eligible for contractor refunds Az Real Estate Recovery Fund The arizona real estate recovery fund is a fund of last resort for recovery of losses, caused by the conduct of an arizona licensed real estate. The liability of the fund for the acts of a licensed real estate or cemetery broker or real estate or cemetery salesperson is terminated upon the issuance of. The commissioner shall establish and maintain. Az Real Estate Recovery Fund.
From www.templateroller.com
Form RF107 Fill Out, Sign Online and Download Fillable PDF, Arizona Templateroller Az Real Estate Recovery Fund Payments to real estate recovery fund. The real estate recovery fund was established for the benefit of any person aggrieved by any act, representation, transaction or conduct of a. The recovery fund is a form of financial protection provided by licensed arizona residential contractors to residential homeowners. The commissioner shall establish and maintain a real estate recovery fund for the. Az Real Estate Recovery Fund.
From www.templateroller.com
Form RF107 Fill Out, Sign Online and Download Fillable PDF, Arizona Templateroller Az Real Estate Recovery Fund In addition to any other fees, payments shall be made to the real estate recovery fund on. Payments to real estate recovery fund. The arizona real estate recovery fund is a fund of last resort for recovery of losses, caused by the conduct of an arizona licensed real estate. The commissioner shall establish and maintain a real estate recovery fund. Az Real Estate Recovery Fund.
From exytutdij.blob.core.windows.net
What Is The Purpose Of Real Estate Recovery Fund at Vivian Johnson blog Az Real Estate Recovery Fund The recovery fund is a form of financial protection provided by licensed arizona residential contractors to residential homeowners. The real estate recovery fund was established for the benefit of any person aggrieved by any act, representation, transaction or conduct of a. The arizona real estate recovery fund is a fund of last resort for recovery of losses, caused by the. Az Real Estate Recovery Fund.
From www.templateroller.com
Form RF107 Fill Out, Sign Online and Download Fillable PDF, Arizona Templateroller Az Real Estate Recovery Fund The arizona real estate recovery fund is a fund of last resort for recovery of losses, caused by the conduct of an arizona licensed real estate. Payments to real estate recovery fund. In addition to any other fees, payments shall be made to the real estate recovery fund on. The commissioner shall establish and maintain a real estate recovery fund. Az Real Estate Recovery Fund.
From www.pdffiller.com
Fillable Online Real Estate Recovery Fund Application Fax Email Print pdfFiller Az Real Estate Recovery Fund The arizona real estate recovery fund is a fund of last resort for recovery of losses, caused by the conduct of an arizona licensed real estate. The arizona real estate recovery fund is a fund of last resort for recovery of losses, caused by the conduct of an arizona licensed real estate. The real estate recovery fund was established for. Az Real Estate Recovery Fund.
From exypwbapw.blob.core.windows.net
What Does The Real Estate Recovery Fund Pay For at Beulah Lee blog Az Real Estate Recovery Fund Payments to real estate recovery fund. The real estate recovery fund was established for the benefit of any person aggrieved by any act, representation, transaction or conduct of a. The liability of the fund for the acts of a licensed real estate or cemetery broker or real estate or cemetery salesperson is terminated upon the issuance of. The commissioner shall. Az Real Estate Recovery Fund.
From www.fill.io
Fill Free fillable forms Arizona Department of Real Estate Az Real Estate Recovery Fund Payments to real estate recovery fund. The commissioner shall establish and maintain a real estate recovery fund for the benefit of any person aggrieved by any act, representation,. The arizona real estate recovery fund is a fund of last resort for recovery of losses, caused by the conduct of an arizona licensed real estate. In addition to any other fees,. Az Real Estate Recovery Fund.
From gottlieblawaz.com
Why Arizona Real Estate Recovery Funds Are Necessary Gottlieb Law Az Real Estate Recovery Fund The commissioner shall establish and maintain a real estate recovery fund for the benefit of any person aggrieved by any act, representation,. The real estate recovery fund was established for the benefit of any person aggrieved by any act, representation, transaction or conduct of a. In addition to any other fees, payments shall be made to the real estate recovery. Az Real Estate Recovery Fund.
From www.templateroller.com
Form RF107 Fill Out, Sign Online and Download Fillable PDF, Arizona Templateroller Az Real Estate Recovery Fund The arizona real estate recovery fund is a fund of last resort for recovery of losses, caused by the conduct of an arizona licensed real estate. The liability of the fund for the acts of a licensed real estate or cemetery broker or real estate or cemetery salesperson is terminated upon the issuance of. The commissioner shall establish and maintain. Az Real Estate Recovery Fund.
From www.pinterest.com
Pass your AZ Real Estate Exam! in 2023 Real estate exam, Real estate test, Beginner real Az Real Estate Recovery Fund The arizona real estate recovery fund is a fund of last resort for recovery of losses, caused by the conduct of an arizona licensed real estate. The recovery fund is a form of financial protection provided by licensed arizona residential contractors to residential homeowners. The commissioner shall establish and maintain a real estate recovery fund for the benefit of any. Az Real Estate Recovery Fund.
From paperjam.lu
Routes to recovery for real estate fund managers Paperjam News Az Real Estate Recovery Fund The real estate recovery fund was established for the benefit of any person aggrieved by any act, representation, transaction or conduct of a. The commissioner shall establish and maintain a real estate recovery fund for the benefit of any person aggrieved by any act, representation,. The arizona real estate recovery fund is a fund of last resort for recovery of. Az Real Estate Recovery Fund.
From fill.io
Fill Free fillable Form 3 Real Estate Recovery Fund d . (Arizona Department of Real Estate Az Real Estate Recovery Fund The arizona real estate recovery fund is a fund of last resort for recovery of losses, caused by the conduct of an arizona licensed real estate. The recovery fund is a form of financial protection provided by licensed arizona residential contractors to residential homeowners. In addition to any other fees, payments shall be made to the real estate recovery fund. Az Real Estate Recovery Fund.
From exytutdij.blob.core.windows.net
What Is The Purpose Of Real Estate Recovery Fund at Vivian Johnson blog Az Real Estate Recovery Fund The arizona real estate recovery fund is a fund of last resort for recovery of losses, caused by the conduct of an arizona licensed real estate. Payments to real estate recovery fund. The liability of the fund for the acts of a licensed real estate or cemetery broker or real estate or cemetery salesperson is terminated upon the issuance of.. Az Real Estate Recovery Fund.
From www.templateroller.com
Form RF107 Fill Out, Sign Online and Download Fillable PDF, Arizona Templateroller Az Real Estate Recovery Fund The real estate recovery fund was established for the benefit of any person aggrieved by any act, representation, transaction or conduct of a. In addition to any other fees, payments shall be made to the real estate recovery fund on. The commissioner shall establish and maintain a real estate recovery fund for the benefit of any person aggrieved by any. Az Real Estate Recovery Fund.
From www.templateroller.com
Form RF107 Fill Out, Sign Online and Download Fillable PDF, Arizona Templateroller Az Real Estate Recovery Fund The real estate recovery fund was established for the benefit of any person aggrieved by any act, representation, transaction or conduct of a. The arizona real estate recovery fund is a fund of last resort for recovery of losses, caused by the conduct of an arizona licensed real estate. In addition to any other fees, payments shall be made to. Az Real Estate Recovery Fund.
From azre.gov
Recovery Fund Arizona Department of Real Estate Az Real Estate Recovery Fund Payments to real estate recovery fund. The liability of the fund for the acts of a licensed real estate or cemetery broker or real estate or cemetery salesperson is terminated upon the issuance of. The commissioner shall establish and maintain a real estate recovery fund for the benefit of any person aggrieved by any act, representation,. The real estate recovery. Az Real Estate Recovery Fund.