Pipe Culvert Drawing . • understand the different types of culverts • know the culvert design process for conveyance • complete a roadway culvert design using. Using the pipe culvert module of esurvey structure, you can generate pipe culvert drawings such as plan, profile, cross section, and. A culvert is a hydraulically short conduit, which can be used to convey stream flow underground through a roadway. Learn about the materials, installation, loadings, analysis, joints and camber of different types of conduits, culverts and pipes for various. This article dives into the main rules and specifications for hume pipe culverts as per the irc, emphasizing their importance in. Learn the procedure of excavation, bedding, laying, jointing, and backfilling of pipe culverts with drawings and examples. A culvert is a hydraulically short conduit, which can be used to convey stream flow underground through a roadway embankment or other flow obstructions, or.
from esurveying.net
Learn about the materials, installation, loadings, analysis, joints and camber of different types of conduits, culverts and pipes for various. A culvert is a hydraulically short conduit, which can be used to convey stream flow underground through a roadway embankment or other flow obstructions, or. • understand the different types of culverts • know the culvert design process for conveyance • complete a roadway culvert design using. A culvert is a hydraulically short conduit, which can be used to convey stream flow underground through a roadway. Learn the procedure of excavation, bedding, laying, jointing, and backfilling of pipe culverts with drawings and examples. Using the pipe culvert module of esurvey structure, you can generate pipe culvert drawings such as plan, profile, cross section, and. This article dives into the main rules and specifications for hume pipe culverts as per the irc, emphasizing their importance in.
Create New Pipe Culvert Drawings ESurvey Structure
Pipe Culvert Drawing Learn the procedure of excavation, bedding, laying, jointing, and backfilling of pipe culverts with drawings and examples. • understand the different types of culverts • know the culvert design process for conveyance • complete a roadway culvert design using. This article dives into the main rules and specifications for hume pipe culverts as per the irc, emphasizing their importance in. Learn about the materials, installation, loadings, analysis, joints and camber of different types of conduits, culverts and pipes for various. A culvert is a hydraulically short conduit, which can be used to convey stream flow underground through a roadway embankment or other flow obstructions, or. Learn the procedure of excavation, bedding, laying, jointing, and backfilling of pipe culverts with drawings and examples. Using the pipe culvert module of esurvey structure, you can generate pipe culvert drawings such as plan, profile, cross section, and. A culvert is a hydraulically short conduit, which can be used to convey stream flow underground through a roadway.
From www.youtube.com
PIPE CULVERTS SPECIFICATION AND DRAWING YouTube Pipe Culvert Drawing A culvert is a hydraulically short conduit, which can be used to convey stream flow underground through a roadway embankment or other flow obstructions, or. This article dives into the main rules and specifications for hume pipe culverts as per the irc, emphasizing their importance in. Learn about the materials, installation, loadings, analysis, joints and camber of different types of. Pipe Culvert Drawing.
From www.youtube.com
How to read culverts drawing plan at site YouTube Pipe Culvert Drawing A culvert is a hydraulically short conduit, which can be used to convey stream flow underground through a roadway embankment or other flow obstructions, or. Using the pipe culvert module of esurvey structure, you can generate pipe culvert drawings such as plan, profile, cross section, and. A culvert is a hydraulically short conduit, which can be used to convey stream. Pipe Culvert Drawing.
From www.scribd.com
Hume Pipe Culvert Drawing PDF Land Transport Transport Pipe Culvert Drawing A culvert is a hydraulically short conduit, which can be used to convey stream flow underground through a roadway embankment or other flow obstructions, or. • understand the different types of culverts • know the culvert design process for conveyance • complete a roadway culvert design using. Learn the procedure of excavation, bedding, laying, jointing, and backfilling of pipe culverts. Pipe Culvert Drawing.
From www.scribd.com
Pipe Culvert Drawing PDF PDF Infrastructure Structural Engineering Pipe Culvert Drawing This article dives into the main rules and specifications for hume pipe culverts as per the irc, emphasizing their importance in. Using the pipe culvert module of esurvey structure, you can generate pipe culvert drawings such as plan, profile, cross section, and. A culvert is a hydraulically short conduit, which can be used to convey stream flow underground through a. Pipe Culvert Drawing.
From www.planmarketplace.com
RAILWAY Pipe Culvert (3x1.5m Dia) CAD Files, DWG files, Plans and Pipe Culvert Drawing Learn about the materials, installation, loadings, analysis, joints and camber of different types of conduits, culverts and pipes for various. A culvert is a hydraulically short conduit, which can be used to convey stream flow underground through a roadway embankment or other flow obstructions, or. A culvert is a hydraulically short conduit, which can be used to convey stream flow. Pipe Culvert Drawing.
From www.youtube.com
Design & Draw a Pipe Culvert with 3 vents (Examples) Part 1 YouTube Pipe Culvert Drawing This article dives into the main rules and specifications for hume pipe culverts as per the irc, emphasizing their importance in. • understand the different types of culverts • know the culvert design process for conveyance • complete a roadway culvert design using. Learn about the materials, installation, loadings, analysis, joints and camber of different types of conduits, culverts and. Pipe Culvert Drawing.
From esurveying.net
Create New Pipe Culvert Drawings ESurvey Structure Pipe Culvert Drawing Learn about the materials, installation, loadings, analysis, joints and camber of different types of conduits, culverts and pipes for various. A culvert is a hydraulically short conduit, which can be used to convey stream flow underground through a roadway embankment or other flow obstructions, or. A culvert is a hydraulically short conduit, which can be used to convey stream flow. Pipe Culvert Drawing.
From www.planmarketplace.com
Standard Design of Single & Double Pipe Culvert Design CAD Files, DWG Pipe Culvert Drawing Learn about the materials, installation, loadings, analysis, joints and camber of different types of conduits, culverts and pipes for various. This article dives into the main rules and specifications for hume pipe culverts as per the irc, emphasizing their importance in. • understand the different types of culverts • know the culvert design process for conveyance • complete a roadway. Pipe Culvert Drawing.
From cadbull.com
Pipe culvert detail. Download cad free file CADBULL Cadbull Pipe Culvert Drawing This article dives into the main rules and specifications for hume pipe culverts as per the irc, emphasizing their importance in. Learn about the materials, installation, loadings, analysis, joints and camber of different types of conduits, culverts and pipes for various. Learn the procedure of excavation, bedding, laying, jointing, and backfilling of pipe culverts with drawings and examples. A culvert. Pipe Culvert Drawing.
From mavink.com
Pipe Culvert Standard Drawings Pipe Culvert Drawing • understand the different types of culverts • know the culvert design process for conveyance • complete a roadway culvert design using. Learn the procedure of excavation, bedding, laying, jointing, and backfilling of pipe culverts with drawings and examples. A culvert is a hydraulically short conduit, which can be used to convey stream flow underground through a roadway embankment or. Pipe Culvert Drawing.
From cadbull.com
AutoCAD drawing of the culvert plan section details.Download the Pipe Culvert Drawing A culvert is a hydraulically short conduit, which can be used to convey stream flow underground through a roadway. A culvert is a hydraulically short conduit, which can be used to convey stream flow underground through a roadway embankment or other flow obstructions, or. This article dives into the main rules and specifications for hume pipe culverts as per the. Pipe Culvert Drawing.
From www.scribd.com
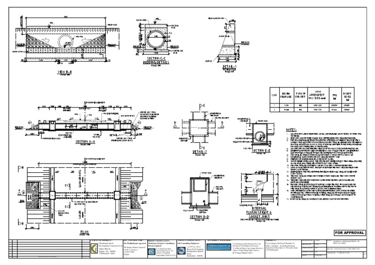
010GENERAL ARRANGEMENT FOR PIPE CULVERT AT CH7+180 & 9+330A2 Pipe Culvert Drawing • understand the different types of culverts • know the culvert design process for conveyance • complete a roadway culvert design using. This article dives into the main rules and specifications for hume pipe culverts as per the irc, emphasizing their importance in. A culvert is a hydraulically short conduit, which can be used to convey stream flow underground through. Pipe Culvert Drawing.
From engineeringdiscoveries.com
Pipe Culvert Details AutoCAD Drawing Engineering Discoveries Pipe Culvert Drawing A culvert is a hydraulically short conduit, which can be used to convey stream flow underground through a roadway. Learn about the materials, installation, loadings, analysis, joints and camber of different types of conduits, culverts and pipes for various. This article dives into the main rules and specifications for hume pipe culverts as per the irc, emphasizing their importance in.. Pipe Culvert Drawing.
From esurveying.net
Create New Pipe Culvert Drawings ESurvey Structure Pipe Culvert Drawing Using the pipe culvert module of esurvey structure, you can generate pipe culvert drawings such as plan, profile, cross section, and. • understand the different types of culverts • know the culvert design process for conveyance • complete a roadway culvert design using. A culvert is a hydraulically short conduit, which can be used to convey stream flow underground through. Pipe Culvert Drawing.
From www.youtube.com
Pipe Culvert Section & Plan CULVERTS & BRIDGES DCE C16/C20 Pipe Culvert Drawing Learn the procedure of excavation, bedding, laying, jointing, and backfilling of pipe culverts with drawings and examples. A culvert is a hydraulically short conduit, which can be used to convey stream flow underground through a roadway embankment or other flow obstructions, or. This article dives into the main rules and specifications for hume pipe culverts as per the irc, emphasizing. Pipe Culvert Drawing.
From balajispunpipe.com
Hume Pipe Culvert Design Shri Balaji Spun Pipes Pipe Culvert Drawing Learn the procedure of excavation, bedding, laying, jointing, and backfilling of pipe culverts with drawings and examples. • understand the different types of culverts • know the culvert design process for conveyance • complete a roadway culvert design using. Learn about the materials, installation, loadings, analysis, joints and camber of different types of conduits, culverts and pipes for various. A. Pipe Culvert Drawing.
From cadbull.com
Culvert typical plan layout file Cadbull Pipe Culvert Drawing Using the pipe culvert module of esurvey structure, you can generate pipe culvert drawings such as plan, profile, cross section, and. A culvert is a hydraulically short conduit, which can be used to convey stream flow underground through a roadway. Learn about the materials, installation, loadings, analysis, joints and camber of different types of conduits, culverts and pipes for various.. Pipe Culvert Drawing.
From esurveying.net
Pipe Culvert Drawing SoftwareESurvey Structure Pipe Culvert Drawing Learn about the materials, installation, loadings, analysis, joints and camber of different types of conduits, culverts and pipes for various. A culvert is a hydraulically short conduit, which can be used to convey stream flow underground through a roadway. • understand the different types of culverts • know the culvert design process for conveyance • complete a roadway culvert design. Pipe Culvert Drawing.
From bandagovanrentalsportland.blogspot.com
pipe culvert design example bandagovanrentalsportland Pipe Culvert Drawing A culvert is a hydraulically short conduit, which can be used to convey stream flow underground through a roadway embankment or other flow obstructions, or. Learn about the materials, installation, loadings, analysis, joints and camber of different types of conduits, culverts and pipes for various. Using the pipe culvert module of esurvey structure, you can generate pipe culvert drawings such. Pipe Culvert Drawing.
From www.youtube.com
Pipe culvert YouTube Pipe Culvert Drawing Using the pipe culvert module of esurvey structure, you can generate pipe culvert drawings such as plan, profile, cross section, and. • understand the different types of culverts • know the culvert design process for conveyance • complete a roadway culvert design using. Learn about the materials, installation, loadings, analysis, joints and camber of different types of conduits, culverts and. Pipe Culvert Drawing.
From www.youtube.com
Pipe Culvert Construction Details Ring Culvert Using Rubber Balloon Pipe Culvert Drawing Learn the procedure of excavation, bedding, laying, jointing, and backfilling of pipe culverts with drawings and examples. A culvert is a hydraulically short conduit, which can be used to convey stream flow underground through a roadway embankment or other flow obstructions, or. Using the pipe culvert module of esurvey structure, you can generate pipe culvert drawings such as plan, profile,. Pipe Culvert Drawing.
From mavink.com
Pipe Culvert Standard Drawings Pipe Culvert Drawing A culvert is a hydraulically short conduit, which can be used to convey stream flow underground through a roadway. Using the pipe culvert module of esurvey structure, you can generate pipe culvert drawings such as plan, profile, cross section, and. Learn about the materials, installation, loadings, analysis, joints and camber of different types of conduits, culverts and pipes for various.. Pipe Culvert Drawing.
From mavink.com
Pipe Culvert Standard Drawings Pipe Culvert Drawing Using the pipe culvert module of esurvey structure, you can generate pipe culvert drawings such as plan, profile, cross section, and. Learn about the materials, installation, loadings, analysis, joints and camber of different types of conduits, culverts and pipes for various. • understand the different types of culverts • know the culvert design process for conveyance • complete a roadway. Pipe Culvert Drawing.
From it.scribd.com
hume pipe culvert drawing Horticulture And Gardening Materials Pipe Culvert Drawing This article dives into the main rules and specifications for hume pipe culverts as per the irc, emphasizing their importance in. Learn about the materials, installation, loadings, analysis, joints and camber of different types of conduits, culverts and pipes for various. A culvert is a hydraulically short conduit, which can be used to convey stream flow underground through a roadway.. Pipe Culvert Drawing.
From dcd.kitsapgov.com
Culverts Pipe Culvert Drawing Learn about the materials, installation, loadings, analysis, joints and camber of different types of conduits, culverts and pipes for various. A culvert is a hydraulically short conduit, which can be used to convey stream flow underground through a roadway. Learn the procedure of excavation, bedding, laying, jointing, and backfilling of pipe culverts with drawings and examples. This article dives into. Pipe Culvert Drawing.
From www.scribd.com
Typical Drawing of Pipe Culvert PDF Pipe Culvert Drawing Learn the procedure of excavation, bedding, laying, jointing, and backfilling of pipe culverts with drawings and examples. • understand the different types of culverts • know the culvert design process for conveyance • complete a roadway culvert design using. A culvert is a hydraulically short conduit, which can be used to convey stream flow underground through a roadway embankment or. Pipe Culvert Drawing.
From www.scribd.com
Pipe Culvert Syanja 0.6mPlan and Elevation of Culvert Civil Pipe Culvert Drawing A culvert is a hydraulically short conduit, which can be used to convey stream flow underground through a roadway. Using the pipe culvert module of esurvey structure, you can generate pipe culvert drawings such as plan, profile, cross section, and. • understand the different types of culverts • know the culvert design process for conveyance • complete a roadway culvert. Pipe Culvert Drawing.
From engineeringdiscoveries.com
What is Pipe Culvert? Uses, Advantages And Disadvantages Engineering Pipe Culvert Drawing A culvert is a hydraulically short conduit, which can be used to convey stream flow underground through a roadway. This article dives into the main rules and specifications for hume pipe culverts as per the irc, emphasizing their importance in. Using the pipe culvert module of esurvey structure, you can generate pipe culvert drawings such as plan, profile, cross section,. Pipe Culvert Drawing.
From esurveying.net
Create New Pipe Culvert Drawings ESurvey Structure Pipe Culvert Drawing A culvert is a hydraulically short conduit, which can be used to convey stream flow underground through a roadway embankment or other flow obstructions, or. A culvert is a hydraulically short conduit, which can be used to convey stream flow underground through a roadway. Learn about the materials, installation, loadings, analysis, joints and camber of different types of conduits, culverts. Pipe Culvert Drawing.
From mavink.com
Pipe Culvert Installation Drawing Pipe Culvert Drawing • understand the different types of culverts • know the culvert design process for conveyance • complete a roadway culvert design using. Learn about the materials, installation, loadings, analysis, joints and camber of different types of conduits, culverts and pipes for various. This article dives into the main rules and specifications for hume pipe culverts as per the irc, emphasizing. Pipe Culvert Drawing.
From engineeringdiscoveries.com
What is Pipe Culvert? Uses, Advantages And Disadvantages Engineering Pipe Culvert Drawing Learn the procedure of excavation, bedding, laying, jointing, and backfilling of pipe culverts with drawings and examples. Using the pipe culvert module of esurvey structure, you can generate pipe culvert drawings such as plan, profile, cross section, and. Learn about the materials, installation, loadings, analysis, joints and camber of different types of conduits, culverts and pipes for various. • understand. Pipe Culvert Drawing.
From www.scribd.com
Concrete Pipe Culvert Sections.dwg1.2m 3KG Road Concrete Pipe Culvert Drawing A culvert is a hydraulically short conduit, which can be used to convey stream flow underground through a roadway embankment or other flow obstructions, or. A culvert is a hydraulically short conduit, which can be used to convey stream flow underground through a roadway. Learn about the materials, installation, loadings, analysis, joints and camber of different types of conduits, culverts. Pipe Culvert Drawing.
From www.youtube.com
Pipe Culvert Concept and 3D CULVERTS & BRIDGES DCE C16/C20 Pipe Culvert Drawing This article dives into the main rules and specifications for hume pipe culverts as per the irc, emphasizing their importance in. A culvert is a hydraulically short conduit, which can be used to convey stream flow underground through a roadway embankment or other flow obstructions, or. A culvert is a hydraulically short conduit, which can be used to convey stream. Pipe Culvert Drawing.
From www.youtube.com
How to Read Drawing of Slab Culvert & Hume Pipe Culvert Reinforcement Pipe Culvert Drawing Using the pipe culvert module of esurvey structure, you can generate pipe culvert drawings such as plan, profile, cross section, and. A culvert is a hydraulically short conduit, which can be used to convey stream flow underground through a roadway embankment or other flow obstructions, or. Learn about the materials, installation, loadings, analysis, joints and camber of different types of. Pipe Culvert Drawing.
From mavink.com
Pipe Culvert Standard Drawings Pipe Culvert Drawing A culvert is a hydraulically short conduit, which can be used to convey stream flow underground through a roadway embankment or other flow obstructions, or. • understand the different types of culverts • know the culvert design process for conveyance • complete a roadway culvert design using. Using the pipe culvert module of esurvey structure, you can generate pipe culvert. Pipe Culvert Drawing.