Arizona Utilization Review Annual Attestation . Contact the department for an attestation form. Notwithstanding article 1 of this chapter and subject to subsection b of this section, this article applies to all utilization review decisions made. Adopt a written utilization review plan with standards and criteria that apply to all utilization review decisions and that are. Attestations may be filed as early as january 1. Adopt a written utilization review plan with standards and criteria that apply to all utilization review. Each utilization review agent shall: Adopt a written utilization review plan with standards and criteria that apply to all utilization review determinations and that are objective,. Adopt a written utilization review plan with standards and criteria that apply to all utilization review determinations and that are objective,.
from formspal.com
Adopt a written utilization review plan with standards and criteria that apply to all utilization review decisions and that are. Notwithstanding article 1 of this chapter and subject to subsection b of this section, this article applies to all utilization review decisions made. Contact the department for an attestation form. Adopt a written utilization review plan with standards and criteria that apply to all utilization review. Adopt a written utilization review plan with standards and criteria that apply to all utilization review determinations and that are objective,. Adopt a written utilization review plan with standards and criteria that apply to all utilization review determinations and that are objective,. Attestations may be filed as early as january 1. Each utilization review agent shall:
Arizona Annual Report ≡ Fill Out Printable PDF Forms Online
Arizona Utilization Review Annual Attestation Each utilization review agent shall: Adopt a written utilization review plan with standards and criteria that apply to all utilization review decisions and that are. Adopt a written utilization review plan with standards and criteria that apply to all utilization review determinations and that are objective,. Contact the department for an attestation form. Each utilization review agent shall: Adopt a written utilization review plan with standards and criteria that apply to all utilization review. Notwithstanding article 1 of this chapter and subject to subsection b of this section, this article applies to all utilization review decisions made. Attestations may be filed as early as january 1. Adopt a written utilization review plan with standards and criteria that apply to all utilization review determinations and that are objective,.
From www.templateroller.com
Form FIS2376 Download Fillable PDF or Fill Online Auto Insurance Arizona Utilization Review Annual Attestation Each utilization review agent shall: Notwithstanding article 1 of this chapter and subject to subsection b of this section, this article applies to all utilization review decisions made. Contact the department for an attestation form. Adopt a written utilization review plan with standards and criteria that apply to all utilization review decisions and that are. Adopt a written utilization review. Arizona Utilization Review Annual Attestation.
From www.templateroller.com
Arizona Arizona Highly Qualified Attestation Form Addendum for Multi Arizona Utilization Review Annual Attestation Contact the department for an attestation form. Adopt a written utilization review plan with standards and criteria that apply to all utilization review determinations and that are objective,. Attestations may be filed as early as january 1. Each utilization review agent shall: Notwithstanding article 1 of this chapter and subject to subsection b of this section, this article applies to. Arizona Utilization Review Annual Attestation.
From www.templateroller.com
Form DDD2223A Fill Out, Sign Online and Download Fillable PDF Arizona Utilization Review Annual Attestation Attestations may be filed as early as january 1. Adopt a written utilization review plan with standards and criteria that apply to all utilization review. Adopt a written utilization review plan with standards and criteria that apply to all utilization review determinations and that are objective,. Adopt a written utilization review plan with standards and criteria that apply to all. Arizona Utilization Review Annual Attestation.
From www.templateroller.com
Arizona Principal Officer and Board Member Attestation Medical Arizona Utilization Review Annual Attestation Contact the department for an attestation form. Adopt a written utilization review plan with standards and criteria that apply to all utilization review decisions and that are. Attestations may be filed as early as january 1. Each utilization review agent shall: Notwithstanding article 1 of this chapter and subject to subsection b of this section, this article applies to all. Arizona Utilization Review Annual Attestation.
From www.pdffiller.com
Fillable Online Get the ARIZONA HIGHLY QUALIFIED ATTESTATION FORM Arizona Utilization Review Annual Attestation Attestations may be filed as early as january 1. Notwithstanding article 1 of this chapter and subject to subsection b of this section, this article applies to all utilization review decisions made. Adopt a written utilization review plan with standards and criteria that apply to all utilization review decisions and that are. Adopt a written utilization review plan with standards. Arizona Utilization Review Annual Attestation.
From www.templateroller.com
Arizona Principal Officer and Board Member Information Update Arizona Utilization Review Annual Attestation Notwithstanding article 1 of this chapter and subject to subsection b of this section, this article applies to all utilization review decisions made. Adopt a written utilization review plan with standards and criteria that apply to all utilization review determinations and that are objective,. Adopt a written utilization review plan with standards and criteria that apply to all utilization review.. Arizona Utilization Review Annual Attestation.
From www.templateroller.com
Arizona Attestation Livestock Operator Fire and Flood Assistance Arizona Utilization Review Annual Attestation Adopt a written utilization review plan with standards and criteria that apply to all utilization review decisions and that are. Adopt a written utilization review plan with standards and criteria that apply to all utilization review determinations and that are objective,. Adopt a written utilization review plan with standards and criteria that apply to all utilization review determinations and that. Arizona Utilization Review Annual Attestation.
From www.templateroller.com
Arizona Security Personnel Attestation Form Fill Out, Sign Online and Arizona Utilization Review Annual Attestation Adopt a written utilization review plan with standards and criteria that apply to all utilization review determinations and that are objective,. Adopt a written utilization review plan with standards and criteria that apply to all utilization review decisions and that are. Each utilization review agent shall: Adopt a written utilization review plan with standards and criteria that apply to all. Arizona Utilization Review Annual Attestation.
From www.templateroller.com
Arizona Annual Report All Partnerships Download Fillable PDF 2022 Arizona Utilization Review Annual Attestation Contact the department for an attestation form. Attestations may be filed as early as january 1. Adopt a written utilization review plan with standards and criteria that apply to all utilization review determinations and that are objective,. Adopt a written utilization review plan with standards and criteria that apply to all utilization review determinations and that are objective,. Each utilization. Arizona Utilization Review Annual Attestation.
From www.templateroller.com
Arizona Employment Staff Training Attestation Fill Out, Sign Online Arizona Utilization Review Annual Attestation Attestations may be filed as early as january 1. Adopt a written utilization review plan with standards and criteria that apply to all utilization review determinations and that are objective,. Adopt a written utilization review plan with standards and criteria that apply to all utilization review decisions and that are. Notwithstanding article 1 of this chapter and subject to subsection. Arizona Utilization Review Annual Attestation.
From www.pdffiller.com
Fillable Online Get the free ARIZONA HIGHLY QUALIFIED ATTESTATION FORM Arizona Utilization Review Annual Attestation Adopt a written utilization review plan with standards and criteria that apply to all utilization review decisions and that are. Adopt a written utilization review plan with standards and criteria that apply to all utilization review. Adopt a written utilization review plan with standards and criteria that apply to all utilization review determinations and that are objective,. Each utilization review. Arizona Utilization Review Annual Attestation.
From formspal.com
Arizona Annual Report ≡ Fill Out Printable PDF Forms Online Arizona Utilization Review Annual Attestation Adopt a written utilization review plan with standards and criteria that apply to all utilization review. Adopt a written utilization review plan with standards and criteria that apply to all utilization review determinations and that are objective,. Adopt a written utilization review plan with standards and criteria that apply to all utilization review determinations and that are objective,. Notwithstanding article. Arizona Utilization Review Annual Attestation.
From www.templateroller.com
Arizona Arizona Highly Qualified Attestation Form Instructional Arizona Utilization Review Annual Attestation Adopt a written utilization review plan with standards and criteria that apply to all utilization review determinations and that are objective,. Each utilization review agent shall: Adopt a written utilization review plan with standards and criteria that apply to all utilization review. Attestations may be filed as early as january 1. Notwithstanding article 1 of this chapter and subject to. Arizona Utilization Review Annual Attestation.
From www.templateroller.com
Arizona Security Personnel Attestation Form Fill Out, Sign Online and Arizona Utilization Review Annual Attestation Notwithstanding article 1 of this chapter and subject to subsection b of this section, this article applies to all utilization review decisions made. Adopt a written utilization review plan with standards and criteria that apply to all utilization review decisions and that are. Attestations may be filed as early as january 1. Adopt a written utilization review plan with standards. Arizona Utilization Review Annual Attestation.
From www.templateroller.com
Form DDD2102A Fill Out, Sign Online and Download Fillable PDF Arizona Utilization Review Annual Attestation Each utilization review agent shall: Contact the department for an attestation form. Adopt a written utilization review plan with standards and criteria that apply to all utilization review determinations and that are objective,. Attestations may be filed as early as january 1. Adopt a written utilization review plan with standards and criteria that apply to all utilization review determinations and. Arizona Utilization Review Annual Attestation.
From formspal.com
Arizona Annual Report ≡ Fill Out Printable PDF Forms Online Arizona Utilization Review Annual Attestation Adopt a written utilization review plan with standards and criteria that apply to all utilization review decisions and that are. Contact the department for an attestation form. Notwithstanding article 1 of this chapter and subject to subsection b of this section, this article applies to all utilization review decisions made. Adopt a written utilization review plan with standards and criteria. Arizona Utilization Review Annual Attestation.
From www.templateroller.com
Arizona Laboratory Owner Attestation Medical Marijuana Program Fill Arizona Utilization Review Annual Attestation Adopt a written utilization review plan with standards and criteria that apply to all utilization review. Notwithstanding article 1 of this chapter and subject to subsection b of this section, this article applies to all utilization review decisions made. Adopt a written utilization review plan with standards and criteria that apply to all utilization review decisions and that are. Each. Arizona Utilization Review Annual Attestation.
From www.templateroller.com
Arizona Arizona Highly Qualified Attestation Form Addendum for Multi Arizona Utilization Review Annual Attestation Adopt a written utilization review plan with standards and criteria that apply to all utilization review determinations and that are objective,. Adopt a written utilization review plan with standards and criteria that apply to all utilization review. Contact the department for an attestation form. Attestations may be filed as early as january 1. Notwithstanding article 1 of this chapter and. Arizona Utilization Review Annual Attestation.
From formspal.com
Arizona Annual Report ≡ Fill Out Printable PDF Forms Online Arizona Utilization Review Annual Attestation Adopt a written utilization review plan with standards and criteria that apply to all utilization review. Notwithstanding article 1 of this chapter and subject to subsection b of this section, this article applies to all utilization review decisions made. Adopt a written utilization review plan with standards and criteria that apply to all utilization review determinations and that are objective,.. Arizona Utilization Review Annual Attestation.
From www.templateroller.com
Arizona Vendor Attestation Fill Out, Sign Online and Download PDF Arizona Utilization Review Annual Attestation Adopt a written utilization review plan with standards and criteria that apply to all utilization review decisions and that are. Notwithstanding article 1 of this chapter and subject to subsection b of this section, this article applies to all utilization review decisions made. Adopt a written utilization review plan with standards and criteria that apply to all utilization review determinations. Arizona Utilization Review Annual Attestation.
From www.pdffiller.com
Fillable Online hr arizona International Employee Attestation Form Fax Arizona Utilization Review Annual Attestation Contact the department for an attestation form. Adopt a written utilization review plan with standards and criteria that apply to all utilization review determinations and that are objective,. Attestations may be filed as early as january 1. Adopt a written utilization review plan with standards and criteria that apply to all utilization review. Each utilization review agent shall: Adopt a. Arizona Utilization Review Annual Attestation.
From www.templateroller.com
Form DDD2101A Fill Out, Sign Online and Download Fillable PDF Arizona Utilization Review Annual Attestation Adopt a written utilization review plan with standards and criteria that apply to all utilization review determinations and that are objective,. Adopt a written utilization review plan with standards and criteria that apply to all utilization review determinations and that are objective,. Adopt a written utilization review plan with standards and criteria that apply to all utilization review. Contact the. Arizona Utilization Review Annual Attestation.
From www.templateroller.com
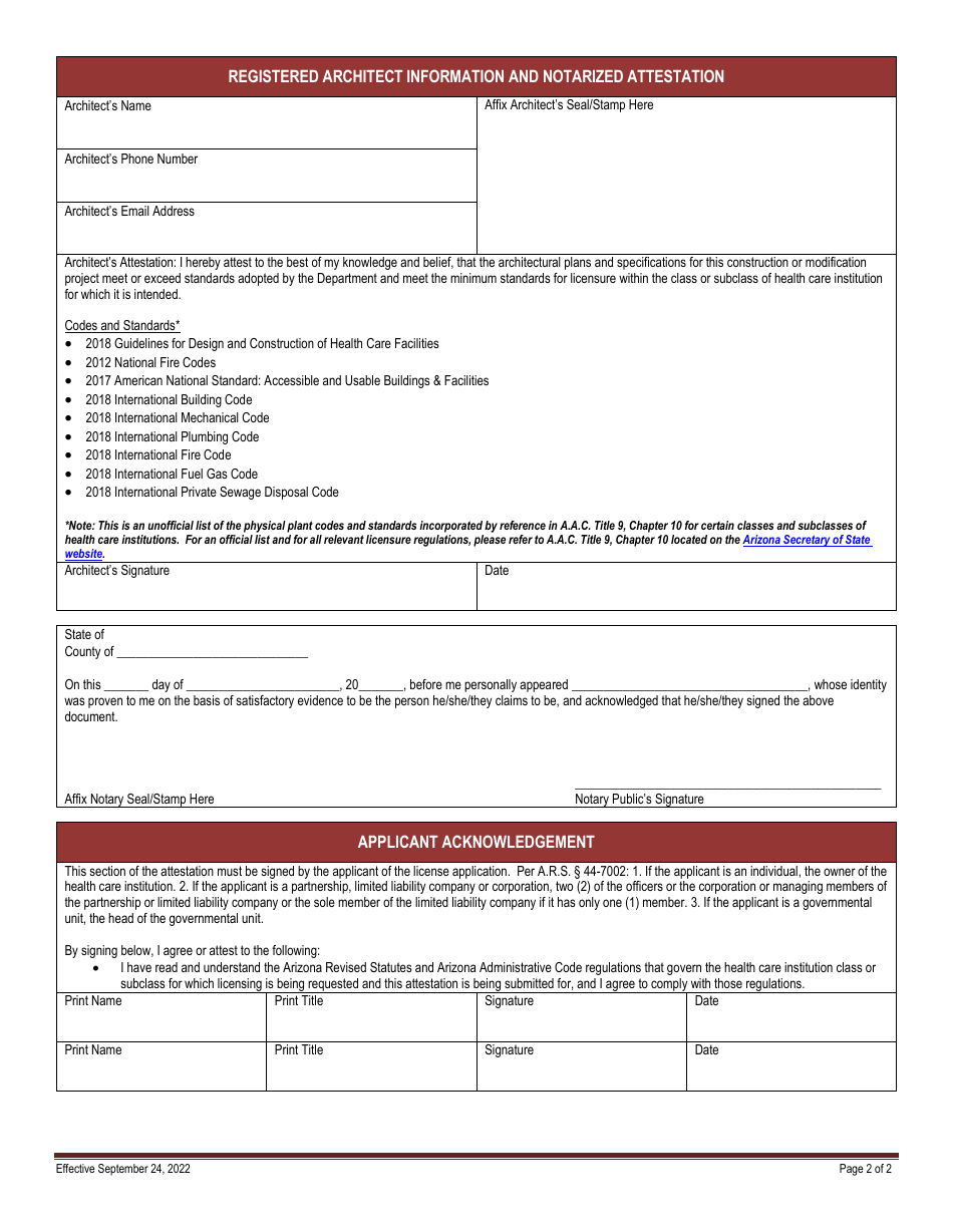
Arizona Health Care Institution License Application Architecture Arizona Utilization Review Annual Attestation Adopt a written utilization review plan with standards and criteria that apply to all utilization review decisions and that are. Attestations may be filed as early as january 1. Each utilization review agent shall: Notwithstanding article 1 of this chapter and subject to subsection b of this section, this article applies to all utilization review decisions made. Adopt a written. Arizona Utilization Review Annual Attestation.
From formspal.com
Arizona Annual Report ≡ Fill Out Printable PDF Forms Online Arizona Utilization Review Annual Attestation Notwithstanding article 1 of this chapter and subject to subsection b of this section, this article applies to all utilization review decisions made. Each utilization review agent shall: Adopt a written utilization review plan with standards and criteria that apply to all utilization review determinations and that are objective,. Adopt a written utilization review plan with standards and criteria that. Arizona Utilization Review Annual Attestation.
From www.templateroller.com
Form ESA1193A Fill Out, Sign Online and Download Fillable PDF Arizona Utilization Review Annual Attestation Attestations may be filed as early as january 1. Adopt a written utilization review plan with standards and criteria that apply to all utilization review determinations and that are objective,. Notwithstanding article 1 of this chapter and subject to subsection b of this section, this article applies to all utilization review decisions made. Each utilization review agent shall: Adopt a. Arizona Utilization Review Annual Attestation.
From www.pdffiller.com
Fillable Online global arizona DOCUMENT CERTIFICATION ATTESTATION FOR H Arizona Utilization Review Annual Attestation Notwithstanding article 1 of this chapter and subject to subsection b of this section, this article applies to all utilization review decisions made. Contact the department for an attestation form. Adopt a written utilization review plan with standards and criteria that apply to all utilization review determinations and that are objective,. Attestations may be filed as early as january 1.. Arizona Utilization Review Annual Attestation.
From www.formsbank.com
Fillable Annual Report State Of Arizona Office Of The Secretary Of Arizona Utilization Review Annual Attestation Notwithstanding article 1 of this chapter and subject to subsection b of this section, this article applies to all utilization review decisions made. Attestations may be filed as early as january 1. Adopt a written utilization review plan with standards and criteria that apply to all utilization review determinations and that are objective,. Adopt a written utilization review plan with. Arizona Utilization Review Annual Attestation.
From www.templateroller.com
2023 Arizona Annual Report of Lobbying Activity Principal Download Arizona Utilization Review Annual Attestation Adopt a written utilization review plan with standards and criteria that apply to all utilization review. Notwithstanding article 1 of this chapter and subject to subsection b of this section, this article applies to all utilization review decisions made. Adopt a written utilization review plan with standards and criteria that apply to all utilization review decisions and that are. Attestations. Arizona Utilization Review Annual Attestation.
From www.templateroller.com
Arizona OutofState License Recognition Residency Attestation Fill Arizona Utilization Review Annual Attestation Contact the department for an attestation form. Adopt a written utilization review plan with standards and criteria that apply to all utilization review determinations and that are objective,. Each utilization review agent shall: Attestations may be filed as early as january 1. Adopt a written utilization review plan with standards and criteria that apply to all utilization review determinations and. Arizona Utilization Review Annual Attestation.
From www.templateroller.com
Arizona Arizona Highly Qualified Attestation Form Reading Specialist Arizona Utilization Review Annual Attestation Each utilization review agent shall: Contact the department for an attestation form. Adopt a written utilization review plan with standards and criteria that apply to all utilization review determinations and that are objective,. Attestations may be filed as early as january 1. Adopt a written utilization review plan with standards and criteria that apply to all utilization review determinations and. Arizona Utilization Review Annual Attestation.
From www.templateroller.com
Arizona 4.23 Annual Report Form Fill Out, Sign Online and Download Arizona Utilization Review Annual Attestation Adopt a written utilization review plan with standards and criteria that apply to all utilization review decisions and that are. Adopt a written utilization review plan with standards and criteria that apply to all utilization review determinations and that are objective,. Notwithstanding article 1 of this chapter and subject to subsection b of this section, this article applies to all. Arizona Utilization Review Annual Attestation.
From www.templateroller.com
Arizona Security Personnel Attestation Form Download Fillable PDF Arizona Utilization Review Annual Attestation Adopt a written utilization review plan with standards and criteria that apply to all utilization review determinations and that are objective,. Adopt a written utilization review plan with standards and criteria that apply to all utilization review. Notwithstanding article 1 of this chapter and subject to subsection b of this section, this article applies to all utilization review decisions made.. Arizona Utilization Review Annual Attestation.
From www.templateroller.com
Form RRP1018A Fill Out, Sign Online and Download Fillable PDF Arizona Utilization Review Annual Attestation Attestations may be filed as early as january 1. Contact the department for an attestation form. Adopt a written utilization review plan with standards and criteria that apply to all utilization review. Adopt a written utilization review plan with standards and criteria that apply to all utilization review determinations and that are objective,. Adopt a written utilization review plan with. Arizona Utilization Review Annual Attestation.
From www.templateroller.com
Arizona Arizona Highly Qualified Attestation Form Instructional Arizona Utilization Review Annual Attestation Adopt a written utilization review plan with standards and criteria that apply to all utilization review determinations and that are objective,. Adopt a written utilization review plan with standards and criteria that apply to all utilization review decisions and that are. Adopt a written utilization review plan with standards and criteria that apply to all utilization review. Each utilization review. Arizona Utilization Review Annual Attestation.
From www.templateroller.com
Arizona Laboratory Technical Director Attestation Medical Marijuana Arizona Utilization Review Annual Attestation Adopt a written utilization review plan with standards and criteria that apply to all utilization review. Adopt a written utilization review plan with standards and criteria that apply to all utilization review decisions and that are. Each utilization review agent shall: Notwithstanding article 1 of this chapter and subject to subsection b of this section, this article applies to all. Arizona Utilization Review Annual Attestation.