How To Check Sheet Metal Quality . Visual inspections—the most basic form of inspection, it involves inspectors examining the sheet metal parts for any visible defects, such as scratches,. From the weight of galvanised steel sheets to their coating, there are many aspects that need to be assessed when it comes to thick or thin galvanised steel sheets. A range of methods exists to test the strength and durability of steel. What are the types of sheet metal testing? No matter if you want to check stainless steel quality, or tool steel quality. A strong quality control framework facilitates the effective transition from sheet metal design detailing to manufacturing. Check the actual weight of the steel by calibrating the weighting apparatus and quantity check the pieces by counting (especially useful for. In sheet metal forming, many techniques are implemented in order to. Ensure precision and efficiency with expert insights. How to check steel quality in the steel industry? Explore essential quality metrics for sheet metal fabrication drawings.
from tutorialstipscivil.com
Visual inspections—the most basic form of inspection, it involves inspectors examining the sheet metal parts for any visible defects, such as scratches,. Check the actual weight of the steel by calibrating the weighting apparatus and quantity check the pieces by counting (especially useful for. From the weight of galvanised steel sheets to their coating, there are many aspects that need to be assessed when it comes to thick or thin galvanised steel sheets. Ensure precision and efficiency with expert insights. A strong quality control framework facilitates the effective transition from sheet metal design detailing to manufacturing. No matter if you want to check stainless steel quality, or tool steel quality. A range of methods exists to test the strength and durability of steel. What are the types of sheet metal testing? In sheet metal forming, many techniques are implemented in order to. Explore essential quality metrics for sheet metal fabrication drawings.
Building Materials Quality Testing and Reporting Materials check list
How To Check Sheet Metal Quality A range of methods exists to test the strength and durability of steel. No matter if you want to check stainless steel quality, or tool steel quality. How to check steel quality in the steel industry? Ensure precision and efficiency with expert insights. What are the types of sheet metal testing? From the weight of galvanised steel sheets to their coating, there are many aspects that need to be assessed when it comes to thick or thin galvanised steel sheets. In sheet metal forming, many techniques are implemented in order to. A range of methods exists to test the strength and durability of steel. Check the actual weight of the steel by calibrating the weighting apparatus and quantity check the pieces by counting (especially useful for. Visual inspections—the most basic form of inspection, it involves inspectors examining the sheet metal parts for any visible defects, such as scratches,. Explore essential quality metrics for sheet metal fabrication drawings. A strong quality control framework facilitates the effective transition from sheet metal design detailing to manufacturing.
From proleantech.com
A Comprehensive Guide to the Sheet Metal Embossing Process How To Check Sheet Metal Quality Check the actual weight of the steel by calibrating the weighting apparatus and quantity check the pieces by counting (especially useful for. How to check steel quality in the steel industry? Visual inspections—the most basic form of inspection, it involves inspectors examining the sheet metal parts for any visible defects, such as scratches,. In sheet metal forming, many techniques are. How To Check Sheet Metal Quality.
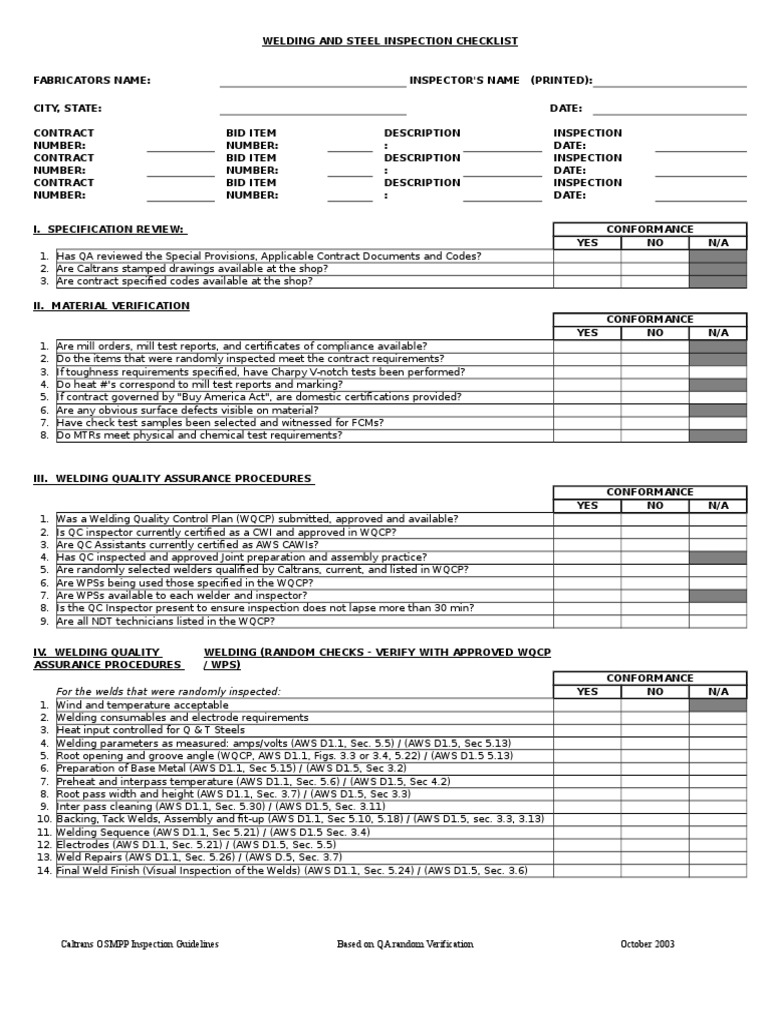
From www.scribd.com
General Quality Checklist in Construction Specification (Technical How To Check Sheet Metal Quality In sheet metal forming, many techniques are implemented in order to. Check the actual weight of the steel by calibrating the weighting apparatus and quantity check the pieces by counting (especially useful for. What are the types of sheet metal testing? From the weight of galvanised steel sheets to their coating, there are many aspects that need to be assessed. How To Check Sheet Metal Quality.
From www.amedm.co.uk
Metrology and Measurement In Mechanical Engineering A&M How To Check Sheet Metal Quality A range of methods exists to test the strength and durability of steel. From the weight of galvanised steel sheets to their coating, there are many aspects that need to be assessed when it comes to thick or thin galvanised steel sheets. Check the actual weight of the steel by calibrating the weighting apparatus and quantity check the pieces by. How To Check Sheet Metal Quality.
From www.youtube.com
CHECK SHEET 7 QC Tools Quality Control Tools Lean Six Sigma Tools How To Check Sheet Metal Quality A strong quality control framework facilitates the effective transition from sheet metal design detailing to manufacturing. Explore essential quality metrics for sheet metal fabrication drawings. No matter if you want to check stainless steel quality, or tool steel quality. In sheet metal forming, many techniques are implemented in order to. What are the types of sheet metal testing? Visual inspections—the. How To Check Sheet Metal Quality.
From www.hqts.com
An Insiders Guide to Steel Quality Inspections and Quality Control How To Check Sheet Metal Quality A strong quality control framework facilitates the effective transition from sheet metal design detailing to manufacturing. In sheet metal forming, many techniques are implemented in order to. From the weight of galvanised steel sheets to their coating, there are many aspects that need to be assessed when it comes to thick or thin galvanised steel sheets. Explore essential quality metrics. How To Check Sheet Metal Quality.
From www.metafab.com
Sheet Metal Material Thickness Guide Meta Fab, Inc. How To Check Sheet Metal Quality Check the actual weight of the steel by calibrating the weighting apparatus and quantity check the pieces by counting (especially useful for. How to check steel quality in the steel industry? Explore essential quality metrics for sheet metal fabrication drawings. A range of methods exists to test the strength and durability of steel. A strong quality control framework facilitates the. How To Check Sheet Metal Quality.
From www.us-metalcrafters.com
Quality Assurance in Sheet Metal Operations US Metal Crafters How To Check Sheet Metal Quality How to check steel quality in the steel industry? Ensure precision and efficiency with expert insights. A range of methods exists to test the strength and durability of steel. A strong quality control framework facilitates the effective transition from sheet metal design detailing to manufacturing. Explore essential quality metrics for sheet metal fabrication drawings. What are the types of sheet. How To Check Sheet Metal Quality.
From sitemate.com
Roof Inspection Checklist Template Smarter than PDF and Excel How To Check Sheet Metal Quality In sheet metal forming, many techniques are implemented in order to. Visual inspections—the most basic form of inspection, it involves inspectors examining the sheet metal parts for any visible defects, such as scratches,. A range of methods exists to test the strength and durability of steel. No matter if you want to check stainless steel quality, or tool steel quality.. How To Check Sheet Metal Quality.
From sitemate.com
Steel Fabrication Quality Control Checklist Download as PDF How To Check Sheet Metal Quality What are the types of sheet metal testing? A strong quality control framework facilitates the effective transition from sheet metal design detailing to manufacturing. Check the actual weight of the steel by calibrating the weighting apparatus and quantity check the pieces by counting (especially useful for. Ensure precision and efficiency with expert insights. How to check steel quality in the. How To Check Sheet Metal Quality.
From www.planarinspect.com
Sheet Metal Inspection & Reverse Engineering Productivity Quality How To Check Sheet Metal Quality In sheet metal forming, many techniques are implemented in order to. No matter if you want to check stainless steel quality, or tool steel quality. How to check steel quality in the steel industry? Explore essential quality metrics for sheet metal fabrication drawings. What are the types of sheet metal testing? Visual inspections—the most basic form of inspection, it involves. How To Check Sheet Metal Quality.
From aybametal.com
How to Calculate Sheet Metal Weight? Ayba Metal How To Check Sheet Metal Quality Visual inspections—the most basic form of inspection, it involves inspectors examining the sheet metal parts for any visible defects, such as scratches,. A range of methods exists to test the strength and durability of steel. A strong quality control framework facilitates the effective transition from sheet metal design detailing to manufacturing. Ensure precision and efficiency with expert insights. From the. How To Check Sheet Metal Quality.
From www.youtube.com
Stainless steel grade testing liquid Stainless steel quality testing How To Check Sheet Metal Quality Ensure precision and efficiency with expert insights. What are the types of sheet metal testing? A range of methods exists to test the strength and durability of steel. In sheet metal forming, many techniques are implemented in order to. Visual inspections—the most basic form of inspection, it involves inspectors examining the sheet metal parts for any visible defects, such as. How To Check Sheet Metal Quality.
From www.hqts.com
An Insiders Guide to Steel Quality Inspections and Quality Control How To Check Sheet Metal Quality No matter if you want to check stainless steel quality, or tool steel quality. Check the actual weight of the steel by calibrating the weighting apparatus and quantity check the pieces by counting (especially useful for. From the weight of galvanised steel sheets to their coating, there are many aspects that need to be assessed when it comes to thick. How To Check Sheet Metal Quality.
From tutorialstipscivil.com
Building Materials Quality Testing and Reporting Materials check list How To Check Sheet Metal Quality A range of methods exists to test the strength and durability of steel. Check the actual weight of the steel by calibrating the weighting apparatus and quantity check the pieces by counting (especially useful for. Explore essential quality metrics for sheet metal fabrication drawings. In sheet metal forming, many techniques are implemented in order to. A strong quality control framework. How To Check Sheet Metal Quality.
From metalexponents.com
How to Check Sheet Metal Quality How To Check Sheet Metal Quality How to check steel quality in the steel industry? From the weight of galvanised steel sheets to their coating, there are many aspects that need to be assessed when it comes to thick or thin galvanised steel sheets. Check the actual weight of the steel by calibrating the weighting apparatus and quantity check the pieces by counting (especially useful for.. How To Check Sheet Metal Quality.
From allsteelchoices.blogspot.com
Structural Steel Inspection Checklist Steel Choices How To Check Sheet Metal Quality Check the actual weight of the steel by calibrating the weighting apparatus and quantity check the pieces by counting (especially useful for. A strong quality control framework facilitates the effective transition from sheet metal design detailing to manufacturing. What are the types of sheet metal testing? Ensure precision and efficiency with expert insights. How to check steel quality in the. How To Check Sheet Metal Quality.
From www.alamy.com
sheet metal quality inspection Stock Photo Alamy How To Check Sheet Metal Quality A range of methods exists to test the strength and durability of steel. Visual inspections—the most basic form of inspection, it involves inspectors examining the sheet metal parts for any visible defects, such as scratches,. Explore essential quality metrics for sheet metal fabrication drawings. In sheet metal forming, many techniques are implemented in order to. From the weight of galvanised. How To Check Sheet Metal Quality.
From factoryandhandlingsolutions.co.uk
Closing the sheet metal inspection loop How automation can improve How To Check Sheet Metal Quality A strong quality control framework facilitates the effective transition from sheet metal design detailing to manufacturing. Explore essential quality metrics for sheet metal fabrication drawings. Check the actual weight of the steel by calibrating the weighting apparatus and quantity check the pieces by counting (especially useful for. Ensure precision and efficiency with expert insights. In sheet metal forming, many techniques. How To Check Sheet Metal Quality.
From www.rocheindustry.com
White Paper The Complete Guide To Sheet Metal Fabrication How To Check Sheet Metal Quality Explore essential quality metrics for sheet metal fabrication drawings. Check the actual weight of the steel by calibrating the weighting apparatus and quantity check the pieces by counting (especially useful for. A strong quality control framework facilitates the effective transition from sheet metal design detailing to manufacturing. No matter if you want to check stainless steel quality, or tool steel. How To Check Sheet Metal Quality.
From www.worldoftest.com
Sheet Metal Testing Machine Model 134 Qualitest How To Check Sheet Metal Quality No matter if you want to check stainless steel quality, or tool steel quality. How to check steel quality in the steel industry? Visual inspections—the most basic form of inspection, it involves inspectors examining the sheet metal parts for any visible defects, such as scratches,. Ensure precision and efficiency with expert insights. A strong quality control framework facilitates the effective. How To Check Sheet Metal Quality.
From selmach.com
How to measure sheet metal gauge and thickness Selmach™ How To Check Sheet Metal Quality What are the types of sheet metal testing? No matter if you want to check stainless steel quality, or tool steel quality. A strong quality control framework facilitates the effective transition from sheet metal design detailing to manufacturing. Ensure precision and efficiency with expert insights. Visual inspections—the most basic form of inspection, it involves inspectors examining the sheet metal parts. How To Check Sheet Metal Quality.
From www.ah-studio.com
Quality Control Checklist Template 5 Mind Numbing Facts About Quality How To Check Sheet Metal Quality Ensure precision and efficiency with expert insights. No matter if you want to check stainless steel quality, or tool steel quality. Explore essential quality metrics for sheet metal fabrication drawings. Check the actual weight of the steel by calibrating the weighting apparatus and quantity check the pieces by counting (especially useful for. From the weight of galvanised steel sheets to. How To Check Sheet Metal Quality.
From metalexponents.com
How to Check Sheet Metal Quality How To Check Sheet Metal Quality Ensure precision and efficiency with expert insights. How to check steel quality in the steel industry? Visual inspections—the most basic form of inspection, it involves inspectors examining the sheet metal parts for any visible defects, such as scratches,. What are the types of sheet metal testing? In sheet metal forming, many techniques are implemented in order to. Explore essential quality. How To Check Sheet Metal Quality.
From xometry.eu
eBook Sheet Metal Cutting Design Guide Xometry Europe How To Check Sheet Metal Quality In sheet metal forming, many techniques are implemented in order to. Ensure precision and efficiency with expert insights. Check the actual weight of the steel by calibrating the weighting apparatus and quantity check the pieces by counting (especially useful for. No matter if you want to check stainless steel quality, or tool steel quality. Explore essential quality metrics for sheet. How To Check Sheet Metal Quality.
From www.vasucc-sheetmetal.com
Quality Control for Sheet Metal Fabrication VASUCC Sheet Metal How To Check Sheet Metal Quality A strong quality control framework facilitates the effective transition from sheet metal design detailing to manufacturing. Explore essential quality metrics for sheet metal fabrication drawings. What are the types of sheet metal testing? How to check steel quality in the steel industry? Visual inspections—the most basic form of inspection, it involves inspectors examining the sheet metal parts for any visible. How To Check Sheet Metal Quality.
From www.hqts.com
An Insiders Guide to Steel Quality Inspections and Quality Control How To Check Sheet Metal Quality A range of methods exists to test the strength and durability of steel. Visual inspections—the most basic form of inspection, it involves inspectors examining the sheet metal parts for any visible defects, such as scratches,. How to check steel quality in the steel industry? Check the actual weight of the steel by calibrating the weighting apparatus and quantity check the. How To Check Sheet Metal Quality.
From es.scribd.com
Steel Checklist Quality Assurance Welding How To Check Sheet Metal Quality Ensure precision and efficiency with expert insights. A range of methods exists to test the strength and durability of steel. Visual inspections—the most basic form of inspection, it involves inspectors examining the sheet metal parts for any visible defects, such as scratches,. What are the types of sheet metal testing? No matter if you want to check stainless steel quality,. How To Check Sheet Metal Quality.
From sitemate.com
Structural Steel Quality Control Checklist Free to use and editable How To Check Sheet Metal Quality A range of methods exists to test the strength and durability of steel. Explore essential quality metrics for sheet metal fabrication drawings. How to check steel quality in the steel industry? From the weight of galvanised steel sheets to their coating, there are many aspects that need to be assessed when it comes to thick or thin galvanised steel sheets.. How To Check Sheet Metal Quality.
From www.scribd.com
Structural Steel Fabrication Checklist How To Check Sheet Metal Quality A strong quality control framework facilitates the effective transition from sheet metal design detailing to manufacturing. Ensure precision and efficiency with expert insights. Check the actual weight of the steel by calibrating the weighting apparatus and quantity check the pieces by counting (especially useful for. Explore essential quality metrics for sheet metal fabrication drawings. Visual inspections—the most basic form of. How To Check Sheet Metal Quality.
From cnmetalpart.com
How to improve the quality of sheet metal processing Pandx Metal How To Check Sheet Metal Quality In sheet metal forming, many techniques are implemented in order to. A range of methods exists to test the strength and durability of steel. Explore essential quality metrics for sheet metal fabrication drawings. How to check steel quality in the steel industry? From the weight of galvanised steel sheets to their coating, there are many aspects that need to be. How To Check Sheet Metal Quality.
From www.fvmt.com
Metal Fabrication Inspection Methods for Quality Assurance How To Check Sheet Metal Quality No matter if you want to check stainless steel quality, or tool steel quality. Ensure precision and efficiency with expert insights. A range of methods exists to test the strength and durability of steel. A strong quality control framework facilitates the effective transition from sheet metal design detailing to manufacturing. How to check steel quality in the steel industry? Visual. How To Check Sheet Metal Quality.
From es.scribd.com
Steel Structure Fabrication Inspection Report How To Check Sheet Metal Quality A strong quality control framework facilitates the effective transition from sheet metal design detailing to manufacturing. Check the actual weight of the steel by calibrating the weighting apparatus and quantity check the pieces by counting (especially useful for. In sheet metal forming, many techniques are implemented in order to. Explore essential quality metrics for sheet metal fabrication drawings. Ensure precision. How To Check Sheet Metal Quality.
From www.youtube.com
How to Check Steel Grade Steel Ko Kaise Check Karte Hai Stainless How To Check Sheet Metal Quality From the weight of galvanised steel sheets to their coating, there are many aspects that need to be assessed when it comes to thick or thin galvanised steel sheets. In sheet metal forming, many techniques are implemented in order to. What are the types of sheet metal testing? Explore essential quality metrics for sheet metal fabrication drawings. Ensure precision and. How To Check Sheet Metal Quality.
From www.aldinemetal.com
Metal Fabrication Quality Control Sheet Metal Inspection Sheet How To Check Sheet Metal Quality Ensure precision and efficiency with expert insights. Visual inspections—the most basic form of inspection, it involves inspectors examining the sheet metal parts for any visible defects, such as scratches,. A range of methods exists to test the strength and durability of steel. How to check steel quality in the steel industry? A strong quality control framework facilitates the effective transition. How To Check Sheet Metal Quality.
From schematicmanualwilliam.z13.web.core.windows.net
How To Check If Metal Is Aluminum How To Check Sheet Metal Quality Check the actual weight of the steel by calibrating the weighting apparatus and quantity check the pieces by counting (especially useful for. No matter if you want to check stainless steel quality, or tool steel quality. A range of methods exists to test the strength and durability of steel. How to check steel quality in the steel industry? From the. How To Check Sheet Metal Quality.