Building Set Out Procedure . in the construction of buildings, setting out is the critical first step on the path to successful construction. the setting out procedure in building construction is a critical step in ensuring that a structure is built correctly,. The coordinate method is a popular and accurate method of setting out, particularly suitable. procedure for setting out a building plan on ground. From the plan (fig 1), the centre line of the. setting out involves transferring the dimensions and locations from engineering designs and plans to the actual site. This process ensures that the. setting out of building foundation trenches is the process of laying down the excavation line and centerline on the ground based on the foundation plan. Example plan to be set out on the ground. •a building is set out in order to clearly define the outline of the excavation and the centre line of the walls, so that.
from bestpixtajprzsi.blogspot.com
setting out involves transferring the dimensions and locations from engineering designs and plans to the actual site. procedure for setting out a building plan on ground. in the construction of buildings, setting out is the critical first step on the path to successful construction. •a building is set out in order to clearly define the outline of the excavation and the centre line of the walls, so that. The coordinate method is a popular and accurate method of setting out, particularly suitable. Example plan to be set out on the ground. From the plan (fig 1), the centre line of the. setting out of building foundation trenches is the process of laying down the excavation line and centerline on the ground based on the foundation plan. This process ensures that the. the setting out procedure in building construction is a critical step in ensuring that a structure is built correctly,.
345 method of setting out building pdf 278292 Bestpixtajprzsi
Building Set Out Procedure This process ensures that the. in the construction of buildings, setting out is the critical first step on the path to successful construction. setting out involves transferring the dimensions and locations from engineering designs and plans to the actual site. This process ensures that the. Example plan to be set out on the ground. •a building is set out in order to clearly define the outline of the excavation and the centre line of the walls, so that. The coordinate method is a popular and accurate method of setting out, particularly suitable. the setting out procedure in building construction is a critical step in ensuring that a structure is built correctly,. From the plan (fig 1), the centre line of the. procedure for setting out a building plan on ground. setting out of building foundation trenches is the process of laying down the excavation line and centerline on the ground based on the foundation plan.
From dl-surveys.co.nz
Setout Surveys DL Surveys Building Set out Building Set Out Procedure setting out of building foundation trenches is the process of laying down the excavation line and centerline on the ground based on the foundation plan. the setting out procedure in building construction is a critical step in ensuring that a structure is built correctly,. in the construction of buildings, setting out is the critical first step on. Building Set Out Procedure.
From www.pinterest.com
Setting out procedures. Setting out can be a very complex engineering Building Set Out Procedure procedure for setting out a building plan on ground. setting out involves transferring the dimensions and locations from engineering designs and plans to the actual site. •a building is set out in order to clearly define the outline of the excavation and the centre line of the walls, so that. setting out of building foundation trenches is. Building Set Out Procedure.
From nishikawa-ltd.com
setting out plan sample Building Set Out Procedure •a building is set out in order to clearly define the outline of the excavation and the centre line of the walls, so that. The coordinate method is a popular and accurate method of setting out, particularly suitable. Example plan to be set out on the ground. the setting out procedure in building construction is a critical step in. Building Set Out Procedure.
From essjt.org.rw
Building set out ESSJT Building Set Out Procedure procedure for setting out a building plan on ground. setting out involves transferring the dimensions and locations from engineering designs and plans to the actual site. The coordinate method is a popular and accurate method of setting out, particularly suitable. From the plan (fig 1), the centre line of the. Example plan to be set out on the. Building Set Out Procedure.
From www.jmwallsetouts.com.au
JMWALL Set Outs Apartment and House Set Outs in Melbourne and suburbs Building Set Out Procedure setting out of building foundation trenches is the process of laying down the excavation line and centerline on the ground based on the foundation plan. setting out involves transferring the dimensions and locations from engineering designs and plans to the actual site. The coordinate method is a popular and accurate method of setting out, particularly suitable. This process. Building Set Out Procedure.
From cpsurveys.com.au
Building Setout survey Complete Precision Surveys Sydney Building Set Out Procedure the setting out procedure in building construction is a critical step in ensuring that a structure is built correctly,. setting out of building foundation trenches is the process of laying down the excavation line and centerline on the ground based on the foundation plan. This process ensures that the. •a building is set out in order to clearly. Building Set Out Procedure.
From landmarkes.ie
Engineering Surveying & Setting out Building Set Out Procedure setting out of building foundation trenches is the process of laying down the excavation line and centerline on the ground based on the foundation plan. This process ensures that the. Example plan to be set out on the ground. the setting out procedure in building construction is a critical step in ensuring that a structure is built correctly,.. Building Set Out Procedure.
From www.realserve.com.au
Building Set Out Surveys Precise & detailed. Free Quote Building Set Out Procedure The coordinate method is a popular and accurate method of setting out, particularly suitable. the setting out procedure in building construction is a critical step in ensuring that a structure is built correctly,. setting out of building foundation trenches is the process of laying down the excavation line and centerline on the ground based on the foundation plan.. Building Set Out Procedure.
From nigerianhouseplans.com
This is how to set out a building accurately NIGERIAN HOUSE PLANS Building Set Out Procedure setting out of building foundation trenches is the process of laying down the excavation line and centerline on the ground based on the foundation plan. procedure for setting out a building plan on ground. The coordinate method is a popular and accurate method of setting out, particularly suitable. •a building is set out in order to clearly define. Building Set Out Procedure.
From www.staceysurveying.com.au
Building Set Out Survey Stacey Surveying Building Set Out Procedure setting out involves transferring the dimensions and locations from engineering designs and plans to the actual site. •a building is set out in order to clearly define the outline of the excavation and the centre line of the walls, so that. in the construction of buildings, setting out is the critical first step on the path to successful. Building Set Out Procedure.
From www.dreamstime.com
Setting out the building stock photo. Image of leveling 28648044 Building Set Out Procedure in the construction of buildings, setting out is the critical first step on the path to successful construction. •a building is set out in order to clearly define the outline of the excavation and the centre line of the walls, so that. procedure for setting out a building plan on ground. The coordinate method is a popular and. Building Set Out Procedure.
From www.slideserve.com
PPT STEPS IN SETTING OUT A BUILDING PowerPoint Presentation, free Building Set Out Procedure in the construction of buildings, setting out is the critical first step on the path to successful construction. setting out of building foundation trenches is the process of laying down the excavation line and centerline on the ground based on the foundation plan. Example plan to be set out on the ground. setting out involves transferring the. Building Set Out Procedure.
From www.studocu.com
Build Right Setting Out Setting out BEFORE EXCAVATIONS START, THE Building Set Out Procedure setting out of building foundation trenches is the process of laying down the excavation line and centerline on the ground based on the foundation plan. The coordinate method is a popular and accurate method of setting out, particularly suitable. This process ensures that the. the setting out procedure in building construction is a critical step in ensuring that. Building Set Out Procedure.
From cpsurveys.com.au
Building Setout survey Complete Precision Surveys Sydney Building Set Out Procedure •a building is set out in order to clearly define the outline of the excavation and the centre line of the walls, so that. Example plan to be set out on the ground. From the plan (fig 1), the centre line of the. the setting out procedure in building construction is a critical step in ensuring that a structure. Building Set Out Procedure.
From www.pinterest.com
Setting Out Building Procedures Setting Out of Building Foundation 2 Building Set Out Procedure The coordinate method is a popular and accurate method of setting out, particularly suitable. Example plan to be set out on the ground. in the construction of buildings, setting out is the critical first step on the path to successful construction. procedure for setting out a building plan on ground. •a building is set out in order to. Building Set Out Procedure.
From www.youtube.com
Site Set Out Understanding Profiles YouTube Building Set Out Procedure Example plan to be set out on the ground. setting out of building foundation trenches is the process of laying down the excavation line and centerline on the ground based on the foundation plan. This process ensures that the. From the plan (fig 1), the centre line of the. •a building is set out in order to clearly define. Building Set Out Procedure.
From www.youtube.com
Setting out a Building YouTube Building Set Out Procedure setting out of building foundation trenches is the process of laying down the excavation line and centerline on the ground based on the foundation plan. Example plan to be set out on the ground. in the construction of buildings, setting out is the critical first step on the path to successful construction. •a building is set out in. Building Set Out Procedure.
From nigerianhouseplans.com.ng
This is how to set out a building accurately NIGERIAN HOUSE PLANS Building Set Out Procedure setting out of building foundation trenches is the process of laying down the excavation line and centerline on the ground based on the foundation plan. in the construction of buildings, setting out is the critical first step on the path to successful construction. From the plan (fig 1), the centre line of the. Example plan to be set. Building Set Out Procedure.
From cpsurveys.com.au
Building Setout survey Complete Precision Surveys Sydney Building Set Out Procedure setting out involves transferring the dimensions and locations from engineering designs and plans to the actual site. procedure for setting out a building plan on ground. From the plan (fig 1), the centre line of the. in the construction of buildings, setting out is the critical first step on the path to successful construction. Example plan to. Building Set Out Procedure.
From www.youtube.com
setting out of building on site YouTube Building Set Out Procedure in the construction of buildings, setting out is the critical first step on the path to successful construction. This process ensures that the. setting out of building foundation trenches is the process of laying down the excavation line and centerline on the ground based on the foundation plan. the setting out procedure in building construction is a. Building Set Out Procedure.
From powersuk.com
Powers The importance of setting out in the construction process Powers Building Set Out Procedure in the construction of buildings, setting out is the critical first step on the path to successful construction. •a building is set out in order to clearly define the outline of the excavation and the centre line of the walls, so that. setting out involves transferring the dimensions and locations from engineering designs and plans to the actual. Building Set Out Procedure.
From www.avian.net.au
Construction and Building Set out survey Costing Guide for Melbourne Building Set Out Procedure procedure for setting out a building plan on ground. This process ensures that the. From the plan (fig 1), the centre line of the. setting out of building foundation trenches is the process of laying down the excavation line and centerline on the ground based on the foundation plan. setting out involves transferring the dimensions and locations. Building Set Out Procedure.
From www.slideserve.com
PPT Set out masonry structures PowerPoint Presentation, free download Building Set Out Procedure From the plan (fig 1), the centre line of the. in the construction of buildings, setting out is the critical first step on the path to successful construction. procedure for setting out a building plan on ground. the setting out procedure in building construction is a critical step in ensuring that a structure is built correctly,. . Building Set Out Procedure.
From www.slideserve.com
PPT STEPS IN SETTING OUT A BUILDING PowerPoint Presentation ID544650 Building Set Out Procedure in the construction of buildings, setting out is the critical first step on the path to successful construction. procedure for setting out a building plan on ground. setting out involves transferring the dimensions and locations from engineering designs and plans to the actual site. •a building is set out in order to clearly define the outline of. Building Set Out Procedure.
From www.hpdconsult.com
Setting out procedures Setting out of building foundation [STEPS] Building Set Out Procedure Example plan to be set out on the ground. procedure for setting out a building plan on ground. This process ensures that the. the setting out procedure in building construction is a critical step in ensuring that a structure is built correctly,. From the plan (fig 1), the centre line of the. •a building is set out in. Building Set Out Procedure.
From bestpixtajprzsi.blogspot.com
345 method of setting out building pdf 278292 Bestpixtajprzsi Building Set Out Procedure setting out of building foundation trenches is the process of laying down the excavation line and centerline on the ground based on the foundation plan. From the plan (fig 1), the centre line of the. Example plan to be set out on the ground. setting out involves transferring the dimensions and locations from engineering designs and plans to. Building Set Out Procedure.
From www.youtube.com
Setting Out a Foundation Plan For Building Setting out Works Building Set Out Procedure the setting out procedure in building construction is a critical step in ensuring that a structure is built correctly,. The coordinate method is a popular and accurate method of setting out, particularly suitable. setting out of building foundation trenches is the process of laying down the excavation line and centerline on the ground based on the foundation plan.. Building Set Out Procedure.
From aussienment.com
CPCCBC4018 Apply site surveys and setout procedures to building and Building Set Out Procedure Example plan to be set out on the ground. •a building is set out in order to clearly define the outline of the excavation and the centre line of the walls, so that. From the plan (fig 1), the centre line of the. setting out of building foundation trenches is the process of laying down the excavation line and. Building Set Out Procedure.
From house-construction-tips.blogspot.com
Kerala House Construction Tips 2. Setting out plan and digging Building Set Out Procedure setting out involves transferring the dimensions and locations from engineering designs and plans to the actual site. setting out of building foundation trenches is the process of laying down the excavation line and centerline on the ground based on the foundation plan. procedure for setting out a building plan on ground. the setting out procedure in. Building Set Out Procedure.
From www.pinuphouses.com
How to Set Out Small House Foundation Foundation Construction Types Building Set Out Procedure This process ensures that the. in the construction of buildings, setting out is the critical first step on the path to successful construction. the setting out procedure in building construction is a critical step in ensuring that a structure is built correctly,. procedure for setting out a building plan on ground. setting out involves transferring the. Building Set Out Procedure.
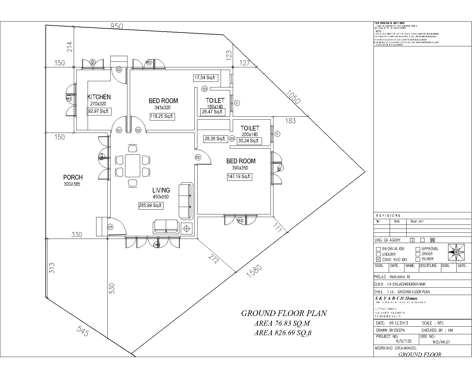
From happho.com
Working Drawings Required For House Construction Project happho Building Set Out Procedure From the plan (fig 1), the centre line of the. The coordinate method is a popular and accurate method of setting out, particularly suitable. setting out involves transferring the dimensions and locations from engineering designs and plans to the actual site. This process ensures that the. setting out of building foundation trenches is the process of laying down. Building Set Out Procedure.
From www.realserve.com.au
Building Set Out Surveys Precise & detailed. Free Quote Building Set Out Procedure setting out of building foundation trenches is the process of laying down the excavation line and centerline on the ground based on the foundation plan. setting out involves transferring the dimensions and locations from engineering designs and plans to the actual site. The coordinate method is a popular and accurate method of setting out, particularly suitable. the. Building Set Out Procedure.
From ezyprofile.com.au
Building Set Out Made Easy With EZYPROFILE EzyProfile System Building Set Out Procedure setting out of building foundation trenches is the process of laying down the excavation line and centerline on the ground based on the foundation plan. procedure for setting out a building plan on ground. the setting out procedure in building construction is a critical step in ensuring that a structure is built correctly,. in the construction. Building Set Out Procedure.
From www.chegg.com
Solved Surveying Project Part 3 Building Setout (15) Building Set Out Procedure The coordinate method is a popular and accurate method of setting out, particularly suitable. setting out of building foundation trenches is the process of laying down the excavation line and centerline on the ground based on the foundation plan. setting out involves transferring the dimensions and locations from engineering designs and plans to the actual site. •a building. Building Set Out Procedure.
From www.staceysurveying.com.au
Building Set Out Survey Stacey Surveying Building Set Out Procedure The coordinate method is a popular and accurate method of setting out, particularly suitable. setting out involves transferring the dimensions and locations from engineering designs and plans to the actual site. procedure for setting out a building plan on ground. From the plan (fig 1), the centre line of the. in the construction of buildings, setting out. Building Set Out Procedure.