Jack Lamberson House Oskaloosa Iowa . 511 north park ave, oskaloosa, ia 52577 get directions; The jack lamberson house is located in oskaloosa, iowa, a few blocks away from the alsop home. See jack lamberson house by frank lloyd wright in oskaloosa, ia, as it appears on google maps and bing maps as well as other celebrity homes on virtualglobetrotting.com. Some of the usonian houses that wright designed in iowa include the paul and ida trier house in johnston, the jack lamberson house in oskaloosa, and the lowell and agnes walter house in quasqueton. Even more than the nearby alsop house, the lamberson dwelling mirrors the horizontality of the prairie and its hilltop location. It was also completed in 1951.
from www.artsy.net
Even more than the nearby alsop house, the lamberson dwelling mirrors the horizontality of the prairie and its hilltop location. It was also completed in 1951. The jack lamberson house is located in oskaloosa, iowa, a few blocks away from the alsop home. 511 north park ave, oskaloosa, ia 52577 get directions; Some of the usonian houses that wright designed in iowa include the paul and ida trier house in johnston, the jack lamberson house in oskaloosa, and the lowell and agnes walter house in quasqueton. See jack lamberson house by frank lloyd wright in oskaloosa, ia, as it appears on google maps and bing maps as well as other celebrity homes on virtualglobetrotting.com.
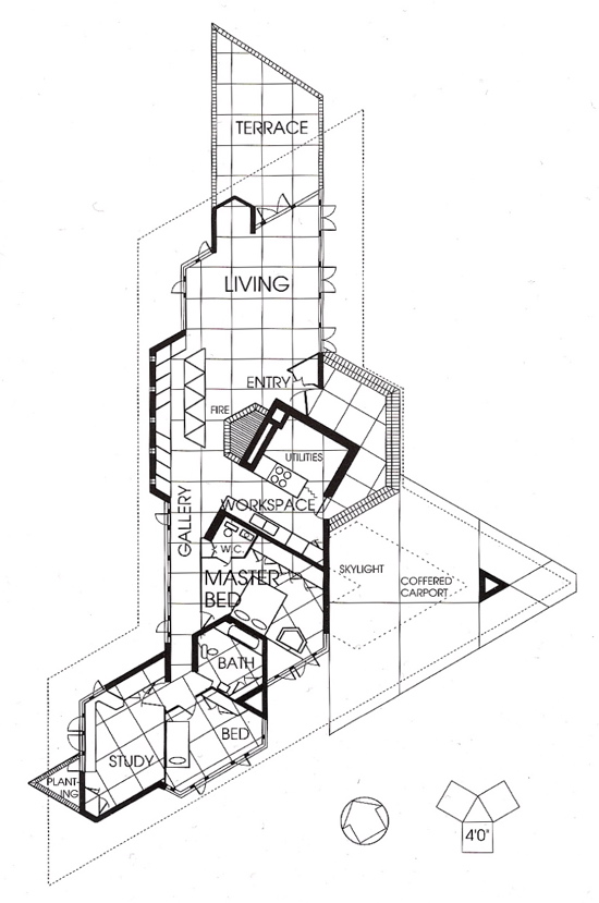
Frank Lloyd Wright Blueprints for the Jack Lamberson House, Oskaloosa
Jack Lamberson House Oskaloosa Iowa See jack lamberson house by frank lloyd wright in oskaloosa, ia, as it appears on google maps and bing maps as well as other celebrity homes on virtualglobetrotting.com. See jack lamberson house by frank lloyd wright in oskaloosa, ia, as it appears on google maps and bing maps as well as other celebrity homes on virtualglobetrotting.com. Some of the usonian houses that wright designed in iowa include the paul and ida trier house in johnston, the jack lamberson house in oskaloosa, and the lowell and agnes walter house in quasqueton. Even more than the nearby alsop house, the lamberson dwelling mirrors the horizontality of the prairie and its hilltop location. 511 north park ave, oskaloosa, ia 52577 get directions; The jack lamberson house is located in oskaloosa, iowa, a few blocks away from the alsop home. It was also completed in 1951.
From www.savewright.org
Wright Chat View topic Lamberson House Restoration Jack Lamberson House Oskaloosa Iowa See jack lamberson house by frank lloyd wright in oskaloosa, ia, as it appears on google maps and bing maps as well as other celebrity homes on virtualglobetrotting.com. 511 north park ave, oskaloosa, ia 52577 get directions; Even more than the nearby alsop house, the lamberson dwelling mirrors the horizontality of the prairie and its hilltop location. It was also. Jack Lamberson House Oskaloosa Iowa.
From www.artsy.net
Frank Lloyd Wright Blueprints for the Jack Lamberson House, Oskaloosa Jack Lamberson House Oskaloosa Iowa 511 north park ave, oskaloosa, ia 52577 get directions; The jack lamberson house is located in oskaloosa, iowa, a few blocks away from the alsop home. Even more than the nearby alsop house, the lamberson dwelling mirrors the horizontality of the prairie and its hilltop location. It was also completed in 1951. See jack lamberson house by frank lloyd wright. Jack Lamberson House Oskaloosa Iowa.
From wrightchat.savewright.org
Lamberson House Restoration Page 37 Wright Chat Jack Lamberson House Oskaloosa Iowa Even more than the nearby alsop house, the lamberson dwelling mirrors the horizontality of the prairie and its hilltop location. The jack lamberson house is located in oskaloosa, iowa, a few blocks away from the alsop home. Some of the usonian houses that wright designed in iowa include the paul and ida trier house in johnston, the jack lamberson house. Jack Lamberson House Oskaloosa Iowa.
From wrightchat.savewright.org
Lamberson House Restoration Page 42 Wright Chat Jack Lamberson House Oskaloosa Iowa Even more than the nearby alsop house, the lamberson dwelling mirrors the horizontality of the prairie and its hilltop location. 511 north park ave, oskaloosa, ia 52577 get directions; Some of the usonian houses that wright designed in iowa include the paul and ida trier house in johnston, the jack lamberson house in oskaloosa, and the lowell and agnes walter. Jack Lamberson House Oskaloosa Iowa.
From wrightchat.savewright.org
Lamberson House Restoration Page 27 Wright Chat Jack Lamberson House Oskaloosa Iowa 511 north park ave, oskaloosa, ia 52577 get directions; The jack lamberson house is located in oskaloosa, iowa, a few blocks away from the alsop home. See jack lamberson house by frank lloyd wright in oskaloosa, ia, as it appears on google maps and bing maps as well as other celebrity homes on virtualglobetrotting.com. It was also completed in 1951.. Jack Lamberson House Oskaloosa Iowa.
From www.artsy.net
Frank Lloyd Wright Blueprints for the Jack Lamberson House, Oskaloosa Jack Lamberson House Oskaloosa Iowa 511 north park ave, oskaloosa, ia 52577 get directions; See jack lamberson house by frank lloyd wright in oskaloosa, ia, as it appears on google maps and bing maps as well as other celebrity homes on virtualglobetrotting.com. Even more than the nearby alsop house, the lamberson dwelling mirrors the horizontality of the prairie and its hilltop location. The jack lamberson. Jack Lamberson House Oskaloosa Iowa.
From www.pinterest.com
Jack Lamberson House / Robert McCormick House. Oskaloosa, Iowa. 1948 Jack Lamberson House Oskaloosa Iowa See jack lamberson house by frank lloyd wright in oskaloosa, ia, as it appears on google maps and bing maps as well as other celebrity homes on virtualglobetrotting.com. It was also completed in 1951. The jack lamberson house is located in oskaloosa, iowa, a few blocks away from the alsop home. Even more than the nearby alsop house, the lamberson. Jack Lamberson House Oskaloosa Iowa.
From lucascountyan.blogspot.com
The Lucas Countyan Architectural eye candy Oskaloosa's McMullin House Jack Lamberson House Oskaloosa Iowa It was also completed in 1951. Some of the usonian houses that wright designed in iowa include the paul and ida trier house in johnston, the jack lamberson house in oskaloosa, and the lowell and agnes walter house in quasqueton. Even more than the nearby alsop house, the lamberson dwelling mirrors the horizontality of the prairie and its hilltop location.. Jack Lamberson House Oskaloosa Iowa.
From www.pinterest.com
Jack Lamberson House / Robert McCormick House. Oskaloosa, Iowa. 1948 Jack Lamberson House Oskaloosa Iowa Some of the usonian houses that wright designed in iowa include the paul and ida trier house in johnston, the jack lamberson house in oskaloosa, and the lowell and agnes walter house in quasqueton. Even more than the nearby alsop house, the lamberson dwelling mirrors the horizontality of the prairie and its hilltop location. It was also completed in 1951.. Jack Lamberson House Oskaloosa Iowa.
From www.mutualart.com
Frank LloydWright Blueprints for the Jack Lamberson House, Oskaloosa Jack Lamberson House Oskaloosa Iowa Some of the usonian houses that wright designed in iowa include the paul and ida trier house in johnston, the jack lamberson house in oskaloosa, and the lowell and agnes walter house in quasqueton. Even more than the nearby alsop house, the lamberson dwelling mirrors the horizontality of the prairie and its hilltop location. It was also completed in 1951.. Jack Lamberson House Oskaloosa Iowa.
From www.apizm.com
Gallery / Frank Lloyd Wright / Iowa — Andrew Pielage Photography Jack Lamberson House Oskaloosa Iowa The jack lamberson house is located in oskaloosa, iowa, a few blocks away from the alsop home. 511 north park ave, oskaloosa, ia 52577 get directions; Even more than the nearby alsop house, the lamberson dwelling mirrors the horizontality of the prairie and its hilltop location. Some of the usonian houses that wright designed in iowa include the paul and. Jack Lamberson House Oskaloosa Iowa.
From www.artsy.net
Frank Lloyd Wright Blueprints for the Jack Lamberson House, Oskaloosa Jack Lamberson House Oskaloosa Iowa Some of the usonian houses that wright designed in iowa include the paul and ida trier house in johnston, the jack lamberson house in oskaloosa, and the lowell and agnes walter house in quasqueton. The jack lamberson house is located in oskaloosa, iowa, a few blocks away from the alsop home. Even more than the nearby alsop house, the lamberson. Jack Lamberson House Oskaloosa Iowa.
From www.landwatch.com
Oskaloosa, Mahaska County, IA House for sale Property ID 416625414 Jack Lamberson House Oskaloosa Iowa Some of the usonian houses that wright designed in iowa include the paul and ida trier house in johnston, the jack lamberson house in oskaloosa, and the lowell and agnes walter house in quasqueton. The jack lamberson house is located in oskaloosa, iowa, a few blocks away from the alsop home. Even more than the nearby alsop house, the lamberson. Jack Lamberson House Oskaloosa Iowa.
From www.oskaloosaiowa.org
Oskaloosa, IA Official site Jack Lamberson House Oskaloosa Iowa Even more than the nearby alsop house, the lamberson dwelling mirrors the horizontality of the prairie and its hilltop location. See jack lamberson house by frank lloyd wright in oskaloosa, ia, as it appears on google maps and bing maps as well as other celebrity homes on virtualglobetrotting.com. 511 north park ave, oskaloosa, ia 52577 get directions; The jack lamberson. Jack Lamberson House Oskaloosa Iowa.
From www.pinterest.com
Carroll Alsop House Oskaloosa, Iowa Usonian style, House, Architecture Jack Lamberson House Oskaloosa Iowa Some of the usonian houses that wright designed in iowa include the paul and ida trier house in johnston, the jack lamberson house in oskaloosa, and the lowell and agnes walter house in quasqueton. The jack lamberson house is located in oskaloosa, iowa, a few blocks away from the alsop home. Even more than the nearby alsop house, the lamberson. Jack Lamberson House Oskaloosa Iowa.
From www.artsy.net
Frank Lloyd Wright Blueprints for the Jack Lamberson House, Oskaloosa Jack Lamberson House Oskaloosa Iowa The jack lamberson house is located in oskaloosa, iowa, a few blocks away from the alsop home. 511 north park ave, oskaloosa, ia 52577 get directions; It was also completed in 1951. Some of the usonian houses that wright designed in iowa include the paul and ida trier house in johnston, the jack lamberson house in oskaloosa, and the lowell. Jack Lamberson House Oskaloosa Iowa.
From www.oskaloosa.com
Oskaloosa's Historic Houses Jack Lamberson House Oskaloosa Iowa It was also completed in 1951. See jack lamberson house by frank lloyd wright in oskaloosa, ia, as it appears on google maps and bing maps as well as other celebrity homes on virtualglobetrotting.com. 511 north park ave, oskaloosa, ia 52577 get directions; Some of the usonian houses that wright designed in iowa include the paul and ida trier house. Jack Lamberson House Oskaloosa Iowa.
From wrightchat.savewright.org
Lamberson House Restoration Page 10 Wright Chat Jack Lamberson House Oskaloosa Iowa See jack lamberson house by frank lloyd wright in oskaloosa, ia, as it appears on google maps and bing maps as well as other celebrity homes on virtualglobetrotting.com. The jack lamberson house is located in oskaloosa, iowa, a few blocks away from the alsop home. Some of the usonian houses that wright designed in iowa include the paul and ida. Jack Lamberson House Oskaloosa Iowa.
From www.flickr.com
Lamberson House 20003_1 pmaunu Flickr Jack Lamberson House Oskaloosa Iowa See jack lamberson house by frank lloyd wright in oskaloosa, ia, as it appears on google maps and bing maps as well as other celebrity homes on virtualglobetrotting.com. The jack lamberson house is located in oskaloosa, iowa, a few blocks away from the alsop home. It was also completed in 1951. Even more than the nearby alsop house, the lamberson. Jack Lamberson House Oskaloosa Iowa.
From lifeat55mph.blogspot.com
Life at 55 mph Jack Lamberson House by Frank Lloyd Wright in Oskaloosa Jack Lamberson House Oskaloosa Iowa Some of the usonian houses that wright designed in iowa include the paul and ida trier house in johnston, the jack lamberson house in oskaloosa, and the lowell and agnes walter house in quasqueton. See jack lamberson house by frank lloyd wright in oskaloosa, ia, as it appears on google maps and bing maps as well as other celebrity homes. Jack Lamberson House Oskaloosa Iowa.
From wrightchat.savewright.org
How Frank Lloyd Wright helped Los Altos find its heart Wright Chat Jack Lamberson House Oskaloosa Iowa It was also completed in 1951. 511 north park ave, oskaloosa, ia 52577 get directions; Even more than the nearby alsop house, the lamberson dwelling mirrors the horizontality of the prairie and its hilltop location. See jack lamberson house by frank lloyd wright in oskaloosa, ia, as it appears on google maps and bing maps as well as other celebrity. Jack Lamberson House Oskaloosa Iowa.
From wrightchat.savewright.org
Lamberson House Restoration Page 10 Wright Chat Jack Lamberson House Oskaloosa Iowa 511 north park ave, oskaloosa, ia 52577 get directions; Some of the usonian houses that wright designed in iowa include the paul and ida trier house in johnston, the jack lamberson house in oskaloosa, and the lowell and agnes walter house in quasqueton. See jack lamberson house by frank lloyd wright in oskaloosa, ia, as it appears on google maps. Jack Lamberson House Oskaloosa Iowa.
From maps.roadtrippers.com
Jack Lamberson House, Oskaloosa Roadtrippers Jack Lamberson House Oskaloosa Iowa Even more than the nearby alsop house, the lamberson dwelling mirrors the horizontality of the prairie and its hilltop location. Some of the usonian houses that wright designed in iowa include the paul and ida trier house in johnston, the jack lamberson house in oskaloosa, and the lowell and agnes walter house in quasqueton. The jack lamberson house is located. Jack Lamberson House Oskaloosa Iowa.
From wrightchat.savewright.org
Lamberson House Restoration Page 5 Wright Chat Jack Lamberson House Oskaloosa Iowa See jack lamberson house by frank lloyd wright in oskaloosa, ia, as it appears on google maps and bing maps as well as other celebrity homes on virtualglobetrotting.com. 511 north park ave, oskaloosa, ia 52577 get directions; The jack lamberson house is located in oskaloosa, iowa, a few blocks away from the alsop home. It was also completed in 1951.. Jack Lamberson House Oskaloosa Iowa.
From www.apizm.com
Gallery / Frank Lloyd Wright / Iowa — Andrew Pielage Photography Jack Lamberson House Oskaloosa Iowa Some of the usonian houses that wright designed in iowa include the paul and ida trier house in johnston, the jack lamberson house in oskaloosa, and the lowell and agnes walter house in quasqueton. 511 north park ave, oskaloosa, ia 52577 get directions; Even more than the nearby alsop house, the lamberson dwelling mirrors the horizontality of the prairie and. Jack Lamberson House Oskaloosa Iowa.
From www.youtube.com
Frank Lloyd Wright's Lamberson House YouTube Jack Lamberson House Oskaloosa Iowa Some of the usonian houses that wright designed in iowa include the paul and ida trier house in johnston, the jack lamberson house in oskaloosa, and the lowell and agnes walter house in quasqueton. The jack lamberson house is located in oskaloosa, iowa, a few blocks away from the alsop home. Even more than the nearby alsop house, the lamberson. Jack Lamberson House Oskaloosa Iowa.
From www.iowaarchfoundation.org
2018 Events MidCentury Modern Home Tour in Oskaloosa & Lecture Jack Lamberson House Oskaloosa Iowa It was also completed in 1951. See jack lamberson house by frank lloyd wright in oskaloosa, ia, as it appears on google maps and bing maps as well as other celebrity homes on virtualglobetrotting.com. Even more than the nearby alsop house, the lamberson dwelling mirrors the horizontality of the prairie and its hilltop location. Some of the usonian houses that. Jack Lamberson House Oskaloosa Iowa.
From www.artsy.net
Frank Lloyd Wright Blueprints for the Jack Lamberson House, Oskaloosa Jack Lamberson House Oskaloosa Iowa 511 north park ave, oskaloosa, ia 52577 get directions; See jack lamberson house by frank lloyd wright in oskaloosa, ia, as it appears on google maps and bing maps as well as other celebrity homes on virtualglobetrotting.com. It was also completed in 1951. The jack lamberson house is located in oskaloosa, iowa, a few blocks away from the alsop home.. Jack Lamberson House Oskaloosa Iowa.
From www.artsy.net
Frank Lloyd Wright Blueprints for the Jack Lamberson House, Oskaloosa Jack Lamberson House Oskaloosa Iowa Some of the usonian houses that wright designed in iowa include the paul and ida trier house in johnston, the jack lamberson house in oskaloosa, and the lowell and agnes walter house in quasqueton. Even more than the nearby alsop house, the lamberson dwelling mirrors the horizontality of the prairie and its hilltop location. 511 north park ave, oskaloosa, ia. Jack Lamberson House Oskaloosa Iowa.
From www.savewright.org
Wright Chat View topic Lamberson House Restoration Jack Lamberson House Oskaloosa Iowa Even more than the nearby alsop house, the lamberson dwelling mirrors the horizontality of the prairie and its hilltop location. The jack lamberson house is located in oskaloosa, iowa, a few blocks away from the alsop home. 511 north park ave, oskaloosa, ia 52577 get directions; See jack lamberson house by frank lloyd wright in oskaloosa, ia, as it appears. Jack Lamberson House Oskaloosa Iowa.
From wrightchat.savewright.org
Lamberson House Restoration Page 27 Wright Chat Jack Lamberson House Oskaloosa Iowa It was also completed in 1951. See jack lamberson house by frank lloyd wright in oskaloosa, ia, as it appears on google maps and bing maps as well as other celebrity homes on virtualglobetrotting.com. The jack lamberson house is located in oskaloosa, iowa, a few blocks away from the alsop home. 511 north park ave, oskaloosa, ia 52577 get directions;. Jack Lamberson House Oskaloosa Iowa.
From virtualglobetrotting.com
Phil Hoffman House in Oskaloosa, IA (Google Maps) Jack Lamberson House Oskaloosa Iowa Even more than the nearby alsop house, the lamberson dwelling mirrors the horizontality of the prairie and its hilltop location. 511 north park ave, oskaloosa, ia 52577 get directions; The jack lamberson house is located in oskaloosa, iowa, a few blocks away from the alsop home. Some of the usonian houses that wright designed in iowa include the paul and. Jack Lamberson House Oskaloosa Iowa.
From wrightchat.savewright.org
Lamberson House Restoration Page 27 Wright Chat Jack Lamberson House Oskaloosa Iowa Some of the usonian houses that wright designed in iowa include the paul and ida trier house in johnston, the jack lamberson house in oskaloosa, and the lowell and agnes walter house in quasqueton. 511 north park ave, oskaloosa, ia 52577 get directions; Even more than the nearby alsop house, the lamberson dwelling mirrors the horizontality of the prairie and. Jack Lamberson House Oskaloosa Iowa.
From www.pinterest.com
Jack Lamberson House / Robert McCormick House. Oskaloosa, Iowa. 1948 Jack Lamberson House Oskaloosa Iowa The jack lamberson house is located in oskaloosa, iowa, a few blocks away from the alsop home. Some of the usonian houses that wright designed in iowa include the paul and ida trier house in johnston, the jack lamberson house in oskaloosa, and the lowell and agnes walter house in quasqueton. 511 north park ave, oskaloosa, ia 52577 get directions;. Jack Lamberson House Oskaloosa Iowa.
From sah-archipedia.org
Lamberson House SAH ARCHIPEDIA Jack Lamberson House Oskaloosa Iowa Even more than the nearby alsop house, the lamberson dwelling mirrors the horizontality of the prairie and its hilltop location. Some of the usonian houses that wright designed in iowa include the paul and ida trier house in johnston, the jack lamberson house in oskaloosa, and the lowell and agnes walter house in quasqueton. The jack lamberson house is located. Jack Lamberson House Oskaloosa Iowa.