Range Vs Wall Oven . When embarking on a kitchen remodel or designing a new home, one of the critical decisions you’ll face is choosing. Learn the pros and cons of each. The main difference between a range and a wall oven is the way they’re installed. Consumer reports weighs in on the important kitchen question: Compare space, functionality, cooking habits,. If you have a small kitchen and you’re looking for an oven that is easy to use and won’t take up a lot of space, a wall oven is a. A range is a single unit that includes both a. Whether you choose a wall oven or a range, both options offer unique advantages to enhance your cooking experience. Cooktop and wall oven vs. Learn how to choose between a range or a cooktop and wall oven in your kitchen remodel. 100k+ visitors in the past month Each option boasts its own set of merits and drawbacks, and the final choice often hinges on personal preferences, culinary habits, and budget constraints. When designing or renovating a kitchen, one of the most pivotal decisions is the “wall oven vs range” dilemma. 100k+ visitors in the past month
from www.roszellsfurnishings.com
100k+ visitors in the past month Compare space, functionality, cooking habits,. If you have a small kitchen and you’re looking for an oven that is easy to use and won’t take up a lot of space, a wall oven is a. The main difference between a range and a wall oven is the way they’re installed. Learn the pros and cons of each. 100k+ visitors in the past month When embarking on a kitchen remodel or designing a new home, one of the critical decisions you’ll face is choosing. Each option boasts its own set of merits and drawbacks, and the final choice often hinges on personal preferences, culinary habits, and budget constraints. A range is a single unit that includes both a. Whether you choose a wall oven or a range, both options offer unique advantages to enhance your cooking experience.
Choosing Between a Wall Oven and a Conventional Range Roszell's
Range Vs Wall Oven Cooktop and wall oven vs. Cooktop and wall oven vs. If you have a small kitchen and you’re looking for an oven that is easy to use and won’t take up a lot of space, a wall oven is a. Each option boasts its own set of merits and drawbacks, and the final choice often hinges on personal preferences, culinary habits, and budget constraints. 100k+ visitors in the past month 100k+ visitors in the past month When embarking on a kitchen remodel or designing a new home, one of the critical decisions you’ll face is choosing. Consumer reports weighs in on the important kitchen question: Compare space, functionality, cooking habits,. Learn the pros and cons of each. A range is a single unit that includes both a. Learn how to choose between a range or a cooktop and wall oven in your kitchen remodel. When designing or renovating a kitchen, one of the most pivotal decisions is the “wall oven vs range” dilemma. Whether you choose a wall oven or a range, both options offer unique advantages to enhance your cooking experience. The main difference between a range and a wall oven is the way they’re installed.
From modernize.com
StandAlone Vs. Wall Ovens Modernize Range Vs Wall Oven When designing or renovating a kitchen, one of the most pivotal decisions is the “wall oven vs range” dilemma. Whether you choose a wall oven or a range, both options offer unique advantages to enhance your cooking experience. The main difference between a range and a wall oven is the way they’re installed. If you have a small kitchen and. Range Vs Wall Oven.
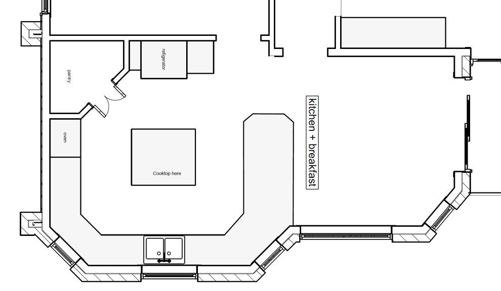
From www.spicybuffalo.com
Comparing a Double Gas Wall Oven vs a Single Oven Freestanding Range Range Vs Wall Oven Whether you choose a wall oven or a range, both options offer unique advantages to enhance your cooking experience. Cooktop and wall oven vs. If you have a small kitchen and you’re looking for an oven that is easy to use and won’t take up a lot of space, a wall oven is a. The main difference between a range. Range Vs Wall Oven.
From storables.com
10 Best Wall Ovens With Range for 2024 Storables Range Vs Wall Oven If you have a small kitchen and you’re looking for an oven that is easy to use and won’t take up a lot of space, a wall oven is a. When designing or renovating a kitchen, one of the most pivotal decisions is the “wall oven vs range” dilemma. 100k+ visitors in the past month The main difference between a. Range Vs Wall Oven.
From www.pinterest.com
36" KitchenAid pro grade gas range vs wall oven/convection unit for Range Vs Wall Oven 100k+ visitors in the past month The main difference between a range and a wall oven is the way they’re installed. A range is a single unit that includes both a. Whether you choose a wall oven or a range, both options offer unique advantages to enhance your cooking experience. When designing or renovating a kitchen, one of the most. Range Vs Wall Oven.
From www.spicybuffalo.com
Comparing a Double Oven Electric Wall Oven vs a Single Oven Electric Range Vs Wall Oven Cooktop and wall oven vs. 100k+ visitors in the past month 100k+ visitors in the past month Compare space, functionality, cooking habits,. When embarking on a kitchen remodel or designing a new home, one of the critical decisions you’ll face is choosing. Learn how to choose between a range or a cooktop and wall oven in your kitchen remodel. If. Range Vs Wall Oven.
From kitchenmore.com
How to Choose Between a Range or a Cooktop and Wall Oven in the Kitchen Range Vs Wall Oven Cooktop and wall oven vs. 100k+ visitors in the past month Learn how to choose between a range or a cooktop and wall oven in your kitchen remodel. Compare space, functionality, cooking habits,. If you have a small kitchen and you’re looking for an oven that is easy to use and won’t take up a lot of space, a wall. Range Vs Wall Oven.
From www.designerappliances.com
SlideIn vs Freestanding Range Which Stove is Best For Your Kitchen Range Vs Wall Oven A range is a single unit that includes both a. Compare space, functionality, cooking habits,. Cooktop and wall oven vs. When embarking on a kitchen remodel or designing a new home, one of the critical decisions you’ll face is choosing. 100k+ visitors in the past month Learn how to choose between a range or a cooktop and wall oven in. Range Vs Wall Oven.
From www.kitchenaid.com
Range vs. Stove vs. Oven Is There Really a Difference? KitchenAid Range Vs Wall Oven The main difference between a range and a wall oven is the way they’re installed. Whether you choose a wall oven or a range, both options offer unique advantages to enhance your cooking experience. Learn the pros and cons of each. Learn how to choose between a range or a cooktop and wall oven in your kitchen remodel. Compare space,. Range Vs Wall Oven.
From homeguide.com
How Much Does a Stove or Oven Cost? (2023) HomeGuide Range Vs Wall Oven Consumer reports weighs in on the important kitchen question: If you have a small kitchen and you’re looking for an oven that is easy to use and won’t take up a lot of space, a wall oven is a. 100k+ visitors in the past month Each option boasts its own set of merits and drawbacks, and the final choice often. Range Vs Wall Oven.
From www.kitchenaid.com
Range vs. Stove vs. Oven Is There Really a Difference? KitchenAid Range Vs Wall Oven Learn how to choose between a range or a cooktop and wall oven in your kitchen remodel. 100k+ visitors in the past month When designing or renovating a kitchen, one of the most pivotal decisions is the “wall oven vs range” dilemma. Whether you choose a wall oven or a range, both options offer unique advantages to enhance your cooking. Range Vs Wall Oven.
From www.whirlpool.com
Range vs. Stove vs. Oven What’s the Difference? Whirlpool Range Vs Wall Oven When designing or renovating a kitchen, one of the most pivotal decisions is the “wall oven vs range” dilemma. Learn the pros and cons of each. Whether you choose a wall oven or a range, both options offer unique advantages to enhance your cooking experience. When embarking on a kitchen remodel or designing a new home, one of the critical. Range Vs Wall Oven.
From www.allinfohome.com
77+ Enchanting wall oven vs range kitchen design Top Choices Of Architects Range Vs Wall Oven Learn the pros and cons of each. Cooktop and wall oven vs. When embarking on a kitchen remodel or designing a new home, one of the critical decisions you’ll face is choosing. The main difference between a range and a wall oven is the way they’re installed. When designing or renovating a kitchen, one of the most pivotal decisions is. Range Vs Wall Oven.
From kitchenasking.com
What is the Definition of Kitchen Range A Complete Guide Range Vs Wall Oven When embarking on a kitchen remodel or designing a new home, one of the critical decisions you’ll face is choosing. 100k+ visitors in the past month Learn how to choose between a range or a cooktop and wall oven in your kitchen remodel. Each option boasts its own set of merits and drawbacks, and the final choice often hinges on. Range Vs Wall Oven.
From www.kitchenaid.com
Range vs. Stove vs. Oven Is There Really a Difference? KitchenAid Range Vs Wall Oven 100k+ visitors in the past month When embarking on a kitchen remodel or designing a new home, one of the critical decisions you’ll face is choosing. A range is a single unit that includes both a. The main difference between a range and a wall oven is the way they’re installed. Whether you choose a wall oven or a range,. Range Vs Wall Oven.
From www.pinterest.com
BlueStar or American Range gas wall ovens which is better? They are Range Vs Wall Oven Each option boasts its own set of merits and drawbacks, and the final choice often hinges on personal preferences, culinary habits, and budget constraints. Whether you choose a wall oven or a range, both options offer unique advantages to enhance your cooking experience. Cooktop and wall oven vs. When embarking on a kitchen remodel or designing a new home, one. Range Vs Wall Oven.
From www.spicybuffalo.com
Comparing a Double Wall Oven vs a Single Oven Gas Range Spicy Buffalo Range Vs Wall Oven The main difference between a range and a wall oven is the way they’re installed. If you have a small kitchen and you’re looking for an oven that is easy to use and won’t take up a lot of space, a wall oven is a. 100k+ visitors in the past month Learn how to choose between a range or a. Range Vs Wall Oven.
From www.townappliance.com
Ranges vs. Wall Ovens Town Appliance Range Vs Wall Oven A range is a single unit that includes both a. When embarking on a kitchen remodel or designing a new home, one of the critical decisions you’ll face is choosing. If you have a small kitchen and you’re looking for an oven that is easy to use and won’t take up a lot of space, a wall oven is a.. Range Vs Wall Oven.
From industrystandarddesign.com
Wall Ovens vs. Range Ovens Which Suits Your Cooking Style? Range Vs Wall Oven A range is a single unit that includes both a. When designing or renovating a kitchen, one of the most pivotal decisions is the “wall oven vs range” dilemma. Learn how to choose between a range or a cooktop and wall oven in your kitchen remodel. Each option boasts its own set of merits and drawbacks, and the final choice. Range Vs Wall Oven.
From www.pinterest.com
SlideIn vs Freestanding Range Which Stove is Best For Your Kitchen Range Vs Wall Oven Each option boasts its own set of merits and drawbacks, and the final choice often hinges on personal preferences, culinary habits, and budget constraints. Learn the pros and cons of each. Learn how to choose between a range or a cooktop and wall oven in your kitchen remodel. If you have a small kitchen and you’re looking for an oven. Range Vs Wall Oven.
From www.youtube.com
Choosing Between Wall Ovens and Cooktops vs. Ranges What You Need to Range Vs Wall Oven Whether you choose a wall oven or a range, both options offer unique advantages to enhance your cooking experience. When embarking on a kitchen remodel or designing a new home, one of the critical decisions you’ll face is choosing. If you have a small kitchen and you’re looking for an oven that is easy to use and won’t take up. Range Vs Wall Oven.
From www.donsappliances.com
Wall Oven vs. Freestanding Range Which is Right for You? Don's Range Vs Wall Oven Consumer reports weighs in on the important kitchen question: 100k+ visitors in the past month 100k+ visitors in the past month Learn the pros and cons of each. Cooktop and wall oven vs. Each option boasts its own set of merits and drawbacks, and the final choice often hinges on personal preferences, culinary habits, and budget constraints. If you have. Range Vs Wall Oven.
From www.roszellsfurnishings.com
Choosing Between a Wall Oven and a Conventional Range Roszell's Range Vs Wall Oven Learn the pros and cons of each. When embarking on a kitchen remodel or designing a new home, one of the critical decisions you’ll face is choosing. Learn how to choose between a range or a cooktop and wall oven in your kitchen remodel. If you have a small kitchen and you’re looking for an oven that is easy to. Range Vs Wall Oven.
From www.kitchenaid.com
Range vs Stove vs Oven Is There Really a Difference? KitchenAid Range Vs Wall Oven When designing or renovating a kitchen, one of the most pivotal decisions is the “wall oven vs range” dilemma. The main difference between a range and a wall oven is the way they’re installed. Cooktop and wall oven vs. Consumer reports weighs in on the important kitchen question: Learn how to choose between a range or a cooktop and wall. Range Vs Wall Oven.
From www.allinfohome.com
77+ Enchanting wall oven vs range kitchen design Top Choices Of Architects Range Vs Wall Oven Compare space, functionality, cooking habits,. A range is a single unit that includes both a. Each option boasts its own set of merits and drawbacks, and the final choice often hinges on personal preferences, culinary habits, and budget constraints. The main difference between a range and a wall oven is the way they’re installed. 100k+ visitors in the past month. Range Vs Wall Oven.
From www.abt.com
Wall Oven vs. Range Abt Range Vs Wall Oven If you have a small kitchen and you’re looking for an oven that is easy to use and won’t take up a lot of space, a wall oven is a. Whether you choose a wall oven or a range, both options offer unique advantages to enhance your cooking experience. 100k+ visitors in the past month Compare space, functionality, cooking habits,.. Range Vs Wall Oven.
From www.toulmincabinetry.com
Is a Cooktop and Wall Oven or Range best for Your Kitchen Design Range Vs Wall Oven Consumer reports weighs in on the important kitchen question: Cooktop and wall oven vs. If you have a small kitchen and you’re looking for an oven that is easy to use and won’t take up a lot of space, a wall oven is a. A range is a single unit that includes both a. Whether you choose a wall oven. Range Vs Wall Oven.
From www.spicybuffalo.com
Comparing 27Inch Double Wall Ovens vs. Double Oven Ranges Spicy Buffalo Range Vs Wall Oven Consumer reports weighs in on the important kitchen question: 100k+ visitors in the past month The main difference between a range and a wall oven is the way they’re installed. A range is a single unit that includes both a. If you have a small kitchen and you’re looking for an oven that is easy to use and won’t take. Range Vs Wall Oven.
From www.whirlpool.com
Range vs. Stove vs. Oven What’s the Difference? Whirlpool Range Vs Wall Oven 100k+ visitors in the past month 100k+ visitors in the past month When designing or renovating a kitchen, one of the most pivotal decisions is the “wall oven vs range” dilemma. If you have a small kitchen and you’re looking for an oven that is easy to use and won’t take up a lot of space, a wall oven is. Range Vs Wall Oven.
From kitchinsider.com
BuiltIn Oven Sizes The Complete Guide Range Vs Wall Oven When embarking on a kitchen remodel or designing a new home, one of the critical decisions you’ll face is choosing. Each option boasts its own set of merits and drawbacks, and the final choice often hinges on personal preferences, culinary habits, and budget constraints. 100k+ visitors in the past month Cooktop and wall oven vs. If you have a small. Range Vs Wall Oven.
From www.wardells.ca
Choosing Between a Wall Oven and a Conventional Range Wardell's Range Vs Wall Oven Each option boasts its own set of merits and drawbacks, and the final choice often hinges on personal preferences, culinary habits, and budget constraints. Compare space, functionality, cooking habits,. The main difference between a range and a wall oven is the way they’re installed. Learn the pros and cons of each. When embarking on a kitchen remodel or designing a. Range Vs Wall Oven.
From www.kitchenaid.com
Range vs Stove vs Oven Is There Really a Difference? KitchenAid Range Vs Wall Oven If you have a small kitchen and you’re looking for an oven that is easy to use and won’t take up a lot of space, a wall oven is a. Whether you choose a wall oven or a range, both options offer unique advantages to enhance your cooking experience. 100k+ visitors in the past month Cooktop and wall oven vs.. Range Vs Wall Oven.
From www.remodeling.hw.net
Viking Range Introduces French (Door) Cuisine Remodeling wall oven Range Vs Wall Oven If you have a small kitchen and you’re looking for an oven that is easy to use and won’t take up a lot of space, a wall oven is a. When embarking on a kitchen remodel or designing a new home, one of the critical decisions you’ll face is choosing. The main difference between a range and a wall oven. Range Vs Wall Oven.
From www.friedmansideasandinnovations.com
Range vs. Cooktop & Wall Oven Combo Making the Right Choice for You Range Vs Wall Oven 100k+ visitors in the past month A range is a single unit that includes both a. Cooktop and wall oven vs. Compare space, functionality, cooking habits,. Whether you choose a wall oven or a range, both options offer unique advantages to enhance your cooking experience. The main difference between a range and a wall oven is the way they’re installed.. Range Vs Wall Oven.
From www.inductiveintelligence.com
Wall Oven vs Range Which is Right for You? Range Vs Wall Oven Compare space, functionality, cooking habits,. Whether you choose a wall oven or a range, both options offer unique advantages to enhance your cooking experience. 100k+ visitors in the past month When embarking on a kitchen remodel or designing a new home, one of the critical decisions you’ll face is choosing. The main difference between a range and a wall oven. Range Vs Wall Oven.
From www.houzz.com
Kitchen remodel range vs wall ovens, walkin vs wall pantry? Range Vs Wall Oven Learn the pros and cons of each. Cooktop and wall oven vs. When designing or renovating a kitchen, one of the most pivotal decisions is the “wall oven vs range” dilemma. 100k+ visitors in the past month Each option boasts its own set of merits and drawbacks, and the final choice often hinges on personal preferences, culinary habits, and budget. Range Vs Wall Oven.