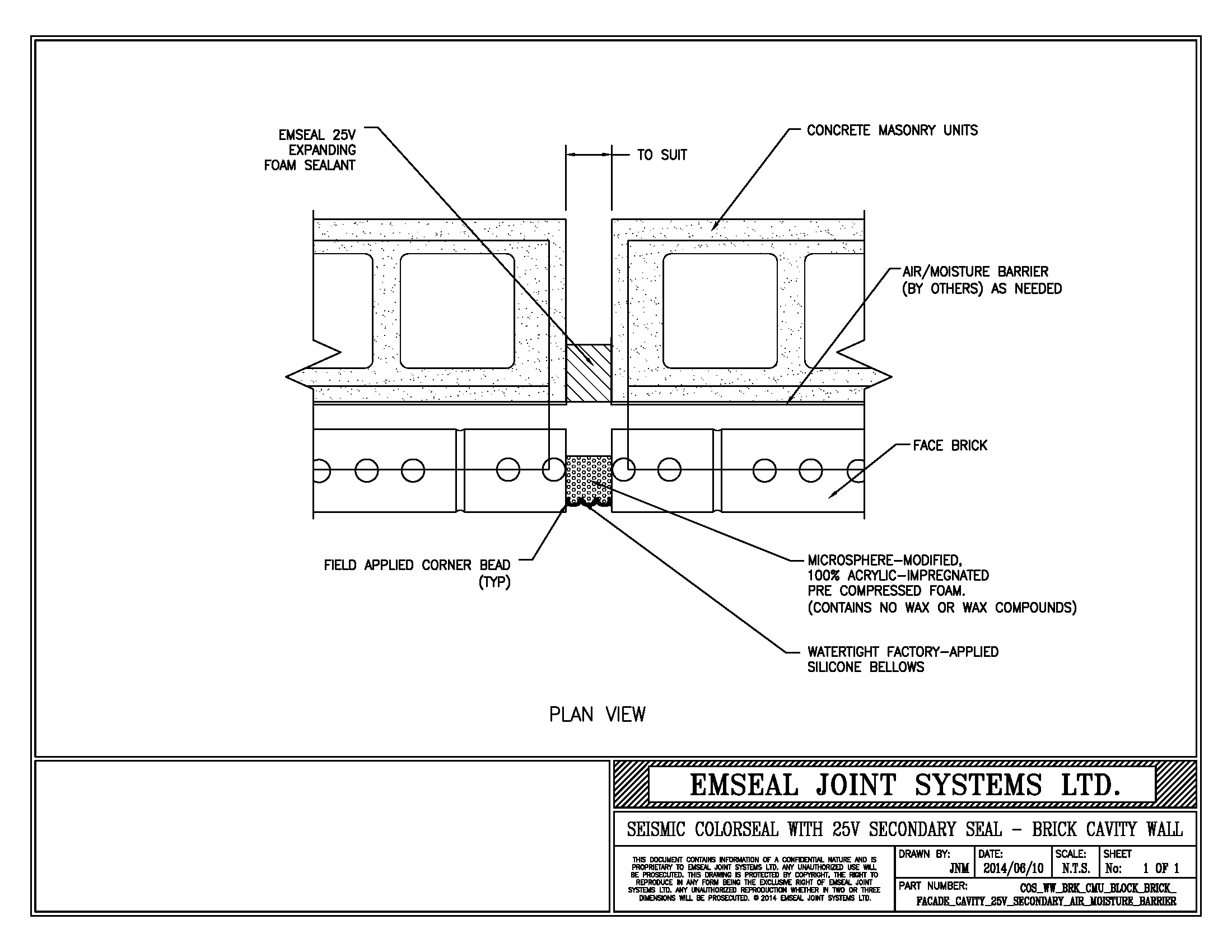
Block Wall Expansion Joint Detail . The gap is filled with a compressible filler and a weatherproof sealant is layered on top. Contraction joints are opening joints to cater for shrinkage of the. in theory, an expansion joint could be located at the corner, but this would affect the buttressing offered by the return wall. the following details cover a variety of these types of control joints. Expansion joints are used in brickwork to accommodate movement and to avoid cracking. a masonry expansion joint is a complete break in the masonry wall to allow for the entire structure to move under loading,. it is advisable to consider locating vertical expansion joints where there is a significant change in height within the building. — movement joints (sometimes referred to as expansion joints) are often introduced within the design and it consists of a gap which allows for expansion and contraction.
from www.emseal.com
it is advisable to consider locating vertical expansion joints where there is a significant change in height within the building. the following details cover a variety of these types of control joints. Expansion joints are used in brickwork to accommodate movement and to avoid cracking. in theory, an expansion joint could be located at the corner, but this would affect the buttressing offered by the return wall. The gap is filled with a compressible filler and a weatherproof sealant is layered on top. Contraction joints are opening joints to cater for shrinkage of the. — movement joints (sometimes referred to as expansion joints) are often introduced within the design and it consists of a gap which allows for expansion and contraction. a masonry expansion joint is a complete break in the masonry wall to allow for the entire structure to move under loading,.
Expansion Joint Details · BIM · CAD · DWG · DWF · EMSEAL
Block Wall Expansion Joint Detail — movement joints (sometimes referred to as expansion joints) are often introduced within the design and it consists of a gap which allows for expansion and contraction. the following details cover a variety of these types of control joints. it is advisable to consider locating vertical expansion joints where there is a significant change in height within the building. in theory, an expansion joint could be located at the corner, but this would affect the buttressing offered by the return wall. The gap is filled with a compressible filler and a weatherproof sealant is layered on top. Expansion joints are used in brickwork to accommodate movement and to avoid cracking. Contraction joints are opening joints to cater for shrinkage of the. a masonry expansion joint is a complete break in the masonry wall to allow for the entire structure to move under loading,. — movement joints (sometimes referred to as expansion joints) are often introduced within the design and it consists of a gap which allows for expansion and contraction.
From cadbull.com
Expansion joint detail of RET. wall in AutoCAD, dwg files. Cadbull Block Wall Expansion Joint Detail in theory, an expansion joint could be located at the corner, but this would affect the buttressing offered by the return wall. the following details cover a variety of these types of control joints. The gap is filled with a compressible filler and a weatherproof sealant is layered on top. — movement joints (sometimes referred to as. Block Wall Expansion Joint Detail.
From www.wonkeedonkeetools.co.uk
How to use wall ties on expansion joints? Wonkee Donkee Tools Block Wall Expansion Joint Detail The gap is filled with a compressible filler and a weatherproof sealant is layered on top. the following details cover a variety of these types of control joints. a masonry expansion joint is a complete break in the masonry wall to allow for the entire structure to move under loading,. — movement joints (sometimes referred to as. Block Wall Expansion Joint Detail.
From www.emseal.com
Expansion Joint Details · BIM · CAD · DWG · DWF · EMSEAL Block Wall Expansion Joint Detail in theory, an expansion joint could be located at the corner, but this would affect the buttressing offered by the return wall. it is advisable to consider locating vertical expansion joints where there is a significant change in height within the building. The gap is filled with a compressible filler and a weatherproof sealant is layered on top.. Block Wall Expansion Joint Detail.
From www.vrogue.co
Expansion Joints Details Autocad Drawing vrogue.co Block Wall Expansion Joint Detail Expansion joints are used in brickwork to accommodate movement and to avoid cracking. Contraction joints are opening joints to cater for shrinkage of the. a masonry expansion joint is a complete break in the masonry wall to allow for the entire structure to move under loading,. The gap is filled with a compressible filler and a weatherproof sealant is. Block Wall Expansion Joint Detail.
From www.pinterest.com
02.010.0311 Base of Wall Single Wythe Block, Split Base Course Block Wall Expansion Joint Detail — movement joints (sometimes referred to as expansion joints) are often introduced within the design and it consists of a gap which allows for expansion and contraction. Contraction joints are opening joints to cater for shrinkage of the. a masonry expansion joint is a complete break in the masonry wall to allow for the entire structure to move. Block Wall Expansion Joint Detail.
From www.emseal.com
Expansion Joint Details · BIM · CAD · DWG · DWF · EMSEAL Block Wall Expansion Joint Detail Contraction joints are opening joints to cater for shrinkage of the. The gap is filled with a compressible filler and a weatherproof sealant is layered on top. in theory, an expansion joint could be located at the corner, but this would affect the buttressing offered by the return wall. — movement joints (sometimes referred to as expansion joints). Block Wall Expansion Joint Detail.
From www.emseal.com
Expansion Joint Details · BIM · CAD · DWG · DWF · Sika Emseal Block Wall Expansion Joint Detail in theory, an expansion joint could be located at the corner, but this would affect the buttressing offered by the return wall. Expansion joints are used in brickwork to accommodate movement and to avoid cracking. a masonry expansion joint is a complete break in the masonry wall to allow for the entire structure to move under loading,. . Block Wall Expansion Joint Detail.
From www.emseal.com
Expansion Joint Details · BIM · CAD · DWG · DWF · Sika Emseal Block Wall Expansion Joint Detail The gap is filled with a compressible filler and a weatherproof sealant is layered on top. Expansion joints are used in brickwork to accommodate movement and to avoid cracking. it is advisable to consider locating vertical expansion joints where there is a significant change in height within the building. in theory, an expansion joint could be located at. Block Wall Expansion Joint Detail.
From dxoecbjre.blob.core.windows.net
Expansion Joint Concrete Pavement at Claude Bunch blog Block Wall Expansion Joint Detail Contraction joints are opening joints to cater for shrinkage of the. it is advisable to consider locating vertical expansion joints where there is a significant change in height within the building. in theory, an expansion joint could be located at the corner, but this would affect the buttressing offered by the return wall. Expansion joints are used in. Block Wall Expansion Joint Detail.
From dxorazqid.blob.core.windows.net
Concrete Wall Expansion Joint Detail at Dorothy Sanders blog Block Wall Expansion Joint Detail it is advisable to consider locating vertical expansion joints where there is a significant change in height within the building. Contraction joints are opening joints to cater for shrinkage of the. the following details cover a variety of these types of control joints. Expansion joints are used in brickwork to accommodate movement and to avoid cracking. The gap. Block Wall Expansion Joint Detail.
From thumb.cadbull.com
Expansion joints details of walls of building cad structure details dwg Block Wall Expansion Joint Detail in theory, an expansion joint could be located at the corner, but this would affect the buttressing offered by the return wall. it is advisable to consider locating vertical expansion joints where there is a significant change in height within the building. — movement joints (sometimes referred to as expansion joints) are often introduced within the design. Block Wall Expansion Joint Detail.
From www.pinterest.com
How to Detail Expansion Joints in a Panelized Brick Façade Architizer Block Wall Expansion Joint Detail in theory, an expansion joint could be located at the corner, but this would affect the buttressing offered by the return wall. it is advisable to consider locating vertical expansion joints where there is a significant change in height within the building. the following details cover a variety of these types of control joints. Contraction joints are. Block Wall Expansion Joint Detail.
From www.3dshopfree.com
Expansion Joint Detail Cad Blocks 104 Block Wall Expansion Joint Detail a masonry expansion joint is a complete break in the masonry wall to allow for the entire structure to move under loading,. in theory, an expansion joint could be located at the corner, but this would affect the buttressing offered by the return wall. Contraction joints are opening joints to cater for shrinkage of the. The gap is. Block Wall Expansion Joint Detail.
From www.emseal.com
Expansion Joint Details · BIM · CAD · DWG · DWF · EMSEAL Block Wall Expansion Joint Detail — movement joints (sometimes referred to as expansion joints) are often introduced within the design and it consists of a gap which allows for expansion and contraction. The gap is filled with a compressible filler and a weatherproof sealant is layered on top. in theory, an expansion joint could be located at the corner, but this would affect. Block Wall Expansion Joint Detail.
From imiweb.org
02.010.1311 Control Joint International Masonry Institute Block Wall Expansion Joint Detail Expansion joints are used in brickwork to accommodate movement and to avoid cracking. — movement joints (sometimes referred to as expansion joints) are often introduced within the design and it consists of a gap which allows for expansion and contraction. the following details cover a variety of these types of control joints. Contraction joints are opening joints to. Block Wall Expansion Joint Detail.
From www.housebuild.com
Building Guidelines Cavity walls Movement Joints Block Wall Expansion Joint Detail The gap is filled with a compressible filler and a weatherproof sealant is layered on top. the following details cover a variety of these types of control joints. — movement joints (sometimes referred to as expansion joints) are often introduced within the design and it consists of a gap which allows for expansion and contraction. it is. Block Wall Expansion Joint Detail.
From scienceolympiadtowerdesigns.blogspot.com
bearing plate on masonry wall design example scienceolympiadtowerdesigns Block Wall Expansion Joint Detail a masonry expansion joint is a complete break in the masonry wall to allow for the entire structure to move under loading,. in theory, an expansion joint could be located at the corner, but this would affect the buttressing offered by the return wall. the following details cover a variety of these types of control joints. . Block Wall Expansion Joint Detail.
From www.emseal.com
Expansion Joint Details · BIM · CAD · DWG · DWF · EMSEAL Block Wall Expansion Joint Detail the following details cover a variety of these types of control joints. — movement joints (sometimes referred to as expansion joints) are often introduced within the design and it consists of a gap which allows for expansion and contraction. a masonry expansion joint is a complete break in the masonry wall to allow for the entire structure. Block Wall Expansion Joint Detail.
From www.emseal.com
Expansion Joint Details · BIM · CAD · DWG · DWF · EMSEAL Block Wall Expansion Joint Detail a masonry expansion joint is a complete break in the masonry wall to allow for the entire structure to move under loading,. in theory, an expansion joint could be located at the corner, but this would affect the buttressing offered by the return wall. Contraction joints are opening joints to cater for shrinkage of the. it is. Block Wall Expansion Joint Detail.
From www.emseal.com
Expansion Joint Details · BIM · CAD · DWG · DWF · Sika Emseal Block Wall Expansion Joint Detail the following details cover a variety of these types of control joints. it is advisable to consider locating vertical expansion joints where there is a significant change in height within the building. The gap is filled with a compressible filler and a weatherproof sealant is layered on top. in theory, an expansion joint could be located at. Block Wall Expansion Joint Detail.
From mungfali.com
Expansion Joint At Roof Wall Detail Block Wall Expansion Joint Detail in theory, an expansion joint could be located at the corner, but this would affect the buttressing offered by the return wall. a masonry expansion joint is a complete break in the masonry wall to allow for the entire structure to move under loading,. Expansion joints are used in brickwork to accommodate movement and to avoid cracking. The. Block Wall Expansion Joint Detail.
From archi-monarch.in
EXPANSION JOINT DETAIL THREE ⋆ ArchiMonarch Block Wall Expansion Joint Detail — movement joints (sometimes referred to as expansion joints) are often introduced within the design and it consists of a gap which allows for expansion and contraction. Contraction joints are opening joints to cater for shrinkage of the. Expansion joints are used in brickwork to accommodate movement and to avoid cracking. a masonry expansion joint is a complete. Block Wall Expansion Joint Detail.
From www.emseal.com
Expansion Joint Details · BIM · CAD · DWG · DWF · EMSEAL Block Wall Expansion Joint Detail — movement joints (sometimes referred to as expansion joints) are often introduced within the design and it consists of a gap which allows for expansion and contraction. The gap is filled with a compressible filler and a weatherproof sealant is layered on top. Expansion joints are used in brickwork to accommodate movement and to avoid cracking. Contraction joints are. Block Wall Expansion Joint Detail.
From imiweb.org
01.030.1311 Isolation Joint International Masonry Institute Block Wall Expansion Joint Detail it is advisable to consider locating vertical expansion joints where there is a significant change in height within the building. the following details cover a variety of these types of control joints. Expansion joints are used in brickwork to accommodate movement and to avoid cracking. in theory, an expansion joint could be located at the corner, but. Block Wall Expansion Joint Detail.
From prosoco.com
Masonry Control & Expansion Joints PROSOCO Block Wall Expansion Joint Detail it is advisable to consider locating vertical expansion joints where there is a significant change in height within the building. The gap is filled with a compressible filler and a weatherproof sealant is layered on top. a masonry expansion joint is a complete break in the masonry wall to allow for the entire structure to move under loading,.. Block Wall Expansion Joint Detail.
From nerdfashionlooks.blogspot.com
Control Joints In Concrete Block Walls NFL Block Wall Expansion Joint Detail it is advisable to consider locating vertical expansion joints where there is a significant change in height within the building. in theory, an expansion joint could be located at the corner, but this would affect the buttressing offered by the return wall. a masonry expansion joint is a complete break in the masonry wall to allow for. Block Wall Expansion Joint Detail.
From www.sanctuaryvf.org
Expansion Joint Details Block Wall Expansion Joint Detail The gap is filled with a compressible filler and a weatherproof sealant is layered on top. Expansion joints are used in brickwork to accommodate movement and to avoid cracking. Contraction joints are opening joints to cater for shrinkage of the. — movement joints (sometimes referred to as expansion joints) are often introduced within the design and it consists of. Block Wall Expansion Joint Detail.
From mavink.com
Expansion Joints In Concrete Retaining Walls Block Wall Expansion Joint Detail The gap is filled with a compressible filler and a weatherproof sealant is layered on top. — movement joints (sometimes referred to as expansion joints) are often introduced within the design and it consists of a gap which allows for expansion and contraction. Expansion joints are used in brickwork to accommodate movement and to avoid cracking. it is. Block Wall Expansion Joint Detail.
From crspgh.com
Expansion Joints Concrete Repair Specialists Concrete Repair Block Wall Expansion Joint Detail in theory, an expansion joint could be located at the corner, but this would affect the buttressing offered by the return wall. it is advisable to consider locating vertical expansion joints where there is a significant change in height within the building. the following details cover a variety of these types of control joints. The gap is. Block Wall Expansion Joint Detail.
From www.iko.com
An Introduction to the Building Envelope Products & Systems IKO Block Wall Expansion Joint Detail Expansion joints are used in brickwork to accommodate movement and to avoid cracking. the following details cover a variety of these types of control joints. Contraction joints are opening joints to cater for shrinkage of the. a masonry expansion joint is a complete break in the masonry wall to allow for the entire structure to move under loading,.. Block Wall Expansion Joint Detail.
From www.emseal.com
Expansion Joint Details · BIM · CAD · DWG · DWF · Sika Emseal Block Wall Expansion Joint Detail The gap is filled with a compressible filler and a weatherproof sealant is layered on top. a masonry expansion joint is a complete break in the masonry wall to allow for the entire structure to move under loading,. Contraction joints are opening joints to cater for shrinkage of the. the following details cover a variety of these types. Block Wall Expansion Joint Detail.
From imiweb.org
02.120.0751 Plank at Bearing Wall Intermediate Elevation Block Wall Expansion Joint Detail in theory, an expansion joint could be located at the corner, but this would affect the buttressing offered by the return wall. the following details cover a variety of these types of control joints. Contraction joints are opening joints to cater for shrinkage of the. The gap is filled with a compressible filler and a weatherproof sealant is. Block Wall Expansion Joint Detail.
From www.copper.org
Architectural Details Building Expansion Joints Wall Conditions Block Wall Expansion Joint Detail Contraction joints are opening joints to cater for shrinkage of the. the following details cover a variety of these types of control joints. — movement joints (sometimes referred to as expansion joints) are often introduced within the design and it consists of a gap which allows for expansion and contraction. it is advisable to consider locating vertical. Block Wall Expansion Joint Detail.
From dxotfcqgy.blob.core.windows.net
Masonry Wall Expansion Joint Spacing at Marlin Caudle blog Block Wall Expansion Joint Detail — movement joints (sometimes referred to as expansion joints) are often introduced within the design and it consists of a gap which allows for expansion and contraction. The gap is filled with a compressible filler and a weatherproof sealant is layered on top. it is advisable to consider locating vertical expansion joints where there is a significant change. Block Wall Expansion Joint Detail.
From www.emseal.com
Expansion Joint Details · BIM · CAD · DWG · DWF · Sika Emseal Block Wall Expansion Joint Detail the following details cover a variety of these types of control joints. Expansion joints are used in brickwork to accommodate movement and to avoid cracking. a masonry expansion joint is a complete break in the masonry wall to allow for the entire structure to move under loading,. The gap is filled with a compressible filler and a weatherproof. Block Wall Expansion Joint Detail.