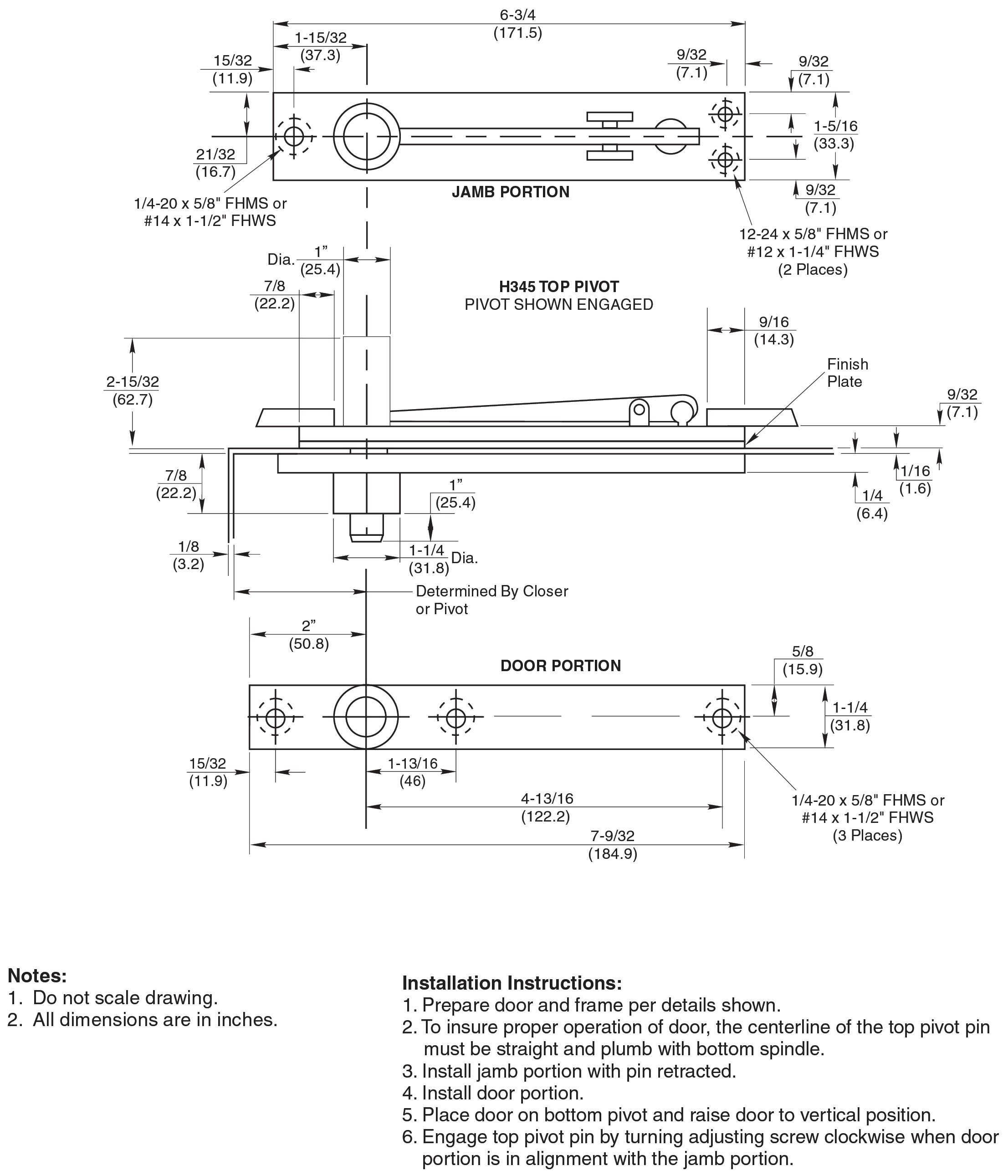
Rixson Door Closer Installation Instructions . the closing speed valve allows adjustment from 65° to 15° closed position on closers with delay action feature. this product is factory finished. Use plumb line to make sure that center line of top pivot pin lines up with center line of closer spindle. view and download assa abloy norton rixson closerplus clp7570 series installation instructions online. These adjustments if required should be done by an. Duo floor closer door locks pdf manual download. view and download assa abloy rixson 91dcp installation instructions manual online. Install top pivot in door per template. Center line of pivot should. Protect all exposed surfaces from contact with. Please handle with extreme care. this closer can be adjusted for increased or decreased spring power. Install top pivot in frame per template. view and download rixson duo floor closer installation instructions online.
from www.asklocksmith247.com
Use plumb line to make sure that center line of top pivot pin lines up with center line of closer spindle. Please handle with extreme care. this closer can be adjusted for increased or decreased spring power. Protect all exposed surfaces from contact with. the closing speed valve allows adjustment from 65° to 15° closed position on closers with delay action feature. view and download assa abloy rixson 91dcp installation instructions manual online. These adjustments if required should be done by an. view and download rixson duo floor closer installation instructions online. Duo floor closer door locks pdf manual download. this product is factory finished.
Rixson Model 27 Offset Floor Mounted Door Closer
Rixson Door Closer Installation Instructions view and download rixson duo floor closer installation instructions online. Install top pivot in door per template. Please handle with extreme care. These adjustments if required should be done by an. Center line of pivot should. Protect all exposed surfaces from contact with. view and download rixson duo floor closer installation instructions online. Duo floor closer door locks pdf manual download. view and download assa abloy rixson 91dcp installation instructions manual online. this product is factory finished. Install top pivot in frame per template. view and download assa abloy norton rixson closerplus clp7570 series installation instructions online. Use plumb line to make sure that center line of top pivot pin lines up with center line of closer spindle. the closing speed valve allows adjustment from 65° to 15° closed position on closers with delay action feature. this closer can be adjusted for increased or decreased spring power.
From www.asklocksmith247.com
Rixson Model 28 Heavy Duty CenterHung Floor Mounted Door closer Rixson Door Closer Installation Instructions Install top pivot in door per template. Use plumb line to make sure that center line of top pivot pin lines up with center line of closer spindle. view and download assa abloy rixson 91dcp installation instructions manual online. view and download rixson duo floor closer installation instructions online. These adjustments if required should be done by an.. Rixson Door Closer Installation Instructions.
From www.asklocksmith247.com
Rixson Model 27 Offset Floor Mounted Door Closer Rixson Door Closer Installation Instructions These adjustments if required should be done by an. the closing speed valve allows adjustment from 65° to 15° closed position on closers with delay action feature. Install top pivot in frame per template. Use plumb line to make sure that center line of top pivot pin lines up with center line of closer spindle. this closer can. Rixson Door Closer Installation Instructions.
From www.youtube.com
How to Install Door Closer LCN 4040XP CUSH Arm YouTube Rixson Door Closer Installation Instructions view and download rixson duo floor closer installation instructions online. Duo floor closer door locks pdf manual download. Please handle with extreme care. this closer can be adjusted for increased or decreased spring power. the closing speed valve allows adjustment from 65° to 15° closed position on closers with delay action feature. view and download assa. Rixson Door Closer Installation Instructions.
From usermanual.wiki
Rixson OH80000A&B (04 16) No. 1 Series Concealed Door Stops And Holders Rixson Door Closer Installation Instructions view and download assa abloy rixson 91dcp installation instructions manual online. Center line of pivot should. These adjustments if required should be done by an. the closing speed valve allows adjustment from 65° to 15° closed position on closers with delay action feature. Use plumb line to make sure that center line of top pivot pin lines up. Rixson Door Closer Installation Instructions.
From www.tmhardware.com
Rixson Center Hung Heavy Duty Top Door Pivot for Extra Tall Doors Rixson Door Closer Installation Instructions Install top pivot in door per template. this product is factory finished. this closer can be adjusted for increased or decreased spring power. view and download assa abloy rixson 91dcp installation instructions manual online. Duo floor closer door locks pdf manual download. Protect all exposed surfaces from contact with. view and download assa abloy norton rixson. Rixson Door Closer Installation Instructions.
From device.report
NORTON RIXSON 5211 Universal Low Energy Door Operator Instruction Manual Rixson Door Closer Installation Instructions Install top pivot in frame per template. this closer can be adjusted for increased or decreased spring power. Duo floor closer door locks pdf manual download. the closing speed valve allows adjustment from 65° to 15° closed position on closers with delay action feature. view and download assa abloy norton rixson closerplus clp7570 series installation instructions online.. Rixson Door Closer Installation Instructions.
From www.manualslib.com
ASSA ABLOY NORTON RIXSON M19 INSTALLATION INSTRUCTIONS Pdf Download Rixson Door Closer Installation Instructions this product is factory finished. view and download assa abloy norton rixson closerplus clp7570 series installation instructions online. Duo floor closer door locks pdf manual download. view and download rixson duo floor closer installation instructions online. Install top pivot in door per template. view and download assa abloy rixson 91dcp installation instructions manual online. Protect all. Rixson Door Closer Installation Instructions.
From www.asklocksmith247.com
Rixson Model 27 Offset Floor Mounted Door Closer Rixson Door Closer Installation Instructions view and download assa abloy norton rixson closerplus clp7570 series installation instructions online. Install top pivot in door per template. the closing speed valve allows adjustment from 65° to 15° closed position on closers with delay action feature. These adjustments if required should be done by an. Duo floor closer door locks pdf manual download. Install top pivot. Rixson Door Closer Installation Instructions.
From www.youtube.com
Install Norton Rixson 9500 Door Closer Norton Rixson Door Controls Rixson Door Closer Installation Instructions These adjustments if required should be done by an. Center line of pivot should. Please handle with extreme care. the closing speed valve allows adjustment from 65° to 15° closed position on closers with delay action feature. Use plumb line to make sure that center line of top pivot pin lines up with center line of closer spindle. . Rixson Door Closer Installation Instructions.
From edu.svet.gob.gt
How To Properly Install A Norton Rixson 7500 Series Door Rixson Door Closer Installation Instructions Please handle with extreme care. Protect all exposed surfaces from contact with. Duo floor closer door locks pdf manual download. Install top pivot in door per template. the closing speed valve allows adjustment from 65° to 15° closed position on closers with delay action feature. view and download assa abloy rixson 91dcp installation instructions manual online. These adjustments. Rixson Door Closer Installation Instructions.
From www.youtube.com
Installing a Rixson Model 91 Overhead Closer YouTube Rixson Door Closer Installation Instructions These adjustments if required should be done by an. Please handle with extreme care. Use plumb line to make sure that center line of top pivot pin lines up with center line of closer spindle. the closing speed valve allows adjustment from 65° to 15° closed position on closers with delay action feature. view and download assa abloy. Rixson Door Closer Installation Instructions.
From www.epivots.com
Rixson 117 LightDuty 3/4" Offset Hung Door Pivot Set Rixson Door Closer Installation Instructions view and download assa abloy norton rixson closerplus clp7570 series installation instructions online. view and download assa abloy rixson 91dcp installation instructions manual online. These adjustments if required should be done by an. Install top pivot in frame per template. Duo floor closer door locks pdf manual download. the closing speed valve allows adjustment from 65° to. Rixson Door Closer Installation Instructions.
From www.youtube.com
How to Install a Norton Rixson 9500 Series Door Closer Attaching Rixson Door Closer Installation Instructions view and download rixson duo floor closer installation instructions online. Duo floor closer door locks pdf manual download. Center line of pivot should. Install top pivot in frame per template. the closing speed valve allows adjustment from 65° to 15° closed position on closers with delay action feature. Please handle with extreme care. this closer can be. Rixson Door Closer Installation Instructions.
From www.crl.eu
Rixson® 28 Series 3/4" CenterHung Left Hand Floor Mounted Door Closer Rixson Door Closer Installation Instructions the closing speed valve allows adjustment from 65° to 15° closed position on closers with delay action feature. view and download assa abloy rixson 91dcp installation instructions manual online. These adjustments if required should be done by an. Install top pivot in door per template. Duo floor closer door locks pdf manual download. this closer can be. Rixson Door Closer Installation Instructions.
From www.manualslib.com
ASSA ABLOY NORTON RIXSON 6200 SERIES INSTALLATION INSTRUCTIONS MANUAL Rixson Door Closer Installation Instructions Install top pivot in frame per template. Protect all exposed surfaces from contact with. view and download assa abloy rixson 91dcp installation instructions manual online. Center line of pivot should. view and download rixson duo floor closer installation instructions online. Duo floor closer door locks pdf manual download. this product is factory finished. this closer can. Rixson Door Closer Installation Instructions.
From www.youtube.com
How to Install a Norton Rixson 9500 Series Door Closer Initial SetUp Rixson Door Closer Installation Instructions Please handle with extreme care. Install top pivot in frame per template. Center line of pivot should. the closing speed valve allows adjustment from 65° to 15° closed position on closers with delay action feature. Protect all exposed surfaces from contact with. this closer can be adjusted for increased or decreased spring power. view and download assa. Rixson Door Closer Installation Instructions.
From edu.svet.gob.gt
How To Properly Install A Norton Rixson 7500 Series Door Rixson Door Closer Installation Instructions Install top pivot in door per template. view and download assa abloy rixson 91dcp installation instructions manual online. this closer can be adjusted for increased or decreased spring power. Center line of pivot should. Use plumb line to make sure that center line of top pivot pin lines up with center line of closer spindle. view and. Rixson Door Closer Installation Instructions.
From www.youtube.com
Norton Rixson 7500 Door Closer "Green Room" door YouTube Rixson Door Closer Installation Instructions the closing speed valve allows adjustment from 65° to 15° closed position on closers with delay action feature. Center line of pivot should. view and download assa abloy norton rixson closerplus clp7570 series installation instructions online. Install top pivot in door per template. These adjustments if required should be done by an. Protect all exposed surfaces from contact. Rixson Door Closer Installation Instructions.
From www.tmhardware.com
Rixson QT27 and Q27 Heavy Duty Floor Closer for Quick Installation TM Rixson Door Closer Installation Instructions Use plumb line to make sure that center line of top pivot pin lines up with center line of closer spindle. These adjustments if required should be done by an. Duo floor closer door locks pdf manual download. view and download rixson duo floor closer installation instructions online. Center line of pivot should. view and download assa abloy. Rixson Door Closer Installation Instructions.
From vimeo.com
How to install a Norton Rixson 27 Series floor closer Rixson Door Closer Installation Instructions Center line of pivot should. the closing speed valve allows adjustment from 65° to 15° closed position on closers with delay action feature. Install top pivot in door per template. view and download assa abloy rixson 91dcp installation instructions manual online. These adjustments if required should be done by an. Protect all exposed surfaces from contact with. . Rixson Door Closer Installation Instructions.
From www.manualslib.com
RIXSON ASSA ABLOY 328 INSTALLATION INSTRUCTIONS Pdf Download ManualsLib Rixson Door Closer Installation Instructions Center line of pivot should. view and download rixson duo floor closer installation instructions online. Please handle with extreme care. Install top pivot in frame per template. Protect all exposed surfaces from contact with. These adjustments if required should be done by an. Use plumb line to make sure that center line of top pivot pin lines up with. Rixson Door Closer Installation Instructions.
From usermanual.wiki
Rixson ISW91B_OS (01 16) W91 Overhead Concealed Closers Wood Frame Rixson Door Closer Installation Instructions Protect all exposed surfaces from contact with. view and download assa abloy rixson 91dcp installation instructions manual online. Please handle with extreme care. Install top pivot in frame per template. These adjustments if required should be done by an. view and download assa abloy norton rixson closerplus clp7570 series installation instructions online. this closer can be adjusted. Rixson Door Closer Installation Instructions.
From www.pennerdoors.com
Penner Doors Rixson Heavy Duty Rixson Door Closer Installation Instructions Center line of pivot should. Please handle with extreme care. Install top pivot in frame per template. Protect all exposed surfaces from contact with. These adjustments if required should be done by an. Use plumb line to make sure that center line of top pivot pin lines up with center line of closer spindle. this closer can be adjusted. Rixson Door Closer Installation Instructions.
From edu.svet.gob.gt
How To Properly Install A Norton Rixson 7500 Series Door Rixson Door Closer Installation Instructions Please handle with extreme care. this product is factory finished. These adjustments if required should be done by an. the closing speed valve allows adjustment from 65° to 15° closed position on closers with delay action feature. Duo floor closer door locks pdf manual download. Install top pivot in door per template. Center line of pivot should. . Rixson Door Closer Installation Instructions.
From usermanual.wiki
Rixson 2700HM (05 09) Floor Closer Installation Instructions Rixson Door Closer Installation Instructions Please handle with extreme care. Center line of pivot should. Install top pivot in door per template. this closer can be adjusted for increased or decreased spring power. Protect all exposed surfaces from contact with. view and download rixson duo floor closer installation instructions online. Install top pivot in frame per template. view and download assa abloy. Rixson Door Closer Installation Instructions.
From heritageequipment.com
Rixson SmokChek V Electrified Door Closer/Holder, Model 0601K, 24V AC/DC Rixson Door Closer Installation Instructions this product is factory finished. Use plumb line to make sure that center line of top pivot pin lines up with center line of closer spindle. Install top pivot in frame per template. Duo floor closer door locks pdf manual download. Please handle with extreme care. Protect all exposed surfaces from contact with. view and download rixson duo. Rixson Door Closer Installation Instructions.
From www.epivots.com
Rixson 1283/4 LightDuty Center Hung Door Pivot Set Epivots Rixson Door Closer Installation Instructions Protect all exposed surfaces from contact with. Center line of pivot should. view and download assa abloy norton rixson closerplus clp7570 series installation instructions online. Install top pivot in door per template. this product is factory finished. view and download assa abloy rixson 91dcp installation instructions manual online. Duo floor closer door locks pdf manual download. . Rixson Door Closer Installation Instructions.
From www.youtube.com
How to Index a Norton Rixson 7500 Series Door Closer Parallel Arm YouTube Rixson Door Closer Installation Instructions Center line of pivot should. the closing speed valve allows adjustment from 65° to 15° closed position on closers with delay action feature. this closer can be adjusted for increased or decreased spring power. Install top pivot in frame per template. Use plumb line to make sure that center line of top pivot pin lines up with center. Rixson Door Closer Installation Instructions.
From www.youtube.com
How to Install Rixson Model 27 34 Offset Door Closers YouTube Rixson Door Closer Installation Instructions These adjustments if required should be done by an. Install top pivot in door per template. view and download assa abloy norton rixson closerplus clp7570 series installation instructions online. Install top pivot in frame per template. Duo floor closer door locks pdf manual download. Protect all exposed surfaces from contact with. view and download rixson duo floor closer. Rixson Door Closer Installation Instructions.
From www.epivots.com
Rixson 28 Center Hung Door Closer Package Rixson Door Closer Installation Instructions Center line of pivot should. Install top pivot in frame per template. the closing speed valve allows adjustment from 65° to 15° closed position on closers with delay action feature. Install top pivot in door per template. These adjustments if required should be done by an. this closer can be adjusted for increased or decreased spring power. . Rixson Door Closer Installation Instructions.
From www.youtube.com
How to Properly Install a Norton Rixson 7500 Series Door Closer YouTube Rixson Door Closer Installation Instructions Protect all exposed surfaces from contact with. view and download rixson duo floor closer installation instructions online. These adjustments if required should be done by an. Duo floor closer door locks pdf manual download. Please handle with extreme care. this closer can be adjusted for increased or decreased spring power. view and download assa abloy norton rixson. Rixson Door Closer Installation Instructions.
From www.yumpu.com
Rixson Duo Floor Closer Installation Instructions Epivots Rixson Door Closer Installation Instructions the closing speed valve allows adjustment from 65° to 15° closed position on closers with delay action feature. view and download assa abloy rixson 91dcp installation instructions manual online. this product is factory finished. Use plumb line to make sure that center line of top pivot pin lines up with center line of closer spindle. view. Rixson Door Closer Installation Instructions.
From www.yumpu.com
Installation Instructions King Door Closers Rixson Door Closer Installation Instructions this product is factory finished. Install top pivot in frame per template. view and download rixson duo floor closer installation instructions online. the closing speed valve allows adjustment from 65° to 15° closed position on closers with delay action feature. view and download assa abloy rixson 91dcp installation instructions manual online. this closer can be. Rixson Door Closer Installation Instructions.
From usermanual.wiki
Rixson 2700HM (05 09) Floor Closer Installation Instructions Rixson Door Closer Installation Instructions view and download assa abloy rixson 91dcp installation instructions manual online. Protect all exposed surfaces from contact with. this product is factory finished. Install top pivot in frame per template. Center line of pivot should. the closing speed valve allows adjustment from 65° to 15° closed position on closers with delay action feature. Duo floor closer door. Rixson Door Closer Installation Instructions.
From www.manualslib.com
ASSA ABLOY NORTON RIXSON CLOSERPLUS CLP7570 SERIES INSTALLATION Rixson Door Closer Installation Instructions Install top pivot in frame per template. the closing speed valve allows adjustment from 65° to 15° closed position on closers with delay action feature. Duo floor closer door locks pdf manual download. These adjustments if required should be done by an. view and download assa abloy norton rixson closerplus clp7570 series installation instructions online. Protect all exposed. Rixson Door Closer Installation Instructions.