Holding Tank Permit Ontario . Application for permit to take water. A person must not install, repair, or alter a holding tank unless they hold a construction permit issued by an environmental health officer, in accordance with the sewerage system regulation. The application can be used to get a permit for: Holding tanks are used when it is not possible to install a sewerage system on a property or connect to a community sewer system. (1) all holding tanks shall be of such design and construction as will allow the complete removal of solid matter that can be expected to. A proposed maintenance plan for the holding tank. You need to fill out an application to get a permit for a septic system. A person must not install, repair, or alter a holding tank unless they hold a permit to construct issued by an environmental health officer (eho), in. Application for approval of hauled sewage (septage), sewage biosolids and other wastes. A set of construction grade plans and technical specifications for the holding tank.
from www.templateroller.com
Application for approval of hauled sewage (septage), sewage biosolids and other wastes. Application for permit to take water. A person must not install, repair, or alter a holding tank unless they hold a construction permit issued by an environmental health officer, in accordance with the sewerage system regulation. Holding tanks are used when it is not possible to install a sewerage system on a property or connect to a community sewer system. A proposed maintenance plan for the holding tank. (1) all holding tanks shall be of such design and construction as will allow the complete removal of solid matter that can be expected to. A set of construction grade plans and technical specifications for the holding tank. A person must not install, repair, or alter a holding tank unless they hold a permit to construct issued by an environmental health officer (eho), in. The application can be used to get a permit for: You need to fill out an application to get a permit for a septic system.
Nevada Permanent Holding Tank Application Fill Out, Sign Online and
Holding Tank Permit Ontario A person must not install, repair, or alter a holding tank unless they hold a permit to construct issued by an environmental health officer (eho), in. Application for approval of hauled sewage (septage), sewage biosolids and other wastes. A person must not install, repair, or alter a holding tank unless they hold a construction permit issued by an environmental health officer, in accordance with the sewerage system regulation. The application can be used to get a permit for: A set of construction grade plans and technical specifications for the holding tank. A proposed maintenance plan for the holding tank. Holding tanks are used when it is not possible to install a sewerage system on a property or connect to a community sewer system. A person must not install, repair, or alter a holding tank unless they hold a permit to construct issued by an environmental health officer (eho), in. (1) all holding tanks shall be of such design and construction as will allow the complete removal of solid matter that can be expected to. Application for permit to take water. You need to fill out an application to get a permit for a septic system.
From www.pdffiller.com
Fillable Online Sewage Holding Tank Fax Email Print pdfFiller Holding Tank Permit Ontario A person must not install, repair, or alter a holding tank unless they hold a construction permit issued by an environmental health officer, in accordance with the sewerage system regulation. Application for permit to take water. A person must not install, repair, or alter a holding tank unless they hold a permit to construct issued by an environmental health officer. Holding Tank Permit Ontario.
From www.brooklinenh.gov
Permits Brookline NH Holding Tank Permit Ontario Holding tanks are used when it is not possible to install a sewerage system on a property or connect to a community sewer system. (1) all holding tanks shall be of such design and construction as will allow the complete removal of solid matter that can be expected to. A person must not install, repair, or alter a holding tank. Holding Tank Permit Ontario.
From www.templateroller.com
Mississippi Underground Storage Tank Groundwater Remediation General Holding Tank Permit Ontario Application for permit to take water. A person must not install, repair, or alter a holding tank unless they hold a permit to construct issued by an environmental health officer (eho), in. (1) all holding tanks shall be of such design and construction as will allow the complete removal of solid matter that can be expected to. A proposed maintenance. Holding Tank Permit Ontario.
From www.aacounty.org
Trade Permits Anne Arundel County Government Holding Tank Permit Ontario Application for permit to take water. A person must not install, repair, or alter a holding tank unless they hold a construction permit issued by an environmental health officer, in accordance with the sewerage system regulation. Application for approval of hauled sewage (septage), sewage biosolids and other wastes. A set of construction grade plans and technical specifications for the holding. Holding Tank Permit Ontario.
From www.brooklinenh.gov
Permits Brookline NH Holding Tank Permit Ontario The application can be used to get a permit for: A person must not install, repair, or alter a holding tank unless they hold a construction permit issued by an environmental health officer, in accordance with the sewerage system regulation. Application for approval of hauled sewage (septage), sewage biosolids and other wastes. A proposed maintenance plan for the holding tank.. Holding Tank Permit Ontario.
From epa.guam.gov
Aboveground Storage Tank Operating Permits DUE June 30, 2024 Guam Holding Tank Permit Ontario A person must not install, repair, or alter a holding tank unless they hold a construction permit issued by an environmental health officer, in accordance with the sewerage system regulation. A set of construction grade plans and technical specifications for the holding tank. A person must not install, repair, or alter a holding tank unless they hold a permit to. Holding Tank Permit Ontario.
From www.pdffiller.com
Fillable Online Smallstoragetankpermitapplicationform. Small Holding Tank Permit Ontario You need to fill out an application to get a permit for a septic system. A person must not install, repair, or alter a holding tank unless they hold a construction permit issued by an environmental health officer, in accordance with the sewerage system regulation. Application for permit to take water. Holding tanks are used when it is not possible. Holding Tank Permit Ontario.
From www.rogersmn.gov
Tank Permit — City of Rogers, MN Holding Tank Permit Ontario A person must not install, repair, or alter a holding tank unless they hold a permit to construct issued by an environmental health officer (eho), in. Application for permit to take water. Holding tanks are used when it is not possible to install a sewerage system on a property or connect to a community sewer system. You need to fill. Holding Tank Permit Ontario.
From dokumen.tips
(PDF) Application for BUSTR Underground Storage Tank Permit … · Permit Holding Tank Permit Ontario A person must not install, repair, or alter a holding tank unless they hold a permit to construct issued by an environmental health officer (eho), in. The application can be used to get a permit for: (1) all holding tanks shall be of such design and construction as will allow the complete removal of solid matter that can be expected. Holding Tank Permit Ontario.
From www.studocu.com
Maine Gas Storage Tank Permit Practice Course Visit us [Proxsoft Holding Tank Permit Ontario Application for permit to take water. Application for approval of hauled sewage (septage), sewage biosolids and other wastes. A set of construction grade plans and technical specifications for the holding tank. Holding tanks are used when it is not possible to install a sewerage system on a property or connect to a community sewer system. A person must not install,. Holding Tank Permit Ontario.
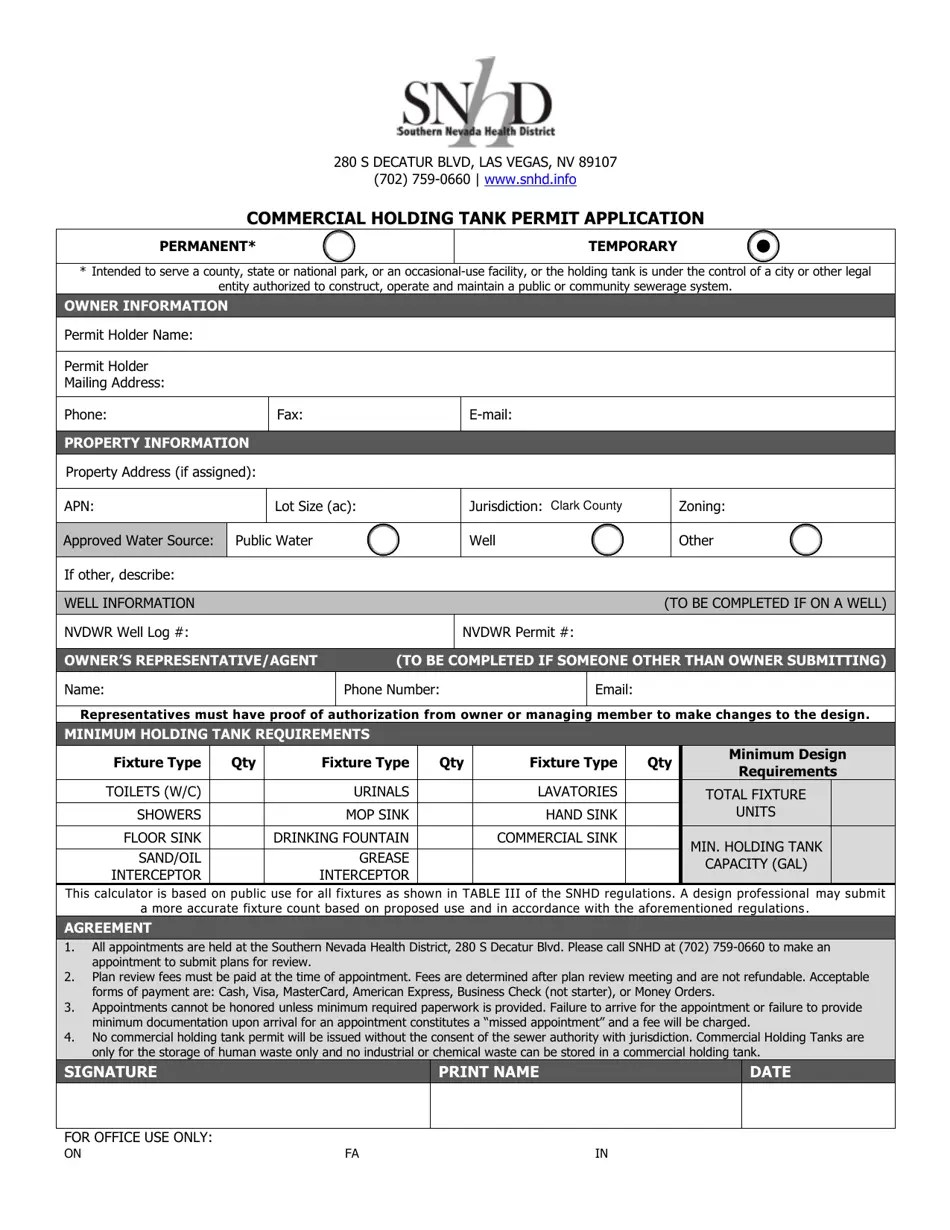
From www.templateroller.com
Nevada Commercial Holding Tank Permit Application Fill Out, Sign Holding Tank Permit Ontario The application can be used to get a permit for: Application for permit to take water. Holding tanks are used when it is not possible to install a sewerage system on a property or connect to a community sewer system. A person must not install, repair, or alter a holding tank unless they hold a permit to construct issued by. Holding Tank Permit Ontario.
From www.pdffiller.com
Fillable Online town of spring lake storage tank permit application Fax Holding Tank Permit Ontario Application for approval of hauled sewage (septage), sewage biosolids and other wastes. A person must not install, repair, or alter a holding tank unless they hold a construction permit issued by an environmental health officer, in accordance with the sewerage system regulation. A proposed maintenance plan for the holding tank. A person must not install, repair, or alter a holding. Holding Tank Permit Ontario.
From www.ontario.ca
Change information on a vehicle permit ontario.ca Holding Tank Permit Ontario You need to fill out an application to get a permit for a septic system. Holding tanks are used when it is not possible to install a sewerage system on a property or connect to a community sewer system. Application for permit to take water. Application for approval of hauled sewage (septage), sewage biosolids and other wastes. A person must. Holding Tank Permit Ontario.
From www.sellmycar.ca
Ontario Vehicle Ownership What It Is And How To Use It Holding Tank Permit Ontario Application for approval of hauled sewage (septage), sewage biosolids and other wastes. The application can be used to get a permit for: A proposed maintenance plan for the holding tank. You need to fill out an application to get a permit for a septic system. Holding tanks are used when it is not possible to install a sewerage system on. Holding Tank Permit Ontario.
From www.templateroller.com
Form HM9311 Part I Download Fillable PDF or Fill Online Underground Holding Tank Permit Ontario (1) all holding tanks shall be of such design and construction as will allow the complete removal of solid matter that can be expected to. The application can be used to get a permit for: A person must not install, repair, or alter a holding tank unless they hold a permit to construct issued by an environmental health officer (eho),. Holding Tank Permit Ontario.
From www.pdffiller.com
Fillable Online Above Ground Holding Tank Permit Application Fax Email Holding Tank Permit Ontario Holding tanks are used when it is not possible to install a sewerage system on a property or connect to a community sewer system. A person must not install, repair, or alter a holding tank unless they hold a construction permit issued by an environmental health officer, in accordance with the sewerage system regulation. You need to fill out an. Holding Tank Permit Ontario.
From www.templateroller.com
City of Philadelphia, Pennsylvania Application for Portable Chemical Holding Tank Permit Ontario Application for permit to take water. A person must not install, repair, or alter a holding tank unless they hold a construction permit issued by an environmental health officer, in accordance with the sewerage system regulation. A person must not install, repair, or alter a holding tank unless they hold a permit to construct issued by an environmental health officer. Holding Tank Permit Ontario.
From www.templateroller.com
Nevada Temporary Holding Tank Application Fill Out, Sign Online and Holding Tank Permit Ontario The application can be used to get a permit for: Application for approval of hauled sewage (septage), sewage biosolids and other wastes. You need to fill out an application to get a permit for a septic system. A person must not install, repair, or alter a holding tank unless they hold a construction permit issued by an environmental health officer,. Holding Tank Permit Ontario.
From dokumen.tips
(PDF) UNDERGROUND STORAGE TANK (UST) GROUNDWATER …...(1) This permit Holding Tank Permit Ontario Application for approval of hauled sewage (septage), sewage biosolids and other wastes. (1) all holding tanks shall be of such design and construction as will allow the complete removal of solid matter that can be expected to. Holding tanks are used when it is not possible to install a sewerage system on a property or connect to a community sewer. Holding Tank Permit Ontario.
From www.formsbank.com
Fillable Underground Storage Tank System Closure Permit Application Holding Tank Permit Ontario The application can be used to get a permit for: (1) all holding tanks shall be of such design and construction as will allow the complete removal of solid matter that can be expected to. A proposed maintenance plan for the holding tank. You need to fill out an application to get a permit for a septic system. A set. Holding Tank Permit Ontario.
From www.pdffiller.com
Fillable Online Holding Tank Permit Application Form IH 823120 Fax Holding Tank Permit Ontario A proposed maintenance plan for the holding tank. Application for permit to take water. The application can be used to get a permit for: You need to fill out an application to get a permit for a septic system. Application for approval of hauled sewage (septage), sewage biosolids and other wastes. (1) all holding tanks shall be of such design. Holding Tank Permit Ontario.
From www.pdffiller.com
Fillable Online Application for an Underground Storage Tank Permit Fax Holding Tank Permit Ontario Application for permit to take water. The application can be used to get a permit for: A person must not install, repair, or alter a holding tank unless they hold a permit to construct issued by an environmental health officer (eho), in. Holding tanks are used when it is not possible to install a sewerage system on a property or. Holding Tank Permit Ontario.
From www.pdffiller.com
Fillable Online hatfieldtownship Storage Tank Permit Application Holding Tank Permit Ontario Application for permit to take water. A set of construction grade plans and technical specifications for the holding tank. A proposed maintenance plan for the holding tank. Holding tanks are used when it is not possible to install a sewerage system on a property or connect to a community sewer system. Application for approval of hauled sewage (septage), sewage biosolids. Holding Tank Permit Ontario.
From groundstone.ca
Sewage Holding Tanks, A Look At Permits, Applications, Planning Holding Tank Permit Ontario Holding tanks are used when it is not possible to install a sewerage system on a property or connect to a community sewer system. You need to fill out an application to get a permit for a septic system. Application for permit to take water. Application for approval of hauled sewage (septage), sewage biosolids and other wastes. The application can. Holding Tank Permit Ontario.
From www.templateroller.com
City of Mission, Texas Aboveground/Underground Storage Tank Permit Holding Tank Permit Ontario A person must not install, repair, or alter a holding tank unless they hold a construction permit issued by an environmental health officer, in accordance with the sewerage system regulation. Application for approval of hauled sewage (septage), sewage biosolids and other wastes. Application for permit to take water. Holding tanks are used when it is not possible to install a. Holding Tank Permit Ontario.
From www.templateroller.com
Nevada Permanent Holding Tank Application Fill Out, Sign Online and Holding Tank Permit Ontario You need to fill out an application to get a permit for a septic system. Application for permit to take water. (1) all holding tanks shall be of such design and construction as will allow the complete removal of solid matter that can be expected to. The application can be used to get a permit for: A person must not. Holding Tank Permit Ontario.
From www.ontarioplastics.ca
Ontario Plastics Holding Tank Permit Ontario The application can be used to get a permit for: Application for approval of hauled sewage (septage), sewage biosolids and other wastes. Application for permit to take water. Holding tanks are used when it is not possible to install a sewerage system on a property or connect to a community sewer system. (1) all holding tanks shall be of such. Holding Tank Permit Ontario.
From www.templateroller.com
Montana Major Installation Permit Application for Underground Storage Holding Tank Permit Ontario A person must not install, repair, or alter a holding tank unless they hold a permit to construct issued by an environmental health officer (eho), in. The application can be used to get a permit for: Application for approval of hauled sewage (septage), sewage biosolids and other wastes. Holding tanks are used when it is not possible to install a. Holding Tank Permit Ontario.
From dokumen.tips
(PDF) Form 2 Application for an Undergroud Storage Tank Permit Holding Tank Permit Ontario A proposed maintenance plan for the holding tank. You need to fill out an application to get a permit for a septic system. The application can be used to get a permit for: Application for approval of hauled sewage (septage), sewage biosolids and other wastes. Holding tanks are used when it is not possible to install a sewerage system on. Holding Tank Permit Ontario.
From www.templateroller.com
Nevada Permanent Holding Tank Application Fill Out, Sign Online and Holding Tank Permit Ontario You need to fill out an application to get a permit for a septic system. A proposed maintenance plan for the holding tank. (1) all holding tanks shall be of such design and construction as will allow the complete removal of solid matter that can be expected to. A person must not install, repair, or alter a holding tank unless. Holding Tank Permit Ontario.
From dokumen.tips
(PDF) Septic Tank / Drainfield / Holding Tank Permit Application Holding Tank Permit Ontario The application can be used to get a permit for: Application for permit to take water. You need to fill out an application to get a permit for a septic system. Holding tanks are used when it is not possible to install a sewerage system on a property or connect to a community sewer system. A proposed maintenance plan for. Holding Tank Permit Ontario.
From www.templateroller.com
Nevada Commercial Holding Tank Permit Application Fill Out, Sign Holding Tank Permit Ontario Application for approval of hauled sewage (septage), sewage biosolids and other wastes. The application can be used to get a permit for: (1) all holding tanks shall be of such design and construction as will allow the complete removal of solid matter that can be expected to. You need to fill out an application to get a permit for a. Holding Tank Permit Ontario.
From www.templateroller.com
Nevada Temporary Holding Tanks Notice of Intent (Noi) for Coverage Holding Tank Permit Ontario A proposed maintenance plan for the holding tank. A person must not install, repair, or alter a holding tank unless they hold a construction permit issued by an environmental health officer, in accordance with the sewerage system regulation. Application for permit to take water. (1) all holding tanks shall be of such design and construction as will allow the complete. Holding Tank Permit Ontario.
From www.templateroller.com
Stanislaus County, California Application and Permit to Temporary Close Holding Tank Permit Ontario A set of construction grade plans and technical specifications for the holding tank. The application can be used to get a permit for: Holding tanks are used when it is not possible to install a sewerage system on a property or connect to a community sewer system. A proposed maintenance plan for the holding tank. Application for permit to take. Holding Tank Permit Ontario.
From www.templateroller.com
Inyo County, California Application for a Permit to Install Upgrade or Holding Tank Permit Ontario A set of construction grade plans and technical specifications for the holding tank. Application for approval of hauled sewage (septage), sewage biosolids and other wastes. A person must not install, repair, or alter a holding tank unless they hold a construction permit issued by an environmental health officer, in accordance with the sewerage system regulation. Holding tanks are used when. Holding Tank Permit Ontario.