What Is Welding Procedure Qualification Record . A procedure qualification record (pqr) is a supporting document for wps. The procedure qualification record (pqr) is a document that demonstrates that a particular welding procedure has been tested. The purpose of qualifying a wps is that to indicate joining process. A procedure qualification record (pqr) consists of the actual values recorded during the welding of a test coupon. Pqr provides evidence that a welding procedure meets the predetermined requirements for produced welds. This article talks about procedure qualification record (pqr) based on requirements of asme code section ix. The american welding society states before drafting a wps, it must establish a preliminary set of procedures and materials. The pqr documentation verifies that the test coupon has met all. What is welder performance qualification record (wpqr)? Once the procedure is approved it is necessary to demonstrate that all your welders working to it have the required. A wps is supported by a procedure qualification record (pqr or wpqr), a formal record of a test weld performed and rigorously tested to ensure. What welding procedure specifications (wpss) and procedure qualification records (pqrs) are and how they are used in the welding industry;.
from www.researchgate.net
Pqr provides evidence that a welding procedure meets the predetermined requirements for produced welds. The pqr documentation verifies that the test coupon has met all. A procedure qualification record (pqr) consists of the actual values recorded during the welding of a test coupon. This article talks about procedure qualification record (pqr) based on requirements of asme code section ix. The american welding society states before drafting a wps, it must establish a preliminary set of procedures and materials. A wps is supported by a procedure qualification record (pqr or wpqr), a formal record of a test weld performed and rigorously tested to ensure. What welding procedure specifications (wpss) and procedure qualification records (pqrs) are and how they are used in the welding industry;. Once the procedure is approved it is necessary to demonstrate that all your welders working to it have the required. The procedure qualification record (pqr) is a document that demonstrates that a particular welding procedure has been tested. The purpose of qualifying a wps is that to indicate joining process.
Welding procedure qualification record page 1 of 2. Download
What Is Welding Procedure Qualification Record This article talks about procedure qualification record (pqr) based on requirements of asme code section ix. What welding procedure specifications (wpss) and procedure qualification records (pqrs) are and how they are used in the welding industry;. What is welder performance qualification record (wpqr)? This article talks about procedure qualification record (pqr) based on requirements of asme code section ix. A procedure qualification record (pqr) is a supporting document for wps. A wps is supported by a procedure qualification record (pqr or wpqr), a formal record of a test weld performed and rigorously tested to ensure. The purpose of qualifying a wps is that to indicate joining process. The american welding society states before drafting a wps, it must establish a preliminary set of procedures and materials. The pqr documentation verifies that the test coupon has met all. A procedure qualification record (pqr) consists of the actual values recorded during the welding of a test coupon. Once the procedure is approved it is necessary to demonstrate that all your welders working to it have the required. Pqr provides evidence that a welding procedure meets the predetermined requirements for produced welds. The procedure qualification record (pqr) is a document that demonstrates that a particular welding procedure has been tested.
From www.goodreads.com
Welding Procedure Specification (WPS) & Procedure Qualification Record What Is Welding Procedure Qualification Record The procedure qualification record (pqr) is a document that demonstrates that a particular welding procedure has been tested. A wps is supported by a procedure qualification record (pqr or wpqr), a formal record of a test weld performed and rigorously tested to ensure. The american welding society states before drafting a wps, it must establish a preliminary set of procedures. What Is Welding Procedure Qualification Record.
From pdfslide.net
(PDF) Form QW483 Welding Procedure Qualification Record · aw483 What Is Welding Procedure Qualification Record The purpose of qualifying a wps is that to indicate joining process. Pqr provides evidence that a welding procedure meets the predetermined requirements for produced welds. A procedure qualification record (pqr) consists of the actual values recorded during the welding of a test coupon. A wps is supported by a procedure qualification record (pqr or wpqr), a formal record of. What Is Welding Procedure Qualification Record.
From www.scribd.com
Qw483 Suggested Format For Welding Procedure Qualification Records What Is Welding Procedure Qualification Record The procedure qualification record (pqr) is a document that demonstrates that a particular welding procedure has been tested. A procedure qualification record (pqr) consists of the actual values recorded during the welding of a test coupon. What is welder performance qualification record (wpqr)? The american welding society states before drafting a wps, it must establish a preliminary set of procedures. What Is Welding Procedure Qualification Record.
From www.researchgate.net
Welding procedure qualification record page 1 of 2. Download What Is Welding Procedure Qualification Record A procedure qualification record (pqr) consists of the actual values recorded during the welding of a test coupon. A wps is supported by a procedure qualification record (pqr or wpqr), a formal record of a test weld performed and rigorously tested to ensure. What welding procedure specifications (wpss) and procedure qualification records (pqrs) are and how they are used in. What Is Welding Procedure Qualification Record.
From www.scribd.com
Welder and Welder Operator Qualification Record Form PDF What Is Welding Procedure Qualification Record The pqr documentation verifies that the test coupon has met all. Pqr provides evidence that a welding procedure meets the predetermined requirements for produced welds. Once the procedure is approved it is necessary to demonstrate that all your welders working to it have the required. This article talks about procedure qualification record (pqr) based on requirements of asme code section. What Is Welding Procedure Qualification Record.
From mewelding.com
How to Write a Welder Performance Qualification Record What Is Welding Procedure Qualification Record The pqr documentation verifies that the test coupon has met all. A procedure qualification record (pqr) is a supporting document for wps. The purpose of qualifying a wps is that to indicate joining process. A procedure qualification record (pqr) consists of the actual values recorded during the welding of a test coupon. What is welder performance qualification record (wpqr)? What. What Is Welding Procedure Qualification Record.
From www.scribd.com
Procedure Qualification Record (Pqr) Pipeline ButtWeld Through What Is Welding Procedure Qualification Record Pqr provides evidence that a welding procedure meets the predetermined requirements for produced welds. The pqr documentation verifies that the test coupon has met all. Once the procedure is approved it is necessary to demonstrate that all your welders working to it have the required. What is welder performance qualification record (wpqr)? A wps is supported by a procedure qualification. What Is Welding Procedure Qualification Record.
From www.researchgate.net
Welding procedure qualification record page 2 of 2. Download What Is Welding Procedure Qualification Record The american welding society states before drafting a wps, it must establish a preliminary set of procedures and materials. A procedure qualification record (pqr) is a supporting document for wps. A procedure qualification record (pqr) consists of the actual values recorded during the welding of a test coupon. What welding procedure specifications (wpss) and procedure qualification records (pqrs) are and. What Is Welding Procedure Qualification Record.
From ndtcenter.blogspot.com
How to get Welder Certificate? What Is Welding Procedure Qualification Record The purpose of qualifying a wps is that to indicate joining process. What is welder performance qualification record (wpqr)? The pqr documentation verifies that the test coupon has met all. The procedure qualification record (pqr) is a document that demonstrates that a particular welding procedure has been tested. Once the procedure is approved it is necessary to demonstrate that all. What Is Welding Procedure Qualification Record.
From www.uslegalforms.com
SAMPLE FORM FOR WELDING PROCEDURE QUALIFICATION RECORD (PQR) Fill and What Is Welding Procedure Qualification Record The procedure qualification record (pqr) is a document that demonstrates that a particular welding procedure has been tested. What welding procedure specifications (wpss) and procedure qualification records (pqrs) are and how they are used in the welding industry;. This article talks about procedure qualification record (pqr) based on requirements of asme code section ix. The pqr documentation verifies that the. What Is Welding Procedure Qualification Record.
From www.scribd.com
Procedure Qualification Records PDF Construction Welding What Is Welding Procedure Qualification Record Pqr provides evidence that a welding procedure meets the predetermined requirements for produced welds. The purpose of qualifying a wps is that to indicate joining process. The procedure qualification record (pqr) is a document that demonstrates that a particular welding procedure has been tested. What is welder performance qualification record (wpqr)? A procedure qualification record (pqr) consists of the actual. What Is Welding Procedure Qualification Record.
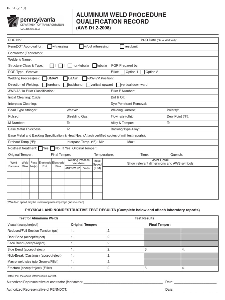
From www.scribd.com
Aluminum Weld Procedure Qualification Record (AWS D1.22008) PDF What Is Welding Procedure Qualification Record The pqr documentation verifies that the test coupon has met all. This article talks about procedure qualification record (pqr) based on requirements of asme code section ix. The purpose of qualifying a wps is that to indicate joining process. The american welding society states before drafting a wps, it must establish a preliminary set of procedures and materials. A procedure. What Is Welding Procedure Qualification Record.
From www.scribd.com
Welding Procedure Qualification Records (Wpqr) (Section IX, ASME What Is Welding Procedure Qualification Record What is welder performance qualification record (wpqr)? A wps is supported by a procedure qualification record (pqr or wpqr), a formal record of a test weld performed and rigorously tested to ensure. A procedure qualification record (pqr) is a supporting document for wps. The procedure qualification record (pqr) is a document that demonstrates that a particular welding procedure has been. What Is Welding Procedure Qualification Record.
From www.pipingengineer.org
Welding Procedure Qualification Record Format » The Piping Engineering What Is Welding Procedure Qualification Record A procedure qualification record (pqr) consists of the actual values recorded during the welding of a test coupon. A wps is supported by a procedure qualification record (pqr or wpqr), a formal record of a test weld performed and rigorously tested to ensure. This article talks about procedure qualification record (pqr) based on requirements of asme code section ix. What. What Is Welding Procedure Qualification Record.
From sitemate.com
Welder Qualification Test Procedure & Record Form (WQT) What Is Welding Procedure Qualification Record The american welding society states before drafting a wps, it must establish a preliminary set of procedures and materials. Once the procedure is approved it is necessary to demonstrate that all your welders working to it have the required. A wps is supported by a procedure qualification record (pqr or wpqr), a formal record of a test weld performed and. What Is Welding Procedure Qualification Record.
From sitemate.com
Welder Qualification Test Procedure & Record Form (WQT) What Is Welding Procedure Qualification Record The procedure qualification record (pqr) is a document that demonstrates that a particular welding procedure has been tested. A wps is supported by a procedure qualification record (pqr or wpqr), a formal record of a test weld performed and rigorously tested to ensure. The american welding society states before drafting a wps, it must establish a preliminary set of procedures. What Is Welding Procedure Qualification Record.
From www.pipingengineer.org
Welding Procedure Qualification Record Format » The Piping Engineering What Is Welding Procedure Qualification Record The american welding society states before drafting a wps, it must establish a preliminary set of procedures and materials. What welding procedure specifications (wpss) and procedure qualification records (pqrs) are and how they are used in the welding industry;. Pqr provides evidence that a welding procedure meets the predetermined requirements for produced welds. The purpose of qualifying a wps is. What Is Welding Procedure Qualification Record.
From www.edu-skills.org
EduSkills Welding procedureWPS and procedure qualification record PQR What Is Welding Procedure Qualification Record The purpose of qualifying a wps is that to indicate joining process. The american welding society states before drafting a wps, it must establish a preliminary set of procedures and materials. This article talks about procedure qualification record (pqr) based on requirements of asme code section ix. The procedure qualification record (pqr) is a document that demonstrates that a particular. What Is Welding Procedure Qualification Record.
From www.scribd.com
Procedure Qualification Record PDF Welding Construction What Is Welding Procedure Qualification Record A procedure qualification record (pqr) is a supporting document for wps. The procedure qualification record (pqr) is a document that demonstrates that a particular welding procedure has been tested. The american welding society states before drafting a wps, it must establish a preliminary set of procedures and materials. Once the procedure is approved it is necessary to demonstrate that all. What Is Welding Procedure Qualification Record.
From www.scribd.com
Procedure Qualification Record (PQR) Form PDF Welding Construction What Is Welding Procedure Qualification Record What welding procedure specifications (wpss) and procedure qualification records (pqrs) are and how they are used in the welding industry;. The pqr documentation verifies that the test coupon has met all. A procedure qualification record (pqr) consists of the actual values recorded during the welding of a test coupon. Pqr provides evidence that a welding procedure meets the predetermined requirements. What Is Welding Procedure Qualification Record.
From eziil.com
What is Welding Procedure Specification (WPS)? What Is Welding Procedure Qualification Record A procedure qualification record (pqr) consists of the actual values recorded during the welding of a test coupon. This article talks about procedure qualification record (pqr) based on requirements of asme code section ix. The purpose of qualifying a wps is that to indicate joining process. Once the procedure is approved it is necessary to demonstrate that all your welders. What Is Welding Procedure Qualification Record.
From www.youtube.com
WPQR (Welding Procedure Qualification Record) (Language English) YouTube What Is Welding Procedure Qualification Record Pqr provides evidence that a welding procedure meets the predetermined requirements for produced welds. A procedure qualification record (pqr) consists of the actual values recorded during the welding of a test coupon. The pqr documentation verifies that the test coupon has met all. A procedure qualification record (pqr) is a supporting document for wps. This article talks about procedure qualification. What Is Welding Procedure Qualification Record.
From sterlingndt.us
Welding and Procedure Qualification Sterling Inspection LLC What Is Welding Procedure Qualification Record The purpose of qualifying a wps is that to indicate joining process. A wps is supported by a procedure qualification record (pqr or wpqr), a formal record of a test weld performed and rigorously tested to ensure. Once the procedure is approved it is necessary to demonstrate that all your welders working to it have the required. A procedure qualification. What Is Welding Procedure Qualification Record.
From www.academia.edu
(PDF) Guide to understanding Welding Procedure Specification (WPS What Is Welding Procedure Qualification Record The purpose of qualifying a wps is that to indicate joining process. Pqr provides evidence that a welding procedure meets the predetermined requirements for produced welds. This article talks about procedure qualification record (pqr) based on requirements of asme code section ix. The procedure qualification record (pqr) is a document that demonstrates that a particular welding procedure has been tested.. What Is Welding Procedure Qualification Record.
From formspal.com
Welder Performance Qualification Record PDF Form FormsPal What Is Welding Procedure Qualification Record A procedure qualification record (pqr) consists of the actual values recorded during the welding of a test coupon. The purpose of qualifying a wps is that to indicate joining process. What is welder performance qualification record (wpqr)? What welding procedure specifications (wpss) and procedure qualification records (pqrs) are and how they are used in the welding industry;. Pqr provides evidence. What Is Welding Procedure Qualification Record.
From www.formsbank.com
Fillable Stud Welding Procedure Specification (Wps) Form Or Procedure What Is Welding Procedure Qualification Record A wps is supported by a procedure qualification record (pqr or wpqr), a formal record of a test weld performed and rigorously tested to ensure. The pqr documentation verifies that the test coupon has met all. A procedure qualification record (pqr) consists of the actual values recorded during the welding of a test coupon. The procedure qualification record (pqr) is. What Is Welding Procedure Qualification Record.
From dokumen.tips
(PDF) WELDING PROCEDURE QUALIFICATION RECORD DOKUMEN.TIPS What Is Welding Procedure Qualification Record A wps is supported by a procedure qualification record (pqr or wpqr), a formal record of a test weld performed and rigorously tested to ensure. The american welding society states before drafting a wps, it must establish a preliminary set of procedures and materials. What is welder performance qualification record (wpqr)? The pqr documentation verifies that the test coupon has. What Is Welding Procedure Qualification Record.
From www.scribd.com
Welder Qualification Record Template Welding Construction What Is Welding Procedure Qualification Record This article talks about procedure qualification record (pqr) based on requirements of asme code section ix. Pqr provides evidence that a welding procedure meets the predetermined requirements for produced welds. Once the procedure is approved it is necessary to demonstrate that all your welders working to it have the required. The pqr documentation verifies that the test coupon has met. What Is Welding Procedure Qualification Record.
From www.scribd.com
Guide To Understanding Welding Procedure Specification (WPS), Procedure What Is Welding Procedure Qualification Record A wps is supported by a procedure qualification record (pqr or wpqr), a formal record of a test weld performed and rigorously tested to ensure. The purpose of qualifying a wps is that to indicate joining process. This article talks about procedure qualification record (pqr) based on requirements of asme code section ix. The pqr documentation verifies that the test. What Is Welding Procedure Qualification Record.
From www.academia.edu
(PDF) QW483 SUGGESTED FORMAT FOR PROCEDURE QUALIFICATION RECORDS (PQR What Is Welding Procedure Qualification Record A procedure qualification record (pqr) is a supporting document for wps. What welding procedure specifications (wpss) and procedure qualification records (pqrs) are and how they are used in the welding industry;. The procedure qualification record (pqr) is a document that demonstrates that a particular welding procedure has been tested. What is welder performance qualification record (wpqr)? A wps is supported. What Is Welding Procedure Qualification Record.
From www.scribd.com
Typical Welder Qualification Certificate Welding Construction What Is Welding Procedure Qualification Record What is welder performance qualification record (wpqr)? A procedure qualification record (pqr) is a supporting document for wps. The pqr documentation verifies that the test coupon has met all. Pqr provides evidence that a welding procedure meets the predetermined requirements for produced welds. The purpose of qualifying a wps is that to indicate joining process. This article talks about procedure. What Is Welding Procedure Qualification Record.
From www.scribd.com
Welding Procedure Qualification Record (WPQR) (EN / ISO 1561412017 What Is Welding Procedure Qualification Record Once the procedure is approved it is necessary to demonstrate that all your welders working to it have the required. The american welding society states before drafting a wps, it must establish a preliminary set of procedures and materials. Pqr provides evidence that a welding procedure meets the predetermined requirements for produced welds. A procedure qualification record (pqr) consists of. What Is Welding Procedure Qualification Record.
From infoweldings.blogspot.com
Welding Procedure Specification For Carbon Steel Pipe Info Welding What Is Welding Procedure Qualification Record A procedure qualification record (pqr) consists of the actual values recorded during the welding of a test coupon. The american welding society states before drafting a wps, it must establish a preliminary set of procedures and materials. What welding procedure specifications (wpss) and procedure qualification records (pqrs) are and how they are used in the welding industry;. A procedure qualification. What Is Welding Procedure Qualification Record.
From www.researchgate.net
(PDF) Welding Procedure Qualification Record (WPQR) for Welds What Is Welding Procedure Qualification Record A procedure qualification record (pqr) is a supporting document for wps. This article talks about procedure qualification record (pqr) based on requirements of asme code section ix. What welding procedure specifications (wpss) and procedure qualification records (pqrs) are and how they are used in the welding industry;. A procedure qualification record (pqr) consists of the actual values recorded during the. What Is Welding Procedure Qualification Record.
From es.scribd.com
ATF_WelderTestPackage_v2 Welder and Welding Operator Perfomance What Is Welding Procedure Qualification Record A procedure qualification record (pqr) consists of the actual values recorded during the welding of a test coupon. The procedure qualification record (pqr) is a document that demonstrates that a particular welding procedure has been tested. A wps is supported by a procedure qualification record (pqr or wpqr), a formal record of a test weld performed and rigorously tested to. What Is Welding Procedure Qualification Record.