Hydraulic Elevator Details Dwg . Subscribe to our newsletter and get exclusive access to free dwg and bim files, plus the latest trends in architecture and construction. Improve the efficiency and safety of your projects with our. Lifts, elevators, useful cad library of autocad models, cad blocks in plan, elevation view Email field is required to subscribe. Hydraulic elevator, plan, section and details are presented. Contains construction details, made in autocad. Download cad block in dwg. Access cad drawings for elevators, escalators, and other conveying equipment. Download cad block in dwg.
from www.bibliocad.com
Access cad drawings for elevators, escalators, and other conveying equipment. Subscribe to our newsletter and get exclusive access to free dwg and bim files, plus the latest trends in architecture and construction. Email field is required to subscribe. Download cad block in dwg. Improve the efficiency and safety of your projects with our. Contains construction details, made in autocad. Hydraulic elevator, plan, section and details are presented. Lifts, elevators, useful cad library of autocad models, cad blocks in plan, elevation view Download cad block in dwg.
Details elevator in AutoCAD CAD download (226.35 KB) Bibliocad
Hydraulic Elevator Details Dwg Hydraulic elevator, plan, section and details are presented. Improve the efficiency and safety of your projects with our. Subscribe to our newsletter and get exclusive access to free dwg and bim files, plus the latest trends in architecture and construction. Lifts, elevators, useful cad library of autocad models, cad blocks in plan, elevation view Hydraulic elevator, plan, section and details are presented. Email field is required to subscribe. Download cad block in dwg. Contains construction details, made in autocad. Download cad block in dwg. Access cad drawings for elevators, escalators, and other conveying equipment.
From cadbull.com
Elevator Installation Plan DWG File Cadbull Hydraulic Elevator Details Dwg Download cad block in dwg. Improve the efficiency and safety of your projects with our. Access cad drawings for elevators, escalators, and other conveying equipment. Subscribe to our newsletter and get exclusive access to free dwg and bim files, plus the latest trends in architecture and construction. Download cad block in dwg. Lifts, elevators, useful cad library of autocad models,. Hydraulic Elevator Details Dwg.
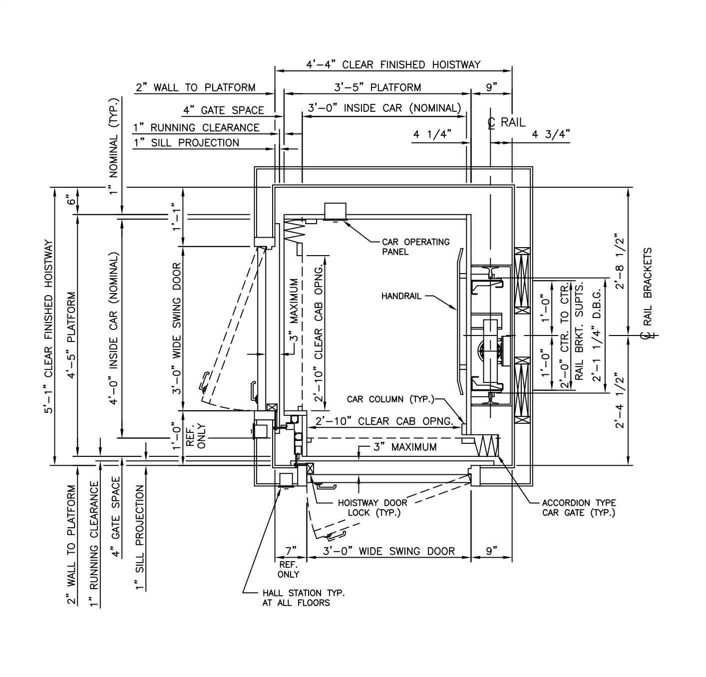
From www.dimensions.com
Hydraulic Elevators Lifts Dimensions & Drawings Hydraulic Elevator Details Dwg Email field is required to subscribe. Download cad block in dwg. Improve the efficiency and safety of your projects with our. Hydraulic elevator, plan, section and details are presented. Subscribe to our newsletter and get exclusive access to free dwg and bim files, plus the latest trends in architecture and construction. Contains construction details, made in autocad. Access cad drawings. Hydraulic Elevator Details Dwg.
From cadbull.com
Elevator detail CAD machinery blocks layout 2d view layout autocad Hydraulic Elevator Details Dwg Improve the efficiency and safety of your projects with our. Contains construction details, made in autocad. Access cad drawings for elevators, escalators, and other conveying equipment. Hydraulic elevator, plan, section and details are presented. Subscribe to our newsletter and get exclusive access to free dwg and bim files, plus the latest trends in architecture and construction. Download cad block in. Hydraulic Elevator Details Dwg.
From designscad.com
Elevator Ap Schinder 3300 DWG Detail for AutoCAD • Designs CAD Hydraulic Elevator Details Dwg Download cad block in dwg. Subscribe to our newsletter and get exclusive access to free dwg and bim files, plus the latest trends in architecture and construction. Access cad drawings for elevators, escalators, and other conveying equipment. Lifts, elevators, useful cad library of autocad models, cad blocks in plan, elevation view Contains construction details, made in autocad. Download cad block. Hydraulic Elevator Details Dwg.
From www.cadblocks.pislikmimar.com
[DWG] Lift, Elevator Section and Plan Drawing in Autocad Hydraulic Elevator Details Dwg Download cad block in dwg. Hydraulic elevator, plan, section and details are presented. Download cad block in dwg. Subscribe to our newsletter and get exclusive access to free dwg and bim files, plus the latest trends in architecture and construction. Email field is required to subscribe. Improve the efficiency and safety of your projects with our. Lifts, elevators, useful cad. Hydraulic Elevator Details Dwg.
From cadbull.com
Lift elevator design sectional detail dwg file Cadbull Hydraulic Elevator Details Dwg Hydraulic elevator, plan, section and details are presented. Email field is required to subscribe. Lifts, elevators, useful cad library of autocad models, cad blocks in plan, elevation view Access cad drawings for elevators, escalators, and other conveying equipment. Contains construction details, made in autocad. Download cad block in dwg. Download cad block in dwg. Improve the efficiency and safety of. Hydraulic Elevator Details Dwg.
From cadbull.com
Elevator detail elevation and plan dwg file Cadbull Hydraulic Elevator Details Dwg Access cad drawings for elevators, escalators, and other conveying equipment. Email field is required to subscribe. Hydraulic elevator, plan, section and details are presented. Improve the efficiency and safety of your projects with our. Subscribe to our newsletter and get exclusive access to free dwg and bim files, plus the latest trends in architecture and construction. Download cad block in. Hydraulic Elevator Details Dwg.
From designscad.com
Elevator DWG Plan for AutoCAD • Designs CAD Hydraulic Elevator Details Dwg Download cad block in dwg. Access cad drawings for elevators, escalators, and other conveying equipment. Contains construction details, made in autocad. Download cad block in dwg. Improve the efficiency and safety of your projects with our. Hydraulic elevator, plan, section and details are presented. Email field is required to subscribe. Subscribe to our newsletter and get exclusive access to free. Hydraulic Elevator Details Dwg.
From designscad.com
Details Elevator DWG Detail for AutoCAD • Designs CAD Hydraulic Elevator Details Dwg Email field is required to subscribe. Contains construction details, made in autocad. Access cad drawings for elevators, escalators, and other conveying equipment. Download cad block in dwg. Download cad block in dwg. Improve the efficiency and safety of your projects with our. Hydraulic elevator, plan, section and details are presented. Lifts, elevators, useful cad library of autocad models, cad blocks. Hydraulic Elevator Details Dwg.
From cadbull.com
Elevator plan and section detail dwg file Cadbull Hydraulic Elevator Details Dwg Download cad block in dwg. Improve the efficiency and safety of your projects with our. Access cad drawings for elevators, escalators, and other conveying equipment. Email field is required to subscribe. Download cad block in dwg. Contains construction details, made in autocad. Lifts, elevators, useful cad library of autocad models, cad blocks in plan, elevation view Hydraulic elevator, plan, section. Hydraulic Elevator Details Dwg.
From cadbull.com
Elevators plan and installation autocad drawing details dwg file Cadbull Hydraulic Elevator Details Dwg Email field is required to subscribe. Download cad block in dwg. Hydraulic elevator, plan, section and details are presented. Improve the efficiency and safety of your projects with our. Subscribe to our newsletter and get exclusive access to free dwg and bim files, plus the latest trends in architecture and construction. Contains construction details, made in autocad. Access cad drawings. Hydraulic Elevator Details Dwg.
From cadbull.com
Elevator section and installation details with machine room cad drawing Hydraulic Elevator Details Dwg Download cad block in dwg. Contains construction details, made in autocad. Download cad block in dwg. Lifts, elevators, useful cad library of autocad models, cad blocks in plan, elevation view Subscribe to our newsletter and get exclusive access to free dwg and bim files, plus the latest trends in architecture and construction. Email field is required to subscribe. Improve the. Hydraulic Elevator Details Dwg.
From cadbull.com
Lift Design elevation and section autocad file Cadbull Hydraulic Elevator Details Dwg Access cad drawings for elevators, escalators, and other conveying equipment. Contains construction details, made in autocad. Subscribe to our newsletter and get exclusive access to free dwg and bim files, plus the latest trends in architecture and construction. Download cad block in dwg. Email field is required to subscribe. Download cad block in dwg. Hydraulic elevator, plan, section and details. Hydraulic Elevator Details Dwg.
From designscad.com
Hydraulic Lift Construction Details DWG Section for AutoCAD • Designs CAD Hydraulic Elevator Details Dwg Email field is required to subscribe. Download cad block in dwg. Subscribe to our newsletter and get exclusive access to free dwg and bim files, plus the latest trends in architecture and construction. Contains construction details, made in autocad. Download cad block in dwg. Improve the efficiency and safety of your projects with our. Hydraulic elevator, plan, section and details. Hydraulic Elevator Details Dwg.
From designscad.com
ElevatorConstruction Details DWG Plan for AutoCAD • DesignsCAD Hydraulic Elevator Details Dwg Download cad block in dwg. Subscribe to our newsletter and get exclusive access to free dwg and bim files, plus the latest trends in architecture and construction. Lifts, elevators, useful cad library of autocad models, cad blocks in plan, elevation view Download cad block in dwg. Contains construction details, made in autocad. Email field is required to subscribe. Improve the. Hydraulic Elevator Details Dwg.
From www.bibliocad.com
Details elevator in AutoCAD CAD download (226.35 KB) Bibliocad Hydraulic Elevator Details Dwg Lifts, elevators, useful cad library of autocad models, cad blocks in plan, elevation view Download cad block in dwg. Hydraulic elevator, plan, section and details are presented. Email field is required to subscribe. Access cad drawings for elevators, escalators, and other conveying equipment. Subscribe to our newsletter and get exclusive access to free dwg and bim files, plus the latest. Hydraulic Elevator Details Dwg.
From www.bibliocad.com
Elevator detail in AutoCAD CAD download (249.5 KB) Bibliocad Hydraulic Elevator Details Dwg Hydraulic elevator, plan, section and details are presented. Download cad block in dwg. Subscribe to our newsletter and get exclusive access to free dwg and bim files, plus the latest trends in architecture and construction. Email field is required to subscribe. Contains construction details, made in autocad. Lifts, elevators, useful cad library of autocad models, cad blocks in plan, elevation. Hydraulic Elevator Details Dwg.
From www.artofit.org
Elevator sections and constructive structure details for 21 passengers Hydraulic Elevator Details Dwg Download cad block in dwg. Hydraulic elevator, plan, section and details are presented. Subscribe to our newsletter and get exclusive access to free dwg and bim files, plus the latest trends in architecture and construction. Access cad drawings for elevators, escalators, and other conveying equipment. Email field is required to subscribe. Improve the efficiency and safety of your projects with. Hydraulic Elevator Details Dwg.
From www.customelevatorinc.com
Hydraulic Drawings Custom Elevator Hydraulic Elevator Details Dwg Lifts, elevators, useful cad library of autocad models, cad blocks in plan, elevation view Access cad drawings for elevators, escalators, and other conveying equipment. Contains construction details, made in autocad. Email field is required to subscribe. Subscribe to our newsletter and get exclusive access to free dwg and bim files, plus the latest trends in architecture and construction. Hydraulic elevator,. Hydraulic Elevator Details Dwg.
From cadbull.com
Elevator detail drawing in dwg AutoCAD file. Cadbull Hydraulic Elevator Details Dwg Hydraulic elevator, plan, section and details are presented. Improve the efficiency and safety of your projects with our. Access cad drawings for elevators, escalators, and other conveying equipment. Subscribe to our newsletter and get exclusive access to free dwg and bim files, plus the latest trends in architecture and construction. Email field is required to subscribe. Download cad block in. Hydraulic Elevator Details Dwg.
From designscad.com
Otis Elevator DWG Section for AutoCAD • Designs CAD Hydraulic Elevator Details Dwg Download cad block in dwg. Lifts, elevators, useful cad library of autocad models, cad blocks in plan, elevation view Email field is required to subscribe. Hydraulic elevator, plan, section and details are presented. Subscribe to our newsletter and get exclusive access to free dwg and bim files, plus the latest trends in architecture and construction. Contains construction details, made in. Hydraulic Elevator Details Dwg.
From www.customelevatorinc.com
Hydraulic Drawings Custom Elevator Hydraulic Elevator Details Dwg Hydraulic elevator, plan, section and details are presented. Download cad block in dwg. Access cad drawings for elevators, escalators, and other conveying equipment. Subscribe to our newsletter and get exclusive access to free dwg and bim files, plus the latest trends in architecture and construction. Contains construction details, made in autocad. Email field is required to subscribe. Improve the efficiency. Hydraulic Elevator Details Dwg.
From www.arcat.com
Hydraulic Passenger Elevators Conveying Equipment CAD Drawing Hydraulic Elevator Details Dwg Access cad drawings for elevators, escalators, and other conveying equipment. Download cad block in dwg. Email field is required to subscribe. Subscribe to our newsletter and get exclusive access to free dwg and bim files, plus the latest trends in architecture and construction. Improve the efficiency and safety of your projects with our. Contains construction details, made in autocad. Hydraulic. Hydraulic Elevator Details Dwg.
From designscad.com
Plane Of Hydraulic Elevator With Technical Characteristics DWG Detail Hydraulic Elevator Details Dwg Improve the efficiency and safety of your projects with our. Download cad block in dwg. Contains construction details, made in autocad. Email field is required to subscribe. Lifts, elevators, useful cad library of autocad models, cad blocks in plan, elevation view Access cad drawings for elevators, escalators, and other conveying equipment. Hydraulic elevator, plan, section and details are presented. Download. Hydraulic Elevator Details Dwg.
From alihassanelashmawy.blogspot.com
Hydraulic Elevators Basic Components Electrical Knowhow Hydraulic Elevator Details Dwg Download cad block in dwg. Access cad drawings for elevators, escalators, and other conveying equipment. Email field is required to subscribe. Hydraulic elevator, plan, section and details are presented. Improve the efficiency and safety of your projects with our. Contains construction details, made in autocad. Subscribe to our newsletter and get exclusive access to free dwg and bim files, plus. Hydraulic Elevator Details Dwg.
From cadbull.com
Elevator dwg autocad file elevation detail Cadbull Hydraulic Elevator Details Dwg Hydraulic elevator, plan, section and details are presented. Improve the efficiency and safety of your projects with our. Lifts, elevators, useful cad library of autocad models, cad blocks in plan, elevation view Access cad drawings for elevators, escalators, and other conveying equipment. Download cad block in dwg. Contains construction details, made in autocad. Download cad block in dwg. Subscribe to. Hydraulic Elevator Details Dwg.
From www.artofit.org
Typical lift elevator detail Artofit Hydraulic Elevator Details Dwg Download cad block in dwg. Email field is required to subscribe. Access cad drawings for elevators, escalators, and other conveying equipment. Contains construction details, made in autocad. Subscribe to our newsletter and get exclusive access to free dwg and bim files, plus the latest trends in architecture and construction. Improve the efficiency and safety of your projects with our. Download. Hydraulic Elevator Details Dwg.
From www.theengineeringcommunity.org
Elevator Reinforcement Free DWG Drawing Hydraulic Elevator Details Dwg Lifts, elevators, useful cad library of autocad models, cad blocks in plan, elevation view Download cad block in dwg. Improve the efficiency and safety of your projects with our. Access cad drawings for elevators, escalators, and other conveying equipment. Download cad block in dwg. Subscribe to our newsletter and get exclusive access to free dwg and bim files, plus the. Hydraulic Elevator Details Dwg.
From designscad.com
Details Elevator DWG Detail for AutoCAD • Designs CAD Hydraulic Elevator Details Dwg Subscribe to our newsletter and get exclusive access to free dwg and bim files, plus the latest trends in architecture and construction. Improve the efficiency and safety of your projects with our. Download cad block in dwg. Download cad block in dwg. Contains construction details, made in autocad. Email field is required to subscribe. Access cad drawings for elevators, escalators,. Hydraulic Elevator Details Dwg.
From cadbull.com
Lift elevator section detail dwg file Cadbull Hydraulic Elevator Details Dwg Lifts, elevators, useful cad library of autocad models, cad blocks in plan, elevation view Subscribe to our newsletter and get exclusive access to free dwg and bim files, plus the latest trends in architecture and construction. Improve the efficiency and safety of your projects with our. Contains construction details, made in autocad. Access cad drawings for elevators, escalators, and other. Hydraulic Elevator Details Dwg.
From designscad.com
Hydraulic Lift DWG Detail for AutoCAD • Designs CAD Hydraulic Elevator Details Dwg Lifts, elevators, useful cad library of autocad models, cad blocks in plan, elevation view Subscribe to our newsletter and get exclusive access to free dwg and bim files, plus the latest trends in architecture and construction. Hydraulic elevator, plan, section and details are presented. Improve the efficiency and safety of your projects with our. Contains construction details, made in autocad.. Hydraulic Elevator Details Dwg.
From www.cadblocksfree.com
Hydraulic Elevators All Sizes .dwg Thousands of free CAD blocks Hydraulic Elevator Details Dwg Lifts, elevators, useful cad library of autocad models, cad blocks in plan, elevation view Hydraulic elevator, plan, section and details are presented. Improve the efficiency and safety of your projects with our. Contains construction details, made in autocad. Subscribe to our newsletter and get exclusive access to free dwg and bim files, plus the latest trends in architecture and construction.. Hydraulic Elevator Details Dwg.
From www.customelevatorinc.com
Hydraulic Drawings Custom Elevator Hydraulic Elevator Details Dwg Email field is required to subscribe. Contains construction details, made in autocad. Hydraulic elevator, plan, section and details are presented. Download cad block in dwg. Subscribe to our newsletter and get exclusive access to free dwg and bim files, plus the latest trends in architecture and construction. Improve the efficiency and safety of your projects with our. Access cad drawings. Hydraulic Elevator Details Dwg.
From www.pinterest.co.kr
Hydraulic elevator Elevator design, Elevation, Lift design Hydraulic Elevator Details Dwg Improve the efficiency and safety of your projects with our. Download cad block in dwg. Contains construction details, made in autocad. Access cad drawings for elevators, escalators, and other conveying equipment. Lifts, elevators, useful cad library of autocad models, cad blocks in plan, elevation view Download cad block in dwg. Subscribe to our newsletter and get exclusive access to free. Hydraulic Elevator Details Dwg.
From designscad.com
Elevator DWG Block for AutoCAD • Designs CAD Hydraulic Elevator Details Dwg Subscribe to our newsletter and get exclusive access to free dwg and bim files, plus the latest trends in architecture and construction. Contains construction details, made in autocad. Download cad block in dwg. Improve the efficiency and safety of your projects with our. Email field is required to subscribe. Hydraulic elevator, plan, section and details are presented. Lifts, elevators, useful. Hydraulic Elevator Details Dwg.