Craft Shop Drawings . Welcome to the world of millwork shop drawings, where craftsmanship meets precision, and creativity is structured by lines and measurements. In this article, we’ll explore the 7 essential tools that can help you craft shop drawings that bring dreams to life. Our guide offers invaluable insights, tools, and resources for successful drawings. At its core, a millwork shop drawing is the detailed roadmap that guides the fabrication of custom. Millwork shop drawings are detailed technical documents that provide a roadmap for crafting custom wooden elements. The foundation of any successful. Perfect for professionals and newcomers in the millwork industry! What are millwork shop drawings? Millwork, the art of crafting custom woodwork and cabinetry, requires meticulous planning and precision to achieve exceptional results. Unlock the secrets to crafting millwork shop drawings with our comprehensive guide.
from www.pinterest.com
What are millwork shop drawings? In this article, we’ll explore the 7 essential tools that can help you craft shop drawings that bring dreams to life. At its core, a millwork shop drawing is the detailed roadmap that guides the fabrication of custom. Millwork shop drawings are detailed technical documents that provide a roadmap for crafting custom wooden elements. Welcome to the world of millwork shop drawings, where craftsmanship meets precision, and creativity is structured by lines and measurements. Our guide offers invaluable insights, tools, and resources for successful drawings. The foundation of any successful. Perfect for professionals and newcomers in the millwork industry! Millwork, the art of crafting custom woodwork and cabinetry, requires meticulous planning and precision to achieve exceptional results. Unlock the secrets to crafting millwork shop drawings with our comprehensive guide.
How to Draw a Shop Easy StepbyStep Tutorial
Craft Shop Drawings At its core, a millwork shop drawing is the detailed roadmap that guides the fabrication of custom. Our guide offers invaluable insights, tools, and resources for successful drawings. In this article, we’ll explore the 7 essential tools that can help you craft shop drawings that bring dreams to life. Millwork shop drawings are detailed technical documents that provide a roadmap for crafting custom wooden elements. At its core, a millwork shop drawing is the detailed roadmap that guides the fabrication of custom. The foundation of any successful. Perfect for professionals and newcomers in the millwork industry! Unlock the secrets to crafting millwork shop drawings with our comprehensive guide. Welcome to the world of millwork shop drawings, where craftsmanship meets precision, and creativity is structured by lines and measurements. What are millwork shop drawings? Millwork, the art of crafting custom woodwork and cabinetry, requires meticulous planning and precision to achieve exceptional results.
From www.pinterest.fr
Superior Shop Drawings Drafting Standards Superior Shop Drawings Craft Shop Drawings Welcome to the world of millwork shop drawings, where craftsmanship meets precision, and creativity is structured by lines and measurements. In this article, we’ll explore the 7 essential tools that can help you craft shop drawings that bring dreams to life. Our guide offers invaluable insights, tools, and resources for successful drawings. Unlock the secrets to crafting millwork shop drawings. Craft Shop Drawings.
From artprojectsforkids.org
Draw a Shop Art Projects for Kids Craft Shop Drawings Perfect for professionals and newcomers in the millwork industry! Millwork, the art of crafting custom woodwork and cabinetry, requires meticulous planning and precision to achieve exceptional results. Unlock the secrets to crafting millwork shop drawings with our comprehensive guide. The foundation of any successful. Welcome to the world of millwork shop drawings, where craftsmanship meets precision, and creativity is structured. Craft Shop Drawings.
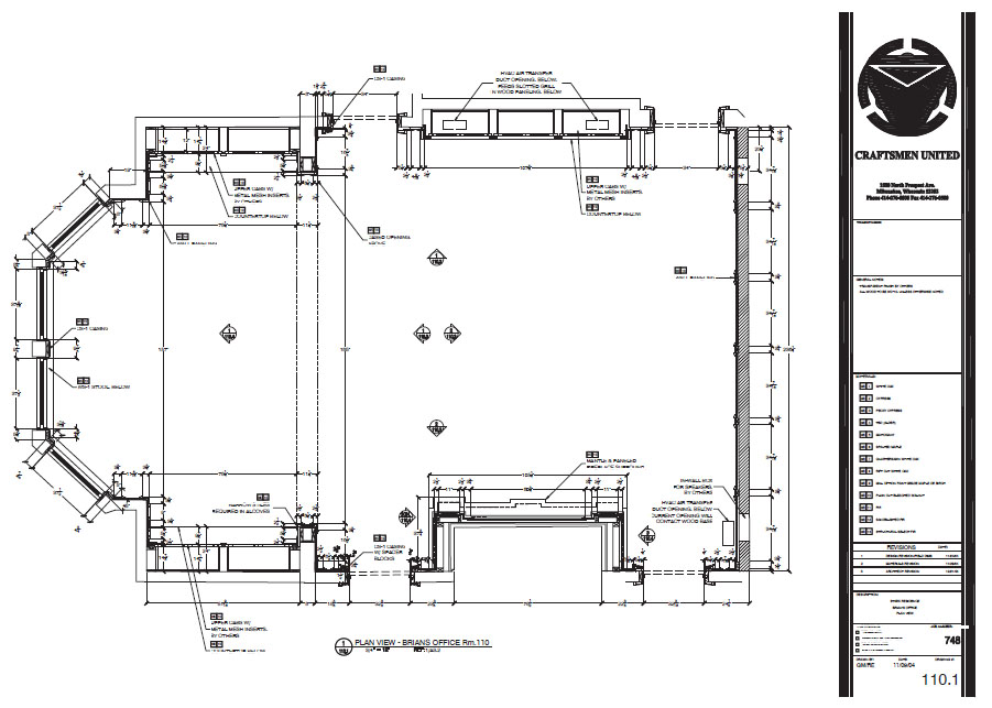
From www.craftsmenunited.com
Shop Drawings CraftsmenUnited Craft Shop Drawings Welcome to the world of millwork shop drawings, where craftsmanship meets precision, and creativity is structured by lines and measurements. Millwork shop drawings are detailed technical documents that provide a roadmap for crafting custom wooden elements. Millwork, the art of crafting custom woodwork and cabinetry, requires meticulous planning and precision to achieve exceptional results. At its core, a millwork shop. Craft Shop Drawings.
From artprojectsforkids.org
How to Draw a Store · Art Projects for Kids Craft Shop Drawings Millwork shop drawings are detailed technical documents that provide a roadmap for crafting custom wooden elements. Millwork, the art of crafting custom woodwork and cabinetry, requires meticulous planning and precision to achieve exceptional results. In this article, we’ll explore the 7 essential tools that can help you craft shop drawings that bring dreams to life. The foundation of any successful.. Craft Shop Drawings.
From www.craftsmenunited.com
Shop Drawings CraftsmenUnited Craft Shop Drawings The foundation of any successful. Millwork, the art of crafting custom woodwork and cabinetry, requires meticulous planning and precision to achieve exceptional results. Millwork shop drawings are detailed technical documents that provide a roadmap for crafting custom wooden elements. Unlock the secrets to crafting millwork shop drawings with our comprehensive guide. What are millwork shop drawings? Welcome to the world. Craft Shop Drawings.
From paintingvalley.com
Gift Shop Drawing at Explore collection of Gift Craft Shop Drawings Unlock the secrets to crafting millwork shop drawings with our comprehensive guide. What are millwork shop drawings? Millwork, the art of crafting custom woodwork and cabinetry, requires meticulous planning and precision to achieve exceptional results. Perfect for professionals and newcomers in the millwork industry! In this article, we’ll explore the 7 essential tools that can help you craft shop drawings. Craft Shop Drawings.
From superiorshopdrawings.com
What are Millwork Shop Drawings? Superior Shop Drawings Craft Shop Drawings At its core, a millwork shop drawing is the detailed roadmap that guides the fabrication of custom. Millwork, the art of crafting custom woodwork and cabinetry, requires meticulous planning and precision to achieve exceptional results. In this article, we’ll explore the 7 essential tools that can help you craft shop drawings that bring dreams to life. Unlock the secrets to. Craft Shop Drawings.
From easydrawingguides.com
How to Draw a Shop Really Easy Drawing Tutorial Craft Shop Drawings The foundation of any successful. Our guide offers invaluable insights, tools, and resources for successful drawings. Unlock the secrets to crafting millwork shop drawings with our comprehensive guide. Perfect for professionals and newcomers in the millwork industry! In this article, we’ll explore the 7 essential tools that can help you craft shop drawings that bring dreams to life. Millwork, the. Craft Shop Drawings.
From superiorshopdrawings.com
The Shop Drawing Process Superior Shop Drawings Craft Shop Drawings Welcome to the world of millwork shop drawings, where craftsmanship meets precision, and creativity is structured by lines and measurements. What are millwork shop drawings? Millwork, the art of crafting custom woodwork and cabinetry, requires meticulous planning and precision to achieve exceptional results. Our guide offers invaluable insights, tools, and resources for successful drawings. In this article, we’ll explore the. Craft Shop Drawings.
From paintingvalley.com
Store Drawing at Explore collection of Store Drawing Craft Shop Drawings Unlock the secrets to crafting millwork shop drawings with our comprehensive guide. Welcome to the world of millwork shop drawings, where craftsmanship meets precision, and creativity is structured by lines and measurements. Millwork, the art of crafting custom woodwork and cabinetry, requires meticulous planning and precision to achieve exceptional results. At its core, a millwork shop drawing is the detailed. Craft Shop Drawings.
From mavink.com
What Are Shop Drawings Craft Shop Drawings At its core, a millwork shop drawing is the detailed roadmap that guides the fabrication of custom. Millwork shop drawings are detailed technical documents that provide a roadmap for crafting custom wooden elements. Unlock the secrets to crafting millwork shop drawings with our comprehensive guide. In this article, we’ll explore the 7 essential tools that can help you craft shop. Craft Shop Drawings.
From www.vecteezy.com
Souvenir Shop with Various the Gifts, Decorative Vases and Jewelry to Craft Shop Drawings Welcome to the world of millwork shop drawings, where craftsmanship meets precision, and creativity is structured by lines and measurements. Perfect for professionals and newcomers in the millwork industry! Our guide offers invaluable insights, tools, and resources for successful drawings. At its core, a millwork shop drawing is the detailed roadmap that guides the fabrication of custom. Unlock the secrets. Craft Shop Drawings.
From www.pinterest.co.kr
fun drawings Shop illustration, Building illustration, Illustration Craft Shop Drawings In this article, we’ll explore the 7 essential tools that can help you craft shop drawings that bring dreams to life. What are millwork shop drawings? The foundation of any successful. At its core, a millwork shop drawing is the detailed roadmap that guides the fabrication of custom. Millwork shop drawings are detailed technical documents that provide a roadmap for. Craft Shop Drawings.
From howtodrawforkids.com
How to Draw a Shop Easy Drawing Tutorial For Kids Craft Shop Drawings Welcome to the world of millwork shop drawings, where craftsmanship meets precision, and creativity is structured by lines and measurements. What are millwork shop drawings? Our guide offers invaluable insights, tools, and resources for successful drawings. Unlock the secrets to crafting millwork shop drawings with our comprehensive guide. At its core, a millwork shop drawing is the detailed roadmap that. Craft Shop Drawings.
From www.cabwritersoftware.com
Creating Professional Shop Drawings Using SketchUp LayOut CabWriter Craft Shop Drawings Perfect for professionals and newcomers in the millwork industry! Millwork shop drawings are detailed technical documents that provide a roadmap for crafting custom wooden elements. Unlock the secrets to crafting millwork shop drawings with our comprehensive guide. The foundation of any successful. Welcome to the world of millwork shop drawings, where craftsmanship meets precision, and creativity is structured by lines. Craft Shop Drawings.
From www.united-bim.com
4 Tips & Techniques to Create Accurate Shop Drawings with Revit Craft Shop Drawings At its core, a millwork shop drawing is the detailed roadmap that guides the fabrication of custom. Millwork shop drawings are detailed technical documents that provide a roadmap for crafting custom wooden elements. Millwork, the art of crafting custom woodwork and cabinetry, requires meticulous planning and precision to achieve exceptional results. Unlock the secrets to crafting millwork shop drawings with. Craft Shop Drawings.
From www.craftsmenunited.com
Shop Drawings CraftsmenUnited Craft Shop Drawings In this article, we’ll explore the 7 essential tools that can help you craft shop drawings that bring dreams to life. The foundation of any successful. Unlock the secrets to crafting millwork shop drawings with our comprehensive guide. Our guide offers invaluable insights, tools, and resources for successful drawings. What are millwork shop drawings? Welcome to the world of millwork. Craft Shop Drawings.
From www.youtube.com
Draw shop easy steps. Easy shop drawing for kids. How to draw a shop Craft Shop Drawings Millwork shop drawings are detailed technical documents that provide a roadmap for crafting custom wooden elements. Our guide offers invaluable insights, tools, and resources for successful drawings. At its core, a millwork shop drawing is the detailed roadmap that guides the fabrication of custom. Welcome to the world of millwork shop drawings, where craftsmanship meets precision, and creativity is structured. Craft Shop Drawings.
From allroundclub.com
How To Draw A Shop? Step by Step Drawing Guide for Kids Craft Shop Drawings At its core, a millwork shop drawing is the detailed roadmap that guides the fabrication of custom. Millwork, the art of crafting custom woodwork and cabinetry, requires meticulous planning and precision to achieve exceptional results. Our guide offers invaluable insights, tools, and resources for successful drawings. Unlock the secrets to crafting millwork shop drawings with our comprehensive guide. The foundation. Craft Shop Drawings.
From artprojectsforkids.org
Easy How to Draw a Shop Tutorial and Shop Coloring Page Craft Shop Drawings What are millwork shop drawings? Millwork shop drawings are detailed technical documents that provide a roadmap for crafting custom wooden elements. In this article, we’ll explore the 7 essential tools that can help you craft shop drawings that bring dreams to life. Perfect for professionals and newcomers in the millwork industry! Our guide offers invaluable insights, tools, and resources for. Craft Shop Drawings.
From easydrawingguides.com
How to Draw a Shop Really Easy Drawing Tutorial Craft Shop Drawings What are millwork shop drawings? Millwork, the art of crafting custom woodwork and cabinetry, requires meticulous planning and precision to achieve exceptional results. Welcome to the world of millwork shop drawings, where craftsmanship meets precision, and creativity is structured by lines and measurements. Millwork shop drawings are detailed technical documents that provide a roadmap for crafting custom wooden elements. Unlock. Craft Shop Drawings.
From www.youtube.com
How to draw a Shop Shopping malls drawing for beginners easy market Craft Shop Drawings Unlock the secrets to crafting millwork shop drawings with our comprehensive guide. Our guide offers invaluable insights, tools, and resources for successful drawings. The foundation of any successful. Welcome to the world of millwork shop drawings, where craftsmanship meets precision, and creativity is structured by lines and measurements. Perfect for professionals and newcomers in the millwork industry! What are millwork. Craft Shop Drawings.
From superiorshopdrawings.com
What are Millwork Shop Drawings? Superior Shop Drawings Craft Shop Drawings The foundation of any successful. Perfect for professionals and newcomers in the millwork industry! Millwork shop drawings are detailed technical documents that provide a roadmap for crafting custom wooden elements. Our guide offers invaluable insights, tools, and resources for successful drawings. Welcome to the world of millwork shop drawings, where craftsmanship meets precision, and creativity is structured by lines and. Craft Shop Drawings.
From www.tejjy.com
Difference between Shop Drawings and As Built Drawings Craft Shop Drawings Millwork shop drawings are detailed technical documents that provide a roadmap for crafting custom wooden elements. Welcome to the world of millwork shop drawings, where craftsmanship meets precision, and creativity is structured by lines and measurements. At its core, a millwork shop drawing is the detailed roadmap that guides the fabrication of custom. What are millwork shop drawings? The foundation. Craft Shop Drawings.
From peerlesscabinetsinc.com
Millwork Shop drawings By CadCon Design Commercial Casework and Craft Shop Drawings The foundation of any successful. Perfect for professionals and newcomers in the millwork industry! Millwork, the art of crafting custom woodwork and cabinetry, requires meticulous planning and precision to achieve exceptional results. Welcome to the world of millwork shop drawings, where craftsmanship meets precision, and creativity is structured by lines and measurements. Millwork shop drawings are detailed technical documents that. Craft Shop Drawings.
From www.pinterest.com
Craft Shops, Williamsburg, VA Original sketch by Shirley Fout Miller Craft Shop Drawings What are millwork shop drawings? Perfect for professionals and newcomers in the millwork industry! Millwork shop drawings are detailed technical documents that provide a roadmap for crafting custom wooden elements. Welcome to the world of millwork shop drawings, where craftsmanship meets precision, and creativity is structured by lines and measurements. Millwork, the art of crafting custom woodwork and cabinetry, requires. Craft Shop Drawings.
From hardlinecorp.com
Hardline Corporation We specialize in millwork shop drawings, Craft Shop Drawings What are millwork shop drawings? Millwork, the art of crafting custom woodwork and cabinetry, requires meticulous planning and precision to achieve exceptional results. In this article, we’ll explore the 7 essential tools that can help you craft shop drawings that bring dreams to life. The foundation of any successful. Our guide offers invaluable insights, tools, and resources for successful drawings.. Craft Shop Drawings.
From www.pinterest.com
How to Draw a Shop Easy StepbyStep Tutorial Craft Shop Drawings What are millwork shop drawings? At its core, a millwork shop drawing is the detailed roadmap that guides the fabrication of custom. Unlock the secrets to crafting millwork shop drawings with our comprehensive guide. Millwork shop drawings are detailed technical documents that provide a roadmap for crafting custom wooden elements. The foundation of any successful. In this article, we’ll explore. Craft Shop Drawings.
From highlandwoodworking.com
Great Book of Shop Drawings for Craftsman Furniture Book Review Craft Shop Drawings The foundation of any successful. Unlock the secrets to crafting millwork shop drawings with our comprehensive guide. In this article, we’ll explore the 7 essential tools that can help you craft shop drawings that bring dreams to life. Millwork shop drawings are detailed technical documents that provide a roadmap for crafting custom wooden elements. Welcome to the world of millwork. Craft Shop Drawings.
From kr.lovepik.com
그림 용품 삽화의 아트 스토어 일러스트 무료 다운로드 Lovepik Craft Shop Drawings At its core, a millwork shop drawing is the detailed roadmap that guides the fabrication of custom. Welcome to the world of millwork shop drawings, where craftsmanship meets precision, and creativity is structured by lines and measurements. The foundation of any successful. Our guide offers invaluable insights, tools, and resources for successful drawings. Millwork, the art of crafting custom woodwork. Craft Shop Drawings.
From paintingvalley.com
Store Drawing at Explore collection of Store Drawing Craft Shop Drawings What are millwork shop drawings? Millwork shop drawings are detailed technical documents that provide a roadmap for crafting custom wooden elements. In this article, we’ll explore the 7 essential tools that can help you craft shop drawings that bring dreams to life. Unlock the secrets to crafting millwork shop drawings with our comprehensive guide. Perfect for professionals and newcomers in. Craft Shop Drawings.
From www.youtube.com
Shop Draw Store Draw How to Draw A Shop and Colour it Aysha Craft Shop Drawings What are millwork shop drawings? Unlock the secrets to crafting millwork shop drawings with our comprehensive guide. Perfect for professionals and newcomers in the millwork industry! The foundation of any successful. In this article, we’ll explore the 7 essential tools that can help you craft shop drawings that bring dreams to life. At its core, a millwork shop drawing is. Craft Shop Drawings.
From paintingvalley.com
Shop Drawing at Explore collection of Shop Drawing Craft Shop Drawings In this article, we’ll explore the 7 essential tools that can help you craft shop drawings that bring dreams to life. What are millwork shop drawings? At its core, a millwork shop drawing is the detailed roadmap that guides the fabrication of custom. The foundation of any successful. Millwork, the art of crafting custom woodwork and cabinetry, requires meticulous planning. Craft Shop Drawings.
From www.pinterest.fr
Pin by Kandie Ryan on Crafts Cards, Digi Shop fronts, Shop facade Craft Shop Drawings In this article, we’ll explore the 7 essential tools that can help you craft shop drawings that bring dreams to life. Our guide offers invaluable insights, tools, and resources for successful drawings. At its core, a millwork shop drawing is the detailed roadmap that guides the fabrication of custom. Millwork shop drawings are detailed technical documents that provide a roadmap. Craft Shop Drawings.
From www.bluentcad.com
Millwork Shop Drawings Portfolio BluEntCAD Craft Shop Drawings Millwork, the art of crafting custom woodwork and cabinetry, requires meticulous planning and precision to achieve exceptional results. What are millwork shop drawings? At its core, a millwork shop drawing is the detailed roadmap that guides the fabrication of custom. The foundation of any successful. Our guide offers invaluable insights, tools, and resources for successful drawings. Welcome to the world. Craft Shop Drawings.