How To Change School Board Taxes Ontario . To change the school board designation that we have on file for you, please follow these steps: To access the online portal and change your school support designation, please visit www.mpac.ca/schoolsupport. Collects this tax from local property owners on our behalf; You can make the change online by visiting mpac.ca/schoolsupport. How to change your school support on your assessment. You can change the school board you are supporting to the toronto district school board through the mpac website using this link:. School boards must plan for a balanced budget before the start of each. You must complete an application for direction. Property owners and tenants in ontario can change which school board they support through their property taxes. School boards follow these key financial rules under the education act. Gives it to school boards. All property owners in ontario contribute to their municipality's school board,. We set the education property tax rate and each municipality:
from www.yoursun.com
Collects this tax from local property owners on our behalf; School boards follow these key financial rules under the education act. Property owners and tenants in ontario can change which school board they support through their property taxes. You can change the school board you are supporting to the toronto district school board through the mpac website using this link:. You can make the change online by visiting mpac.ca/schoolsupport. We set the education property tax rate and each municipality: All property owners in ontario contribute to their municipality's school board,. To access the online portal and change your school support designation, please visit www.mpac.ca/schoolsupport. How to change your school support on your assessment. School boards must plan for a balanced budget before the start of each.
Sarasota School Board tax levy
How To Change School Board Taxes Ontario Gives it to school boards. How to change your school support on your assessment. You can change the school board you are supporting to the toronto district school board through the mpac website using this link:. Property owners and tenants in ontario can change which school board they support through their property taxes. School boards must plan for a balanced budget before the start of each. To access the online portal and change your school support designation, please visit www.mpac.ca/schoolsupport. Gives it to school boards. Collects this tax from local property owners on our behalf; To change the school board designation that we have on file for you, please follow these steps: You can make the change online by visiting mpac.ca/schoolsupport. We set the education property tax rate and each municipality: School boards follow these key financial rules under the education act. All property owners in ontario contribute to their municipality's school board,. You must complete an application for direction.
From www.exemptform.com
Tax Exemption Form Ontario How To Change School Board Taxes Ontario School boards must plan for a balanced budget before the start of each. All property owners in ontario contribute to their municipality's school board,. To change the school board designation that we have on file for you, please follow these steps: School boards follow these key financial rules under the education act. You can make the change online by visiting. How To Change School Board Taxes Ontario.
From www.bpiol.com
BAY POST The Hillsborough County School Board Tax Referendum How To Change School Board Taxes Ontario School boards follow these key financial rules under the education act. Property owners and tenants in ontario can change which school board they support through their property taxes. How to change your school support on your assessment. Gives it to school boards. School boards must plan for a balanced budget before the start of each. Collects this tax from local. How To Change School Board Taxes Ontario.
From www.mtpr.org
Property taxes, explained — with pictures Montana Public Radio How To Change School Board Taxes Ontario You must complete an application for direction. School boards follow these key financial rules under the education act. To access the online portal and change your school support designation, please visit www.mpac.ca/schoolsupport. Property owners and tenants in ontario can change which school board they support through their property taxes. School boards must plan for a balanced budget before the start. How To Change School Board Taxes Ontario.
From dearbornschools.org
Change in state funding means reduction in local property tax bills How To Change School Board Taxes Ontario To change the school board designation that we have on file for you, please follow these steps: School boards must plan for a balanced budget before the start of each. How to change your school support on your assessment. You must complete an application for direction. Property owners and tenants in ontario can change which school board they support through. How To Change School Board Taxes Ontario.
From www.canada.ca
Exercise Calculate a refund or a balance owing Learn about your How To Change School Board Taxes Ontario You must complete an application for direction. You can make the change online by visiting mpac.ca/schoolsupport. How to change your school support on your assessment. To change the school board designation that we have on file for you, please follow these steps: All property owners in ontario contribute to their municipality's school board,. Property owners and tenants in ontario can. How To Change School Board Taxes Ontario.
From poughkeepsiejournal.com
Wappingers school tax rates rise How To Change School Board Taxes Ontario Property owners and tenants in ontario can change which school board they support through their property taxes. School boards follow these key financial rules under the education act. You can change the school board you are supporting to the toronto district school board through the mpac website using this link:. We set the education property tax rate and each municipality:. How To Change School Board Taxes Ontario.
From www.yoursun.com
Sarasota School Board tax levy How To Change School Board Taxes Ontario We set the education property tax rate and each municipality: Gives it to school boards. You can change the school board you are supporting to the toronto district school board through the mpac website using this link:. Property owners and tenants in ontario can change which school board they support through their property taxes. School boards follow these key financial. How To Change School Board Taxes Ontario.
From www.youtube.com
Why Teach Taxes in School? YouTube How To Change School Board Taxes Ontario You must complete an application for direction. How to change your school support on your assessment. Collects this tax from local property owners on our behalf; All property owners in ontario contribute to their municipality's school board,. Gives it to school boards. You can make the change online by visiting mpac.ca/schoolsupport. To access the online portal and change your school. How To Change School Board Taxes Ontario.
From www.scribd.com
Florida's 2024 BacktoSchool Sales Tax Holiday PDF Sales Taxes In How To Change School Board Taxes Ontario You can make the change online by visiting mpac.ca/schoolsupport. You must complete an application for direction. To change the school board designation that we have on file for you, please follow these steps: You can change the school board you are supporting to the toronto district school board through the mpac website using this link:. School boards must plan for. How To Change School Board Taxes Ontario.
From www.lftranslations.com
‘A bad translation’ How Broward botched the Spanish version of school How To Change School Board Taxes Ontario How to change your school support on your assessment. Property owners and tenants in ontario can change which school board they support through their property taxes. We set the education property tax rate and each municipality: Gives it to school boards. All property owners in ontario contribute to their municipality's school board,. School boards follow these key financial rules under. How To Change School Board Taxes Ontario.
From slideplayer.com
Galway Area Ratepayers ppt download How To Change School Board Taxes Ontario We set the education property tax rate and each municipality: School boards must plan for a balanced budget before the start of each. Gives it to school boards. You can make the change online by visiting mpac.ca/schoolsupport. How to change your school support on your assessment. Collects this tax from local property owners on our behalf; You must complete an. How To Change School Board Taxes Ontario.
From mungfali.com
Black School Board Png Picture 703 How To Change School Board Taxes Ontario To access the online portal and change your school support designation, please visit www.mpac.ca/schoolsupport. We set the education property tax rate and each municipality: You must complete an application for direction. Property owners and tenants in ontario can change which school board they support through their property taxes. You can change the school board you are supporting to the toronto. How To Change School Board Taxes Ontario.
From www.crowe.com
Schools tax changes Crowe UK How To Change School Board Taxes Ontario Property owners and tenants in ontario can change which school board they support through their property taxes. To change the school board designation that we have on file for you, please follow these steps: Collects this tax from local property owners on our behalf; To access the online portal and change your school support designation, please visit www.mpac.ca/schoolsupport. School boards. How To Change School Board Taxes Ontario.
From lobbyistsforcitizens.com
Riverside School Board Tax Levy…Bad News and Terrible Timing…updated 2 How To Change School Board Taxes Ontario To change the school board designation that we have on file for you, please follow these steps: All property owners in ontario contribute to their municipality's school board,. You can make the change online by visiting mpac.ca/schoolsupport. School boards follow these key financial rules under the education act. Gives it to school boards. You can change the school board you. How To Change School Board Taxes Ontario.
From nhomkinhnamphat.com
Top 10 how much is 50 000 after taxes That Will Change Your Life Nhôm How To Change School Board Taxes Ontario To access the online portal and change your school support designation, please visit www.mpac.ca/schoolsupport. You can change the school board you are supporting to the toronto district school board through the mpac website using this link:. School boards must plan for a balanced budget before the start of each. You can make the change online by visiting mpac.ca/schoolsupport. To change. How To Change School Board Taxes Ontario.
From patch.com
Taxes Decrease In Morristown, Township With New Budget, MSD Board Says How To Change School Board Taxes Ontario All property owners in ontario contribute to their municipality's school board,. School boards must plan for a balanced budget before the start of each. You can make the change online by visiting mpac.ca/schoolsupport. Property owners and tenants in ontario can change which school board they support through their property taxes. How to change your school support on your assessment. We. How To Change School Board Taxes Ontario.
From azcharters.org
A Look at Arizona's Public Schools' Tax Credits, Part IIArizona Charter How To Change School Board Taxes Ontario To access the online portal and change your school support designation, please visit www.mpac.ca/schoolsupport. You can make the change online by visiting mpac.ca/schoolsupport. Property owners and tenants in ontario can change which school board they support through their property taxes. How to change your school support on your assessment. We set the education property tax rate and each municipality: School. How To Change School Board Taxes Ontario.
From www.lpm.org
Bill To Make Recalling School Board Taxes Easier Clears Ky. House How To Change School Board Taxes Ontario We set the education property tax rate and each municipality: School boards follow these key financial rules under the education act. To change the school board designation that we have on file for you, please follow these steps: You must complete an application for direction. Property owners and tenants in ontario can change which school board they support through their. How To Change School Board Taxes Ontario.
From fosterfollynews.net
Bay County, Florida District School Board Approves Ad Valorem Tax How To Change School Board Taxes Ontario How to change your school support on your assessment. You can change the school board you are supporting to the toronto district school board through the mpac website using this link:. You can make the change online by visiting mpac.ca/schoolsupport. School boards must plan for a balanced budget before the start of each. To change the school board designation that. How To Change School Board Taxes Ontario.
From www.pdffiller.com
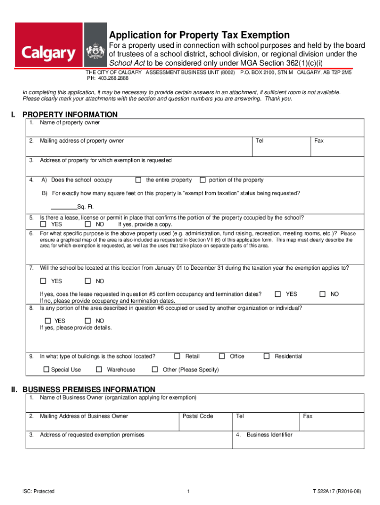
Fillable Online Application for Property and Business Tax Exemption How To Change School Board Taxes Ontario To change the school board designation that we have on file for you, please follow these steps: To access the online portal and change your school support designation, please visit www.mpac.ca/schoolsupport. All property owners in ontario contribute to their municipality's school board,. You can change the school board you are supporting to the toronto district school board through the mpac. How To Change School Board Taxes Ontario.
From www.tampabay.com
Florida education news Charter schools, school boards, taxes and more How To Change School Board Taxes Ontario You must complete an application for direction. To access the online portal and change your school support designation, please visit www.mpac.ca/schoolsupport. You can change the school board you are supporting to the toronto district school board through the mpac website using this link:. We set the education property tax rate and each municipality: All property owners in ontario contribute to. How To Change School Board Taxes Ontario.
From bartow.substack.com
How to Speak to Stop MASSIVE School Board Tax Hike Show up at 530 pm How To Change School Board Taxes Ontario You must complete an application for direction. To access the online portal and change your school support designation, please visit www.mpac.ca/schoolsupport. All property owners in ontario contribute to their municipality's school board,. How to change your school support on your assessment. To change the school board designation that we have on file for you, please follow these steps: You can. How To Change School Board Taxes Ontario.
From www.goerie.com
Erie School Board Tax increase weighed to keep afterschool programs How To Change School Board Taxes Ontario To access the online portal and change your school support designation, please visit www.mpac.ca/schoolsupport. How to change your school support on your assessment. School boards follow these key financial rules under the education act. We set the education property tax rate and each municipality: You can make the change online by visiting mpac.ca/schoolsupport. To change the school board designation that. How To Change School Board Taxes Ontario.
From www.waka.com
Elmore County Residents React To School Board Tax Proposal WAKA 8 How To Change School Board Taxes Ontario Collects this tax from local property owners on our behalf; All property owners in ontario contribute to their municipality's school board,. How to change your school support on your assessment. To access the online portal and change your school support designation, please visit www.mpac.ca/schoolsupport. Property owners and tenants in ontario can change which school board they support through their property. How To Change School Board Taxes Ontario.
From www.sidneyschoolslevy.org
Community — Sidney Schools Levy How To Change School Board Taxes Ontario Collects this tax from local property owners on our behalf; To access the online portal and change your school support designation, please visit www.mpac.ca/schoolsupport. You must complete an application for direction. We set the education property tax rate and each municipality: You can change the school board you are supporting to the toronto district school board through the mpac website. How To Change School Board Taxes Ontario.
From playmobilausmalbildertiere.blogspot.com
Employment Taxes Ontario Calculator / Here S How To Calculate How Much How To Change School Board Taxes Ontario We set the education property tax rate and each municipality: To access the online portal and change your school support designation, please visit www.mpac.ca/schoolsupport. All property owners in ontario contribute to their municipality's school board,. To change the school board designation that we have on file for you, please follow these steps: You must complete an application for direction. You. How To Change School Board Taxes Ontario.
From www.yoursun.com
Sarasota School Board tax levy How To Change School Board Taxes Ontario All property owners in ontario contribute to their municipality's school board,. Gives it to school boards. You can make the change online by visiting mpac.ca/schoolsupport. To change the school board designation that we have on file for you, please follow these steps: School boards follow these key financial rules under the education act. How to change your school support on. How To Change School Board Taxes Ontario.
From www.cleveland.com
Six of the top 10 school property tax rates are for Cuyahoga County How To Change School Board Taxes Ontario How to change your school support on your assessment. You can make the change online by visiting mpac.ca/schoolsupport. School boards follow these key financial rules under the education act. Property owners and tenants in ontario can change which school board they support through their property taxes. All property owners in ontario contribute to their municipality's school board,. You must complete. How To Change School Board Taxes Ontario.
From refundtalk.com
2022 Education Tax Credits ⋆ Where's my Refund? Tax News & Information How To Change School Board Taxes Ontario You must complete an application for direction. Gives it to school boards. We set the education property tax rate and each municipality: To change the school board designation that we have on file for you, please follow these steps: All property owners in ontario contribute to their municipality's school board,. You can make the change online by visiting mpac.ca/schoolsupport. How. How To Change School Board Taxes Ontario.
From oysterbaytown.com
Stefanich Encourages Residents to Pay April 2018 School Taxes by How To Change School Board Taxes Ontario School boards must plan for a balanced budget before the start of each. To access the online portal and change your school support designation, please visit www.mpac.ca/schoolsupport. To change the school board designation that we have on file for you, please follow these steps: Gives it to school boards. We set the education property tax rate and each municipality: You. How To Change School Board Taxes Ontario.
From imagetou.com
How To File Taxes In 2024 Image to u How To Change School Board Taxes Ontario Property owners and tenants in ontario can change which school board they support through their property taxes. How to change your school support on your assessment. You must complete an application for direction. We set the education property tax rate and each municipality: School boards must plan for a balanced budget before the start of each. You can change the. How To Change School Board Taxes Ontario.
From www.hauseit.com
What Is the Florida Homestead Property Tax Exemption? How To Change School Board Taxes Ontario We set the education property tax rate and each municipality: To change the school board designation that we have on file for you, please follow these steps: To access the online portal and change your school support designation, please visit www.mpac.ca/schoolsupport. How to change your school support on your assessment. Collects this tax from local property owners on our behalf;. How To Change School Board Taxes Ontario.
From whiteplainscnr.com
WP SCHOOL AID WINDFALL COULD CREATE 1 PROPERTY TAX CUTIF BOARD OF ED How To Change School Board Taxes Ontario All property owners in ontario contribute to their municipality's school board,. You must complete an application for direction. School boards must plan for a balanced budget before the start of each. School boards follow these key financial rules under the education act. Collects this tax from local property owners on our behalf; To access the online portal and change your. How To Change School Board Taxes Ontario.
From www.youtube.com
How do school tax rates work? YouTube How To Change School Board Taxes Ontario Gives it to school boards. To change the school board designation that we have on file for you, please follow these steps: Collects this tax from local property owners on our behalf; To access the online portal and change your school support designation, please visit www.mpac.ca/schoolsupport. We set the education property tax rate and each municipality: You can make the. How To Change School Board Taxes Ontario.
From etfovoice.ca
The Data and the Details Mapping Ontario School Board Funding Cuts How To Change School Board Taxes Ontario You must complete an application for direction. Gives it to school boards. School boards must plan for a balanced budget before the start of each. To change the school board designation that we have on file for you, please follow these steps: Collects this tax from local property owners on our behalf; School boards follow these key financial rules under. How To Change School Board Taxes Ontario.