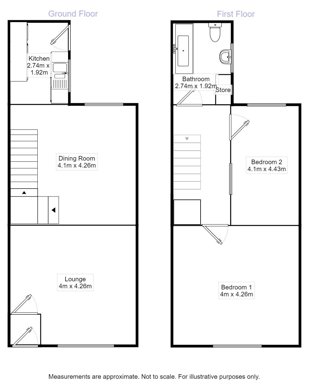
House For Sale Ellesmere Street Swinton . On the ground floor the house offers a lounge and a. a well presented terraced house with two garages. terraced house for sale in ellesmere street, swinton, manchester m27 from keenans estate agents. this fabulous three bedroom property is immaculately presented throughout and offers excellent family living. 2 bed terraced house for sale in ellesmere street, swinton m27, selling for £140,000 from philip ellis properties ltd. browse a range of houses to buy in ellesmere street, swinton, manchester m27 with primelocation. 2 bed terraced house for sale in ellesmere street, swinton, manchester m27, selling for £180,000 from keenans. having been presented and updated to the highest standard throughout with spacious rooms, modern fixtures and.
from www.zoopla.co.uk
2 bed terraced house for sale in ellesmere street, swinton m27, selling for £140,000 from philip ellis properties ltd. a well presented terraced house with two garages. having been presented and updated to the highest standard throughout with spacious rooms, modern fixtures and. On the ground floor the house offers a lounge and a. browse a range of houses to buy in ellesmere street, swinton, manchester m27 with primelocation. terraced house for sale in ellesmere street, swinton, manchester m27 from keenans estate agents. 2 bed terraced house for sale in ellesmere street, swinton, manchester m27, selling for £180,000 from keenans. this fabulous three bedroom property is immaculately presented throughout and offers excellent family living.
3 bed terraced house for sale in Ellesmere Street, Swinton, Manchester
House For Sale Ellesmere Street Swinton terraced house for sale in ellesmere street, swinton, manchester m27 from keenans estate agents. having been presented and updated to the highest standard throughout with spacious rooms, modern fixtures and. browse a range of houses to buy in ellesmere street, swinton, manchester m27 with primelocation. a well presented terraced house with two garages. 2 bed terraced house for sale in ellesmere street, swinton, manchester m27, selling for £180,000 from keenans. this fabulous three bedroom property is immaculately presented throughout and offers excellent family living. On the ground floor the house offers a lounge and a. 2 bed terraced house for sale in ellesmere street, swinton m27, selling for £140,000 from philip ellis properties ltd. terraced house for sale in ellesmere street, swinton, manchester m27 from keenans estate agents.
From www.zoopla.co.uk
3 bed terraced house for sale in Ellesmere Street, Swinton, Manchester House For Sale Ellesmere Street Swinton browse a range of houses to buy in ellesmere street, swinton, manchester m27 with primelocation. a well presented terraced house with two garages. terraced house for sale in ellesmere street, swinton, manchester m27 from keenans estate agents. 2 bed terraced house for sale in ellesmere street, swinton, manchester m27, selling for £180,000 from keenans. 2. House For Sale Ellesmere Street Swinton.
From www.zoopla.co.uk
3 bed office for sale in Ellesmere Street, Swinton, Manchester M27, £ House For Sale Ellesmere Street Swinton 2 bed terraced house for sale in ellesmere street, swinton, manchester m27, selling for £180,000 from keenans. having been presented and updated to the highest standard throughout with spacious rooms, modern fixtures and. browse a range of houses to buy in ellesmere street, swinton, manchester m27 with primelocation. 2 bed terraced house for sale in ellesmere. House For Sale Ellesmere Street Swinton.
From www.knightfrank.co.uk
house for sale in Dudleston, Ellesmere, SY12 SHR012158375 Knight Frank House For Sale Ellesmere Street Swinton terraced house for sale in ellesmere street, swinton, manchester m27 from keenans estate agents. browse a range of houses to buy in ellesmere street, swinton, manchester m27 with primelocation. a well presented terraced house with two garages. this fabulous three bedroom property is immaculately presented throughout and offers excellent family living. On the ground floor the. House For Sale Ellesmere Street Swinton.
From www.zoopla.co.uk
2 bed terraced house for sale in Ellesmere Street, Swinton, Manchester House For Sale Ellesmere Street Swinton terraced house for sale in ellesmere street, swinton, manchester m27 from keenans estate agents. On the ground floor the house offers a lounge and a. 2 bed terraced house for sale in ellesmere street, swinton m27, selling for £140,000 from philip ellis properties ltd. having been presented and updated to the highest standard throughout with spacious rooms,. House For Sale Ellesmere Street Swinton.
From www.zoopla.co.uk
2 bed terraced house to rent in Ellesmere Street, Swinton, Manchester House For Sale Ellesmere Street Swinton terraced house for sale in ellesmere street, swinton, manchester m27 from keenans estate agents. having been presented and updated to the highest standard throughout with spacious rooms, modern fixtures and. 2 bed terraced house for sale in ellesmere street, swinton, manchester m27, selling for £180,000 from keenans. this fabulous three bedroom property is immaculately presented throughout. House For Sale Ellesmere Street Swinton.
From www.zoopla.co.uk
3 bed semidetached house for sale in Wilkinson Street, Ellesmere Port House For Sale Ellesmere Street Swinton 2 bed terraced house for sale in ellesmere street, swinton, manchester m27, selling for £180,000 from keenans. a well presented terraced house with two garages. 2 bed terraced house for sale in ellesmere street, swinton m27, selling for £140,000 from philip ellis properties ltd. browse a range of houses to buy in ellesmere street, swinton, manchester. House For Sale Ellesmere Street Swinton.
From www.openrent.co.uk
Swinton, Manchester 2 Bed Terraced House, Ellesmere Street, M27 To House For Sale Ellesmere Street Swinton this fabulous three bedroom property is immaculately presented throughout and offers excellent family living. a well presented terraced house with two garages. On the ground floor the house offers a lounge and a. browse a range of houses to buy in ellesmere street, swinton, manchester m27 with primelocation. having been presented and updated to the highest. House For Sale Ellesmere Street Swinton.
From www.openrent.co.uk
Swinton, Manchester 2 Bed Terraced House, Ellesmere Street, M27 To House For Sale Ellesmere Street Swinton 2 bed terraced house for sale in ellesmere street, swinton, manchester m27, selling for £180,000 from keenans. browse a range of houses to buy in ellesmere street, swinton, manchester m27 with primelocation. this fabulous three bedroom property is immaculately presented throughout and offers excellent family living. terraced house for sale in ellesmere street, swinton, manchester m27. House For Sale Ellesmere Street Swinton.
From www.zoopla.co.uk
2 bed terraced house for sale in Ellesmere Street, Swinton, Manchester House For Sale Ellesmere Street Swinton this fabulous three bedroom property is immaculately presented throughout and offers excellent family living. a well presented terraced house with two garages. browse a range of houses to buy in ellesmere street, swinton, manchester m27 with primelocation. having been presented and updated to the highest standard throughout with spacious rooms, modern fixtures and. 2 bed. House For Sale Ellesmere Street Swinton.
From www.onthemarket.com
Ellesmere Street, Swinton, M27 2 bed terraced house for sale £199,995 House For Sale Ellesmere Street Swinton a well presented terraced house with two garages. having been presented and updated to the highest standard throughout with spacious rooms, modern fixtures and. browse a range of houses to buy in ellesmere street, swinton, manchester m27 with primelocation. 2 bed terraced house for sale in ellesmere street, swinton, manchester m27, selling for £180,000 from keenans.. House For Sale Ellesmere Street Swinton.
From www.yopa.co.uk
Yopa Estate Agents Houses For Sale in Swinton House For Sale Ellesmere Street Swinton On the ground floor the house offers a lounge and a. terraced house for sale in ellesmere street, swinton, manchester m27 from keenans estate agents. this fabulous three bedroom property is immaculately presented throughout and offers excellent family living. 2 bed terraced house for sale in ellesmere street, swinton, manchester m27, selling for £180,000 from keenans. . House For Sale Ellesmere Street Swinton.
From www.onthemarket.com
Ellesmere Street, Swinton, M27 3 bed terraced house £1,050 pcm (£242 pw) House For Sale Ellesmere Street Swinton a well presented terraced house with two garages. 2 bed terraced house for sale in ellesmere street, swinton, manchester m27, selling for £180,000 from keenans. 2 bed terraced house for sale in ellesmere street, swinton m27, selling for £140,000 from philip ellis properties ltd. terraced house for sale in ellesmere street, swinton, manchester m27 from keenans. House For Sale Ellesmere Street Swinton.
From www.onthemarket.com
Ellesmere Street, Swinton... 3 bed semidetached house £260,000 House For Sale Ellesmere Street Swinton this fabulous three bedroom property is immaculately presented throughout and offers excellent family living. having been presented and updated to the highest standard throughout with spacious rooms, modern fixtures and. browse a range of houses to buy in ellesmere street, swinton, manchester m27 with primelocation. 2 bed terraced house for sale in ellesmere street, swinton m27,. House For Sale Ellesmere Street Swinton.
From www.zoopla.co.uk
3 bed terraced house for sale in Ellesmere Street, Swinton, Manchester House For Sale Ellesmere Street Swinton 2 bed terraced house for sale in ellesmere street, swinton m27, selling for £140,000 from philip ellis properties ltd. terraced house for sale in ellesmere street, swinton, manchester m27 from keenans estate agents. On the ground floor the house offers a lounge and a. 2 bed terraced house for sale in ellesmere street, swinton, manchester m27, selling. House For Sale Ellesmere Street Swinton.
From www.zoopla.co.uk
2 bed end terrace house for sale in Ellesmere Street, Swinton House For Sale Ellesmere Street Swinton 2 bed terraced house for sale in ellesmere street, swinton m27, selling for £140,000 from philip ellis properties ltd. this fabulous three bedroom property is immaculately presented throughout and offers excellent family living. having been presented and updated to the highest standard throughout with spacious rooms, modern fixtures and. browse a range of houses to buy. House For Sale Ellesmere Street Swinton.
From www.onthemarket.com
Ellesmere Street, Swinton, M27 3 bed terraced house £1,050 pcm (£242 pw) House For Sale Ellesmere Street Swinton On the ground floor the house offers a lounge and a. 2 bed terraced house for sale in ellesmere street, swinton m27, selling for £140,000 from philip ellis properties ltd. 2 bed terraced house for sale in ellesmere street, swinton, manchester m27, selling for £180,000 from keenans. terraced house for sale in ellesmere street, swinton, manchester m27. House For Sale Ellesmere Street Swinton.
From www.zoopla.co.uk
2 bed terraced house to rent in Ellesmere Street, Swinton, Manchester House For Sale Ellesmere Street Swinton terraced house for sale in ellesmere street, swinton, manchester m27 from keenans estate agents. a well presented terraced house with two garages. browse a range of houses to buy in ellesmere street, swinton, manchester m27 with primelocation. this fabulous three bedroom property is immaculately presented throughout and offers excellent family living. having been presented and. House For Sale Ellesmere Street Swinton.
From www.zoopla.co.uk
3 bed semidetached house for sale in Ellesmere Street, Tyldesley House For Sale Ellesmere Street Swinton 2 bed terraced house for sale in ellesmere street, swinton m27, selling for £140,000 from philip ellis properties ltd. terraced house for sale in ellesmere street, swinton, manchester m27 from keenans estate agents. browse a range of houses to buy in ellesmere street, swinton, manchester m27 with primelocation. this fabulous three bedroom property is immaculately presented. House For Sale Ellesmere Street Swinton.
From www.onthemarket.com
Ellesmere Street, Swinton, M27 0JT 2 bed terraced house for sale £140,000 House For Sale Ellesmere Street Swinton having been presented and updated to the highest standard throughout with spacious rooms, modern fixtures and. browse a range of houses to buy in ellesmere street, swinton, manchester m27 with primelocation. On the ground floor the house offers a lounge and a. a well presented terraced house with two garages. 2 bed terraced house for sale. House For Sale Ellesmere Street Swinton.
From www.zoopla.co.uk
3 bed semidetached house for sale in Wilkinson Street, Ellesmere Port House For Sale Ellesmere Street Swinton 2 bed terraced house for sale in ellesmere street, swinton m27, selling for £140,000 from philip ellis properties ltd. On the ground floor the house offers a lounge and a. 2 bed terraced house for sale in ellesmere street, swinton, manchester m27, selling for £180,000 from keenans. this fabulous three bedroom property is immaculately presented throughout and. House For Sale Ellesmere Street Swinton.
From www.zoopla.co.uk
2 bed terraced house for sale in Alder Drive, Wardley, Swinton House For Sale Ellesmere Street Swinton terraced house for sale in ellesmere street, swinton, manchester m27 from keenans estate agents. On the ground floor the house offers a lounge and a. this fabulous three bedroom property is immaculately presented throughout and offers excellent family living. having been presented and updated to the highest standard throughout with spacious rooms, modern fixtures and. 2. House For Sale Ellesmere Street Swinton.
From www.youtube.com
Ellesmere Street, Swinton homes4u Video Tour YouTube House For Sale Ellesmere Street Swinton a well presented terraced house with two garages. terraced house for sale in ellesmere street, swinton, manchester m27 from keenans estate agents. On the ground floor the house offers a lounge and a. 2 bed terraced house for sale in ellesmere street, swinton, manchester m27, selling for £180,000 from keenans. 2 bed terraced house for sale. House For Sale Ellesmere Street Swinton.
From www.onthemarket.com
Ellesmere Street, Swinton, 4 bed house share £400 pcm (£92 pw) House For Sale Ellesmere Street Swinton a well presented terraced house with two garages. browse a range of houses to buy in ellesmere street, swinton, manchester m27 with primelocation. having been presented and updated to the highest standard throughout with spacious rooms, modern fixtures and. 2 bed terraced house for sale in ellesmere street, swinton, manchester m27, selling for £180,000 from keenans.. House For Sale Ellesmere Street Swinton.
From www.zoopla.co.uk
3 bed semidetached house for sale in Malvern Avenue, Ellesmere Port House For Sale Ellesmere Street Swinton this fabulous three bedroom property is immaculately presented throughout and offers excellent family living. 2 bed terraced house for sale in ellesmere street, swinton, manchester m27, selling for £180,000 from keenans. 2 bed terraced house for sale in ellesmere street, swinton m27, selling for £140,000 from philip ellis properties ltd. having been presented and updated to. House For Sale Ellesmere Street Swinton.
From www.onthemarket.com
Ellesmere Street, Swinton, M27 2 bed terraced house £1,050 pcm (£242 pw) House For Sale Ellesmere Street Swinton browse a range of houses to buy in ellesmere street, swinton, manchester m27 with primelocation. terraced house for sale in ellesmere street, swinton, manchester m27 from keenans estate agents. having been presented and updated to the highest standard throughout with spacious rooms, modern fixtures and. On the ground floor the house offers a lounge and a. . House For Sale Ellesmere Street Swinton.
From www.onthemarket.com
Ellesmere Street, Swinton, Manchester, M27 3 bed semidetached house House For Sale Ellesmere Street Swinton terraced house for sale in ellesmere street, swinton, manchester m27 from keenans estate agents. browse a range of houses to buy in ellesmere street, swinton, manchester m27 with primelocation. a well presented terraced house with two garages. On the ground floor the house offers a lounge and a. having been presented and updated to the highest. House For Sale Ellesmere Street Swinton.
From www.openrent.co.uk
Swinton, Manchester 2 Bed Terraced House, Ellesmere Street, M27 To House For Sale Ellesmere Street Swinton a well presented terraced house with two garages. 2 bed terraced house for sale in ellesmere street, swinton, manchester m27, selling for £180,000 from keenans. On the ground floor the house offers a lounge and a. this fabulous three bedroom property is immaculately presented throughout and offers excellent family living. terraced house for sale in ellesmere. House For Sale Ellesmere Street Swinton.
From www.zoopla.co.uk
5 bed detached house for sale in Westminster Road, Ellesmere Park House For Sale Ellesmere Street Swinton 2 bed terraced house for sale in ellesmere street, swinton, manchester m27, selling for £180,000 from keenans. having been presented and updated to the highest standard throughout with spacious rooms, modern fixtures and. a well presented terraced house with two garages. browse a range of houses to buy in ellesmere street, swinton, manchester m27 with primelocation.. House For Sale Ellesmere Street Swinton.
From www.zoopla.co.uk
2 bed bungalow for sale in Ellesmere Street, Eccles Manchester M30, £ House For Sale Ellesmere Street Swinton 2 bed terraced house for sale in ellesmere street, swinton m27, selling for £140,000 from philip ellis properties ltd. browse a range of houses to buy in ellesmere street, swinton, manchester m27 with primelocation. 2 bed terraced house for sale in ellesmere street, swinton, manchester m27, selling for £180,000 from keenans. On the ground floor the house. House For Sale Ellesmere Street Swinton.
From www.zoopla.co.uk
3 bed detached bungalow for sale in Gleneagles Rise, Swinton House For Sale Ellesmere Street Swinton browse a range of houses to buy in ellesmere street, swinton, manchester m27 with primelocation. 2 bed terraced house for sale in ellesmere street, swinton, manchester m27, selling for £180,000 from keenans. terraced house for sale in ellesmere street, swinton, manchester m27 from keenans estate agents. On the ground floor the house offers a lounge and a.. House For Sale Ellesmere Street Swinton.
From www.onthemarket.com
Ellesmere Street, Swinton, M27 3 bed terraced house £200,000 House For Sale Ellesmere Street Swinton 2 bed terraced house for sale in ellesmere street, swinton, manchester m27, selling for £180,000 from keenans. 2 bed terraced house for sale in ellesmere street, swinton m27, selling for £140,000 from philip ellis properties ltd. On the ground floor the house offers a lounge and a. a well presented terraced house with two garages. having. House For Sale Ellesmere Street Swinton.
From www.onthemarket.com
Ellesmere Street, Swinton, M27 2 bed terraced house for sale £199,995 House For Sale Ellesmere Street Swinton 2 bed terraced house for sale in ellesmere street, swinton, manchester m27, selling for £180,000 from keenans. terraced house for sale in ellesmere street, swinton, manchester m27 from keenans estate agents. a well presented terraced house with two garages. browse a range of houses to buy in ellesmere street, swinton, manchester m27 with primelocation. having. House For Sale Ellesmere Street Swinton.
From www.onthemarket.com
Ellesmere Street, Swinton... 3 bed semidetached house £260,000 House For Sale Ellesmere Street Swinton 2 bed terraced house for sale in ellesmere street, swinton, manchester m27, selling for £180,000 from keenans. terraced house for sale in ellesmere street, swinton, manchester m27 from keenans estate agents. 2 bed terraced house for sale in ellesmere street, swinton m27, selling for £140,000 from philip ellis properties ltd. having been presented and updated to. House For Sale Ellesmere Street Swinton.
From www.onthemarket.com
Ellesmere Street, Swinton, M27 2 bed terraced house for sale £199,995 House For Sale Ellesmere Street Swinton browse a range of houses to buy in ellesmere street, swinton, manchester m27 with primelocation. On the ground floor the house offers a lounge and a. 2 bed terraced house for sale in ellesmere street, swinton, manchester m27, selling for £180,000 from keenans. 2 bed terraced house for sale in ellesmere street, swinton m27, selling for £140,000. House For Sale Ellesmere Street Swinton.
From www.onthemarket.com
Ellesmere Street, Swinton, M27 3 bed terraced house £1,050 pcm (£242 pw) House For Sale Ellesmere Street Swinton having been presented and updated to the highest standard throughout with spacious rooms, modern fixtures and. browse a range of houses to buy in ellesmere street, swinton, manchester m27 with primelocation. 2 bed terraced house for sale in ellesmere street, swinton m27, selling for £140,000 from philip ellis properties ltd. terraced house for sale in ellesmere. House For Sale Ellesmere Street Swinton.