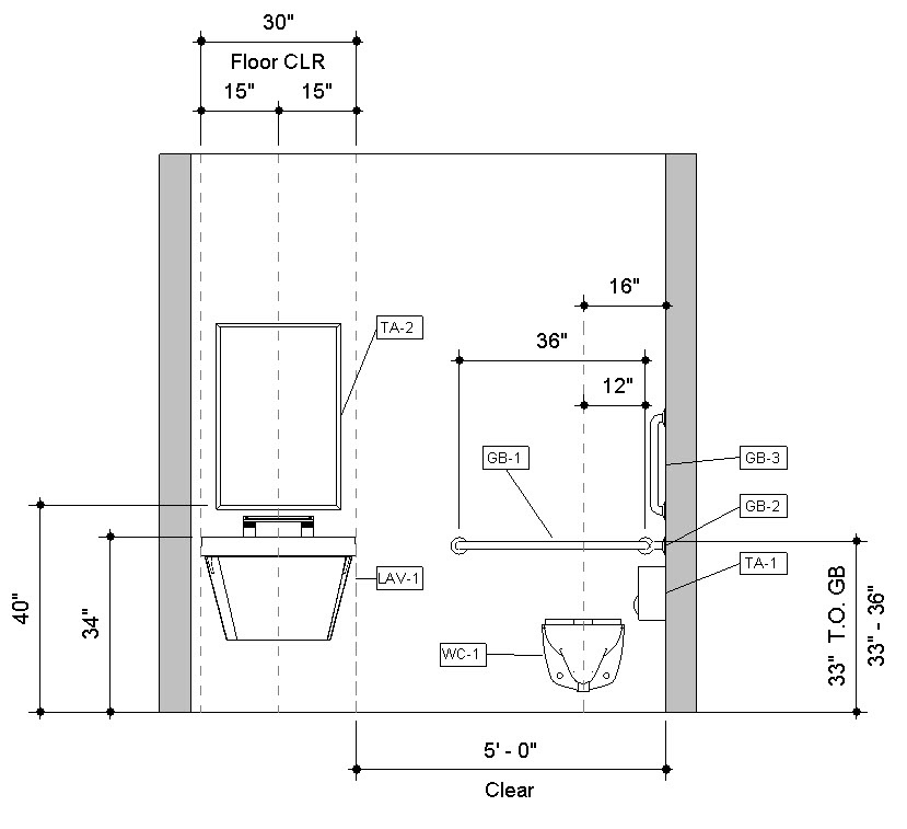
Ada Restroom Accessories Layout . this course will identify the benefits of accessibility standards and the prescriptive requirements for accessible restrooms set by the ada. the fourth edition of bobrick’s planning guide for accessible restrooms is now available! describe requirements for accessible lavatories and restroom accessories. although each region and country has its own accessibility guidelines which you should review in depth before. fully recessed accessories are the recommended choice throughout universally designed restrooms. single occupant restroom design should allow for a patron to enter the room and maneuver to all fixtures from a.
from blog.bradleycorp.com
single occupant restroom design should allow for a patron to enter the room and maneuver to all fixtures from a. this course will identify the benefits of accessibility standards and the prescriptive requirements for accessible restrooms set by the ada. the fourth edition of bobrick’s planning guide for accessible restrooms is now available! describe requirements for accessible lavatories and restroom accessories. fully recessed accessories are the recommended choice throughout universally designed restrooms. although each region and country has its own accessibility guidelines which you should review in depth before.
Download Prebuilt Revit Accessible Toilet Room Sample Model
Ada Restroom Accessories Layout although each region and country has its own accessibility guidelines which you should review in depth before. this course will identify the benefits of accessibility standards and the prescriptive requirements for accessible restrooms set by the ada. single occupant restroom design should allow for a patron to enter the room and maneuver to all fixtures from a. the fourth edition of bobrick’s planning guide for accessible restrooms is now available! describe requirements for accessible lavatories and restroom accessories. although each region and country has its own accessibility guidelines which you should review in depth before. fully recessed accessories are the recommended choice throughout universally designed restrooms.
From www.pinterest.com
ada mounting heights for restroom accessories Design and Ada Ada Restroom Accessories Layout the fourth edition of bobrick’s planning guide for accessible restrooms is now available! although each region and country has its own accessibility guidelines which you should review in depth before. fully recessed accessories are the recommended choice throughout universally designed restrooms. describe requirements for accessible lavatories and restroom accessories. single occupant restroom design should allow. Ada Restroom Accessories Layout.
From cad-block.com
Disabled toilet DWG free download Ada Restroom Accessories Layout fully recessed accessories are the recommended choice throughout universally designed restrooms. single occupant restroom design should allow for a patron to enter the room and maneuver to all fixtures from a. this course will identify the benefits of accessibility standards and the prescriptive requirements for accessible restrooms set by the ada. describe requirements for accessible lavatories. Ada Restroom Accessories Layout.
From www.harborcitysupply.com
Grab Bars In Accessible Toilet Compartments ADA Approved Harbor Ada Restroom Accessories Layout although each region and country has its own accessibility guidelines which you should review in depth before. single occupant restroom design should allow for a patron to enter the room and maneuver to all fixtures from a. describe requirements for accessible lavatories and restroom accessories. the fourth edition of bobrick’s planning guide for accessible restrooms is. Ada Restroom Accessories Layout.
From blog.bradleycorp.com
Download Prebuilt Revit Accessible Toilet Room Sample Model Ada Restroom Accessories Layout although each region and country has its own accessibility guidelines which you should review in depth before. single occupant restroom design should allow for a patron to enter the room and maneuver to all fixtures from a. describe requirements for accessible lavatories and restroom accessories. the fourth edition of bobrick’s planning guide for accessible restrooms is. Ada Restroom Accessories Layout.
From www.pinterest.com
Accessories in Public Restrooms ADA Guidelines Ada guidelines Ada Restroom Accessories Layout although each region and country has its own accessibility guidelines which you should review in depth before. describe requirements for accessible lavatories and restroom accessories. this course will identify the benefits of accessibility standards and the prescriptive requirements for accessible restrooms set by the ada. single occupant restroom design should allow for a patron to enter. Ada Restroom Accessories Layout.
From www.harborcitysupply.com
ADA Design Solutions For Bathrooms With Shower Compartments Harbor Ada Restroom Accessories Layout although each region and country has its own accessibility guidelines which you should review in depth before. the fourth edition of bobrick’s planning guide for accessible restrooms is now available! single occupant restroom design should allow for a patron to enter the room and maneuver to all fixtures from a. fully recessed accessories are the recommended. Ada Restroom Accessories Layout.
From accessories.toiletpartitions.com
Bathroom Stall Dimensions ADA Sizes Toilet Partitions Ada Restroom Accessories Layout single occupant restroom design should allow for a patron to enter the room and maneuver to all fixtures from a. this course will identify the benefits of accessibility standards and the prescriptive requirements for accessible restrooms set by the ada. the fourth edition of bobrick’s planning guide for accessible restrooms is now available! describe requirements for. Ada Restroom Accessories Layout.
From www.pinterest.com
Get the ADA (American with Disabilities Act) guidelines and Ada Restroom Accessories Layout the fourth edition of bobrick’s planning guide for accessible restrooms is now available! single occupant restroom design should allow for a patron to enter the room and maneuver to all fixtures from a. although each region and country has its own accessibility guidelines which you should review in depth before. fully recessed accessories are the recommended. Ada Restroom Accessories Layout.
From laforceinc.com
ADA Compliant Bathroom Sinks and Restroom Accessories LaForce, LLC Ada Restroom Accessories Layout this course will identify the benefits of accessibility standards and the prescriptive requirements for accessible restrooms set by the ada. single occupant restroom design should allow for a patron to enter the room and maneuver to all fixtures from a. although each region and country has its own accessibility guidelines which you should review in depth before.. Ada Restroom Accessories Layout.
From www.pinterest.com
Handicap Bathroom Floor Plans Mercial Ada Public Restroom From Ada Restroom Accessories Layout single occupant restroom design should allow for a patron to enter the room and maneuver to all fixtures from a. describe requirements for accessible lavatories and restroom accessories. this course will identify the benefits of accessibility standards and the prescriptive requirements for accessible restrooms set by the ada. although each region and country has its own. Ada Restroom Accessories Layout.
From www.familyhandyman.com
What To Consider When Designing an ADA Compliant Bathroom The Family Ada Restroom Accessories Layout fully recessed accessories are the recommended choice throughout universally designed restrooms. describe requirements for accessible lavatories and restroom accessories. the fourth edition of bobrick’s planning guide for accessible restrooms is now available! although each region and country has its own accessibility guidelines which you should review in depth before. this course will identify the benefits. Ada Restroom Accessories Layout.
From www.archdaily.com
Design Accessible Bathrooms for All With This ADA Restroom Guide Ada Restroom Accessories Layout fully recessed accessories are the recommended choice throughout universally designed restrooms. the fourth edition of bobrick’s planning guide for accessible restrooms is now available! describe requirements for accessible lavatories and restroom accessories. this course will identify the benefits of accessibility standards and the prescriptive requirements for accessible restrooms set by the ada. although each region. Ada Restroom Accessories Layout.
From sbicontractinginc.com
ADA Restroom Requirements for Your Bar or Restaurant Ada Restroom Accessories Layout this course will identify the benefits of accessibility standards and the prescriptive requirements for accessible restrooms set by the ada. the fourth edition of bobrick’s planning guide for accessible restrooms is now available! single occupant restroom design should allow for a patron to enter the room and maneuver to all fixtures from a. describe requirements for. Ada Restroom Accessories Layout.
From www.pinterest.co.kr
ADA Bathroom Requirements Guidelines for Home Disabled Bathroom Ada Restroom Accessories Layout the fourth edition of bobrick’s planning guide for accessible restrooms is now available! this course will identify the benefits of accessibility standards and the prescriptive requirements for accessible restrooms set by the ada. although each region and country has its own accessibility guidelines which you should review in depth before. fully recessed accessories are the recommended. Ada Restroom Accessories Layout.
From wurld.blogspot.com
bathroom layout code How to Design an ADA Restroom Arch Exam Academy Ada Restroom Accessories Layout the fourth edition of bobrick’s planning guide for accessible restrooms is now available! this course will identify the benefits of accessibility standards and the prescriptive requirements for accessible restrooms set by the ada. describe requirements for accessible lavatories and restroom accessories. although each region and country has its own accessibility guidelines which you should review in. Ada Restroom Accessories Layout.
From wapenang.blogspot.com
Wheelchair Access Penang (wapenang) Toilet (WC) For Disabled People Ada Restroom Accessories Layout although each region and country has its own accessibility guidelines which you should review in depth before. fully recessed accessories are the recommended choice throughout universally designed restrooms. single occupant restroom design should allow for a patron to enter the room and maneuver to all fixtures from a. the fourth edition of bobrick’s planning guide for. Ada Restroom Accessories Layout.
From www.pinterest.com
Best Of Handicap Accessible Bathroom Designs handicapaccessible Ada Restroom Accessories Layout describe requirements for accessible lavatories and restroom accessories. the fourth edition of bobrick’s planning guide for accessible restrooms is now available! fully recessed accessories are the recommended choice throughout universally designed restrooms. this course will identify the benefits of accessibility standards and the prescriptive requirements for accessible restrooms set by the ada. single occupant restroom. Ada Restroom Accessories Layout.
From architecturesideas.com
ADA Bathroom Layout How to Build a Handicap Toilet? Ada Restroom Accessories Layout this course will identify the benefits of accessibility standards and the prescriptive requirements for accessible restrooms set by the ada. describe requirements for accessible lavatories and restroom accessories. the fourth edition of bobrick’s planning guide for accessible restrooms is now available! fully recessed accessories are the recommended choice throughout universally designed restrooms. although each region. Ada Restroom Accessories Layout.
From wurld.blogspot.com
bathroom layout ada Bathroom Layouts Bathroom Design Ada Restroom Accessories Layout this course will identify the benefits of accessibility standards and the prescriptive requirements for accessible restrooms set by the ada. describe requirements for accessible lavatories and restroom accessories. fully recessed accessories are the recommended choice throughout universally designed restrooms. the fourth edition of bobrick’s planning guide for accessible restrooms is now available! single occupant restroom. Ada Restroom Accessories Layout.
From viewfloor.co
Ada Bathroom Floor Plan Dimensions Viewfloor.co Ada Restroom Accessories Layout although each region and country has its own accessibility guidelines which you should review in depth before. describe requirements for accessible lavatories and restroom accessories. fully recessed accessories are the recommended choice throughout universally designed restrooms. this course will identify the benefits of accessibility standards and the prescriptive requirements for accessible restrooms set by the ada.. Ada Restroom Accessories Layout.
From www.harborcitysupply.com
Large Public Restrooms ADA Guidelines Harbor City Supply Ada Restroom Accessories Layout single occupant restroom design should allow for a patron to enter the room and maneuver to all fixtures from a. fully recessed accessories are the recommended choice throughout universally designed restrooms. this course will identify the benefits of accessibility standards and the prescriptive requirements for accessible restrooms set by the ada. describe requirements for accessible lavatories. Ada Restroom Accessories Layout.
From exonadcrv.blob.core.windows.net
Accessible Toilet Room at Kyle Aten blog Ada Restroom Accessories Layout fully recessed accessories are the recommended choice throughout universally designed restrooms. single occupant restroom design should allow for a patron to enter the room and maneuver to all fixtures from a. although each region and country has its own accessibility guidelines which you should review in depth before. this course will identify the benefits of accessibility. Ada Restroom Accessories Layout.
From www.imcgrupo.com
ADA Bathroom Layout Handicap Compliant IMC Grupo Ada Restroom Accessories Layout describe requirements for accessible lavatories and restroom accessories. single occupant restroom design should allow for a patron to enter the room and maneuver to all fixtures from a. although each region and country has its own accessibility guidelines which you should review in depth before. the fourth edition of bobrick’s planning guide for accessible restrooms is. Ada Restroom Accessories Layout.
From www.rethinkaccess.com
ADA Accessible Single User Toilet Room Layout and Requirements Ada Restroom Accessories Layout describe requirements for accessible lavatories and restroom accessories. the fourth edition of bobrick’s planning guide for accessible restrooms is now available! fully recessed accessories are the recommended choice throughout universally designed restrooms. this course will identify the benefits of accessibility standards and the prescriptive requirements for accessible restrooms set by the ada. single occupant restroom. Ada Restroom Accessories Layout.
From crossfieldsdesign.com
Designing Your ADA Compliant Restroom CrossFields Interiors Ada Restroom Accessories Layout this course will identify the benefits of accessibility standards and the prescriptive requirements for accessible restrooms set by the ada. describe requirements for accessible lavatories and restroom accessories. although each region and country has its own accessibility guidelines which you should review in depth before. the fourth edition of bobrick’s planning guide for accessible restrooms is. Ada Restroom Accessories Layout.
From archexamacademy.com
How to Design an ADA Restroom Arch Exam Academy Ada Restroom Accessories Layout describe requirements for accessible lavatories and restroom accessories. fully recessed accessories are the recommended choice throughout universally designed restrooms. single occupant restroom design should allow for a patron to enter the room and maneuver to all fixtures from a. the fourth edition of bobrick’s planning guide for accessible restrooms is now available! this course will. Ada Restroom Accessories Layout.
From www.dauntlessdc.com
Design of Handicap Bathrooms — Dauntless Design Collaborative Ada Restroom Accessories Layout fully recessed accessories are the recommended choice throughout universally designed restrooms. single occupant restroom design should allow for a patron to enter the room and maneuver to all fixtures from a. although each region and country has its own accessibility guidelines which you should review in depth before. describe requirements for accessible lavatories and restroom accessories.. Ada Restroom Accessories Layout.
From wheelchairtravel.org
faqhotelsadarequirementstoiletstandards Ada Restroom Accessories Layout this course will identify the benefits of accessibility standards and the prescriptive requirements for accessible restrooms set by the ada. the fourth edition of bobrick’s planning guide for accessible restrooms is now available! single occupant restroom design should allow for a patron to enter the room and maneuver to all fixtures from a. fully recessed accessories. Ada Restroom Accessories Layout.
From www.harborcitysupply.com
ADA Design Solutions For Bathrooms With Shower Compartments Harbor Ada Restroom Accessories Layout fully recessed accessories are the recommended choice throughout universally designed restrooms. describe requirements for accessible lavatories and restroom accessories. although each region and country has its own accessibility guidelines which you should review in depth before. single occupant restroom design should allow for a patron to enter the room and maneuver to all fixtures from a.. Ada Restroom Accessories Layout.
From plougonver.com
Ada Compliant House Plans Restroom Design and the Americans with Ada Restroom Accessories Layout although each region and country has its own accessibility guidelines which you should review in depth before. fully recessed accessories are the recommended choice throughout universally designed restrooms. describe requirements for accessible lavatories and restroom accessories. this course will identify the benefits of accessibility standards and the prescriptive requirements for accessible restrooms set by the ada.. Ada Restroom Accessories Layout.
From www.houseofform.com
7 Important ADA Restroom Requirements For Your Commercial Space Ada Restroom Accessories Layout describe requirements for accessible lavatories and restroom accessories. fully recessed accessories are the recommended choice throughout universally designed restrooms. single occupant restroom design should allow for a patron to enter the room and maneuver to all fixtures from a. this course will identify the benefits of accessibility standards and the prescriptive requirements for accessible restrooms set. Ada Restroom Accessories Layout.
From blog.bradleycorp.com
Download Prebuilt Revit Accessible Toilet Room Sample Model Ada Restroom Accessories Layout although each region and country has its own accessibility guidelines which you should review in depth before. this course will identify the benefits of accessibility standards and the prescriptive requirements for accessible restrooms set by the ada. describe requirements for accessible lavatories and restroom accessories. single occupant restroom design should allow for a patron to enter. Ada Restroom Accessories Layout.
From boardsreka.weebly.com
Commercial ada bathroom layout boardsreka Ada Restroom Accessories Layout single occupant restroom design should allow for a patron to enter the room and maneuver to all fixtures from a. fully recessed accessories are the recommended choice throughout universally designed restrooms. describe requirements for accessible lavatories and restroom accessories. although each region and country has its own accessibility guidelines which you should review in depth before.. Ada Restroom Accessories Layout.
From dxoyojumk.blob.core.windows.net
Ada Compliant Tall Toilet at Lisa Barton blog Ada Restroom Accessories Layout describe requirements for accessible lavatories and restroom accessories. fully recessed accessories are the recommended choice throughout universally designed restrooms. the fourth edition of bobrick’s planning guide for accessible restrooms is now available! although each region and country has its own accessibility guidelines which you should review in depth before. single occupant restroom design should allow. Ada Restroom Accessories Layout.
From archexamacademy.com
How to Design an ADA Restroom Arch Exam Academy Ada Restroom Accessories Layout although each region and country has its own accessibility guidelines which you should review in depth before. the fourth edition of bobrick’s planning guide for accessible restrooms is now available! single occupant restroom design should allow for a patron to enter the room and maneuver to all fixtures from a. describe requirements for accessible lavatories and. Ada Restroom Accessories Layout.