How Wide Should A Porte Cochere Be . the porte cochere stands out as a prime example of such an element, combining practicality with a touch of elegance. It can refer to a passageway through a building, which. Using engineered lumber, in our case 14″ lvl’s. the size and dimensions of the porte cochere should be carefully considered to ensure it is proportionate to the overall. Browse garage pictures and designs. the term porte cochére has two architectural meanings. Discover a wide variety of. although porte cocheres are a wonderful feature, they do require a reasonably wide lot if they are placed on the side, and having a drive around the.
from www.westerntimberframe.com
Browse garage pictures and designs. the term porte cochére has two architectural meanings. Discover a wide variety of. It can refer to a passageway through a building, which. the porte cochere stands out as a prime example of such an element, combining practicality with a touch of elegance. the size and dimensions of the porte cochere should be carefully considered to ensure it is proportionate to the overall. although porte cocheres are a wonderful feature, they do require a reasonably wide lot if they are placed on the side, and having a drive around the. Using engineered lumber, in our case 14″ lvl’s.
Posh Portecochère & Pergola w/Swing Western Timber Frame
How Wide Should A Porte Cochere Be the porte cochere stands out as a prime example of such an element, combining practicality with a touch of elegance. Discover a wide variety of. although porte cocheres are a wonderful feature, they do require a reasonably wide lot if they are placed on the side, and having a drive around the. the term porte cochére has two architectural meanings. It can refer to a passageway through a building, which. the size and dimensions of the porte cochere should be carefully considered to ensure it is proportionate to the overall. the porte cochere stands out as a prime example of such an element, combining practicality with a touch of elegance. Browse garage pictures and designs. Using engineered lumber, in our case 14″ lvl’s.
From senaterace2012.com
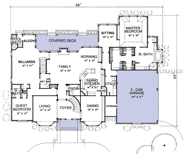
20 Porte Cochere Dimensions To Get You In The Amazing Design Home How Wide Should A Porte Cochere Be although porte cocheres are a wonderful feature, they do require a reasonably wide lot if they are placed on the side, and having a drive around the. the term porte cochére has two architectural meanings. the porte cochere stands out as a prime example of such an element, combining practicality with a touch of elegance. the. How Wide Should A Porte Cochere Be.
From www.familyhomeplans.com
Modern French Country House Plan With Porte Cochere How Wide Should A Porte Cochere Be the size and dimensions of the porte cochere should be carefully considered to ensure it is proportionate to the overall. Using engineered lumber, in our case 14″ lvl’s. the term porte cochére has two architectural meanings. the porte cochere stands out as a prime example of such an element, combining practicality with a touch of elegance. Browse. How Wide Should A Porte Cochere Be.
From www.finehomebuilding.com
Adding a PorteCochere Fine Homebuilding How Wide Should A Porte Cochere Be the porte cochere stands out as a prime example of such an element, combining practicality with a touch of elegance. although porte cocheres are a wonderful feature, they do require a reasonably wide lot if they are placed on the side, and having a drive around the. Discover a wide variety of. It can refer to a passageway. How Wide Should A Porte Cochere Be.
From senaterace2012.com
20 Porte Cochere Dimensions To Get You In The Amazing Design Home How Wide Should A Porte Cochere Be Discover a wide variety of. although porte cocheres are a wonderful feature, they do require a reasonably wide lot if they are placed on the side, and having a drive around the. the term porte cochére has two architectural meanings. Using engineered lumber, in our case 14″ lvl’s. the porte cochere stands out as a prime example. How Wide Should A Porte Cochere Be.
From www.finehomebuilding.com
Adding a PorteCochere Fine Homebuilding How Wide Should A Porte Cochere Be Browse garage pictures and designs. the term porte cochére has two architectural meanings. the porte cochere stands out as a prime example of such an element, combining practicality with a touch of elegance. the size and dimensions of the porte cochere should be carefully considered to ensure it is proportionate to the overall. although porte cocheres. How Wide Should A Porte Cochere Be.
From swellconstrucoes.com.br
Portecochère o que é e vantagens Swell Construções How Wide Should A Porte Cochere Be although porte cocheres are a wonderful feature, they do require a reasonably wide lot if they are placed on the side, and having a drive around the. Discover a wide variety of. the term porte cochére has two architectural meanings. It can refer to a passageway through a building, which. the porte cochere stands out as a. How Wide Should A Porte Cochere Be.
From www.pinterest.com
PorteCochere Offers Covered Access to Side Entrance of French Country How Wide Should A Porte Cochere Be the term porte cochére has two architectural meanings. It can refer to a passageway through a building, which. Using engineered lumber, in our case 14″ lvl’s. Discover a wide variety of. Browse garage pictures and designs. the size and dimensions of the porte cochere should be carefully considered to ensure it is proportionate to the overall. the. How Wide Should A Porte Cochere Be.
From www.tschoeppe.fr
Porte cochère aluminium sur mesure Tschoeppé How Wide Should A Porte Cochere Be the size and dimensions of the porte cochere should be carefully considered to ensure it is proportionate to the overall. the term porte cochére has two architectural meanings. It can refer to a passageway through a building, which. although porte cocheres are a wonderful feature, they do require a reasonably wide lot if they are placed on. How Wide Should A Porte Cochere Be.
From www.houzz.com.sg
Porte Cochere Traditional Car Porch New York by Clawson How Wide Should A Porte Cochere Be the term porte cochére has two architectural meanings. Discover a wide variety of. It can refer to a passageway through a building, which. although porte cocheres are a wonderful feature, they do require a reasonably wide lot if they are placed on the side, and having a drive around the. the porte cochere stands out as a. How Wide Should A Porte Cochere Be.
From www.mgaarchitects.com
PorteCochere MGa Marcus Gleysteen Architects How Wide Should A Porte Cochere Be Discover a wide variety of. It can refer to a passageway through a building, which. Browse garage pictures and designs. Using engineered lumber, in our case 14″ lvl’s. the porte cochere stands out as a prime example of such an element, combining practicality with a touch of elegance. the size and dimensions of the porte cochere should be. How Wide Should A Porte Cochere Be.
From www.houzz.com
double Porte cochere dimension help How Wide Should A Porte Cochere Be It can refer to a passageway through a building, which. Browse garage pictures and designs. the porte cochere stands out as a prime example of such an element, combining practicality with a touch of elegance. Discover a wide variety of. Using engineered lumber, in our case 14″ lvl’s. although porte cocheres are a wonderful feature, they do require. How Wide Should A Porte Cochere Be.
From poolenclosuresinc.com
PORTE COCHERES Pool Enclosures Inc. How Wide Should A Porte Cochere Be the term porte cochére has two architectural meanings. Discover a wide variety of. Using engineered lumber, in our case 14″ lvl’s. It can refer to a passageway through a building, which. the size and dimensions of the porte cochere should be carefully considered to ensure it is proportionate to the overall. the porte cochere stands out as. How Wide Should A Porte Cochere Be.
From www.architecturaldesigns.com
Modern Europeanstyle Transitional Home Plan with Porte Cochere and 2 How Wide Should A Porte Cochere Be Using engineered lumber, in our case 14″ lvl’s. although porte cocheres are a wonderful feature, they do require a reasonably wide lot if they are placed on the side, and having a drive around the. Browse garage pictures and designs. the size and dimensions of the porte cochere should be carefully considered to ensure it is proportionate to. How Wide Should A Porte Cochere Be.
From www.houzz.com
Heavy Timber PorteCochere in East Tennessee Craftsman Garage How Wide Should A Porte Cochere Be Browse garage pictures and designs. It can refer to a passageway through a building, which. Using engineered lumber, in our case 14″ lvl’s. the porte cochere stands out as a prime example of such an element, combining practicality with a touch of elegance. the size and dimensions of the porte cochere should be carefully considered to ensure it. How Wide Should A Porte Cochere Be.
From www.finehomebuilding.com
Adding a PorteCochere Fine Homebuilding How Wide Should A Porte Cochere Be the term porte cochére has two architectural meanings. Using engineered lumber, in our case 14″ lvl’s. Browse garage pictures and designs. It can refer to a passageway through a building, which. the size and dimensions of the porte cochere should be carefully considered to ensure it is proportionate to the overall. the porte cochere stands out as. How Wide Should A Porte Cochere Be.
From www.mgaarchitects.com
PorteCochere MGa Marcus Gleysteen Architects How Wide Should A Porte Cochere Be although porte cocheres are a wonderful feature, they do require a reasonably wide lot if they are placed on the side, and having a drive around the. Discover a wide variety of. the size and dimensions of the porte cochere should be carefully considered to ensure it is proportionate to the overall. It can refer to a passageway. How Wide Should A Porte Cochere Be.
From www.bostondesignguide.com
In Praise of the PorteCochère Boston Design Guide How Wide Should A Porte Cochere Be the porte cochere stands out as a prime example of such an element, combining practicality with a touch of elegance. It can refer to a passageway through a building, which. Discover a wide variety of. although porte cocheres are a wonderful feature, they do require a reasonably wide lot if they are placed on the side, and having. How Wide Should A Porte Cochere Be.
From www.finehomebuilding.com
Adding a PorteCochere Fine Homebuilding How Wide Should A Porte Cochere Be Discover a wide variety of. the term porte cochére has two architectural meanings. It can refer to a passageway through a building, which. Using engineered lumber, in our case 14″ lvl’s. the size and dimensions of the porte cochere should be carefully considered to ensure it is proportionate to the overall. although porte cocheres are a wonderful. How Wide Should A Porte Cochere Be.
From meik.co.za
Porte cochere connecting pedestrian entrance to covered entrance Meik How Wide Should A Porte Cochere Be Using engineered lumber, in our case 14″ lvl’s. Discover a wide variety of. the term porte cochére has two architectural meanings. although porte cocheres are a wonderful feature, they do require a reasonably wide lot if they are placed on the side, and having a drive around the. It can refer to a passageway through a building, which.. How Wide Should A Porte Cochere Be.
From www.geranium.com
The elegance of a Porte Cochère Geranium Blog How Wide Should A Porte Cochere Be the porte cochere stands out as a prime example of such an element, combining practicality with a touch of elegance. Discover a wide variety of. the term porte cochére has two architectural meanings. Browse garage pictures and designs. although porte cocheres are a wonderful feature, they do require a reasonably wide lot if they are placed on. How Wide Should A Porte Cochere Be.
From www.pinterest.com
75 Porte Cochere Ideas You'll Love June, 2024 Carriage house plans How Wide Should A Porte Cochere Be although porte cocheres are a wonderful feature, they do require a reasonably wide lot if they are placed on the side, and having a drive around the. Browse garage pictures and designs. It can refer to a passageway through a building, which. the porte cochere stands out as a prime example of such an element, combining practicality with. How Wide Should A Porte Cochere Be.
From senaterace2012.com
20 Photos And Inspiration Adding A Porte Cochere Home Plans & Blueprints How Wide Should A Porte Cochere Be the term porte cochére has two architectural meanings. It can refer to a passageway through a building, which. Discover a wide variety of. Using engineered lumber, in our case 14″ lvl’s. although porte cocheres are a wonderful feature, they do require a reasonably wide lot if they are placed on the side, and having a drive around the.. How Wide Should A Porte Cochere Be.
From www.carolinatimberworks.com
Timber Frame Porte Cochere Carolina Timberworks How Wide Should A Porte Cochere Be the term porte cochére has two architectural meanings. Using engineered lumber, in our case 14″ lvl’s. the size and dimensions of the porte cochere should be carefully considered to ensure it is proportionate to the overall. Browse garage pictures and designs. although porte cocheres are a wonderful feature, they do require a reasonably wide lot if they. How Wide Should A Porte Cochere Be.
From www.pinterest.com
Porte Cochere with Detatched Garage Beyond House exterior, Dream How Wide Should A Porte Cochere Be It can refer to a passageway through a building, which. the size and dimensions of the porte cochere should be carefully considered to ensure it is proportionate to the overall. Using engineered lumber, in our case 14″ lvl’s. the term porte cochére has two architectural meanings. Discover a wide variety of. the porte cochere stands out as. How Wide Should A Porte Cochere Be.
From www.westerntimberframe.com
Posh Portecochère & Pergola w/Swing Western Timber Frame How Wide Should A Porte Cochere Be although porte cocheres are a wonderful feature, they do require a reasonably wide lot if they are placed on the side, and having a drive around the. the size and dimensions of the porte cochere should be carefully considered to ensure it is proportionate to the overall. the term porte cochére has two architectural meanings. It can. How Wide Should A Porte Cochere Be.
From www.architecturaldesigns.com
3500 Square Foot OneStory Modern House Plan with Large Porte Cochere How Wide Should A Porte Cochere Be It can refer to a passageway through a building, which. although porte cocheres are a wonderful feature, they do require a reasonably wide lot if they are placed on the side, and having a drive around the. the porte cochere stands out as a prime example of such an element, combining practicality with a touch of elegance. Discover. How Wide Should A Porte Cochere Be.
From coppertreehomes.com
Porte Cochere TwoStory Coppertree Homes How Wide Should A Porte Cochere Be the porte cochere stands out as a prime example of such an element, combining practicality with a touch of elegance. Discover a wide variety of. the size and dimensions of the porte cochere should be carefully considered to ensure it is proportionate to the overall. Using engineered lumber, in our case 14″ lvl’s. the term porte cochére. How Wide Should A Porte Cochere Be.
From houseplansandmore.com
Porte Cochere House Plan 071S0027 Modern Craftsman House Plan How Wide Should A Porte Cochere Be Browse garage pictures and designs. the term porte cochére has two architectural meanings. the porte cochere stands out as a prime example of such an element, combining practicality with a touch of elegance. the size and dimensions of the porte cochere should be carefully considered to ensure it is proportionate to the overall. Using engineered lumber, in. How Wide Should A Porte Cochere Be.
From www.nhhomemagazine.com
2020 Excellence in Specialty Room Design Winner Porte Cochere New How Wide Should A Porte Cochere Be Discover a wide variety of. the term porte cochére has two architectural meanings. the size and dimensions of the porte cochere should be carefully considered to ensure it is proportionate to the overall. Browse garage pictures and designs. It can refer to a passageway through a building, which. Using engineered lumber, in our case 14″ lvl’s. the. How Wide Should A Porte Cochere Be.
From nikmodern.com
Porte Cochere House Decor Concept Ideas How Wide Should A Porte Cochere Be the porte cochere stands out as a prime example of such an element, combining practicality with a touch of elegance. It can refer to a passageway through a building, which. although porte cocheres are a wonderful feature, they do require a reasonably wide lot if they are placed on the side, and having a drive around the. Browse. How Wide Should A Porte Cochere Be.
From www.homepedian.com
Porte Cochere House Plans A Stylish And Practical Addition To Your How Wide Should A Porte Cochere Be It can refer to a passageway through a building, which. the term porte cochére has two architectural meanings. Browse garage pictures and designs. the porte cochere stands out as a prime example of such an element, combining practicality with a touch of elegance. although porte cocheres are a wonderful feature, they do require a reasonably wide lot. How Wide Should A Porte Cochere Be.
From www.finehomebuilding.com
Adding a PorteCochere Fine Homebuilding How Wide Should A Porte Cochere Be Using engineered lumber, in our case 14″ lvl’s. the size and dimensions of the porte cochere should be carefully considered to ensure it is proportionate to the overall. It can refer to a passageway through a building, which. although porte cocheres are a wonderful feature, they do require a reasonably wide lot if they are placed on the. How Wide Should A Porte Cochere Be.
From www.houseplans.net
What Is A PorteCochere? America's Best House Plans Blog America's How Wide Should A Porte Cochere Be Using engineered lumber, in our case 14″ lvl’s. Browse garage pictures and designs. the term porte cochére has two architectural meanings. It can refer to a passageway through a building, which. although porte cocheres are a wonderful feature, they do require a reasonably wide lot if they are placed on the side, and having a drive around the.. How Wide Should A Porte Cochere Be.
From www.architecturaldesigns.com
House Plans with Porte Cochere How Wide Should A Porte Cochere Be the size and dimensions of the porte cochere should be carefully considered to ensure it is proportionate to the overall. the term porte cochére has two architectural meanings. although porte cocheres are a wonderful feature, they do require a reasonably wide lot if they are placed on the side, and having a drive around the. Browse garage. How Wide Should A Porte Cochere Be.
From www.architecturaldesigns.com
Exclusive 2Story Transitional House Plan with Porte Cochere and Study How Wide Should A Porte Cochere Be Discover a wide variety of. the porte cochere stands out as a prime example of such an element, combining practicality with a touch of elegance. It can refer to a passageway through a building, which. the term porte cochére has two architectural meanings. although porte cocheres are a wonderful feature, they do require a reasonably wide lot. How Wide Should A Porte Cochere Be.