Partition Walls For Garage . Generally, a partition wall doesn’t require insulation unless it was located in a basement or garage, then it may be something to consider. This is how i built a partition wall in my garage and why you need a partition wall in your. There are only a few simpler and more effective garage partition ideas than using accordion folding doors or walls. We built a partition wall in the garage to separate workspace from storage space. This is a double garage and two thirds of it will be my workshop side, the other side will be dedicated to the storage of various kid’s toys. It offers numerous benefits, including maintaining specific areas, preventing air. A garage partition wall is a crucial tool for dividing your garage into storage and new room areas. I’m just building a partition wall down the middle(ish) of my garage. There are nearly countless ways you can customize. Now, if you're a professional. Let's build a partition wall:
from www.diynot.com
It offers numerous benefits, including maintaining specific areas, preventing air. Generally, a partition wall doesn’t require insulation unless it was located in a basement or garage, then it may be something to consider. Let's build a partition wall: Now, if you're a professional. I’m just building a partition wall down the middle(ish) of my garage. There are nearly countless ways you can customize. This is how i built a partition wall in my garage and why you need a partition wall in your. A garage partition wall is a crucial tool for dividing your garage into storage and new room areas. There are only a few simpler and more effective garage partition ideas than using accordion folding doors or walls. This is a double garage and two thirds of it will be my workshop side, the other side will be dedicated to the storage of various kid’s toys.
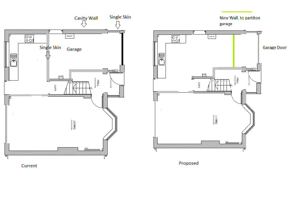
Wall to partition garage conversion? DIYnot Forums
Partition Walls For Garage Generally, a partition wall doesn’t require insulation unless it was located in a basement or garage, then it may be something to consider. This is how i built a partition wall in my garage and why you need a partition wall in your. We built a partition wall in the garage to separate workspace from storage space. Generally, a partition wall doesn’t require insulation unless it was located in a basement or garage, then it may be something to consider. I’m just building a partition wall down the middle(ish) of my garage. This is a double garage and two thirds of it will be my workshop side, the other side will be dedicated to the storage of various kid’s toys. There are only a few simpler and more effective garage partition ideas than using accordion folding doors or walls. Now, if you're a professional. Let's build a partition wall: A garage partition wall is a crucial tool for dividing your garage into storage and new room areas. There are nearly countless ways you can customize. It offers numerous benefits, including maintaining specific areas, preventing air.
From buildersvilla.com
How to build a wall partition Builders Villa Partition Walls For Garage It offers numerous benefits, including maintaining specific areas, preventing air. Let's build a partition wall: We built a partition wall in the garage to separate workspace from storage space. A garage partition wall is a crucial tool for dividing your garage into storage and new room areas. Now, if you're a professional. I’m just building a partition wall down the. Partition Walls For Garage.
From quigleysclan.blogspot.com
Design 20 of Partition Wall In Garage quigleysclan Partition Walls For Garage This is how i built a partition wall in my garage and why you need a partition wall in your. A garage partition wall is a crucial tool for dividing your garage into storage and new room areas. There are only a few simpler and more effective garage partition ideas than using accordion folding doors or walls. I’m just building. Partition Walls For Garage.
From www.motherdaughterprojects.com
How to Build a Garage Storage Wall Mother Daughter Projects Partition Walls For Garage We built a partition wall in the garage to separate workspace from storage space. A garage partition wall is a crucial tool for dividing your garage into storage and new room areas. I’m just building a partition wall down the middle(ish) of my garage. Generally, a partition wall doesn’t require insulation unless it was located in a basement or garage,. Partition Walls For Garage.
From www.youtube.com
New Garage Dividing Wall part 1 YouTube Partition Walls For Garage This is how i built a partition wall in my garage and why you need a partition wall in your. Now, if you're a professional. There are only a few simpler and more effective garage partition ideas than using accordion folding doors or walls. There are nearly countless ways you can customize. Generally, a partition wall doesn’t require insulation unless. Partition Walls For Garage.
From garagemadesimple.com
Building a Partition Wall in Garage in 9 Simple, Easy Steps! Partition Walls For Garage Generally, a partition wall doesn’t require insulation unless it was located in a basement or garage, then it may be something to consider. This is how i built a partition wall in my garage and why you need a partition wall in your. It offers numerous benefits, including maintaining specific areas, preventing air. I’m just building a partition wall down. Partition Walls For Garage.
From www.pinterest.com
25+ Brilliant Garage Wall Ideas, Design and Remodel Pictures Garage Partition Walls For Garage This is a double garage and two thirds of it will be my workshop side, the other side will be dedicated to the storage of various kid’s toys. I’m just building a partition wall down the middle(ish) of my garage. Now, if you're a professional. There are only a few simpler and more effective garage partition ideas than using accordion. Partition Walls For Garage.
From garagemadesimple.com
Building a Partition Wall in Garage in 9 Simple, Easy Steps! Partition Walls For Garage There are only a few simpler and more effective garage partition ideas than using accordion folding doors or walls. It offers numerous benefits, including maintaining specific areas, preventing air. We built a partition wall in the garage to separate workspace from storage space. I’m just building a partition wall down the middle(ish) of my garage. There are nearly countless ways. Partition Walls For Garage.
From www.krista-howard.com
5 Easy Steps to Building a Garage Partition Wall with Studs Krista Partition Walls For Garage Let's build a partition wall: I’m just building a partition wall down the middle(ish) of my garage. There are nearly countless ways you can customize. This is how i built a partition wall in my garage and why you need a partition wall in your. Now, if you're a professional. There are only a few simpler and more effective garage. Partition Walls For Garage.
From www.pinterest.co.uk
The Room Divider 360® Folding Portable Partition Room divider, Room Partition Walls For Garage A garage partition wall is a crucial tool for dividing your garage into storage and new room areas. Generally, a partition wall doesn’t require insulation unless it was located in a basement or garage, then it may be something to consider. There are nearly countless ways you can customize. This is a double garage and two thirds of it will. Partition Walls For Garage.
From www.pinterest.co.uk
Sliding folding partitions offer an effective space solution for many Partition Walls For Garage Let's build a partition wall: This is how i built a partition wall in my garage and why you need a partition wall in your. This is a double garage and two thirds of it will be my workshop side, the other side will be dedicated to the storage of various kid’s toys. A garage partition wall is a crucial. Partition Walls For Garage.
From homesteady.com
How to Build Garage Partition Walls HomeSteady Partition Walls For Garage We built a partition wall in the garage to separate workspace from storage space. There are nearly countless ways you can customize. Now, if you're a professional. This is how i built a partition wall in my garage and why you need a partition wall in your. Let's build a partition wall: This is a double garage and two thirds. Partition Walls For Garage.
From www.garagedoors4you.co.uk
Turning Your Garage Into A Playroom, Best Advice By Garage Doors 4 You Partition Walls For Garage There are nearly countless ways you can customize. I’m just building a partition wall down the middle(ish) of my garage. Generally, a partition wall doesn’t require insulation unless it was located in a basement or garage, then it may be something to consider. Let's build a partition wall: This is a double garage and two thirds of it will be. Partition Walls For Garage.
From www.pinterest.com
Before & After Garage Turned Playroom Apartment Therapy Garage Partition Walls For Garage I’m just building a partition wall down the middle(ish) of my garage. Let's build a partition wall: This is a double garage and two thirds of it will be my workshop side, the other side will be dedicated to the storage of various kid’s toys. We built a partition wall in the garage to separate workspace from storage space. There. Partition Walls For Garage.
From www.pinterest.dk
De 25+ bedste idéer inden for Portable partitions på Pinterest Partition Walls For Garage A garage partition wall is a crucial tool for dividing your garage into storage and new room areas. Let's build a partition wall: Generally, a partition wall doesn’t require insulation unless it was located in a basement or garage, then it may be something to consider. I’m just building a partition wall down the middle(ish) of my garage. Now, if. Partition Walls For Garage.
From www.partitions-walls.com
Wooden MDF Restaurant Foldable Movable Sliding Partition Walls Rolling Partition Walls For Garage Now, if you're a professional. Let's build a partition wall: A garage partition wall is a crucial tool for dividing your garage into storage and new room areas. This is a double garage and two thirds of it will be my workshop side, the other side will be dedicated to the storage of various kid’s toys. I’m just building a. Partition Walls For Garage.
From www.ukworkshop.co.uk
Partition Wall Garage UK Partition Walls For Garage Let's build a partition wall: Now, if you're a professional. It offers numerous benefits, including maintaining specific areas, preventing air. We built a partition wall in the garage to separate workspace from storage space. This is a double garage and two thirds of it will be my workshop side, the other side will be dedicated to the storage of various. Partition Walls For Garage.
From www.ukworkshop.co.uk
Partition Wall Garage UK Partition Walls For Garage This is how i built a partition wall in my garage and why you need a partition wall in your. There are only a few simpler and more effective garage partition ideas than using accordion folding doors or walls. I’m just building a partition wall down the middle(ish) of my garage. It offers numerous benefits, including maintaining specific areas, preventing. Partition Walls For Garage.
From www.motherdaughterprojects.com
How to Build a Garage Storage Wall Mother Daughter Projects Partition Walls For Garage Let's build a partition wall: This is a double garage and two thirds of it will be my workshop side, the other side will be dedicated to the storage of various kid’s toys. A garage partition wall is a crucial tool for dividing your garage into storage and new room areas. Now, if you're a professional. We built a partition. Partition Walls For Garage.
From www.youtube.com
🔥 Drywall partition ︎ How to Build a metal framed wall 💪 PLADUR YouTube Partition Walls For Garage Generally, a partition wall doesn’t require insulation unless it was located in a basement or garage, then it may be something to consider. Let's build a partition wall: This is a double garage and two thirds of it will be my workshop side, the other side will be dedicated to the storage of various kid’s toys. This is how i. Partition Walls For Garage.
From www.ukworkshop.co.uk
Partition Wall Garage UK Partition Walls For Garage There are nearly countless ways you can customize. There are only a few simpler and more effective garage partition ideas than using accordion folding doors or walls. A garage partition wall is a crucial tool for dividing your garage into storage and new room areas. Let's build a partition wall: We built a partition wall in the garage to separate. Partition Walls For Garage.
From exocgfemj.blob.core.windows.net
How To Build A Temporary Stud Wall at Bob Matthews blog Partition Walls For Garage We built a partition wall in the garage to separate workspace from storage space. There are only a few simpler and more effective garage partition ideas than using accordion folding doors or walls. Generally, a partition wall doesn’t require insulation unless it was located in a basement or garage, then it may be something to consider. This is a double. Partition Walls For Garage.
From progaragedoor.com
Partition Walls Pro Garage Doors Partition Walls For Garage There are only a few simpler and more effective garage partition ideas than using accordion folding doors or walls. This is how i built a partition wall in my garage and why you need a partition wall in your. It offers numerous benefits, including maintaining specific areas, preventing air. Now, if you're a professional. Generally, a partition wall doesn’t require. Partition Walls For Garage.
From wallsmount.com
Wall Mount Garage Shelving The Best Way To Utilize Your Garage Space Partition Walls For Garage There are nearly countless ways you can customize. This is a double garage and two thirds of it will be my workshop side, the other side will be dedicated to the storage of various kid’s toys. A garage partition wall is a crucial tool for dividing your garage into storage and new room areas. This is how i built a. Partition Walls For Garage.
From racing-forums.com
Garage Partitions Racing Forums Partition Walls For Garage It offers numerous benefits, including maintaining specific areas, preventing air. There are only a few simpler and more effective garage partition ideas than using accordion folding doors or walls. A garage partition wall is a crucial tool for dividing your garage into storage and new room areas. This is how i built a partition wall in my garage and why. Partition Walls For Garage.
From www.pinterest.com
Moving Designs Ltd Sliding folding partitions offer an effective Partition Walls For Garage This is how i built a partition wall in my garage and why you need a partition wall in your. I’m just building a partition wall down the middle(ish) of my garage. Let's build a partition wall: There are only a few simpler and more effective garage partition ideas than using accordion folding doors or walls. Generally, a partition wall. Partition Walls For Garage.
From www.pacificsoundcontrol.com
Operable Walls Pacific Sound Control Partition Walls For Garage This is how i built a partition wall in my garage and why you need a partition wall in your. Generally, a partition wall doesn’t require insulation unless it was located in a basement or garage, then it may be something to consider. Now, if you're a professional. A garage partition wall is a crucial tool for dividing your garage. Partition Walls For Garage.
From www.igegroup.com
Modular Temporary Wall Outdoor Outdoor Partition Walls Partition Walls For Garage A garage partition wall is a crucial tool for dividing your garage into storage and new room areas. This is a double garage and two thirds of it will be my workshop side, the other side will be dedicated to the storage of various kid’s toys. It offers numerous benefits, including maintaining specific areas, preventing air. Let's build a partition. Partition Walls For Garage.
From gripelements.com
25+ Brilliant Garage Wall Ideas, Design and Remodel Pictures Partition Walls For Garage This is a double garage and two thirds of it will be my workshop side, the other side will be dedicated to the storage of various kid’s toys. There are nearly countless ways you can customize. I’m just building a partition wall down the middle(ish) of my garage. This is how i built a partition wall in my garage and. Partition Walls For Garage.
From www.artofit.org
Manual aluminum sliding soundproof partition walls movable wall panels Partition Walls For Garage Now, if you're a professional. Let's build a partition wall: This is a double garage and two thirds of it will be my workshop side, the other side will be dedicated to the storage of various kid’s toys. There are only a few simpler and more effective garage partition ideas than using accordion folding doors or walls. There are nearly. Partition Walls For Garage.
From www.diynot.com
Wall to partition garage conversion? DIYnot Forums Partition Walls For Garage Generally, a partition wall doesn’t require insulation unless it was located in a basement or garage, then it may be something to consider. This is how i built a partition wall in my garage and why you need a partition wall in your. It offers numerous benefits, including maintaining specific areas, preventing air. There are only a few simpler and. Partition Walls For Garage.
From www.qualitysmith.com
Remodel your garage walls and partitions Partition Walls For Garage Now, if you're a professional. There are nearly countless ways you can customize. It offers numerous benefits, including maintaining specific areas, preventing air. There are only a few simpler and more effective garage partition ideas than using accordion folding doors or walls. Generally, a partition wall doesn’t require insulation unless it was located in a basement or garage, then it. Partition Walls For Garage.
From www.pinterest.com
Need a mountable wall partition? We have a variety of options and Partition Walls For Garage Generally, a partition wall doesn’t require insulation unless it was located in a basement or garage, then it may be something to consider. A garage partition wall is a crucial tool for dividing your garage into storage and new room areas. There are nearly countless ways you can customize. We built a partition wall in the garage to separate workspace. Partition Walls For Garage.
From www.motherdaughterprojects.com
How to Build a Garage Storage Wall Mother Daughter Projects Partition Walls For Garage I’m just building a partition wall down the middle(ish) of my garage. We built a partition wall in the garage to separate workspace from storage space. A garage partition wall is a crucial tool for dividing your garage into storage and new room areas. It offers numerous benefits, including maintaining specific areas, preventing air. This is how i built a. Partition Walls For Garage.
From www.curtain-and-divider.com
Garage Partition Ideas Akon Curtain and Divider Partition Walls For Garage There are nearly countless ways you can customize. Let's build a partition wall: I’m just building a partition wall down the middle(ish) of my garage. There are only a few simpler and more effective garage partition ideas than using accordion folding doors or walls. We built a partition wall in the garage to separate workspace from storage space. It offers. Partition Walls For Garage.
From www.pinterest.com
Sliding folding partition, sliding wall installed utilizing space in a Partition Walls For Garage This is how i built a partition wall in my garage and why you need a partition wall in your. There are nearly countless ways you can customize. Now, if you're a professional. A garage partition wall is a crucial tool for dividing your garage into storage and new room areas. Generally, a partition wall doesn’t require insulation unless it. Partition Walls For Garage.