Lead Based Paint Certification And Acknowledgement Indiana . Lead from paint, paint chips, and dust can pose health hazards if not managed. A risk assessment or inspection for possible lead. learn all about the lead certification requirements for the state of indiana. View detailed information on indiana fees, contact.
from exocfwgwx.blob.core.windows.net
learn all about the lead certification requirements for the state of indiana. Lead from paint, paint chips, and dust can pose health hazards if not managed. View detailed information on indiana fees, contact. A risk assessment or inspection for possible lead.
Online Lead Based Paint Certification at Ronnie Leach blog
Lead Based Paint Certification And Acknowledgement Indiana A risk assessment or inspection for possible lead. Lead from paint, paint chips, and dust can pose health hazards if not managed. learn all about the lead certification requirements for the state of indiana. A risk assessment or inspection for possible lead. View detailed information on indiana fees, contact.
From onlineepaleadcourse.blogspot.com
EPA RRP Lead Paint Certification Lead Based Paint Certification And Acknowledgement Indiana A risk assessment or inspection for possible lead. View detailed information on indiana fees, contact. learn all about the lead certification requirements for the state of indiana. Lead from paint, paint chips, and dust can pose health hazards if not managed. Lead Based Paint Certification And Acknowledgement Indiana.
From www.sampleforms.com
FREE 6+ LeadBased Paint Disclosure Forms in PDF MS Word Lead Based Paint Certification And Acknowledgement Indiana learn all about the lead certification requirements for the state of indiana. A risk assessment or inspection for possible lead. Lead from paint, paint chips, and dust can pose health hazards if not managed. View detailed information on indiana fees, contact. Lead Based Paint Certification And Acknowledgement Indiana.
From www.ezlandlordforms.com
LeadBased Paint Disclosure & Certification EZ Landlord Forms Lead Based Paint Certification And Acknowledgement Indiana learn all about the lead certification requirements for the state of indiana. A risk assessment or inspection for possible lead. Lead from paint, paint chips, and dust can pose health hazards if not managed. View detailed information on indiana fees, contact. Lead Based Paint Certification And Acknowledgement Indiana.
From 5mcontracting.org
Lead Based Paint Removal EPA Certification for 5M contracting Lead Based Paint Certification And Acknowledgement Indiana Lead from paint, paint chips, and dust can pose health hazards if not managed. A risk assessment or inspection for possible lead. View detailed information on indiana fees, contact. learn all about the lead certification requirements for the state of indiana. Lead Based Paint Certification And Acknowledgement Indiana.
From www.pdffiller.com
Lead Based Paint Disclosure Indiana Fill Online, Printable, Fillable Lead Based Paint Certification And Acknowledgement Indiana learn all about the lead certification requirements for the state of indiana. Lead from paint, paint chips, and dust can pose health hazards if not managed. View detailed information on indiana fees, contact. A risk assessment or inspection for possible lead. Lead Based Paint Certification And Acknowledgement Indiana.
From www.slideserve.com
PPT U.S. Environmental Protection Agency’s Residential Lead Hazard Lead Based Paint Certification And Acknowledgement Indiana learn all about the lead certification requirements for the state of indiana. Lead from paint, paint chips, and dust can pose health hazards if not managed. View detailed information on indiana fees, contact. A risk assessment or inspection for possible lead. Lead Based Paint Certification And Acknowledgement Indiana.
From www.lawdistrict.com
Free Lead Based Paint Disclosure Form Official for Renters LawDistrict Lead Based Paint Certification And Acknowledgement Indiana View detailed information on indiana fees, contact. A risk assessment or inspection for possible lead. Lead from paint, paint chips, and dust can pose health hazards if not managed. learn all about the lead certification requirements for the state of indiana. Lead Based Paint Certification And Acknowledgement Indiana.
From www.templateroller.com
Utah LeadBased Paint Certification Application for Individuals Fill Lead Based Paint Certification And Acknowledgement Indiana View detailed information on indiana fees, contact. Lead from paint, paint chips, and dust can pose health hazards if not managed. A risk assessment or inspection for possible lead. learn all about the lead certification requirements for the state of indiana. Lead Based Paint Certification And Acknowledgement Indiana.
From www.formsbank.com
Addendum Disclosure Of Information And Acknowledgment About LeadBased Lead Based Paint Certification And Acknowledgement Indiana learn all about the lead certification requirements for the state of indiana. Lead from paint, paint chips, and dust can pose health hazards if not managed. A risk assessment or inspection for possible lead. View detailed information on indiana fees, contact. Lead Based Paint Certification And Acknowledgement Indiana.
From store.realtor
LeadBased Paint Reference Guide (Printed Guide) REALTOR® Store Lead Based Paint Certification And Acknowledgement Indiana Lead from paint, paint chips, and dust can pose health hazards if not managed. A risk assessment or inspection for possible lead. View detailed information on indiana fees, contact. learn all about the lead certification requirements for the state of indiana. Lead Based Paint Certification And Acknowledgement Indiana.
From exocfwgwx.blob.core.windows.net
Online Lead Based Paint Certification at Ronnie Leach blog Lead Based Paint Certification And Acknowledgement Indiana Lead from paint, paint chips, and dust can pose health hazards if not managed. View detailed information on indiana fees, contact. learn all about the lead certification requirements for the state of indiana. A risk assessment or inspection for possible lead. Lead Based Paint Certification And Acknowledgement Indiana.
From www.pdffiller.com
Fillable Online addendum a disclosure of information and acknowledgment Lead Based Paint Certification And Acknowledgement Indiana View detailed information on indiana fees, contact. Lead from paint, paint chips, and dust can pose health hazards if not managed. A risk assessment or inspection for possible lead. learn all about the lead certification requirements for the state of indiana. Lead Based Paint Certification And Acknowledgement Indiana.
From prntbl.concejomunicipaldechinu.gov.co
Auto Paint Certification prntbl.concejomunicipaldechinu.gov.co Lead Based Paint Certification And Acknowledgement Indiana learn all about the lead certification requirements for the state of indiana. Lead from paint, paint chips, and dust can pose health hazards if not managed. A risk assessment or inspection for possible lead. View detailed information on indiana fees, contact. Lead Based Paint Certification And Acknowledgement Indiana.
From www.signnow.com
Lead Based Paint Disclosure for Sales Transaction Indiana Form Fill Lead Based Paint Certification And Acknowledgement Indiana learn all about the lead certification requirements for the state of indiana. Lead from paint, paint chips, and dust can pose health hazards if not managed. View detailed information on indiana fees, contact. A risk assessment or inspection for possible lead. Lead Based Paint Certification And Acknowledgement Indiana.
From www.sampleforms.com
FREE 6+ LeadBased Paint Disclosure Forms in PDF MS Word Lead Based Paint Certification And Acknowledgement Indiana A risk assessment or inspection for possible lead. Lead from paint, paint chips, and dust can pose health hazards if not managed. learn all about the lead certification requirements for the state of indiana. View detailed information on indiana fees, contact. Lead Based Paint Certification And Acknowledgement Indiana.
From certapro.com
EPA Lead Certificate CertaPro Painters of San Mateo Lead Based Paint Certification And Acknowledgement Indiana A risk assessment or inspection for possible lead. View detailed information on indiana fees, contact. learn all about the lead certification requirements for the state of indiana. Lead from paint, paint chips, and dust can pose health hazards if not managed. Lead Based Paint Certification And Acknowledgement Indiana.
From www.pdffiller.com
Fillable Online Lead Based Paint Certification And Acknowledgement Indiana Lead from paint, paint chips, and dust can pose health hazards if not managed. learn all about the lead certification requirements for the state of indiana. A risk assessment or inspection for possible lead. View detailed information on indiana fees, contact. Lead Based Paint Certification And Acknowledgement Indiana.
From eforms.com
Free LeadBased Paint Disclosure Forms For Sellers & Landlords PDF Lead Based Paint Certification And Acknowledgement Indiana learn all about the lead certification requirements for the state of indiana. A risk assessment or inspection for possible lead. View detailed information on indiana fees, contact. Lead from paint, paint chips, and dust can pose health hazards if not managed. Lead Based Paint Certification And Acknowledgement Indiana.
From www.template.net
Lead Based Paint Certification Template in Word, Pages, Publisher Lead Based Paint Certification And Acknowledgement Indiana A risk assessment or inspection for possible lead. View detailed information on indiana fees, contact. Lead from paint, paint chips, and dust can pose health hazards if not managed. learn all about the lead certification requirements for the state of indiana. Lead Based Paint Certification And Acknowledgement Indiana.
From eforms.com
Free LeadBased Paint Disclosure Forms For Sellers & Landlords PDF Lead Based Paint Certification And Acknowledgement Indiana learn all about the lead certification requirements for the state of indiana. A risk assessment or inspection for possible lead. View detailed information on indiana fees, contact. Lead from paint, paint chips, and dust can pose health hazards if not managed. Lead Based Paint Certification And Acknowledgement Indiana.
From www.pdffiller.com
Fillable Online LEADBASED PAINT CERTIFICATION AND Fax Email Print Lead Based Paint Certification And Acknowledgement Indiana Lead from paint, paint chips, and dust can pose health hazards if not managed. View detailed information on indiana fees, contact. learn all about the lead certification requirements for the state of indiana. A risk assessment or inspection for possible lead. Lead Based Paint Certification And Acknowledgement Indiana.
From www.dochub.com
Free printable lead based paint pamphlet Fill out & sign online DocHub Lead Based Paint Certification And Acknowledgement Indiana View detailed information on indiana fees, contact. learn all about the lead certification requirements for the state of indiana. Lead from paint, paint chips, and dust can pose health hazards if not managed. A risk assessment or inspection for possible lead. Lead Based Paint Certification And Acknowledgement Indiana.
From www.pdffiller.com
Fillable Online LeadBasedPaintCertificationandAcknowledgment Lead Based Paint Certification And Acknowledgement Indiana A risk assessment or inspection for possible lead. learn all about the lead certification requirements for the state of indiana. Lead from paint, paint chips, and dust can pose health hazards if not managed. View detailed information on indiana fees, contact. Lead Based Paint Certification And Acknowledgement Indiana.
From denverhousepaintingpro.com
Lead Based Paint Certified Denver House Painting Pro Lead Based Paint Certification And Acknowledgement Indiana View detailed information on indiana fees, contact. Lead from paint, paint chips, and dust can pose health hazards if not managed. A risk assessment or inspection for possible lead. learn all about the lead certification requirements for the state of indiana. Lead Based Paint Certification And Acknowledgement Indiana.
From www.pdffiller.com
Fillable Online LEADBASED PAINT CERTIFICATION AND ACKNOWLEDGMENT Lead Based Paint Certification And Acknowledgement Indiana learn all about the lead certification requirements for the state of indiana. Lead from paint, paint chips, and dust can pose health hazards if not managed. A risk assessment or inspection for possible lead. View detailed information on indiana fees, contact. Lead Based Paint Certification And Acknowledgement Indiana.
From www.pdffiller.com
Fillable Online DISCLOSURE OF INFORMATION AND ACKNOWLEDGMENT ABOUT LEAD Lead Based Paint Certification And Acknowledgement Indiana View detailed information on indiana fees, contact. A risk assessment or inspection for possible lead. Lead from paint, paint chips, and dust can pose health hazards if not managed. learn all about the lead certification requirements for the state of indiana. Lead Based Paint Certification And Acknowledgement Indiana.
From www.slideserve.com
PPT U.S. Environmental Protection Agency’s Residential Lead Hazard Lead Based Paint Certification And Acknowledgement Indiana learn all about the lead certification requirements for the state of indiana. A risk assessment or inspection for possible lead. View detailed information on indiana fees, contact. Lead from paint, paint chips, and dust can pose health hazards if not managed. Lead Based Paint Certification And Acknowledgement Indiana.
From www.typecalendar.com
Free Printable Lead Based Paint Disclosure [PDF] Tenants Form For Renters Lead Based Paint Certification And Acknowledgement Indiana View detailed information on indiana fees, contact. Lead from paint, paint chips, and dust can pose health hazards if not managed. learn all about the lead certification requirements for the state of indiana. A risk assessment or inspection for possible lead. Lead Based Paint Certification And Acknowledgement Indiana.
From www.sampleforms.com
FREE 6+ LeadBased Paint Disclosure Forms in PDF MS Word Lead Based Paint Certification And Acknowledgement Indiana A risk assessment or inspection for possible lead. Lead from paint, paint chips, and dust can pose health hazards if not managed. View detailed information on indiana fees, contact. learn all about the lead certification requirements for the state of indiana. Lead Based Paint Certification And Acknowledgement Indiana.
From www.templateroller.com
Utah LeadBased Paint Certification Application for Firms Download Lead Based Paint Certification And Acknowledgement Indiana Lead from paint, paint chips, and dust can pose health hazards if not managed. A risk assessment or inspection for possible lead. View detailed information on indiana fees, contact. learn all about the lead certification requirements for the state of indiana. Lead Based Paint Certification And Acknowledgement Indiana.
From freeforms.com
Free LeadBased Paint Disclosure Form For Homebuyers PDF WORD Lead Based Paint Certification And Acknowledgement Indiana A risk assessment or inspection for possible lead. learn all about the lead certification requirements for the state of indiana. View detailed information on indiana fees, contact. Lead from paint, paint chips, and dust can pose health hazards if not managed. Lead Based Paint Certification And Acknowledgement Indiana.
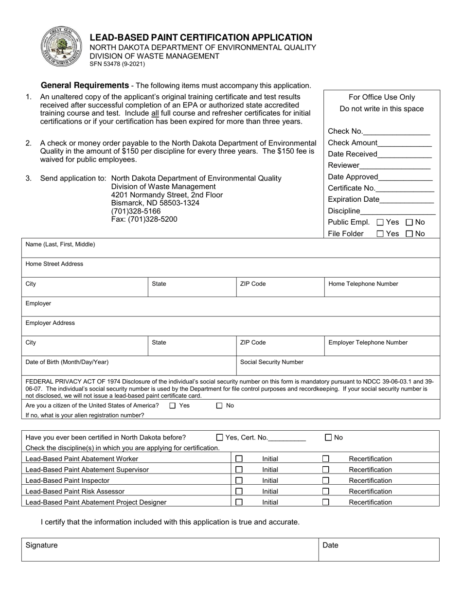
From www.templateroller.com
Form SFN53478 Download Printable PDF or Fill Online LeadBased Paint Lead Based Paint Certification And Acknowledgement Indiana Lead from paint, paint chips, and dust can pose health hazards if not managed. View detailed information on indiana fees, contact. learn all about the lead certification requirements for the state of indiana. A risk assessment or inspection for possible lead. Lead Based Paint Certification And Acknowledgement Indiana.
From www.pdffiller.com
Fillable Online Lead Based Paint Pamphlet Acknowledgment Prior to Lead Based Paint Certification And Acknowledgement Indiana View detailed information on indiana fees, contact. learn all about the lead certification requirements for the state of indiana. A risk assessment or inspection for possible lead. Lead from paint, paint chips, and dust can pose health hazards if not managed. Lead Based Paint Certification And Acknowledgement Indiana.
From www.linkedin.com
Changes to the EPA's leadbased paint make more residential housing Lead Based Paint Certification And Acknowledgement Indiana Lead from paint, paint chips, and dust can pose health hazards if not managed. learn all about the lead certification requirements for the state of indiana. A risk assessment or inspection for possible lead. View detailed information on indiana fees, contact. Lead Based Paint Certification And Acknowledgement Indiana.
From sfwpainting.com
Lead Renovation Certified Paint Contractor Lead Paint Removal Lead Based Paint Certification And Acknowledgement Indiana View detailed information on indiana fees, contact. learn all about the lead certification requirements for the state of indiana. Lead from paint, paint chips, and dust can pose health hazards if not managed. A risk assessment or inspection for possible lead. Lead Based Paint Certification And Acknowledgement Indiana.