Land Disturbance Permit Missouri . Modot's land disturbance certification training is now. Louis county public works application for land disturbance permit (for use with change of land ownership)” to the permit application center. Click here to read how modot's new statewide operating permit affects contractors. Electronic permitting (epermitting) is an online tool that allows users to apply for and obtain a missouri land disturbance stormwater general. In addition to the county permit, a permit issued by the missouri department of natural resources (mdnr) is required to be obtained for land. Any person or organization engaged in a land disturbance activity of one acre or greater must first obtain a land disturbance permit as. This guideline is intended to provide a homeowner/contractor with the basic information needed to apply for a permit to conduct an. For projects one (1) acre or greater, the missouri department of natural resources (mdnr) may require a separate land disturbance permit in.
from www.pdffiller.com
For projects one (1) acre or greater, the missouri department of natural resources (mdnr) may require a separate land disturbance permit in. Electronic permitting (epermitting) is an online tool that allows users to apply for and obtain a missouri land disturbance stormwater general. Louis county public works application for land disturbance permit (for use with change of land ownership)” to the permit application center. Click here to read how modot's new statewide operating permit affects contractors. Any person or organization engaged in a land disturbance activity of one acre or greater must first obtain a land disturbance permit as. In addition to the county permit, a permit issued by the missouri department of natural resources (mdnr) is required to be obtained for land. Modot's land disturbance certification training is now. This guideline is intended to provide a homeowner/contractor with the basic information needed to apply for a permit to conduct an.
Fillable Online LAND DISTURBANCE PERMIT / MAJOR SUBDIVISION REVIEW
Land Disturbance Permit Missouri For projects one (1) acre or greater, the missouri department of natural resources (mdnr) may require a separate land disturbance permit in. Modot's land disturbance certification training is now. For projects one (1) acre or greater, the missouri department of natural resources (mdnr) may require a separate land disturbance permit in. Louis county public works application for land disturbance permit (for use with change of land ownership)” to the permit application center. Electronic permitting (epermitting) is an online tool that allows users to apply for and obtain a missouri land disturbance stormwater general. This guideline is intended to provide a homeowner/contractor with the basic information needed to apply for a permit to conduct an. In addition to the county permit, a permit issued by the missouri department of natural resources (mdnr) is required to be obtained for land. Any person or organization engaged in a land disturbance activity of one acre or greater must first obtain a land disturbance permit as. Click here to read how modot's new statewide operating permit affects contractors.
From exobewfgx.blob.core.windows.net
James City County Land Disturbance Permit at Frances b blog Land Disturbance Permit Missouri Modot's land disturbance certification training is now. For projects one (1) acre or greater, the missouri department of natural resources (mdnr) may require a separate land disturbance permit in. This guideline is intended to provide a homeowner/contractor with the basic information needed to apply for a permit to conduct an. Louis county public works application for land disturbance permit (for. Land Disturbance Permit Missouri.
From www.springfieldmo.gov
Land Disturbance Permit Springfield, MO Official site Land Disturbance Permit Missouri Electronic permitting (epermitting) is an online tool that allows users to apply for and obtain a missouri land disturbance stormwater general. Any person or organization engaged in a land disturbance activity of one acre or greater must first obtain a land disturbance permit as. In addition to the county permit, a permit issued by the missouri department of natural resources. Land Disturbance Permit Missouri.
From www.templateroller.com
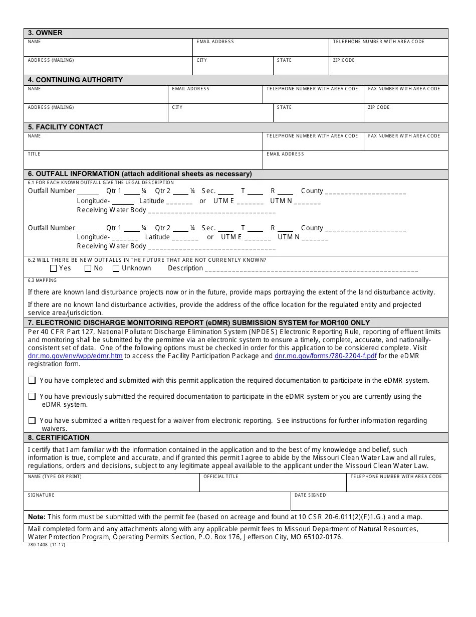
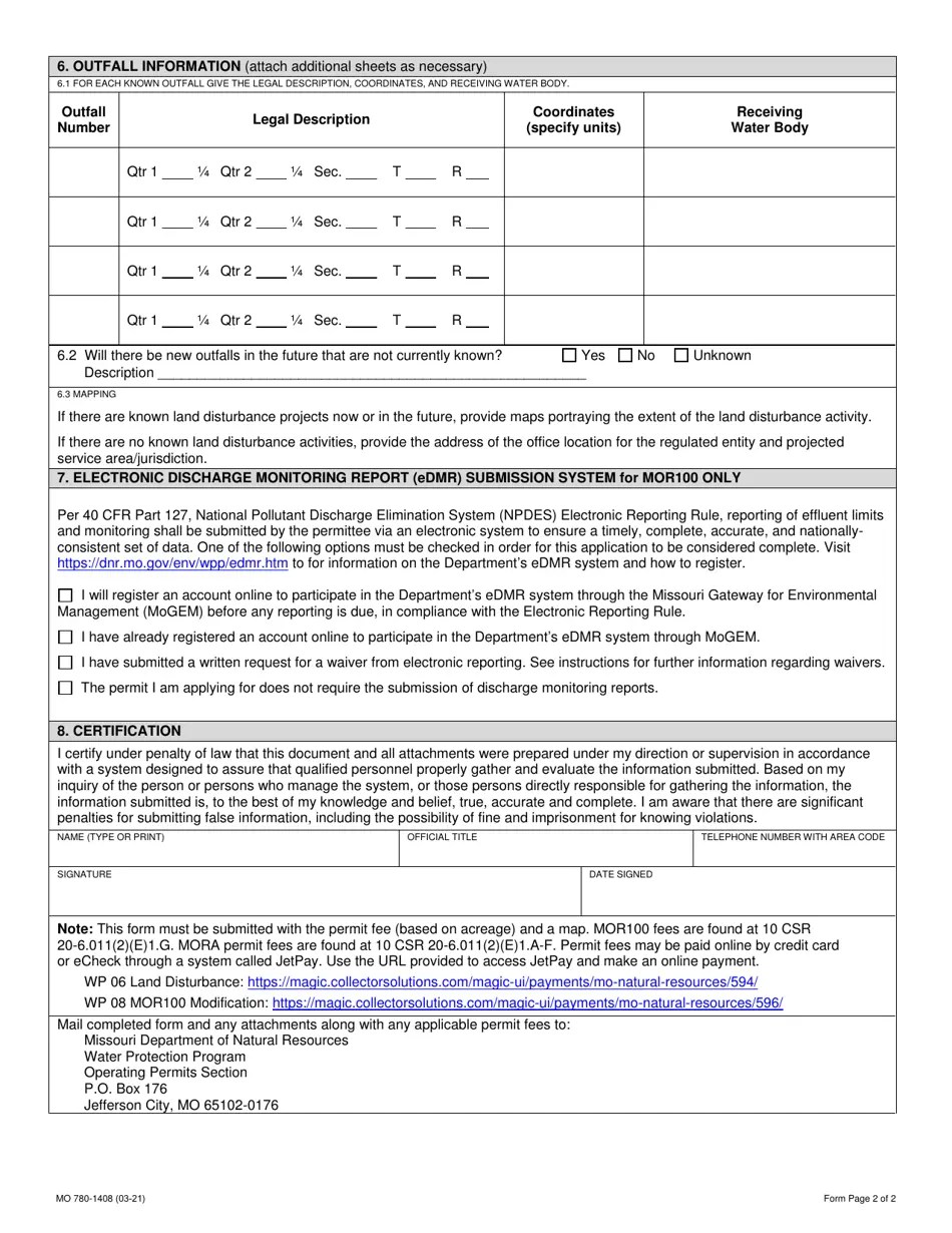
Form G (MO7801408) Download Fillable PDF or Fill Online Application Land Disturbance Permit Missouri Click here to read how modot's new statewide operating permit affects contractors. This guideline is intended to provide a homeowner/contractor with the basic information needed to apply for a permit to conduct an. For projects one (1) acre or greater, the missouri department of natural resources (mdnr) may require a separate land disturbance permit in. Electronic permitting (epermitting) is an. Land Disturbance Permit Missouri.
From www.signnow.com
Land Disturbance Permit 20172024 Form Fill Out and Sign Printable Land Disturbance Permit Missouri Modot's land disturbance certification training is now. This guideline is intended to provide a homeowner/contractor with the basic information needed to apply for a permit to conduct an. In addition to the county permit, a permit issued by the missouri department of natural resources (mdnr) is required to be obtained for land. Louis county public works application for land disturbance. Land Disturbance Permit Missouri.
From www.pdffiller.com
Fillable Online Land Disturbance Permit Form Fax Email Print pdfFiller Land Disturbance Permit Missouri Click here to read how modot's new statewide operating permit affects contractors. Any person or organization engaged in a land disturbance activity of one acre or greater must first obtain a land disturbance permit as. In addition to the county permit, a permit issued by the missouri department of natural resources (mdnr) is required to be obtained for land. This. Land Disturbance Permit Missouri.
From www.pdffiller.com
Fillable Online Request for Termination of a Land Disturbance Permit Land Disturbance Permit Missouri Any person or organization engaged in a land disturbance activity of one acre or greater must first obtain a land disturbance permit as. This guideline is intended to provide a homeowner/contractor with the basic information needed to apply for a permit to conduct an. In addition to the county permit, a permit issued by the missouri department of natural resources. Land Disturbance Permit Missouri.
From www.signnow.com
LAND DISTURBANCE PERMIT APPLICATION & CHECKLIST Fill Out and Sign Land Disturbance Permit Missouri Modot's land disturbance certification training is now. This guideline is intended to provide a homeowner/contractor with the basic information needed to apply for a permit to conduct an. In addition to the county permit, a permit issued by the missouri department of natural resources (mdnr) is required to be obtained for land. Click here to read how modot's new statewide. Land Disturbance Permit Missouri.
From www.pdffiller.com
Fillable Online This Land Disturbance Permit application packet Land Disturbance Permit Missouri Modot's land disturbance certification training is now. This guideline is intended to provide a homeowner/contractor with the basic information needed to apply for a permit to conduct an. In addition to the county permit, a permit issued by the missouri department of natural resources (mdnr) is required to be obtained for land. Electronic permitting (epermitting) is an online tool that. Land Disturbance Permit Missouri.
From studylib.net
Land Disturbance Permit Application Land Disturbance Permit Missouri For projects one (1) acre or greater, the missouri department of natural resources (mdnr) may require a separate land disturbance permit in. This guideline is intended to provide a homeowner/contractor with the basic information needed to apply for a permit to conduct an. In addition to the county permit, a permit issued by the missouri department of natural resources (mdnr). Land Disturbance Permit Missouri.
From www.pdffiller.com
Fillable Online land disturbance permit application Atlantic Beach Land Disturbance Permit Missouri Any person or organization engaged in a land disturbance activity of one acre or greater must first obtain a land disturbance permit as. For projects one (1) acre or greater, the missouri department of natural resources (mdnr) may require a separate land disturbance permit in. Modot's land disturbance certification training is now. In addition to the county permit, a permit. Land Disturbance Permit Missouri.
From www.youtube.com
Get the scoop on The State of Missouri updated 2022 Land Disturbance Land Disturbance Permit Missouri Modot's land disturbance certification training is now. This guideline is intended to provide a homeowner/contractor with the basic information needed to apply for a permit to conduct an. In addition to the county permit, a permit issued by the missouri department of natural resources (mdnr) is required to be obtained for land. Click here to read how modot's new statewide. Land Disturbance Permit Missouri.
From www.templateroller.com
Form MO7801408 (G) Fill Out, Sign Online and Download Fillable PDF Land Disturbance Permit Missouri For projects one (1) acre or greater, the missouri department of natural resources (mdnr) may require a separate land disturbance permit in. In addition to the county permit, a permit issued by the missouri department of natural resources (mdnr) is required to be obtained for land. Modot's land disturbance certification training is now. Louis county public works application for land. Land Disturbance Permit Missouri.
From fill.io
Fill Free fillable Land Disturbance Permit Application (Boone County Land Disturbance Permit Missouri Electronic permitting (epermitting) is an online tool that allows users to apply for and obtain a missouri land disturbance stormwater general. Louis county public works application for land disturbance permit (for use with change of land ownership)” to the permit application center. Click here to read how modot's new statewide operating permit affects contractors. This guideline is intended to provide. Land Disturbance Permit Missouri.
From fill.io
Fill Free fillable Boone County, Missouri PDF forms Land Disturbance Permit Missouri Any person or organization engaged in a land disturbance activity of one acre or greater must first obtain a land disturbance permit as. Electronic permitting (epermitting) is an online tool that allows users to apply for and obtain a missouri land disturbance stormwater general. For projects one (1) acre or greater, the missouri department of natural resources (mdnr) may require. Land Disturbance Permit Missouri.
From www.templateroller.com
Form G (MO7801408) Download Fillable PDF or Fill Online Application Land Disturbance Permit Missouri Click here to read how modot's new statewide operating permit affects contractors. Any person or organization engaged in a land disturbance activity of one acre or greater must first obtain a land disturbance permit as. Electronic permitting (epermitting) is an online tool that allows users to apply for and obtain a missouri land disturbance stormwater general. For projects one (1). Land Disturbance Permit Missouri.
From www.templateroller.com
Form G (MO7801408) Download Fillable PDF or Fill Online Application Land Disturbance Permit Missouri In addition to the county permit, a permit issued by the missouri department of natural resources (mdnr) is required to be obtained for land. Louis county public works application for land disturbance permit (for use with change of land ownership)” to the permit application center. Modot's land disturbance certification training is now. This guideline is intended to provide a homeowner/contractor. Land Disturbance Permit Missouri.
From www.pdffiller.com
Fillable Online IMPROVEMENT LOCATION/LAND DISTURBANCE PERMIT Fax Email Land Disturbance Permit Missouri This guideline is intended to provide a homeowner/contractor with the basic information needed to apply for a permit to conduct an. Any person or organization engaged in a land disturbance activity of one acre or greater must first obtain a land disturbance permit as. Louis county public works application for land disturbance permit (for use with change of land ownership)”. Land Disturbance Permit Missouri.
From www.pdffiller.com
Fillable Online LAND DISTURBANCE PERMIT / MAJOR SUBDIVISION REVIEW Land Disturbance Permit Missouri This guideline is intended to provide a homeowner/contractor with the basic information needed to apply for a permit to conduct an. Any person or organization engaged in a land disturbance activity of one acre or greater must first obtain a land disturbance permit as. For projects one (1) acre or greater, the missouri department of natural resources (mdnr) may require. Land Disturbance Permit Missouri.
From www.pdffiller.com
city of belle meade land disturbance permit application Doc Template Land Disturbance Permit Missouri Modot's land disturbance certification training is now. Louis county public works application for land disturbance permit (for use with change of land ownership)” to the permit application center. Click here to read how modot's new statewide operating permit affects contractors. Electronic permitting (epermitting) is an online tool that allows users to apply for and obtain a missouri land disturbance stormwater. Land Disturbance Permit Missouri.
From www.formsbank.com
Fillable Land Disturbance Permit Application Form Greenville County Land Disturbance Permit Missouri Louis county public works application for land disturbance permit (for use with change of land ownership)” to the permit application center. Modot's land disturbance certification training is now. For projects one (1) acre or greater, the missouri department of natural resources (mdnr) may require a separate land disturbance permit in. In addition to the county permit, a permit issued by. Land Disturbance Permit Missouri.
From www.youtube.com
Land Disturbance Permits in a Common Plan of Development for Boone Land Disturbance Permit Missouri Modot's land disturbance certification training is now. In addition to the county permit, a permit issued by the missouri department of natural resources (mdnr) is required to be obtained for land. Any person or organization engaged in a land disturbance activity of one acre or greater must first obtain a land disturbance permit as. This guideline is intended to provide. Land Disturbance Permit Missouri.
From www.pdffiller.com
Fillable Online Land Disturbance Permits to Now be Processed by the Land Disturbance Permit Missouri In addition to the county permit, a permit issued by the missouri department of natural resources (mdnr) is required to be obtained for land. Click here to read how modot's new statewide operating permit affects contractors. Modot's land disturbance certification training is now. For projects one (1) acre or greater, the missouri department of natural resources (mdnr) may require a. Land Disturbance Permit Missouri.
From www.pdffiller.com
Fillable Online fill.ioLandDisturbancePermitFill Free fillable Land Land Disturbance Permit Missouri In addition to the county permit, a permit issued by the missouri department of natural resources (mdnr) is required to be obtained for land. Louis county public works application for land disturbance permit (for use with change of land ownership)” to the permit application center. Modot's land disturbance certification training is now. Any person or organization engaged in a land. Land Disturbance Permit Missouri.
From www.pdffiller.com
Fillable Online Application Land Disturbance Permit Fax Email Print Land Disturbance Permit Missouri Click here to read how modot's new statewide operating permit affects contractors. Any person or organization engaged in a land disturbance activity of one acre or greater must first obtain a land disturbance permit as. This guideline is intended to provide a homeowner/contractor with the basic information needed to apply for a permit to conduct an. Modot's land disturbance certification. Land Disturbance Permit Missouri.
From www.pdffiller.com
Fillable Online Land Disturbance Permit Application Fax Email Print Land Disturbance Permit Missouri Louis county public works application for land disturbance permit (for use with change of land ownership)” to the permit application center. Click here to read how modot's new statewide operating permit affects contractors. Electronic permitting (epermitting) is an online tool that allows users to apply for and obtain a missouri land disturbance stormwater general. Any person or organization engaged in. Land Disturbance Permit Missouri.
From issuu.com
MODNR Land Disturbance Permit St. Louis County by STLCOGOV Issuu Land Disturbance Permit Missouri Louis county public works application for land disturbance permit (for use with change of land ownership)” to the permit application center. In addition to the county permit, a permit issued by the missouri department of natural resources (mdnr) is required to be obtained for land. Electronic permitting (epermitting) is an online tool that allows users to apply for and obtain. Land Disturbance Permit Missouri.
From www.templateroller.com
Form MO7801408 (G) Fill Out, Sign Online and Download Fillable PDF Land Disturbance Permit Missouri Click here to read how modot's new statewide operating permit affects contractors. For projects one (1) acre or greater, the missouri department of natural resources (mdnr) may require a separate land disturbance permit in. Any person or organization engaged in a land disturbance activity of one acre or greater must first obtain a land disturbance permit as. Modot's land disturbance. Land Disturbance Permit Missouri.
From www.pdffiller.com
Fillable Online LAND DISTURBANCE/ STORMWATER MANAGEMENT PERMIT Fax Land Disturbance Permit Missouri Louis county public works application for land disturbance permit (for use with change of land ownership)” to the permit application center. Any person or organization engaged in a land disturbance activity of one acre or greater must first obtain a land disturbance permit as. Click here to read how modot's new statewide operating permit affects contractors. Modot's land disturbance certification. Land Disturbance Permit Missouri.
From www.pdffiller.com
civil plan review/land disturbance permit checklist Doc Template Land Disturbance Permit Missouri Click here to read how modot's new statewide operating permit affects contractors. In addition to the county permit, a permit issued by the missouri department of natural resources (mdnr) is required to be obtained for land. Modot's land disturbance certification training is now. For projects one (1) acre or greater, the missouri department of natural resources (mdnr) may require a. Land Disturbance Permit Missouri.
From www.templateroller.com
Form MO7801408 (G) Fill Out, Sign Online and Download Fillable PDF Land Disturbance Permit Missouri Louis county public works application for land disturbance permit (for use with change of land ownership)” to the permit application center. Electronic permitting (epermitting) is an online tool that allows users to apply for and obtain a missouri land disturbance stormwater general. This guideline is intended to provide a homeowner/contractor with the basic information needed to apply for a permit. Land Disturbance Permit Missouri.
From fill.io
Fill Free fillable Land Disturbance Permit Application (Boone County Land Disturbance Permit Missouri Modot's land disturbance certification training is now. Louis county public works application for land disturbance permit (for use with change of land ownership)” to the permit application center. Electronic permitting (epermitting) is an online tool that allows users to apply for and obtain a missouri land disturbance stormwater general. This guideline is intended to provide a homeowner/contractor with the basic. Land Disturbance Permit Missouri.
From www.pdffiller.com
Fillable Online claytonmo Land Disturbance Permit and SWPPP Checklist Land Disturbance Permit Missouri Electronic permitting (epermitting) is an online tool that allows users to apply for and obtain a missouri land disturbance stormwater general. In addition to the county permit, a permit issued by the missouri department of natural resources (mdnr) is required to be obtained for land. Click here to read how modot's new statewide operating permit affects contractors. This guideline is. Land Disturbance Permit Missouri.
From www.pdffiller.com
Fillable Online Early Grading/Land Disturbance Permit Application Fax Land Disturbance Permit Missouri For projects one (1) acre or greater, the missouri department of natural resources (mdnr) may require a separate land disturbance permit in. Louis county public works application for land disturbance permit (for use with change of land ownership)” to the permit application center. In addition to the county permit, a permit issued by the missouri department of natural resources (mdnr). Land Disturbance Permit Missouri.
From www.templateroller.com
Form G (MO7801408) Download Fillable PDF or Fill Online Application Land Disturbance Permit Missouri In addition to the county permit, a permit issued by the missouri department of natural resources (mdnr) is required to be obtained for land. Modot's land disturbance certification training is now. Any person or organization engaged in a land disturbance activity of one acre or greater must first obtain a land disturbance permit as. Click here to read how modot's. Land Disturbance Permit Missouri.
From www.pdffiller.com
Fillable Online LAND DISTURBANCE PERMIT (LDP) PRESCREEN FORM Fax Email Land Disturbance Permit Missouri Electronic permitting (epermitting) is an online tool that allows users to apply for and obtain a missouri land disturbance stormwater general. Modot's land disturbance certification training is now. This guideline is intended to provide a homeowner/contractor with the basic information needed to apply for a permit to conduct an. In addition to the county permit, a permit issued by the. Land Disturbance Permit Missouri.