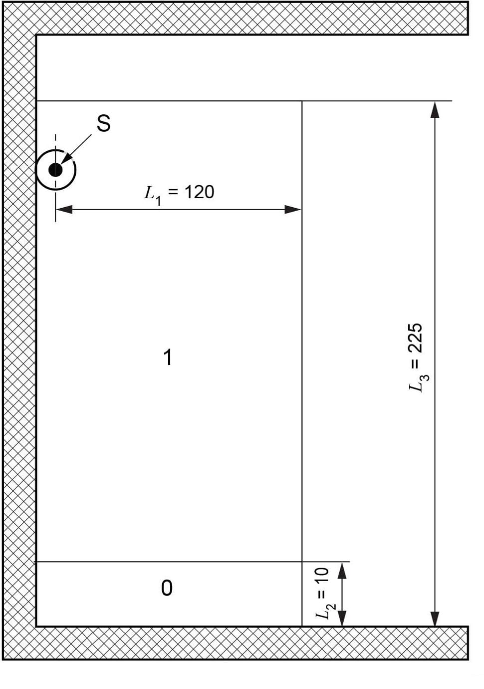
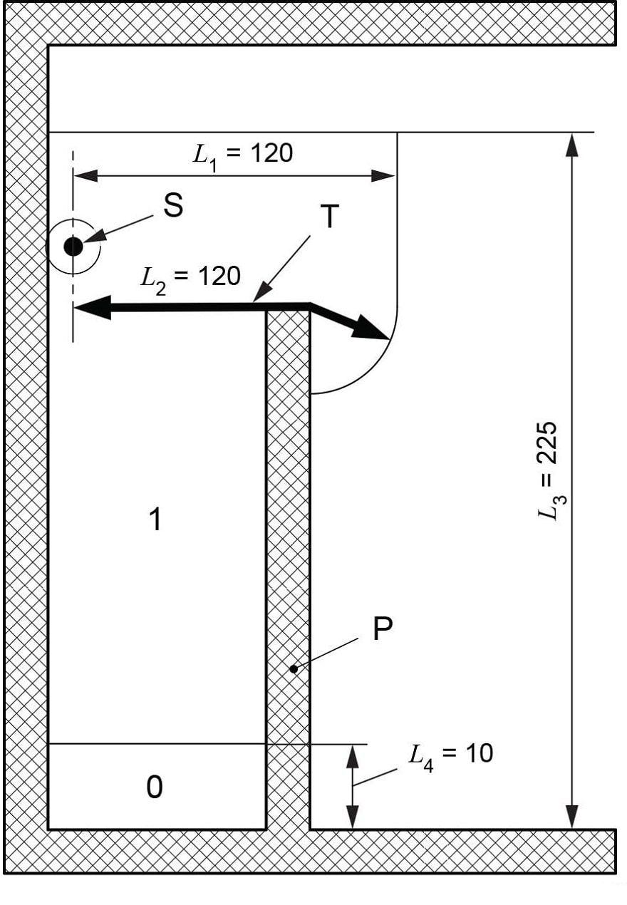
Bathroom Zones 18Th Edition . Bathroom zones are not restricted to just bathrooms, the zones also apply to any room which contains a bath or shower, for example a shower in a bedroom. Inside the bath, shower or wet. Zone 1 is the area above the bath tub or shower basin to a height of 2.25 m from the floor or the highest fixed shower head, whichever is higher. So, let’s get started on explaining each zone and how to avoid getting. The iee wiring regulations (18th edition) have identified particular zones within the bathroom to indicate what type of electrical equipment can be installed. Welcome to the second of our video shorts.there are many, many, changes to amendment. Iee regulations specify the installation of fans within bathrooms and showers by identifying a series of zones. Starting from 0, which is the highest. Bathroom zones are broken down into zone 0, 1 and 2. Bathroom zones are specific areas of set dimensions within a bathroom, shower room or wet room.
from www.asutpp.com
Welcome to the second of our video shorts.there are many, many, changes to amendment. Bathroom zones are specific areas of set dimensions within a bathroom, shower room or wet room. So, let’s get started on explaining each zone and how to avoid getting. Starting from 0, which is the highest. The iee wiring regulations (18th edition) have identified particular zones within the bathroom to indicate what type of electrical equipment can be installed. Inside the bath, shower or wet. Bathroom zones are broken down into zone 0, 1 and 2. Zone 1 is the area above the bath tub or shower basin to a height of 2.25 m from the floor or the highest fixed shower head, whichever is higher. Bathroom zones are not restricted to just bathrooms, the zones also apply to any room which contains a bath or shower, for example a shower in a bedroom. Iee regulations specify the installation of fans within bathrooms and showers by identifying a series of zones.
Comprehensive Guide to Bathroom Zones Asutpp
Bathroom Zones 18Th Edition Inside the bath, shower or wet. Iee regulations specify the installation of fans within bathrooms and showers by identifying a series of zones. So, let’s get started on explaining each zone and how to avoid getting. Bathroom zones are broken down into zone 0, 1 and 2. Bathroom zones are not restricted to just bathrooms, the zones also apply to any room which contains a bath or shower, for example a shower in a bedroom. Zone 1 is the area above the bath tub or shower basin to a height of 2.25 m from the floor or the highest fixed shower head, whichever is higher. Bathroom zones are specific areas of set dimensions within a bathroom, shower room or wet room. Welcome to the second of our video shorts.there are many, many, changes to amendment. Inside the bath, shower or wet. The iee wiring regulations (18th edition) have identified particular zones within the bathroom to indicate what type of electrical equipment can be installed. Starting from 0, which is the highest.
From www.idealhygiene.co.uk
Bathroom zones Bathroom Zones 18Th Edition Iee regulations specify the installation of fans within bathrooms and showers by identifying a series of zones. Inside the bath, shower or wet. Bathroom zones are specific areas of set dimensions within a bathroom, shower room or wet room. Welcome to the second of our video shorts.there are many, many, changes to amendment. Zone 1 is the area above the. Bathroom Zones 18Th Edition.
From www.bigbathroomshop.co.uk
What are Bathroom Electrical Zones? Big Bathroom Inspiration Bathroom Zones 18Th Edition Bathroom zones are specific areas of set dimensions within a bathroom, shower room or wet room. Starting from 0, which is the highest. Inside the bath, shower or wet. So, let’s get started on explaining each zone and how to avoid getting. Zone 1 is the area above the bath tub or shower basin to a height of 2.25 m. Bathroom Zones 18Th Edition.
From www.extractorfanworld.co.uk
Extractor Fan World's Guide to Bathroom Zones Bathroom Zones 18Th Edition The iee wiring regulations (18th edition) have identified particular zones within the bathroom to indicate what type of electrical equipment can be installed. So, let’s get started on explaining each zone and how to avoid getting. Inside the bath, shower or wet. Welcome to the second of our video shorts.there are many, many, changes to amendment. Zone 1 is the. Bathroom Zones 18Th Edition.
From electriciancourses4u.co.uk
IP Ratings Explained IP Codes Chart Electrician Courses 4U Bathroom Zones 18Th Edition Inside the bath, shower or wet. Bathroom zones are not restricted to just bathrooms, the zones also apply to any room which contains a bath or shower, for example a shower in a bedroom. Starting from 0, which is the highest. Iee regulations specify the installation of fans within bathrooms and showers by identifying a series of zones. Bathroom zones. Bathroom Zones 18Th Edition.
From www.thelightingsuperstore.co.uk
Bathroom Lighting Zones & Regulations The Lighting Superstore Bathroom Zones 18Th Edition Starting from 0, which is the highest. Inside the bath, shower or wet. Bathroom zones are not restricted to just bathrooms, the zones also apply to any room which contains a bath or shower, for example a shower in a bedroom. Bathroom zones are broken down into zone 0, 1 and 2. Iee regulations specify the installation of fans within. Bathroom Zones 18Th Edition.
From www.asutpp.com
Comprehensive Guide to Bathroom Zones Asutpp Bathroom Zones 18Th Edition Welcome to the second of our video shorts.there are many, many, changes to amendment. Iee regulations specify the installation of fans within bathrooms and showers by identifying a series of zones. Bathroom zones are specific areas of set dimensions within a bathroom, shower room or wet room. Inside the bath, shower or wet. So, let’s get started on explaining each. Bathroom Zones 18Th Edition.
From www.downlights.co.uk
What are Bathroom Zones? IP Ratings Explained Downlights.co.uk Bathroom Zones 18Th Edition The iee wiring regulations (18th edition) have identified particular zones within the bathroom to indicate what type of electrical equipment can be installed. Iee regulations specify the installation of fans within bathrooms and showers by identifying a series of zones. So, let’s get started on explaining each zone and how to avoid getting. Starting from 0, which is the highest.. Bathroom Zones 18Th Edition.
From flameport.com
Bathroom Zones as defined in BS7671 Bathroom Zones 18Th Edition Zone 1 is the area above the bath tub or shower basin to a height of 2.25 m from the floor or the highest fixed shower head, whichever is higher. Inside the bath, shower or wet. Bathroom zones are broken down into zone 0, 1 and 2. Bathroom zones are not restricted to just bathrooms, the zones also apply to. Bathroom Zones 18Th Edition.
From www.pureventilation.com.au
Bathroom Zones for Electrical Items The Guide Pure Ventilation Bathroom Zones 18Th Edition Bathroom zones are broken down into zone 0, 1 and 2. So, let’s get started on explaining each zone and how to avoid getting. Bathroom zones are not restricted to just bathrooms, the zones also apply to any room which contains a bath or shower, for example a shower in a bedroom. Starting from 0, which is the highest. Inside. Bathroom Zones 18Th Edition.
From www.youtube.com
AMENDMENT 2 18th EDITION BATHROOM ZONES VIDEO SHORTS No. 2 YouTube Bathroom Zones 18Th Edition So, let’s get started on explaining each zone and how to avoid getting. Starting from 0, which is the highest. Bathroom zones are specific areas of set dimensions within a bathroom, shower room or wet room. Zone 1 is the area above the bath tub or shower basin to a height of 2.25 m from the floor or the highest. Bathroom Zones 18Th Edition.
From www.youtube.com
Bathroom Zones BS7671 Wiring Regulations YouTube Bathroom Zones 18Th Edition The iee wiring regulations (18th edition) have identified particular zones within the bathroom to indicate what type of electrical equipment can be installed. Welcome to the second of our video shorts.there are many, many, changes to amendment. So, let’s get started on explaining each zone and how to avoid getting. Starting from 0, which is the highest. Inside the bath,. Bathroom Zones 18Th Edition.
From www.heatandplumb.com
Bathroom Zones IP Ratings Explained Technical Guides Bathroom Zones 18Th Edition Inside the bath, shower or wet. Welcome to the second of our video shorts.there are many, many, changes to amendment. Bathroom zones are broken down into zone 0, 1 and 2. Iee regulations specify the installation of fans within bathrooms and showers by identifying a series of zones. Starting from 0, which is the highest. So, let’s get started on. Bathroom Zones 18Th Edition.
From www.bigbathroomshop.co.uk
What are Bathroom Electrical Zones? Big Bathroom Inspiration Bathroom Zones 18Th Edition The iee wiring regulations (18th edition) have identified particular zones within the bathroom to indicate what type of electrical equipment can be installed. Bathroom zones are broken down into zone 0, 1 and 2. Welcome to the second of our video shorts.there are many, many, changes to amendment. Zone 1 is the area above the bath tub or shower basin. Bathroom Zones 18Th Edition.
From fixington.com
Part P Electrical Regulations Explained Fixington Bathroom Zones 18Th Edition The iee wiring regulations (18th edition) have identified particular zones within the bathroom to indicate what type of electrical equipment can be installed. Welcome to the second of our video shorts.there are many, many, changes to amendment. Bathroom zones are specific areas of set dimensions within a bathroom, shower room or wet room. Bathroom zones are broken down into zone. Bathroom Zones 18Th Edition.
From semisonline.net
Bathroom Lighting Zones Explained Semis Online Bathroom Zones 18Th Edition Inside the bath, shower or wet. Starting from 0, which is the highest. The iee wiring regulations (18th edition) have identified particular zones within the bathroom to indicate what type of electrical equipment can be installed. Bathroom zones are not restricted to just bathrooms, the zones also apply to any room which contains a bath or shower, for example a. Bathroom Zones 18Th Edition.
From www.pureventilation.com.au
Bathroom Zones for Electrical Items The Guide Pure Ventilation Bathroom Zones 18Th Edition The iee wiring regulations (18th edition) have identified particular zones within the bathroom to indicate what type of electrical equipment can be installed. So, let’s get started on explaining each zone and how to avoid getting. Bathroom zones are broken down into zone 0, 1 and 2. Inside the bath, shower or wet. Zone 1 is the area above the. Bathroom Zones 18Th Edition.
From www.downlights.co.uk
What are Bathroom Zones? IP Ratings Explained Downlights.co.uk Bathroom Zones 18Th Edition Zone 1 is the area above the bath tub or shower basin to a height of 2.25 m from the floor or the highest fixed shower head, whichever is higher. Iee regulations specify the installation of fans within bathrooms and showers by identifying a series of zones. Bathroom zones are not restricted to just bathrooms, the zones also apply to. Bathroom Zones 18Th Edition.
From www.livinghouse.co.uk
Bathroom Zones and IP Ratings Explained LivinghouseLivinghouse Bathroom Zones 18Th Edition Bathroom zones are broken down into zone 0, 1 and 2. Bathroom zones are not restricted to just bathrooms, the zones also apply to any room which contains a bath or shower, for example a shower in a bedroom. So, let’s get started on explaining each zone and how to avoid getting. Iee regulations specify the installation of fans within. Bathroom Zones 18Th Edition.
From www.qssupplies.co.uk
Bathroom Electric Zones in the UK and IP Rating Explained QS Supplies Bathroom Zones 18Th Edition The iee wiring regulations (18th edition) have identified particular zones within the bathroom to indicate what type of electrical equipment can be installed. Bathroom zones are not restricted to just bathrooms, the zones also apply to any room which contains a bath or shower, for example a shower in a bedroom. Zone 1 is the area above the bath tub. Bathroom Zones 18Th Edition.
From thebathroomblueprint.com
Bathroom Electrical Regulations (UK) Everything You Need To Know Bathroom Zones 18Th Edition Bathroom zones are broken down into zone 0, 1 and 2. The iee wiring regulations (18th edition) have identified particular zones within the bathroom to indicate what type of electrical equipment can be installed. Welcome to the second of our video shorts.there are many, many, changes to amendment. Starting from 0, which is the highest. So, let’s get started on. Bathroom Zones 18Th Edition.
From www.downlightsdirect.co.uk
Bathroom Lighting Zones and Regulations Explained Downlights Direct Bathroom Zones 18Th Edition Inside the bath, shower or wet. Welcome to the second of our video shorts.there are many, many, changes to amendment. Bathroom zones are specific areas of set dimensions within a bathroom, shower room or wet room. Iee regulations specify the installation of fans within bathrooms and showers by identifying a series of zones. So, let’s get started on explaining each. Bathroom Zones 18Th Edition.
From www.voltimum.co.uk
Q & A of the Day What does the term ‘passing through’ Bathroom Zones 18Th Edition Iee regulations specify the installation of fans within bathrooms and showers by identifying a series of zones. Inside the bath, shower or wet. Bathroom zones are broken down into zone 0, 1 and 2. Zone 1 is the area above the bath tub or shower basin to a height of 2.25 m from the floor or the highest fixed shower. Bathroom Zones 18Th Edition.
From www.nightworksstudio.com.au
Our guide to IP Ratings & Bathroom Zones Nightworks Studio (AU) Bathroom Zones 18Th Edition Bathroom zones are broken down into zone 0, 1 and 2. The iee wiring regulations (18th edition) have identified particular zones within the bathroom to indicate what type of electrical equipment can be installed. Zone 1 is the area above the bath tub or shower basin to a height of 2.25 m from the floor or the highest fixed shower. Bathroom Zones 18Th Edition.
From futurehousestore.co.uk
Understanding Bathroom Zones for Safe Lighting Future House Store Bathroom Zones 18Th Edition The iee wiring regulations (18th edition) have identified particular zones within the bathroom to indicate what type of electrical equipment can be installed. Bathroom zones are specific areas of set dimensions within a bathroom, shower room or wet room. So, let’s get started on explaining each zone and how to avoid getting. Bathroom zones are not restricted to just bathrooms,. Bathroom Zones 18Th Edition.
From www.qssupplies.co.uk
Bathroom Electric Zones in the UK and IP Rating Explained QS Supplies Bathroom Zones 18Th Edition Welcome to the second of our video shorts.there are many, many, changes to amendment. Bathroom zones are broken down into zone 0, 1 and 2. Starting from 0, which is the highest. Bathroom zones are not restricted to just bathrooms, the zones also apply to any room which contains a bath or shower, for example a shower in a bedroom.. Bathroom Zones 18Th Edition.
From www.pinterest.com
Using electrical devices in the bathroom? STOP! Read our guide to Bathroom Zones 18Th Edition Bathroom zones are not restricted to just bathrooms, the zones also apply to any room which contains a bath or shower, for example a shower in a bedroom. Bathroom zones are broken down into zone 0, 1 and 2. Inside the bath, shower or wet. Starting from 0, which is the highest. Zone 1 is the area above the bath. Bathroom Zones 18Th Edition.
From www.bathroomsuppliesonline.com
Navigating the Currents Your Guide to UK Bathroom Electrical Zones By Bathroom Zones 18Th Edition Bathroom zones are broken down into zone 0, 1 and 2. So, let’s get started on explaining each zone and how to avoid getting. Bathroom zones are specific areas of set dimensions within a bathroom, shower room or wet room. Inside the bath, shower or wet. Iee regulations specify the installation of fans within bathrooms and showers by identifying a. Bathroom Zones 18Th Edition.
From www.asutpp.com
Comprehensive Guide to Bathroom Zones Asutpp Bathroom Zones 18Th Edition Zone 1 is the area above the bath tub or shower basin to a height of 2.25 m from the floor or the highest fixed shower head, whichever is higher. Iee regulations specify the installation of fans within bathrooms and showers by identifying a series of zones. So, let’s get started on explaining each zone and how to avoid getting.. Bathroom Zones 18Th Edition.
From satulight.com
Bathroom Zones IP Ratings Requirements Satulight Bathroom Zones 18Th Edition Bathroom zones are broken down into zone 0, 1 and 2. Inside the bath, shower or wet. Starting from 0, which is the highest. Bathroom zones are specific areas of set dimensions within a bathroom, shower room or wet room. Bathroom zones are not restricted to just bathrooms, the zones also apply to any room which contains a bath or. Bathroom Zones 18Th Edition.
From www.cromptonlamps.com
Bathroom Zones Explained Crompton Lamps Ltd Bathroom Zones 18Th Edition Zone 1 is the area above the bath tub or shower basin to a height of 2.25 m from the floor or the highest fixed shower head, whichever is higher. The iee wiring regulations (18th edition) have identified particular zones within the bathroom to indicate what type of electrical equipment can be installed. Bathroom zones are not restricted to just. Bathroom Zones 18Th Edition.
From jetstwit.com
Bathroom Light Zones Explained Bathroom Guide by Jetstwit Bathroom Zones 18Th Edition Iee regulations specify the installation of fans within bathrooms and showers by identifying a series of zones. Bathroom zones are broken down into zone 0, 1 and 2. Welcome to the second of our video shorts.there are many, many, changes to amendment. Zone 1 is the area above the bath tub or shower basin to a height of 2.25 m. Bathroom Zones 18Th Edition.
From www.asutpp.com
Comprehensive Guide to Bathroom Zones Asutpp Bathroom Zones 18Th Edition Inside the bath, shower or wet. Bathroom zones are not restricted to just bathrooms, the zones also apply to any room which contains a bath or shower, for example a shower in a bedroom. Bathroom zones are broken down into zone 0, 1 and 2. Zone 1 is the area above the bath tub or shower basin to a height. Bathroom Zones 18Th Edition.
From www.lightingandlights.co.uk
The Complete Guide to Bathroom Lighting Lighting & Lights Bathroom Zones 18Th Edition The iee wiring regulations (18th edition) have identified particular zones within the bathroom to indicate what type of electrical equipment can be installed. Inside the bath, shower or wet. So, let’s get started on explaining each zone and how to avoid getting. Welcome to the second of our video shorts.there are many, many, changes to amendment. Bathroom zones are not. Bathroom Zones 18Th Edition.
From www.procertssoftware.com
Bathroom Zones 18th Edition BS 7671 Bathroom Zones 18Th Edition So, let’s get started on explaining each zone and how to avoid getting. Iee regulations specify the installation of fans within bathrooms and showers by identifying a series of zones. The iee wiring regulations (18th edition) have identified particular zones within the bathroom to indicate what type of electrical equipment can be installed. Bathroom zones are broken down into zone. Bathroom Zones 18Th Edition.
From www.eterna-lighting.co.uk
Guides ETERNA LIGHTING Bathroom Zones 18Th Edition The iee wiring regulations (18th edition) have identified particular zones within the bathroom to indicate what type of electrical equipment can be installed. Inside the bath, shower or wet. Welcome to the second of our video shorts.there are many, many, changes to amendment. Bathroom zones are broken down into zone 0, 1 and 2. Starting from 0, which is the. Bathroom Zones 18Th Edition.