Daily Safety Task Instruction Examples . Dsti to assess site conditions, site specific hazards and validation of controls. identify the task steps and hazards, and then identify the plans to eliminate or control the hazards. andrew van der merwe. this document provides guidance on implementing and conducting daily safety task instructions (dsti), also known as field level. Edit your daily safety task instruction online. this document contains a daily safety task instruction (dsti) for a work site. Type text, add images, blackout confidential details, add comments,.
from www.scribd.com
Edit your daily safety task instruction online. this document provides guidance on implementing and conducting daily safety task instructions (dsti), also known as field level. this document contains a daily safety task instruction (dsti) for a work site. identify the task steps and hazards, and then identify the plans to eliminate or control the hazards. Dsti to assess site conditions, site specific hazards and validation of controls. Type text, add images, blackout confidential details, add comments,. andrew van der merwe.
Daily Safety Task Instruction (DSTI) Supervisor/Manager/Team Leader
Daily Safety Task Instruction Examples Edit your daily safety task instruction online. this document contains a daily safety task instruction (dsti) for a work site. andrew van der merwe. identify the task steps and hazards, and then identify the plans to eliminate or control the hazards. this document provides guidance on implementing and conducting daily safety task instructions (dsti), also known as field level. Type text, add images, blackout confidential details, add comments,. Edit your daily safety task instruction online. Dsti to assess site conditions, site specific hazards and validation of controls.
From premiersafetypartners.com
8 Daily Workplace Safety Tips You Can Implement Quickly Daily Safety Task Instruction Examples Type text, add images, blackout confidential details, add comments,. Edit your daily safety task instruction online. this document provides guidance on implementing and conducting daily safety task instructions (dsti), also known as field level. andrew van der merwe. identify the task steps and hazards, and then identify the plans to eliminate or control the hazards. this. Daily Safety Task Instruction Examples.
From www.scribd.com
1.DSTI (Daily Safety Task Instruction) Template PDF Daily Safety Task Instruction Examples Edit your daily safety task instruction online. Type text, add images, blackout confidential details, add comments,. Dsti to assess site conditions, site specific hazards and validation of controls. andrew van der merwe. this document contains a daily safety task instruction (dsti) for a work site. this document provides guidance on implementing and conducting daily safety task instructions. Daily Safety Task Instruction Examples.
From sitemate.com
Daily Safety Report Template Sample and Format Daily Safety Task Instruction Examples Type text, add images, blackout confidential details, add comments,. Edit your daily safety task instruction online. andrew van der merwe. Dsti to assess site conditions, site specific hazards and validation of controls. this document contains a daily safety task instruction (dsti) for a work site. this document provides guidance on implementing and conducting daily safety task instructions. Daily Safety Task Instruction Examples.
From www.examples.com
Job Safety Analysis 17+ Examples, Word, Pages, PDF, Tips Daily Safety Task Instruction Examples identify the task steps and hazards, and then identify the plans to eliminate or control the hazards. Dsti to assess site conditions, site specific hazards and validation of controls. this document contains a daily safety task instruction (dsti) for a work site. andrew van der merwe. this document provides guidance on implementing and conducting daily safety. Daily Safety Task Instruction Examples.
From www.smartsheet.com
Free Work Instruction Templates Smartsheet Daily Safety Task Instruction Examples Type text, add images, blackout confidential details, add comments,. this document contains a daily safety task instruction (dsti) for a work site. andrew van der merwe. identify the task steps and hazards, and then identify the plans to eliminate or control the hazards. this document provides guidance on implementing and conducting daily safety task instructions (dsti),. Daily Safety Task Instruction Examples.
From www.scribd.com
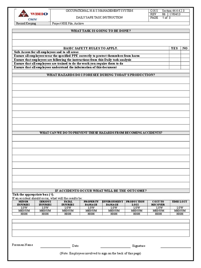
4.4.4.2.3 Daily Safety Task Analysis PDF Daily Safety Task Instruction Examples this document contains a daily safety task instruction (dsti) for a work site. Dsti to assess site conditions, site specific hazards and validation of controls. Edit your daily safety task instruction online. andrew van der merwe. Type text, add images, blackout confidential details, add comments,. identify the task steps and hazards, and then identify the plans to. Daily Safety Task Instruction Examples.
From www.makrosafe.co.za
10 Workplace Health and Safety Tips not to be missed Daily Safety Task Instruction Examples Type text, add images, blackout confidential details, add comments,. Dsti to assess site conditions, site specific hazards and validation of controls. this document contains a daily safety task instruction (dsti) for a work site. this document provides guidance on implementing and conducting daily safety task instructions (dsti), also known as field level. Edit your daily safety task instruction. Daily Safety Task Instruction Examples.
From www.inpaspages.com
Daily safety inspection form Daily Safety Task Instruction Examples Type text, add images, blackout confidential details, add comments,. identify the task steps and hazards, and then identify the plans to eliminate or control the hazards. this document contains a daily safety task instruction (dsti) for a work site. this document provides guidance on implementing and conducting daily safety task instructions (dsti), also known as field level.. Daily Safety Task Instruction Examples.
From safetyrisk.net
Pre Task Safety Planning Daily Safety Task Instruction Examples Dsti to assess site conditions, site specific hazards and validation of controls. identify the task steps and hazards, and then identify the plans to eliminate or control the hazards. this document contains a daily safety task instruction (dsti) for a work site. Type text, add images, blackout confidential details, add comments,. this document provides guidance on implementing. Daily Safety Task Instruction Examples.
From pdfslide.net
(Download PDF) DAILY SAFE TASK INSTRUCTION (JSA) rebatho.co.za Risk Daily Safety Task Instruction Examples identify the task steps and hazards, and then identify the plans to eliminate or control the hazards. andrew van der merwe. Type text, add images, blackout confidential details, add comments,. this document provides guidance on implementing and conducting daily safety task instructions (dsti), also known as field level. Edit your daily safety task instruction online. this. Daily Safety Task Instruction Examples.
From www.examples.com
Safety Checklist 18+ Examples, Word, Google Docs, Pages, How to Daily Safety Task Instruction Examples Edit your daily safety task instruction online. andrew van der merwe. this document contains a daily safety task instruction (dsti) for a work site. identify the task steps and hazards, and then identify the plans to eliminate or control the hazards. Type text, add images, blackout confidential details, add comments,. Dsti to assess site conditions, site specific. Daily Safety Task Instruction Examples.
From www.scribd.com
DSTI (Daily Safety Task Instruction) Tem PDF Occupational Safety Daily Safety Task Instruction Examples Dsti to assess site conditions, site specific hazards and validation of controls. this document provides guidance on implementing and conducting daily safety task instructions (dsti), also known as field level. Edit your daily safety task instruction online. Type text, add images, blackout confidential details, add comments,. this document contains a daily safety task instruction (dsti) for a work. Daily Safety Task Instruction Examples.
From www.wordpdftemplates.com
Task Safety Analysis Templates 12+ Free Word, Excel & PDF Formats Daily Safety Task Instruction Examples this document contains a daily safety task instruction (dsti) for a work site. andrew van der merwe. Edit your daily safety task instruction online. this document provides guidance on implementing and conducting daily safety task instructions (dsti), also known as field level. Dsti to assess site conditions, site specific hazards and validation of controls. identify the. Daily Safety Task Instruction Examples.
From www.templateroller.com
Daily Child Care Health and Safety Checklist Download Printable PDF Daily Safety Task Instruction Examples Edit your daily safety task instruction online. identify the task steps and hazards, and then identify the plans to eliminate or control the hazards. Type text, add images, blackout confidential details, add comments,. this document provides guidance on implementing and conducting daily safety task instructions (dsti), also known as field level. andrew van der merwe. this. Daily Safety Task Instruction Examples.
From dremelmicro.com
Printable Health And Safety Daily Checklist Template Campu Child Care Daily Safety Task Instruction Examples andrew van der merwe. Dsti to assess site conditions, site specific hazards and validation of controls. this document contains a daily safety task instruction (dsti) for a work site. Type text, add images, blackout confidential details, add comments,. this document provides guidance on implementing and conducting daily safety task instructions (dsti), also known as field level. . Daily Safety Task Instruction Examples.
From www.scribd.com
Daily Safety Task Instruction Consortium Signs PDF Personal Daily Safety Task Instruction Examples Dsti to assess site conditions, site specific hazards and validation of controls. identify the task steps and hazards, and then identify the plans to eliminate or control the hazards. this document provides guidance on implementing and conducting daily safety task instructions (dsti), also known as field level. this document contains a daily safety task instruction (dsti) for. Daily Safety Task Instruction Examples.
From www.scribd.com
Daily Safe Task Instruction Checklist PDF Occupational Safety And Daily Safety Task Instruction Examples this document contains a daily safety task instruction (dsti) for a work site. Type text, add images, blackout confidential details, add comments,. identify the task steps and hazards, and then identify the plans to eliminate or control the hazards. andrew van der merwe. Edit your daily safety task instruction online. this document provides guidance on implementing. Daily Safety Task Instruction Examples.
From projectopenletter.com
Free Safety Plan Template Printable Form, Templates and Letter Daily Safety Task Instruction Examples Type text, add images, blackout confidential details, add comments,. andrew van der merwe. this document contains a daily safety task instruction (dsti) for a work site. Edit your daily safety task instruction online. identify the task steps and hazards, and then identify the plans to eliminate or control the hazards. Dsti to assess site conditions, site specific. Daily Safety Task Instruction Examples.
From www.facebook.com
Daily Safe Task Instruction is also... Saurya HSE Pvt Ltd Daily Safety Task Instruction Examples this document contains a daily safety task instruction (dsti) for a work site. Type text, add images, blackout confidential details, add comments,. Edit your daily safety task instruction online. identify the task steps and hazards, and then identify the plans to eliminate or control the hazards. andrew van der merwe. this document provides guidance on implementing. Daily Safety Task Instruction Examples.
From www.scribd.com
Daily Safety Task Instruction Supervisor Risk Assessment Risk Daily Safety Task Instruction Examples andrew van der merwe. this document contains a daily safety task instruction (dsti) for a work site. Dsti to assess site conditions, site specific hazards and validation of controls. Type text, add images, blackout confidential details, add comments,. Edit your daily safety task instruction online. identify the task steps and hazards, and then identify the plans to. Daily Safety Task Instruction Examples.
From www.scribd.com
Daily Safety Task Instruction (DSTI) Supervisor/Manager/Team Leader Daily Safety Task Instruction Examples Dsti to assess site conditions, site specific hazards and validation of controls. this document provides guidance on implementing and conducting daily safety task instructions (dsti), also known as field level. this document contains a daily safety task instruction (dsti) for a work site. Edit your daily safety task instruction online. Type text, add images, blackout confidential details, add. Daily Safety Task Instruction Examples.
From mindingkids.co.uk
Daily Risk Assessments & Safety Checks MindingKids Daily Safety Task Instruction Examples andrew van der merwe. this document provides guidance on implementing and conducting daily safety task instructions (dsti), also known as field level. Type text, add images, blackout confidential details, add comments,. Dsti to assess site conditions, site specific hazards and validation of controls. identify the task steps and hazards, and then identify the plans to eliminate or. Daily Safety Task Instruction Examples.
From www.constatech.co.za
Construction Health & Safety Daily Safety Task Instruction Examples Edit your daily safety task instruction online. andrew van der merwe. this document provides guidance on implementing and conducting daily safety task instructions (dsti), also known as field level. identify the task steps and hazards, and then identify the plans to eliminate or control the hazards. this document contains a daily safety task instruction (dsti) for. Daily Safety Task Instruction Examples.
From www.examples.com
Safety Checklist 18+ Examples, Word, Google Docs, Pages, How to Daily Safety Task Instruction Examples identify the task steps and hazards, and then identify the plans to eliminate or control the hazards. Dsti to assess site conditions, site specific hazards and validation of controls. this document provides guidance on implementing and conducting daily safety task instructions (dsti), also known as field level. Edit your daily safety task instruction online. Type text, add images,. Daily Safety Task Instruction Examples.
From www.examples.com
Job Safety Analysis 17+ Examples, Word, Pages, PDF, Tips Daily Safety Task Instruction Examples Dsti to assess site conditions, site specific hazards and validation of controls. this document provides guidance on implementing and conducting daily safety task instructions (dsti), also known as field level. Type text, add images, blackout confidential details, add comments,. this document contains a daily safety task instruction (dsti) for a work site. Edit your daily safety task instruction. Daily Safety Task Instruction Examples.
From www.slideserve.com
PPT KBR / ITI TOTAL SAFETY TASK INSTRUCTION PowerPoint Presentation Daily Safety Task Instruction Examples andrew van der merwe. Dsti to assess site conditions, site specific hazards and validation of controls. identify the task steps and hazards, and then identify the plans to eliminate or control the hazards. this document provides guidance on implementing and conducting daily safety task instructions (dsti), also known as field level. Type text, add images, blackout confidential. Daily Safety Task Instruction Examples.
From www.template.net
30+ Work Instruction Templates Free Sample, Example Format Daily Safety Task Instruction Examples this document provides guidance on implementing and conducting daily safety task instructions (dsti), also known as field level. this document contains a daily safety task instruction (dsti) for a work site. andrew van der merwe. Edit your daily safety task instruction online. identify the task steps and hazards, and then identify the plans to eliminate or. Daily Safety Task Instruction Examples.
From tte-pov.blogspot.com
Fillable Safety Plan Template Daily Safety Task Instruction Examples this document contains a daily safety task instruction (dsti) for a work site. Dsti to assess site conditions, site specific hazards and validation of controls. identify the task steps and hazards, and then identify the plans to eliminate or control the hazards. andrew van der merwe. Edit your daily safety task instruction online. Type text, add images,. Daily Safety Task Instruction Examples.
From www.sampletemplates.com
FREE 16+ Sample Daily Checklists in Excel MS Word PDF Google Docs Daily Safety Task Instruction Examples this document contains a daily safety task instruction (dsti) for a work site. Dsti to assess site conditions, site specific hazards and validation of controls. identify the task steps and hazards, and then identify the plans to eliminate or control the hazards. andrew van der merwe. Edit your daily safety task instruction online. Type text, add images,. Daily Safety Task Instruction Examples.
From dremelmicro.com
Safety Observation Checklist Template Daily Safety Task Instruction Examples this document contains a daily safety task instruction (dsti) for a work site. andrew van der merwe. Dsti to assess site conditions, site specific hazards and validation of controls. Edit your daily safety task instruction online. Type text, add images, blackout confidential details, add comments,. identify the task steps and hazards, and then identify the plans to. Daily Safety Task Instruction Examples.
From www.template.net
10+ Instruction Templates Free Sample, Example Format Daily Safety Task Instruction Examples this document provides guidance on implementing and conducting daily safety task instructions (dsti), also known as field level. Type text, add images, blackout confidential details, add comments,. identify the task steps and hazards, and then identify the plans to eliminate or control the hazards. this document contains a daily safety task instruction (dsti) for a work site.. Daily Safety Task Instruction Examples.
From www.dochub.com
Daily safety briefing Fill out & sign online DocHub Daily Safety Task Instruction Examples andrew van der merwe. Edit your daily safety task instruction online. this document contains a daily safety task instruction (dsti) for a work site. identify the task steps and hazards, and then identify the plans to eliminate or control the hazards. this document provides guidance on implementing and conducting daily safety task instructions (dsti), also known. Daily Safety Task Instruction Examples.
From www.scribd.com
safeworkinstructionstemplate PDF Occupational Safety And Health Daily Safety Task Instruction Examples identify the task steps and hazards, and then identify the plans to eliminate or control the hazards. andrew van der merwe. Edit your daily safety task instruction online. Dsti to assess site conditions, site specific hazards and validation of controls. Type text, add images, blackout confidential details, add comments,. this document provides guidance on implementing and conducting. Daily Safety Task Instruction Examples.
From sitemate.com
Daily Safety Report Template Sample and Format Daily Safety Task Instruction Examples this document provides guidance on implementing and conducting daily safety task instructions (dsti), also known as field level. Type text, add images, blackout confidential details, add comments,. identify the task steps and hazards, and then identify the plans to eliminate or control the hazards. Edit your daily safety task instruction online. this document contains a daily safety. Daily Safety Task Instruction Examples.
From www.inpaspages.com
Safety task analysis Daily Safety Task Instruction Examples Edit your daily safety task instruction online. this document contains a daily safety task instruction (dsti) for a work site. andrew van der merwe. Type text, add images, blackout confidential details, add comments,. this document provides guidance on implementing and conducting daily safety task instructions (dsti), also known as field level. identify the task steps and. Daily Safety Task Instruction Examples.