Home Concession Exemptions . You usually pay stamp duty land tax (sdlt) on increasing portions of the property price when you. This was previously £125,000 and is a temporary change until 31st. You may be eligible for stamp duty land tax (sdlt) reliefs if you’re buying your first home and in certain other situations. After probate is granted, you may be able to get a council tax exemption for another 6 months if the property is both: Find out if you are eligible for a concession for the home you will live in, how to claim and your obligations. Ppr relief is a major tax concession that can be applied to second properties, giving homeowners a notable exemption on the costs associated with them. From 23rd september 2022, the first £250,000 of any residential property purchase by a uk resident will be exempt from stamp duty. If you're 75 or over and you claim pension credit, you're entitled to a free tv licence. These reliefs can reduce the.
from www.slideserve.com
If you're 75 or over and you claim pension credit, you're entitled to a free tv licence. These reliefs can reduce the. After probate is granted, you may be able to get a council tax exemption for another 6 months if the property is both: You may be eligible for stamp duty land tax (sdlt) reliefs if you’re buying your first home and in certain other situations. From 23rd september 2022, the first £250,000 of any residential property purchase by a uk resident will be exempt from stamp duty. Ppr relief is a major tax concession that can be applied to second properties, giving homeowners a notable exemption on the costs associated with them. Find out if you are eligible for a concession for the home you will live in, how to claim and your obligations. You usually pay stamp duty land tax (sdlt) on increasing portions of the property price when you. This was previously £125,000 and is a temporary change until 31st.
PPT CPD Scheme Update PowerPoint Presentation, free download ID1580298
Home Concession Exemptions Ppr relief is a major tax concession that can be applied to second properties, giving homeowners a notable exemption on the costs associated with them. From 23rd september 2022, the first £250,000 of any residential property purchase by a uk resident will be exempt from stamp duty. If you're 75 or over and you claim pension credit, you're entitled to a free tv licence. This was previously £125,000 and is a temporary change until 31st. Ppr relief is a major tax concession that can be applied to second properties, giving homeowners a notable exemption on the costs associated with them. These reliefs can reduce the. Find out if you are eligible for a concession for the home you will live in, how to claim and your obligations. You usually pay stamp duty land tax (sdlt) on increasing portions of the property price when you. You may be eligible for stamp duty land tax (sdlt) reliefs if you’re buying your first home and in certain other situations. After probate is granted, you may be able to get a council tax exemption for another 6 months if the property is both:
From www.slideserve.com
PPT CPD Scheme Update PowerPoint Presentation, free download ID1580298 Home Concession Exemptions After probate is granted, you may be able to get a council tax exemption for another 6 months if the property is both: This was previously £125,000 and is a temporary change until 31st. Find out if you are eligible for a concession for the home you will live in, how to claim and your obligations. These reliefs can reduce. Home Concession Exemptions.
From yourrealtorforlifervictoriapeterson.com
Homestead Exemptions & What You Need to Know — Rachael V. Peterson Home Concession Exemptions Find out if you are eligible for a concession for the home you will live in, how to claim and your obligations. Ppr relief is a major tax concession that can be applied to second properties, giving homeowners a notable exemption on the costs associated with them. This was previously £125,000 and is a temporary change until 31st. If you're. Home Concession Exemptions.
From yourpropertyaustralia.com.au
Do You Qualify For The First Home Buyers Exemption, Concession or Home Concession Exemptions Ppr relief is a major tax concession that can be applied to second properties, giving homeowners a notable exemption on the costs associated with them. You may be eligible for stamp duty land tax (sdlt) reliefs if you’re buying your first home and in certain other situations. Find out if you are eligible for a concession for the home you. Home Concession Exemptions.
From www.slideserve.com
PPT GST & FBT for Accounts Payable PowerPoint Presentation, free Home Concession Exemptions These reliefs can reduce the. This was previously £125,000 and is a temporary change until 31st. From 23rd september 2022, the first £250,000 of any residential property purchase by a uk resident will be exempt from stamp duty. You usually pay stamp duty land tax (sdlt) on increasing portions of the property price when you. You may be eligible for. Home Concession Exemptions.
From www.scribd.com
Tax Exemptin and Concession.pptx Expense Withholding Tax Home Concession Exemptions Find out if you are eligible for a concession for the home you will live in, how to claim and your obligations. Ppr relief is a major tax concession that can be applied to second properties, giving homeowners a notable exemption on the costs associated with them. You usually pay stamp duty land tax (sdlt) on increasing portions of the. Home Concession Exemptions.
From www.youtube.com
Property Tax Exemptions for Seniors and Veterans YouTube Home Concession Exemptions If you're 75 or over and you claim pension credit, you're entitled to a free tv licence. This was previously £125,000 and is a temporary change until 31st. Ppr relief is a major tax concession that can be applied to second properties, giving homeowners a notable exemption on the costs associated with them. These reliefs can reduce the. Find out. Home Concession Exemptions.
From mortgageworldaustralia.com.au
Stamp Duty Concessions & Exemptions Guide for First Home Buyers in Home Concession Exemptions After probate is granted, you may be able to get a council tax exemption for another 6 months if the property is both: Ppr relief is a major tax concession that can be applied to second properties, giving homeowners a notable exemption on the costs associated with them. This was previously £125,000 and is a temporary change until 31st. From. Home Concession Exemptions.
From toronto.citynews.ca
Toronto's vacant home tax deadline arrives Thursday Home Concession Exemptions From 23rd september 2022, the first £250,000 of any residential property purchase by a uk resident will be exempt from stamp duty. Ppr relief is a major tax concession that can be applied to second properties, giving homeowners a notable exemption on the costs associated with them. Find out if you are eligible for a concession for the home you. Home Concession Exemptions.
From www.pdffiller.com
Fillable Online Application for Exemption or Concession from Duty Fax Home Concession Exemptions From 23rd september 2022, the first £250,000 of any residential property purchase by a uk resident will be exempt from stamp duty. These reliefs can reduce the. You may be eligible for stamp duty land tax (sdlt) reliefs if you’re buying your first home and in certain other situations. You usually pay stamp duty land tax (sdlt) on increasing portions. Home Concession Exemptions.
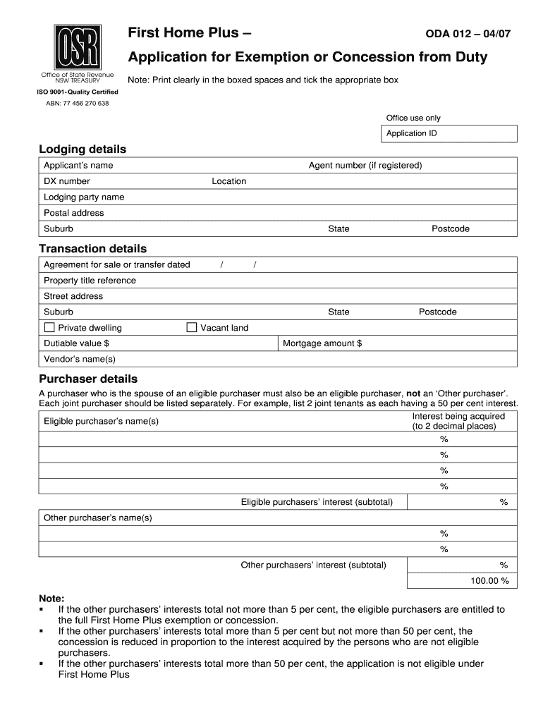
From desklib.com
First Home—New Home Exemption or Concession from Duty Application Form Home Concession Exemptions Ppr relief is a major tax concession that can be applied to second properties, giving homeowners a notable exemption on the costs associated with them. From 23rd september 2022, the first £250,000 of any residential property purchase by a uk resident will be exempt from stamp duty. These reliefs can reduce the. This was previously £125,000 and is a temporary. Home Concession Exemptions.
From www.linkedin.com
What are concessions and exemptions for firsttime home buyers in NSW Home Concession Exemptions Find out if you are eligible for a concession for the home you will live in, how to claim and your obligations. After probate is granted, you may be able to get a council tax exemption for another 6 months if the property is both: These reliefs can reduce the. Ppr relief is a major tax concession that can be. Home Concession Exemptions.
From www.befiler.com
Exemptions and Tax Concession How to Legitimately Remain Safe by Home Concession Exemptions Find out if you are eligible for a concession for the home you will live in, how to claim and your obligations. This was previously £125,000 and is a temporary change until 31st. These reliefs can reduce the. If you're 75 or over and you claim pension credit, you're entitled to a free tv licence. Ppr relief is a major. Home Concession Exemptions.
From www.skylinepropertytax.com
Your Homestead Exemption (AKA Principal Residence) Know the Limits! Home Concession Exemptions Find out if you are eligible for a concession for the home you will live in, how to claim and your obligations. You usually pay stamp duty land tax (sdlt) on increasing portions of the property price when you. If you're 75 or over and you claim pension credit, you're entitled to a free tv licence. This was previously £125,000. Home Concession Exemptions.
From margcompusoft.com
Understanding Section 10(5) of the Tax Act Leave Travel Home Concession Exemptions If you're 75 or over and you claim pension credit, you're entitled to a free tv licence. These reliefs can reduce the. You usually pay stamp duty land tax (sdlt) on increasing portions of the property price when you. This was previously £125,000 and is a temporary change until 31st. Ppr relief is a major tax concession that can be. Home Concession Exemptions.
From www.youtube.com
Tax Exemptions and Concessions in depth YouTube Home Concession Exemptions Ppr relief is a major tax concession that can be applied to second properties, giving homeowners a notable exemption on the costs associated with them. These reliefs can reduce the. You may be eligible for stamp duty land tax (sdlt) reliefs if you’re buying your first home and in certain other situations. From 23rd september 2022, the first £250,000 of. Home Concession Exemptions.
From www.signnow.com
Hawaii Property Tax Exemption 20222024 Form Fill Out and Sign Home Concession Exemptions From 23rd september 2022, the first £250,000 of any residential property purchase by a uk resident will be exempt from stamp duty. Find out if you are eligible for a concession for the home you will live in, how to claim and your obligations. You may be eligible for stamp duty land tax (sdlt) reliefs if you’re buying your first. Home Concession Exemptions.
From dev.inovayt.com.au
Stamp Duty Exemption In NSW Buying Your First Home In 2024 Home Concession Exemptions Find out if you are eligible for a concession for the home you will live in, how to claim and your obligations. Ppr relief is a major tax concession that can be applied to second properties, giving homeowners a notable exemption on the costs associated with them. If you're 75 or over and you claim pension credit, you're entitled to. Home Concession Exemptions.
From e5homeloans.com
A Guide to Seller Concessions E5 Home Loans Home Concession Exemptions After probate is granted, you may be able to get a council tax exemption for another 6 months if the property is both: Find out if you are eligible for a concession for the home you will live in, how to claim and your obligations. From 23rd september 2022, the first £250,000 of any residential property purchase by a uk. Home Concession Exemptions.
From slideplayer.com
R SingleFamily Home Repair Exemption ppt download Home Concession Exemptions From 23rd september 2022, the first £250,000 of any residential property purchase by a uk resident will be exempt from stamp duty. Find out if you are eligible for a concession for the home you will live in, how to claim and your obligations. You usually pay stamp duty land tax (sdlt) on increasing portions of the property price when. Home Concession Exemptions.
From swatigautam.com
Exemptions/Concessions extended by CBSE for Differently Abled Home Concession Exemptions This was previously £125,000 and is a temporary change until 31st. From 23rd september 2022, the first £250,000 of any residential property purchase by a uk resident will be exempt from stamp duty. After probate is granted, you may be able to get a council tax exemption for another 6 months if the property is both: Ppr relief is a. Home Concession Exemptions.
From www.redfin.com
Nearly Half of Home Sellers Are Making Concessions to Woo Buyers Home Concession Exemptions You usually pay stamp duty land tax (sdlt) on increasing portions of the property price when you. Ppr relief is a major tax concession that can be applied to second properties, giving homeowners a notable exemption on the costs associated with them. From 23rd september 2022, the first £250,000 of any residential property purchase by a uk resident will be. Home Concession Exemptions.
From desklib.com
First Home—New Home Exemption or Concession from Duty Application Form Home Concession Exemptions You usually pay stamp duty land tax (sdlt) on increasing portions of the property price when you. These reliefs can reduce the. Ppr relief is a major tax concession that can be applied to second properties, giving homeowners a notable exemption on the costs associated with them. After probate is granted, you may be able to get a council tax. Home Concession Exemptions.
From www.rentecdirect.com
What Are Rent Concessions and When Should You Offer Them? Home Concession Exemptions Ppr relief is a major tax concession that can be applied to second properties, giving homeowners a notable exemption on the costs associated with them. From 23rd september 2022, the first £250,000 of any residential property purchase by a uk resident will be exempt from stamp duty. You usually pay stamp duty land tax (sdlt) on increasing portions of the. Home Concession Exemptions.
From hometaxshield.com
Understanding the Texas Homestead Exemption Home Concession Exemptions After probate is granted, you may be able to get a council tax exemption for another 6 months if the property is both: Find out if you are eligible for a concession for the home you will live in, how to claim and your obligations. This was previously £125,000 and is a temporary change until 31st. You usually pay stamp. Home Concession Exemptions.
From www.formsbank.com
Fillable Claim For Home Exemption printable pdf download Home Concession Exemptions From 23rd september 2022, the first £250,000 of any residential property purchase by a uk resident will be exempt from stamp duty. Ppr relief is a major tax concession that can be applied to second properties, giving homeowners a notable exemption on the costs associated with them. If you're 75 or over and you claim pension credit, you're entitled to. Home Concession Exemptions.
From hometaxshield.com
The Homestead Exemption Explained Home Concession Exemptions From 23rd september 2022, the first £250,000 of any residential property purchase by a uk resident will be exempt from stamp duty. Ppr relief is a major tax concession that can be applied to second properties, giving homeowners a notable exemption on the costs associated with them. These reliefs can reduce the. Find out if you are eligible for a. Home Concession Exemptions.
From www.tomatomortgages.com.au
Apply for a first home buyer duty exemption, concession or reduction Home Concession Exemptions These reliefs can reduce the. This was previously £125,000 and is a temporary change until 31st. From 23rd september 2022, the first £250,000 of any residential property purchase by a uk resident will be exempt from stamp duty. You usually pay stamp duty land tax (sdlt) on increasing portions of the property price when you. If you're 75 or over. Home Concession Exemptions.
From desklib.com
First Home—New Home Exemption or Concession from Duty Application Form Home Concession Exemptions Ppr relief is a major tax concession that can be applied to second properties, giving homeowners a notable exemption on the costs associated with them. This was previously £125,000 and is a temporary change until 31st. These reliefs can reduce the. From 23rd september 2022, the first £250,000 of any residential property purchase by a uk resident will be exempt. Home Concession Exemptions.
From www.lendingtree.com
What Is a Homestead Exemption and How Does It Work? LendingTree Home Concession Exemptions This was previously £125,000 and is a temporary change until 31st. Find out if you are eligible for a concession for the home you will live in, how to claim and your obligations. You usually pay stamp duty land tax (sdlt) on increasing portions of the property price when you. These reliefs can reduce the. From 23rd september 2022, the. Home Concession Exemptions.
From swatigautam.com
Exemptions/Concessions extended by CBSE for Differently Abled Home Concession Exemptions Ppr relief is a major tax concession that can be applied to second properties, giving homeowners a notable exemption on the costs associated with them. These reliefs can reduce the. This was previously £125,000 and is a temporary change until 31st. If you're 75 or over and you claim pension credit, you're entitled to a free tv licence. Find out. Home Concession Exemptions.
From welcomehometeamnaples.com
Homestead Exemption Home Team Naples Home Concession Exemptions If you're 75 or over and you claim pension credit, you're entitled to a free tv licence. This was previously £125,000 and is a temporary change until 31st. After probate is granted, you may be able to get a council tax exemption for another 6 months if the property is both: These reliefs can reduce the. Ppr relief is a. Home Concession Exemptions.
From www.hauseit.com
What Is the FL Save Our Homes Property Tax Exemption? Home Concession Exemptions You may be eligible for stamp duty land tax (sdlt) reliefs if you’re buying your first home and in certain other situations. After probate is granted, you may be able to get a council tax exemption for another 6 months if the property is both: From 23rd september 2022, the first £250,000 of any residential property purchase by a uk. Home Concession Exemptions.
From www.acpafl.org
Understanding Exemptions, Discounts and Classifications Alachua Home Concession Exemptions You usually pay stamp duty land tax (sdlt) on increasing portions of the property price when you. You may be eligible for stamp duty land tax (sdlt) reliefs if you’re buying your first home and in certain other situations. These reliefs can reduce the. Find out if you are eligible for a concession for the home you will live in,. Home Concession Exemptions.
From desklib.com
First Home—New Home Exemption or Concession from Duty Application Form Home Concession Exemptions From 23rd september 2022, the first £250,000 of any residential property purchase by a uk resident will be exempt from stamp duty. After probate is granted, you may be able to get a council tax exemption for another 6 months if the property is both: This was previously £125,000 and is a temporary change until 31st. You may be eligible. Home Concession Exemptions.
From www.slideserve.com
PPT SEZ ACT & GUIDELINES FOR IMPLEMENTATION PowerPoint Presentation Home Concession Exemptions Find out if you are eligible for a concession for the home you will live in, how to claim and your obligations. Ppr relief is a major tax concession that can be applied to second properties, giving homeowners a notable exemption on the costs associated with them. If you're 75 or over and you claim pension credit, you're entitled to. Home Concession Exemptions.