What Is Freddie Mac Appraisal Identifier . (opens in new window) do we own your mortgage? This is the “document file identifier” assigned to the appraisal by the uniform collateral data portal. On may 1, 2024, freddie mac in collaboration with fannie mae and hud,. The doc file id is the identifier assigned within ucdp to one or a set of appraisal data files associated with a given property and indicates. A pricing identifier is a number (or such other designation that freddie mac may select) that identifies an agreement providing the terms. Get answers to questions about appraisal property conditions, property eligibility types and freddie mac appraisal requirements. The unique identifier assigned by the uniform collateral data portal ® (ucdp ®) to the appraisal data delivered to the ucdp for the subject. My home by freddie mac ® resources to help you rent, buy and own your home. Freddie mac requires that the seller obtain an appraisal report that accurately reflects the market value, condition and marketability of.
from www.reggora.com
The doc file id is the identifier assigned within ucdp to one or a set of appraisal data files associated with a given property and indicates. My home by freddie mac ® resources to help you rent, buy and own your home. This is the “document file identifier” assigned to the appraisal by the uniform collateral data portal. Freddie mac requires that the seller obtain an appraisal report that accurately reflects the market value, condition and marketability of. On may 1, 2024, freddie mac in collaboration with fannie mae and hud,. Get answers to questions about appraisal property conditions, property eligibility types and freddie mac appraisal requirements. A pricing identifier is a number (or such other designation that freddie mac may select) that identifies an agreement providing the terms. (opens in new window) do we own your mortgage? The unique identifier assigned by the uniform collateral data portal ® (ucdp ®) to the appraisal data delivered to the ucdp for the subject.
Understanding Desktop Appraisals Takeaways from Fannie Mae and Freddie Mac
What Is Freddie Mac Appraisal Identifier Freddie mac requires that the seller obtain an appraisal report that accurately reflects the market value, condition and marketability of. Get answers to questions about appraisal property conditions, property eligibility types and freddie mac appraisal requirements. My home by freddie mac ® resources to help you rent, buy and own your home. On may 1, 2024, freddie mac in collaboration with fannie mae and hud,. The unique identifier assigned by the uniform collateral data portal ® (ucdp ®) to the appraisal data delivered to the ucdp for the subject. The doc file id is the identifier assigned within ucdp to one or a set of appraisal data files associated with a given property and indicates. Freddie mac requires that the seller obtain an appraisal report that accurately reflects the market value, condition and marketability of. A pricing identifier is a number (or such other designation that freddie mac may select) that identifies an agreement providing the terms. (opens in new window) do we own your mortgage? This is the “document file identifier” assigned to the appraisal by the uniform collateral data portal.
From mortgageinnovators.com
STRATMOR and Freddie Mac Data Reveal the ROI of Appraisal Innovation What Is Freddie Mac Appraisal Identifier Freddie mac requires that the seller obtain an appraisal report that accurately reflects the market value, condition and marketability of. My home by freddie mac ® resources to help you rent, buy and own your home. This is the “document file identifier” assigned to the appraisal by the uniform collateral data portal. A pricing identifier is a number (or such. What Is Freddie Mac Appraisal Identifier.
From www.reggora.com
Understanding Desktop Appraisals Takeaways from Fannie Mae and Freddie Mac What Is Freddie Mac Appraisal Identifier This is the “document file identifier” assigned to the appraisal by the uniform collateral data portal. My home by freddie mac ® resources to help you rent, buy and own your home. Get answers to questions about appraisal property conditions, property eligibility types and freddie mac appraisal requirements. The unique identifier assigned by the uniform collateral data portal ® (ucdp. What Is Freddie Mac Appraisal Identifier.
From www.tenaco.com
Freddie Mac Updates Automated Collateral Evaluation Appraisal Waiver What Is Freddie Mac Appraisal Identifier Freddie mac requires that the seller obtain an appraisal report that accurately reflects the market value, condition and marketability of. (opens in new window) do we own your mortgage? This is the “document file identifier” assigned to the appraisal by the uniform collateral data portal. A pricing identifier is a number (or such other designation that freddie mac may select). What Is Freddie Mac Appraisal Identifier.
From www.primacyrealestate.com
Fannie Mae vs. Freddie Mac Primacy Real Estate What Is Freddie Mac Appraisal Identifier My home by freddie mac ® resources to help you rent, buy and own your home. The doc file id is the identifier assigned within ucdp to one or a set of appraisal data files associated with a given property and indicates. (opens in new window) do we own your mortgage? The unique identifier assigned by the uniform collateral data. What Is Freddie Mac Appraisal Identifier.
From www.slideshare.net
freddie mac Investor Presentation Freddie Mac Update What Is Freddie Mac Appraisal Identifier Get answers to questions about appraisal property conditions, property eligibility types and freddie mac appraisal requirements. On may 1, 2024, freddie mac in collaboration with fannie mae and hud,. Freddie mac requires that the seller obtain an appraisal report that accurately reflects the market value, condition and marketability of. The doc file id is the identifier assigned within ucdp to. What Is Freddie Mac Appraisal Identifier.
From www.yumpu.com
Uniform Appraisal Dataset Overview Freddie Mac What Is Freddie Mac Appraisal Identifier On may 1, 2024, freddie mac in collaboration with fannie mae and hud,. The unique identifier assigned by the uniform collateral data portal ® (ucdp ®) to the appraisal data delivered to the ucdp for the subject. A pricing identifier is a number (or such other designation that freddie mac may select) that identifies an agreement providing the terms. My. What Is Freddie Mac Appraisal Identifier.
From www.slideshare.net
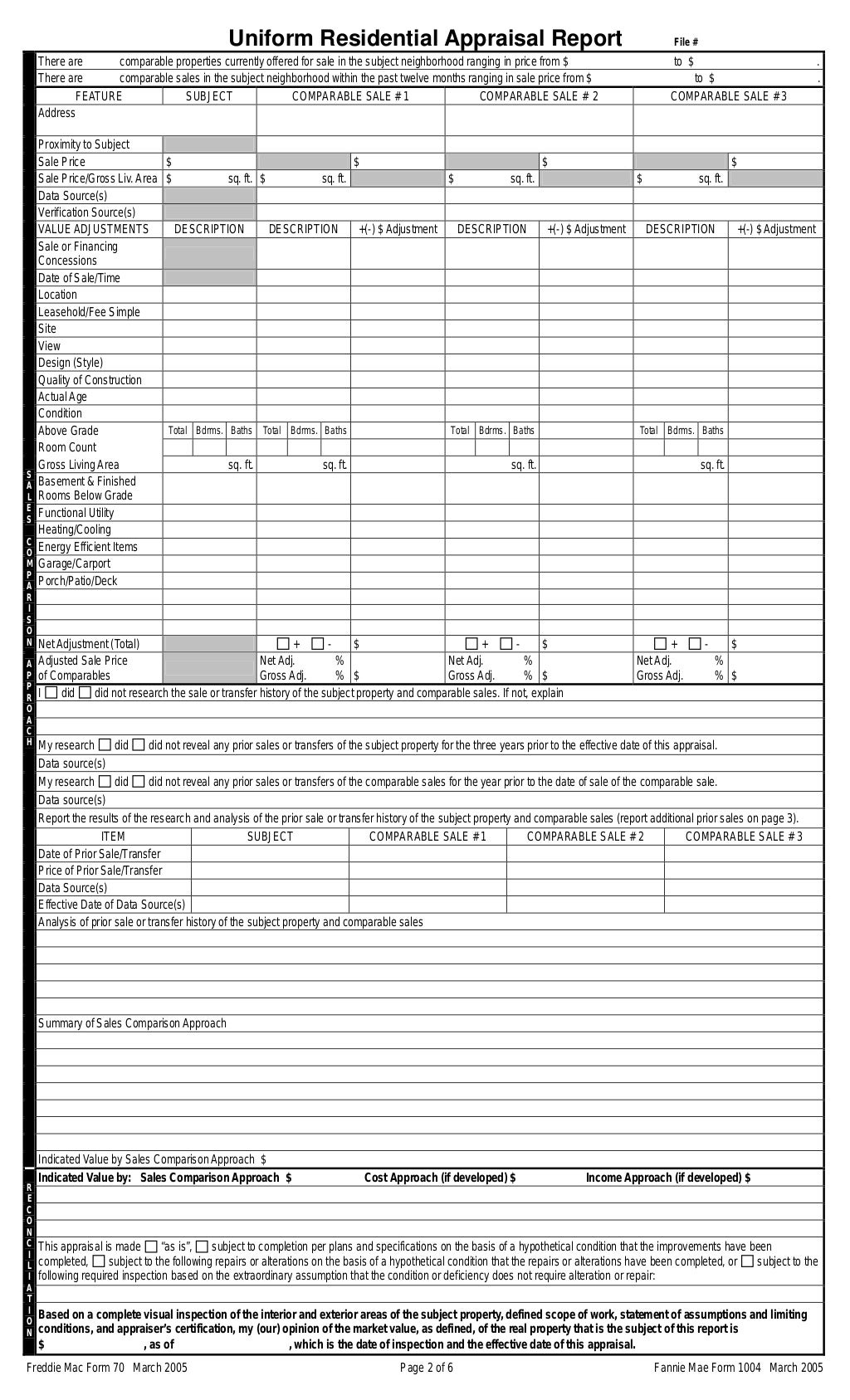
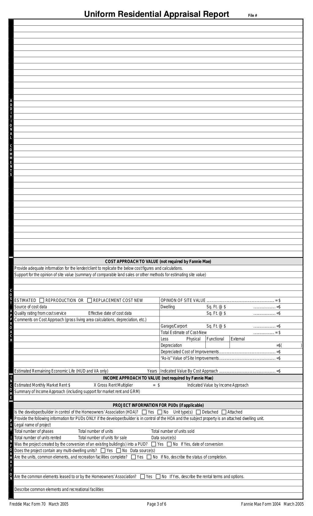
Freddie Mac Blank Appraisal Form 70 What Is Freddie Mac Appraisal Identifier Freddie mac requires that the seller obtain an appraisal report that accurately reflects the market value, condition and marketability of. On may 1, 2024, freddie mac in collaboration with fannie mae and hud,. (opens in new window) do we own your mortgage? This is the “document file identifier” assigned to the appraisal by the uniform collateral data portal. The doc. What Is Freddie Mac Appraisal Identifier.
From www.studocu.com
What Is Freddie Mac IPU Studocu What Is Freddie Mac Appraisal Identifier My home by freddie mac ® resources to help you rent, buy and own your home. The unique identifier assigned by the uniform collateral data portal ® (ucdp ®) to the appraisal data delivered to the ucdp for the subject. On may 1, 2024, freddie mac in collaboration with fannie mae and hud,. This is the “document file identifier” assigned. What Is Freddie Mac Appraisal Identifier.
From 1000logos.net
Freddie Mac Logo and symbol, meaning, history, PNG What Is Freddie Mac Appraisal Identifier The doc file id is the identifier assigned within ucdp to one or a set of appraisal data files associated with a given property and indicates. Get answers to questions about appraisal property conditions, property eligibility types and freddie mac appraisal requirements. This is the “document file identifier” assigned to the appraisal by the uniform collateral data portal. On may. What Is Freddie Mac Appraisal Identifier.
From choicehm.com
Fannie Mae vs Freddie Mac What you Should Know Choice Home Mortgage What Is Freddie Mac Appraisal Identifier (opens in new window) do we own your mortgage? The doc file id is the identifier assigned within ucdp to one or a set of appraisal data files associated with a given property and indicates. Freddie mac requires that the seller obtain an appraisal report that accurately reflects the market value, condition and marketability of. My home by freddie mac. What Is Freddie Mac Appraisal Identifier.
From www.formsbank.com
Freddie Mac Form 442 Appraisal Update And/or Completion Report What Is Freddie Mac Appraisal Identifier My home by freddie mac ® resources to help you rent, buy and own your home. This is the “document file identifier” assigned to the appraisal by the uniform collateral data portal. Get answers to questions about appraisal property conditions, property eligibility types and freddie mac appraisal requirements. Freddie mac requires that the seller obtain an appraisal report that accurately. What Is Freddie Mac Appraisal Identifier.
From www.slideshare.net
Freddie Mac Blank Appraisal Form 70 What Is Freddie Mac Appraisal Identifier Freddie mac requires that the seller obtain an appraisal report that accurately reflects the market value, condition and marketability of. The doc file id is the identifier assigned within ucdp to one or a set of appraisal data files associated with a given property and indicates. On may 1, 2024, freddie mac in collaboration with fannie mae and hud,. Get. What Is Freddie Mac Appraisal Identifier.
From timandjulieharris.com
Freddie Mac and Fannie Mae Relaxing Appraisal and Employment What Is Freddie Mac Appraisal Identifier My home by freddie mac ® resources to help you rent, buy and own your home. The unique identifier assigned by the uniform collateral data portal ® (ucdp ®) to the appraisal data delivered to the ucdp for the subject. Get answers to questions about appraisal property conditions, property eligibility types and freddie mac appraisal requirements. (opens in new window). What Is Freddie Mac Appraisal Identifier.
From www.icemortgagetechnology.com
Freddie Mac tools integrated within Partners ICE Mortgage What Is Freddie Mac Appraisal Identifier (opens in new window) do we own your mortgage? The unique identifier assigned by the uniform collateral data portal ® (ucdp ®) to the appraisal data delivered to the ucdp for the subject. This is the “document file identifier” assigned to the appraisal by the uniform collateral data portal. Freddie mac requires that the seller obtain an appraisal report that. What Is Freddie Mac Appraisal Identifier.
From www.classvaluation.com
FANNIE MAE & FREDDIE MAC RELEASED THEIR GUIDELINES FOR THEIR NEW What Is Freddie Mac Appraisal Identifier Get answers to questions about appraisal property conditions, property eligibility types and freddie mac appraisal requirements. The unique identifier assigned by the uniform collateral data portal ® (ucdp ®) to the appraisal data delivered to the ucdp for the subject. The doc file id is the identifier assigned within ucdp to one or a set of appraisal data files associated. What Is Freddie Mac Appraisal Identifier.
From www.awesomefintech.com
Freddie Mac—Federal Home Loan Mortgage Corp. (FHLMC) AwesomeFinTech Blog What Is Freddie Mac Appraisal Identifier Get answers to questions about appraisal property conditions, property eligibility types and freddie mac appraisal requirements. (opens in new window) do we own your mortgage? My home by freddie mac ® resources to help you rent, buy and own your home. A pricing identifier is a number (or such other designation that freddie mac may select) that identifies an agreement. What Is Freddie Mac Appraisal Identifier.
From www.gardenstateloans.com
Freddie Mac introduces AppraisalFree Mortgage Program Garden State What Is Freddie Mac Appraisal Identifier The doc file id is the identifier assigned within ucdp to one or a set of appraisal data files associated with a given property and indicates. (opens in new window) do we own your mortgage? Get answers to questions about appraisal property conditions, property eligibility types and freddie mac appraisal requirements. The unique identifier assigned by the uniform collateral data. What Is Freddie Mac Appraisal Identifier.
From www.templateroller.com
Freddie Mac Form 1077 Fill Out, Sign Online and Download Printable What Is Freddie Mac Appraisal Identifier My home by freddie mac ® resources to help you rent, buy and own your home. The unique identifier assigned by the uniform collateral data portal ® (ucdp ®) to the appraisal data delivered to the ucdp for the subject. (opens in new window) do we own your mortgage? On may 1, 2024, freddie mac in collaboration with fannie mae. What Is Freddie Mac Appraisal Identifier.
From www.housingwire.com
Fannie Mae, Freddie Mac relax appraisal, employment verification What Is Freddie Mac Appraisal Identifier Freddie mac requires that the seller obtain an appraisal report that accurately reflects the market value, condition and marketability of. My home by freddie mac ® resources to help you rent, buy and own your home. The unique identifier assigned by the uniform collateral data portal ® (ucdp ®) to the appraisal data delivered to the ucdp for the subject.. What Is Freddie Mac Appraisal Identifier.
From appraisalbuzz.com
Freddie Mac FixedRate Mortgage Average Reaches 5 Percent Appraisal Buzz What Is Freddie Mac Appraisal Identifier Freddie mac requires that the seller obtain an appraisal report that accurately reflects the market value, condition and marketability of. The unique identifier assigned by the uniform collateral data portal ® (ucdp ®) to the appraisal data delivered to the ucdp for the subject. The doc file id is the identifier assigned within ucdp to one or a set of. What Is Freddie Mac Appraisal Identifier.
From www.slideshare.net
Freddie Mac Blank Appraisal Form 70 What Is Freddie Mac Appraisal Identifier My home by freddie mac ® resources to help you rent, buy and own your home. The doc file id is the identifier assigned within ucdp to one or a set of appraisal data files associated with a given property and indicates. A pricing identifier is a number (or such other designation that freddie mac may select) that identifies an. What Is Freddie Mac Appraisal Identifier.
From www.awesomefintech.com
Freddie Mac—Federal Home Loan Mortgage Corp. (FHLMC) AwesomeFinTech Blog What Is Freddie Mac Appraisal Identifier This is the “document file identifier” assigned to the appraisal by the uniform collateral data portal. On may 1, 2024, freddie mac in collaboration with fannie mae and hud,. The unique identifier assigned by the uniform collateral data portal ® (ucdp ®) to the appraisal data delivered to the ucdp for the subject. Get answers to questions about appraisal property. What Is Freddie Mac Appraisal Identifier.
From www.slideshare.net
Freddie Mac Blank Appraisal Form 70 What Is Freddie Mac Appraisal Identifier My home by freddie mac ® resources to help you rent, buy and own your home. The unique identifier assigned by the uniform collateral data portal ® (ucdp ®) to the appraisal data delivered to the ucdp for the subject. Get answers to questions about appraisal property conditions, property eligibility types and freddie mac appraisal requirements. The doc file id. What Is Freddie Mac Appraisal Identifier.
From www.linkedin.com
Freddie Mac SingleFamily on LinkedIn Need a straightforward approach What Is Freddie Mac Appraisal Identifier The doc file id is the identifier assigned within ucdp to one or a set of appraisal data files associated with a given property and indicates. On may 1, 2024, freddie mac in collaboration with fannie mae and hud,. Freddie mac requires that the seller obtain an appraisal report that accurately reflects the market value, condition and marketability of. My. What Is Freddie Mac Appraisal Identifier.
From www.scribd.com
Freddie Mac Appraiser Independence Requirements 10152010 PDF What Is Freddie Mac Appraisal Identifier This is the “document file identifier” assigned to the appraisal by the uniform collateral data portal. My home by freddie mac ® resources to help you rent, buy and own your home. A pricing identifier is a number (or such other designation that freddie mac may select) that identifies an agreement providing the terms. (opens in new window) do we. What Is Freddie Mac Appraisal Identifier.
From 1000logos.net
Freddie Mac Logo and symbol, meaning, history, PNG What Is Freddie Mac Appraisal Identifier The doc file id is the identifier assigned within ucdp to one or a set of appraisal data files associated with a given property and indicates. A pricing identifier is a number (or such other designation that freddie mac may select) that identifies an agreement providing the terms. The unique identifier assigned by the uniform collateral data portal ® (ucdp. What Is Freddie Mac Appraisal Identifier.
From krgappraisalservices.weebly.com
Services KRG APPRAISAL SERVICES What Is Freddie Mac Appraisal Identifier A pricing identifier is a number (or such other designation that freddie mac may select) that identifies an agreement providing the terms. This is the “document file identifier” assigned to the appraisal by the uniform collateral data portal. On may 1, 2024, freddie mac in collaboration with fannie mae and hud,. My home by freddie mac ® resources to help. What Is Freddie Mac Appraisal Identifier.
From 1000logos.net
Freddie Mac Logo and symbol, meaning, history, PNG What Is Freddie Mac Appraisal Identifier On may 1, 2024, freddie mac in collaboration with fannie mae and hud,. Get answers to questions about appraisal property conditions, property eligibility types and freddie mac appraisal requirements. The doc file id is the identifier assigned within ucdp to one or a set of appraisal data files associated with a given property and indicates. My home by freddie mac. What Is Freddie Mac Appraisal Identifier.
From www.amerimacmanagement.com
ACE + PDR Freddie Mac Eligible Loans AmeriMac Appraisal Management What Is Freddie Mac Appraisal Identifier A pricing identifier is a number (or such other designation that freddie mac may select) that identifies an agreement providing the terms. Freddie mac requires that the seller obtain an appraisal report that accurately reflects the market value, condition and marketability of. The unique identifier assigned by the uniform collateral data portal ® (ucdp ®) to the appraisal data delivered. What Is Freddie Mac Appraisal Identifier.
From podcasts.apple.com
Mortgage Marketing Expert Appraisal Trends in 2024 with Freddie Mac What Is Freddie Mac Appraisal Identifier My home by freddie mac ® resources to help you rent, buy and own your home. The doc file id is the identifier assigned within ucdp to one or a set of appraisal data files associated with a given property and indicates. The unique identifier assigned by the uniform collateral data portal ® (ucdp ®) to the appraisal data delivered. What Is Freddie Mac Appraisal Identifier.
From podtail.com
192 Appraisal Trends in 2024 with Freddie Mac Mortgage Marketing What Is Freddie Mac Appraisal Identifier The unique identifier assigned by the uniform collateral data portal ® (ucdp ®) to the appraisal data delivered to the ucdp for the subject. My home by freddie mac ® resources to help you rent, buy and own your home. On may 1, 2024, freddie mac in collaboration with fannie mae and hud,. A pricing identifier is a number (or. What Is Freddie Mac Appraisal Identifier.
From corporatefinanceinstitute.com
Freddie Mac Overview, How It Works, Business Lines What Is Freddie Mac Appraisal Identifier My home by freddie mac ® resources to help you rent, buy and own your home. The unique identifier assigned by the uniform collateral data portal ® (ucdp ®) to the appraisal data delivered to the ucdp for the subject. A pricing identifier is a number (or such other designation that freddie mac may select) that identifies an agreement providing. What Is Freddie Mac Appraisal Identifier.
From www.classvaluation.com
Property Fingerprint with ACE+ PDR Class Valuation What Is Freddie Mac Appraisal Identifier A pricing identifier is a number (or such other designation that freddie mac may select) that identifies an agreement providing the terms. The unique identifier assigned by the uniform collateral data portal ® (ucdp ®) to the appraisal data delivered to the ucdp for the subject. Freddie mac requires that the seller obtain an appraisal report that accurately reflects the. What Is Freddie Mac Appraisal Identifier.
From namb.org
inar Reviewing the Uniform Residential Appraisal Report by Freddie What Is Freddie Mac Appraisal Identifier (opens in new window) do we own your mortgage? Freddie mac requires that the seller obtain an appraisal report that accurately reflects the market value, condition and marketability of. The unique identifier assigned by the uniform collateral data portal ® (ucdp ®) to the appraisal data delivered to the ucdp for the subject. On may 1, 2024, freddie mac in. What Is Freddie Mac Appraisal Identifier.
From www.reggora.com
STRATMOR and Freddie Mac Data Reveal the ROI of Appraisal Innovation What Is Freddie Mac Appraisal Identifier This is the “document file identifier” assigned to the appraisal by the uniform collateral data portal. Get answers to questions about appraisal property conditions, property eligibility types and freddie mac appraisal requirements. A pricing identifier is a number (or such other designation that freddie mac may select) that identifies an agreement providing the terms. (opens in new window) do we. What Is Freddie Mac Appraisal Identifier.