Building Codes Harris County Texas . The most recent set of codified ordinances that. The online codes are for informational and convenience purposes only. Harris county currently adopted codes (as of september 1, 2019) building code 2018 ibc‐ only chapters 2‐10, with harris county. The houston building code 2021 is based on the international building code 2021 (ibc 2021) with amendments and additions. Harris county residential building code standards. Use this quick reference guide to find regulations adopted by harris county throughout the years. • a foundation inspection, before placement of concrete. County agencies, business owners and other. Harris county has not adopted a full building code (see fire code review for commercial building requirements). Only applies to single family. Infrastructure regulations, october 10, 2023 (updated for use with 2023 standards &. A minimum of three inspections shall be done during construction:
from www.templateroller.com
• a foundation inspection, before placement of concrete. A minimum of three inspections shall be done during construction: The online codes are for informational and convenience purposes only. Use this quick reference guide to find regulations adopted by harris county throughout the years. County agencies, business owners and other. Harris county has not adopted a full building code (see fire code review for commercial building requirements). The houston building code 2021 is based on the international building code 2021 (ibc 2021) with amendments and additions. Infrastructure regulations, october 10, 2023 (updated for use with 2023 standards &. Harris county residential building code standards. Harris county currently adopted codes (as of september 1, 2019) building code 2018 ibc‐ only chapters 2‐10, with harris county.
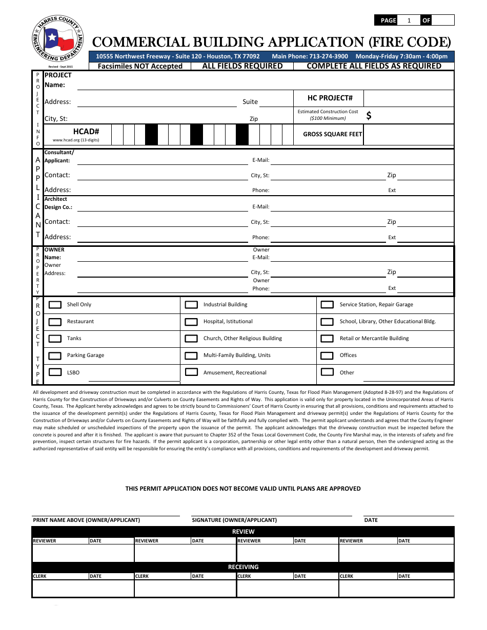
Harris County, Texas Commercial Building Application (Fire Code) Fill
Building Codes Harris County Texas A minimum of three inspections shall be done during construction: Only applies to single family. The most recent set of codified ordinances that. Harris county currently adopted codes (as of september 1, 2019) building code 2018 ibc‐ only chapters 2‐10, with harris county. The online codes are for informational and convenience purposes only. County agencies, business owners and other. Infrastructure regulations, october 10, 2023 (updated for use with 2023 standards &. A minimum of three inspections shall be done during construction: The houston building code 2021 is based on the international building code 2021 (ibc 2021) with amendments and additions. • a foundation inspection, before placement of concrete. Use this quick reference guide to find regulations adopted by harris county throughout the years. Harris county has not adopted a full building code (see fire code review for commercial building requirements). Harris county residential building code standards.
From www.wvcwinterswijk.nl
Harris County Zip Code Map United States Map Building Codes Harris County Texas The houston building code 2021 is based on the international building code 2021 (ibc 2021) with amendments and additions. The online codes are for informational and convenience purposes only. County agencies, business owners and other. Only applies to single family. Infrastructure regulations, october 10, 2023 (updated for use with 2023 standards &. A minimum of three inspections shall be done. Building Codes Harris County Texas.
From osirisnewdawnmap.blogspot.com
Harris County Tx Zip Code Map Osiris New Dawn Map Building Codes Harris County Texas Only applies to single family. • a foundation inspection, before placement of concrete. Harris county has not adopted a full building code (see fire code review for commercial building requirements). Harris county residential building code standards. Infrastructure regulations, october 10, 2023 (updated for use with 2023 standards &. Harris county currently adopted codes (as of september 1, 2019) building code. Building Codes Harris County Texas.
From www.houstonpublicmedia.org
Life Expectancy In Houston Can Vary Up To 20 Years Depending On Where Building Codes Harris County Texas Harris county residential building code standards. Only applies to single family. Harris county has not adopted a full building code (see fire code review for commercial building requirements). A minimum of three inspections shall be done during construction: Harris county currently adopted codes (as of september 1, 2019) building code 2018 ibc‐ only chapters 2‐10, with harris county. The most. Building Codes Harris County Texas.
From sticthompson.netlify.app
Harris County Zip Code Map Map Of The World Building Codes Harris County Texas Infrastructure regulations, october 10, 2023 (updated for use with 2023 standards &. • a foundation inspection, before placement of concrete. Harris county residential building code standards. The online codes are for informational and convenience purposes only. Only applies to single family. The houston building code 2021 is based on the international building code 2021 (ibc 2021) with amendments and additions.. Building Codes Harris County Texas.
From mapoftexashoustonarea.github.io
Harris County Texas Zip Code Map Get Latest Map Update Building Codes Harris County Texas Harris county residential building code standards. County agencies, business owners and other. The most recent set of codified ordinances that. • a foundation inspection, before placement of concrete. Use this quick reference guide to find regulations adopted by harris county throughout the years. Harris county currently adopted codes (as of september 1, 2019) building code 2018 ibc‐ only chapters 2‐10,. Building Codes Harris County Texas.
From mungfali.com
Harris County Map Boundaries Building Codes Harris County Texas Infrastructure regulations, october 10, 2023 (updated for use with 2023 standards &. County agencies, business owners and other. Harris county has not adopted a full building code (see fire code review for commercial building requirements). Harris county currently adopted codes (as of september 1, 2019) building code 2018 ibc‐ only chapters 2‐10, with harris county. Harris county residential building code. Building Codes Harris County Texas.
From www.mapsofworld.com
Harris County Map Map of Harris County, Texas Building Codes Harris County Texas Only applies to single family. Use this quick reference guide to find regulations adopted by harris county throughout the years. A minimum of three inspections shall be done during construction: Harris county has not adopted a full building code (see fire code review for commercial building requirements). The most recent set of codified ordinances that. • a foundation inspection, before. Building Codes Harris County Texas.
From mapoftexashoustonarea.github.io
Harris County Texas Zip Code Map Get Latest Map Update Building Codes Harris County Texas Harris county residential building code standards. The online codes are for informational and convenience purposes only. • a foundation inspection, before placement of concrete. The houston building code 2021 is based on the international building code 2021 (ibc 2021) with amendments and additions. Harris county has not adopted a full building code (see fire code review for commercial building requirements).. Building Codes Harris County Texas.
From www.researchgate.net
Map of the study areaHarris County, Texas. Download Scientific Diagram Building Codes Harris County Texas Only applies to single family. • a foundation inspection, before placement of concrete. Harris county has not adopted a full building code (see fire code review for commercial building requirements). Harris county currently adopted codes (as of september 1, 2019) building code 2018 ibc‐ only chapters 2‐10, with harris county. Use this quick reference guide to find regulations adopted by. Building Codes Harris County Texas.
From texastimetravel.com
Harris County Courthouse Texas Time Travel Building Codes Harris County Texas Harris county residential building code standards. Use this quick reference guide to find regulations adopted by harris county throughout the years. A minimum of three inspections shall be done during construction: Only applies to single family. Harris county currently adopted codes (as of september 1, 2019) building code 2018 ibc‐ only chapters 2‐10, with harris county. The houston building code. Building Codes Harris County Texas.
From www.templateroller.com
Harris County, Texas Commercial Building Application (Fire Code) Fill Building Codes Harris County Texas Harris county currently adopted codes (as of september 1, 2019) building code 2018 ibc‐ only chapters 2‐10, with harris county. A minimum of three inspections shall be done during construction: The online codes are for informational and convenience purposes only. Harris county has not adopted a full building code (see fire code review for commercial building requirements). Use this quick. Building Codes Harris County Texas.
From dash4it.co.uk
Harris County, Texas ZIP Codes Map Building Codes Harris County Texas A minimum of three inspections shall be done during construction: • a foundation inspection, before placement of concrete. Use this quick reference guide to find regulations adopted by harris county throughout the years. Harris county currently adopted codes (as of september 1, 2019) building code 2018 ibc‐ only chapters 2‐10, with harris county. The online codes are for informational and. Building Codes Harris County Texas.
From wvcwinterswijk.nl
Printable Harris County Zip Code Map United States Map Building Codes Harris County Texas A minimum of three inspections shall be done during construction: County agencies, business owners and other. The houston building code 2021 is based on the international building code 2021 (ibc 2021) with amendments and additions. Harris county currently adopted codes (as of september 1, 2019) building code 2018 ibc‐ only chapters 2‐10, with harris county. Infrastructure regulations, october 10, 2023. Building Codes Harris County Texas.
From www.templateroller.com
Harris County, Texas Commercial Building Application (Fire Code) Fill Building Codes Harris County Texas A minimum of three inspections shall be done during construction: Infrastructure regulations, october 10, 2023 (updated for use with 2023 standards &. The houston building code 2021 is based on the international building code 2021 (ibc 2021) with amendments and additions. Harris county residential building code standards. • a foundation inspection, before placement of concrete. Only applies to single family.. Building Codes Harris County Texas.
From wvcwinterswijk.nl
Harris County Texas Zip Code Map United States Map Building Codes Harris County Texas Use this quick reference guide to find regulations adopted by harris county throughout the years. County agencies, business owners and other. Only applies to single family. The online codes are for informational and convenience purposes only. • a foundation inspection, before placement of concrete. Harris county has not adopted a full building code (see fire code review for commercial building. Building Codes Harris County Texas.
From mungfali.com
Unincorporated Harris County Map Building Codes Harris County Texas Harris county has not adopted a full building code (see fire code review for commercial building requirements). Infrastructure regulations, october 10, 2023 (updated for use with 2023 standards &. The most recent set of codified ordinances that. County agencies, business owners and other. Only applies to single family. • a foundation inspection, before placement of concrete. Use this quick reference. Building Codes Harris County Texas.
From www.templateroller.com
Harris County, Texas AsBuilt Certificate Fill Out, Sign Online and Building Codes Harris County Texas Harris county has not adopted a full building code (see fire code review for commercial building requirements). Harris county residential building code standards. Use this quick reference guide to find regulations adopted by harris county throughout the years. • a foundation inspection, before placement of concrete. The houston building code 2021 is based on the international building code 2021 (ibc. Building Codes Harris County Texas.
From www.burningcompass.com
Harris County Zip Code Map HD Building Codes Harris County Texas Only applies to single family. Harris county currently adopted codes (as of september 1, 2019) building code 2018 ibc‐ only chapters 2‐10, with harris county. The houston building code 2021 is based on the international building code 2021 (ibc 2021) with amendments and additions. Infrastructure regulations, october 10, 2023 (updated for use with 2023 standards &. Use this quick reference. Building Codes Harris County Texas.
From thomasaojorie.pages.dev
Zip Code Map Of Harris County Tx Eunice Rosalinde Building Codes Harris County Texas Use this quick reference guide to find regulations adopted by harris county throughout the years. County agencies, business owners and other. The most recent set of codified ordinances that. • a foundation inspection, before placement of concrete. Harris county has not adopted a full building code (see fire code review for commercial building requirements). The online codes are for informational. Building Codes Harris County Texas.
From www.vrogue.co
Harris Zip Code Map Texas Harris County Zip Codes vrogue.co Building Codes Harris County Texas A minimum of three inspections shall be done during construction: The houston building code 2021 is based on the international building code 2021 (ibc 2021) with amendments and additions. Only applies to single family. The most recent set of codified ordinances that. Infrastructure regulations, october 10, 2023 (updated for use with 2023 standards &. County agencies, business owners and other.. Building Codes Harris County Texas.
From www.vrogue.co
Map Of Harris County Zip Codes Cities And Towns Map vrogue.co Building Codes Harris County Texas Use this quick reference guide to find regulations adopted by harris county throughout the years. Harris county residential building code standards. A minimum of three inspections shall be done during construction: The online codes are for informational and convenience purposes only. Only applies to single family. The houston building code 2021 is based on the international building code 2021 (ibc. Building Codes Harris County Texas.
From www.traditionalbuilding.com
Architexas Revived the Harris County Courthouse Historic Properties Building Codes Harris County Texas The online codes are for informational and convenience purposes only. Use this quick reference guide to find regulations adopted by harris county throughout the years. Harris county residential building code standards. • a foundation inspection, before placement of concrete. Infrastructure regulations, october 10, 2023 (updated for use with 2023 standards &. Harris county has not adopted a full building code. Building Codes Harris County Texas.
From wvcwinterswijk.nl
Printable Harris County Zip Code Map United States Map Building Codes Harris County Texas County agencies, business owners and other. Infrastructure regulations, october 10, 2023 (updated for use with 2023 standards &. Harris county currently adopted codes (as of september 1, 2019) building code 2018 ibc‐ only chapters 2‐10, with harris county. • a foundation inspection, before placement of concrete. Harris county has not adopted a full building code (see fire code review for. Building Codes Harris County Texas.
From wvcwinterswijk.nl
Harris County Texas Zip Code Map United States Map Building Codes Harris County Texas The online codes are for informational and convenience purposes only. Harris county currently adopted codes (as of september 1, 2019) building code 2018 ibc‐ only chapters 2‐10, with harris county. Harris county residential building code standards. The houston building code 2021 is based on the international building code 2021 (ibc 2021) with amendments and additions. Infrastructure regulations, october 10, 2023. Building Codes Harris County Texas.
From www.aiophotoz.com
Harris County Zip Codes List Of 251 Zip Codes In Harris County Texas Building Codes Harris County Texas • a foundation inspection, before placement of concrete. Harris county residential building code standards. Only applies to single family. Infrastructure regulations, october 10, 2023 (updated for use with 2023 standards &. Harris county currently adopted codes (as of september 1, 2019) building code 2018 ibc‐ only chapters 2‐10, with harris county. The houston building code 2021 is based on the. Building Codes Harris County Texas.
From www.tceq.texas.gov
Harris County Map Texas Commission on Environmental Quality www Building Codes Harris County Texas The houston building code 2021 is based on the international building code 2021 (ibc 2021) with amendments and additions. Harris county has not adopted a full building code (see fire code review for commercial building requirements). Harris county currently adopted codes (as of september 1, 2019) building code 2018 ibc‐ only chapters 2‐10, with harris county. Harris county residential building. Building Codes Harris County Texas.
From marlineopage.pages.dev
Zip Code Map Of Harris County Wanda Joscelin Building Codes Harris County Texas The most recent set of codified ordinances that. Use this quick reference guide to find regulations adopted by harris county throughout the years. The houston building code 2021 is based on the international building code 2021 (ibc 2021) with amendments and additions. Infrastructure regulations, october 10, 2023 (updated for use with 2023 standards &. Only applies to single family. The. Building Codes Harris County Texas.
From www.ubuy.co.in
Buy Harris County, Texas Zip Codes 48" x 36" Paper Wall Map Online at Building Codes Harris County Texas County agencies, business owners and other. Harris county currently adopted codes (as of september 1, 2019) building code 2018 ibc‐ only chapters 2‐10, with harris county. The houston building code 2021 is based on the international building code 2021 (ibc 2021) with amendments and additions. • a foundation inspection, before placement of concrete. The most recent set of codified ordinances. Building Codes Harris County Texas.
From citiesandtownsmap.blogspot.com
Map Of Harris County Zip Codes Cities And Towns Map Building Codes Harris County Texas A minimum of three inspections shall be done during construction: The houston building code 2021 is based on the international building code 2021 (ibc 2021) with amendments and additions. Harris county residential building code standards. Harris county has not adopted a full building code (see fire code review for commercial building requirements). Infrastructure regulations, october 10, 2023 (updated for use. Building Codes Harris County Texas.
From www.vrogue.co
Harris County Precinct Map Map Of Zip Codes vrogue.co Building Codes Harris County Texas Harris county residential building code standards. County agencies, business owners and other. The houston building code 2021 is based on the international building code 2021 (ibc 2021) with amendments and additions. The most recent set of codified ordinances that. Harris county currently adopted codes (as of september 1, 2019) building code 2018 ibc‐ only chapters 2‐10, with harris county. Use. Building Codes Harris County Texas.
From thomasaojorie.pages.dev
Zip Code Map Of Harris County Tx Eunice Rosalinde Building Codes Harris County Texas Only applies to single family. • a foundation inspection, before placement of concrete. The most recent set of codified ordinances that. The houston building code 2021 is based on the international building code 2021 (ibc 2021) with amendments and additions. A minimum of three inspections shall be done during construction: Harris county currently adopted codes (as of september 1, 2019). Building Codes Harris County Texas.
From www.marydunn.com
Maps Building Codes Harris County Texas • a foundation inspection, before placement of concrete. A minimum of three inspections shall be done during construction: The online codes are for informational and convenience purposes only. Harris county residential building code standards. Harris county has not adopted a full building code (see fire code review for commercial building requirements). Infrastructure regulations, october 10, 2023 (updated for use with. Building Codes Harris County Texas.
From thomasaojorie.pages.dev
Zip Code Map Of Harris County Tx Eunice Rosalinde Building Codes Harris County Texas Infrastructure regulations, october 10, 2023 (updated for use with 2023 standards &. The online codes are for informational and convenience purposes only. Harris county residential building code standards. Use this quick reference guide to find regulations adopted by harris county throughout the years. Only applies to single family. Harris county has not adopted a full building code (see fire code. Building Codes Harris County Texas.
From brigitteocarlye.pages.dev
Harris County Plat Maps Alaine Leonelle Building Codes Harris County Texas A minimum of three inspections shall be done during construction: Harris county currently adopted codes (as of september 1, 2019) building code 2018 ibc‐ only chapters 2‐10, with harris county. • a foundation inspection, before placement of concrete. The online codes are for informational and convenience purposes only. Only applies to single family. Harris county has not adopted a full. Building Codes Harris County Texas.
From wvcwinterswijk.nl
Printable Harris County Zip Code Map United States Map Building Codes Harris County Texas Only applies to single family. Infrastructure regulations, october 10, 2023 (updated for use with 2023 standards &. • a foundation inspection, before placement of concrete. The houston building code 2021 is based on the international building code 2021 (ibc 2021) with amendments and additions. A minimum of three inspections shall be done during construction: Harris county has not adopted a. Building Codes Harris County Texas.