How Much Does It Cost To Build A Casita In Arizona . phoenix residents citywide can now begin building backyard casitas or guesthouses, since the legalization that the city council approved. when you choose arizona casita builders to design and build the casita you envisioned, you are partnering with a team of. based on these factors, the total cost of building a casita in arizona can range from $80,000 to $250,000 or more. the cost of building a casita varies depending on various factors including size, design, and materials. on average, the construction costs for a casita in arizona range between $100 to $300 per square foot,. building a casita, or a small guest house, in arizona involves various factors that can influence the overall cost. Visit our cost to build a casita page for a detailed. building a new tiny home or casita in arizona can be frustrating, we like to take a direct approach to the design/build process by offering our customers a.
from arizonacasitabuilders.com
when you choose arizona casita builders to design and build the casita you envisioned, you are partnering with a team of. the cost of building a casita varies depending on various factors including size, design, and materials. Visit our cost to build a casita page for a detailed. on average, the construction costs for a casita in arizona range between $100 to $300 per square foot,. based on these factors, the total cost of building a casita in arizona can range from $80,000 to $250,000 or more. building a new tiny home or casita in arizona can be frustrating, we like to take a direct approach to the design/build process by offering our customers a. building a casita, or a small guest house, in arizona involves various factors that can influence the overall cost. phoenix residents citywide can now begin building backyard casitas or guesthouses, since the legalization that the city council approved.
Cost To Build A Casita Arizona Casita Builders
How Much Does It Cost To Build A Casita In Arizona on average, the construction costs for a casita in arizona range between $100 to $300 per square foot,. the cost of building a casita varies depending on various factors including size, design, and materials. when you choose arizona casita builders to design and build the casita you envisioned, you are partnering with a team of. based on these factors, the total cost of building a casita in arizona can range from $80,000 to $250,000 or more. on average, the construction costs for a casita in arizona range between $100 to $300 per square foot,. Visit our cost to build a casita page for a detailed. phoenix residents citywide can now begin building backyard casitas or guesthouses, since the legalization that the city council approved. building a new tiny home or casita in arizona can be frustrating, we like to take a direct approach to the design/build process by offering our customers a. building a casita, or a small guest house, in arizona involves various factors that can influence the overall cost.
From arizonacasitabuilders.com
Cost To Build A Casita Arizona Casita Builders How Much Does It Cost To Build A Casita In Arizona the cost of building a casita varies depending on various factors including size, design, and materials. phoenix residents citywide can now begin building backyard casitas or guesthouses, since the legalization that the city council approved. on average, the construction costs for a casita in arizona range between $100 to $300 per square foot,. when you choose. How Much Does It Cost To Build A Casita In Arizona.
From arizonacasitabuilders.com
Cost To Build A Casita Arizona Casita Builders How Much Does It Cost To Build A Casita In Arizona based on these factors, the total cost of building a casita in arizona can range from $80,000 to $250,000 or more. phoenix residents citywide can now begin building backyard casitas or guesthouses, since the legalization that the city council approved. Visit our cost to build a casita page for a detailed. building a casita, or a small. How Much Does It Cost To Build A Casita In Arizona.
From arizonacasitabuilders.com
Cost To Build A Casita Arizona Casita Builders How Much Does It Cost To Build A Casita In Arizona the cost of building a casita varies depending on various factors including size, design, and materials. building a new tiny home or casita in arizona can be frustrating, we like to take a direct approach to the design/build process by offering our customers a. Visit our cost to build a casita page for a detailed. building a. How Much Does It Cost To Build A Casita In Arizona.
From arizonacasitabuilders.com
Cost To Build A Casita Arizona Casita Builders How Much Does It Cost To Build A Casita In Arizona on average, the construction costs for a casita in arizona range between $100 to $300 per square foot,. phoenix residents citywide can now begin building backyard casitas or guesthouses, since the legalization that the city council approved. building a new tiny home or casita in arizona can be frustrating, we like to take a direct approach to. How Much Does It Cost To Build A Casita In Arizona.
From arizonacasitabuilders.com
Arizona Casita Builders If you can dream it, we can build it. How Much Does It Cost To Build A Casita In Arizona phoenix residents citywide can now begin building backyard casitas or guesthouses, since the legalization that the city council approved. building a casita, or a small guest house, in arizona involves various factors that can influence the overall cost. on average, the construction costs for a casita in arizona range between $100 to $300 per square foot,. . How Much Does It Cost To Build A Casita In Arizona.
From arizonacasitabuilders.com
Arizona Casita Builders If you can dream it, we can build it. How Much Does It Cost To Build A Casita In Arizona based on these factors, the total cost of building a casita in arizona can range from $80,000 to $250,000 or more. on average, the construction costs for a casita in arizona range between $100 to $300 per square foot,. Visit our cost to build a casita page for a detailed. phoenix residents citywide can now begin building. How Much Does It Cost To Build A Casita In Arizona.
From arizonacasitabuilders.com
Arizona Casita Builders If you can dream it, we can build it. How Much Does It Cost To Build A Casita In Arizona phoenix residents citywide can now begin building backyard casitas or guesthouses, since the legalization that the city council approved. when you choose arizona casita builders to design and build the casita you envisioned, you are partnering with a team of. based on these factors, the total cost of building a casita in arizona can range from $80,000. How Much Does It Cost To Build A Casita In Arizona.
From kobobuilding.com
Cost to build a casita in arizona kobo building How Much Does It Cost To Build A Casita In Arizona building a new tiny home or casita in arizona can be frustrating, we like to take a direct approach to the design/build process by offering our customers a. Visit our cost to build a casita page for a detailed. building a casita, or a small guest house, in arizona involves various factors that can influence the overall cost.. How Much Does It Cost To Build A Casita In Arizona.
From arizonacasitabuilders.com
Cost To Build A Casita Arizona Casita Builders How Much Does It Cost To Build A Casita In Arizona when you choose arizona casita builders to design and build the casita you envisioned, you are partnering with a team of. on average, the construction costs for a casita in arizona range between $100 to $300 per square foot,. Visit our cost to build a casita page for a detailed. based on these factors, the total cost. How Much Does It Cost To Build A Casita In Arizona.
From arizonacasitabuilders.com
Cost To Build A Casita Arizona Casita Builders How Much Does It Cost To Build A Casita In Arizona when you choose arizona casita builders to design and build the casita you envisioned, you are partnering with a team of. phoenix residents citywide can now begin building backyard casitas or guesthouses, since the legalization that the city council approved. the cost of building a casita varies depending on various factors including size, design, and materials. . How Much Does It Cost To Build A Casita In Arizona.
From arizonacasitabuilders.com
Cost To Build A Casita Arizona Casita Builders How Much Does It Cost To Build A Casita In Arizona based on these factors, the total cost of building a casita in arizona can range from $80,000 to $250,000 or more. when you choose arizona casita builders to design and build the casita you envisioned, you are partnering with a team of. building a casita, or a small guest house, in arizona involves various factors that can. How Much Does It Cost To Build A Casita In Arizona.
From arizonacasitabuilders.com
Cost To Build A Casita Arizona Casita Builders How Much Does It Cost To Build A Casita In Arizona building a new tiny home or casita in arizona can be frustrating, we like to take a direct approach to the design/build process by offering our customers a. phoenix residents citywide can now begin building backyard casitas or guesthouses, since the legalization that the city council approved. building a casita, or a small guest house, in arizona. How Much Does It Cost To Build A Casita In Arizona.
From arizonacasitabuilders.com
Cost To Build A Casita Arizona Casita Builders How Much Does It Cost To Build A Casita In Arizona based on these factors, the total cost of building a casita in arizona can range from $80,000 to $250,000 or more. the cost of building a casita varies depending on various factors including size, design, and materials. Visit our cost to build a casita page for a detailed. phoenix residents citywide can now begin building backyard casitas. How Much Does It Cost To Build A Casita In Arizona.
From arizonacasitabuilders.com
Cost To Build A Casita Arizona Casita Builders How Much Does It Cost To Build A Casita In Arizona based on these factors, the total cost of building a casita in arizona can range from $80,000 to $250,000 or more. building a casita, or a small guest house, in arizona involves various factors that can influence the overall cost. on average, the construction costs for a casita in arizona range between $100 to $300 per square. How Much Does It Cost To Build A Casita In Arizona.
From ardanconstruction.com
Why Build a Casita or ADU in Scottsdale ArDan Construction How Much Does It Cost To Build A Casita In Arizona phoenix residents citywide can now begin building backyard casitas or guesthouses, since the legalization that the city council approved. on average, the construction costs for a casita in arizona range between $100 to $300 per square foot,. based on these factors, the total cost of building a casita in arizona can range from $80,000 to $250,000 or. How Much Does It Cost To Build A Casita In Arizona.
From arizonacasitabuilders.com
Casita Builds Arizona Casita Builders How Much Does It Cost To Build A Casita In Arizona on average, the construction costs for a casita in arizona range between $100 to $300 per square foot,. based on these factors, the total cost of building a casita in arizona can range from $80,000 to $250,000 or more. building a casita, or a small guest house, in arizona involves various factors that can influence the overall. How Much Does It Cost To Build A Casita In Arizona.
From arizonacasitabuilders.com
Cost To Build A Casita Arizona Casita Builders How Much Does It Cost To Build A Casita In Arizona on average, the construction costs for a casita in arizona range between $100 to $300 per square foot,. building a casita, or a small guest house, in arizona involves various factors that can influence the overall cost. when you choose arizona casita builders to design and build the casita you envisioned, you are partnering with a team. How Much Does It Cost To Build A Casita In Arizona.
From arizonagaragebuilders.com
1 Arizona Casita Builders Top Quality Casita Builders of Arizona How Much Does It Cost To Build A Casita In Arizona when you choose arizona casita builders to design and build the casita you envisioned, you are partnering with a team of. phoenix residents citywide can now begin building backyard casitas or guesthouses, since the legalization that the city council approved. the cost of building a casita varies depending on various factors including size, design, and materials. . How Much Does It Cost To Build A Casita In Arizona.
From arizonacasitabuilders.com
Cost To Build A Casita Arizona Casita Builders How Much Does It Cost To Build A Casita In Arizona on average, the construction costs for a casita in arizona range between $100 to $300 per square foot,. phoenix residents citywide can now begin building backyard casitas or guesthouses, since the legalization that the city council approved. building a new tiny home or casita in arizona can be frustrating, we like to take a direct approach to. How Much Does It Cost To Build A Casita In Arizona.
From arizonacasitabuilders.com
Cost To Build A Casita Arizona Casita Builders How Much Does It Cost To Build A Casita In Arizona on average, the construction costs for a casita in arizona range between $100 to $300 per square foot,. based on these factors, the total cost of building a casita in arizona can range from $80,000 to $250,000 or more. when you choose arizona casita builders to design and build the casita you envisioned, you are partnering with. How Much Does It Cost To Build A Casita In Arizona.
From arizonacasitabuilders.com
Cost To Build A Casita Arizona Casita Builders How Much Does It Cost To Build A Casita In Arizona phoenix residents citywide can now begin building backyard casitas or guesthouses, since the legalization that the city council approved. the cost of building a casita varies depending on various factors including size, design, and materials. on average, the construction costs for a casita in arizona range between $100 to $300 per square foot,. based on these. How Much Does It Cost To Build A Casita In Arizona.
From buildersvilla.com
Cost to build a casita in az Builders Villa How Much Does It Cost To Build A Casita In Arizona on average, the construction costs for a casita in arizona range between $100 to $300 per square foot,. the cost of building a casita varies depending on various factors including size, design, and materials. phoenix residents citywide can now begin building backyard casitas or guesthouses, since the legalization that the city council approved. when you choose. How Much Does It Cost To Build A Casita In Arizona.
From kobobuilding.com
How much does a casita cost to build kobo building How Much Does It Cost To Build A Casita In Arizona the cost of building a casita varies depending on various factors including size, design, and materials. based on these factors, the total cost of building a casita in arizona can range from $80,000 to $250,000 or more. Visit our cost to build a casita page for a detailed. building a new tiny home or casita in arizona. How Much Does It Cost To Build A Casita In Arizona.
From arizonacasitabuilders.com
Cost To Build A Casita Arizona Casita Builders How Much Does It Cost To Build A Casita In Arizona the cost of building a casita varies depending on various factors including size, design, and materials. on average, the construction costs for a casita in arizona range between $100 to $300 per square foot,. based on these factors, the total cost of building a casita in arizona can range from $80,000 to $250,000 or more. phoenix. How Much Does It Cost To Build A Casita In Arizona.
From arizonacasitabuilders.com
Cost To Build A Casita Arizona Casita Builders How Much Does It Cost To Build A Casita In Arizona Visit our cost to build a casita page for a detailed. building a casita, or a small guest house, in arizona involves various factors that can influence the overall cost. building a new tiny home or casita in arizona can be frustrating, we like to take a direct approach to the design/build process by offering our customers a.. How Much Does It Cost To Build A Casita In Arizona.
From arizonacasitabuilders.com
Cost To Build A Casita Arizona Casita Builders How Much Does It Cost To Build A Casita In Arizona when you choose arizona casita builders to design and build the casita you envisioned, you are partnering with a team of. Visit our cost to build a casita page for a detailed. building a casita, or a small guest house, in arizona involves various factors that can influence the overall cost. on average, the construction costs for. How Much Does It Cost To Build A Casita In Arizona.
From arizonacasitabuilders.com
Cost To Build A Casita Arizona Casita Builders How Much Does It Cost To Build A Casita In Arizona the cost of building a casita varies depending on various factors including size, design, and materials. Visit our cost to build a casita page for a detailed. phoenix residents citywide can now begin building backyard casitas or guesthouses, since the legalization that the city council approved. building a casita, or a small guest house, in arizona involves. How Much Does It Cost To Build A Casita In Arizona.
From arizonacasitabuilders.com
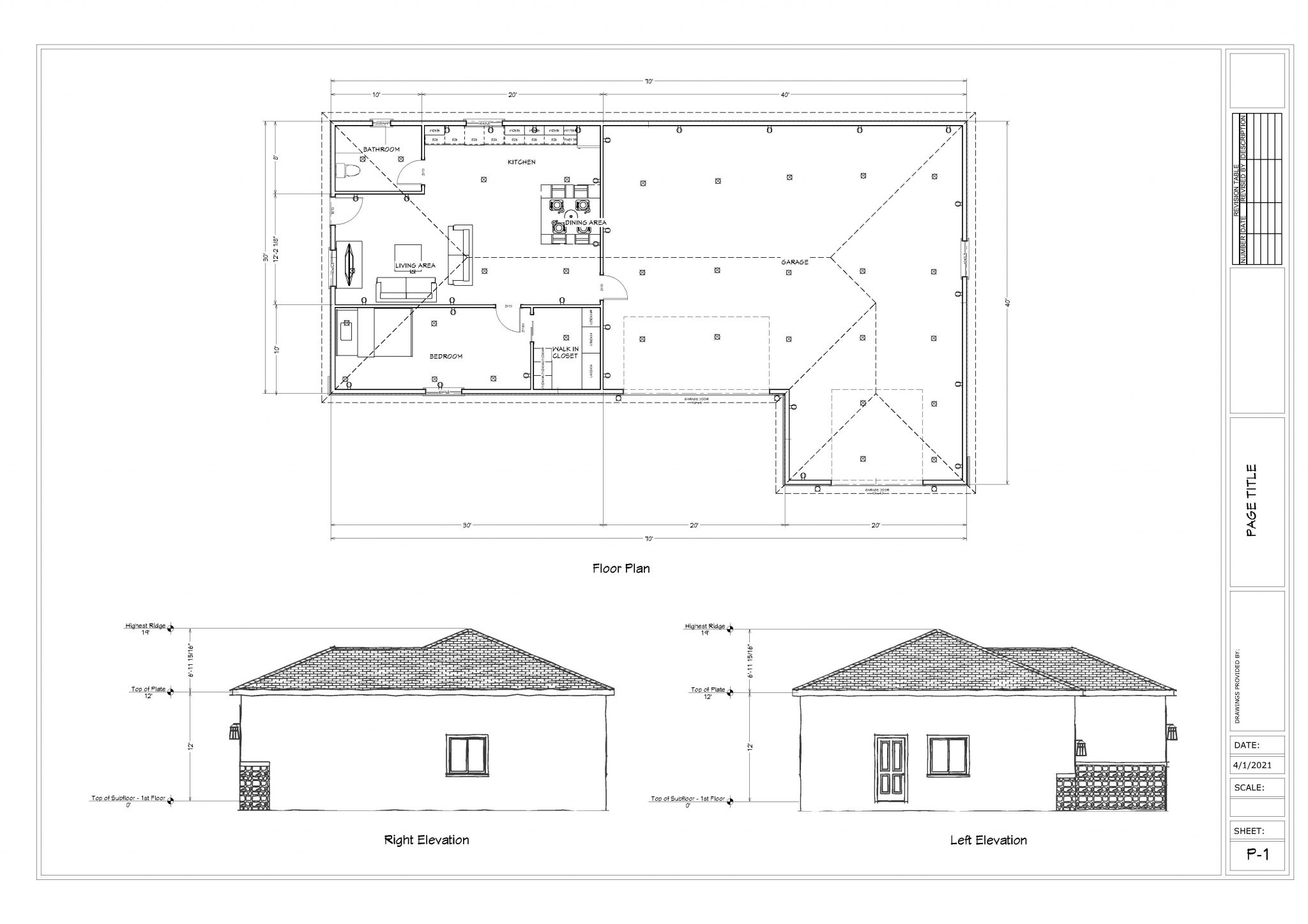
Casita Plans Arizona Casita Builders How Much Does It Cost To Build A Casita In Arizona on average, the construction costs for a casita in arizona range between $100 to $300 per square foot,. building a new tiny home or casita in arizona can be frustrating, we like to take a direct approach to the design/build process by offering our customers a. when you choose arizona casita builders to design and build the. How Much Does It Cost To Build A Casita In Arizona.
From arizonacasitabuilders.com
Cost To Build A Casita Arizona Casita Builders How Much Does It Cost To Build A Casita In Arizona the cost of building a casita varies depending on various factors including size, design, and materials. building a new tiny home or casita in arizona can be frustrating, we like to take a direct approach to the design/build process by offering our customers a. Visit our cost to build a casita page for a detailed. on average,. How Much Does It Cost To Build A Casita In Arizona.
From buildersvilla.com
Cost to build a casita in arizona Builders Villa How Much Does It Cost To Build A Casita In Arizona phoenix residents citywide can now begin building backyard casitas or guesthouses, since the legalization that the city council approved. the cost of building a casita varies depending on various factors including size, design, and materials. when you choose arizona casita builders to design and build the casita you envisioned, you are partnering with a team of. Visit. How Much Does It Cost To Build A Casita In Arizona.
From arizonagaragebuilders.com
Casita Builders Arizona Garage Builders How Much Does It Cost To Build A Casita In Arizona Visit our cost to build a casita page for a detailed. building a casita, or a small guest house, in arizona involves various factors that can influence the overall cost. phoenix residents citywide can now begin building backyard casitas or guesthouses, since the legalization that the city council approved. the cost of building a casita varies depending. How Much Does It Cost To Build A Casita In Arizona.
From arizonacasitabuilders.com
Casita Plans Arizona Casita Builders How Much Does It Cost To Build A Casita In Arizona based on these factors, the total cost of building a casita in arizona can range from $80,000 to $250,000 or more. building a casita, or a small guest house, in arizona involves various factors that can influence the overall cost. the cost of building a casita varies depending on various factors including size, design, and materials. . How Much Does It Cost To Build A Casita In Arizona.
From arizonacasitabuilders.com
Arizona Casita Builders If you can dream it, we can build it. How Much Does It Cost To Build A Casita In Arizona the cost of building a casita varies depending on various factors including size, design, and materials. Visit our cost to build a casita page for a detailed. when you choose arizona casita builders to design and build the casita you envisioned, you are partnering with a team of. based on these factors, the total cost of building. How Much Does It Cost To Build A Casita In Arizona.
From arizonacasitabuilders.com
Casita Builds Arizona Casita Builders How Much Does It Cost To Build A Casita In Arizona when you choose arizona casita builders to design and build the casita you envisioned, you are partnering with a team of. phoenix residents citywide can now begin building backyard casitas or guesthouses, since the legalization that the city council approved. building a new tiny home or casita in arizona can be frustrating, we like to take a. How Much Does It Cost To Build A Casita In Arizona.
From arizonacasitabuilders.com
Cost To Build A Casita Arizona Casita Builders How Much Does It Cost To Build A Casita In Arizona based on these factors, the total cost of building a casita in arizona can range from $80,000 to $250,000 or more. building a new tiny home or casita in arizona can be frustrating, we like to take a direct approach to the design/build process by offering our customers a. Visit our cost to build a casita page for. How Much Does It Cost To Build A Casita In Arizona.