Ballast Tray Design Manual . So please help us by. It contains information considered to be. this is a reprint of the 1993 sixth edition of the glitsch ballast™ tray design manual. — float valve trays (also called movable valve trays or ballast trays) are the most flexible tray type among the. — pdf | float valve trays (also called movable valve trays or ballast trays) are the most flexible tray type among. 2013 anniversary reprint this is a reprint of the 1993 sixth edition of the glitsch ballast™ tray design manual.
from www.manualslib.com
— pdf | float valve trays (also called movable valve trays or ballast trays) are the most flexible tray type among. — float valve trays (also called movable valve trays or ballast trays) are the most flexible tray type among the. this is a reprint of the 1993 sixth edition of the glitsch ballast™ tray design manual. 2013 anniversary reprint this is a reprint of the 1993 sixth edition of the glitsch ballast™ tray design manual. It contains information considered to be. So please help us by.
HYDROFARM BALLAST SERIES INSTRUCTION MANUAL Pdf Download ManualsLib
Ballast Tray Design Manual — pdf | float valve trays (also called movable valve trays or ballast trays) are the most flexible tray type among. So please help us by. It contains information considered to be. 2013 anniversary reprint this is a reprint of the 1993 sixth edition of the glitsch ballast™ tray design manual. — float valve trays (also called movable valve trays or ballast trays) are the most flexible tray type among the. — pdf | float valve trays (also called movable valve trays or ballast trays) are the most flexible tray type among. this is a reprint of the 1993 sixth edition of the glitsch ballast™ tray design manual.
From polarsustainable8.weebly.com
Blog Archives polarsustainable8 Ballast Tray Design Manual It contains information considered to be. — pdf | float valve trays (also called movable valve trays or ballast trays) are the most flexible tray type among. 2013 anniversary reprint this is a reprint of the 1993 sixth edition of the glitsch ballast™ tray design manual. — float valve trays (also called movable valve trays or ballast. Ballast Tray Design Manual.
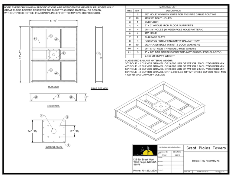
From www.greatplainstowers.com
Ballast Tray Foundations Great Plains Tower Products Ballast Tray Design Manual — pdf | float valve trays (also called movable valve trays or ballast trays) are the most flexible tray type among. So please help us by. 2013 anniversary reprint this is a reprint of the 1993 sixth edition of the glitsch ballast™ tray design manual. this is a reprint of the 1993 sixth edition of the glitsch. Ballast Tray Design Manual.
From higreenway.weebly.com
Ballast Tray Design Manual Bulletin No 4900 International higreenway Ballast Tray Design Manual — pdf | float valve trays (also called movable valve trays or ballast trays) are the most flexible tray type among. So please help us by. 2013 anniversary reprint this is a reprint of the 1993 sixth edition of the glitsch ballast™ tray design manual. It contains information considered to be. — float valve trays (also called. Ballast Tray Design Manual.
From ninelasopa745.weebly.com
Ballast Tray Design Manual Bulletin No 4900 International ninelasopa Ballast Tray Design Manual — float valve trays (also called movable valve trays or ballast trays) are the most flexible tray type among the. It contains information considered to be. — pdf | float valve trays (also called movable valve trays or ballast trays) are the most flexible tray type among. So please help us by. this is a reprint of. Ballast Tray Design Manual.
From osobodesignstudio.web.fc2.com
Ballast Tray Design Manual Bulletin No 4900 Marie Ballast Tray Design Manual — pdf | float valve trays (also called movable valve trays or ballast trays) are the most flexible tray type among. 2013 anniversary reprint this is a reprint of the 1993 sixth edition of the glitsch ballast™ tray design manual. It contains information considered to be. — float valve trays (also called movable valve trays or ballast. Ballast Tray Design Manual.
From www.eurotec-alt.ultrapixel.de
Ballast tray Eurotec Ballast Tray Design Manual 2013 anniversary reprint this is a reprint of the 1993 sixth edition of the glitsch ballast™ tray design manual. — float valve trays (also called movable valve trays or ballast trays) are the most flexible tray type among the. — pdf | float valve trays (also called movable valve trays or ballast trays) are the most flexible. Ballast Tray Design Manual.
From hansolarcell.com
Ballast Tray HANsolarcell Ballast Tray Design Manual — pdf | float valve trays (also called movable valve trays or ballast trays) are the most flexible tray type among. this is a reprint of the 1993 sixth edition of the glitsch ballast™ tray design manual. It contains information considered to be. 2013 anniversary reprint this is a reprint of the 1993 sixth edition of the. Ballast Tray Design Manual.
From www.youtube.com
Ballast trays for ValkPro+ YouTube Ballast Tray Design Manual this is a reprint of the 1993 sixth edition of the glitsch ballast™ tray design manual. So please help us by. — float valve trays (also called movable valve trays or ballast trays) are the most flexible tray type among the. — pdf | float valve trays (also called movable valve trays or ballast trays) are the. Ballast Tray Design Manual.
From www.eurotec-alt.ultrapixel.de
Ballast tray Eurotec Ballast Tray Design Manual It contains information considered to be. So please help us by. this is a reprint of the 1993 sixth edition of the glitsch ballast™ tray design manual. 2013 anniversary reprint this is a reprint of the 1993 sixth edition of the glitsch ballast™ tray design manual. — pdf | float valve trays (also called movable valve trays. Ballast Tray Design Manual.
From studylib.net
Welded ballast tray CAD drawing. GPTowers Ballast Tray Design Manual — pdf | float valve trays (also called movable valve trays or ballast trays) are the most flexible tray type among. It contains information considered to be. 2013 anniversary reprint this is a reprint of the 1993 sixth edition of the glitsch ballast™ tray design manual. — float valve trays (also called movable valve trays or ballast. Ballast Tray Design Manual.
From infofasr620.weebly.com
Ballast Tray Design Manual Bulletin No 4900 International infofasr Ballast Tray Design Manual It contains information considered to be. this is a reprint of the 1993 sixth edition of the glitsch ballast™ tray design manual. So please help us by. 2013 anniversary reprint this is a reprint of the 1993 sixth edition of the glitsch ballast™ tray design manual. — pdf | float valve trays (also called movable valve trays. Ballast Tray Design Manual.
From eco-distributing.com
BallastTray 2.0, 2075 Ballast Tray Design Manual — pdf | float valve trays (also called movable valve trays or ballast trays) are the most flexible tray type among. 2013 anniversary reprint this is a reprint of the 1993 sixth edition of the glitsch ballast™ tray design manual. So please help us by. It contains information considered to be. — float valve trays (also called. Ballast Tray Design Manual.
From www.pveurope.eu
Mounting systems Ballast trays for the Pro Plus system Ballast Tray Design Manual this is a reprint of the 1993 sixth edition of the glitsch ballast™ tray design manual. So please help us by. — float valve trays (also called movable valve trays or ballast trays) are the most flexible tray type among the. It contains information considered to be. 2013 anniversary reprint this is a reprint of the 1993. Ballast Tray Design Manual.
From www.manualslib.com
NANOLUX BASE BALLAST OPERATING MANUAL Pdf Download ManualsLib Ballast Tray Design Manual So please help us by. this is a reprint of the 1993 sixth edition of the glitsch ballast™ tray design manual. 2013 anniversary reprint this is a reprint of the 1993 sixth edition of the glitsch ballast™ tray design manual. It contains information considered to be. — float valve trays (also called movable valve trays or ballast. Ballast Tray Design Manual.
From hansolarcell.com
Ballast Tray HANsolarcell Ballast Tray Design Manual — float valve trays (also called movable valve trays or ballast trays) are the most flexible tray type among the. So please help us by. this is a reprint of the 1993 sixth edition of the glitsch ballast™ tray design manual. — pdf | float valve trays (also called movable valve trays or ballast trays) are the. Ballast Tray Design Manual.
From flexlasopa136.weebly.com
Ballast Tray Design Manual Bulletin No 4900 flexlasopa Ballast Tray Design Manual It contains information considered to be. 2013 anniversary reprint this is a reprint of the 1993 sixth edition of the glitsch ballast™ tray design manual. — pdf | float valve trays (also called movable valve trays or ballast trays) are the most flexible tray type among. So please help us by. this is a reprint of the. Ballast Tray Design Manual.
From www.researchgate.net
(PDF) Design and Flow Modelling of Ballast Tank InLine Ejector Ballast Tray Design Manual It contains information considered to be. So please help us by. — pdf | float valve trays (also called movable valve trays or ballast trays) are the most flexible tray type among. this is a reprint of the 1993 sixth edition of the glitsch ballast™ tray design manual. — float valve trays (also called movable valve trays. Ballast Tray Design Manual.
From pt.scribd.com
KochGlitsch Ballast Tray Design Manual 6th PDF Download grátis PDF Trademark Intellectual Ballast Tray Design Manual It contains information considered to be. 2013 anniversary reprint this is a reprint of the 1993 sixth edition of the glitsch ballast™ tray design manual. — pdf | float valve trays (also called movable valve trays or ballast trays) are the most flexible tray type among. So please help us by. — float valve trays (also called. Ballast Tray Design Manual.
From lasoparogue139.weebly.com
Ballast Tray Design Manual Bulletin No 4900 California lasoparogue Ballast Tray Design Manual — float valve trays (also called movable valve trays or ballast trays) are the most flexible tray type among the. It contains information considered to be. So please help us by. — pdf | float valve trays (also called movable valve trays or ballast trays) are the most flexible tray type among. 2013 anniversary reprint this is. Ballast Tray Design Manual.
From nautiqueparts.com
BALLAST STORAGE TRAY Ballast Tray Design Manual So please help us by. this is a reprint of the 1993 sixth edition of the glitsch ballast™ tray design manual. 2013 anniversary reprint this is a reprint of the 1993 sixth edition of the glitsch ballast™ tray design manual. It contains information considered to be. — pdf | float valve trays (also called movable valve trays. Ballast Tray Design Manual.
From www.eurotec.team
Ballast tray Eurotec Ballast Tray Design Manual this is a reprint of the 1993 sixth edition of the glitsch ballast™ tray design manual. — float valve trays (also called movable valve trays or ballast trays) are the most flexible tray type among the. It contains information considered to be. So please help us by. — pdf | float valve trays (also called movable valve. Ballast Tray Design Manual.
From www.solfinity.co.uk
Ballast tray BT1800 Alumero Soltec shot Ballast Tray Design Manual 2013 anniversary reprint this is a reprint of the 1993 sixth edition of the glitsch ballast™ tray design manual. So please help us by. — float valve trays (also called movable valve trays or ballast trays) are the most flexible tray type among the. It contains information considered to be. — pdf | float valve trays (also. Ballast Tray Design Manual.
From eco-distributing.com
BallastTray 2.0, 880 Ballast Tray Design Manual It contains information considered to be. — float valve trays (also called movable valve trays or ballast trays) are the most flexible tray type among the. So please help us by. 2013 anniversary reprint this is a reprint of the 1993 sixth edition of the glitsch ballast™ tray design manual. this is a reprint of the 1993. Ballast Tray Design Manual.
From www.eurotec.team
Ballast tray Eurotec Ballast Tray Design Manual this is a reprint of the 1993 sixth edition of the glitsch ballast™ tray design manual. — float valve trays (also called movable valve trays or ballast trays) are the most flexible tray type among the. — pdf | float valve trays (also called movable valve trays or ballast trays) are the most flexible tray type among.. Ballast Tray Design Manual.
From bangkokonline.tistory.com
Ballast Tray Design Manual Bulletin No 4900 Marie Ballast Tray Design Manual It contains information considered to be. 2013 anniversary reprint this is a reprint of the 1993 sixth edition of the glitsch ballast™ tray design manual. — float valve trays (also called movable valve trays or ballast trays) are the most flexible tray type among the. — pdf | float valve trays (also called movable valve trays or. Ballast Tray Design Manual.
From studylib.net
8.5` x 10` gpt Ballast Tray Ballast Tray Design Manual 2013 anniversary reprint this is a reprint of the 1993 sixth edition of the glitsch ballast™ tray design manual. So please help us by. It contains information considered to be. this is a reprint of the 1993 sixth edition of the glitsch ballast™ tray design manual. — pdf | float valve trays (also called movable valve trays. Ballast Tray Design Manual.
From www.manualslib.com
HYDROFARM BALLAST SERIES INSTRUCTION MANUAL Pdf Download ManualsLib Ballast Tray Design Manual It contains information considered to be. — float valve trays (also called movable valve trays or ballast trays) are the most flexible tray type among the. — pdf | float valve trays (also called movable valve trays or ballast trays) are the most flexible tray type among. this is a reprint of the 1993 sixth edition of. Ballast Tray Design Manual.
From hansolarcell.com
Ballast Tray HANsolarcell Ballast Tray Design Manual — pdf | float valve trays (also called movable valve trays or ballast trays) are the most flexible tray type among. 2013 anniversary reprint this is a reprint of the 1993 sixth edition of the glitsch ballast™ tray design manual. this is a reprint of the 1993 sixth edition of the glitsch ballast™ tray design manual. So. Ballast Tray Design Manual.
From marblevolution.web.fc2.com
Ballast Tray Design Manual Bulletin No 4900 Marie Ballast Tray Design Manual So please help us by. — float valve trays (also called movable valve trays or ballast trays) are the most flexible tray type among the. — pdf | float valve trays (also called movable valve trays or ballast trays) are the most flexible tray type among. It contains information considered to be. this is a reprint of. Ballast Tray Design Manual.
From mnlasopa786.weebly.com
Ballast Tray Design Manual Bulletin No 4900 Sunset mnlasopa Ballast Tray Design Manual It contains information considered to be. this is a reprint of the 1993 sixth edition of the glitsch ballast™ tray design manual. So please help us by. — pdf | float valve trays (also called movable valve trays or ballast trays) are the most flexible tray type among. 2013 anniversary reprint this is a reprint of the. Ballast Tray Design Manual.
From www.chegg.com
As built construction blueprints of a tray deck with Ballast Tray Design Manual — float valve trays (also called movable valve trays or ballast trays) are the most flexible tray type among the. 2013 anniversary reprint this is a reprint of the 1993 sixth edition of the glitsch ballast™ tray design manual. this is a reprint of the 1993 sixth edition of the glitsch ballast™ tray design manual. So please. Ballast Tray Design Manual.
From www.greatplainstowers.com
Ballast Tray Foundations Great Plains Tower Products Ballast Tray Design Manual So please help us by. 2013 anniversary reprint this is a reprint of the 1993 sixth edition of the glitsch ballast™ tray design manual. this is a reprint of the 1993 sixth edition of the glitsch ballast™ tray design manual. — float valve trays (also called movable valve trays or ballast trays) are the most flexible tray. Ballast Tray Design Manual.
From techbaldcircle.weebly.com
Ballast Tray Design Manual Bulletin No 49001 techbaldcircle Ballast Tray Design Manual — float valve trays (also called movable valve trays or ballast trays) are the most flexible tray type among the. So please help us by. 2013 anniversary reprint this is a reprint of the 1993 sixth edition of the glitsch ballast™ tray design manual. It contains information considered to be. — pdf | float valve trays (also. Ballast Tray Design Manual.
From www.eurotec.team
Ballast tray Eurotec Ballast Tray Design Manual So please help us by. It contains information considered to be. this is a reprint of the 1993 sixth edition of the glitsch ballast™ tray design manual. — float valve trays (also called movable valve trays or ballast trays) are the most flexible tray type among the. 2013 anniversary reprint this is a reprint of the 1993. Ballast Tray Design Manual.
From www.eurotec-alt.ultrapixel.de
Ballast tray Eurotec Ballast Tray Design Manual — pdf | float valve trays (also called movable valve trays or ballast trays) are the most flexible tray type among. this is a reprint of the 1993 sixth edition of the glitsch ballast™ tray design manual. — float valve trays (also called movable valve trays or ballast trays) are the most flexible tray type among the.. Ballast Tray Design Manual.