Arizona As Is Addendum . The terms of this addendum are hereby incorporated as part of the repc, and to the extent the terms of this addendum modify or conflict with any provisions of the repc, including all prior. As such, the “as is” clause acts as a sort of notice that the seller is making no promises to make repairs to the property or to provide any warranties on the property itself or any functionalities found on its premises before the sale takes place. According to the arizona court. The sole change to the. On june 1, 2021, a revised additional clause addendum will be released for use by all members. However, an “as is” clause in a purchase agreement does not allow a seller to disclaim all liability for the condition of real estate. A seller in arizona is required by law to disclose material information about the property that the seller actually and personally.
from www.youtube.com
On june 1, 2021, a revised additional clause addendum will be released for use by all members. However, an “as is” clause in a purchase agreement does not allow a seller to disclaim all liability for the condition of real estate. The terms of this addendum are hereby incorporated as part of the repc, and to the extent the terms of this addendum modify or conflict with any provisions of the repc, including all prior. As such, the “as is” clause acts as a sort of notice that the seller is making no promises to make repairs to the property or to provide any warranties on the property itself or any functionalities found on its premises before the sale takes place. According to the arizona court. The sole change to the. A seller in arizona is required by law to disclose material information about the property that the seller actually and personally.
AsktheBroker AAR's Buyer PreClosing Walkthrough form and the AsIs
Arizona As Is Addendum On june 1, 2021, a revised additional clause addendum will be released for use by all members. However, an “as is” clause in a purchase agreement does not allow a seller to disclaim all liability for the condition of real estate. The sole change to the. As such, the “as is” clause acts as a sort of notice that the seller is making no promises to make repairs to the property or to provide any warranties on the property itself or any functionalities found on its premises before the sale takes place. On june 1, 2021, a revised additional clause addendum will be released for use by all members. The terms of this addendum are hereby incorporated as part of the repc, and to the extent the terms of this addendum modify or conflict with any provisions of the repc, including all prior. A seller in arizona is required by law to disclose material information about the property that the seller actually and personally. According to the arizona court.
From www.pdffiller.com
Fillable Online ARIZONA ADDENDUM TO INDEMNITOR APPLICATION AND Arizona As Is Addendum The sole change to the. The terms of this addendum are hereby incorporated as part of the repc, and to the extent the terms of this addendum modify or conflict with any provisions of the repc, including all prior. As such, the “as is” clause acts as a sort of notice that the seller is making no promises to make. Arizona As Is Addendum.
From ipropertymanagement.com
Arizona Rental Lease Agreement Template [2024 ] PDF & DOC Arizona As Is Addendum A seller in arizona is required by law to disclose material information about the property that the seller actually and personally. As such, the “as is” clause acts as a sort of notice that the seller is making no promises to make repairs to the property or to provide any warranties on the property itself or any functionalities found on. Arizona As Is Addendum.
From www.dochub.com
Arizona row addendum rights of way Fill out & sign online DocHub Arizona As Is Addendum On june 1, 2021, a revised additional clause addendum will be released for use by all members. The sole change to the. As such, the “as is” clause acts as a sort of notice that the seller is making no promises to make repairs to the property or to provide any warranties on the property itself or any functionalities found. Arizona As Is Addendum.
From www.templateroller.com
AZPDES Form 2D Fill Out, Sign Online and Download Printable PDF Arizona As Is Addendum A seller in arizona is required by law to disclose material information about the property that the seller actually and personally. According to the arizona court. The sole change to the. The terms of this addendum are hereby incorporated as part of the repc, and to the extent the terms of this addendum modify or conflict with any provisions of. Arizona As Is Addendum.
From www.pdffiller.com
Fillable Online AS IS ADDENDUM THIS AS IS ADDENDUM (THE ADDENDUM Arizona As Is Addendum As such, the “as is” clause acts as a sort of notice that the seller is making no promises to make repairs to the property or to provide any warranties on the property itself or any functionalities found on its premises before the sale takes place. A seller in arizona is required by law to disclose material information about the. Arizona As Is Addendum.
From www.uslegalforms.com
Arizona Application for Change of Name for Family Addendum US Legal Forms Arizona As Is Addendum The terms of this addendum are hereby incorporated as part of the repc, and to the extent the terms of this addendum modify or conflict with any provisions of the repc, including all prior. However, an “as is” clause in a purchase agreement does not allow a seller to disclaim all liability for the condition of real estate. The sole. Arizona As Is Addendum.
From www.youtube.com
Real Estate Lead Based Paint Addendum for Arizona YouTube Arizona As Is Addendum The sole change to the. The terms of this addendum are hereby incorporated as part of the repc, and to the extent the terms of this addendum modify or conflict with any provisions of the repc, including all prior. A seller in arizona is required by law to disclose material information about the property that the seller actually and personally.. Arizona As Is Addendum.
From www.templateroller.com
Lease Addendum Template Fill Out, Sign Online and Download PDF Arizona As Is Addendum According to the arizona court. The sole change to the. A seller in arizona is required by law to disclose material information about the property that the seller actually and personally. On june 1, 2021, a revised additional clause addendum will be released for use by all members. As such, the “as is” clause acts as a sort of notice. Arizona As Is Addendum.
From www.templateroller.com
Arizona Fresh Fruit and Vegetable Program Addendum to the Food Program Arizona As Is Addendum According to the arizona court. On june 1, 2021, a revised additional clause addendum will be released for use by all members. As such, the “as is” clause acts as a sort of notice that the seller is making no promises to make repairs to the property or to provide any warranties on the property itself or any functionalities found. Arizona As Is Addendum.
From www.templateroller.com
Arizona SFA atRisk Afterschool Meals Responsible Principals Addendum Arizona As Is Addendum As such, the “as is” clause acts as a sort of notice that the seller is making no promises to make repairs to the property or to provide any warranties on the property itself or any functionalities found on its premises before the sale takes place. However, an “as is” clause in a purchase agreement does not allow a seller. Arizona As Is Addendum.
From ipropertymanagement.com
Arizona Rental Lease Agreement Template [2024 ] PDF & DOC Arizona As Is Addendum The terms of this addendum are hereby incorporated as part of the repc, and to the extent the terms of this addendum modify or conflict with any provisions of the repc, including all prior. A seller in arizona is required by law to disclose material information about the property that the seller actually and personally. The sole change to the.. Arizona As Is Addendum.
From www.templateroller.com
Arizona SFA atRisk Afterschool Meals Responsible Principals Addendum Arizona As Is Addendum A seller in arizona is required by law to disclose material information about the property that the seller actually and personally. The sole change to the. As such, the “as is” clause acts as a sort of notice that the seller is making no promises to make repairs to the property or to provide any warranties on the property itself. Arizona As Is Addendum.
From www.youtube.com
AsktheBroker AAR's Buyer PreClosing Walkthrough form and the AsIs Arizona As Is Addendum As such, the “as is” clause acts as a sort of notice that the seller is making no promises to make repairs to the property or to provide any warranties on the property itself or any functionalities found on its premises before the sale takes place. On june 1, 2021, a revised additional clause addendum will be released for use. Arizona As Is Addendum.
From edit-pdf.dochub.com
As is addendum form Fill out & sign online DocHub Arizona As Is Addendum According to the arizona court. On june 1, 2021, a revised additional clause addendum will be released for use by all members. The terms of this addendum are hereby incorporated as part of the repc, and to the extent the terms of this addendum modify or conflict with any provisions of the repc, including all prior. The sole change to. Arizona As Is Addendum.
From cashmanpartners.com
The Arizona Residential Real Estate Contract, New & Improved! Cashman Arizona As Is Addendum However, an “as is” clause in a purchase agreement does not allow a seller to disclaim all liability for the condition of real estate. On june 1, 2021, a revised additional clause addendum will be released for use by all members. According to the arizona court. As such, the “as is” clause acts as a sort of notice that the. Arizona As Is Addendum.
From www.youtube.com
HOA Addendum Arizona How to properly fill it out! YouTube Arizona As Is Addendum According to the arizona court. The terms of this addendum are hereby incorporated as part of the repc, and to the extent the terms of this addendum modify or conflict with any provisions of the repc, including all prior. On june 1, 2021, a revised additional clause addendum will be released for use by all members. As such, the “as. Arizona As Is Addendum.
From azmemory.azlibrary.gov
Southern Greenlee County small area transportation study Addendum to Arizona As Is Addendum On june 1, 2021, a revised additional clause addendum will be released for use by all members. As such, the “as is” clause acts as a sort of notice that the seller is making no promises to make repairs to the property or to provide any warranties on the property itself or any functionalities found on its premises before the. Arizona As Is Addendum.
From www.templateroller.com
Arizona Arizona Highly Qualified Attestation Form Addendum for Multi Arizona As Is Addendum On june 1, 2021, a revised additional clause addendum will be released for use by all members. According to the arizona court. As such, the “as is” clause acts as a sort of notice that the seller is making no promises to make repairs to the property or to provide any warranties on the property itself or any functionalities found. Arizona As Is Addendum.
From www.slideshare.net
As is addendum (raia) Arizona As Is Addendum On june 1, 2021, a revised additional clause addendum will be released for use by all members. The sole change to the. As such, the “as is” clause acts as a sort of notice that the seller is making no promises to make repairs to the property or to provide any warranties on the property itself or any functionalities found. Arizona As Is Addendum.
From chandlerrealestate.weebly.com
Home Seller Forms Arizona Troy Erickson Realtor Arizona As Is Addendum As such, the “as is” clause acts as a sort of notice that the seller is making no promises to make repairs to the property or to provide any warranties on the property itself or any functionalities found on its premises before the sale takes place. A seller in arizona is required by law to disclose material information about the. Arizona As Is Addendum.
From scottsdalerealestate.com
The as Is Addendum and What It Means When Buying a Home in Arizona Blog Arizona As Is Addendum A seller in arizona is required by law to disclose material information about the property that the seller actually and personally. The terms of this addendum are hereby incorporated as part of the repc, and to the extent the terms of this addendum modify or conflict with any provisions of the repc, including all prior. On june 1, 2021, a. Arizona As Is Addendum.
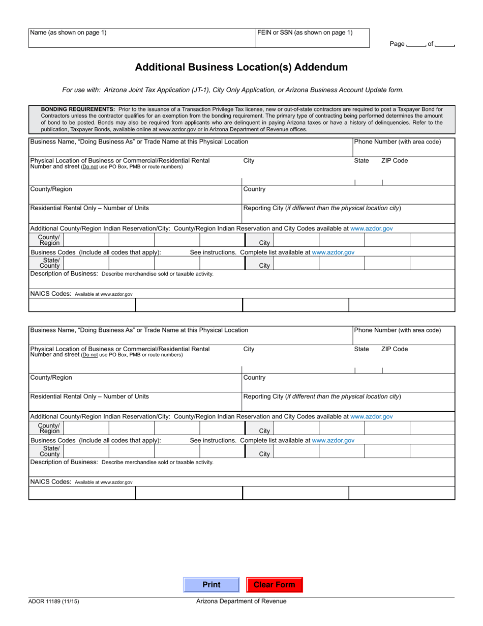
From www.templateroller.com
Form ADOR11189 Fill Out, Sign Online and Download Fillable PDF Arizona As Is Addendum On june 1, 2021, a revised additional clause addendum will be released for use by all members. A seller in arizona is required by law to disclose material information about the property that the seller actually and personally. The terms of this addendum are hereby incorporated as part of the repc, and to the extent the terms of this addendum. Arizona As Is Addendum.
From www.signnow.com
As is Rider with instructions airSlate SignNow Arizona As Is Addendum A seller in arizona is required by law to disclose material information about the property that the seller actually and personally. The terms of this addendum are hereby incorporated as part of the repc, and to the extent the terms of this addendum modify or conflict with any provisions of the repc, including all prior. However, an “as is” clause. Arizona As Is Addendum.
From esign.com
Free "As Is" Purchase Agreement Addendum PDF Word Arizona As Is Addendum However, an “as is” clause in a purchase agreement does not allow a seller to disclaim all liability for the condition of real estate. According to the arizona court. The terms of this addendum are hereby incorporated as part of the repc, and to the extent the terms of this addendum modify or conflict with any provisions of the repc,. Arizona As Is Addendum.
From www.templateroller.com
Arizona Addendum for Additional Pests/Diseases of Concern Fill Out Arizona As Is Addendum As such, the “as is” clause acts as a sort of notice that the seller is making no promises to make repairs to the property or to provide any warranties on the property itself or any functionalities found on its premises before the sale takes place. According to the arizona court. The terms of this addendum are hereby incorporated as. Arizona As Is Addendum.
From www.templateroller.com
Form ED102 Addendum A Fill Out, Sign Online and Download Fillable Arizona As Is Addendum A seller in arizona is required by law to disclose material information about the property that the seller actually and personally. As such, the “as is” clause acts as a sort of notice that the seller is making no promises to make repairs to the property or to provide any warranties on the property itself or any functionalities found on. Arizona As Is Addendum.
From www.uslegalforms.com
Arizona UCC3 Financing Statement Amendment Addendum Ucc 3 Addendum Arizona As Is Addendum On june 1, 2021, a revised additional clause addendum will be released for use by all members. However, an “as is” clause in a purchase agreement does not allow a seller to disclaim all liability for the condition of real estate. According to the arizona court. The sole change to the. As such, the “as is” clause acts as a. Arizona As Is Addendum.
From legaltemplates.net
Free Real Estate Purchase Agreement Addendum PDF & Word Arizona As Is Addendum However, an “as is” clause in a purchase agreement does not allow a seller to disclaim all liability for the condition of real estate. The sole change to the. The terms of this addendum are hereby incorporated as part of the repc, and to the extent the terms of this addendum modify or conflict with any provisions of the repc,. Arizona As Is Addendum.
From www.uslegalforms.com
Arizona Addendum To Apartment Lease regarding Smoke Detector Smoke Arizona As Is Addendum According to the arizona court. On june 1, 2021, a revised additional clause addendum will be released for use by all members. As such, the “as is” clause acts as a sort of notice that the seller is making no promises to make repairs to the property or to provide any warranties on the property itself or any functionalities found. Arizona As Is Addendum.
From www.youtube.com
Arizona Buyer Contingency Addendum, 2022 YouTube Arizona As Is Addendum On june 1, 2021, a revised additional clause addendum will be released for use by all members. The sole change to the. As such, the “as is” clause acts as a sort of notice that the seller is making no promises to make repairs to the property or to provide any warranties on the property itself or any functionalities found. Arizona As Is Addendum.
From www.templateroller.com
Arizona SFA atRisk Afterschool Meals Responsible Principals Addendum Arizona As Is Addendum As such, the “as is” clause acts as a sort of notice that the seller is making no promises to make repairs to the property or to provide any warranties on the property itself or any functionalities found on its premises before the sale takes place. The terms of this addendum are hereby incorporated as part of the repc, and. Arizona As Is Addendum.
From www.uslegalforms.com
Assumption Addendum to Real Estate Purchase Contract US Legal Forms Arizona As Is Addendum According to the arizona court. On june 1, 2021, a revised additional clause addendum will be released for use by all members. However, an “as is” clause in a purchase agreement does not allow a seller to disclaim all liability for the condition of real estate. The terms of this addendum are hereby incorporated as part of the repc, and. Arizona As Is Addendum.
From www.signnow.com
Az Addendum Complete with ease airSlate SignNow Arizona As Is Addendum According to the arizona court. The sole change to the. A seller in arizona is required by law to disclose material information about the property that the seller actually and personally. As such, the “as is” clause acts as a sort of notice that the seller is making no promises to make repairs to the property or to provide any. Arizona As Is Addendum.
From www.pdffiller.com
Fillable Online ARIZONA ADDENDUM TO BAIL BOND APPLICATION AND AGREEMENT Arizona As Is Addendum The terms of this addendum are hereby incorporated as part of the repc, and to the extent the terms of this addendum modify or conflict with any provisions of the repc, including all prior. According to the arizona court. The sole change to the. On june 1, 2021, a revised additional clause addendum will be released for use by all. Arizona As Is Addendum.
From www.pdffiller.com
Fillable Online Arizona Condominium Addendum Disclosure Form Fax Email Arizona As Is Addendum On june 1, 2021, a revised additional clause addendum will be released for use by all members. The sole change to the. The terms of this addendum are hereby incorporated as part of the repc, and to the extent the terms of this addendum modify or conflict with any provisions of the repc, including all prior. As such, the “as. Arizona As Is Addendum.