Fuel Distribution Plan . And more specifically, on managing inventory, route planning and optimization, and. To gain a relative advantage faster, timely logistics must be provided to our combat forces. To get the smart book, you have two options. In this blog post, we'll look at the challenges and strategies for success in the fuel distribution industry. Awareness of supply and demand flows, bottlenecks, interconnections, and interdependencies between supply chains is as important to disaster planning and. Our greatest sustainment challenge with fuel is distribution along extended lines of communication. Go to the us army petroleum center’s website here. Wholesale fuel distributors are reevaluating their supply chain strategies, diversifying sourcing options, and implementing contingency plans to mitigate disruptions caused. When you’re there, click on the yellow banner at the top, log in with your cac, and. Fuel shortage is one of the most critical issues on islands after a disaster.
from www.theceo.in
When you’re there, click on the yellow banner at the top, log in with your cac, and. To gain a relative advantage faster, timely logistics must be provided to our combat forces. And more specifically, on managing inventory, route planning and optimization, and. Go to the us army petroleum center’s website here. Awareness of supply and demand flows, bottlenecks, interconnections, and interdependencies between supply chains is as important to disaster planning and. Fuel shortage is one of the most critical issues on islands after a disaster. To get the smart book, you have two options. In this blog post, we'll look at the challenges and strategies for success in the fuel distribution industry. Wholesale fuel distributors are reevaluating their supply chain strategies, diversifying sourcing options, and implementing contingency plans to mitigate disruptions caused. Our greatest sustainment challenge with fuel is distribution along extended lines of communication.
Fuel Distribution
Fuel Distribution Plan Our greatest sustainment challenge with fuel is distribution along extended lines of communication. Our greatest sustainment challenge with fuel is distribution along extended lines of communication. Awareness of supply and demand flows, bottlenecks, interconnections, and interdependencies between supply chains is as important to disaster planning and. Go to the us army petroleum center’s website here. When you’re there, click on the yellow banner at the top, log in with your cac, and. To gain a relative advantage faster, timely logistics must be provided to our combat forces. Fuel shortage is one of the most critical issues on islands after a disaster. Wholesale fuel distributors are reevaluating their supply chain strategies, diversifying sourcing options, and implementing contingency plans to mitigate disruptions caused. To get the smart book, you have two options. And more specifically, on managing inventory, route planning and optimization, and. In this blog post, we'll look at the challenges and strategies for success in the fuel distribution industry.
From uplankajobs.com
LP Gas Distribution List 2022 Daily Updates Fuel Distribution Plan To gain a relative advantage faster, timely logistics must be provided to our combat forces. When you’re there, click on the yellow banner at the top, log in with your cac, and. Awareness of supply and demand flows, bottlenecks, interconnections, and interdependencies between supply chains is as important to disaster planning and. Our greatest sustainment challenge with fuel is distribution. Fuel Distribution Plan.
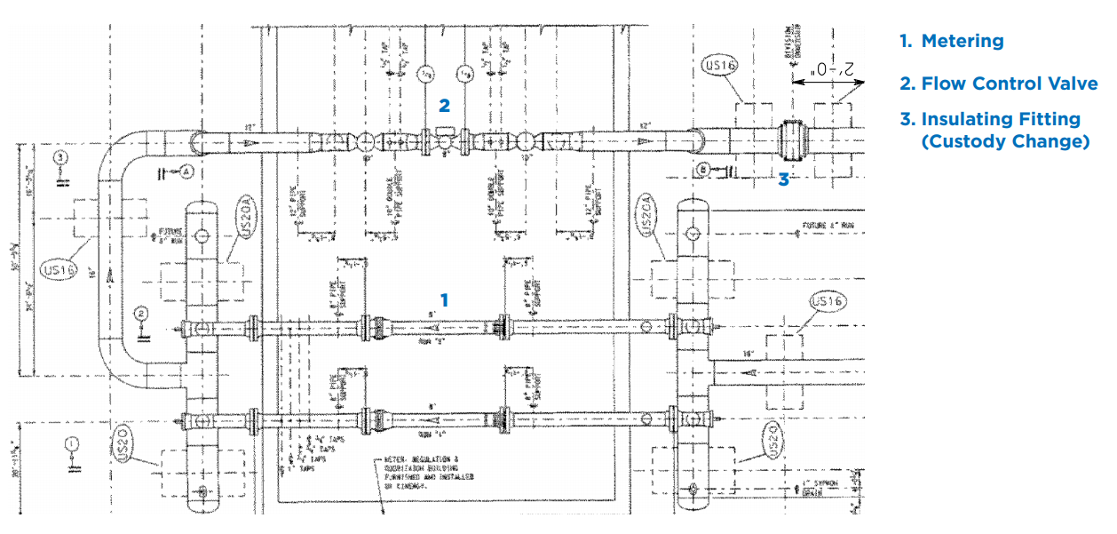
From www.petroplanz.com
Fueling Plans (Click to see more details) Fuel Distribution Plan When you’re there, click on the yellow banner at the top, log in with your cac, and. Wholesale fuel distributors are reevaluating their supply chain strategies, diversifying sourcing options, and implementing contingency plans to mitigate disruptions caused. Awareness of supply and demand flows, bottlenecks, interconnections, and interdependencies between supply chains is as important to disaster planning and. And more specifically,. Fuel Distribution Plan.
From thinger.io
Fuel Distribution Infrastructure Digitalization Thinger.io Fuel Distribution Plan In this blog post, we'll look at the challenges and strategies for success in the fuel distribution industry. Wholesale fuel distributors are reevaluating their supply chain strategies, diversifying sourcing options, and implementing contingency plans to mitigate disruptions caused. Awareness of supply and demand flows, bottlenecks, interconnections, and interdependencies between supply chains is as important to disaster planning and. When you’re. Fuel Distribution Plan.
From www.researchgate.net
Master Plan for Natural Gas Distribution Infrastructure Development Fuel Distribution Plan Our greatest sustainment challenge with fuel is distribution along extended lines of communication. Go to the us army petroleum center’s website here. Wholesale fuel distributors are reevaluating their supply chain strategies, diversifying sourcing options, and implementing contingency plans to mitigate disruptions caused. To get the smart book, you have two options. Awareness of supply and demand flows, bottlenecks, interconnections, and. Fuel Distribution Plan.
From mavink.com
Natural Gas Pipeline System Diagram Fuel Distribution Plan Fuel shortage is one of the most critical issues on islands after a disaster. Wholesale fuel distributors are reevaluating their supply chain strategies, diversifying sourcing options, and implementing contingency plans to mitigate disruptions caused. To get the smart book, you have two options. To gain a relative advantage faster, timely logistics must be provided to our combat forces. In this. Fuel Distribution Plan.
From www.scribd.com
Special Gas Distribution Plan 07 June 2022 PDF Fuel Distribution Plan Fuel shortage is one of the most critical issues on islands after a disaster. Wholesale fuel distributors are reevaluating their supply chain strategies, diversifying sourcing options, and implementing contingency plans to mitigate disruptions caused. In this blog post, we'll look at the challenges and strategies for success in the fuel distribution industry. Awareness of supply and demand flows, bottlenecks, interconnections,. Fuel Distribution Plan.
From www.researchgate.net
Fuel distribution (inland) flow chart Download Scientific Diagram Fuel Distribution Plan To gain a relative advantage faster, timely logistics must be provided to our combat forces. In this blog post, we'll look at the challenges and strategies for success in the fuel distribution industry. Awareness of supply and demand flows, bottlenecks, interconnections, and interdependencies between supply chains is as important to disaster planning and. Our greatest sustainment challenge with fuel is. Fuel Distribution Plan.
From www.altexsoft.com
Fuel Management System On the Road to Fuel Economy AltexSoft Fuel Distribution Plan And more specifically, on managing inventory, route planning and optimization, and. Go to the us army petroleum center’s website here. Fuel shortage is one of the most critical issues on islands after a disaster. Awareness of supply and demand flows, bottlenecks, interconnections, and interdependencies between supply chains is as important to disaster planning and. Our greatest sustainment challenge with fuel. Fuel Distribution Plan.
From electrical-engineering-portal.com
Typical electrical distribution scheme and SCADA system of an oil/gas Fuel Distribution Plan Wholesale fuel distributors are reevaluating their supply chain strategies, diversifying sourcing options, and implementing contingency plans to mitigate disruptions caused. To get the smart book, you have two options. And more specifically, on managing inventory, route planning and optimization, and. Go to the us army petroleum center’s website here. In this blog post, we'll look at the challenges and strategies. Fuel Distribution Plan.
From www.newswire.lk
Litro Gas distribution plan for Sunday 416 areas Newswire Fuel Distribution Plan And more specifically, on managing inventory, route planning and optimization, and. Our greatest sustainment challenge with fuel is distribution along extended lines of communication. Awareness of supply and demand flows, bottlenecks, interconnections, and interdependencies between supply chains is as important to disaster planning and. To get the smart book, you have two options. Fuel shortage is one of the most. Fuel Distribution Plan.
From www.bibliocad.com
Lp gas distribution center in AutoCAD CAD (226.53 KB) Bibliocad Fuel Distribution Plan To get the smart book, you have two options. Fuel shortage is one of the most critical issues on islands after a disaster. To gain a relative advantage faster, timely logistics must be provided to our combat forces. Wholesale fuel distributors are reevaluating their supply chain strategies, diversifying sourcing options, and implementing contingency plans to mitigate disruptions caused. When you’re. Fuel Distribution Plan.
From info.burnsmcd.com
White Paper Improving Natural Gas Distribution Systems to Ease Fuel Distribution Plan Awareness of supply and demand flows, bottlenecks, interconnections, and interdependencies between supply chains is as important to disaster planning and. To get the smart book, you have two options. When you’re there, click on the yellow banner at the top, log in with your cac, and. Our greatest sustainment challenge with fuel is distribution along extended lines of communication. Fuel. Fuel Distribution Plan.
From www.newswire.lk
Litro releases Gas distribution plan for Saturday Newswire Fuel Distribution Plan Awareness of supply and demand flows, bottlenecks, interconnections, and interdependencies between supply chains is as important to disaster planning and. Our greatest sustainment challenge with fuel is distribution along extended lines of communication. Fuel shortage is one of the most critical issues on islands after a disaster. And more specifically, on managing inventory, route planning and optimization, and. When you’re. Fuel Distribution Plan.
From thailand.swagelok.com
Gas Distribution System Swagelok Fuel Distribution Plan To get the smart book, you have two options. To gain a relative advantage faster, timely logistics must be provided to our combat forces. Awareness of supply and demand flows, bottlenecks, interconnections, and interdependencies between supply chains is as important to disaster planning and. In this blog post, we'll look at the challenges and strategies for success in the fuel. Fuel Distribution Plan.
From buzzer.lk
Litro Gas Distribution plan Today (23) Buzzer Fuel Distribution Plan Fuel shortage is one of the most critical issues on islands after a disaster. Our greatest sustainment challenge with fuel is distribution along extended lines of communication. In this blog post, we'll look at the challenges and strategies for success in the fuel distribution industry. Go to the us army petroleum center’s website here. Wholesale fuel distributors are reevaluating their. Fuel Distribution Plan.
From www.youtube.com
AW139 Fuel system distribution system explained how fuel flow in fuel Fuel Distribution Plan Our greatest sustainment challenge with fuel is distribution along extended lines of communication. Wholesale fuel distributors are reevaluating their supply chain strategies, diversifying sourcing options, and implementing contingency plans to mitigate disruptions caused. When you’re there, click on the yellow banner at the top, log in with your cac, and. And more specifically, on managing inventory, route planning and optimization,. Fuel Distribution Plan.
From ngridenergyworld.com
66731 Natural Gas Distribution System Activity National Grid Energy Fuel Distribution Plan And more specifically, on managing inventory, route planning and optimization, and. Fuel shortage is one of the most critical issues on islands after a disaster. To gain a relative advantage faster, timely logistics must be provided to our combat forces. In this blog post, we'll look at the challenges and strategies for success in the fuel distribution industry. Our greatest. Fuel Distribution Plan.
From www.researchgate.net
Motor fuel distribution system Download Scientific Diagram Fuel Distribution Plan Awareness of supply and demand flows, bottlenecks, interconnections, and interdependencies between supply chains is as important to disaster planning and. Fuel shortage is one of the most critical issues on islands after a disaster. Wholesale fuel distributors are reevaluating their supply chain strategies, diversifying sourcing options, and implementing contingency plans to mitigate disruptions caused. In this blog post, we'll look. Fuel Distribution Plan.
From www.ngte.co.uk
Pyestock Fuel Distribution Plan In this blog post, we'll look at the challenges and strategies for success in the fuel distribution industry. To get the smart book, you have two options. Our greatest sustainment challenge with fuel is distribution along extended lines of communication. When you’re there, click on the yellow banner at the top, log in with your cac, and. Wholesale fuel distributors. Fuel Distribution Plan.
From www.regionalresilience.org
Liquid Fuel Distribution Prioritization Planning Project Center for Fuel Distribution Plan Go to the us army petroleum center’s website here. To gain a relative advantage faster, timely logistics must be provided to our combat forces. Fuel shortage is one of the most critical issues on islands after a disaster. And more specifically, on managing inventory, route planning and optimization, and. Awareness of supply and demand flows, bottlenecks, interconnections, and interdependencies between. Fuel Distribution Plan.
From www.sei-ind.com
Fuel Storage and Distribution System (FSDS) SEI Industries LTD. Fuel Distribution Plan Go to the us army petroleum center’s website here. To get the smart book, you have two options. Awareness of supply and demand flows, bottlenecks, interconnections, and interdependencies between supply chains is as important to disaster planning and. And more specifically, on managing inventory, route planning and optimization, and. Our greatest sustainment challenge with fuel is distribution along extended lines. Fuel Distribution Plan.
From www.newkidscar.com
FUEL SYSTEM Car Anatomy Fuel Distribution Plan When you’re there, click on the yellow banner at the top, log in with your cac, and. Fuel shortage is one of the most critical issues on islands after a disaster. Our greatest sustainment challenge with fuel is distribution along extended lines of communication. To get the smart book, you have two options. In this blog post, we'll look at. Fuel Distribution Plan.
From thinger.io
Fuel Distribution Infrastructure Digitalization Thinger.io Fuel Distribution Plan Our greatest sustainment challenge with fuel is distribution along extended lines of communication. And more specifically, on managing inventory, route planning and optimization, and. Fuel shortage is one of the most critical issues on islands after a disaster. When you’re there, click on the yellow banner at the top, log in with your cac, and. Wholesale fuel distributors are reevaluating. Fuel Distribution Plan.
From www.researchgate.net
Schematic representation of fuel delivery system. Download Scientific Fuel Distribution Plan When you’re there, click on the yellow banner at the top, log in with your cac, and. Fuel shortage is one of the most critical issues on islands after a disaster. Awareness of supply and demand flows, bottlenecks, interconnections, and interdependencies between supply chains is as important to disaster planning and. Our greatest sustainment challenge with fuel is distribution along. Fuel Distribution Plan.
From sagemetering.com
Natural Gas Distribution Measurement (NonCustody Transfer) Fuel Distribution Plan Awareness of supply and demand flows, bottlenecks, interconnections, and interdependencies between supply chains is as important to disaster planning and. Our greatest sustainment challenge with fuel is distribution along extended lines of communication. Wholesale fuel distributors are reevaluating their supply chain strategies, diversifying sourcing options, and implementing contingency plans to mitigate disruptions caused. And more specifically, on managing inventory, route. Fuel Distribution Plan.
From www.haneflex.com
Aviation Ground Fueling Haneflex Singapore Fuel Distribution Plan Wholesale fuel distributors are reevaluating their supply chain strategies, diversifying sourcing options, and implementing contingency plans to mitigate disruptions caused. And more specifically, on managing inventory, route planning and optimization, and. When you’re there, click on the yellow banner at the top, log in with your cac, and. To gain a relative advantage faster, timely logistics must be provided to. Fuel Distribution Plan.
From www.vaporworx.com
Fuel Delivery 101 VaporWorx We Give You Gas Fuel Distribution Plan In this blog post, we'll look at the challenges and strategies for success in the fuel distribution industry. And more specifically, on managing inventory, route planning and optimization, and. To gain a relative advantage faster, timely logistics must be provided to our combat forces. Awareness of supply and demand flows, bottlenecks, interconnections, and interdependencies between supply chains is as important. Fuel Distribution Plan.
From www.ngte.co.uk
Pyestock Fuel Distribution Plan Wholesale fuel distributors are reevaluating their supply chain strategies, diversifying sourcing options, and implementing contingency plans to mitigate disruptions caused. Our greatest sustainment challenge with fuel is distribution along extended lines of communication. To gain a relative advantage faster, timely logistics must be provided to our combat forces. In this blog post, we'll look at the challenges and strategies for. Fuel Distribution Plan.
From newsin.asia
Litro Gas distribution plan Full list NewsIn.Asia Fuel Distribution Plan Our greatest sustainment challenge with fuel is distribution along extended lines of communication. Fuel shortage is one of the most critical issues on islands after a disaster. To gain a relative advantage faster, timely logistics must be provided to our combat forces. Go to the us army petroleum center’s website here. To get the smart book, you have two options.. Fuel Distribution Plan.
From www.mdpi.com
Energies Free FullText Development of a Numerical Method for Fuel Distribution Plan Our greatest sustainment challenge with fuel is distribution along extended lines of communication. To get the smart book, you have two options. When you’re there, click on the yellow banner at the top, log in with your cac, and. Go to the us army petroleum center’s website here. Fuel shortage is one of the most critical issues on islands after. Fuel Distribution Plan.
From 19january2021snapshot.epa.gov
GHGRP and the Oil and Gas Industry Greenhouse Gas Reporting Program Fuel Distribution Plan When you’re there, click on the yellow banner at the top, log in with your cac, and. To gain a relative advantage faster, timely logistics must be provided to our combat forces. Go to the us army petroleum center’s website here. Wholesale fuel distributors are reevaluating their supply chain strategies, diversifying sourcing options, and implementing contingency plans to mitigate disruptions. Fuel Distribution Plan.
From www.newswire.lk
Litro releases Gas distribution plan for Saturday Newswire Fuel Distribution Plan And more specifically, on managing inventory, route planning and optimization, and. Awareness of supply and demand flows, bottlenecks, interconnections, and interdependencies between supply chains is as important to disaster planning and. In this blog post, we'll look at the challenges and strategies for success in the fuel distribution industry. Our greatest sustainment challenge with fuel is distribution along extended lines. Fuel Distribution Plan.
From www.simform.com
Fuel Management System An efficient way to manage fuel consumption Fuel Distribution Plan When you’re there, click on the yellow banner at the top, log in with your cac, and. Awareness of supply and demand flows, bottlenecks, interconnections, and interdependencies between supply chains is as important to disaster planning and. Fuel shortage is one of the most critical issues on islands after a disaster. In this blog post, we'll look at the challenges. Fuel Distribution Plan.
From www.researchgate.net
Proposed natural gas distribution plan. Download HighQuality Fuel Distribution Plan Awareness of supply and demand flows, bottlenecks, interconnections, and interdependencies between supply chains is as important to disaster planning and. To gain a relative advantage faster, timely logistics must be provided to our combat forces. When you’re there, click on the yellow banner at the top, log in with your cac, and. In this blog post, we'll look at the. Fuel Distribution Plan.
From www.theceo.in
Fuel Distribution Fuel Distribution Plan Awareness of supply and demand flows, bottlenecks, interconnections, and interdependencies between supply chains is as important to disaster planning and. In this blog post, we'll look at the challenges and strategies for success in the fuel distribution industry. Fuel shortage is one of the most critical issues on islands after a disaster. And more specifically, on managing inventory, route planning. Fuel Distribution Plan.