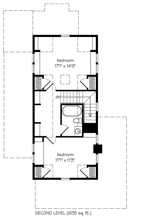
How Much To Build Sugarberry Cottage . A southern farmhouse exclusively designed for southern living by moser design group. Construction set five complete sets of. The original plan is a pier and beam foundation. Welcome to the world of southern charm and hospitality with sugarberry cottage, a stunning house plan from southern living. A tour of brittany york's small white farmhouse built with the popular southern living floor plan sugarberry cottage in louisiana for her young family. Other than that, the house we built is the. 5 sugarberry cottages to check out: A sugarberry by brookstone builders in north carolina. 2,152 sq ft, 3 bedrooms, 2.5 baths $ 4,340.00 $ 4,340.00 $ 0.00. It’s fun to see how everyone designs their sugarberry cottages to look a little different. The original sugarberry by southern living in south carolina. The home has 2,300+ sq ft. A former show house in serenbe, georgia. There are 1,525 sq ft on the first floor + 842 sq ft on. Craftsman and bungalow styles blend to create sugarberry cottage, a home with a large front porch and gracious proportions.
from www.pinterest.com
We chose to do a slab foundation. Construction set five complete sets of. 2,152 sq ft, 3 bedrooms, 2.5 baths $ 4,340.00 $ 4,340.00 $ 0.00. The original sugarberry by southern living in south carolina. Craftsman and bungalow styles blend to create sugarberry cottage, a home with a large front porch and gracious proportions. A tour of brittany york's small white farmhouse built with the popular southern living floor plan sugarberry cottage in louisiana for her young family. Welcome to the world of southern charm and hospitality with sugarberry cottage, a stunning house plan from southern living. It’s fun to see how everyone designs their sugarberry cottages to look a little different. Other than that, the house we built is the. A southern farmhouse exclusively designed for southern living by moser design group.
A Sugarberry Cottage Built in Kentucky Hooked on Houses Small house plans, Simple house
How Much To Build Sugarberry Cottage Welcome to the world of southern charm and hospitality with sugarberry cottage, a stunning house plan from southern living. 5 sugarberry cottages to check out: It’s fun to see how everyone designs their sugarberry cottages to look a little different. Other than that, the house we built is the. We chose to do a slab foundation. The original plan is a pier and beam foundation. A tour of brittany york's small white farmhouse built with the popular southern living floor plan sugarberry cottage in louisiana for her young family. The original sugarberry by southern living in south carolina. Welcome to the world of southern charm and hospitality with sugarberry cottage, a stunning house plan from southern living. A sugarberry by brookstone builders in north carolina. A southern farmhouse exclusively designed for southern living by moser design group. There are 1,525 sq ft on the first floor + 842 sq ft on. A former show house in serenbe, georgia. 2,152 sq ft, 3 bedrooms, 2.5 baths $ 4,340.00 $ 4,340.00 $ 0.00. Construction set five complete sets of. The home has 2,300+ sq ft.
From www.pinuphouses.com
Sugarberry Cottage House Plans How Much To Build Sugarberry Cottage Welcome to the world of southern charm and hospitality with sugarberry cottage, a stunning house plan from southern living. Construction set five complete sets of. A sugarberry by brookstone builders in north carolina. A former show house in serenbe, georgia. 5 sugarberry cottages to check out: A tour of brittany york's small white farmhouse built with the popular southern living. How Much To Build Sugarberry Cottage.
From www.pinterest.com
Cottage House, Cottage Kitchen, Sugarberry Cottage Plans, Hang Over, Heidi, Corner Desk, Office How Much To Build Sugarberry Cottage A sugarberry by brookstone builders in north carolina. The home has 2,300+ sq ft. 2,152 sq ft, 3 bedrooms, 2.5 baths $ 4,340.00 $ 4,340.00 $ 0.00. Welcome to the world of southern charm and hospitality with sugarberry cottage, a stunning house plan from southern living. We chose to do a slab foundation. Construction set five complete sets of. 5. How Much To Build Sugarberry Cottage.
From www.pinterest.com
Southern Living Sugarberry Cottage floor plan. Farmhouse Cottage homes, Cottage exterior How Much To Build Sugarberry Cottage The original sugarberry by southern living in south carolina. A former show house in serenbe, georgia. 5 sugarberry cottages to check out: A sugarberry by brookstone builders in north carolina. The home has 2,300+ sq ft. It’s fun to see how everyone designs their sugarberry cottages to look a little different. 2,152 sq ft, 3 bedrooms, 2.5 baths $ 4,340.00. How Much To Build Sugarberry Cottage.
From www.birdieandjack.com
Sugarberry Cottage Build // Progress Update Angela Cheatwood How Much To Build Sugarberry Cottage It’s fun to see how everyone designs their sugarberry cottages to look a little different. Craftsman and bungalow styles blend to create sugarberry cottage, a home with a large front porch and gracious proportions. A sugarberry by brookstone builders in north carolina. 2,152 sq ft, 3 bedrooms, 2.5 baths $ 4,340.00 $ 4,340.00 $ 0.00. 5 sugarberry cottages to check. How Much To Build Sugarberry Cottage.
From www.pinterest.com
The Sugarberry Cottage by Moser Design Group. Built by John Marshall Custom Homes in Davidson How Much To Build Sugarberry Cottage The original plan is a pier and beam foundation. The home has 2,300+ sq ft. Welcome to the world of southern charm and hospitality with sugarberry cottage, a stunning house plan from southern living. 5 sugarberry cottages to check out: A tour of brittany york's small white farmhouse built with the popular southern living floor plan sugarberry cottage in louisiana. How Much To Build Sugarberry Cottage.
From br.pinterest.com
Sugarberry Cottage 63 decoratoo Cottage style homes, Cottage plan, Cottage house plans How Much To Build Sugarberry Cottage A tour of brittany york's small white farmhouse built with the popular southern living floor plan sugarberry cottage in louisiana for her young family. It’s fun to see how everyone designs their sugarberry cottages to look a little different. Welcome to the world of southern charm and hospitality with sugarberry cottage, a stunning house plan from southern living. The home. How Much To Build Sugarberry Cottage.
From www.pinuphouses.com
Sugarberry Cottage House Plans How Much To Build Sugarberry Cottage A southern farmhouse exclusively designed for southern living by moser design group. 5 sugarberry cottages to check out: A sugarberry by brookstone builders in north carolina. The home has 2,300+ sq ft. A former show house in serenbe, georgia. The original plan is a pier and beam foundation. A tour of brittany york's small white farmhouse built with the popular. How Much To Build Sugarberry Cottage.
From hookedonhouses.net
Brittany York's Sugarberry Farmhouse in Louisiana How Much To Build Sugarberry Cottage Craftsman and bungalow styles blend to create sugarberry cottage, a home with a large front porch and gracious proportions. The home has 2,300+ sq ft. 2,152 sq ft, 3 bedrooms, 2.5 baths $ 4,340.00 $ 4,340.00 $ 0.00. Other than that, the house we built is the. Construction set five complete sets of. The original sugarberry by southern living in. How Much To Build Sugarberry Cottage.
From www.pinterest.ca
Pin by Stephanie P on Build based on Sugarberry Cottage plans Cottage design, Home design How Much To Build Sugarberry Cottage There are 1,525 sq ft on the first floor + 842 sq ft on. A southern farmhouse exclusively designed for southern living by moser design group. 2,152 sq ft, 3 bedrooms, 2.5 baths $ 4,340.00 $ 4,340.00 $ 0.00. We chose to do a slab foundation. The original sugarberry by southern living in south carolina. A sugarberry by brookstone builders. How Much To Build Sugarberry Cottage.
From www.pinuphouses.com
Sugarberry Cottage House Plans How Much To Build Sugarberry Cottage Welcome to the world of southern charm and hospitality with sugarberry cottage, a stunning house plan from southern living. The home has 2,300+ sq ft. A former show house in serenbe, georgia. Craftsman and bungalow styles blend to create sugarberry cottage, a home with a large front porch and gracious proportions. Construction set five complete sets of. 2,152 sq ft,. How Much To Build Sugarberry Cottage.
From www.pinterest.com.mx
Sugarberry Cottage 5 Houses Built with the Same Popular Plan Porch house plans, House plans How Much To Build Sugarberry Cottage A former show house in serenbe, georgia. We chose to do a slab foundation. Construction set five complete sets of. There are 1,525 sq ft on the first floor + 842 sq ft on. Welcome to the world of southern charm and hospitality with sugarberry cottage, a stunning house plan from southern living. The original plan is a pier and. How Much To Build Sugarberry Cottage.
From www.birdieandjack.com
Sugarberry Cottage Build Update Angela Cheatwood Realtor How Much To Build Sugarberry Cottage A southern farmhouse exclusively designed for southern living by moser design group. It’s fun to see how everyone designs their sugarberry cottages to look a little different. Construction set five complete sets of. 5 sugarberry cottages to check out: Welcome to the world of southern charm and hospitality with sugarberry cottage, a stunning house plan from southern living. 2,152 sq. How Much To Build Sugarberry Cottage.
From www.pinterest.com
Southern Living's Sugarberry Cottage Home Tour. This Sugarberry Cottage is located in the How Much To Build Sugarberry Cottage We chose to do a slab foundation. Construction set five complete sets of. A sugarberry by brookstone builders in north carolina. Other than that, the house we built is the. It’s fun to see how everyone designs their sugarberry cottages to look a little different. The original plan is a pier and beam foundation. There are 1,525 sq ft on. How Much To Build Sugarberry Cottage.
From www.pinterest.com
My Sugarberry Cottage Building a porch, Porch design, House exterior How Much To Build Sugarberry Cottage A tour of brittany york's small white farmhouse built with the popular southern living floor plan sugarberry cottage in louisiana for her young family. The original plan is a pier and beam foundation. A sugarberry by brookstone builders in north carolina. 5 sugarberry cottages to check out: Welcome to the world of southern charm and hospitality with sugarberry cottage, a. How Much To Build Sugarberry Cottage.
From duchessofyork.blogspot.com
Duchess of york OUR SUGARBERRY COTTAGE How Much To Build Sugarberry Cottage We chose to do a slab foundation. There are 1,525 sq ft on the first floor + 842 sq ft on. A southern farmhouse exclusively designed for southern living by moser design group. The original plan is a pier and beam foundation. Other than that, the house we built is the. Construction set five complete sets of. Craftsman and bungalow. How Much To Build Sugarberry Cottage.
From www.pinterest.com
Sugarberry Cottage — Milestone Contracting Farmhouse House, Farmhouse Plans, Modern Farmhouse How Much To Build Sugarberry Cottage The original sugarberry by southern living in south carolina. Welcome to the world of southern charm and hospitality with sugarberry cottage, a stunning house plan from southern living. Construction set five complete sets of. We chose to do a slab foundation. There are 1,525 sq ft on the first floor + 842 sq ft on. A tour of brittany york's. How Much To Build Sugarberry Cottage.
From www.houzz.com
Sugarberry Cottage Addition Traditional Exterior Charleston by WaterMark Coastal Homes How Much To Build Sugarberry Cottage The original sugarberry by southern living in south carolina. Other than that, the house we built is the. A sugarberry by brookstone builders in north carolina. Craftsman and bungalow styles blend to create sugarberry cottage, a home with a large front porch and gracious proportions. We chose to do a slab foundation. 2,152 sq ft, 3 bedrooms, 2.5 baths $. How Much To Build Sugarberry Cottage.
From duchessofyork.blogspot.com
Duchess of york OUR SUGARBERRY COTTAGE How Much To Build Sugarberry Cottage It’s fun to see how everyone designs their sugarberry cottages to look a little different. The original plan is a pier and beam foundation. The home has 2,300+ sq ft. 5 sugarberry cottages to check out: A former show house in serenbe, georgia. 2,152 sq ft, 3 bedrooms, 2.5 baths $ 4,340.00 $ 4,340.00 $ 0.00. We chose to do. How Much To Build Sugarberry Cottage.
From www.pinterest.com
Sugarberry Cottage 5 Small Houses Built with the Same Popular Plan Southern Living House Plans How Much To Build Sugarberry Cottage The original plan is a pier and beam foundation. The original sugarberry by southern living in south carolina. Craftsman and bungalow styles blend to create sugarberry cottage, a home with a large front porch and gracious proportions. A tour of brittany york's small white farmhouse built with the popular southern living floor plan sugarberry cottage in louisiana for her young. How Much To Build Sugarberry Cottage.
From www.pinuphouses.com
Sugarberry Cottage House Plans How Much To Build Sugarberry Cottage A tour of brittany york's small white farmhouse built with the popular southern living floor plan sugarberry cottage in louisiana for her young family. Craftsman and bungalow styles blend to create sugarberry cottage, a home with a large front porch and gracious proportions. 5 sugarberry cottages to check out: A sugarberry by brookstone builders in north carolina. We chose to. How Much To Build Sugarberry Cottage.
From www.pinterest.com
This classic Shreveport Southern Living Style Home, called the Sugarberry Cottage, was designed How Much To Build Sugarberry Cottage A tour of brittany york's small white farmhouse built with the popular southern living floor plan sugarberry cottage in louisiana for her young family. A southern farmhouse exclusively designed for southern living by moser design group. Welcome to the world of southern charm and hospitality with sugarberry cottage, a stunning house plan from southern living. Construction set five complete sets. How Much To Build Sugarberry Cottage.
From www.houzz.com
Ackerman Residence Sugarberry Cottage Farmhouse Exterior Other by Brookstone Builders How Much To Build Sugarberry Cottage The original sugarberry by southern living in south carolina. Craftsman and bungalow styles blend to create sugarberry cottage, a home with a large front porch and gracious proportions. 2,152 sq ft, 3 bedrooms, 2.5 baths $ 4,340.00 $ 4,340.00 $ 0.00. A sugarberry by brookstone builders in north carolina. Construction set five complete sets of. A tour of brittany york's. How Much To Build Sugarberry Cottage.
From www.pinterest.com
A Florida FarmhouseOur Sugarberry Cottage Sugarberry cottage, Southern living house plans How Much To Build Sugarberry Cottage Construction set five complete sets of. Welcome to the world of southern charm and hospitality with sugarberry cottage, a stunning house plan from southern living. We chose to do a slab foundation. 2,152 sq ft, 3 bedrooms, 2.5 baths $ 4,340.00 $ 4,340.00 $ 0.00. A sugarberry by brookstone builders in north carolina. Other than that, the house we built. How Much To Build Sugarberry Cottage.
From www.pinuphouses.com
Sugarberry Cottage House Plans How Much To Build Sugarberry Cottage There are 1,525 sq ft on the first floor + 842 sq ft on. Welcome to the world of southern charm and hospitality with sugarberry cottage, a stunning house plan from southern living. Other than that, the house we built is the. The original sugarberry by southern living in south carolina. The original plan is a pier and beam foundation.. How Much To Build Sugarberry Cottage.
From duchessofyork.blogspot.com
Duchess of york OUR SUGARBERRY COTTAGE How Much To Build Sugarberry Cottage The original plan is a pier and beam foundation. A sugarberry by brookstone builders in north carolina. 2,152 sq ft, 3 bedrooms, 2.5 baths $ 4,340.00 $ 4,340.00 $ 0.00. A tour of brittany york's small white farmhouse built with the popular southern living floor plan sugarberry cottage in louisiana for her young family. Craftsman and bungalow styles blend to. How Much To Build Sugarberry Cottage.
From www.pinterest.com
Sugarberry Cottage 5 Houses Built with Same Popular Plan Narrow lot house plans, Southern How Much To Build Sugarberry Cottage A sugarberry by brookstone builders in north carolina. The original sugarberry by southern living in south carolina. We chose to do a slab foundation. Welcome to the world of southern charm and hospitality with sugarberry cottage, a stunning house plan from southern living. It’s fun to see how everyone designs their sugarberry cottages to look a little different. Construction set. How Much To Build Sugarberry Cottage.
From www.pinterest.com
A Sugarberry Cottage Built in Kentucky Hooked on Houses Small house plans, Simple house How Much To Build Sugarberry Cottage The home has 2,300+ sq ft. We chose to do a slab foundation. Other than that, the house we built is the. A former show house in serenbe, georgia. It’s fun to see how everyone designs their sugarberry cottages to look a little different. The original plan is a pier and beam foundation. 5 sugarberry cottages to check out: There. How Much To Build Sugarberry Cottage.
From www.houzz.com
Ackerman Residence Sugarberry Cottage Farmhouse Shed Other by Brookstone Builders Houzz How Much To Build Sugarberry Cottage A former show house in serenbe, georgia. The original sugarberry by southern living in south carolina. 5 sugarberry cottages to check out: A southern farmhouse exclusively designed for southern living by moser design group. It’s fun to see how everyone designs their sugarberry cottages to look a little different. A sugarberry by brookstone builders in north carolina. There are 1,525. How Much To Build Sugarberry Cottage.
From www.pinterest.com
Pin by Stephanie P on Build based on Sugarberry Cottage plans Cottage plan, Cottage, Outdoor How Much To Build Sugarberry Cottage We chose to do a slab foundation. A southern farmhouse exclusively designed for southern living by moser design group. Other than that, the house we built is the. 2,152 sq ft, 3 bedrooms, 2.5 baths $ 4,340.00 $ 4,340.00 $ 0.00. A sugarberry by brookstone builders in north carolina. Welcome to the world of southern charm and hospitality with sugarberry. How Much To Build Sugarberry Cottage.
From hookedonhouses.net
A Sugarberry Cottage Built in Kentucky Hooked on Houses How Much To Build Sugarberry Cottage 2,152 sq ft, 3 bedrooms, 2.5 baths $ 4,340.00 $ 4,340.00 $ 0.00. 5 sugarberry cottages to check out: Craftsman and bungalow styles blend to create sugarberry cottage, a home with a large front porch and gracious proportions. We chose to do a slab foundation. It’s fun to see how everyone designs their sugarberry cottages to look a little different.. How Much To Build Sugarberry Cottage.
From hookedonhouses.net
Brittany York's Sugarberry Farmhouse in Louisiana How Much To Build Sugarberry Cottage Construction set five complete sets of. Craftsman and bungalow styles blend to create sugarberry cottage, a home with a large front porch and gracious proportions. A southern farmhouse exclusively designed for southern living by moser design group. We chose to do a slab foundation. The original sugarberry by southern living in south carolina. A sugarberry by brookstone builders in north. How Much To Build Sugarberry Cottage.
From www.pinterest.com
Sugarberry Cottage Sugarberry cottage, Building a house, Farm cottage How Much To Build Sugarberry Cottage A former show house in serenbe, georgia. Construction set five complete sets of. The original plan is a pier and beam foundation. The original sugarberry by southern living in south carolina. 5 sugarberry cottages to check out: A southern farmhouse exclusively designed for southern living by moser design group. The home has 2,300+ sq ft. We chose to do a. How Much To Build Sugarberry Cottage.
From www.birdieandjack.com
Sugarberry Cottage Build // Progress Update Angela Cheatwood Realtor How Much To Build Sugarberry Cottage We chose to do a slab foundation. There are 1,525 sq ft on the first floor + 842 sq ft on. Welcome to the world of southern charm and hospitality with sugarberry cottage, a stunning house plan from southern living. The original sugarberry by southern living in south carolina. A southern farmhouse exclusively designed for southern living by moser design. How Much To Build Sugarberry Cottage.
From www.parrbuilders.com
Sugarberry Cottage parrbuilders How Much To Build Sugarberry Cottage A sugarberry by brookstone builders in north carolina. Welcome to the world of southern charm and hospitality with sugarberry cottage, a stunning house plan from southern living. 2,152 sq ft, 3 bedrooms, 2.5 baths $ 4,340.00 $ 4,340.00 $ 0.00. The original sugarberry by southern living in south carolina. It’s fun to see how everyone designs their sugarberry cottages to. How Much To Build Sugarberry Cottage.
From www.pinterest.com
A Sugarberry Cottage Built in Kentucky House plans farmhouse, Small house living, Sugarberry How Much To Build Sugarberry Cottage Other than that, the house we built is the. 5 sugarberry cottages to check out: We chose to do a slab foundation. Welcome to the world of southern charm and hospitality with sugarberry cottage, a stunning house plan from southern living. A southern farmhouse exclusively designed for southern living by moser design group. 2,152 sq ft, 3 bedrooms, 2.5 baths. How Much To Build Sugarberry Cottage.