International Building Code With Georgia Amendments . The ibc, irc, ipc, imc, ifgc, iecc, and ispsc were adopted, with georgia amendments. The provisions of the georgia state minimum standard building code shall apply to the construction, alteration, relocation, enlargement,. The international building code ® (ibc ®) is a model code that provides minimum requirements to safeguard the public health, safety and general. The international building code as published by the international code council) and a set of georgia amendments to the base code. The provisions of the georgia state minimum standard building code shall apply to the construction, alteration, relocation, enlargement,. The international existing building code, 2018 edition, published by the international code council, when used in conjunction with these and. There are georgia amendments to the codes, above. The georgia amendments, which include the disaster. Georgia state minimum standard building code (international building code with georgia state amendments) the. National green building standard, 2008 edition, with georgia amendments.
from codes.iccsafe.org
National green building standard, 2008 edition, with georgia amendments. The provisions of the georgia state minimum standard building code shall apply to the construction, alteration, relocation, enlargement,. The international building code as published by the international code council) and a set of georgia amendments to the base code. The international existing building code, 2018 edition, published by the international code council, when used in conjunction with these and. Georgia state minimum standard building code (international building code with georgia state amendments) the. The international building code ® (ibc ®) is a model code that provides minimum requirements to safeguard the public health, safety and general. The provisions of the georgia state minimum standard building code shall apply to the construction, alteration, relocation, enlargement,. The georgia amendments, which include the disaster. The ibc, irc, ipc, imc, ifgc, iecc, and ispsc were adopted, with georgia amendments. There are georgia amendments to the codes, above.
Digital Codes
International Building Code With Georgia Amendments The ibc, irc, ipc, imc, ifgc, iecc, and ispsc were adopted, with georgia amendments. The georgia amendments, which include the disaster. There are georgia amendments to the codes, above. National green building standard, 2008 edition, with georgia amendments. The international building code as published by the international code council) and a set of georgia amendments to the base code. The international building code ® (ibc ®) is a model code that provides minimum requirements to safeguard the public health, safety and general. The ibc, irc, ipc, imc, ifgc, iecc, and ispsc were adopted, with georgia amendments. The provisions of the georgia state minimum standard building code shall apply to the construction, alteration, relocation, enlargement,. The provisions of the georgia state minimum standard building code shall apply to the construction, alteration, relocation, enlargement,. The international existing building code, 2018 edition, published by the international code council, when used in conjunction with these and. Georgia state minimum standard building code (international building code with georgia state amendments) the.
From www.operance.app
Enhancing Building Safety Regulations A Comprehensive Review of Recent International Building Code With Georgia Amendments The provisions of the georgia state minimum standard building code shall apply to the construction, alteration, relocation, enlargement,. The international existing building code, 2018 edition, published by the international code council, when used in conjunction with these and. Georgia state minimum standard building code (international building code with georgia state amendments) the. The georgia amendments, which include the disaster. There. International Building Code With Georgia Amendments.
From www.ryantaylorarchitects.com
Starting Building Code Amendment Process — Ryan Taylor International Building Code With Georgia Amendments The provisions of the georgia state minimum standard building code shall apply to the construction, alteration, relocation, enlargement,. The international existing building code, 2018 edition, published by the international code council, when used in conjunction with these and. The georgia amendments, which include the disaster. The international building code ® (ibc ®) is a model code that provides minimum requirements. International Building Code With Georgia Amendments.
From www.slideserve.com
PPT Presented by Brandon L. Bowen Jenkins & Bowen, P.C. 15 South International Building Code With Georgia Amendments The international existing building code, 2018 edition, published by the international code council, when used in conjunction with these and. The international building code as published by the international code council) and a set of georgia amendments to the base code. There are georgia amendments to the codes, above. The provisions of the georgia state minimum standard building code shall. International Building Code With Georgia Amendments.
From www.pdffiller.com
Fillable Online sos ga State Amendments to the International International Building Code With Georgia Amendments The provisions of the georgia state minimum standard building code shall apply to the construction, alteration, relocation, enlargement,. The international building code as published by the international code council) and a set of georgia amendments to the base code. There are georgia amendments to the codes, above. The georgia amendments, which include the disaster. The international existing building code, 2018. International Building Code With Georgia Amendments.
From www.ryansoames.com
Changes to the Florida Building Code Take Effect by Year’s End How International Building Code With Georgia Amendments There are georgia amendments to the codes, above. National green building standard, 2008 edition, with georgia amendments. The international building code as published by the international code council) and a set of georgia amendments to the base code. Georgia state minimum standard building code (international building code with georgia state amendments) the. The georgia amendments, which include the disaster. The. International Building Code With Georgia Amendments.
From exocbllvz.blob.core.windows.net
International Building Code at Eli Walker blog International Building Code With Georgia Amendments The provisions of the georgia state minimum standard building code shall apply to the construction, alteration, relocation, enlargement,. The international building code as published by the international code council) and a set of georgia amendments to the base code. The international building code ® (ibc ®) is a model code that provides minimum requirements to safeguard the public health, safety. International Building Code With Georgia Amendments.
From 2024.examprep.org
Amendments to 2018 IRC, IBC, and IECC (PDF) 2020 International Building Code With Georgia Amendments The international existing building code, 2018 edition, published by the international code council, when used in conjunction with these and. Georgia state minimum standard building code (international building code with georgia state amendments) the. The ibc, irc, ipc, imc, ifgc, iecc, and ispsc were adopted, with georgia amendments. The provisions of the georgia state minimum standard building code shall apply. International Building Code With Georgia Amendments.
From www.ecmweb.com
Adopts New Building Codes in 2020 EC&M International Building Code With Georgia Amendments National green building standard, 2008 edition, with georgia amendments. The ibc, irc, ipc, imc, ifgc, iecc, and ispsc were adopted, with georgia amendments. The provisions of the georgia state minimum standard building code shall apply to the construction, alteration, relocation, enlargement,. The georgia amendments, which include the disaster. Georgia state minimum standard building code (international building code with georgia state. International Building Code With Georgia Amendments.
From codes.iccsafe.org
CHAPTER 16 STRUCTURAL DESIGN 2018 INTERNATIONAL BUILDING CODE WITH International Building Code With Georgia Amendments The georgia amendments, which include the disaster. National green building standard, 2008 edition, with georgia amendments. The international existing building code, 2018 edition, published by the international code council, when used in conjunction with these and. The international building code ® (ibc ®) is a model code that provides minimum requirements to safeguard the public health, safety and general. The. International Building Code With Georgia Amendments.
From www.aiacolumbus.org
Focus on Accessibility and Existing Building Code Overview of the 2021 International Building Code With Georgia Amendments The ibc, irc, ipc, imc, ifgc, iecc, and ispsc were adopted, with georgia amendments. The international existing building code, 2018 edition, published by the international code council, when used in conjunction with these and. Georgia state minimum standard building code (international building code with georgia state amendments) the. The international building code as published by the international code council) and. International Building Code With Georgia Amendments.
From contractortrainingcenter.com
State Amendments to Statewide Minimum Standard Codes International Building Code With Georgia Amendments The provisions of the georgia state minimum standard building code shall apply to the construction, alteration, relocation, enlargement,. National green building standard, 2008 edition, with georgia amendments. The international building code ® (ibc ®) is a model code that provides minimum requirements to safeguard the public health, safety and general. The provisions of the georgia state minimum standard building code. International Building Code With Georgia Amendments.
From www.scribd.com
2018 Connecticut State Building Code Amendments to the 2015 International Building Code With Georgia Amendments The provisions of the georgia state minimum standard building code shall apply to the construction, alteration, relocation, enlargement,. The provisions of the georgia state minimum standard building code shall apply to the construction, alteration, relocation, enlargement,. The international existing building code, 2018 edition, published by the international code council, when used in conjunction with these and. There are georgia amendments. International Building Code With Georgia Amendments.
From terzaingaborg.pages.dev
International Building Code 2024 Release Date Karie Marleen International Building Code With Georgia Amendments The ibc, irc, ipc, imc, ifgc, iecc, and ispsc were adopted, with georgia amendments. Georgia state minimum standard building code (international building code with georgia state amendments) the. The provisions of the georgia state minimum standard building code shall apply to the construction, alteration, relocation, enlargement,. The international building code as published by the international code council) and a set. International Building Code With Georgia Amendments.
From studylib.net
State Amendments to the National Electrical Code (2008 International Building Code With Georgia Amendments The ibc, irc, ipc, imc, ifgc, iecc, and ispsc were adopted, with georgia amendments. The international building code ® (ibc ®) is a model code that provides minimum requirements to safeguard the public health, safety and general. Georgia state minimum standard building code (international building code with georgia state amendments) the. There are georgia amendments to the codes, above. The. International Building Code With Georgia Amendments.
From studylib.net
State Amendments to the International Building Code International Building Code With Georgia Amendments The international building code ® (ibc ®) is a model code that provides minimum requirements to safeguard the public health, safety and general. There are georgia amendments to the codes, above. The ibc, irc, ipc, imc, ifgc, iecc, and ispsc were adopted, with georgia amendments. National green building standard, 2008 edition, with georgia amendments. Georgia state minimum standard building code. International Building Code With Georgia Amendments.
From codes.iccsafe.org
CHAPTER 16 STRUCTURAL DESIGN 2018 INTERNATIONAL BUILDING CODE WITH International Building Code With Georgia Amendments The international building code as published by the international code council) and a set of georgia amendments to the base code. There are georgia amendments to the codes, above. The ibc, irc, ipc, imc, ifgc, iecc, and ispsc were adopted, with georgia amendments. The international building code ® (ibc ®) is a model code that provides minimum requirements to safeguard. International Building Code With Georgia Amendments.
From exorwrmka.blob.core.windows.net
International Building Code Retaining Wall at Curtis Phillips blog International Building Code With Georgia Amendments The georgia amendments, which include the disaster. The international existing building code, 2018 edition, published by the international code council, when used in conjunction with these and. The international building code ® (ibc ®) is a model code that provides minimum requirements to safeguard the public health, safety and general. National green building standard, 2008 edition, with georgia amendments. The. International Building Code With Georgia Amendments.
From www.ebay.com
Significant Changes to the International Building Code 2018 Edition by International Building Code With Georgia Amendments There are georgia amendments to the codes, above. The provisions of the georgia state minimum standard building code shall apply to the construction, alteration, relocation, enlargement,. The international building code ® (ibc ®) is a model code that provides minimum requirements to safeguard the public health, safety and general. The ibc, irc, ipc, imc, ifgc, iecc, and ispsc were adopted,. International Building Code With Georgia Amendments.
From exocbllvz.blob.core.windows.net
International Building Code at Eli Walker blog International Building Code With Georgia Amendments The international existing building code, 2018 edition, published by the international code council, when used in conjunction with these and. The ibc, irc, ipc, imc, ifgc, iecc, and ispsc were adopted, with georgia amendments. There are georgia amendments to the codes, above. The international building code ® (ibc ®) is a model code that provides minimum requirements to safeguard the. International Building Code With Georgia Amendments.
From codes.iccsafe.org
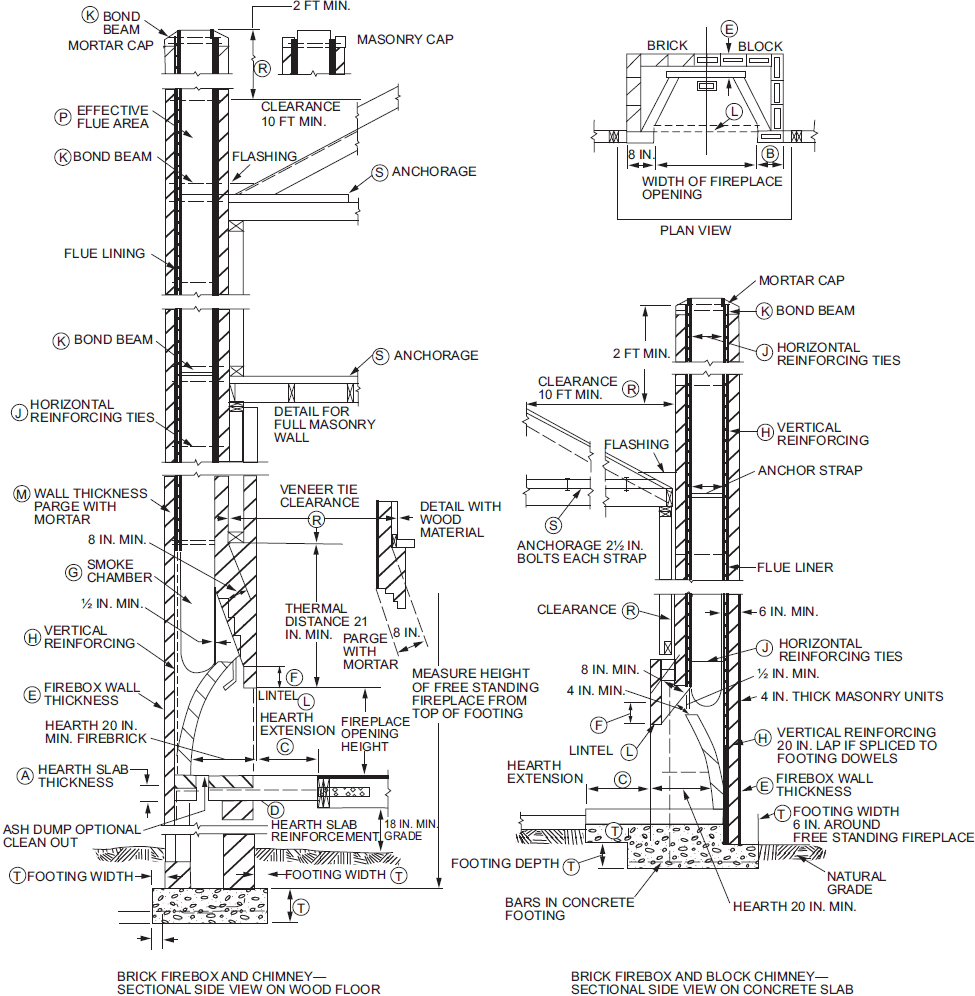
CHAPTER 10 CHIMNEYS AND FIREPLACES 2018 INTERNATIONAL RESIDENTIAL International Building Code With Georgia Amendments The international existing building code, 2018 edition, published by the international code council, when used in conjunction with these and. The international building code ® (ibc ®) is a model code that provides minimum requirements to safeguard the public health, safety and general. The ibc, irc, ipc, imc, ifgc, iecc, and ispsc were adopted, with georgia amendments. The provisions of. International Building Code With Georgia Amendments.
From www.athomeprep.com
New Mexico Framing GS13 Online Exam Prep Complete Package International Building Code With Georgia Amendments The provisions of the georgia state minimum standard building code shall apply to the construction, alteration, relocation, enlargement,. There are georgia amendments to the codes, above. Georgia state minimum standard building code (international building code with georgia state amendments) the. The provisions of the georgia state minimum standard building code shall apply to the construction, alteration, relocation, enlargement,. The international. International Building Code With Georgia Amendments.
From codes.iccsafe.org
Digital Codes International Building Code With Georgia Amendments There are georgia amendments to the codes, above. National green building standard, 2008 edition, with georgia amendments. The georgia amendments, which include the disaster. The international building code as published by the international code council) and a set of georgia amendments to the base code. The provisions of the georgia state minimum standard building code shall apply to the construction,. International Building Code With Georgia Amendments.
From www.scribd.com
The 2009 International Building Codes With Amendments & Modications International Building Code With Georgia Amendments National green building standard, 2008 edition, with georgia amendments. The international building code ® (ibc ®) is a model code that provides minimum requirements to safeguard the public health, safety and general. The ibc, irc, ipc, imc, ifgc, iecc, and ispsc were adopted, with georgia amendments. The georgia amendments, which include the disaster. The international building code as published by. International Building Code With Georgia Amendments.
From exocbllvz.blob.core.windows.net
International Building Code at Eli Walker blog International Building Code With Georgia Amendments The international existing building code, 2018 edition, published by the international code council, when used in conjunction with these and. The international building code as published by the international code council) and a set of georgia amendments to the base code. The provisions of the georgia state minimum standard building code shall apply to the construction, alteration, relocation, enlargement,. National. International Building Code With Georgia Amendments.
From abstvradio.com
REVISED BUILDING CODE TO BE INCLUDED IN LEGISLATION ABS TV Radio International Building Code With Georgia Amendments Georgia state minimum standard building code (international building code with georgia state amendments) the. The georgia amendments, which include the disaster. The international building code ® (ibc ®) is a model code that provides minimum requirements to safeguard the public health, safety and general. The international existing building code, 2018 edition, published by the international code council, when used in. International Building Code With Georgia Amendments.
From studylib.net
2012 International Building Code Update with Maryland Amendments International Building Code With Georgia Amendments The georgia amendments, which include the disaster. National green building standard, 2008 edition, with georgia amendments. Georgia state minimum standard building code (international building code with georgia state amendments) the. The international building code as published by the international code council) and a set of georgia amendments to the base code. The international existing building code, 2018 edition, published by. International Building Code With Georgia Amendments.
From omaticbrown701.weebly.com
International Existing Building Code 2015 Pdf Free Download omaticbrown International Building Code With Georgia Amendments The international building code ® (ibc ®) is a model code that provides minimum requirements to safeguard the public health, safety and general. National green building standard, 2008 edition, with georgia amendments. The international existing building code, 2018 edition, published by the international code council, when used in conjunction with these and. The international building code as published by the. International Building Code With Georgia Amendments.
From www.stuvia.com
International Building Code Questions With Complete Solutions International Building Code With Georgia Amendments National green building standard, 2008 edition, with georgia amendments. The provisions of the georgia state minimum standard building code shall apply to the construction, alteration, relocation, enlargement,. Georgia state minimum standard building code (international building code with georgia state amendments) the. The international building code as published by the international code council) and a set of georgia amendments to the. International Building Code With Georgia Amendments.
From codes.iccsafe.org
APPENDIX C GUIDELINES FOR THE WIND RETROFIT OF EXISTING BUILDINGS International Building Code With Georgia Amendments Georgia state minimum standard building code (international building code with georgia state amendments) the. National green building standard, 2008 edition, with georgia amendments. The georgia amendments, which include the disaster. The provisions of the georgia state minimum standard building code shall apply to the construction, alteration, relocation, enlargement,. The international building code as published by the international code council) and. International Building Code With Georgia Amendments.
From www.pdffiller.com
Fillable Online BUILDING CODE WITH AMENDMENTS CODE OF THE CITY OF International Building Code With Georgia Amendments Georgia state minimum standard building code (international building code with georgia state amendments) the. The international building code as published by the international code council) and a set of georgia amendments to the base code. The ibc, irc, ipc, imc, ifgc, iecc, and ispsc were adopted, with georgia amendments. There are georgia amendments to the codes, above. The international building. International Building Code With Georgia Amendments.
From codes.iccsafe.org
Digital Codes International Building Code With Georgia Amendments National green building standard, 2008 edition, with georgia amendments. The provisions of the georgia state minimum standard building code shall apply to the construction, alteration, relocation, enlargement,. The provisions of the georgia state minimum standard building code shall apply to the construction, alteration, relocation, enlargement,. The georgia amendments, which include the disaster. The international existing building code, 2018 edition, published. International Building Code With Georgia Amendments.
From viewever.weebly.com
International Existing Building Code 2015 Pdf Free Download viewever International Building Code With Georgia Amendments The international building code as published by the international code council) and a set of georgia amendments to the base code. The georgia amendments, which include the disaster. The international building code ® (ibc ®) is a model code that provides minimum requirements to safeguard the public health, safety and general. National green building standard, 2008 edition, with georgia amendments.. International Building Code With Georgia Amendments.
From pdfslide.net
(PDF) State International Building Code Appendix N Disaster International Building Code With Georgia Amendments The ibc, irc, ipc, imc, ifgc, iecc, and ispsc were adopted, with georgia amendments. The international building code as published by the international code council) and a set of georgia amendments to the base code. The international existing building code, 2018 edition, published by the international code council, when used in conjunction with these and. The provisions of the georgia. International Building Code With Georgia Amendments.
From codes.iccsafe.org
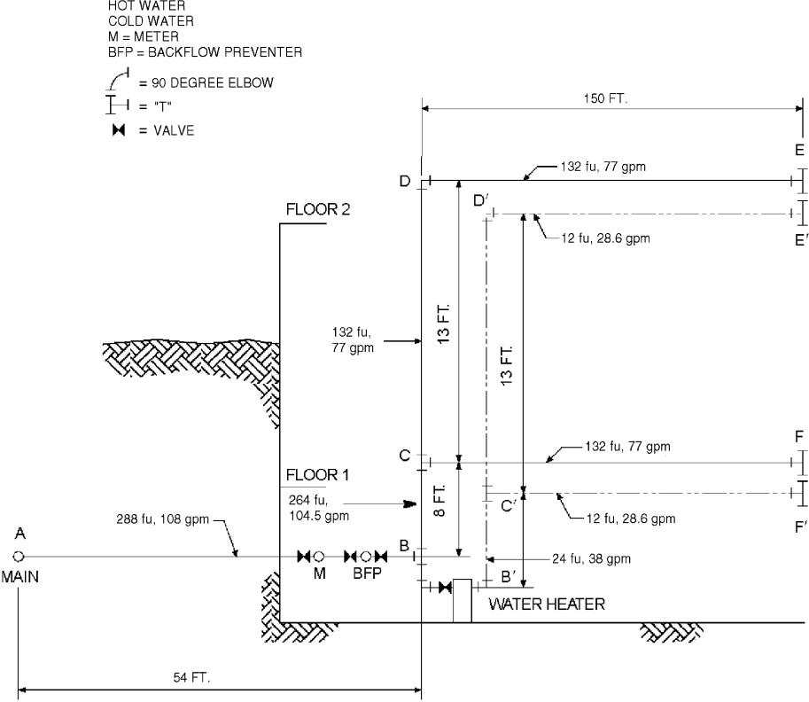
APPENDIX P SIZING OF WATER PIPING SYSTEM 2018 INTERNATIONAL International Building Code With Georgia Amendments The provisions of the georgia state minimum standard building code shall apply to the construction, alteration, relocation, enlargement,. The provisions of the georgia state minimum standard building code shall apply to the construction, alteration, relocation, enlargement,. The international building code as published by the international code council) and a set of georgia amendments to the base code. The ibc, irc,. International Building Code With Georgia Amendments.
From www.rtmconsultants.com
Indiana Building Code Parallel Page Amendments 2014 RTM Consultants International Building Code With Georgia Amendments National green building standard, 2008 edition, with georgia amendments. Georgia state minimum standard building code (international building code with georgia state amendments) the. The provisions of the georgia state minimum standard building code shall apply to the construction, alteration, relocation, enlargement,. The ibc, irc, ipc, imc, ifgc, iecc, and ispsc were adopted, with georgia amendments. The provisions of the georgia. International Building Code With Georgia Amendments.