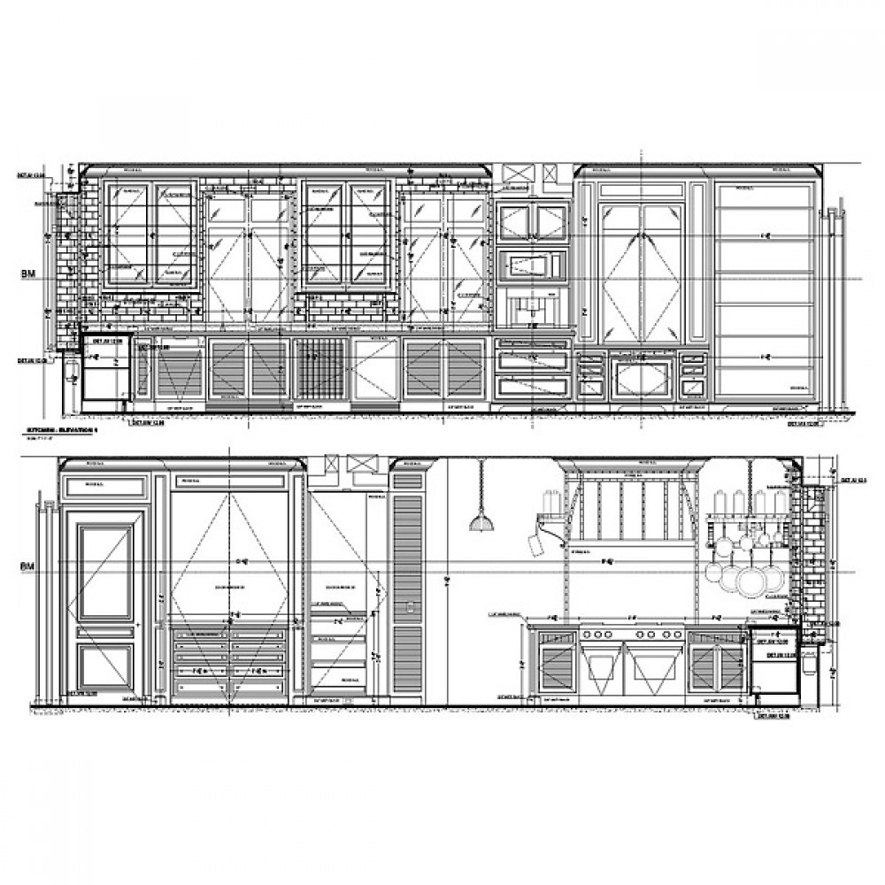
Shop Drawings For Kitchen Cabinets . welcome to the world of millwork shop drawings, where craftsmanship meets precision, and creativity is structured by lines and measurements. there are three key areas of cabinet shop drawings to consider: cabinet shop drawings are crucial in the cabinet manufacturing process, as they communicate the design intent and ensure. Shop drawings can either be classed as approved, approved as noted, revise and resubmit, or rejected. in summary, cabinet shop drawings provide detailed blueprints that guide the fabrication and installation of cabinets. We will also cover common. Imagine walking into a grand hotel lobby adorned with intricate wood paneling or a luxurious kitchen featuring custom cabinetry that fits like a glove. in this blog post, we will look at different aspects of making cabinet shop drawings.
from www.agcaddesigns.com
cabinet shop drawings are crucial in the cabinet manufacturing process, as they communicate the design intent and ensure. in this blog post, we will look at different aspects of making cabinet shop drawings. We will also cover common. Shop drawings can either be classed as approved, approved as noted, revise and resubmit, or rejected. in summary, cabinet shop drawings provide detailed blueprints that guide the fabrication and installation of cabinets. there are three key areas of cabinet shop drawings to consider: Imagine walking into a grand hotel lobby adorned with intricate wood paneling or a luxurious kitchen featuring custom cabinetry that fits like a glove. welcome to the world of millwork shop drawings, where craftsmanship meets precision, and creativity is structured by lines and measurements.
Millwork CAD Shop Drawing, Casework, Furniture design drawing service USA
Shop Drawings For Kitchen Cabinets in summary, cabinet shop drawings provide detailed blueprints that guide the fabrication and installation of cabinets. We will also cover common. in this blog post, we will look at different aspects of making cabinet shop drawings. welcome to the world of millwork shop drawings, where craftsmanship meets precision, and creativity is structured by lines and measurements. in summary, cabinet shop drawings provide detailed blueprints that guide the fabrication and installation of cabinets. Imagine walking into a grand hotel lobby adorned with intricate wood paneling or a luxurious kitchen featuring custom cabinetry that fits like a glove. there are three key areas of cabinet shop drawings to consider: Shop drawings can either be classed as approved, approved as noted, revise and resubmit, or rejected. cabinet shop drawings are crucial in the cabinet manufacturing process, as they communicate the design intent and ensure.
From www.agcaddesigns.com
Millwork CAD Shop Drawing, Casework drawing service USA (310) 4317860 Shop Drawings For Kitchen Cabinets there are three key areas of cabinet shop drawings to consider: cabinet shop drawings are crucial in the cabinet manufacturing process, as they communicate the design intent and ensure. Imagine walking into a grand hotel lobby adorned with intricate wood paneling or a luxurious kitchen featuring custom cabinetry that fits like a glove. in this blog post,. Shop Drawings For Kitchen Cabinets.
From www.pinterest.com
Architectural Kitchen CAD Elevation shop drawing services in Colorado USA Interior Shop Drawings For Kitchen Cabinets in this blog post, we will look at different aspects of making cabinet shop drawings. We will also cover common. cabinet shop drawings are crucial in the cabinet manufacturing process, as they communicate the design intent and ensure. in summary, cabinet shop drawings provide detailed blueprints that guide the fabrication and installation of cabinets. Shop drawings can. Shop Drawings For Kitchen Cabinets.
From www.idrawpro.com
Kitchen, master bath and bedroom shop drawings Shop Drawings For Kitchen Cabinets in this blog post, we will look at different aspects of making cabinet shop drawings. Imagine walking into a grand hotel lobby adorned with intricate wood paneling or a luxurious kitchen featuring custom cabinetry that fits like a glove. there are three key areas of cabinet shop drawings to consider: cabinet shop drawings are crucial in the. Shop Drawings For Kitchen Cabinets.
From exowfrlrq.blob.core.windows.net
Kitchen Design Drawing at Thomas Carroll blog Shop Drawings For Kitchen Cabinets Imagine walking into a grand hotel lobby adorned with intricate wood paneling or a luxurious kitchen featuring custom cabinetry that fits like a glove. there are three key areas of cabinet shop drawings to consider: Shop drawings can either be classed as approved, approved as noted, revise and resubmit, or rejected. We will also cover common. in this. Shop Drawings For Kitchen Cabinets.
From www.idrawpro.com
Kitchen shop drawings needed for remodeling project. Shop Drawings For Kitchen Cabinets in this blog post, we will look at different aspects of making cabinet shop drawings. Imagine walking into a grand hotel lobby adorned with intricate wood paneling or a luxurious kitchen featuring custom cabinetry that fits like a glove. there are three key areas of cabinet shop drawings to consider: cabinet shop drawings are crucial in the. Shop Drawings For Kitchen Cabinets.
From getdrawings.com
Kitchen Drawing at GetDrawings Free download Shop Drawings For Kitchen Cabinets Imagine walking into a grand hotel lobby adorned with intricate wood paneling or a luxurious kitchen featuring custom cabinetry that fits like a glove. in summary, cabinet shop drawings provide detailed blueprints that guide the fabrication and installation of cabinets. welcome to the world of millwork shop drawings, where craftsmanship meets precision, and creativity is structured by lines. Shop Drawings For Kitchen Cabinets.
From www.idrawpro.com
Kitchen Shop Drawings Shop Drawings For Kitchen Cabinets in this blog post, we will look at different aspects of making cabinet shop drawings. in summary, cabinet shop drawings provide detailed blueprints that guide the fabrication and installation of cabinets. Imagine walking into a grand hotel lobby adorned with intricate wood paneling or a luxurious kitchen featuring custom cabinetry that fits like a glove. there are. Shop Drawings For Kitchen Cabinets.
From www.idrawpro.com
Kitchen Shop Drawings Shop Drawings For Kitchen Cabinets welcome to the world of millwork shop drawings, where craftsmanship meets precision, and creativity is structured by lines and measurements. We will also cover common. cabinet shop drawings are crucial in the cabinet manufacturing process, as they communicate the design intent and ensure. in summary, cabinet shop drawings provide detailed blueprints that guide the fabrication and installation. Shop Drawings For Kitchen Cabinets.
From www.idrawpro.com
Kitchen Shop Drawings Shop Drawings For Kitchen Cabinets welcome to the world of millwork shop drawings, where craftsmanship meets precision, and creativity is structured by lines and measurements. in this blog post, we will look at different aspects of making cabinet shop drawings. Imagine walking into a grand hotel lobby adorned with intricate wood paneling or a luxurious kitchen featuring custom cabinetry that fits like a. Shop Drawings For Kitchen Cabinets.
From www.idrawpro.com
Kitchen Shop Drawings Shop Drawings For Kitchen Cabinets Imagine walking into a grand hotel lobby adorned with intricate wood paneling or a luxurious kitchen featuring custom cabinetry that fits like a glove. in this blog post, we will look at different aspects of making cabinet shop drawings. welcome to the world of millwork shop drawings, where craftsmanship meets precision, and creativity is structured by lines and. Shop Drawings For Kitchen Cabinets.
From www.idrawpro.com
Kitchen Shop Drawings Shop Drawings For Kitchen Cabinets We will also cover common. Imagine walking into a grand hotel lobby adorned with intricate wood paneling or a luxurious kitchen featuring custom cabinetry that fits like a glove. in summary, cabinet shop drawings provide detailed blueprints that guide the fabrication and installation of cabinets. cabinet shop drawings are crucial in the cabinet manufacturing process, as they communicate. Shop Drawings For Kitchen Cabinets.
From www.idrawpro.com
Kitchen Shop Drawings Shop Drawings For Kitchen Cabinets there are three key areas of cabinet shop drawings to consider: cabinet shop drawings are crucial in the cabinet manufacturing process, as they communicate the design intent and ensure. in this blog post, we will look at different aspects of making cabinet shop drawings. Shop drawings can either be classed as approved, approved as noted, revise and. Shop Drawings For Kitchen Cabinets.
From ipipeline.net
Kitchen Section Drawing Things In The Kitchen Shop Drawings For Kitchen Cabinets in summary, cabinet shop drawings provide detailed blueprints that guide the fabrication and installation of cabinets. We will also cover common. welcome to the world of millwork shop drawings, where craftsmanship meets precision, and creativity is structured by lines and measurements. there are three key areas of cabinet shop drawings to consider: Shop drawings can either be. Shop Drawings For Kitchen Cabinets.
From www.woodweb.com
Pro shop drawings WOODWEB's CAD Forum Shop Drawings For Kitchen Cabinets welcome to the world of millwork shop drawings, where craftsmanship meets precision, and creativity is structured by lines and measurements. in this blog post, we will look at different aspects of making cabinet shop drawings. there are three key areas of cabinet shop drawings to consider: Imagine walking into a grand hotel lobby adorned with intricate wood. Shop Drawings For Kitchen Cabinets.
From www.behance.net
KITCHEN DRAWING ) Behance Shop Drawings For Kitchen Cabinets Shop drawings can either be classed as approved, approved as noted, revise and resubmit, or rejected. in summary, cabinet shop drawings provide detailed blueprints that guide the fabrication and installation of cabinets. welcome to the world of millwork shop drawings, where craftsmanship meets precision, and creativity is structured by lines and measurements. cabinet shop drawings are crucial. Shop Drawings For Kitchen Cabinets.
From www.upwork.com
FAST 3D Shop Drawing CAD Drafting plans for KITCHENS and BATHS Upwork Shop Drawings For Kitchen Cabinets in this blog post, we will look at different aspects of making cabinet shop drawings. Shop drawings can either be classed as approved, approved as noted, revise and resubmit, or rejected. Imagine walking into a grand hotel lobby adorned with intricate wood paneling or a luxurious kitchen featuring custom cabinetry that fits like a glove. in summary, cabinet. Shop Drawings For Kitchen Cabinets.
From readwatchdo.com
& Millwork Shop Drawings For Kitchen Cabinets welcome to the world of millwork shop drawings, where craftsmanship meets precision, and creativity is structured by lines and measurements. cabinet shop drawings are crucial in the cabinet manufacturing process, as they communicate the design intent and ensure. We will also cover common. Imagine walking into a grand hotel lobby adorned with intricate wood paneling or a luxurious. Shop Drawings For Kitchen Cabinets.
From shirleymarshall.blogspot.com
Kitchen Shop Drawings ShirleyMarshall Shop Drawings For Kitchen Cabinets in summary, cabinet shop drawings provide detailed blueprints that guide the fabrication and installation of cabinets. there are three key areas of cabinet shop drawings to consider: Imagine walking into a grand hotel lobby adorned with intricate wood paneling or a luxurious kitchen featuring custom cabinetry that fits like a glove. We will also cover common. cabinet. Shop Drawings For Kitchen Cabinets.
From www.hitechcaddservices.com
Millwork Detailing Outsource Millwork Shop Drawings & Joinery Drafting Shop Drawings For Kitchen Cabinets Imagine walking into a grand hotel lobby adorned with intricate wood paneling or a luxurious kitchen featuring custom cabinetry that fits like a glove. We will also cover common. there are three key areas of cabinet shop drawings to consider: in summary, cabinet shop drawings provide detailed blueprints that guide the fabrication and installation of cabinets. cabinet. Shop Drawings For Kitchen Cabinets.
From shopdrawingservices.com
Kitchen Shop Drawings Shop Drawings For Kitchen Cabinets cabinet shop drawings are crucial in the cabinet manufacturing process, as they communicate the design intent and ensure. in summary, cabinet shop drawings provide detailed blueprints that guide the fabrication and installation of cabinets. We will also cover common. Shop drawings can either be classed as approved, approved as noted, revise and resubmit, or rejected. in this. Shop Drawings For Kitchen Cabinets.
From getdrawings.com
Kitchen Drawing at GetDrawings Free download Shop Drawings For Kitchen Cabinets in this blog post, we will look at different aspects of making cabinet shop drawings. welcome to the world of millwork shop drawings, where craftsmanship meets precision, and creativity is structured by lines and measurements. We will also cover common. cabinet shop drawings are crucial in the cabinet manufacturing process, as they communicate the design intent and. Shop Drawings For Kitchen Cabinets.
From www.pinterest.com
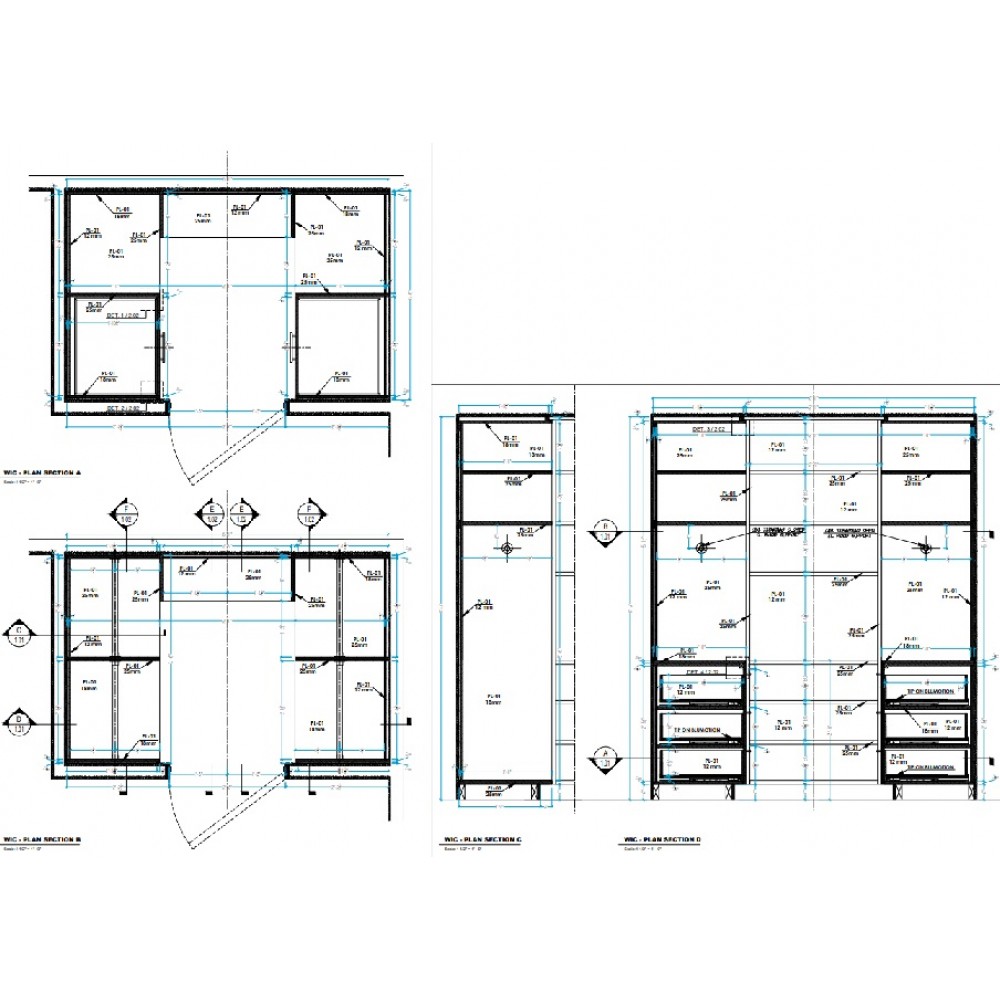
Talhaliaqut I will custom wardrobe, walk in closet, kitchen shop drawings for 20 on Shop Drawings For Kitchen Cabinets Imagine walking into a grand hotel lobby adorned with intricate wood paneling or a luxurious kitchen featuring custom cabinetry that fits like a glove. Shop drawings can either be classed as approved, approved as noted, revise and resubmit, or rejected. in summary, cabinet shop drawings provide detailed blueprints that guide the fabrication and installation of cabinets. in this. Shop Drawings For Kitchen Cabinets.
From www.pinterest.ca
Kitchen elevation shop drawing services interior design Shop interior design, Shop drawing Shop Drawings For Kitchen Cabinets in summary, cabinet shop drawings provide detailed blueprints that guide the fabrication and installation of cabinets. welcome to the world of millwork shop drawings, where craftsmanship meets precision, and creativity is structured by lines and measurements. there are three key areas of cabinet shop drawings to consider: cabinet shop drawings are crucial in the cabinet manufacturing. Shop Drawings For Kitchen Cabinets.
From www.idrawpro.com
Kitchen Shop Drawings Shop Drawings For Kitchen Cabinets welcome to the world of millwork shop drawings, where craftsmanship meets precision, and creativity is structured by lines and measurements. We will also cover common. in summary, cabinet shop drawings provide detailed blueprints that guide the fabrication and installation of cabinets. Shop drawings can either be classed as approved, approved as noted, revise and resubmit, or rejected. . Shop Drawings For Kitchen Cabinets.
From www.idrawpro.com
Shop Drawings for Bar Restaurant (simplified) Shop Drawings For Kitchen Cabinets in this blog post, we will look at different aspects of making cabinet shop drawings. Imagine walking into a grand hotel lobby adorned with intricate wood paneling or a luxurious kitchen featuring custom cabinetry that fits like a glove. We will also cover common. there are three key areas of cabinet shop drawings to consider: cabinet shop. Shop Drawings For Kitchen Cabinets.
From www.agcaddesigns.com
Millwork CAD Shop Drawing, Casework, Furniture design drawing service USA Shop Drawings For Kitchen Cabinets welcome to the world of millwork shop drawings, where craftsmanship meets precision, and creativity is structured by lines and measurements. Shop drawings can either be classed as approved, approved as noted, revise and resubmit, or rejected. there are three key areas of cabinet shop drawings to consider: in summary, cabinet shop drawings provide detailed blueprints that guide. Shop Drawings For Kitchen Cabinets.
From www.speedydecor.com
CAD & Elevation Drawings Services And Custom Shop Singapore Shop Drawings For Kitchen Cabinets Imagine walking into a grand hotel lobby adorned with intricate wood paneling or a luxurious kitchen featuring custom cabinetry that fits like a glove. in summary, cabinet shop drawings provide detailed blueprints that guide the fabrication and installation of cabinets. there are three key areas of cabinet shop drawings to consider: in this blog post, we will. Shop Drawings For Kitchen Cabinets.
From www.idrawpro.com
Kitchen Shop Drawings Shop Drawings For Kitchen Cabinets there are three key areas of cabinet shop drawings to consider: Shop drawings can either be classed as approved, approved as noted, revise and resubmit, or rejected. welcome to the world of millwork shop drawings, where craftsmanship meets precision, and creativity is structured by lines and measurements. Imagine walking into a grand hotel lobby adorned with intricate wood. Shop Drawings For Kitchen Cabinets.
From www.pinterest.com
Sample Cad Drawings Casewood Shop Drawings Cad drawing, Shop front design Shop Drawings For Kitchen Cabinets welcome to the world of millwork shop drawings, where craftsmanship meets precision, and creativity is structured by lines and measurements. Imagine walking into a grand hotel lobby adorned with intricate wood paneling or a luxurious kitchen featuring custom cabinetry that fits like a glove. We will also cover common. there are three key areas of cabinet shop drawings. Shop Drawings For Kitchen Cabinets.
From shopdrawingservices.com
Builtin Shop Drawings Shop Drawings For Kitchen Cabinets Imagine walking into a grand hotel lobby adorned with intricate wood paneling or a luxurious kitchen featuring custom cabinetry that fits like a glove. in summary, cabinet shop drawings provide detailed blueprints that guide the fabrication and installation of cabinets. there are three key areas of cabinet shop drawings to consider: We will also cover common. Shop drawings. Shop Drawings For Kitchen Cabinets.
From www.idrawpro.com
Kitchen Shop Drawings Shop Drawings For Kitchen Cabinets Shop drawings can either be classed as approved, approved as noted, revise and resubmit, or rejected. there are three key areas of cabinet shop drawings to consider: cabinet shop drawings are crucial in the cabinet manufacturing process, as they communicate the design intent and ensure. welcome to the world of millwork shop drawings, where craftsmanship meets precision,. Shop Drawings For Kitchen Cabinets.
From shopdrawingservices.com
kitchen shop drawings Shop Drawing Services Ltd Shop Drawings For Kitchen Cabinets there are three key areas of cabinet shop drawings to consider: Shop drawings can either be classed as approved, approved as noted, revise and resubmit, or rejected. in this blog post, we will look at different aspects of making cabinet shop drawings. cabinet shop drawings are crucial in the cabinet manufacturing process, as they communicate the design. Shop Drawings For Kitchen Cabinets.
From getdrawings.com
Kitchen Drawing at GetDrawings Free download Shop Drawings For Kitchen Cabinets welcome to the world of millwork shop drawings, where craftsmanship meets precision, and creativity is structured by lines and measurements. in summary, cabinet shop drawings provide detailed blueprints that guide the fabrication and installation of cabinets. there are three key areas of cabinet shop drawings to consider: Shop drawings can either be classed as approved, approved as. Shop Drawings For Kitchen Cabinets.
From www.idrawpro.com
Kitchen Shop Drawings Shop Drawings For Kitchen Cabinets in this blog post, we will look at different aspects of making cabinet shop drawings. Imagine walking into a grand hotel lobby adorned with intricate wood paneling or a luxurious kitchen featuring custom cabinetry that fits like a glove. Shop drawings can either be classed as approved, approved as noted, revise and resubmit, or rejected. cabinet shop drawings. Shop Drawings For Kitchen Cabinets.
From hardlinecorp.com
Hardline Corporation We specialize in millwork shop drawings, shop drawings and Shop Drawings For Kitchen Cabinets in summary, cabinet shop drawings provide detailed blueprints that guide the fabrication and installation of cabinets. welcome to the world of millwork shop drawings, where craftsmanship meets precision, and creativity is structured by lines and measurements. Imagine walking into a grand hotel lobby adorned with intricate wood paneling or a luxurious kitchen featuring custom cabinetry that fits like. Shop Drawings For Kitchen Cabinets.