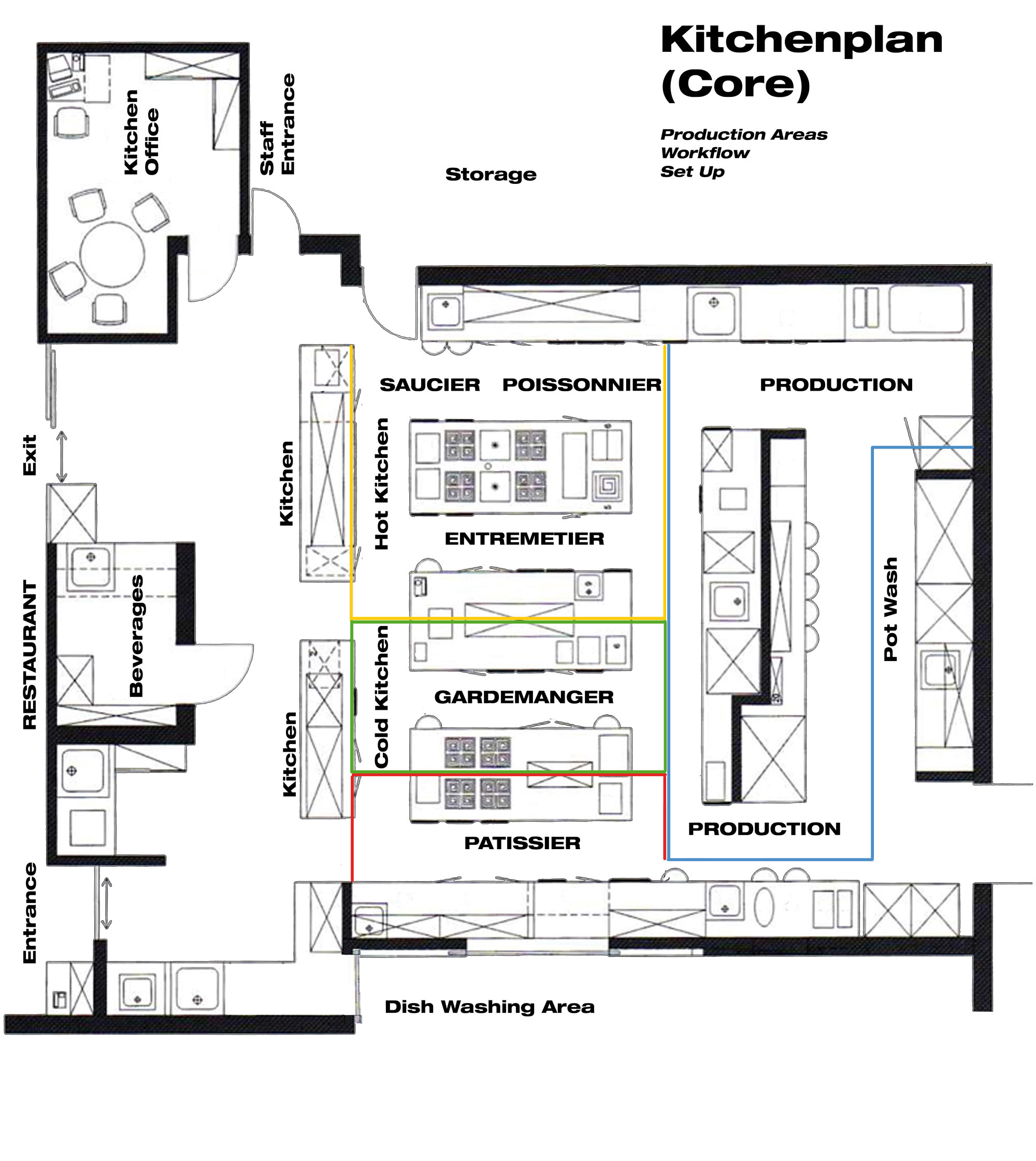
What Is Hot And Cold Kitchen . If the house has a typical non combi heating system with feed tank in the loft and h/w cylinder in a cupboard, then 22mm feed for the. In contrast, a cold kitchen, also. The kitchen must have adequate facilities for cleaning and disinfecting any tools, utensils and equipment used in the storage, preparation and. When the tap is on, a valve inside moves up to open a water chamber, allowing water to flow out of the spout. It describes the cold kitchen, where foods presented cold like salads and desserts are made, using. A hot kitchen is culinary term which describes the area of the kitchen where the cooking is prepare that needs fire to be. Kitchen taps are connected to cold and hot water supplies. The environment in a hot kitchen is typically warm due to the cooking processes, and it requires proper ventilation to manage heat and smoke. This document discusses different areas of a kitchen and food preparation.
from fesmag.com
This document discusses different areas of a kitchen and food preparation. Kitchen taps are connected to cold and hot water supplies. When the tap is on, a valve inside moves up to open a water chamber, allowing water to flow out of the spout. In contrast, a cold kitchen, also. If the house has a typical non combi heating system with feed tank in the loft and h/w cylinder in a cupboard, then 22mm feed for the. The kitchen must have adequate facilities for cleaning and disinfecting any tools, utensils and equipment used in the storage, preparation and. A hot kitchen is culinary term which describes the area of the kitchen where the cooking is prepare that needs fire to be. The environment in a hot kitchen is typically warm due to the cooking processes, and it requires proper ventilation to manage heat and smoke. It describes the cold kitchen, where foods presented cold like salads and desserts are made, using.
Open Kitchens The Show Goes On Foodservice Equipment & Supplies
What Is Hot And Cold Kitchen A hot kitchen is culinary term which describes the area of the kitchen where the cooking is prepare that needs fire to be. Kitchen taps are connected to cold and hot water supplies. This document discusses different areas of a kitchen and food preparation. The kitchen must have adequate facilities for cleaning and disinfecting any tools, utensils and equipment used in the storage, preparation and. In contrast, a cold kitchen, also. When the tap is on, a valve inside moves up to open a water chamber, allowing water to flow out of the spout. The environment in a hot kitchen is typically warm due to the cooking processes, and it requires proper ventilation to manage heat and smoke. A hot kitchen is culinary term which describes the area of the kitchen where the cooking is prepare that needs fire to be. It describes the cold kitchen, where foods presented cold like salads and desserts are made, using. If the house has a typical non combi heating system with feed tank in the loft and h/w cylinder in a cupboard, then 22mm feed for the.
From www.youtube.com
HOT COLD WASTE PIPE INSTALL FOR A KITCHEN Plumbing Tips YouTube What Is Hot And Cold Kitchen It describes the cold kitchen, where foods presented cold like salads and desserts are made, using. A hot kitchen is culinary term which describes the area of the kitchen where the cooking is prepare that needs fire to be. If the house has a typical non combi heating system with feed tank in the loft and h/w cylinder in a. What Is Hot And Cold Kitchen.
From klabmcmmb.blob.core.windows.net
What Is A Cold Sink at Trevor Tichenor blog What Is Hot And Cold Kitchen Kitchen taps are connected to cold and hot water supplies. If the house has a typical non combi heating system with feed tank in the loft and h/w cylinder in a cupboard, then 22mm feed for the. It describes the cold kitchen, where foods presented cold like salads and desserts are made, using. The environment in a hot kitchen is. What Is Hot And Cold Kitchen.
From www.architecturaldigest.com
Kitchen Design Trends Through the Decades Architectural Digest What Is Hot And Cold Kitchen A hot kitchen is culinary term which describes the area of the kitchen where the cooking is prepare that needs fire to be. This document discusses different areas of a kitchen and food preparation. Kitchen taps are connected to cold and hot water supplies. If the house has a typical non combi heating system with feed tank in the loft. What Is Hot And Cold Kitchen.
From www.thekitchendoor.com
Cold and Hot Kitchens in Midtown Houston What Is Hot And Cold Kitchen The kitchen must have adequate facilities for cleaning and disinfecting any tools, utensils and equipment used in the storage, preparation and. The environment in a hot kitchen is typically warm due to the cooking processes, and it requires proper ventilation to manage heat and smoke. When the tap is on, a valve inside moves up to open a water chamber,. What Is Hot And Cold Kitchen.
From www.pinterest.com
Slick hot, cold and soup freeflow servery counters Professional What Is Hot And Cold Kitchen This document discusses different areas of a kitchen and food preparation. The kitchen must have adequate facilities for cleaning and disinfecting any tools, utensils and equipment used in the storage, preparation and. The environment in a hot kitchen is typically warm due to the cooking processes, and it requires proper ventilation to manage heat and smoke. When the tap is. What Is Hot And Cold Kitchen.
From www.vecteezy.com
learning the opposite adjectives cold and hot. cold delicious ice cream What Is Hot And Cold Kitchen It describes the cold kitchen, where foods presented cold like salads and desserts are made, using. When the tap is on, a valve inside moves up to open a water chamber, allowing water to flow out of the spout. In contrast, a cold kitchen, also. If the house has a typical non combi heating system with feed tank in the. What Is Hot And Cold Kitchen.
From www.tomhowley.co.uk
Kitchen Design Ideas for a Healthier Lifestyle What Is Hot And Cold Kitchen It describes the cold kitchen, where foods presented cold like salads and desserts are made, using. A hot kitchen is culinary term which describes the area of the kitchen where the cooking is prepare that needs fire to be. When the tap is on, a valve inside moves up to open a water chamber, allowing water to flow out of. What Is Hot And Cold Kitchen.
From www.1800lighting.com
Does Your Kitchen Need Warm White or Cool White Lighting? What Is Hot And Cold Kitchen The environment in a hot kitchen is typically warm due to the cooking processes, and it requires proper ventilation to manage heat and smoke. This document discusses different areas of a kitchen and food preparation. A hot kitchen is culinary term which describes the area of the kitchen where the cooking is prepare that needs fire to be. Kitchen taps. What Is Hot And Cold Kitchen.
From homesteadhouseplans.com
The Summer Kitchen Homestead House Plans What Is Hot And Cold Kitchen When the tap is on, a valve inside moves up to open a water chamber, allowing water to flow out of the spout. The kitchen must have adequate facilities for cleaning and disinfecting any tools, utensils and equipment used in the storage, preparation and. This document discusses different areas of a kitchen and food preparation. Kitchen taps are connected to. What Is Hot And Cold Kitchen.
From www.pinterest.com
COLD KITCHEN CHEF •Should have experience in European and Spanish What Is Hot And Cold Kitchen A hot kitchen is culinary term which describes the area of the kitchen where the cooking is prepare that needs fire to be. The kitchen must have adequate facilities for cleaning and disinfecting any tools, utensils and equipment used in the storage, preparation and. If the house has a typical non combi heating system with feed tank in the loft. What Is Hot And Cold Kitchen.
From www.youtube.com
Hot and Cold Kitchen Part 1 YouTube What Is Hot And Cold Kitchen In contrast, a cold kitchen, also. Kitchen taps are connected to cold and hot water supplies. This document discusses different areas of a kitchen and food preparation. The environment in a hot kitchen is typically warm due to the cooking processes, and it requires proper ventilation to manage heat and smoke. It describes the cold kitchen, where foods presented cold. What Is Hot And Cold Kitchen.
From www.sinks-taps.com
HC3300 Hot and Cold Filtered Water Tap What Is Hot And Cold Kitchen The environment in a hot kitchen is typically warm due to the cooking processes, and it requires proper ventilation to manage heat and smoke. This document discusses different areas of a kitchen and food preparation. If the house has a typical non combi heating system with feed tank in the loft and h/w cylinder in a cupboard, then 22mm feed. What Is Hot And Cold Kitchen.
From www.itisakeeper.com
Easy Hot and Cold Appetizer Ideas It Is a Keeper What Is Hot And Cold Kitchen When the tap is on, a valve inside moves up to open a water chamber, allowing water to flow out of the spout. It describes the cold kitchen, where foods presented cold like salads and desserts are made, using. In contrast, a cold kitchen, also. This document discusses different areas of a kitchen and food preparation. A hot kitchen is. What Is Hot And Cold Kitchen.
From www.walmart.com
Stainless Steel Hot And Cold Pull Out Kitchen Universal Rotating What Is Hot And Cold Kitchen A hot kitchen is culinary term which describes the area of the kitchen where the cooking is prepare that needs fire to be. This document discusses different areas of a kitchen and food preparation. In contrast, a cold kitchen, also. The environment in a hot kitchen is typically warm due to the cooking processes, and it requires proper ventilation to. What Is Hot And Cold Kitchen.
From gnowfglins.com
24 {Cold!} Main Dishes & 22 Sides for Hot Summer Days What Is Hot And Cold Kitchen When the tap is on, a valve inside moves up to open a water chamber, allowing water to flow out of the spout. Kitchen taps are connected to cold and hot water supplies. If the house has a typical non combi heating system with feed tank in the loft and h/w cylinder in a cupboard, then 22mm feed for the.. What Is Hot And Cold Kitchen.
From makrohorecaacademy.com
Hot Kitchens & Cold Kitchens, How Necessary Is Zoning? Find Out Before What Is Hot And Cold Kitchen This document discusses different areas of a kitchen and food preparation. When the tap is on, a valve inside moves up to open a water chamber, allowing water to flow out of the spout. A hot kitchen is culinary term which describes the area of the kitchen where the cooking is prepare that needs fire to be. Kitchen taps are. What Is Hot And Cold Kitchen.
From www.wowowfaucet.com
Wowow Separate Hot And Cold Kitchen Taps Chrome What Is Hot And Cold Kitchen This document discusses different areas of a kitchen and food preparation. The kitchen must have adequate facilities for cleaning and disinfecting any tools, utensils and equipment used in the storage, preparation and. It describes the cold kitchen, where foods presented cold like salads and desserts are made, using. The environment in a hot kitchen is typically warm due to the. What Is Hot And Cold Kitchen.
From fesmag.com
Open Kitchens The Show Goes On Foodservice Equipment & Supplies What Is Hot And Cold Kitchen In contrast, a cold kitchen, also. This document discusses different areas of a kitchen and food preparation. A hot kitchen is culinary term which describes the area of the kitchen where the cooking is prepare that needs fire to be. The kitchen must have adequate facilities for cleaning and disinfecting any tools, utensils and equipment used in the storage, preparation. What Is Hot And Cold Kitchen.
From www.edrawsoft.com
Free Editable Kitchen Floor Plan Examples & Templates EdrawMax What Is Hot And Cold Kitchen The environment in a hot kitchen is typically warm due to the cooking processes, and it requires proper ventilation to manage heat and smoke. This document discusses different areas of a kitchen and food preparation. In contrast, a cold kitchen, also. It describes the cold kitchen, where foods presented cold like salads and desserts are made, using. If the house. What Is Hot And Cold Kitchen.
From www.researchgate.net
Floor plan of the hot working area of casestudy kitchens and layout of What Is Hot And Cold Kitchen If the house has a typical non combi heating system with feed tank in the loft and h/w cylinder in a cupboard, then 22mm feed for the. The environment in a hot kitchen is typically warm due to the cooking processes, and it requires proper ventilation to manage heat and smoke. A hot kitchen is culinary term which describes the. What Is Hot And Cold Kitchen.
From www.builderonline.com
What's Hot and Cold In Kitchen Trends Builder Magazine What Is Hot And Cold Kitchen This document discusses different areas of a kitchen and food preparation. In contrast, a cold kitchen, also. When the tap is on, a valve inside moves up to open a water chamber, allowing water to flow out of the spout. If the house has a typical non combi heating system with feed tank in the loft and h/w cylinder in. What Is Hot And Cold Kitchen.
From elegantinteriordesigns.com
Hot (And Cold) Kitchen Trends 2016 Elegant Interior Designs What Is Hot And Cold Kitchen The environment in a hot kitchen is typically warm due to the cooking processes, and it requires proper ventilation to manage heat and smoke. The kitchen must have adequate facilities for cleaning and disinfecting any tools, utensils and equipment used in the storage, preparation and. A hot kitchen is culinary term which describes the area of the kitchen where the. What Is Hot And Cold Kitchen.
From shunshelter.com
Decoding The Differences Identifying The Hot And Cold Sides Of A What Is Hot And Cold Kitchen The kitchen must have adequate facilities for cleaning and disinfecting any tools, utensils and equipment used in the storage, preparation and. In contrast, a cold kitchen, also. If the house has a typical non combi heating system with feed tank in the loft and h/w cylinder in a cupboard, then 22mm feed for the. This document discusses different areas of. What Is Hot And Cold Kitchen.
From www.nicholasbridger.co.uk
Kitchen Layout Inspiration Nicholas Bridger What Is Hot And Cold Kitchen The kitchen must have adequate facilities for cleaning and disinfecting any tools, utensils and equipment used in the storage, preparation and. When the tap is on, a valve inside moves up to open a water chamber, allowing water to flow out of the spout. If the house has a typical non combi heating system with feed tank in the loft. What Is Hot And Cold Kitchen.
From www.cnehoo.com
China DZR Brass Kitchen Hot And Cold Faucet With 360 Degree Turning What Is Hot And Cold Kitchen When the tap is on, a valve inside moves up to open a water chamber, allowing water to flow out of the spout. Kitchen taps are connected to cold and hot water supplies. A hot kitchen is culinary term which describes the area of the kitchen where the cooking is prepare that needs fire to be. In contrast, a cold. What Is Hot And Cold Kitchen.
From www.schmittheating.com
How to Eliminate Hot and Cold Spots in Your Home What Is Hot And Cold Kitchen Kitchen taps are connected to cold and hot water supplies. In contrast, a cold kitchen, also. A hot kitchen is culinary term which describes the area of the kitchen where the cooking is prepare that needs fire to be. The kitchen must have adequate facilities for cleaning and disinfecting any tools, utensils and equipment used in the storage, preparation and.. What Is Hot And Cold Kitchen.
From burnhillkitchens.co.uk
How to make a cold kitchen warmer What Is Hot And Cold Kitchen The environment in a hot kitchen is typically warm due to the cooking processes, and it requires proper ventilation to manage heat and smoke. The kitchen must have adequate facilities for cleaning and disinfecting any tools, utensils and equipment used in the storage, preparation and. In contrast, a cold kitchen, also. If the house has a typical non combi heating. What Is Hot And Cold Kitchen.
From www.slideshare.net
HOt and cold kitchen What Is Hot And Cold Kitchen It describes the cold kitchen, where foods presented cold like salads and desserts are made, using. A hot kitchen is culinary term which describes the area of the kitchen where the cooking is prepare that needs fire to be. The environment in a hot kitchen is typically warm due to the cooking processes, and it requires proper ventilation to manage. What Is Hot And Cold Kitchen.
From www.philodex.com
Küchen Set Up F&B Consultant Walter Sperger What Is Hot And Cold Kitchen This document discusses different areas of a kitchen and food preparation. In contrast, a cold kitchen, also. It describes the cold kitchen, where foods presented cold like salads and desserts are made, using. Kitchen taps are connected to cold and hot water supplies. When the tap is on, a valve inside moves up to open a water chamber, allowing water. What Is Hot And Cold Kitchen.
From wowtutorial.org
Electric Plinth Heaters For Kitchens Reviews Wow Blog What Is Hot And Cold Kitchen Kitchen taps are connected to cold and hot water supplies. In contrast, a cold kitchen, also. It describes the cold kitchen, where foods presented cold like salads and desserts are made, using. If the house has a typical non combi heating system with feed tank in the loft and h/w cylinder in a cupboard, then 22mm feed for the. A. What Is Hot And Cold Kitchen.
From www.pinterest.com
Easy Eats Blog » Behind the Line Restaurant kitchen, Restaurant What Is Hot And Cold Kitchen Kitchen taps are connected to cold and hot water supplies. It describes the cold kitchen, where foods presented cold like salads and desserts are made, using. In contrast, a cold kitchen, also. The environment in a hot kitchen is typically warm due to the cooking processes, and it requires proper ventilation to manage heat and smoke. The kitchen must have. What Is Hot And Cold Kitchen.
From www.hrcacademy.com
Hot and Cold Kitchen 14 week Culinary Course What Is Hot And Cold Kitchen In contrast, a cold kitchen, also. If the house has a typical non combi heating system with feed tank in the loft and h/w cylinder in a cupboard, then 22mm feed for the. It describes the cold kitchen, where foods presented cold like salads and desserts are made, using. A hot kitchen is culinary term which describes the area of. What Is Hot And Cold Kitchen.
From issuu.com
Kitchen Cooling Appliances by Hot cold equipments by Jose Issuu What Is Hot And Cold Kitchen If the house has a typical non combi heating system with feed tank in the loft and h/w cylinder in a cupboard, then 22mm feed for the. The kitchen must have adequate facilities for cleaning and disinfecting any tools, utensils and equipment used in the storage, preparation and. Kitchen taps are connected to cold and hot water supplies. When the. What Is Hot And Cold Kitchen.
From www.cnehoo.com
China DZR Brass Kitchen Hot And Cold Faucet With 360 Degree Turning What Is Hot And Cold Kitchen Kitchen taps are connected to cold and hot water supplies. In contrast, a cold kitchen, also. The kitchen must have adequate facilities for cleaning and disinfecting any tools, utensils and equipment used in the storage, preparation and. When the tap is on, a valve inside moves up to open a water chamber, allowing water to flow out of the spout.. What Is Hot And Cold Kitchen.
From www.slideshare.net
HOt and cold kitchen What Is Hot And Cold Kitchen If the house has a typical non combi heating system with feed tank in the loft and h/w cylinder in a cupboard, then 22mm feed for the. This document discusses different areas of a kitchen and food preparation. The environment in a hot kitchen is typically warm due to the cooking processes, and it requires proper ventilation to manage heat. What Is Hot And Cold Kitchen.