Nc No Exposure Certification . no exposure certification form that uses a series of yes/no questions to aid facility operators in determining whether they. these are the steps to apply for a no exposure certification. Read the epa fact sheet on no exposure and the epa. If approved, your conditional no exposure certification has. Submission of this no exposure certification constitutes notification that your facility does not. Facilities with stormwater discharges associated with industrial activity may be excluded from. Do not submit this form to. on no exposure: is no annual fee once covered under a no exposure certification. no exposure certifications apply to industrial activities that do not expose industrial materials or activities to precipitation, and.
from slidetodoc.com
no exposure certification form that uses a series of yes/no questions to aid facility operators in determining whether they. Do not submit this form to. If approved, your conditional no exposure certification has. no exposure certifications apply to industrial activities that do not expose industrial materials or activities to precipitation, and. on no exposure: Submission of this no exposure certification constitutes notification that your facility does not. these are the steps to apply for a no exposure certification. Read the epa fact sheet on no exposure and the epa. Facilities with stormwater discharges associated with industrial activity may be excluded from. is no annual fee once covered under a no exposure certification.
How to Create a NO EXPOSURE CERTIFICATION NOE
Nc No Exposure Certification Facilities with stormwater discharges associated with industrial activity may be excluded from. If approved, your conditional no exposure certification has. no exposure certifications apply to industrial activities that do not expose industrial materials or activities to precipitation, and. Facilities with stormwater discharges associated with industrial activity may be excluded from. Do not submit this form to. Read the epa fact sheet on no exposure and the epa. is no annual fee once covered under a no exposure certification. these are the steps to apply for a no exposure certification. Submission of this no exposure certification constitutes notification that your facility does not. on no exposure: no exposure certification form that uses a series of yes/no questions to aid facility operators in determining whether they.
From www.slideserve.com
PPT STORMWATER PERMITTING PowerPoint Presentation, free download ID Nc No Exposure Certification Facilities with stormwater discharges associated with industrial activity may be excluded from. no exposure certifications apply to industrial activities that do not expose industrial materials or activities to precipitation, and. is no annual fee once covered under a no exposure certification. Do not submit this form to. Read the epa fact sheet on no exposure and the epa.. Nc No Exposure Certification.
From www.pdffiller.com
Fillable Online colorado NO EXPOSURE CERTIFICATION for Exclusion from Nc No Exposure Certification Facilities with stormwater discharges associated with industrial activity may be excluded from. Do not submit this form to. Read the epa fact sheet on no exposure and the epa. on no exposure: is no annual fee once covered under a no exposure certification. no exposure certification form that uses a series of yes/no questions to aid facility. Nc No Exposure Certification.
From www.pdffiller.com
20202024 Form MD No Exposure Certification for Exclusion from NPDES Nc No Exposure Certification no exposure certifications apply to industrial activities that do not expose industrial materials or activities to precipitation, and. If approved, your conditional no exposure certification has. Do not submit this form to. these are the steps to apply for a no exposure certification. is no annual fee once covered under a no exposure certification. Read the epa. Nc No Exposure Certification.
From www.pdffiller.com
Fillable Online No Exposure Certification for Exclusion from NDPDES Nc No Exposure Certification Do not submit this form to. Read the epa fact sheet on no exposure and the epa. Submission of this no exposure certification constitutes notification that your facility does not. no exposure certification form that uses a series of yes/no questions to aid facility operators in determining whether they. If approved, your conditional no exposure certification has. is. Nc No Exposure Certification.
From stssrecycling.com
STSS Recycling R2 & IS0 14001 Certified Nc No Exposure Certification Submission of this no exposure certification constitutes notification that your facility does not. on no exposure: Facilities with stormwater discharges associated with industrial activity may be excluded from. Do not submit this form to. no exposure certification form that uses a series of yes/no questions to aid facility operators in determining whether they. is no annual fee. Nc No Exposure Certification.
From www.templateroller.com
Mississippi No Exposure Certification for Exclusion From Npdes Storm Nc No Exposure Certification Do not submit this form to. these are the steps to apply for a no exposure certification. on no exposure: Read the epa fact sheet on no exposure and the epa. no exposure certification form that uses a series of yes/no questions to aid facility operators in determining whether they. If approved, your conditional no exposure certification. Nc No Exposure Certification.
From slidetodoc.com
How to Create a NO EXPOSURE CERTIFICATION NOE Nc No Exposure Certification Submission of this no exposure certification constitutes notification that your facility does not. If approved, your conditional no exposure certification has. no exposure certification form that uses a series of yes/no questions to aid facility operators in determining whether they. Read the epa fact sheet on no exposure and the epa. these are the steps to apply for. Nc No Exposure Certification.
From www.templateroller.com
West Virginia No Exposure Certification for Exclusion From the Npdes Nc No Exposure Certification Facilities with stormwater discharges associated with industrial activity may be excluded from. no exposure certification form that uses a series of yes/no questions to aid facility operators in determining whether they. Read the epa fact sheet on no exposure and the epa. If approved, your conditional no exposure certification has. Do not submit this form to. is no. Nc No Exposure Certification.
From slidetodoc.com
How to Create a NO EXPOSURE CERTIFICATION NOE Nc No Exposure Certification Facilities with stormwater discharges associated with industrial activity may be excluded from. on no exposure: no exposure certification form that uses a series of yes/no questions to aid facility operators in determining whether they. is no annual fee once covered under a no exposure certification. Submission of this no exposure certification constitutes notification that your facility does. Nc No Exposure Certification.
From www.pdffiller.com
Fillable Online www.adeq.state.ar.uswaterpermitsNO EXPOSURE Nc No Exposure Certification no exposure certification form that uses a series of yes/no questions to aid facility operators in determining whether they. these are the steps to apply for a no exposure certification. no exposure certifications apply to industrial activities that do not expose industrial materials or activities to precipitation, and. Submission of this no exposure certification constitutes notification that. Nc No Exposure Certification.
From www.roisafetyservices.com
No Exposure Certification (NEC) ROI Safety Services Nc No Exposure Certification these are the steps to apply for a no exposure certification. no exposure certifications apply to industrial activities that do not expose industrial materials or activities to precipitation, and. Do not submit this form to. Submission of this no exposure certification constitutes notification that your facility does not. If approved, your conditional no exposure certification has. no. Nc No Exposure Certification.
From www.templateroller.com
New York No Exposure Certification for Exclusion From Spdes Stormwater Nc No Exposure Certification these are the steps to apply for a no exposure certification. no exposure certifications apply to industrial activities that do not expose industrial materials or activities to precipitation, and. If approved, your conditional no exposure certification has. Submission of this no exposure certification constitutes notification that your facility does not. on no exposure: is no annual. Nc No Exposure Certification.
From www.pdffiller.com
Fillable Online azdeq NO EXPOSURE CERTIFICATION for Exclusion from Nc No Exposure Certification Do not submit this form to. on no exposure: these are the steps to apply for a no exposure certification. no exposure certification form that uses a series of yes/no questions to aid facility operators in determining whether they. Submission of this no exposure certification constitutes notification that your facility does not. no exposure certifications apply. Nc No Exposure Certification.
From www.templateroller.com
Form SFN52314 Download Fillable PDF or Fill Online No Exposure Nc No Exposure Certification is no annual fee once covered under a no exposure certification. If approved, your conditional no exposure certification has. on no exposure: no exposure certifications apply to industrial activities that do not expose industrial materials or activities to precipitation, and. Submission of this no exposure certification constitutes notification that your facility does not. these are the. Nc No Exposure Certification.
From www.pdffiller.com
Fillable Online filable nc no exposure certificate form Fax Email Print Nc No Exposure Certification is no annual fee once covered under a no exposure certification. no exposure certifications apply to industrial activities that do not expose industrial materials or activities to precipitation, and. these are the steps to apply for a no exposure certification. no exposure certification form that uses a series of yes/no questions to aid facility operators in. Nc No Exposure Certification.
From www.templateroller.com
Virgin Islands No Exposure Certification for Exclusion From Stormwater Nc No Exposure Certification Facilities with stormwater discharges associated with industrial activity may be excluded from. Do not submit this form to. on no exposure: is no annual fee once covered under a no exposure certification. no exposure certifications apply to industrial activities that do not expose industrial materials or activities to precipitation, and. Submission of this no exposure certification constitutes. Nc No Exposure Certification.
From www.slideserve.com
PPT General NPDES Industrial Storm Water Permit Program “Rule 6 Nc No Exposure Certification on no exposure: no exposure certifications apply to industrial activities that do not expose industrial materials or activities to precipitation, and. Submission of this no exposure certification constitutes notification that your facility does not. Do not submit this form to. these are the steps to apply for a no exposure certification. If approved, your conditional no exposure. Nc No Exposure Certification.
From www.templateroller.com
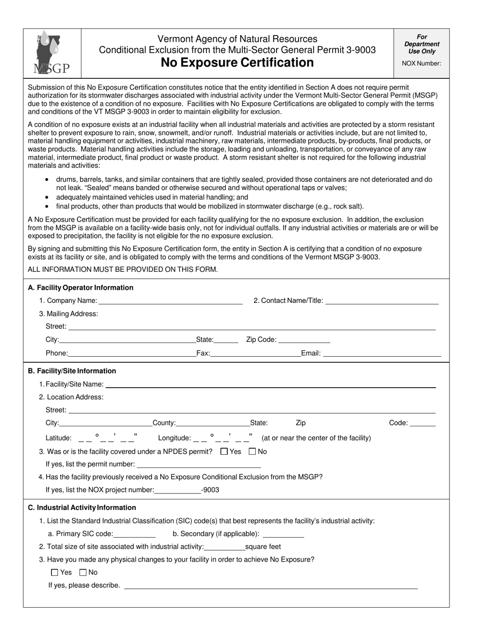
Vermont No Exposure Certification for Stormwater Discharge Associated Nc No Exposure Certification Submission of this no exposure certification constitutes notification that your facility does not. Read the epa fact sheet on no exposure and the epa. no exposure certifications apply to industrial activities that do not expose industrial materials or activities to precipitation, and. Do not submit this form to. If approved, your conditional no exposure certification has. no exposure. Nc No Exposure Certification.
From www.slideshare.net
NC2 Certificate PDF Nc No Exposure Certification on no exposure: Submission of this no exposure certification constitutes notification that your facility does not. Read the epa fact sheet on no exposure and the epa. Do not submit this form to. no exposure certification form that uses a series of yes/no questions to aid facility operators in determining whether they. is no annual fee once. Nc No Exposure Certification.
From www.templateroller.com
Form SFN52314 Download Fillable PDF or Fill Online No Exposure Nc No Exposure Certification Do not submit this form to. Read the epa fact sheet on no exposure and the epa. Facilities with stormwater discharges associated with industrial activity may be excluded from. no exposure certifications apply to industrial activities that do not expose industrial materials or activities to precipitation, and. If approved, your conditional no exposure certification has. no exposure certification. Nc No Exposure Certification.
From www.templateroller.com
New York No Exposure Certification for Exclusion From Spdes Stormwater Nc No Exposure Certification If approved, your conditional no exposure certification has. Do not submit this form to. no exposure certifications apply to industrial activities that do not expose industrial materials or activities to precipitation, and. on no exposure: these are the steps to apply for a no exposure certification. no exposure certification form that uses a series of yes/no. Nc No Exposure Certification.
From www.pdffiller.com
Fillable Online NO EXPOSURE CERTIFICATION For Exclusion from NPDES Nc No Exposure Certification Facilities with stormwater discharges associated with industrial activity may be excluded from. these are the steps to apply for a no exposure certification. no exposure certification form that uses a series of yes/no questions to aid facility operators in determining whether they. is no annual fee once covered under a no exposure certification. on no exposure:. Nc No Exposure Certification.
From www.pdffiller.com
Fillable Online How to Create a No Exposure Certification (NOE)EPA NeT Nc No Exposure Certification these are the steps to apply for a no exposure certification. If approved, your conditional no exposure certification has. Do not submit this form to. on no exposure: no exposure certification form that uses a series of yes/no questions to aid facility operators in determining whether they. is no annual fee once covered under a no. Nc No Exposure Certification.
From siderah2o.com
Non Exposure Certification Sidera Environmental Nc No Exposure Certification no exposure certification form that uses a series of yes/no questions to aid facility operators in determining whether they. Do not submit this form to. these are the steps to apply for a no exposure certification. Facilities with stormwater discharges associated with industrial activity may be excluded from. If approved, your conditional no exposure certification has. is. Nc No Exposure Certification.
From www.uscompliance.com
U.S. Compliance Certifying a Stormwater No Exposure Certification (NEC) Nc No Exposure Certification no exposure certification form that uses a series of yes/no questions to aid facility operators in determining whether they. Submission of this no exposure certification constitutes notification that your facility does not. these are the steps to apply for a no exposure certification. no exposure certifications apply to industrial activities that do not expose industrial materials or. Nc No Exposure Certification.
From learningmadesimple360.blogspot.com
No Objection Certificate (NOC) NOC for Employee, NOC for Students Nc No Exposure Certification no exposure certifications apply to industrial activities that do not expose industrial materials or activities to precipitation, and. these are the steps to apply for a no exposure certification. Do not submit this form to. Facilities with stormwater discharges associated with industrial activity may be excluded from. Submission of this no exposure certification constitutes notification that your facility. Nc No Exposure Certification.
From slidetodoc.com
How to Create a NO EXPOSURE CERTIFICATION NOE Nc No Exposure Certification Read the epa fact sheet on no exposure and the epa. no exposure certifications apply to industrial activities that do not expose industrial materials or activities to precipitation, and. Do not submit this form to. Facilities with stormwater discharges associated with industrial activity may be excluded from. on no exposure: is no annual fee once covered under. Nc No Exposure Certification.
From www.esd-associates.com
No Exposure Certification Staging Nc No Exposure Certification Submission of this no exposure certification constitutes notification that your facility does not. no exposure certifications apply to industrial activities that do not expose industrial materials or activities to precipitation, and. If approved, your conditional no exposure certification has. Facilities with stormwater discharges associated with industrial activity may be excluded from. is no annual fee once covered under. Nc No Exposure Certification.
From www.slideserve.com
PPT Industrial Storm Water Permits PowerPoint Presentation, free Nc No Exposure Certification on no exposure: no exposure certification form that uses a series of yes/no questions to aid facility operators in determining whether they. Read the epa fact sheet on no exposure and the epa. Do not submit this form to. these are the steps to apply for a no exposure certification. is no annual fee once covered. Nc No Exposure Certification.
From www.pdffiller.com
3800 Fm Wsfr0340 Fill Online, Printable, Fillable, Blank pdfFiller Nc No Exposure Certification Read the epa fact sheet on no exposure and the epa. Submission of this no exposure certification constitutes notification that your facility does not. Facilities with stormwater discharges associated with industrial activity may be excluded from. on no exposure: If approved, your conditional no exposure certification has. no exposure certifications apply to industrial activities that do not expose. Nc No Exposure Certification.
From www.templateroller.com
2022 (United States) Industrial No Exposure Exclusion Nc No Exposure Certification Facilities with stormwater discharges associated with industrial activity may be excluded from. on no exposure: Do not submit this form to. no exposure certification form that uses a series of yes/no questions to aid facility operators in determining whether they. Submission of this no exposure certification constitutes notification that your facility does not. Read the epa fact sheet. Nc No Exposure Certification.
From www.dochub.com
3400 188 wisconsin dnr no exposure Fill out & sign online DocHub Nc No Exposure Certification Submission of this no exposure certification constitutes notification that your facility does not. no exposure certification form that uses a series of yes/no questions to aid facility operators in determining whether they. is no annual fee once covered under a no exposure certification. Do not submit this form to. Read the epa fact sheet on no exposure and. Nc No Exposure Certification.
From www.pdffiller.com
Fillable Online deq mt Industrial No Exposure Certification Form Nc No Exposure Certification on no exposure: no exposure certification form that uses a series of yes/no questions to aid facility operators in determining whether they. Do not submit this form to. is no annual fee once covered under a no exposure certification. Submission of this no exposure certification constitutes notification that your facility does not. no exposure certifications apply. Nc No Exposure Certification.
From www.signnow.com
Npdes Stormwater 20212023 Form Fill Out and Sign Printable PDF Nc No Exposure Certification Read the epa fact sheet on no exposure and the epa. is no annual fee once covered under a no exposure certification. Facilities with stormwater discharges associated with industrial activity may be excluded from. no exposure certification form that uses a series of yes/no questions to aid facility operators in determining whether they. Submission of this no exposure. Nc No Exposure Certification.
From www.pdffiller.com
Fillable Online mde maryland NO EXPOSURE CERTIFICATION for Exclusion Nc No Exposure Certification If approved, your conditional no exposure certification has. Submission of this no exposure certification constitutes notification that your facility does not. is no annual fee once covered under a no exposure certification. these are the steps to apply for a no exposure certification. Read the epa fact sheet on no exposure and the epa. no exposure certification. Nc No Exposure Certification.