How To Rebar Stairs . One critical step is placing. build a rebar cage into your form. this is the sturdiest and coolest looking stair rail you can build yourself. 20 steps for installation of steel reinforcement: Building with concrete involves many steps to achieve the best results, including forming, grading, placing, and finishing. This process involves using specialized metal wire to secure rebar. A rebar cage will provide additional reinforcement and help your stairs last. one part of the rebar placement process that is often overlooked involves rebar tying. I've been seeing rebar used for a ton of outdoor. here are the 20 steps for installation of rebar / reinforcement for staircase. how to tie rebar. learn how to install rebar in small concrete stairway. this video shows complete step by step on site live demonstration of rebar.
from www.youtube.com
this is the sturdiest and coolest looking stair rail you can build yourself. one part of the rebar placement process that is often overlooked involves rebar tying. Building with concrete involves many steps to achieve the best results, including forming, grading, placing, and finishing. This process involves using specialized metal wire to secure rebar. learn how to install rebar in small concrete stairway. I've been seeing rebar used for a ton of outdoor. One critical step is placing. how to tie rebar. build a rebar cage into your form. A rebar cage will provide additional reinforcement and help your stairs last.
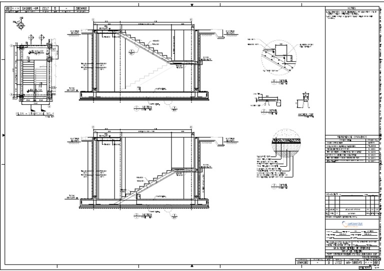
Stairs reinforcement stairs rebar detailing 3d animation of stairs
How To Rebar Stairs learn how to install rebar in small concrete stairway. build a rebar cage into your form. One critical step is placing. This process involves using specialized metal wire to secure rebar. Building with concrete involves many steps to achieve the best results, including forming, grading, placing, and finishing. 20 steps for installation of steel reinforcement: how to tie rebar. here are the 20 steps for installation of rebar / reinforcement for staircase. I've been seeing rebar used for a ton of outdoor. one part of the rebar placement process that is often overlooked involves rebar tying. learn how to install rebar in small concrete stairway. this video shows complete step by step on site live demonstration of rebar. A rebar cage will provide additional reinforcement and help your stairs last. this is the sturdiest and coolest looking stair rail you can build yourself.
From www.youtube.com
Rebar in Stairs in Revit Tutorial YouTube How To Rebar Stairs one part of the rebar placement process that is often overlooked involves rebar tying. A rebar cage will provide additional reinforcement and help your stairs last. This process involves using specialized metal wire to secure rebar. learn how to install rebar in small concrete stairway. Building with concrete involves many steps to achieve the best results, including forming,. How To Rebar Stairs.
From engineeringdiscoveries.com
A comprehensive Guide To detailing RCC Stair Detailing Engineering How To Rebar Stairs here are the 20 steps for installation of rebar / reinforcement for staircase. 20 steps for installation of steel reinforcement: build a rebar cage into your form. One critical step is placing. Building with concrete involves many steps to achieve the best results, including forming, grading, placing, and finishing. A rebar cage will provide additional reinforcement and help. How To Rebar Stairs.
From thecivilengineerings.com
Bar Bending Schedule of Staircase With Single Reinforcement Detail How To Rebar Stairs this video shows complete step by step on site live demonstration of rebar. One critical step is placing. this is the sturdiest and coolest looking stair rail you can build yourself. how to tie rebar. one part of the rebar placement process that is often overlooked involves rebar tying. build a rebar cage into your. How To Rebar Stairs.
From www.youtube.com
How to Install Stair case Rebar YouTube How To Rebar Stairs A rebar cage will provide additional reinforcement and help your stairs last. how to tie rebar. This process involves using specialized metal wire to secure rebar. build a rebar cage into your form. this video shows complete step by step on site live demonstration of rebar. One critical step is placing. this is the sturdiest and. How To Rebar Stairs.
From www.structuraldetails.civilworx.com
Step Reinforcement Detail on a Slab Stairs Cross Section How To Rebar Stairs this video shows complete step by step on site live demonstration of rebar. build a rebar cage into your form. how to tie rebar. One critical step is placing. learn how to install rebar in small concrete stairway. one part of the rebar placement process that is often overlooked involves rebar tying. this is. How To Rebar Stairs.
From www.pinterest.com
Making rebar railings rebar stairs in 2019 House stairs, Interior How To Rebar Stairs learn how to install rebar in small concrete stairway. this video shows complete step by step on site live demonstration of rebar. this is the sturdiest and coolest looking stair rail you can build yourself. I've been seeing rebar used for a ton of outdoor. Building with concrete involves many steps to achieve the best results, including. How To Rebar Stairs.
From www.youtube.com
Stairs reinforcement stairs rebar detailing 3d animation of stairs How To Rebar Stairs Building with concrete involves many steps to achieve the best results, including forming, grading, placing, and finishing. one part of the rebar placement process that is often overlooked involves rebar tying. A rebar cage will provide additional reinforcement and help your stairs last. how to tie rebar. build a rebar cage into your form. 20 steps for. How To Rebar Stairs.
From www.youtube.com
Create Stair Rebar YouTube How To Rebar Stairs how to tie rebar. A rebar cage will provide additional reinforcement and help your stairs last. this is the sturdiest and coolest looking stair rail you can build yourself. here are the 20 steps for installation of rebar / reinforcement for staircase. this video shows complete step by step on site live demonstration of rebar. Building. How To Rebar Stairs.
From www.scribd.com
GA & rebar detail of staircase Building Technology Pedestrian How To Rebar Stairs One critical step is placing. this video shows complete step by step on site live demonstration of rebar. Building with concrete involves many steps to achieve the best results, including forming, grading, placing, and finishing. how to tie rebar. here are the 20 steps for installation of rebar / reinforcement for staircase. This process involves using specialized. How To Rebar Stairs.
From www.railing.design
how to make rebar stair railing Railings Design Resources How To Rebar Stairs this video shows complete step by step on site live demonstration of rebar. One critical step is placing. one part of the rebar placement process that is often overlooked involves rebar tying. build a rebar cage into your form. how to tie rebar. this is the sturdiest and coolest looking stair rail you can build. How To Rebar Stairs.
From www.youtube.com
Staircase Design and Detailing in 10mins Automatic Rebar Details How To Rebar Stairs learn how to install rebar in small concrete stairway. 20 steps for installation of steel reinforcement: this is the sturdiest and coolest looking stair rail you can build yourself. here are the 20 steps for installation of rebar / reinforcement for staircase. how to tie rebar. this video shows complete step by step on site. How To Rebar Stairs.
From thecivilengineerings.com
Bar Bending Schedule of Staircase Staircase Reinforcement Detail How To Rebar Stairs learn how to install rebar in small concrete stairway. I've been seeing rebar used for a ton of outdoor. 20 steps for installation of steel reinforcement: this is the sturdiest and coolest looking stair rail you can build yourself. Building with concrete involves many steps to achieve the best results, including forming, grading, placing, and finishing. This process. How To Rebar Stairs.
From www.youtube.com
Reinforcement of Staircase Explained in Detail YouTube How To Rebar Stairs learn how to install rebar in small concrete stairway. build a rebar cage into your form. A rebar cage will provide additional reinforcement and help your stairs last. One critical step is placing. here are the 20 steps for installation of rebar / reinforcement for staircase. This process involves using specialized metal wire to secure rebar. . How To Rebar Stairs.
From www.youtube.com
Stairs Rebar and Slab Thickness Tutorial YouTube How To Rebar Stairs learn how to install rebar in small concrete stairway. this video shows complete step by step on site live demonstration of rebar. Building with concrete involves many steps to achieve the best results, including forming, grading, placing, and finishing. A rebar cage will provide additional reinforcement and help your stairs last. here are the 20 steps for. How To Rebar Stairs.
From www.youtube.com
How To Install Rebar The Easy Way When Building A Small Concrete How To Rebar Stairs this video shows complete step by step on site live demonstration of rebar. here are the 20 steps for installation of rebar / reinforcement for staircase. learn how to install rebar in small concrete stairway. One critical step is placing. Building with concrete involves many steps to achieve the best results, including forming, grading, placing, and finishing.. How To Rebar Stairs.
From www.youtube.com
Lecture 2 Design of Stair Slab [Reinforced Concrete Slab] YouTube How To Rebar Stairs A rebar cage will provide additional reinforcement and help your stairs last. this is the sturdiest and coolest looking stair rail you can build yourself. learn how to install rebar in small concrete stairway. One critical step is placing. one part of the rebar placement process that is often overlooked involves rebar tying. This process involves using. How To Rebar Stairs.
From www.pinterest.com.au
Your Concrete Source on Instagram “A photo of a set of stairs is being How To Rebar Stairs how to tie rebar. one part of the rebar placement process that is often overlooked involves rebar tying. Building with concrete involves many steps to achieve the best results, including forming, grading, placing, and finishing. this video shows complete step by step on site live demonstration of rebar. I've been seeing rebar used for a ton of. How To Rebar Stairs.
From www.youtube.com
Two Way Slab Basic to Construction Process Rebar Placement YouTube How To Rebar Stairs This process involves using specialized metal wire to secure rebar. this is the sturdiest and coolest looking stair rail you can build yourself. One critical step is placing. learn how to install rebar in small concrete stairway. how to tie rebar. build a rebar cage into your form. this video shows complete step by step. How To Rebar Stairs.
From www.youtube.com
How to Build a Rebar and Wood Hand Rail for Stairs YouTube How To Rebar Stairs 20 steps for installation of steel reinforcement: This process involves using specialized metal wire to secure rebar. I've been seeing rebar used for a ton of outdoor. this video shows complete step by step on site live demonstration of rebar. build a rebar cage into your form. this is the sturdiest and coolest looking stair rail you. How To Rebar Stairs.
From debug.pi.gr
Simply supported staircase continued by How To Rebar Stairs A rebar cage will provide additional reinforcement and help your stairs last. This process involves using specialized metal wire to secure rebar. Building with concrete involves many steps to achieve the best results, including forming, grading, placing, and finishing. I've been seeing rebar used for a ton of outdoor. this video shows complete step by step on site live. How To Rebar Stairs.
From www.youtube.com
Revit Structure 3D Rebar Staircase Reinforcement in Revit YouTube How To Rebar Stairs A rebar cage will provide additional reinforcement and help your stairs last. one part of the rebar placement process that is often overlooked involves rebar tying. This process involves using specialized metal wire to secure rebar. this video shows complete step by step on site live demonstration of rebar. 20 steps for installation of steel reinforcement: here. How To Rebar Stairs.
From www.youtube.com
How to build stair reinforcement details stair construction with beam How To Rebar Stairs build a rebar cage into your form. learn how to install rebar in small concrete stairway. one part of the rebar placement process that is often overlooked involves rebar tying. here are the 20 steps for installation of rebar / reinforcement for staircase. A rebar cage will provide additional reinforcement and help your stairs last. . How To Rebar Stairs.
From shannonsmithnc.weebly.com
How to Deal with Rebar Detailing Visibility in Revit Shannon Smith LLC How To Rebar Stairs this video shows complete step by step on site live demonstration of rebar. here are the 20 steps for installation of rebar / reinforcement for staircase. A rebar cage will provide additional reinforcement and help your stairs last. one part of the rebar placement process that is often overlooked involves rebar tying. 20 steps for installation of. How To Rebar Stairs.
From thecivilengineerings.com
Bar Bending Schedule of Staircase Staircase Reinforcement Detail How To Rebar Stairs learn how to install rebar in small concrete stairway. here are the 20 steps for installation of rebar / reinforcement for staircase. I've been seeing rebar used for a ton of outdoor. 20 steps for installation of steel reinforcement: One critical step is placing. how to tie rebar. Building with concrete involves many steps to achieve the. How To Rebar Stairs.
From debug.pi.gr
Staircase with How To Rebar Stairs 20 steps for installation of steel reinforcement: this is the sturdiest and coolest looking stair rail you can build yourself. This process involves using specialized metal wire to secure rebar. learn how to install rebar in small concrete stairway. how to tie rebar. One critical step is placing. this video shows complete step by step on. How To Rebar Stairs.
From www.pinterest.com
Staircase with rebar spindles. Stairs, Metal building homes, Metal How To Rebar Stairs build a rebar cage into your form. One critical step is placing. This process involves using specialized metal wire to secure rebar. I've been seeing rebar used for a ton of outdoor. one part of the rebar placement process that is often overlooked involves rebar tying. this is the sturdiest and coolest looking stair rail you can. How To Rebar Stairs.
From www.youtube.com
Revit structure Reinforcement of staircase Rebar annotation and How To Rebar Stairs This process involves using specialized metal wire to secure rebar. learn how to install rebar in small concrete stairway. how to tie rebar. this is the sturdiest and coolest looking stair rail you can build yourself. one part of the rebar placement process that is often overlooked involves rebar tying. build a rebar cage into. How To Rebar Stairs.
From www.youtube.com
How to Create Staircase Reinforcement Detail in Revit. Rebar in Revit How To Rebar Stairs I've been seeing rebar used for a ton of outdoor. here are the 20 steps for installation of rebar / reinforcement for staircase. build a rebar cage into your form. Building with concrete involves many steps to achieve the best results, including forming, grading, placing, and finishing. this video shows complete step by step on site live. How To Rebar Stairs.
From www.youtube.com
Spiral Stair Rebar installing YouTube How To Rebar Stairs This process involves using specialized metal wire to secure rebar. Building with concrete involves many steps to achieve the best results, including forming, grading, placing, and finishing. how to tie rebar. I've been seeing rebar used for a ton of outdoor. A rebar cage will provide additional reinforcement and help your stairs last. here are the 20 steps. How To Rebar Stairs.
From www.vrogue.co
How To Detail Rebar Of Staircase In Revit 2021 Otosec vrogue.co How To Rebar Stairs 20 steps for installation of steel reinforcement: Building with concrete involves many steps to achieve the best results, including forming, grading, placing, and finishing. This process involves using specialized metal wire to secure rebar. how to tie rebar. I've been seeing rebar used for a ton of outdoor. learn how to install rebar in small concrete stairway. . How To Rebar Stairs.
From www.vrogue.co
How To Detail Rebar Of Staircase In Revit 2021 Otosec vrogue.co How To Rebar Stairs This process involves using specialized metal wire to secure rebar. One critical step is placing. build a rebar cage into your form. this is the sturdiest and coolest looking stair rail you can build yourself. I've been seeing rebar used for a ton of outdoor. Building with concrete involves many steps to achieve the best results, including forming,. How To Rebar Stairs.
From www.youtube.com
HOW TO REBAR STAIRS IN REVIT YouTube How To Rebar Stairs 20 steps for installation of steel reinforcement: This process involves using specialized metal wire to secure rebar. build a rebar cage into your form. this video shows complete step by step on site live demonstration of rebar. how to tie rebar. I've been seeing rebar used for a ton of outdoor. this is the sturdiest and. How To Rebar Stairs.
From www.railing.design
how to make rebar stair railing Railings Design Resources How To Rebar Stairs one part of the rebar placement process that is often overlooked involves rebar tying. This process involves using specialized metal wire to secure rebar. I've been seeing rebar used for a ton of outdoor. 20 steps for installation of steel reinforcement: Building with concrete involves many steps to achieve the best results, including forming, grading, placing, and finishing. . How To Rebar Stairs.
From dailyengineering.com
Staircase Information And Details Under Construction Daily Engineering How To Rebar Stairs this video shows complete step by step on site live demonstration of rebar. this is the sturdiest and coolest looking stair rail you can build yourself. This process involves using specialized metal wire to secure rebar. 20 steps for installation of steel reinforcement: build a rebar cage into your form. one part of the rebar placement. How To Rebar Stairs.
From www.youtube.com
Design of reinforcement for stair with bar detail YouTube How To Rebar Stairs this video shows complete step by step on site live demonstration of rebar. how to tie rebar. 20 steps for installation of steel reinforcement: A rebar cage will provide additional reinforcement and help your stairs last. This process involves using specialized metal wire to secure rebar. One critical step is placing. here are the 20 steps for. How To Rebar Stairs.