Cherry Hill Planning Board Agenda . Please take notice that the planning board’s regular public meetings will be held fully. Cherry hill township planning board. Aug 19, 2024 — posted aug 15, 2024 4:03 pm. 1 planning board monday, july 15, 2024 agenda 820 mercer st | cherry hill, nj 08002 | tel. Click here to access the upcoming planning board meeting agenda. The cherry hill township planning board will hold its annual reorganization meeting at 7:30 p.m. Public documents for upcoming planning board agenda. Planning board tuesday, january 18, 2022 agenda 820 mercer st | cherry hill, nj 08002 | tel 856.488.7870 | fax 856.661.4746 |. Please visit the board's webpage at: Contributed by agenda watch p. Agendas and meeting minutes can be found here or by using the search feature. August 19, 2024 planning board agenda (pdf) download.
from cherryhillindustrialspace.com
Public documents for upcoming planning board agenda. Click here to access the upcoming planning board meeting agenda. Aug 19, 2024 — posted aug 15, 2024 4:03 pm. Planning board tuesday, january 18, 2022 agenda 820 mercer st | cherry hill, nj 08002 | tel 856.488.7870 | fax 856.661.4746 |. Please take notice that the planning board’s regular public meetings will be held fully. The cherry hill township planning board will hold its annual reorganization meeting at 7:30 p.m. August 19, 2024 planning board agenda (pdf) download. Contributed by agenda watch p. Please visit the board's webpage at: 1 planning board monday, july 15, 2024 agenda 820 mercer st | cherry hill, nj 08002 | tel.
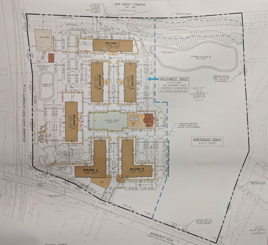
Warehouse on Woodcrest Road in Cherry Hill Going to Planning Board
Cherry Hill Planning Board Agenda The cherry hill township planning board will hold its annual reorganization meeting at 7:30 p.m. Please take notice that the planning board’s regular public meetings will be held fully. 1 planning board monday, july 15, 2024 agenda 820 mercer st | cherry hill, nj 08002 | tel. Cherry hill township planning board. Public documents for upcoming planning board agenda. Agendas and meeting minutes can be found here or by using the search feature. Planning board tuesday, january 18, 2022 agenda 820 mercer st | cherry hill, nj 08002 | tel 856.488.7870 | fax 856.661.4746 |. Click here to access the upcoming planning board meeting agenda. Aug 19, 2024 — posted aug 15, 2024 4:03 pm. Please visit the board's webpage at: The cherry hill township planning board will hold its annual reorganization meeting at 7:30 p.m. August 19, 2024 planning board agenda (pdf) download. Contributed by agenda watch p.
From www.70and73.com
Plan to turn former M'kor Shalom synagogue into Jewish college gets Cherry Hill Planning Board Agenda Aug 19, 2024 — posted aug 15, 2024 4:03 pm. Please visit the board's webpage at: Agendas and meeting minutes can be found here or by using the search feature. August 19, 2024 planning board agenda (pdf) download. Click here to access the upcoming planning board meeting agenda. Cherry hill township planning board. 1 planning board monday, july 15, 2024. Cherry Hill Planning Board Agenda.
From dunwoodynorth.blogspot.com
Heneghan’s Dunwoody Blog Dunwoody City Council Agenda for Monday Cherry Hill Planning Board Agenda Public documents for upcoming planning board agenda. 1 planning board monday, july 15, 2024 agenda 820 mercer st | cherry hill, nj 08002 | tel. Agendas and meeting minutes can be found here or by using the search feature. Contributed by agenda watch p. Cherry hill township planning board. Please take notice that the planning board’s regular public meetings will. Cherry Hill Planning Board Agenda.
From www.njpen.com
Cherry Hill Planning Board Approves Park Blvd. Gateway Redevelopment Cherry Hill Planning Board Agenda 1 planning board monday, july 15, 2024 agenda 820 mercer st | cherry hill, nj 08002 | tel. Please visit the board's webpage at: Cherry hill township planning board. Agendas and meeting minutes can be found here or by using the search feature. Please take notice that the planning board’s regular public meetings will be held fully. The cherry hill. Cherry Hill Planning Board Agenda.
From www.njpen.com
Cherry Hill Planning Board OK’s ‘Victory West’ Redevelopment, Visioning Cherry Hill Planning Board Agenda Cherry hill township planning board. August 19, 2024 planning board agenda (pdf) download. Planning board tuesday, january 18, 2022 agenda 820 mercer st | cherry hill, nj 08002 | tel 856.488.7870 | fax 856.661.4746 |. Aug 19, 2024 — posted aug 15, 2024 4:03 pm. The cherry hill township planning board will hold its annual reorganization meeting at 7:30 p.m.. Cherry Hill Planning Board Agenda.
From www.70and73.com
Planning Board in Cherry Hill to hear controversial Woodcrest warehouse Cherry Hill Planning Board Agenda Please visit the board's webpage at: Please take notice that the planning board’s regular public meetings will be held fully. 1 planning board monday, july 15, 2024 agenda 820 mercer st | cherry hill, nj 08002 | tel. Contributed by agenda watch p. August 19, 2024 planning board agenda (pdf) download. Click here to access the upcoming planning board meeting. Cherry Hill Planning Board Agenda.
From www.njpen.com
Cherry Hill Planning Board Approves Park Blvd. Gateway Redevelopment Cherry Hill Planning Board Agenda August 19, 2024 planning board agenda (pdf) download. Please take notice that the planning board’s regular public meetings will be held fully. Public documents for upcoming planning board agenda. Cherry hill township planning board. Please visit the board's webpage at: Aug 19, 2024 — posted aug 15, 2024 4:03 pm. Contributed by agenda watch p. The cherry hill township planning. Cherry Hill Planning Board Agenda.
From www.70and73.com
Raising Cane's chicken restaurant at Garden State center gets Cherry Cherry Hill Planning Board Agenda Click here to access the upcoming planning board meeting agenda. August 19, 2024 planning board agenda (pdf) download. Contributed by agenda watch p. Please take notice that the planning board’s regular public meetings will be held fully. Planning board tuesday, january 18, 2022 agenda 820 mercer st | cherry hill, nj 08002 | tel 856.488.7870 | fax 856.661.4746 |. Agendas. Cherry Hill Planning Board Agenda.
From coloradoavidgolfer.com
Cherry Hills Unveils its New Look Colorado AvidGolfer Cherry Hill Planning Board Agenda Cherry hill township planning board. 1 planning board monday, july 15, 2024 agenda 820 mercer st | cherry hill, nj 08002 | tel. Click here to access the upcoming planning board meeting agenda. Please take notice that the planning board’s regular public meetings will be held fully. Contributed by agenda watch p. Aug 19, 2024 — posted aug 15, 2024. Cherry Hill Planning Board Agenda.
From www.njpen.com
Cherry Hill Planning Board OK’s ‘Victory West’ Redevelopment, Visioning Cherry Hill Planning Board Agenda Cherry hill township planning board. The cherry hill township planning board will hold its annual reorganization meeting at 7:30 p.m. Aug 19, 2024 — posted aug 15, 2024 4:03 pm. 1 planning board monday, july 15, 2024 agenda 820 mercer st | cherry hill, nj 08002 | tel. August 19, 2024 planning board agenda (pdf) download. Click here to access. Cherry Hill Planning Board Agenda.
From patch.com
Victory Redevelopment Study Ready for Planning Board Cherry Hill, NJ Cherry Hill Planning Board Agenda 1 planning board monday, july 15, 2024 agenda 820 mercer st | cherry hill, nj 08002 | tel. Planning board tuesday, january 18, 2022 agenda 820 mercer st | cherry hill, nj 08002 | tel 856.488.7870 | fax 856.661.4746 |. Click here to access the upcoming planning board meeting agenda. The cherry hill township planning board will hold its annual. Cherry Hill Planning Board Agenda.
From www.njpen.com
Cherry Hill Planning Board Approves Park Blvd. Gateway Redevelopment Plan Cherry Hill Planning Board Agenda Contributed by agenda watch p. Aug 19, 2024 — posted aug 15, 2024 4:03 pm. Public documents for upcoming planning board agenda. Please visit the board's webpage at: Cherry hill township planning board. Agendas and meeting minutes can be found here or by using the search feature. Click here to access the upcoming planning board meeting agenda. 1 planning board. Cherry Hill Planning Board Agenda.
From 6abc.com
Iconic Cherry Hill Diner to be replaced by car wash on Route 38 6abc Cherry Hill Planning Board Agenda The cherry hill township planning board will hold its annual reorganization meeting at 7:30 p.m. Planning board tuesday, january 18, 2022 agenda 820 mercer st | cherry hill, nj 08002 | tel 856.488.7870 | fax 856.661.4746 |. Aug 19, 2024 — posted aug 15, 2024 4:03 pm. Please visit the board's webpage at: 1 planning board monday, july 15, 2024. Cherry Hill Planning Board Agenda.
From cherryhillindustrialspace.com
Warehouse on Woodcrest Road in Cherry Hill Going to Planning Board Cherry Hill Planning Board Agenda Agendas and meeting minutes can be found here or by using the search feature. 1 planning board monday, july 15, 2024 agenda 820 mercer st | cherry hill, nj 08002 | tel. Contributed by agenda watch p. Cherry hill township planning board. Please take notice that the planning board’s regular public meetings will be held fully. Aug 19, 2024 —. Cherry Hill Planning Board Agenda.
From www.njpen.com
Cherry Hill Planning Board OK’s ‘Victory West’ Redevelopment, Visioning Cherry Hill Planning Board Agenda 1 planning board monday, july 15, 2024 agenda 820 mercer st | cherry hill, nj 08002 | tel. August 19, 2024 planning board agenda (pdf) download. Agendas and meeting minutes can be found here or by using the search feature. Aug 19, 2024 — posted aug 15, 2024 4:03 pm. Click here to access the upcoming planning board meeting agenda.. Cherry Hill Planning Board Agenda.
From www.njpen.com
Cherry Hill Planning Board Approves Park Blvd. Gateway Redevelopment Cherry Hill Planning Board Agenda Please visit the board's webpage at: Agendas and meeting minutes can be found here or by using the search feature. Cherry hill township planning board. August 19, 2024 planning board agenda (pdf) download. Click here to access the upcoming planning board meeting agenda. The cherry hill township planning board will hold its annual reorganization meeting at 7:30 p.m. 1 planning. Cherry Hill Planning Board Agenda.
From www.70and73.com
Cherry Hill Planning Board okays a 140room hotel at Garden State Park Cherry Hill Planning Board Agenda Agendas and meeting minutes can be found here or by using the search feature. 1 planning board monday, july 15, 2024 agenda 820 mercer st | cherry hill, nj 08002 | tel. Contributed by agenda watch p. August 19, 2024 planning board agenda (pdf) download. Planning board tuesday, january 18, 2022 agenda 820 mercer st | cherry hill, nj 08002. Cherry Hill Planning Board Agenda.
From www.70and73.com
Cherry Hill Planning Board resolution giving approval Cherry Hill Planning Board Agenda Cherry hill township planning board. Please take notice that the planning board’s regular public meetings will be held fully. The cherry hill township planning board will hold its annual reorganization meeting at 7:30 p.m. Click here to access the upcoming planning board meeting agenda. August 19, 2024 planning board agenda (pdf) download. Aug 19, 2024 — posted aug 15, 2024. Cherry Hill Planning Board Agenda.
From www.70and73.com
Caffe Aldo Lamberti seeks Cherry Hill Planning Board okay to add to its Cherry Hill Planning Board Agenda The cherry hill township planning board will hold its annual reorganization meeting at 7:30 p.m. 1 planning board monday, july 15, 2024 agenda 820 mercer st | cherry hill, nj 08002 | tel. Please visit the board's webpage at: Planning board tuesday, january 18, 2022 agenda 820 mercer st | cherry hill, nj 08002 | tel 856.488.7870 | fax 856.661.4746. Cherry Hill Planning Board Agenda.
From www.youtube.com
Mint Hill Planning Board Meeting YouTube Cherry Hill Planning Board Agenda Please visit the board's webpage at: The cherry hill township planning board will hold its annual reorganization meeting at 7:30 p.m. Contributed by agenda watch p. August 19, 2024 planning board agenda (pdf) download. Planning board tuesday, january 18, 2022 agenda 820 mercer st | cherry hill, nj 08002 | tel 856.488.7870 | fax 856.661.4746 |. Click here to access. Cherry Hill Planning Board Agenda.
From www.70and73.com
Cherry Hill Planning Board approves Cooper's Brace Road expansion, with Cherry Hill Planning Board Agenda August 19, 2024 planning board agenda (pdf) download. Please visit the board's webpage at: 1 planning board monday, july 15, 2024 agenda 820 mercer st | cherry hill, nj 08002 | tel. Cherry hill township planning board. Public documents for upcoming planning board agenda. Planning board tuesday, january 18, 2022 agenda 820 mercer st | cherry hill, nj 08002 |. Cherry Hill Planning Board Agenda.
From www.njpen.com
Cherry Hill Planning Board OK’s ‘Victory West’ Redevelopment, Visioning Cherry Hill Planning Board Agenda Contributed by agenda watch p. Aug 19, 2024 — posted aug 15, 2024 4:03 pm. 1 planning board monday, july 15, 2024 agenda 820 mercer st | cherry hill, nj 08002 | tel. Please take notice that the planning board’s regular public meetings will be held fully. The cherry hill township planning board will hold its annual reorganization meeting at. Cherry Hill Planning Board Agenda.
From www.njpen.com
Cherry Hill Planning Board OK’s ‘Victory West’ Redevelopment, Visioning Cherry Hill Planning Board Agenda Contributed by agenda watch p. Planning board tuesday, january 18, 2022 agenda 820 mercer st | cherry hill, nj 08002 | tel 856.488.7870 | fax 856.661.4746 |. 1 planning board monday, july 15, 2024 agenda 820 mercer st | cherry hill, nj 08002 | tel. Cherry hill township planning board. August 19, 2024 planning board agenda (pdf) download. Click here. Cherry Hill Planning Board Agenda.
From www.chnj.gov
Calendar • Cherry Hill, NJ • CivicEngage Cherry Hill Planning Board Agenda Planning board tuesday, january 18, 2022 agenda 820 mercer st | cherry hill, nj 08002 | tel 856.488.7870 | fax 856.661.4746 |. Aug 19, 2024 — posted aug 15, 2024 4:03 pm. Contributed by agenda watch p. Public documents for upcoming planning board agenda. August 19, 2024 planning board agenda (pdf) download. Cherry hill township planning board. Please visit the. Cherry Hill Planning Board Agenda.
From cherryhillindustrialspace.com
Cherry Hill Planning Board okays warehouse on Woodcrest Road Cherry Cherry Hill Planning Board Agenda Public documents for upcoming planning board agenda. 1 planning board monday, july 15, 2024 agenda 820 mercer st | cherry hill, nj 08002 | tel. Please take notice that the planning board’s regular public meetings will be held fully. Please visit the board's webpage at: Agendas and meeting minutes can be found here or by using the search feature. Planning. Cherry Hill Planning Board Agenda.
From medium.com
Concerns over Wexford Drive redevelopment mark Cherry Hill Planning Cherry Hill Planning Board Agenda Public documents for upcoming planning board agenda. Please visit the board's webpage at: 1 planning board monday, july 15, 2024 agenda 820 mercer st | cherry hill, nj 08002 | tel. Contributed by agenda watch p. Planning board tuesday, january 18, 2022 agenda 820 mercer st | cherry hill, nj 08002 | tel 856.488.7870 | fax 856.661.4746 |. August 19,. Cherry Hill Planning Board Agenda.
From www.70and73.com
With endorsements from residents, Planning Board approves Cherry Hill Cherry Hill Planning Board Agenda Please visit the board's webpage at: Click here to access the upcoming planning board meeting agenda. Please take notice that the planning board’s regular public meetings will be held fully. Aug 19, 2024 — posted aug 15, 2024 4:03 pm. Public documents for upcoming planning board agenda. August 19, 2024 planning board agenda (pdf) download. The cherry hill township planning. Cherry Hill Planning Board Agenda.
From 42freeway.com
Hobby Lobby in Cherry Hill to open soon? 42 Freeway Cherry Hill Planning Board Agenda Aug 19, 2024 — posted aug 15, 2024 4:03 pm. Click here to access the upcoming planning board meeting agenda. Planning board tuesday, january 18, 2022 agenda 820 mercer st | cherry hill, nj 08002 | tel 856.488.7870 | fax 856.661.4746 |. The cherry hill township planning board will hold its annual reorganization meeting at 7:30 p.m. 1 planning board. Cherry Hill Planning Board Agenda.
From www.njpen.com
Cherry Hill Planning Board OK’s ‘Victory West’ Redevelopment, Visioning Cherry Hill Planning Board Agenda Public documents for upcoming planning board agenda. Please visit the board's webpage at: Planning board tuesday, january 18, 2022 agenda 820 mercer st | cherry hill, nj 08002 | tel 856.488.7870 | fax 856.661.4746 |. Click here to access the upcoming planning board meeting agenda. Aug 19, 2024 — posted aug 15, 2024 4:03 pm. 1 planning board monday, july. Cherry Hill Planning Board Agenda.
From studylib.net
Crafton Hills College Planning and Program Review Agenda Cherry Hill Planning Board Agenda Planning board tuesday, january 18, 2022 agenda 820 mercer st | cherry hill, nj 08002 | tel 856.488.7870 | fax 856.661.4746 |. August 19, 2024 planning board agenda (pdf) download. 1 planning board monday, july 15, 2024 agenda 820 mercer st | cherry hill, nj 08002 | tel. Aug 19, 2024 — posted aug 15, 2024 4:03 pm. Please visit. Cherry Hill Planning Board Agenda.
From www.njpen.com
Cherry Hill Planning Board OK’s ‘Victory West’ Redevelopment, Visioning Cherry Hill Planning Board Agenda 1 planning board monday, july 15, 2024 agenda 820 mercer st | cherry hill, nj 08002 | tel. Planning board tuesday, january 18, 2022 agenda 820 mercer st | cherry hill, nj 08002 | tel 856.488.7870 | fax 856.661.4746 |. Please take notice that the planning board’s regular public meetings will be held fully. Aug 19, 2024 — posted aug. Cherry Hill Planning Board Agenda.
From www.70and73.com
Raising Cane's chicken restaurant at Garden State center gets Cherry Cherry Hill Planning Board Agenda Aug 19, 2024 — posted aug 15, 2024 4:03 pm. 1 planning board monday, july 15, 2024 agenda 820 mercer st | cherry hill, nj 08002 | tel. Planning board tuesday, january 18, 2022 agenda 820 mercer st | cherry hill, nj 08002 | tel 856.488.7870 | fax 856.661.4746 |. Public documents for upcoming planning board agenda. Cherry hill township. Cherry Hill Planning Board Agenda.
From www.cherryhillsvillage.com
Calendar • Planning and Zoning Commission Meeting Cherry Hill Planning Board Agenda Aug 19, 2024 — posted aug 15, 2024 4:03 pm. The cherry hill township planning board will hold its annual reorganization meeting at 7:30 p.m. 1 planning board monday, july 15, 2024 agenda 820 mercer st | cherry hill, nj 08002 | tel. August 19, 2024 planning board agenda (pdf) download. Cherry hill township planning board. Public documents for upcoming. Cherry Hill Planning Board Agenda.
From www.70and73.com
Day care center, commercial units on Marlkress Road in Cherry Hill Cherry Hill Planning Board Agenda Planning board tuesday, january 18, 2022 agenda 820 mercer st | cherry hill, nj 08002 | tel 856.488.7870 | fax 856.661.4746 |. Agendas and meeting minutes can be found here or by using the search feature. Please visit the board's webpage at: Cherry hill township planning board. 1 planning board monday, july 15, 2024 agenda 820 mercer st | cherry. Cherry Hill Planning Board Agenda.
From www.70and73.com
How Cooper Health System cut back proposed parking expansion on Brace Cherry Hill Planning Board Agenda Cherry hill township planning board. Please take notice that the planning board’s regular public meetings will be held fully. Aug 19, 2024 — posted aug 15, 2024 4:03 pm. Click here to access the upcoming planning board meeting agenda. Agendas and meeting minutes can be found here or by using the search feature. Please visit the board's webpage at: The. Cherry Hill Planning Board Agenda.
From myemail.constantcontact.com
Mayor's Weekly Message Cherry Hill Planning Board Agenda Please visit the board's webpage at: Agendas and meeting minutes can be found here or by using the search feature. Aug 19, 2024 — posted aug 15, 2024 4:03 pm. Contributed by agenda watch p. Planning board tuesday, january 18, 2022 agenda 820 mercer st | cherry hill, nj 08002 | tel 856.488.7870 | fax 856.661.4746 |. Public documents for. Cherry Hill Planning Board Agenda.