Vinyl Flooring Humidity . Lvf installation that occurs over an unconditioned crawl space, especially in warmer, more humid climates, can significantly slow down vapor under the floor and increase the risk of condensation. Rh tests involves drilling a hole into the concrete and placing a probe to measure the moisture levels. Store the unopened boxes of flooring in the room for at least 48 hours before installation. Use moisture meters or conduct a relative humidity (rh) test to check for moisture under vinyl flooring. The result can be bubbling, warping or cupping of the finished flooring and even cause damage to the subfloor. 4 ways to prevent moisture damage under luxury vinyl flooring. This can happen because of. If you’re building over an unconditioned crawl space and laying lvf, there are a few considerations to keep in mind to promote evaporation on the underside of the flooring system to avoid condensation collection that can lead to rot. Vinyl plank flooring needs to acclimate to the temperature and humidity of the room where it will be installed. Both laminate and vinyl flooring are. However, the many seams in a tile. Regardless of the location or build. Vinyl tile, like the other resilient floors here, is a 100 percent waterproof material.
from www.housedigest.com
Vinyl plank flooring needs to acclimate to the temperature and humidity of the room where it will be installed. Both laminate and vinyl flooring are. 4 ways to prevent moisture damage under luxury vinyl flooring. This can happen because of. Use moisture meters or conduct a relative humidity (rh) test to check for moisture under vinyl flooring. Vinyl tile, like the other resilient floors here, is a 100 percent waterproof material. However, the many seams in a tile. Store the unopened boxes of flooring in the room for at least 48 hours before installation. The result can be bubbling, warping or cupping of the finished flooring and even cause damage to the subfloor. If you’re building over an unconditioned crawl space and laying lvf, there are a few considerations to keep in mind to promote evaporation on the underside of the flooring system to avoid condensation collection that can lead to rot.
Here Is The Ideal Humidity For Your Finished Basement
Vinyl Flooring Humidity Use moisture meters or conduct a relative humidity (rh) test to check for moisture under vinyl flooring. Vinyl tile, like the other resilient floors here, is a 100 percent waterproof material. Use moisture meters or conduct a relative humidity (rh) test to check for moisture under vinyl flooring. Vinyl plank flooring needs to acclimate to the temperature and humidity of the room where it will be installed. Rh tests involves drilling a hole into the concrete and placing a probe to measure the moisture levels. Regardless of the location or build. Store the unopened boxes of flooring in the room for at least 48 hours before installation. If you’re building over an unconditioned crawl space and laying lvf, there are a few considerations to keep in mind to promote evaporation on the underside of the flooring system to avoid condensation collection that can lead to rot. The result can be bubbling, warping or cupping of the finished flooring and even cause damage to the subfloor. However, the many seams in a tile. This can happen because of. Both laminate and vinyl flooring are. Lvf installation that occurs over an unconditioned crawl space, especially in warmer, more humid climates, can significantly slow down vapor under the floor and increase the risk of condensation. 4 ways to prevent moisture damage under luxury vinyl flooring.
From www.pinterest.com
11 Bathroom Hazards That Harm Your Home and Health Vinyl flooring Vinyl Flooring Humidity Rh tests involves drilling a hole into the concrete and placing a probe to measure the moisture levels. Use moisture meters or conduct a relative humidity (rh) test to check for moisture under vinyl flooring. Store the unopened boxes of flooring in the room for at least 48 hours before installation. Both laminate and vinyl flooring are. The result can. Vinyl Flooring Humidity.
From www.impressiveinteriordesign.com
The Best Vinyl Plank Flooring Brands You Need to Know About (Answered) Vinyl Flooring Humidity Rh tests involves drilling a hole into the concrete and placing a probe to measure the moisture levels. Both laminate and vinyl flooring are. Vinyl tile, like the other resilient floors here, is a 100 percent waterproof material. This can happen because of. Store the unopened boxes of flooring in the room for at least 48 hours before installation. Lvf. Vinyl Flooring Humidity.
From www.pinterest.com
Driftwood Grey Luxury Vinyl Flooring Living Room Luxury vinyl Vinyl Flooring Humidity Regardless of the location or build. Store the unopened boxes of flooring in the room for at least 48 hours before installation. Vinyl tile, like the other resilient floors here, is a 100 percent waterproof material. The result can be bubbling, warping or cupping of the finished flooring and even cause damage to the subfloor. 4 ways to prevent moisture. Vinyl Flooring Humidity.
From www.pinterest.com
Smokey Oak Rigid Core Luxury Vinyl Plank Foam Back in 2023 Luxury Vinyl Flooring Humidity Rh tests involves drilling a hole into the concrete and placing a probe to measure the moisture levels. Lvf installation that occurs over an unconditioned crawl space, especially in warmer, more humid climates, can significantly slow down vapor under the floor and increase the risk of condensation. The result can be bubbling, warping or cupping of the finished flooring and. Vinyl Flooring Humidity.
From www.rocktherm.com
21 Unique Humidity for Hardwood Floors Unique Flooring Ideas Vinyl Flooring Humidity Lvf installation that occurs over an unconditioned crawl space, especially in warmer, more humid climates, can significantly slow down vapor under the floor and increase the risk of condensation. Use moisture meters or conduct a relative humidity (rh) test to check for moisture under vinyl flooring. However, the many seams in a tile. This can happen because of. 4 ways. Vinyl Flooring Humidity.
From renovaflooring.com
How Does Humidity Affect Hardwood Floors Renova Flooring Vinyl Flooring Humidity Regardless of the location or build. However, the many seams in a tile. This can happen because of. Both laminate and vinyl flooring are. Store the unopened boxes of flooring in the room for at least 48 hours before installation. Vinyl plank flooring needs to acclimate to the temperature and humidity of the room where it will be installed. The. Vinyl Flooring Humidity.
From tiftrugs.com
Luxury Vinyl Flooring for Rooms with High Humidity David Tiftickjian Vinyl Flooring Humidity Regardless of the location or build. This can happen because of. Use moisture meters or conduct a relative humidity (rh) test to check for moisture under vinyl flooring. However, the many seams in a tile. Lvf installation that occurs over an unconditioned crawl space, especially in warmer, more humid climates, can significantly slow down vapor under the floor and increase. Vinyl Flooring Humidity.
From idaliassalon.com
Waterproof Vinyl Flooring For Basements Idalias Salon Vinyl Flooring Humidity Both laminate and vinyl flooring are. Vinyl tile, like the other resilient floors here, is a 100 percent waterproof material. Regardless of the location or build. If you’re building over an unconditioned crawl space and laying lvf, there are a few considerations to keep in mind to promote evaporation on the underside of the flooring system to avoid condensation collection. Vinyl Flooring Humidity.
From www.bybrittanygoldwyn.com
Is LifeProof Vinyl Flooring Good? Here's My Unbiased Review! Vinyl Flooring Humidity If you’re building over an unconditioned crawl space and laying lvf, there are a few considerations to keep in mind to promote evaporation on the underside of the flooring system to avoid condensation collection that can lead to rot. 4 ways to prevent moisture damage under luxury vinyl flooring. Regardless of the location or build. Store the unopened boxes of. Vinyl Flooring Humidity.
From maymill.ca
Humidity for Hardwood Floors Winter and Summer MayMill Vinyl Flooring Humidity Lvf installation that occurs over an unconditioned crawl space, especially in warmer, more humid climates, can significantly slow down vapor under the floor and increase the risk of condensation. This can happen because of. Regardless of the location or build. Rh tests involves drilling a hole into the concrete and placing a probe to measure the moisture levels. The result. Vinyl Flooring Humidity.
From flooringmarket.com
Laminate and Humidity Flooring Market Vinyl Flooring Humidity If you’re building over an unconditioned crawl space and laying lvf, there are a few considerations to keep in mind to promote evaporation on the underside of the flooring system to avoid condensation collection that can lead to rot. The result can be bubbling, warping or cupping of the finished flooring and even cause damage to the subfloor. Both laminate. Vinyl Flooring Humidity.
From flooringprolab.com
How to Fix Vinyl Plank Floor Buckling and Bulging Vinyl Flooring Humidity This can happen because of. However, the many seams in a tile. Store the unopened boxes of flooring in the room for at least 48 hours before installation. Use moisture meters or conduct a relative humidity (rh) test to check for moisture under vinyl flooring. Vinyl plank flooring needs to acclimate to the temperature and humidity of the room where. Vinyl Flooring Humidity.
From decor.buildmyplace.com
How to Prevent Fading of Your Vinyl Flooring Tips and Tricks Vinyl Flooring Humidity Lvf installation that occurs over an unconditioned crawl space, especially in warmer, more humid climates, can significantly slow down vapor under the floor and increase the risk of condensation. Rh tests involves drilling a hole into the concrete and placing a probe to measure the moisture levels. The result can be bubbling, warping or cupping of the finished flooring and. Vinyl Flooring Humidity.
From floordecorkenya.com
What is Vinyl flooring ? Floor Decor Kenya Vinyl Flooring Humidity Store the unopened boxes of flooring in the room for at least 48 hours before installation. This can happen because of. The result can be bubbling, warping or cupping of the finished flooring and even cause damage to the subfloor. Vinyl tile, like the other resilient floors here, is a 100 percent waterproof material. Lvf installation that occurs over an. Vinyl Flooring Humidity.
From flooringprolab.com
How to Fix Vinyl Plank Floor Buckling and Bulging Vinyl Flooring Humidity 4 ways to prevent moisture damage under luxury vinyl flooring. However, the many seams in a tile. Both laminate and vinyl flooring are. Store the unopened boxes of flooring in the room for at least 48 hours before installation. Rh tests involves drilling a hole into the concrete and placing a probe to measure the moisture levels. Regardless of the. Vinyl Flooring Humidity.
From www.housedigest.com
Here Is The Ideal Humidity For Your Finished Basement Vinyl Flooring Humidity Store the unopened boxes of flooring in the room for at least 48 hours before installation. Rh tests involves drilling a hole into the concrete and placing a probe to measure the moisture levels. This can happen because of. However, the many seams in a tile. Vinyl plank flooring needs to acclimate to the temperature and humidity of the room. Vinyl Flooring Humidity.
From www.homedit.com
Basement Humidity Level What is Ideal? Vinyl Flooring Humidity Regardless of the location or build. Rh tests involves drilling a hole into the concrete and placing a probe to measure the moisture levels. Lvf installation that occurs over an unconditioned crawl space, especially in warmer, more humid climates, can significantly slow down vapor under the floor and increase the risk of condensation. However, the many seams in a tile.. Vinyl Flooring Humidity.
From www.rocktherm.com
12 Spectacular Ideal Humidity for Hardwood Floors 2024 Vinyl Flooring Humidity If you’re building over an unconditioned crawl space and laying lvf, there are a few considerations to keep in mind to promote evaporation on the underside of the flooring system to avoid condensation collection that can lead to rot. Both laminate and vinyl flooring are. The result can be bubbling, warping or cupping of the finished flooring and even cause. Vinyl Flooring Humidity.
From www.jrkflooring.com
How Humidity Affects Hardwood Flooring JRK Flooring Vinyl Flooring Humidity Lvf installation that occurs over an unconditioned crawl space, especially in warmer, more humid climates, can significantly slow down vapor under the floor and increase the risk of condensation. The result can be bubbling, warping or cupping of the finished flooring and even cause damage to the subfloor. Regardless of the location or build. Rh tests involves drilling a hole. Vinyl Flooring Humidity.
From www.pinterest.co.uk
Karndean Palmaria Looselay Luxury Vinyl Flooring 3.15m2 (12 Per Pack Vinyl Flooring Humidity Store the unopened boxes of flooring in the room for at least 48 hours before installation. Regardless of the location or build. Vinyl tile, like the other resilient floors here, is a 100 percent waterproof material. 4 ways to prevent moisture damage under luxury vinyl flooring. Use moisture meters or conduct a relative humidity (rh) test to check for moisture. Vinyl Flooring Humidity.
From tiftrugs.com
Luxury Vinyl Flooring for Rooms with High Humidity David Tiftickjian Vinyl Flooring Humidity The result can be bubbling, warping or cupping of the finished flooring and even cause damage to the subfloor. Use moisture meters or conduct a relative humidity (rh) test to check for moisture under vinyl flooring. 4 ways to prevent moisture damage under luxury vinyl flooring. Lvf installation that occurs over an unconditioned crawl space, especially in warmer, more humid. Vinyl Flooring Humidity.
From www.builddirect.com
Best Flooring Options for High Humidity Areas BuildDirect® Learning Vinyl Flooring Humidity Use moisture meters or conduct a relative humidity (rh) test to check for moisture under vinyl flooring. Vinyl tile, like the other resilient floors here, is a 100 percent waterproof material. If you’re building over an unconditioned crawl space and laying lvf, there are a few considerations to keep in mind to promote evaporation on the underside of the flooring. Vinyl Flooring Humidity.
From learning-center.builddirect.com
Best Flooring Options for High Humidity Areas BuildDirect® Learning Vinyl Flooring Humidity Both laminate and vinyl flooring are. However, the many seams in a tile. 4 ways to prevent moisture damage under luxury vinyl flooring. If you’re building over an unconditioned crawl space and laying lvf, there are a few considerations to keep in mind to promote evaporation on the underside of the flooring system to avoid condensation collection that can lead. Vinyl Flooring Humidity.
From www.superchoicecarpet.ca
Hardwood Flooring in Mississauga Effective Humidity Control Vinyl Flooring Humidity However, the many seams in a tile. Both laminate and vinyl flooring are. 4 ways to prevent moisture damage under luxury vinyl flooring. This can happen because of. Rh tests involves drilling a hole into the concrete and placing a probe to measure the moisture levels. Regardless of the location or build. Store the unopened boxes of flooring in the. Vinyl Flooring Humidity.
From www.builddirect.com
Vinyl vs. Laminate Flooring What's the Difference? BuildDirect Vinyl Flooring Humidity If you’re building over an unconditioned crawl space and laying lvf, there are a few considerations to keep in mind to promote evaporation on the underside of the flooring system to avoid condensation collection that can lead to rot. Regardless of the location or build. This can happen because of. Both laminate and vinyl flooring are. Vinyl plank flooring needs. Vinyl Flooring Humidity.
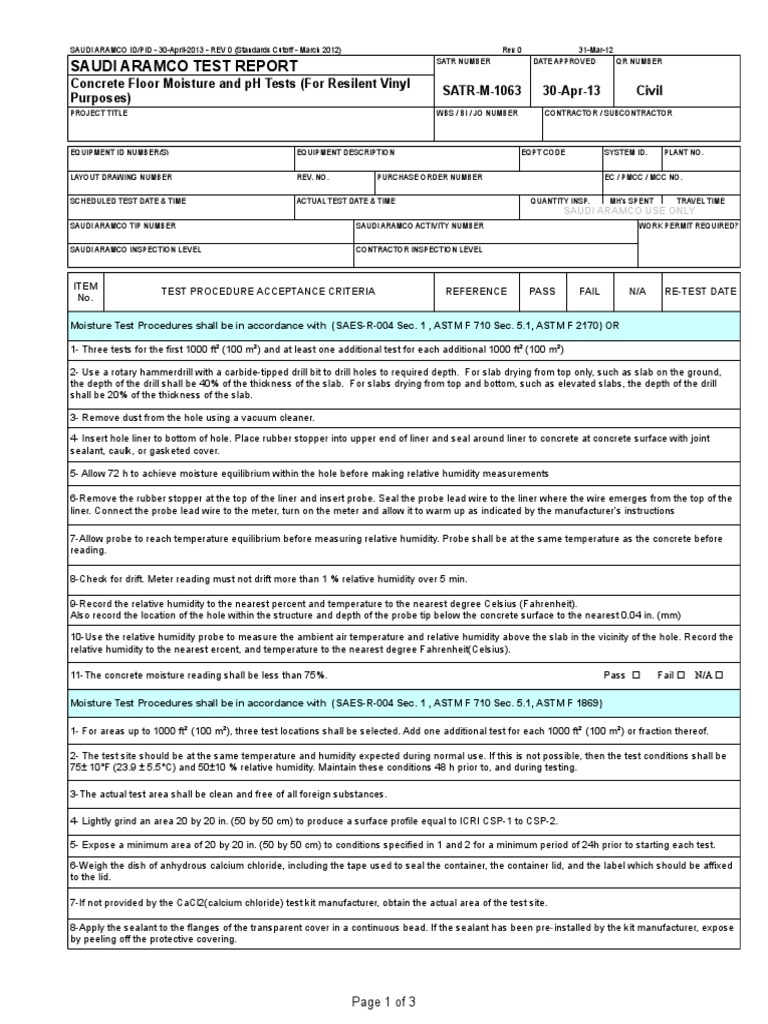
From www.scribd.com
Concrete Moisture and pH Test Results for Resilient Vinyl Flooring Vinyl Flooring Humidity Vinyl plank flooring needs to acclimate to the temperature and humidity of the room where it will be installed. Store the unopened boxes of flooring in the room for at least 48 hours before installation. Use moisture meters or conduct a relative humidity (rh) test to check for moisture under vinyl flooring. Lvf installation that occurs over an unconditioned crawl. Vinyl Flooring Humidity.
From www.bestlaminate.com
Humidity and Laminate Flooring What You need to Know Vinyl Flooring Humidity If you’re building over an unconditioned crawl space and laying lvf, there are a few considerations to keep in mind to promote evaporation on the underside of the flooring system to avoid condensation collection that can lead to rot. Lvf installation that occurs over an unconditioned crawl space, especially in warmer, more humid climates, can significantly slow down vapor under. Vinyl Flooring Humidity.
From www.flooringamerica.com
How to Install Vinyl Flooring in 5 Easy Steps Flooring America Vinyl Flooring Humidity Store the unopened boxes of flooring in the room for at least 48 hours before installation. 4 ways to prevent moisture damage under luxury vinyl flooring. Lvf installation that occurs over an unconditioned crawl space, especially in warmer, more humid climates, can significantly slow down vapor under the floor and increase the risk of condensation. Use moisture meters or conduct. Vinyl Flooring Humidity.
From www.districtfloordepot.com
Everything You Need To Know About Humidity And Flooring Vinyl Flooring Humidity 4 ways to prevent moisture damage under luxury vinyl flooring. If you’re building over an unconditioned crawl space and laying lvf, there are a few considerations to keep in mind to promote evaporation on the underside of the flooring system to avoid condensation collection that can lead to rot. Store the unopened boxes of flooring in the room for at. Vinyl Flooring Humidity.
From precisionflooringservices.com
Why Is My Floor Wet In My House Precision Flooring Services Vinyl Flooring Humidity This can happen because of. Vinyl tile, like the other resilient floors here, is a 100 percent waterproof material. Use moisture meters or conduct a relative humidity (rh) test to check for moisture under vinyl flooring. However, the many seams in a tile. Store the unopened boxes of flooring in the room for at least 48 hours before installation. Both. Vinyl Flooring Humidity.
From www.rocktherm.com
21 Unique Humidity for Hardwood Floors Unique Flooring Ideas Vinyl Flooring Humidity Store the unopened boxes of flooring in the room for at least 48 hours before installation. Regardless of the location or build. Rh tests involves drilling a hole into the concrete and placing a probe to measure the moisture levels. Vinyl plank flooring needs to acclimate to the temperature and humidity of the room where it will be installed. Use. Vinyl Flooring Humidity.
From www.woodandbeyond.com
Best Utility Room Flooring Types, Moisture & Humidity Considered Vinyl Flooring Humidity Rh tests involves drilling a hole into the concrete and placing a probe to measure the moisture levels. 4 ways to prevent moisture damage under luxury vinyl flooring. Vinyl plank flooring needs to acclimate to the temperature and humidity of the room where it will be installed. Lvf installation that occurs over an unconditioned crawl space, especially in warmer, more. Vinyl Flooring Humidity.
From www.pinterest.com
How to Install LifeProof Flooring The Home Depot Flooring Vinyl Flooring Humidity Vinyl plank flooring needs to acclimate to the temperature and humidity of the room where it will be installed. Vinyl tile, like the other resilient floors here, is a 100 percent waterproof material. However, the many seams in a tile. The result can be bubbling, warping or cupping of the finished flooring and even cause damage to the subfloor. If. Vinyl Flooring Humidity.
From floordepotplus.com
Sheet Vinyl Floor Depot Plus Vinyl Flooring Humidity Rh tests involves drilling a hole into the concrete and placing a probe to measure the moisture levels. This can happen because of. 4 ways to prevent moisture damage under luxury vinyl flooring. If you’re building over an unconditioned crawl space and laying lvf, there are a few considerations to keep in mind to promote evaporation on the underside of. Vinyl Flooring Humidity.
From www.reddit.com
The Vinyl floor is buckling/bubbling out, how can we fix this? Is it Vinyl Flooring Humidity However, the many seams in a tile. Lvf installation that occurs over an unconditioned crawl space, especially in warmer, more humid climates, can significantly slow down vapor under the floor and increase the risk of condensation. Vinyl tile, like the other resilient floors here, is a 100 percent waterproof material. 4 ways to prevent moisture damage under luxury vinyl flooring.. Vinyl Flooring Humidity.