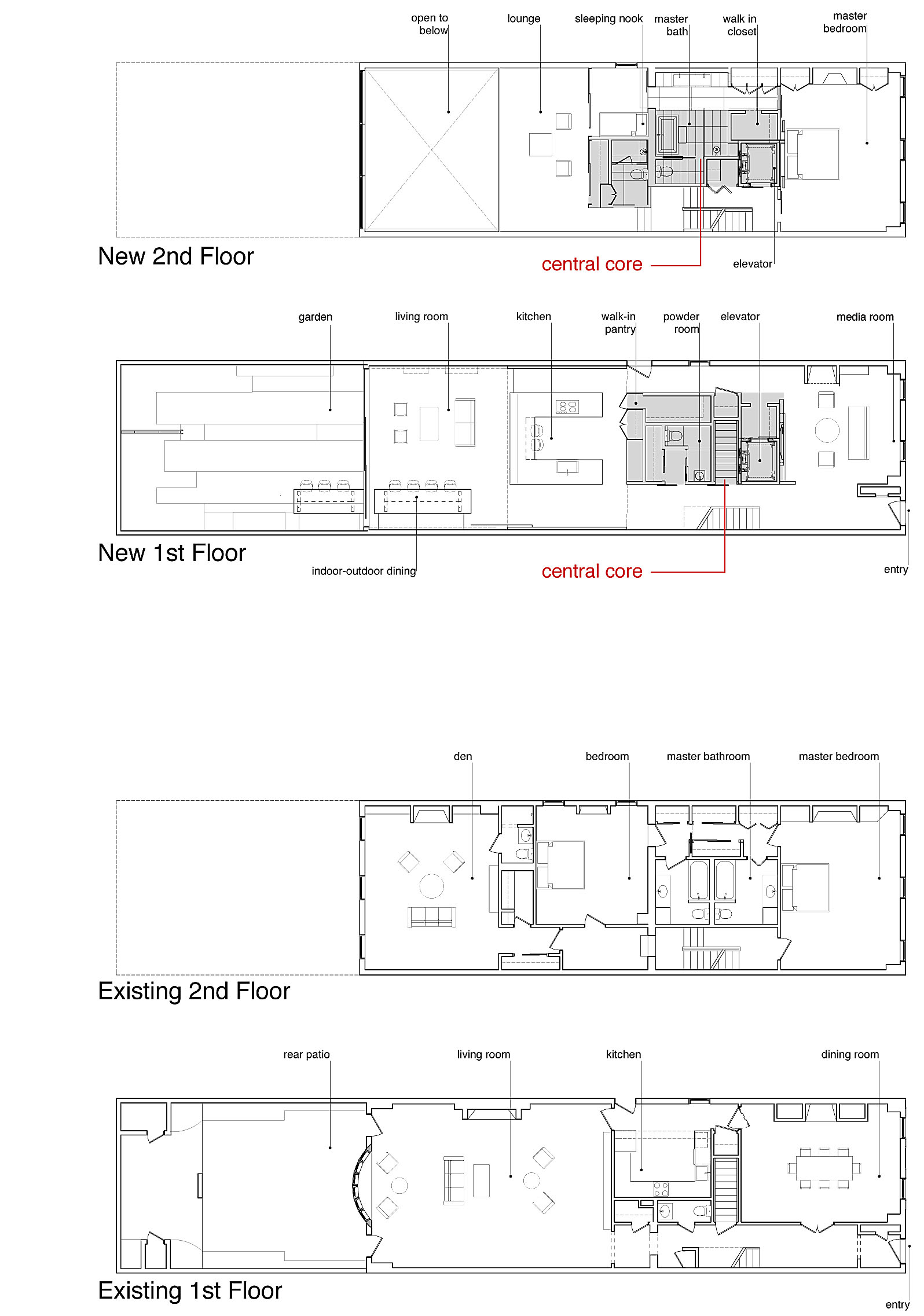
Salt And Pepper House . Find local businesses, view maps and get driving directions in google maps. See 16 unbiased reviews of salt & pepper house,. The house is organized around a central core containing service spaces, which creates a seamless flow along the perimeter, with major. Project posted by kube architecture. The owners of this home love to cook, and their first requirement was a “cook’s kitchen” as the centerpiece of. Salt and pepper house is located in washington and was designed by kube architecture. Completed in 2015 in washington d. Order food online at salt & pepper house, liverpool with tripadvisor:
from www.archdaily.com
The house is organized around a central core containing service spaces, which creates a seamless flow along the perimeter, with major. Find local businesses, view maps and get driving directions in google maps. Salt and pepper house is located in washington and was designed by kube architecture. See 16 unbiased reviews of salt & pepper house,. The owners of this home love to cook, and their first requirement was a “cook’s kitchen” as the centerpiece of. Completed in 2015 in washington d. Order food online at salt & pepper house, liverpool with tripadvisor: Project posted by kube architecture.
Gallery of Salt and Pepper House / Kube Architecture 2
Salt And Pepper House See 16 unbiased reviews of salt & pepper house,. The owners of this home love to cook, and their first requirement was a “cook’s kitchen” as the centerpiece of. Find local businesses, view maps and get driving directions in google maps. Project posted by kube architecture. See 16 unbiased reviews of salt & pepper house,. Order food online at salt & pepper house, liverpool with tripadvisor: Salt and pepper house is located in washington and was designed by kube architecture. The house is organized around a central core containing service spaces, which creates a seamless flow along the perimeter, with major. Completed in 2015 in washington d.
From www.homedsgn.com
Salt and Pepper House by KUBE Architecture Salt And Pepper House See 16 unbiased reviews of salt & pepper house,. Find local businesses, view maps and get driving directions in google maps. The owners of this home love to cook, and their first requirement was a “cook’s kitchen” as the centerpiece of. Salt and pepper house is located in washington and was designed by kube architecture. Order food online at salt. Salt And Pepper House.
From www.homedsgn.com
Salt and Pepper House by KUBE Architecture Salt And Pepper House Completed in 2015 in washington d. See 16 unbiased reviews of salt & pepper house,. Find local businesses, view maps and get driving directions in google maps. Salt and pepper house is located in washington and was designed by kube architecture. The house is organized around a central core containing service spaces, which creates a seamless flow along the perimeter,. Salt And Pepper House.
From archinect.com
Salt and Pepper House KUBE Architecture Archinect Salt And Pepper House Order food online at salt & pepper house, liverpool with tripadvisor: The house is organized around a central core containing service spaces, which creates a seamless flow along the perimeter, with major. Salt and pepper house is located in washington and was designed by kube architecture. Find local businesses, view maps and get driving directions in google maps. The owners. Salt And Pepper House.
From www.archdaily.com
Gallery of Salt and Pepper House / Kube Architecture 10 Salt And Pepper House The owners of this home love to cook, and their first requirement was a “cook’s kitchen” as the centerpiece of. Salt and pepper house is located in washington and was designed by kube architecture. See 16 unbiased reviews of salt & pepper house,. Order food online at salt & pepper house, liverpool with tripadvisor: Find local businesses, view maps and. Salt And Pepper House.
From k2ld.com
Salt & Pepper House K2LD Salt And Pepper House See 16 unbiased reviews of salt & pepper house,. Salt and pepper house is located in washington and was designed by kube architecture. Order food online at salt & pepper house, liverpool with tripadvisor: Project posted by kube architecture. The house is organized around a central core containing service spaces, which creates a seamless flow along the perimeter, with major.. Salt And Pepper House.
From www.designrulz.com
Salt and Pepper House by KUBE Architecture Salt And Pepper House Project posted by kube architecture. Completed in 2015 in washington d. Order food online at salt & pepper house, liverpool with tripadvisor: The owners of this home love to cook, and their first requirement was a “cook’s kitchen” as the centerpiece of. Find local businesses, view maps and get driving directions in google maps. The house is organized around a. Salt And Pepper House.
From www.archdaily.com
Gallery of Salt and Pepper House / Kube Architecture 2 Salt And Pepper House The owners of this home love to cook, and their first requirement was a “cook’s kitchen” as the centerpiece of. Completed in 2015 in washington d. The house is organized around a central core containing service spaces, which creates a seamless flow along the perimeter, with major. Find local businesses, view maps and get driving directions in google maps. See. Salt And Pepper House.
From www.archdaily.com
Gallery of Salt and Pepper House / Kube Architecture 4 Salt And Pepper House Find local businesses, view maps and get driving directions in google maps. The owners of this home love to cook, and their first requirement was a “cook’s kitchen” as the centerpiece of. Salt and pepper house is located in washington and was designed by kube architecture. See 16 unbiased reviews of salt & pepper house,. The house is organized around. Salt And Pepper House.
From www.designrulz.com
Salt and Pepper House by KUBE Architecture Salt And Pepper House Completed in 2015 in washington d. Project posted by kube architecture. See 16 unbiased reviews of salt & pepper house,. The house is organized around a central core containing service spaces, which creates a seamless flow along the perimeter, with major. Order food online at salt & pepper house, liverpool with tripadvisor: Find local businesses, view maps and get driving. Salt And Pepper House.
From www.archdaily.com
Gallery of Salt and Pepper House / Kube Architecture 28 Salt And Pepper House Find local businesses, view maps and get driving directions in google maps. See 16 unbiased reviews of salt & pepper house,. Completed in 2015 in washington d. The house is organized around a central core containing service spaces, which creates a seamless flow along the perimeter, with major. The owners of this home love to cook, and their first requirement. Salt And Pepper House.
From architizer.com
Salt + Pepper House by KUBE Architecture Architizer Salt And Pepper House The house is organized around a central core containing service spaces, which creates a seamless flow along the perimeter, with major. Salt and pepper house is located in washington and was designed by kube architecture. Order food online at salt & pepper house, liverpool with tripadvisor: Find local businesses, view maps and get driving directions in google maps. The owners. Salt And Pepper House.
From www.amlu.com
Salt and Pepper House in Washington, DC American Luxury Salt And Pepper House Project posted by kube architecture. Salt and pepper house is located in washington and was designed by kube architecture. Order food online at salt & pepper house, liverpool with tripadvisor: See 16 unbiased reviews of salt & pepper house,. Completed in 2015 in washington d. Find local businesses, view maps and get driving directions in google maps. The owners of. Salt And Pepper House.
From www.homedsgn.com
Salt and Pepper House by KUBE Architecture Salt And Pepper House See 16 unbiased reviews of salt & pepper house,. Project posted by kube architecture. Completed in 2015 in washington d. Salt and pepper house is located in washington and was designed by kube architecture. Order food online at salt & pepper house, liverpool with tripadvisor: Find local businesses, view maps and get driving directions in google maps. The house is. Salt And Pepper House.
From www.etsy.com
Vintage Salt and Pepper House shakers on a decorated piece of Etsy Salt And Pepper House Salt and pepper house is located in washington and was designed by kube architecture. The owners of this home love to cook, and their first requirement was a “cook’s kitchen” as the centerpiece of. Completed in 2015 in washington d. Order food online at salt & pepper house, liverpool with tripadvisor: See 16 unbiased reviews of salt & pepper house,.. Salt And Pepper House.
From www.kube-arch.com
KUBE Architecture Washington DC live / XL / Salt and Pepper House Salt And Pepper House Order food online at salt & pepper house, liverpool with tripadvisor: The house is organized around a central core containing service spaces, which creates a seamless flow along the perimeter, with major. Completed in 2015 in washington d. See 16 unbiased reviews of salt & pepper house,. Salt and pepper house is located in washington and was designed by kube. Salt And Pepper House.
From www.homedsgn.com
Salt and Pepper House by KUBE Architecture Salt And Pepper House Completed in 2015 in washington d. Order food online at salt & pepper house, liverpool with tripadvisor: The house is organized around a central core containing service spaces, which creates a seamless flow along the perimeter, with major. The owners of this home love to cook, and their first requirement was a “cook’s kitchen” as the centerpiece of. See 16. Salt And Pepper House.
From www.archdaily.com
Gallery of Salt and Pepper House / Kube Architecture 15 Salt And Pepper House Order food online at salt & pepper house, liverpool with tripadvisor: The house is organized around a central core containing service spaces, which creates a seamless flow along the perimeter, with major. Project posted by kube architecture. See 16 unbiased reviews of salt & pepper house,. Completed in 2015 in washington d. Find local businesses, view maps and get driving. Salt And Pepper House.
From www.homedsgn.com
Salt and Pepper House by KUBE Architecture Salt And Pepper House Project posted by kube architecture. Completed in 2015 in washington d. The house is organized around a central core containing service spaces, which creates a seamless flow along the perimeter, with major. See 16 unbiased reviews of salt & pepper house,. The owners of this home love to cook, and their first requirement was a “cook’s kitchen” as the centerpiece. Salt And Pepper House.
From www.amlu.com
Salt and Pepper House in Washington, DC American Luxury Salt And Pepper House See 16 unbiased reviews of salt & pepper house,. The house is organized around a central core containing service spaces, which creates a seamless flow along the perimeter, with major. Completed in 2015 in washington d. The owners of this home love to cook, and their first requirement was a “cook’s kitchen” as the centerpiece of. Find local businesses, view. Salt And Pepper House.
From archinect.com
Salt and Pepper House KUBE Architecture Archinect Salt And Pepper House Order food online at salt & pepper house, liverpool with tripadvisor: See 16 unbiased reviews of salt & pepper house,. Completed in 2015 in washington d. Salt and pepper house is located in washington and was designed by kube architecture. Find local businesses, view maps and get driving directions in google maps. The owners of this home love to cook,. Salt And Pepper House.
From archinect.com
Salt and Pepper House KUBE Architecture Archinect Salt And Pepper House Project posted by kube architecture. Find local businesses, view maps and get driving directions in google maps. The house is organized around a central core containing service spaces, which creates a seamless flow along the perimeter, with major. Salt and pepper house is located in washington and was designed by kube architecture. Order food online at salt & pepper house,. Salt And Pepper House.
From homeworlddesign.com
Salt and Pepper House Designed for an Owner who Loves to Cook Salt And Pepper House Project posted by kube architecture. Find local businesses, view maps and get driving directions in google maps. The house is organized around a central core containing service spaces, which creates a seamless flow along the perimeter, with major. See 16 unbiased reviews of salt & pepper house,. Salt and pepper house is located in washington and was designed by kube. Salt And Pepper House.
From www.archdaily.com
Gallery of Salt and Pepper House / Kube Architecture 1 Salt And Pepper House Salt and pepper house is located in washington and was designed by kube architecture. The house is organized around a central core containing service spaces, which creates a seamless flow along the perimeter, with major. Order food online at salt & pepper house, liverpool with tripadvisor: Project posted by kube architecture. The owners of this home love to cook, and. Salt And Pepper House.
From www.decoist.com
Salt and Pepper House Curated Interior Crafted Around Love for Cooking! Salt And Pepper House Find local businesses, view maps and get driving directions in google maps. Salt and pepper house is located in washington and was designed by kube architecture. Completed in 2015 in washington d. Order food online at salt & pepper house, liverpool with tripadvisor: See 16 unbiased reviews of salt & pepper house,. Project posted by kube architecture. The house is. Salt And Pepper House.
From www.amlu.com
Salt and Pepper House in Washington, DC American Luxury Salt And Pepper House Order food online at salt & pepper house, liverpool with tripadvisor: The owners of this home love to cook, and their first requirement was a “cook’s kitchen” as the centerpiece of. The house is organized around a central core containing service spaces, which creates a seamless flow along the perimeter, with major. Completed in 2015 in washington d. Find local. Salt And Pepper House.
From architizer.com
Salt + Pepper House by KUBE Architecture Architizer Salt And Pepper House Salt and pepper house is located in washington and was designed by kube architecture. Order food online at salt & pepper house, liverpool with tripadvisor: Find local businesses, view maps and get driving directions in google maps. See 16 unbiased reviews of salt & pepper house,. The owners of this home love to cook, and their first requirement was a. Salt And Pepper House.
From www.homify.com
Salt + pepper house, kube architecture homify Salt And Pepper House Find local businesses, view maps and get driving directions in google maps. The house is organized around a central core containing service spaces, which creates a seamless flow along the perimeter, with major. Salt and pepper house is located in washington and was designed by kube architecture. See 16 unbiased reviews of salt & pepper house,. The owners of this. Salt And Pepper House.
From www.designrulz.com
Salt and Pepper House by KUBE Architecture Salt And Pepper House The owners of this home love to cook, and their first requirement was a “cook’s kitchen” as the centerpiece of. Completed in 2015 in washington d. Salt and pepper house is located in washington and was designed by kube architecture. Order food online at salt & pepper house, liverpool with tripadvisor: Find local businesses, view maps and get driving directions. Salt And Pepper House.
From www.amlu.com
Salt and Pepper House in Washington, DC American Luxury Salt And Pepper House Completed in 2015 in washington d. Project posted by kube architecture. See 16 unbiased reviews of salt & pepper house,. The owners of this home love to cook, and their first requirement was a “cook’s kitchen” as the centerpiece of. The house is organized around a central core containing service spaces, which creates a seamless flow along the perimeter, with. Salt And Pepper House.
From www.amlu.com
Salt and Pepper House in Washington, DC American Luxury Salt And Pepper House Find local businesses, view maps and get driving directions in google maps. Completed in 2015 in washington d. Project posted by kube architecture. Salt and pepper house is located in washington and was designed by kube architecture. The owners of this home love to cook, and their first requirement was a “cook’s kitchen” as the centerpiece of. Order food online. Salt And Pepper House.
From www.saltnpepperhouse.com.au
Salt & Pepper House Salt And Pepper House Project posted by kube architecture. See 16 unbiased reviews of salt & pepper house,. Completed in 2015 in washington d. Find local businesses, view maps and get driving directions in google maps. Salt and pepper house is located in washington and was designed by kube architecture. The owners of this home love to cook, and their first requirement was a. Salt And Pepper House.
From www.australia247.info
Salt & Pepper House 2 Stoney Way, Derrimut VIC 3030, Australia Salt And Pepper House The owners of this home love to cook, and their first requirement was a “cook’s kitchen” as the centerpiece of. The house is organized around a central core containing service spaces, which creates a seamless flow along the perimeter, with major. Project posted by kube architecture. Salt and pepper house is located in washington and was designed by kube architecture.. Salt And Pepper House.
From www.amlu.com
Salt and Pepper House in Washington, DC American Luxury Salt And Pepper House Salt and pepper house is located in washington and was designed by kube architecture. The house is organized around a central core containing service spaces, which creates a seamless flow along the perimeter, with major. Find local businesses, view maps and get driving directions in google maps. See 16 unbiased reviews of salt & pepper house,. Completed in 2015 in. Salt And Pepper House.
From www.pinterest.com
Salt and Pepper House Kube Architecture Double Doors Interior Salt And Pepper House The house is organized around a central core containing service spaces, which creates a seamless flow along the perimeter, with major. Completed in 2015 in washington d. See 16 unbiased reviews of salt & pepper house,. The owners of this home love to cook, and their first requirement was a “cook’s kitchen” as the centerpiece of. Order food online at. Salt And Pepper House.
From www.menulog.com.au
Salt and Pepper House restaurant menu in Derrimut Order from Menulog Salt And Pepper House Salt and pepper house is located in washington and was designed by kube architecture. Find local businesses, view maps and get driving directions in google maps. Order food online at salt & pepper house, liverpool with tripadvisor: Completed in 2015 in washington d. Project posted by kube architecture. The owners of this home love to cook, and their first requirement. Salt And Pepper House.