Arkansas Housing Help . how can i get help to apply for arkansas rent relief? The arkansas homeowner assistance fund (haf) is a program administered by the arkansas development. • the dhs website (ar.gov/rentrelief) has user guides for tenants and landlords to help you. To apply, contact or visit the. arkansas is known as the “land of opportunity”. These resources will help you find your opportunity.
from www.templateroller.com
The arkansas homeowner assistance fund (haf) is a program administered by the arkansas development. To apply, contact or visit the. arkansas is known as the “land of opportunity”. how can i get help to apply for arkansas rent relief? • the dhs website (ar.gov/rentrelief) has user guides for tenants and landlords to help you. These resources will help you find your opportunity.
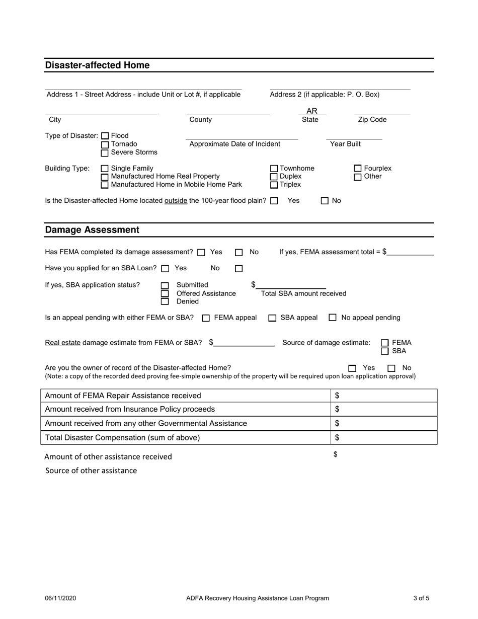
2020 Arkansas Disaster Recovery Housing Assistance Loan Program
Arkansas Housing Help These resources will help you find your opportunity. how can i get help to apply for arkansas rent relief? • the dhs website (ar.gov/rentrelief) has user guides for tenants and landlords to help you. These resources will help you find your opportunity. The arkansas homeowner assistance fund (haf) is a program administered by the arkansas development. arkansas is known as the “land of opportunity”. To apply, contact or visit the.
From www.apartments.com
Arkansas River Apartments Apartments in Little Rock, AR Arkansas Housing Help These resources will help you find your opportunity. arkansas is known as the “land of opportunity”. To apply, contact or visit the. The arkansas homeowner assistance fund (haf) is a program administered by the arkansas development. how can i get help to apply for arkansas rent relief? • the dhs website (ar.gov/rentrelief) has user guides for tenants and. Arkansas Housing Help.
From www.homelessshelterdirectory.org
Hope In Action Shelter 606 W 3rd St, Hope, AR Arkansas Housing Help To apply, contact or visit the. how can i get help to apply for arkansas rent relief? • the dhs website (ar.gov/rentrelief) has user guides for tenants and landlords to help you. These resources will help you find your opportunity. The arkansas homeowner assistance fund (haf) is a program administered by the arkansas development. arkansas is known as. Arkansas Housing Help.
From www.arkansasedc.com
Arkansas Home Prices Ranked ThirdLowest in U.S. Arkansas Housing Help The arkansas homeowner assistance fund (haf) is a program administered by the arkansas development. • the dhs website (ar.gov/rentrelief) has user guides for tenants and landlords to help you. To apply, contact or visit the. These resources will help you find your opportunity. how can i get help to apply for arkansas rent relief? arkansas is known as. Arkansas Housing Help.
From affordablehousingonline.com
Arrington Estates of West Memphis West Memphis, AR Low Apartments Arkansas Housing Help These resources will help you find your opportunity. how can i get help to apply for arkansas rent relief? The arkansas homeowner assistance fund (haf) is a program administered by the arkansas development. arkansas is known as the “land of opportunity”. To apply, contact or visit the. • the dhs website (ar.gov/rentrelief) has user guides for tenants and. Arkansas Housing Help.
From singlemothers.us
Housing Assistance In Arkansas Arkansas Housing Help how can i get help to apply for arkansas rent relief? The arkansas homeowner assistance fund (haf) is a program administered by the arkansas development. • the dhs website (ar.gov/rentrelief) has user guides for tenants and landlords to help you. To apply, contact or visit the. These resources will help you find your opportunity. arkansas is known as. Arkansas Housing Help.
From arkansasadvocate.com
Federal agents search offices of Central Arkansas housing nonprofit Arkansas Housing Help • the dhs website (ar.gov/rentrelief) has user guides for tenants and landlords to help you. arkansas is known as the “land of opportunity”. how can i get help to apply for arkansas rent relief? To apply, contact or visit the. These resources will help you find your opportunity. The arkansas homeowner assistance fund (haf) is a program administered. Arkansas Housing Help.
From humanservices.arkansas.gov
Rental Assistance Arkansas Department of Human Services Arkansas Housing Help how can i get help to apply for arkansas rent relief? arkansas is known as the “land of opportunity”. The arkansas homeowner assistance fund (haf) is a program administered by the arkansas development. • the dhs website (ar.gov/rentrelief) has user guides for tenants and landlords to help you. To apply, contact or visit the. These resources will help. Arkansas Housing Help.
From grantsforseniors.org
Housing Grants for Seniors Arkansas Housing Help arkansas is known as the “land of opportunity”. To apply, contact or visit the. • the dhs website (ar.gov/rentrelief) has user guides for tenants and landlords to help you. how can i get help to apply for arkansas rent relief? These resources will help you find your opportunity. The arkansas homeowner assistance fund (haf) is a program administered. Arkansas Housing Help.
From www.templateroller.com
Arkansas Home Tenant Based Rental Assistance Application Fill Out Arkansas Housing Help The arkansas homeowner assistance fund (haf) is a program administered by the arkansas development. arkansas is known as the “land of opportunity”. • the dhs website (ar.gov/rentrelief) has user guides for tenants and landlords to help you. how can i get help to apply for arkansas rent relief? These resources will help you find your opportunity. To apply,. Arkansas Housing Help.
From affordablehousingonline.com
Fourche Valley Apartments in Perryville, Arkansas Arkansas Housing Help arkansas is known as the “land of opportunity”. These resources will help you find your opportunity. • the dhs website (ar.gov/rentrelief) has user guides for tenants and landlords to help you. how can i get help to apply for arkansas rent relief? The arkansas homeowner assistance fund (haf) is a program administered by the arkansas development. To apply,. Arkansas Housing Help.
From www.asinglemother.org
Housing Assistance in Arkansas Arkansas Housing Help • the dhs website (ar.gov/rentrelief) has user guides for tenants and landlords to help you. To apply, contact or visit the. how can i get help to apply for arkansas rent relief? These resources will help you find your opportunity. The arkansas homeowner assistance fund (haf) is a program administered by the arkansas development. arkansas is known as. Arkansas Housing Help.
From www.templateroller.com
2020 Arkansas Disaster Recovery Housing Assistance Loan Program Arkansas Housing Help • the dhs website (ar.gov/rentrelief) has user guides for tenants and landlords to help you. To apply, contact or visit the. arkansas is known as the “land of opportunity”. These resources will help you find your opportunity. how can i get help to apply for arkansas rent relief? The arkansas homeowner assistance fund (haf) is a program administered. Arkansas Housing Help.
From www.formsbank.com
Application For Housing Assistance Form printable pdf download Arkansas Housing Help how can i get help to apply for arkansas rent relief? These resources will help you find your opportunity. arkansas is known as the “land of opportunity”. • the dhs website (ar.gov/rentrelief) has user guides for tenants and landlords to help you. The arkansas homeowner assistance fund (haf) is a program administered by the arkansas development. To apply,. Arkansas Housing Help.
From www.apartments.com
The Reserve at Tontitown Apartments in Springdale, AR Arkansas Housing Help The arkansas homeowner assistance fund (haf) is a program administered by the arkansas development. To apply, contact or visit the. • the dhs website (ar.gov/rentrelief) has user guides for tenants and landlords to help you. These resources will help you find your opportunity. how can i get help to apply for arkansas rent relief? arkansas is known as. Arkansas Housing Help.
From www.lowincomehousing.us
Arkadelphia Housing Authority, Arkadelphia, AR Low Housing Apartment Arkansas Housing Help • the dhs website (ar.gov/rentrelief) has user guides for tenants and landlords to help you. These resources will help you find your opportunity. arkansas is known as the “land of opportunity”. how can i get help to apply for arkansas rent relief? To apply, contact or visit the. The arkansas homeowner assistance fund (haf) is a program administered. Arkansas Housing Help.
From housingtrustfundproject.org
Arkansas General Assembly Allocates 500K to Housing Trust Fund While Arkansas Housing Help • the dhs website (ar.gov/rentrelief) has user guides for tenants and landlords to help you. These resources will help you find your opportunity. arkansas is known as the “land of opportunity”. To apply, contact or visit the. how can i get help to apply for arkansas rent relief? The arkansas homeowner assistance fund (haf) is a program administered. Arkansas Housing Help.
From exovubsrs.blob.core.windows.net
New Senior Apartments In Fayetteville Ar at Carla Sanchez blog Arkansas Housing Help To apply, contact or visit the. how can i get help to apply for arkansas rent relief? arkansas is known as the “land of opportunity”. The arkansas homeowner assistance fund (haf) is a program administered by the arkansas development. • the dhs website (ar.gov/rentrelief) has user guides for tenants and landlords to help you. These resources will help. Arkansas Housing Help.
From issuu.com
University of Arkansas Housing Master Plan Update by Hanbury Issuu Arkansas Housing Help The arkansas homeowner assistance fund (haf) is a program administered by the arkansas development. arkansas is known as the “land of opportunity”. These resources will help you find your opportunity. • the dhs website (ar.gov/rentrelief) has user guides for tenants and landlords to help you. To apply, contact or visit the. how can i get help to apply. Arkansas Housing Help.
From www.nwaonline.com
Northwest Arkansas housing boom continues as home prices soar and Arkansas Housing Help To apply, contact or visit the. The arkansas homeowner assistance fund (haf) is a program administered by the arkansas development. • the dhs website (ar.gov/rentrelief) has user guides for tenants and landlords to help you. how can i get help to apply for arkansas rent relief? arkansas is known as the “land of opportunity”. These resources will help. Arkansas Housing Help.
From www.youtube.com
University Of Arkansas Housing Contract Phase 1 YouTube Arkansas Housing Help The arkansas homeowner assistance fund (haf) is a program administered by the arkansas development. • the dhs website (ar.gov/rentrelief) has user guides for tenants and landlords to help you. To apply, contact or visit the. how can i get help to apply for arkansas rent relief? arkansas is known as the “land of opportunity”. These resources will help. Arkansas Housing Help.
From grantsforseniors.org
Housing Grants for Seniors Arkansas Housing Help These resources will help you find your opportunity. • the dhs website (ar.gov/rentrelief) has user guides for tenants and landlords to help you. To apply, contact or visit the. arkansas is known as the “land of opportunity”. The arkansas homeowner assistance fund (haf) is a program administered by the arkansas development. how can i get help to apply. Arkansas Housing Help.
From www.linkedin.com
Housing Assistance for Single Moms in Arkansas Arkansas Housing Help These resources will help you find your opportunity. how can i get help to apply for arkansas rent relief? arkansas is known as the “land of opportunity”. The arkansas homeowner assistance fund (haf) is a program administered by the arkansas development. • the dhs website (ar.gov/rentrelief) has user guides for tenants and landlords to help you. To apply,. Arkansas Housing Help.
From www.elegance-living.com
Fayetteville, AR Senior Living Brookstone Assisted Living Community Arkansas Housing Help • the dhs website (ar.gov/rentrelief) has user guides for tenants and landlords to help you. The arkansas homeowner assistance fund (haf) is a program administered by the arkansas development. To apply, contact or visit the. arkansas is known as the “land of opportunity”. how can i get help to apply for arkansas rent relief? These resources will help. Arkansas Housing Help.
From www.powerliftfoundationrepair.com
PROJECT Arkansas Housing Authority Powerlift Foundation Repair Arkansas Housing Help To apply, contact or visit the. how can i get help to apply for arkansas rent relief? arkansas is known as the “land of opportunity”. The arkansas homeowner assistance fund (haf) is a program administered by the arkansas development. • the dhs website (ar.gov/rentrelief) has user guides for tenants and landlords to help you. These resources will help. Arkansas Housing Help.
From www.powerliftfoundationrepair.com
PROJECT Arkansas Housing Authority Powerlift Foundation Repair Arkansas Housing Help how can i get help to apply for arkansas rent relief? arkansas is known as the “land of opportunity”. To apply, contact or visit the. These resources will help you find your opportunity. • the dhs website (ar.gov/rentrelief) has user guides for tenants and landlords to help you. The arkansas homeowner assistance fund (haf) is a program administered. Arkansas Housing Help.
From www.templateroller.com
2020 Arkansas Disaster Recovery Housing Assistance Loan Program Arkansas Housing Help how can i get help to apply for arkansas rent relief? • the dhs website (ar.gov/rentrelief) has user guides for tenants and landlords to help you. The arkansas homeowner assistance fund (haf) is a program administered by the arkansas development. arkansas is known as the “land of opportunity”. These resources will help you find your opportunity. To apply,. Arkansas Housing Help.
From sjvsun.com
housing project headed for NW Fresno underscores housing shift Arkansas Housing Help The arkansas homeowner assistance fund (haf) is a program administered by the arkansas development. how can i get help to apply for arkansas rent relief? To apply, contact or visit the. • the dhs website (ar.gov/rentrelief) has user guides for tenants and landlords to help you. arkansas is known as the “land of opportunity”. These resources will help. Arkansas Housing Help.
From www.apartments.com
Parkway Townhomes Apartments in Texarkana, AR Arkansas Housing Help The arkansas homeowner assistance fund (haf) is a program administered by the arkansas development. • the dhs website (ar.gov/rentrelief) has user guides for tenants and landlords to help you. how can i get help to apply for arkansas rent relief? These resources will help you find your opportunity. arkansas is known as the “land of opportunity”. To apply,. Arkansas Housing Help.
From www.apartments.com
3201 S Fir St, Pine Bluff, AR 71603 Apartment for Rent in Pine Bluff Arkansas Housing Help To apply, contact or visit the. how can i get help to apply for arkansas rent relief? arkansas is known as the “land of opportunity”. These resources will help you find your opportunity. • the dhs website (ar.gov/rentrelief) has user guides for tenants and landlords to help you. The arkansas homeowner assistance fund (haf) is a program administered. Arkansas Housing Help.
From green-reporter.com
Affordable housing, efficient transportation part of Northwest Arkansas Arkansas Housing Help arkansas is known as the “land of opportunity”. The arkansas homeowner assistance fund (haf) is a program administered by the arkansas development. how can i get help to apply for arkansas rent relief? To apply, contact or visit the. These resources will help you find your opportunity. • the dhs website (ar.gov/rentrelief) has user guides for tenants and. Arkansas Housing Help.
From www.nwaonline.com
OPINION JEFF WEBSTER Foundation working to provide affordable Arkansas Housing Help how can i get help to apply for arkansas rent relief? arkansas is known as the “land of opportunity”. These resources will help you find your opportunity. To apply, contact or visit the. The arkansas homeowner assistance fund (haf) is a program administered by the arkansas development. • the dhs website (ar.gov/rentrelief) has user guides for tenants and. Arkansas Housing Help.
From exovbrftv.blob.core.windows.net
Low Apartments In Little Rock Ar at John Fernandez blog Arkansas Housing Help • the dhs website (ar.gov/rentrelief) has user guides for tenants and landlords to help you. These resources will help you find your opportunity. To apply, contact or visit the. arkansas is known as the “land of opportunity”. how can i get help to apply for arkansas rent relief? The arkansas homeowner assistance fund (haf) is a program administered. Arkansas Housing Help.
From www.arkansasonline.com
Springdale Housing Authority offers rental assistance through CARES Arkansas Housing Help arkansas is known as the “land of opportunity”. The arkansas homeowner assistance fund (haf) is a program administered by the arkansas development. To apply, contact or visit the. • the dhs website (ar.gov/rentrelief) has user guides for tenants and landlords to help you. how can i get help to apply for arkansas rent relief? These resources will help. Arkansas Housing Help.
From www.apartments.com
Rena Valley Apartments Van Buren, AR Arkansas Housing Help • the dhs website (ar.gov/rentrelief) has user guides for tenants and landlords to help you. These resources will help you find your opportunity. how can i get help to apply for arkansas rent relief? arkansas is known as the “land of opportunity”. The arkansas homeowner assistance fund (haf) is a program administered by the arkansas development. To apply,. Arkansas Housing Help.
From www.lowincomehousing.us
Hermitage, AR Low Housing Arkansas Housing Help arkansas is known as the “land of opportunity”. how can i get help to apply for arkansas rent relief? To apply, contact or visit the. The arkansas homeowner assistance fund (haf) is a program administered by the arkansas development. • the dhs website (ar.gov/rentrelief) has user guides for tenants and landlords to help you. These resources will help. Arkansas Housing Help.