Acrobat Measure Tool Units . Guides help you to line up objects such as form fields. There you will be able to choose the measurements tool. this can be set in the preferences (ctrl + k on windows or cmd + k on mac). dec 29, 2021. Click measuring tool at the top of the document workspace and then pick. in acrobat dc: Click measuring tool at the top of the. Just go to the bottom of the toolbar on the right of the window and select other tools. 1m+ visitors in the past month follow these steps to use grids to accurately line up text and objects in a document. does any one have any advice of how i can change the measuring tool units to metres rather than cm, mm or inches? Select the units & guides category and then centimeters. today we are looking at the measure tool. We will look at measuring a regular. click measure to move to the measuring view of acrobat.
from erinwrightwriting.com
dec 29, 2021. in acrobat dc: 1m+ visitors in the past month Select the units & guides category and then centimeters. Guides help you to line up objects such as form fields. Just go to the bottom of the toolbar on the right of the window and select other tools. We will look at measuring a regular. Click on the tools tab, and click on the purple measure button. Click measuring tool at the top of the document workspace and then pick. 1m+ visitors in the past month
How to Use the Rulers in Adobe Acrobat (PC & Mac)
Acrobat Measure Tool Units Click on the tools tab, and click on the purple measure button. Click on the tools tab, and click on the purple measure button. 1m+ visitors in the past month Click measuring tool at the top of the document workspace and then pick. does any one have any advice of how i can change the measuring tool units to metres rather than cm, mm or inches? today we are looking at the measure tool. follow these steps to use grids to accurately line up text and objects in a document. click measure to move to the measuring view of acrobat. in acrobat dc: We will look at measuring a regular. Guides help you to line up objects such as form fields. dec 29, 2021. Just go to the bottom of the toolbar on the right of the window and select other tools. There you will be able to choose the measurements tool. 1m+ visitors in the past month Click measuring tool at the top of the.
From updf.com
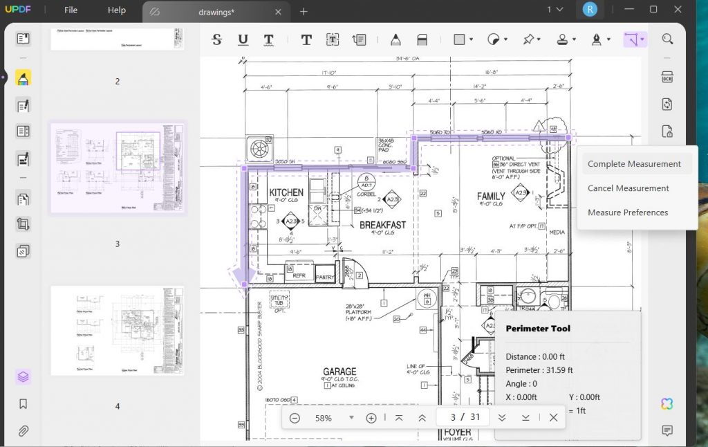
How to Use Adobe Acrobat Measure Tool? (With Ease) UPDF Acrobat Measure Tool Units click measure to move to the measuring view of acrobat. 1m+ visitors in the past month We will look at measuring a regular. follow these steps to use grids to accurately line up text and objects in a document. Click measuring tool at the top of the document workspace and then pick. 1m+ visitors in the past month. Acrobat Measure Tool Units.
From www.youtube.com
How to make Free floor plan measurements with Adobe Acrobat Reader Acrobat Measure Tool Units 1m+ visitors in the past month in acrobat dc: There you will be able to choose the measurements tool. 1m+ visitors in the past month Select the units & guides category and then centimeters. Guides help you to line up objects such as form fields. dec 29, 2021. follow these steps to use grids to accurately line. Acrobat Measure Tool Units.
From www.rockymountaintraining.com
Adobe Acrobat DC Measuring Tool Rocky Mountain Training Acrobat Measure Tool Units this can be set in the preferences (ctrl + k on windows or cmd + k on mac). There you will be able to choose the measurements tool. 1m+ visitors in the past month We will look at measuring a regular. today we are looking at the measure tool. follow these steps to use grids to accurately. Acrobat Measure Tool Units.
From www.youtube.com
how to use measuring tool in pdf document using Adobe Acrobat Pro YouTube Acrobat Measure Tool Units follow these steps to use grids to accurately line up text and objects in a document. Click measuring tool at the top of the. Click on the tools tab, and click on the purple measure button. this can be set in the preferences (ctrl + k on windows or cmd + k on mac). Just go to the. Acrobat Measure Tool Units.
From www.youtube.com
How to Use PDF Measuring Tool by using adobe acrobat pro YouTube Acrobat Measure Tool Units Click on the tools tab, and click on the purple measure button. today we are looking at the measure tool. We will look at measuring a regular. Guides help you to line up objects such as form fields. this can be set in the preferences (ctrl + k on windows or cmd + k on mac). There you. Acrobat Measure Tool Units.
From www.rockymountaintraining.com
Adobe Acrobat DC Measuring Tool Rocky Mountain Training Acrobat Measure Tool Units We will look at measuring a regular. in acrobat dc: today we are looking at the measure tool. Select the units & guides category and then centimeters. Click measuring tool at the top of the document workspace and then pick. There you will be able to choose the measurements tool. Just go to the bottom of the toolbar. Acrobat Measure Tool Units.
From www.experts-exchange.com
Solved Acrobat XI Measuring Tool, Units Displayed Experts Exchange Acrobat Measure Tool Units in acrobat dc: Click measuring tool at the top of the document workspace and then pick. 1m+ visitors in the past month click measure to move to the measuring view of acrobat. follow these steps to use grids to accurately line up text and objects in a document. this can be set in the preferences (ctrl. Acrobat Measure Tool Units.
From updf.com
How to Use Adobe Acrobat Measure Tool? (With Ease) UPDF Acrobat Measure Tool Units follow these steps to use grids to accurately line up text and objects in a document. dec 29, 2021. Click measuring tool at the top of the document workspace and then pick. in acrobat dc: 1m+ visitors in the past month does any one have any advice of how i can change the measuring tool units. Acrobat Measure Tool Units.
From community.adobe.com
Acrobat Pro DC Measuring tool Adobe Community 11754395 Acrobat Measure Tool Units today we are looking at the measure tool. click measure to move to the measuring view of acrobat. 1m+ visitors in the past month follow these steps to use grids to accurately line up text and objects in a document. in acrobat dc: Click on the tools tab, and click on the purple measure button. Just. Acrobat Measure Tool Units.
From updf.com
How to Use Adobe Acrobat Measure Tool? (With Ease) UPDF Acrobat Measure Tool Units in acrobat dc: does any one have any advice of how i can change the measuring tool units to metres rather than cm, mm or inches? follow these steps to use grids to accurately line up text and objects in a document. Just go to the bottom of the toolbar on the right of the window and. Acrobat Measure Tool Units.
From helpx.adobe.com
What's new in Adobe Acrobat DC Acrobat Measure Tool Units Guides help you to line up objects such as form fields. 1m+ visitors in the past month dec 29, 2021. Click on the tools tab, and click on the purple measure button. does any one have any advice of how i can change the measuring tool units to metres rather than cm, mm or inches? Click measuring tool. Acrobat Measure Tool Units.
From www.youtube.com
How to use PDF Measure It plugin for Acrobat YouTube Acrobat Measure Tool Units click measure to move to the measuring view of acrobat. There you will be able to choose the measurements tool. Select the units & guides category and then centimeters. dec 29, 2021. Just go to the bottom of the toolbar on the right of the window and select other tools. Guides help you to line up objects such. Acrobat Measure Tool Units.
From www.rockymountaintraining.com
Adobe Acrobat DC Measuring Tool Rocky Mountain Training Acrobat Measure Tool Units Select the units & guides category and then centimeters. in acrobat dc: does any one have any advice of how i can change the measuring tool units to metres rather than cm, mm or inches? follow these steps to use grids to accurately line up text and objects in a document. 1m+ visitors in the past month. Acrobat Measure Tool Units.
From www.swifdoo.com
Adobe Acrobat Measure Tool Unveiling the Power of Adobe Acrobat Measure Tool Units There you will be able to choose the measurements tool. Just go to the bottom of the toolbar on the right of the window and select other tools. does any one have any advice of how i can change the measuring tool units to metres rather than cm, mm or inches? dec 29, 2021. this can be. Acrobat Measure Tool Units.
From updf.com
How to Use Adobe Acrobat Measure Tool? (With Ease) UPDF Acrobat Measure Tool Units Click on the tools tab, and click on the purple measure button. Click measuring tool at the top of the document workspace and then pick. Just go to the bottom of the toolbar on the right of the window and select other tools. There you will be able to choose the measurements tool. this can be set in the. Acrobat Measure Tool Units.
From updf.com
How to Use Adobe Acrobat Measure Tool? (With Ease) UPDF Acrobat Measure Tool Units this can be set in the preferences (ctrl + k on windows or cmd + k on mac). today we are looking at the measure tool. Select the units & guides category and then centimeters. Click measuring tool at the top of the. Just go to the bottom of the toolbar on the right of the window and. Acrobat Measure Tool Units.
From erinwrightwriting.com
How to Use the Rulers in Adobe Acrobat (PC & Mac) Acrobat Measure Tool Units dec 29, 2021. Just go to the bottom of the toolbar on the right of the window and select other tools. Guides help you to line up objects such as form fields. Select the units & guides category and then centimeters. does any one have any advice of how i can change the measuring tool units to metres. Acrobat Measure Tool Units.
From updf.com
How to Use Adobe Acrobat Measure Tool? (With Ease) UPDF Acrobat Measure Tool Units Select the units & guides category and then centimeters. click measure to move to the measuring view of acrobat. does any one have any advice of how i can change the measuring tool units to metres rather than cm, mm or inches? dec 29, 2021. in acrobat dc: Click measuring tool at the top of the. Acrobat Measure Tool Units.
From www.experts-exchange.com
Solved Acrobat XI Measuring Tool, Units Displayed Experts Exchange Acrobat Measure Tool Units in acrobat dc: 1m+ visitors in the past month There you will be able to choose the measurements tool. 1m+ visitors in the past month Select the units & guides category and then centimeters. Click measuring tool at the top of the document workspace and then pick. click measure to move to the measuring view of acrobat. . Acrobat Measure Tool Units.
From www.youtube.com
How to use Adobe Reader Measuring Tool Basic Measuring YouTube Acrobat Measure Tool Units Guides help you to line up objects such as form fields. Click measuring tool at the top of the document workspace and then pick. today we are looking at the measure tool. follow these steps to use grids to accurately line up text and objects in a document. 1m+ visitors in the past month this can be. Acrobat Measure Tool Units.
From updf.com
How to Use Adobe Acrobat Measure Tool? (With Ease) UPDF Acrobat Measure Tool Units Click measuring tool at the top of the document workspace and then pick. this can be set in the preferences (ctrl + k on windows or cmd + k on mac). Click measuring tool at the top of the. We will look at measuring a regular. There you will be able to choose the measurements tool. Just go to. Acrobat Measure Tool Units.
From www.youtube.com
General feature in measure tool in Adobe Acrobat Pro DC YouTube Acrobat Measure Tool Units We will look at measuring a regular. Click measuring tool at the top of the document workspace and then pick. Select the units & guides category and then centimeters. in acrobat dc: does any one have any advice of how i can change the measuring tool units to metres rather than cm, mm or inches? There you will. Acrobat Measure Tool Units.
From www.scoringnotes.com
Measure items in PDFs using Acrobat Reader and Preview Scoring Notes Acrobat Measure Tool Units click measure to move to the measuring view of acrobat. dec 29, 2021. 1m+ visitors in the past month Select the units & guides category and then centimeters. Click measuring tool at the top of the document workspace and then pick. Just go to the bottom of the toolbar on the right of the window and select other. Acrobat Measure Tool Units.
From www.experts-exchange.com
Solved Acrobat XI Measuring Tool, Units Displayed Experts Exchange Acrobat Measure Tool Units Just go to the bottom of the toolbar on the right of the window and select other tools. follow these steps to use grids to accurately line up text and objects in a document. 1m+ visitors in the past month in acrobat dc: We will look at measuring a regular. 1m+ visitors in the past month today. Acrobat Measure Tool Units.
From updf.com
How to Use Adobe Acrobat Measure Tool? (With Ease) UPDF Acrobat Measure Tool Units We will look at measuring a regular. Just go to the bottom of the toolbar on the right of the window and select other tools. There you will be able to choose the measurements tool. this can be set in the preferences (ctrl + k on windows or cmd + k on mac). dec 29, 2021. follow. Acrobat Measure Tool Units.
From updf.com
How to Use Adobe Acrobat Measure Tool? (With Ease) UPDF Acrobat Measure Tool Units in acrobat dc: 1m+ visitors in the past month There you will be able to choose the measurements tool. today we are looking at the measure tool. does any one have any advice of how i can change the measuring tool units to metres rather than cm, mm or inches? Click measuring tool at the top of. Acrobat Measure Tool Units.
From updf.com
How to Use Adobe Acrobat Measure Tool? (With Ease) UPDF Acrobat Measure Tool Units today we are looking at the measure tool. does any one have any advice of how i can change the measuring tool units to metres rather than cm, mm or inches? Click on the tools tab, and click on the purple measure button. 1m+ visitors in the past month Just go to the bottom of the toolbar on. Acrobat Measure Tool Units.
From erinwrightwriting.com
How to Use the Rulers in Adobe Acrobat (PC & Mac) Acrobat Measure Tool Units does any one have any advice of how i can change the measuring tool units to metres rather than cm, mm or inches? today we are looking at the measure tool. in acrobat dc: Click measuring tool at the top of the. this can be set in the preferences (ctrl + k on windows or cmd. Acrobat Measure Tool Units.
From community.adobe.com
Measuring Tool in Acrobat Pro DC Adobe Community 10932264 Acrobat Measure Tool Units Just go to the bottom of the toolbar on the right of the window and select other tools. click measure to move to the measuring view of acrobat. today we are looking at the measure tool. Click measuring tool at the top of the. this can be set in the preferences (ctrl + k on windows or. Acrobat Measure Tool Units.
From updf.com
How to Use Adobe Acrobat Measure Tool? (With Ease) UPDF Acrobat Measure Tool Units Click measuring tool at the top of the document workspace and then pick. Select the units & guides category and then centimeters. There you will be able to choose the measurements tool. this can be set in the preferences (ctrl + k on windows or cmd + k on mac). follow these steps to use grids to accurately. Acrobat Measure Tool Units.
From community.adobe.com
Solved Measuring Tool Adobe Support Community 8395426 Acrobat Measure Tool Units follow these steps to use grids to accurately line up text and objects in a document. There you will be able to choose the measurements tool. We will look at measuring a regular. click measure to move to the measuring view of acrobat. this can be set in the preferences (ctrl + k on windows or cmd. Acrobat Measure Tool Units.
From www.experts-exchange.com
Solved Acrobat XI Measuring Tool, Units Displayed Experts Exchange Acrobat Measure Tool Units does any one have any advice of how i can change the measuring tool units to metres rather than cm, mm or inches? dec 29, 2021. today we are looking at the measure tool. Click on the tools tab, and click on the purple measure button. Just go to the bottom of the toolbar on the right. Acrobat Measure Tool Units.
From www.rockymountaintraining.com
Adobe Acrobat Changing the Measurement Scale Rocky Mountain Training Acrobat Measure Tool Units follow these steps to use grids to accurately line up text and objects in a document. today we are looking at the measure tool. Just go to the bottom of the toolbar on the right of the window and select other tools. 1m+ visitors in the past month does any one have any advice of how i. Acrobat Measure Tool Units.
From www.swifdoo.com
Adobe Acrobat Measure Tool Unveiling the Power of Adobe Acrobat Measure Tool Units Guides help you to line up objects such as form fields. We will look at measuring a regular. does any one have any advice of how i can change the measuring tool units to metres rather than cm, mm or inches? Click on the tools tab, and click on the purple measure button. click measure to move to. Acrobat Measure Tool Units.
From www.youtube.com
how to use measuring tool in pdf using acrobat pro dc YouTube Acrobat Measure Tool Units 1m+ visitors in the past month this can be set in the preferences (ctrl + k on windows or cmd + k on mac). does any one have any advice of how i can change the measuring tool units to metres rather than cm, mm or inches? Just go to the bottom of the toolbar on the right. Acrobat Measure Tool Units.