Supplemental Standard Property Tax Deduction . (a) a person who is entitled to a standard deduction from the assessed value of property under section 37 of this chapter is also. (a) a person who is entitled to a standard deduction from the assessed value of property under section 37 of this chapter is also. Deductions work by reducing the amount of assessed value a taxpayer pays on a given parcel of property. The supplemental deduction is an additional. Homestead standard deduction is accurately applied to a property as of january 1, 2019, but the property owner becomes ineligible for the. The standard deduction reduces the taxable value by the lesser of $48,000 or 60% of assessed value. The homestead standard deduction has been enacted to allow a property tax deduction for each qualified homestead. Rather than paying property taxes on the full $100,000, the eligible homeowner will have $45,000 (standard deduction) and $19,250 (supplemental.
from roseannwfulvia.pages.dev
(a) a person who is entitled to a standard deduction from the assessed value of property under section 37 of this chapter is also. (a) a person who is entitled to a standard deduction from the assessed value of property under section 37 of this chapter is also. The homestead standard deduction has been enacted to allow a property tax deduction for each qualified homestead. The supplemental deduction is an additional. Deductions work by reducing the amount of assessed value a taxpayer pays on a given parcel of property. Homestead standard deduction is accurately applied to a property as of january 1, 2019, but the property owner becomes ineligible for the. The standard deduction reduces the taxable value by the lesser of $48,000 or 60% of assessed value. Rather than paying property taxes on the full $100,000, the eligible homeowner will have $45,000 (standard deduction) and $19,250 (supplemental.
New 2024 Standard Deduction Mirna Tamqrah
Supplemental Standard Property Tax Deduction Deductions work by reducing the amount of assessed value a taxpayer pays on a given parcel of property. The supplemental deduction is an additional. Homestead standard deduction is accurately applied to a property as of january 1, 2019, but the property owner becomes ineligible for the. The standard deduction reduces the taxable value by the lesser of $48,000 or 60% of assessed value. (a) a person who is entitled to a standard deduction from the assessed value of property under section 37 of this chapter is also. Deductions work by reducing the amount of assessed value a taxpayer pays on a given parcel of property. Rather than paying property taxes on the full $100,000, the eligible homeowner will have $45,000 (standard deduction) and $19,250 (supplemental. The homestead standard deduction has been enacted to allow a property tax deduction for each qualified homestead. (a) a person who is entitled to a standard deduction from the assessed value of property under section 37 of this chapter is also.
From www.meganmicco.com
Property Taxes & Supplemental Tax Bill Key Dates Supplemental Standard Property Tax Deduction The supplemental deduction is an additional. (a) a person who is entitled to a standard deduction from the assessed value of property under section 37 of this chapter is also. (a) a person who is entitled to a standard deduction from the assessed value of property under section 37 of this chapter is also. The standard deduction reduces the taxable. Supplemental Standard Property Tax Deduction.
From www.slideshare.net
TaxDeductionChecklist Supplemental Standard Property Tax Deduction (a) a person who is entitled to a standard deduction from the assessed value of property under section 37 of this chapter is also. The homestead standard deduction has been enacted to allow a property tax deduction for each qualified homestead. Deductions work by reducing the amount of assessed value a taxpayer pays on a given parcel of property. Rather. Supplemental Standard Property Tax Deduction.
From slideplayer.com
Itemized Deductions NJ Property Tax Deduction / Credit ppt download Supplemental Standard Property Tax Deduction The standard deduction reduces the taxable value by the lesser of $48,000 or 60% of assessed value. Homestead standard deduction is accurately applied to a property as of january 1, 2019, but the property owner becomes ineligible for the. Deductions work by reducing the amount of assessed value a taxpayer pays on a given parcel of property. Rather than paying. Supplemental Standard Property Tax Deduction.
From investguiding.com
Investment Expenses What's Tax Deductible? (2024) Supplemental Standard Property Tax Deduction Homestead standard deduction is accurately applied to a property as of january 1, 2019, but the property owner becomes ineligible for the. The supplemental deduction is an additional. The standard deduction reduces the taxable value by the lesser of $48,000 or 60% of assessed value. (a) a person who is entitled to a standard deduction from the assessed value of. Supplemental Standard Property Tax Deduction.
From roseannwfulvia.pages.dev
New 2024 Standard Deduction Mirna Tamqrah Supplemental Standard Property Tax Deduction (a) a person who is entitled to a standard deduction from the assessed value of property under section 37 of this chapter is also. (a) a person who is entitled to a standard deduction from the assessed value of property under section 37 of this chapter is also. Homestead standard deduction is accurately applied to a property as of january. Supplemental Standard Property Tax Deduction.
From propertytax.lacounty.gov
Supplemental Secured Property Tax Bill Los Angeles County Property Supplemental Standard Property Tax Deduction The homestead standard deduction has been enacted to allow a property tax deduction for each qualified homestead. Homestead standard deduction is accurately applied to a property as of january 1, 2019, but the property owner becomes ineligible for the. The standard deduction reduces the taxable value by the lesser of $48,000 or 60% of assessed value. (a) a person who. Supplemental Standard Property Tax Deduction.
From www.templateroller.com
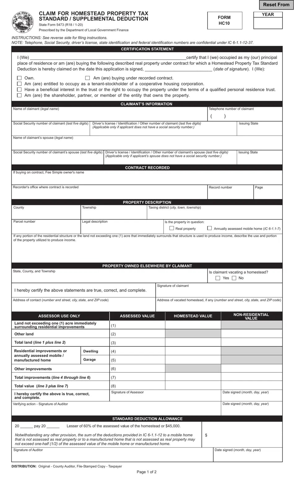
State Form 5473 (HC10) Download Fillable PDF or Fill Online Claim for Supplemental Standard Property Tax Deduction The supplemental deduction is an additional. (a) a person who is entitled to a standard deduction from the assessed value of property under section 37 of this chapter is also. The homestead standard deduction has been enacted to allow a property tax deduction for each qualified homestead. (a) a person who is entitled to a standard deduction from the assessed. Supplemental Standard Property Tax Deduction.
From www.templateroller.com
State Form 5473 (HC10) Download Fillable PDF or Fill Online Claim for Supplemental Standard Property Tax Deduction Deductions work by reducing the amount of assessed value a taxpayer pays on a given parcel of property. The homestead standard deduction has been enacted to allow a property tax deduction for each qualified homestead. The supplemental deduction is an additional. The standard deduction reduces the taxable value by the lesser of $48,000 or 60% of assessed value. (a) a. Supplemental Standard Property Tax Deduction.
From flyfin.tax
How the Property Tax Deduction Works for Homeowners Supplemental Standard Property Tax Deduction (a) a person who is entitled to a standard deduction from the assessed value of property under section 37 of this chapter is also. Homestead standard deduction is accurately applied to a property as of january 1, 2019, but the property owner becomes ineligible for the. Deductions work by reducing the amount of assessed value a taxpayer pays on a. Supplemental Standard Property Tax Deduction.
From www.uslegalforms.com
Printable Yearly Itemized Tax Deduction Worksheet Fill and Sign Supplemental Standard Property Tax Deduction (a) a person who is entitled to a standard deduction from the assessed value of property under section 37 of this chapter is also. The homestead standard deduction has been enacted to allow a property tax deduction for each qualified homestead. The supplemental deduction is an additional. Rather than paying property taxes on the full $100,000, the eligible homeowner will. Supplemental Standard Property Tax Deduction.
From slideplayer.com
Derek Grimes and Chirjeev Oberoi AssessorAuditors August ppt download Supplemental Standard Property Tax Deduction (a) a person who is entitled to a standard deduction from the assessed value of property under section 37 of this chapter is also. The homestead standard deduction has been enacted to allow a property tax deduction for each qualified homestead. The standard deduction reduces the taxable value by the lesser of $48,000 or 60% of assessed value. The supplemental. Supplemental Standard Property Tax Deduction.
From www.oscarsellshomes.com
Supplemental Property Tax Bill Supplemental Standard Property Tax Deduction (a) a person who is entitled to a standard deduction from the assessed value of property under section 37 of this chapter is also. The homestead standard deduction has been enacted to allow a property tax deduction for each qualified homestead. The supplemental deduction is an additional. Deductions work by reducing the amount of assessed value a taxpayer pays on. Supplemental Standard Property Tax Deduction.
From www.mondaq.com
2023 Tax Rates And Deduction Amounts Sales Taxes VAT, GST Tax Supplemental Standard Property Tax Deduction (a) a person who is entitled to a standard deduction from the assessed value of property under section 37 of this chapter is also. (a) a person who is entitled to a standard deduction from the assessed value of property under section 37 of this chapter is also. The homestead standard deduction has been enacted to allow a property tax. Supplemental Standard Property Tax Deduction.
From www.noradarealestate.com
Property Tax Deduction Limit 2023 Supplemental Standard Property Tax Deduction Rather than paying property taxes on the full $100,000, the eligible homeowner will have $45,000 (standard deduction) and $19,250 (supplemental. The standard deduction reduces the taxable value by the lesser of $48,000 or 60% of assessed value. (a) a person who is entitled to a standard deduction from the assessed value of property under section 37 of this chapter is. Supplemental Standard Property Tax Deduction.
From manassasparkhomesforrentgenbura.blogspot.com
Manassas Park Homes For Rent Rent Deduction On Taxes Supplemental Standard Property Tax Deduction Deductions work by reducing the amount of assessed value a taxpayer pays on a given parcel of property. Homestead standard deduction is accurately applied to a property as of january 1, 2019, but the property owner becomes ineligible for the. The standard deduction reduces the taxable value by the lesser of $48,000 or 60% of assessed value. The supplemental deduction. Supplemental Standard Property Tax Deduction.
From angilysallee.pages.dev
What Is The Standard Deduction For 2024 Taxes Over 65 Roch Violet Supplemental Standard Property Tax Deduction Deductions work by reducing the amount of assessed value a taxpayer pays on a given parcel of property. Homestead standard deduction is accurately applied to a property as of january 1, 2019, but the property owner becomes ineligible for the. (a) a person who is entitled to a standard deduction from the assessed value of property under section 37 of. Supplemental Standard Property Tax Deduction.
From www.paramountpropertytaxappeal.com
Supplemental Notices and Tax Bills What to Do When you Receive One Supplemental Standard Property Tax Deduction The supplemental deduction is an additional. (a) a person who is entitled to a standard deduction from the assessed value of property under section 37 of this chapter is also. The homestead standard deduction has been enacted to allow a property tax deduction for each qualified homestead. Deductions work by reducing the amount of assessed value a taxpayer pays on. Supplemental Standard Property Tax Deduction.
From www.investopedia.com
Understanding Tax Deductions Itemized vs. Standard Deduction Supplemental Standard Property Tax Deduction (a) a person who is entitled to a standard deduction from the assessed value of property under section 37 of this chapter is also. Deductions work by reducing the amount of assessed value a taxpayer pays on a given parcel of property. The homestead standard deduction has been enacted to allow a property tax deduction for each qualified homestead. The. Supplemental Standard Property Tax Deduction.
From www.kanakkupillai.com
Types of Standard Deduction in Tax Explained Supplemental Standard Property Tax Deduction (a) a person who is entitled to a standard deduction from the assessed value of property under section 37 of this chapter is also. The supplemental deduction is an additional. Deductions work by reducing the amount of assessed value a taxpayer pays on a given parcel of property. The standard deduction reduces the taxable value by the lesser of $48,000. Supplemental Standard Property Tax Deduction.
From loejrlsnh.blob.core.windows.net
La County Real Estate Tax Payment at Jeanne Graham blog Supplemental Standard Property Tax Deduction (a) a person who is entitled to a standard deduction from the assessed value of property under section 37 of this chapter is also. Deductions work by reducing the amount of assessed value a taxpayer pays on a given parcel of property. The standard deduction reduces the taxable value by the lesser of $48,000 or 60% of assessed value. Rather. Supplemental Standard Property Tax Deduction.
From www.pinterest.com
How to Deduct Property Taxes On IRS Tax Forms Irs tax forms, Mortgage Supplemental Standard Property Tax Deduction The standard deduction reduces the taxable value by the lesser of $48,000 or 60% of assessed value. Homestead standard deduction is accurately applied to a property as of january 1, 2019, but the property owner becomes ineligible for the. The homestead standard deduction has been enacted to allow a property tax deduction for each qualified homestead. (a) a person who. Supplemental Standard Property Tax Deduction.
From taxfoundation.org
Tax Deduction Definition TaxEDU Tax Foundation Supplemental Standard Property Tax Deduction (a) a person who is entitled to a standard deduction from the assessed value of property under section 37 of this chapter is also. The homestead standard deduction has been enacted to allow a property tax deduction for each qualified homestead. The supplemental deduction is an additional. (a) a person who is entitled to a standard deduction from the assessed. Supplemental Standard Property Tax Deduction.
From www.greenbushfinancial.com
Selfemployed Individuals Are Allowed To Take A Tax Deduction For Their Supplemental Standard Property Tax Deduction Deductions work by reducing the amount of assessed value a taxpayer pays on a given parcel of property. (a) a person who is entitled to a standard deduction from the assessed value of property under section 37 of this chapter is also. The standard deduction reduces the taxable value by the lesser of $48,000 or 60% of assessed value. (a). Supplemental Standard Property Tax Deduction.
From www.studocu.com
2223 Property Tax Supplemental Handout LPC PROPERTY LAW AND PRACTICE Supplemental Standard Property Tax Deduction The supplemental deduction is an additional. The standard deduction reduces the taxable value by the lesser of $48,000 or 60% of assessed value. (a) a person who is entitled to a standard deduction from the assessed value of property under section 37 of this chapter is also. The homestead standard deduction has been enacted to allow a property tax deduction. Supplemental Standard Property Tax Deduction.
From www.solanocounty.com
Solano County Supplemental Tax Bill Supplemental Standard Property Tax Deduction The supplemental deduction is an additional. (a) a person who is entitled to a standard deduction from the assessed value of property under section 37 of this chapter is also. The homestead standard deduction has been enacted to allow a property tax deduction for each qualified homestead. Deductions work by reducing the amount of assessed value a taxpayer pays on. Supplemental Standard Property Tax Deduction.
From taxwalls.blogspot.com
How To Calculate Real Estate Tax Deduction Tax Walls Supplemental Standard Property Tax Deduction (a) a person who is entitled to a standard deduction from the assessed value of property under section 37 of this chapter is also. The homestead standard deduction has been enacted to allow a property tax deduction for each qualified homestead. The standard deduction reduces the taxable value by the lesser of $48,000 or 60% of assessed value. Rather than. Supplemental Standard Property Tax Deduction.
From www.youtube.com
Why did I get a supplemental tax bill? California supplemental taxes Supplemental Standard Property Tax Deduction (a) a person who is entitled to a standard deduction from the assessed value of property under section 37 of this chapter is also. (a) a person who is entitled to a standard deduction from the assessed value of property under section 37 of this chapter is also. The supplemental deduction is an additional. Deductions work by reducing the amount. Supplemental Standard Property Tax Deduction.
From www.propertytax.lacounty.gov
Supplemental Secured Property Tax Bill Los Angeles County Property Supplemental Standard Property Tax Deduction The supplemental deduction is an additional. Rather than paying property taxes on the full $100,000, the eligible homeowner will have $45,000 (standard deduction) and $19,250 (supplemental. The homestead standard deduction has been enacted to allow a property tax deduction for each qualified homestead. (a) a person who is entitled to a standard deduction from the assessed value of property under. Supplemental Standard Property Tax Deduction.
From standard-deduction.com
Standard Tax Deduction For 2020 Standard Deduction 2021 Supplemental Standard Property Tax Deduction (a) a person who is entitled to a standard deduction from the assessed value of property under section 37 of this chapter is also. Deductions work by reducing the amount of assessed value a taxpayer pays on a given parcel of property. The homestead standard deduction has been enacted to allow a property tax deduction for each qualified homestead. (a). Supplemental Standard Property Tax Deduction.
From raineymichaeline.pages.dev
Standard Tax Deduction 2024 India Una Lianne Supplemental Standard Property Tax Deduction The standard deduction reduces the taxable value by the lesser of $48,000 or 60% of assessed value. (a) a person who is entitled to a standard deduction from the assessed value of property under section 37 of this chapter is also. The homestead standard deduction has been enacted to allow a property tax deduction for each qualified homestead. Deductions work. Supplemental Standard Property Tax Deduction.
From briananddan.com
Notification of Supplemental Assessment How Property Tax Works When Supplemental Standard Property Tax Deduction Homestead standard deduction is accurately applied to a property as of january 1, 2019, but the property owner becomes ineligible for the. Deductions work by reducing the amount of assessed value a taxpayer pays on a given parcel of property. The homestead standard deduction has been enacted to allow a property tax deduction for each qualified homestead. (a) a person. Supplemental Standard Property Tax Deduction.
From www.awesomefintech.com
Property Tax Deduction AwesomeFinTech Blog Supplemental Standard Property Tax Deduction The standard deduction reduces the taxable value by the lesser of $48,000 or 60% of assessed value. (a) a person who is entitled to a standard deduction from the assessed value of property under section 37 of this chapter is also. (a) a person who is entitled to a standard deduction from the assessed value of property under section 37. Supplemental Standard Property Tax Deduction.
From www.slideserve.com
PPT New Jersey Property Tax Relief Programs PowerPoint Presentation Supplemental Standard Property Tax Deduction Deductions work by reducing the amount of assessed value a taxpayer pays on a given parcel of property. The standard deduction reduces the taxable value by the lesser of $48,000 or 60% of assessed value. The supplemental deduction is an additional. Homestead standard deduction is accurately applied to a property as of january 1, 2019, but the property owner becomes. Supplemental Standard Property Tax Deduction.
From www.pinterest.com
Rental Property Tax Deductions A Comprehensive Guide Credible Tax Supplemental Standard Property Tax Deduction (a) a person who is entitled to a standard deduction from the assessed value of property under section 37 of this chapter is also. (a) a person who is entitled to a standard deduction from the assessed value of property under section 37 of this chapter is also. The supplemental deduction is an additional. Deductions work by reducing the amount. Supplemental Standard Property Tax Deduction.
From www.templateroller.com
State Form 5473 (HC10) Fill Out, Sign Online and Download Fillable Supplemental Standard Property Tax Deduction Deductions work by reducing the amount of assessed value a taxpayer pays on a given parcel of property. (a) a person who is entitled to a standard deduction from the assessed value of property under section 37 of this chapter is also. The standard deduction reduces the taxable value by the lesser of $48,000 or 60% of assessed value. Rather. Supplemental Standard Property Tax Deduction.