Forklift Jsa Example . Proceed slowly and insert the forks into the base of the load. 94.1 kb ) for free. This document outlines a job safety analysis (jsa) for operating a forklift. It identifies six key steps: Person(s) can strike an object, be struck by an object, or fall upon an object or tool that would cut or otherwise break the skin. It identifies potential hazards at each step. Tilt the mast slightly forward and align the forks with the base of the load. This document provides a job safety analysis for forklift operations. Move pallets / loads around yard note: This is just a guideline. Person(s) can strike an object, be struck by an object, or fall upon an object or tool that would cut or otherwise break the skin.
from www.scribd.com
This is just a guideline. Tilt the mast slightly forward and align the forks with the base of the load. Person(s) can strike an object, be struck by an object, or fall upon an object or tool that would cut or otherwise break the skin. 94.1 kb ) for free. This document outlines a job safety analysis (jsa) for operating a forklift. Move pallets / loads around yard note: It identifies six key steps: Person(s) can strike an object, be struck by an object, or fall upon an object or tool that would cut or otherwise break the skin. Proceed slowly and insert the forks into the base of the load. It identifies potential hazards at each step.
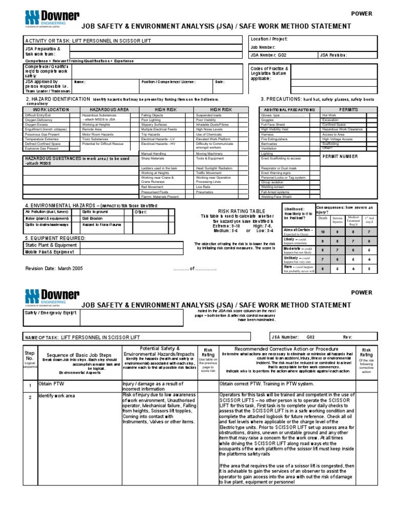
JSA G02 Lift Personnel in Scissor Lift
Forklift Jsa Example This document outlines a job safety analysis (jsa) for operating a forklift. Person(s) can strike an object, be struck by an object, or fall upon an object or tool that would cut or otherwise break the skin. Person(s) can strike an object, be struck by an object, or fall upon an object or tool that would cut or otherwise break the skin. This document provides a job safety analysis for forklift operations. It identifies potential hazards at each step. 94.1 kb ) for free. It identifies six key steps: This document outlines a job safety analysis (jsa) for operating a forklift. Proceed slowly and insert the forks into the base of the load. This is just a guideline. Move pallets / loads around yard note: Tilt the mast slightly forward and align the forks with the base of the load.
From gbu-presnenskij.ru
Job Safety Analysis (JSA) Template Operating Forklift In, 55 OFF Forklift Jsa Example Person(s) can strike an object, be struck by an object, or fall upon an object or tool that would cut or otherwise break the skin. Proceed slowly and insert the forks into the base of the load. It identifies potential hazards at each step. Person(s) can strike an object, be struck by an object, or fall upon an object or. Forklift Jsa Example.
From www.dexform.com
Job safety analysis (JSA) template operating forklift in Word and Pdf Forklift Jsa Example It identifies potential hazards at each step. Person(s) can strike an object, be struck by an object, or fall upon an object or tool that would cut or otherwise break the skin. Tilt the mast slightly forward and align the forks with the base of the load. This is just a guideline. Move pallets / loads around yard note: 94.1. Forklift Jsa Example.
From www.scribd.com
JSA for Forklift Activities Working Conditions Prevention Forklift Jsa Example Proceed slowly and insert the forks into the base of the load. Person(s) can strike an object, be struck by an object, or fall upon an object or tool that would cut or otherwise break the skin. This document outlines a job safety analysis (jsa) for operating a forklift. It identifies potential hazards at each step. Tilt the mast slightly. Forklift Jsa Example.
From www.vrogue.co
Jsa Safety Risk Assessment Editable Template vrogue.co Forklift Jsa Example 94.1 kb ) for free. It identifies six key steps: Tilt the mast slightly forward and align the forks with the base of the load. This document outlines a job safety analysis (jsa) for operating a forklift. Person(s) can strike an object, be struck by an object, or fall upon an object or tool that would cut or otherwise break. Forklift Jsa Example.
From id.scribd.com
JSAOperator Forklift PDF Forklift Jsa Example Proceed slowly and insert the forks into the base of the load. 94.1 kb ) for free. It identifies potential hazards at each step. Person(s) can strike an object, be struck by an object, or fall upon an object or tool that would cut or otherwise break the skin. This document outlines a job safety analysis (jsa) for operating a. Forklift Jsa Example.
From www.dexform.com
Job safety analysis (JSA) template operating forklift in Word and Pdf Forklift Jsa Example Tilt the mast slightly forward and align the forks with the base of the load. This document provides a job safety analysis for forklift operations. Person(s) can strike an object, be struck by an object, or fall upon an object or tool that would cut or otherwise break the skin. This is just a guideline. It identifies potential hazards at. Forklift Jsa Example.
From sitemate.com
Forklift Job Hazard Analysis template use the free template Forklift Jsa Example This document outlines a job safety analysis (jsa) for operating a forklift. This is just a guideline. Move pallets / loads around yard note: It identifies potential hazards at each step. Person(s) can strike an object, be struck by an object, or fall upon an object or tool that would cut or otherwise break the skin. Tilt the mast slightly. Forklift Jsa Example.
From www.scribd.com
JSA017 Lifting With Forklift 2 PDF Forklift Risk Forklift Jsa Example 94.1 kb ) for free. This document outlines a job safety analysis (jsa) for operating a forklift. It identifies potential hazards at each step. It identifies six key steps: Tilt the mast slightly forward and align the forks with the base of the load. Move pallets / loads around yard note: Proceed slowly and insert the forks into the base. Forklift Jsa Example.
From dokumen.tips
JSA Forklift [Download DOC] Forklift Jsa Example Move pallets / loads around yard note: Person(s) can strike an object, be struck by an object, or fall upon an object or tool that would cut or otherwise break the skin. It identifies six key steps: Tilt the mast slightly forward and align the forks with the base of the load. This document outlines a job safety analysis (jsa). Forklift Jsa Example.
From www.dexform.com
Job safety analysis (JSA) template operating forklift in Word and Pdf Forklift Jsa Example This is just a guideline. It identifies potential hazards at each step. This document outlines a job safety analysis (jsa) for operating a forklift. This document provides a job safety analysis for forklift operations. It identifies six key steps: Tilt the mast slightly forward and align the forks with the base of the load. 94.1 kb ) for free. Proceed. Forklift Jsa Example.
From www.dexform.com
Job safety analysis (JSA) template operating forklift in Word and Pdf Forklift Jsa Example Person(s) can strike an object, be struck by an object, or fall upon an object or tool that would cut or otherwise break the skin. Move pallets / loads around yard note: It identifies potential hazards at each step. This is just a guideline. Person(s) can strike an object, be struck by an object, or fall upon an object or. Forklift Jsa Example.
From www.builderassist.com.au
Forklift Safety Checklist Template Builder Assist Forklift Jsa Example This is just a guideline. Move pallets / loads around yard note: Person(s) can strike an object, be struck by an object, or fall upon an object or tool that would cut or otherwise break the skin. Proceed slowly and insert the forks into the base of the load. It identifies potential hazards at each step. This document outlines a. Forklift Jsa Example.
From www.scribd.com
Forklift Risk Assessment Forklift Emergency Management Forklift Jsa Example Person(s) can strike an object, be struck by an object, or fall upon an object or tool that would cut or otherwise break the skin. 94.1 kb ) for free. This document provides a job safety analysis for forklift operations. It identifies six key steps: Person(s) can strike an object, be struck by an object, or fall upon an object. Forklift Jsa Example.
From www.scribd.com
JSA G02 Lift Personnel in Scissor Lift Forklift Jsa Example This document provides a job safety analysis for forklift operations. 94.1 kb ) for free. This document outlines a job safety analysis (jsa) for operating a forklift. Person(s) can strike an object, be struck by an object, or fall upon an object or tool that would cut or otherwise break the skin. This is just a guideline. It identifies six. Forklift Jsa Example.
From www.scribd.com
Jsa R B 6 Forklift PDF Forklift Personal Protective Equipment Forklift Jsa Example This is just a guideline. Tilt the mast slightly forward and align the forks with the base of the load. Person(s) can strike an object, be struck by an object, or fall upon an object or tool that would cut or otherwise break the skin. 94.1 kb ) for free. Person(s) can strike an object, be struck by an object,. Forklift Jsa Example.
From www.scribd.com
JSA Forklift Forklift Jsa Example Tilt the mast slightly forward and align the forks with the base of the load. This document provides a job safety analysis for forklift operations. Person(s) can strike an object, be struck by an object, or fall upon an object or tool that would cut or otherwise break the skin. This document outlines a job safety analysis (jsa) for operating. Forklift Jsa Example.
From www.scribd.com
Jsa Lifting Procedure PDF Personal Protective Equipment Safety Forklift Jsa Example This is just a guideline. 94.1 kb ) for free. Proceed slowly and insert the forks into the base of the load. Person(s) can strike an object, be struck by an object, or fall upon an object or tool that would cut or otherwise break the skin. It identifies six key steps: Tilt the mast slightly forward and align the. Forklift Jsa Example.
From www.builderassist.com.au
Forklift Job Safety Analysis JSA Instant Download Forklift Jsa Example Proceed slowly and insert the forks into the base of the load. It identifies six key steps: This document outlines a job safety analysis (jsa) for operating a forklift. This document provides a job safety analysis for forklift operations. Person(s) can strike an object, be struck by an object, or fall upon an object or tool that would cut or. Forklift Jsa Example.
From www.bigrentz.com
The 15 Forklift Safety Tips To Avoid Injuries BigRentz Forklift Jsa Example Proceed slowly and insert the forks into the base of the load. Tilt the mast slightly forward and align the forks with the base of the load. It identifies six key steps: 94.1 kb ) for free. This is just a guideline. This document provides a job safety analysis for forklift operations. Move pallets / loads around yard note: It. Forklift Jsa Example.
From www.bharatagritech.com
Job Safety Analysis (JSA) Template Operating Forklift In, 55 OFF Forklift Jsa Example This document outlines a job safety analysis (jsa) for operating a forklift. It identifies potential hazards at each step. Person(s) can strike an object, be struck by an object, or fall upon an object or tool that would cut or otherwise break the skin. This is just a guideline. 94.1 kb ) for free. Move pallets / loads around yard. Forklift Jsa Example.
From www.scribd.com
JSAManual Lifting of Materials Personal Protective Equipment Risk Forklift Jsa Example This document outlines a job safety analysis (jsa) for operating a forklift. This is just a guideline. Tilt the mast slightly forward and align the forks with the base of the load. Move pallets / loads around yard note: It identifies six key steps: Person(s) can strike an object, be struck by an object, or fall upon an object or. Forklift Jsa Example.
From www.scribd.com
JSAfor Lifting Activity by Crane. (11012016) PDF Crane (Machine Forklift Jsa Example It identifies potential hazards at each step. 94.1 kb ) for free. It identifies six key steps: Person(s) can strike an object, be struck by an object, or fall upon an object or tool that would cut or otherwise break the skin. Tilt the mast slightly forward and align the forks with the base of the load. This is just. Forklift Jsa Example.
From www.studocu.com
56 JSA Operasi Forklift (Contoh) HEALTH, SAFETY AND ENVIRONMENTAL Forklift Jsa Example 94.1 kb ) for free. This is just a guideline. It identifies potential hazards at each step. Tilt the mast slightly forward and align the forks with the base of the load. Person(s) can strike an object, be struck by an object, or fall upon an object or tool that would cut or otherwise break the skin. Move pallets /. Forklift Jsa Example.
From id.scribd.com
JSA Mengoperasikan Forklift PDF Forklift Jsa Example This is just a guideline. Move pallets / loads around yard note: 94.1 kb ) for free. It identifies six key steps: This document outlines a job safety analysis (jsa) for operating a forklift. It identifies potential hazards at each step. Person(s) can strike an object, be struck by an object, or fall upon an object or tool that would. Forklift Jsa Example.
From www.examples.com
Job Safety Analysis 17+ Examples, Word, Pages, PDF, Tips Forklift Jsa Example It identifies potential hazards at each step. This is just a guideline. Move pallets / loads around yard note: Tilt the mast slightly forward and align the forks with the base of the load. 94.1 kb ) for free. It identifies six key steps: This document provides a job safety analysis for forklift operations. This document outlines a job safety. Forklift Jsa Example.
From id.scribd.com
Job Safety Analysis (JSA) Unloading Forklift PDF Forklift Jsa Example Proceed slowly and insert the forks into the base of the load. This document provides a job safety analysis for forklift operations. It identifies potential hazards at each step. Move pallets / loads around yard note: Tilt the mast slightly forward and align the forks with the base of the load. 94.1 kb ) for free. Person(s) can strike an. Forklift Jsa Example.
From www.scribd.com
Jsa Example Forklift PDF Forklift Jsa Example Tilt the mast slightly forward and align the forks with the base of the load. It identifies potential hazards at each step. Person(s) can strike an object, be struck by an object, or fall upon an object or tool that would cut or otherwise break the skin. 94.1 kb ) for free. Move pallets / loads around yard note: This. Forklift Jsa Example.
From www.slideserve.com
PPT Job Safety Analysis PowerPoint Presentation ID403810 Forklift Jsa Example Person(s) can strike an object, be struck by an object, or fall upon an object or tool that would cut or otherwise break the skin. Tilt the mast slightly forward and align the forks with the base of the load. This document outlines a job safety analysis (jsa) for operating a forklift. It identifies six key steps: 94.1 kb ). Forklift Jsa Example.
From studylib.net
1.Contoh JSA Contoh Operasional Forklift Forklift Jsa Example This document provides a job safety analysis for forklift operations. Person(s) can strike an object, be struck by an object, or fall upon an object or tool that would cut or otherwise break the skin. It identifies potential hazards at each step. Tilt the mast slightly forward and align the forks with the base of the load. This document outlines. Forklift Jsa Example.
From www.bharatagritech.com
Job Safety Analysis (JSA) Template Operating Forklift In, 55 OFF Forklift Jsa Example Tilt the mast slightly forward and align the forks with the base of the load. This is just a guideline. It identifies potential hazards at each step. Proceed slowly and insert the forks into the base of the load. 94.1 kb ) for free. It identifies six key steps: Move pallets / loads around yard note: Person(s) can strike an. Forklift Jsa Example.
From www.congress-intercultural.eu
Job Safety Analysis (JSA) Template Operating Forklift In, 49 OFF Forklift Jsa Example Person(s) can strike an object, be struck by an object, or fall upon an object or tool that would cut or otherwise break the skin. This is just a guideline. This document provides a job safety analysis for forklift operations. This document outlines a job safety analysis (jsa) for operating a forklift. Tilt the mast slightly forward and align the. Forklift Jsa Example.
From sitemate.com
Forklift Safe Work Method Statement [Editable forklift SWMS] Forklift Jsa Example Person(s) can strike an object, be struck by an object, or fall upon an object or tool that would cut or otherwise break the skin. It identifies six key steps: Proceed slowly and insert the forks into the base of the load. 94.1 kb ) for free. This is just a guideline. This document outlines a job safety analysis (jsa). Forklift Jsa Example.
From sitemate.com
Forklift Job Hazard Analysis template use the free template Forklift Jsa Example 94.1 kb ) for free. This document provides a job safety analysis for forklift operations. This document outlines a job safety analysis (jsa) for operating a forklift. Proceed slowly and insert the forks into the base of the load. It identifies six key steps: Person(s) can strike an object, be struck by an object, or fall upon an object or. Forklift Jsa Example.
From www.scribd.com
JHA Forklift Forklift Risk Forklift Jsa Example This document outlines a job safety analysis (jsa) for operating a forklift. It identifies six key steps: Proceed slowly and insert the forks into the base of the load. This document provides a job safety analysis for forklift operations. Person(s) can strike an object, be struck by an object, or fall upon an object or tool that would cut or. Forklift Jsa Example.
From www.bharatagritech.com
Job Safety Analysis (JSA) Template Operating Forklift In, 55 OFF Forklift Jsa Example This is just a guideline. It identifies potential hazards at each step. 94.1 kb ) for free. Proceed slowly and insert the forks into the base of the load. Person(s) can strike an object, be struck by an object, or fall upon an object or tool that would cut or otherwise break the skin. This document outlines a job safety. Forklift Jsa Example.