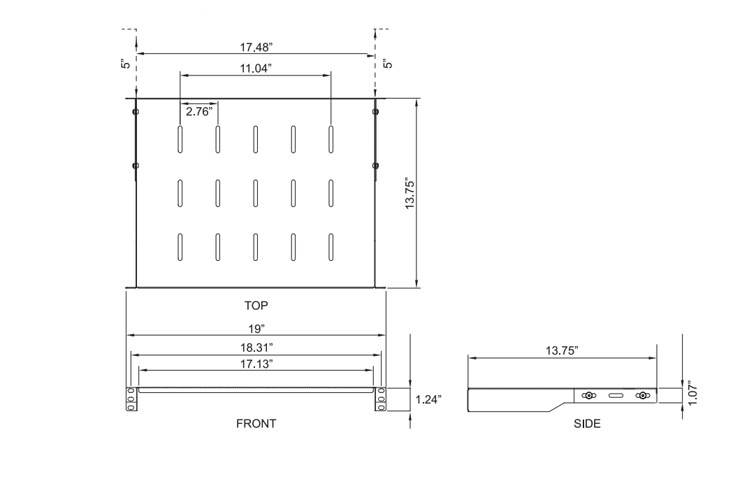
Cantilever Shelf Plans . Properly built, the shelves are strong enough one can climb up. This page describes how to build these cantilevered shelves of my design. From large to small, finding the space to fit new finds or organize the kid’s rooms a bit better can make all the difference. The simple design is wide open at the front and sides so nothing interferes with what’s on display. Cantilevered (angled) shelving is the shop standard for storing stock, but commercial units were too large and expensive. Below, we have compiled a list of instructions that teach you how to build wooden shelves that should fit in any living space you find yourself. I had a bunch of scrap pieces of wood that weren't really big enough to build a whole project with, yet were pretty enough for me to want to. So i designed my own cantilevered shelving using closetmaid. These shelves are handsome, easy to build and inexpensive. And they're strong even though they have no visible supports.
from www.popularwoodworking.com
This page describes how to build these cantilevered shelves of my design. Cantilevered (angled) shelving is the shop standard for storing stock, but commercial units were too large and expensive. Properly built, the shelves are strong enough one can climb up. From large to small, finding the space to fit new finds or organize the kid’s rooms a bit better can make all the difference. Below, we have compiled a list of instructions that teach you how to build wooden shelves that should fit in any living space you find yourself. These shelves are handsome, easy to build and inexpensive. So i designed my own cantilevered shelving using closetmaid. The simple design is wide open at the front and sides so nothing interferes with what’s on display. I had a bunch of scrap pieces of wood that weren't really big enough to build a whole project with, yet were pretty enough for me to want to. And they're strong even though they have no visible supports.
Cantilevered Display Shelves Popular Woodworking Magazine
Cantilever Shelf Plans And they're strong even though they have no visible supports. So i designed my own cantilevered shelving using closetmaid. I had a bunch of scrap pieces of wood that weren't really big enough to build a whole project with, yet were pretty enough for me to want to. From large to small, finding the space to fit new finds or organize the kid’s rooms a bit better can make all the difference. The simple design is wide open at the front and sides so nothing interferes with what’s on display. Cantilevered (angled) shelving is the shop standard for storing stock, but commercial units were too large and expensive. This page describes how to build these cantilevered shelves of my design. Properly built, the shelves are strong enough one can climb up. Below, we have compiled a list of instructions that teach you how to build wooden shelves that should fit in any living space you find yourself. And they're strong even though they have no visible supports. These shelves are handsome, easy to build and inexpensive.
From palletstoragesolutions.com
Find the perfect cantilever racks to store abnormal size materials in Cantilever Shelf Plans These shelves are handsome, easy to build and inexpensive. So i designed my own cantilevered shelving using closetmaid. Properly built, the shelves are strong enough one can climb up. This page describes how to build these cantilevered shelves of my design. I had a bunch of scrap pieces of wood that weren't really big enough to build a whole project. Cantilever Shelf Plans.
From rackandshelf.com
Cantilever Storage Racks with Incline Single Sided Cantilever Racks Cantilever Shelf Plans Properly built, the shelves are strong enough one can climb up. I had a bunch of scrap pieces of wood that weren't really big enough to build a whole project with, yet were pretty enough for me to want to. Below, we have compiled a list of instructions that teach you how to build wooden shelves that should fit in. Cantilever Shelf Plans.
From www.remodelandolacasa.com
Garage Organization DIY Cantilever Shelves Remodelando la Casa Cantilever Shelf Plans This page describes how to build these cantilevered shelves of my design. And they're strong even though they have no visible supports. I had a bunch of scrap pieces of wood that weren't really big enough to build a whole project with, yet were pretty enough for me to want to. These shelves are handsome, easy to build and inexpensive.. Cantilever Shelf Plans.
From www.instructables.com
DIY Cantilevered Material Shelving 3 Steps Instructables Cantilever Shelf Plans This page describes how to build these cantilevered shelves of my design. And they're strong even though they have no visible supports. I had a bunch of scrap pieces of wood that weren't really big enough to build a whole project with, yet were pretty enough for me to want to. From large to small, finding the space to fit. Cantilever Shelf Plans.
From www.okestorage.com
Cantilever Shelves, Cantilever Racks, Cantilever Shelving System OKE Cantilever Shelf Plans From large to small, finding the space to fit new finds or organize the kid’s rooms a bit better can make all the difference. The simple design is wide open at the front and sides so nothing interferes with what’s on display. And they're strong even though they have no visible supports. So i designed my own cantilevered shelving using. Cantilever Shelf Plans.
From precisionwarehousedesign.com
Cantilever Rack Heavy Duty for Warehouses PWD Cantilever Shelf Plans Below, we have compiled a list of instructions that teach you how to build wooden shelves that should fit in any living space you find yourself. And they're strong even though they have no visible supports. From large to small, finding the space to fit new finds or organize the kid’s rooms a bit better can make all the difference.. Cantilever Shelf Plans.
From www.familyhandyman.com
How To Build Floating Shelves (DIY) Family Handyman Cantilever Shelf Plans From large to small, finding the space to fit new finds or organize the kid’s rooms a bit better can make all the difference. Properly built, the shelves are strong enough one can climb up. This page describes how to build these cantilevered shelves of my design. Cantilevered (angled) shelving is the shop standard for storing stock, but commercial units. Cantilever Shelf Plans.
From www.americansurplus.com
Cantilever Rack Buyer's Guide Cantilever Shelf Plans Below, we have compiled a list of instructions that teach you how to build wooden shelves that should fit in any living space you find yourself. Cantilevered (angled) shelving is the shop standard for storing stock, but commercial units were too large and expensive. So i designed my own cantilevered shelving using closetmaid. The simple design is wide open at. Cantilever Shelf Plans.
From www.pinterest.com
Wayuphigh cantilevered garage shelves in 2020 Garage shelf, Garage Cantilever Shelf Plans And they're strong even though they have no visible supports. Cantilevered (angled) shelving is the shop standard for storing stock, but commercial units were too large and expensive. This page describes how to build these cantilevered shelves of my design. The simple design is wide open at the front and sides so nothing interferes with what’s on display. From large. Cantilever Shelf Plans.
From www.abmrack.com
Anderson Building Materials Cantilever Racking Cantilever Rack Cantilever Shelf Plans The simple design is wide open at the front and sides so nothing interferes with what’s on display. Cantilevered (angled) shelving is the shop standard for storing stock, but commercial units were too large and expensive. I had a bunch of scrap pieces of wood that weren't really big enough to build a whole project with, yet were pretty enough. Cantilever Shelf Plans.
From www.itsoverflowing.com
DIY Garage Shelves (30 DIY Garage Shelving Ideas to Try) Cantilever Shelf Plans The simple design is wide open at the front and sides so nothing interferes with what’s on display. So i designed my own cantilevered shelving using closetmaid. Below, we have compiled a list of instructions that teach you how to build wooden shelves that should fit in any living space you find yourself. And they're strong even though they have. Cantilever Shelf Plans.
From www.okestorage.com
Cantilever Shelves, Cantilever Racks, Cantilever Shelving System OKE Cantilever Shelf Plans So i designed my own cantilevered shelving using closetmaid. These shelves are handsome, easy to build and inexpensive. This page describes how to build these cantilevered shelves of my design. And they're strong even though they have no visible supports. Cantilevered (angled) shelving is the shop standard for storing stock, but commercial units were too large and expensive. The simple. Cantilever Shelf Plans.
From www.getscw.com
Adjustable Cantilever shelf Cantilever Shelf Plans And they're strong even though they have no visible supports. These shelves are handsome, easy to build and inexpensive. From large to small, finding the space to fit new finds or organize the kid’s rooms a bit better can make all the difference. Below, we have compiled a list of instructions that teach you how to build wooden shelves that. Cantilever Shelf Plans.
From www.popularwoodworking.com
Cantilevered Display Shelves Popular Woodworking Magazine Cantilever Shelf Plans Below, we have compiled a list of instructions that teach you how to build wooden shelves that should fit in any living space you find yourself. So i designed my own cantilevered shelving using closetmaid. Properly built, the shelves are strong enough one can climb up. This page describes how to build these cantilevered shelves of my design. From large. Cantilever Shelf Plans.
From www.acepalletracking.com
News Several innovative approaches to using cantilevered shelving Cantilever Shelf Plans This page describes how to build these cantilevered shelves of my design. These shelves are handsome, easy to build and inexpensive. I had a bunch of scrap pieces of wood that weren't really big enough to build a whole project with, yet were pretty enough for me to want to. From large to small, finding the space to fit new. Cantilever Shelf Plans.
From choiceequipmentcompany.com
SU65 Adjustable Cantilever Shelving Choice Equipment Company Cantilever Shelf Plans And they're strong even though they have no visible supports. So i designed my own cantilevered shelving using closetmaid. Cantilevered (angled) shelving is the shop standard for storing stock, but commercial units were too large and expensive. I had a bunch of scrap pieces of wood that weren't really big enough to build a whole project with, yet were pretty. Cantilever Shelf Plans.
From www.abmrack.com
Anderson Building Materials Cantilever Racking Cantilever Rack Cantilever Shelf Plans The simple design is wide open at the front and sides so nothing interferes with what’s on display. Cantilevered (angled) shelving is the shop standard for storing stock, but commercial units were too large and expensive. Below, we have compiled a list of instructions that teach you how to build wooden shelves that should fit in any living space you. Cantilever Shelf Plans.
From www.raugh.net
Cantilevered KnickKnack Shelf Diary of a Wood Nerd Cantilever Shelf Plans And they're strong even though they have no visible supports. These shelves are handsome, easy to build and inexpensive. This page describes how to build these cantilevered shelves of my design. Cantilevered (angled) shelving is the shop standard for storing stock, but commercial units were too large and expensive. The simple design is wide open at the front and sides. Cantilever Shelf Plans.
From choiceequipmentcompany.com
SU65 Adjustable Cantilever Shelving Choice Equipment Company Cantilever Shelf Plans The simple design is wide open at the front and sides so nothing interferes with what’s on display. From large to small, finding the space to fit new finds or organize the kid’s rooms a bit better can make all the difference. So i designed my own cantilevered shelving using closetmaid. And they're strong even though they have no visible. Cantilever Shelf Plans.
From camaraindustries.com
WAREHOUSE STORAGE SYSTEMS CANTILEVER RACK Camara Industries Inc Cantilever Shelf Plans Properly built, the shelves are strong enough one can climb up. From large to small, finding the space to fit new finds or organize the kid’s rooms a bit better can make all the difference. And they're strong even though they have no visible supports. Below, we have compiled a list of instructions that teach you how to build wooden. Cantilever Shelf Plans.
From www.pinterest.de
Easy cantilever shelves Home diy, Shelves, Home decor Cantilever Shelf Plans Properly built, the shelves are strong enough one can climb up. From large to small, finding the space to fit new finds or organize the kid’s rooms a bit better can make all the difference. So i designed my own cantilevered shelving using closetmaid. And they're strong even though they have no visible supports. Cantilevered (angled) shelving is the shop. Cantilever Shelf Plans.
From www.pinterest.com
Cantilevered shelves in the new hall vestibule echo the shelves in the Cantilever Shelf Plans I had a bunch of scrap pieces of wood that weren't really big enough to build a whole project with, yet were pretty enough for me to want to. This page describes how to build these cantilevered shelves of my design. Properly built, the shelves are strong enough one can climb up. The simple design is wide open at the. Cantilever Shelf Plans.
From materialflow.com
Cantilever Shelves Cantilever Shelf Plans And they're strong even though they have no visible supports. Cantilevered (angled) shelving is the shop standard for storing stock, but commercial units were too large and expensive. I had a bunch of scrap pieces of wood that weren't really big enough to build a whole project with, yet were pretty enough for me to want to. The simple design. Cantilever Shelf Plans.
From www.pinterest.com
First attempt at cantilever shelving. Cantilever shelf, Home decor Cantilever Shelf Plans This page describes how to build these cantilevered shelves of my design. Cantilevered (angled) shelving is the shop standard for storing stock, but commercial units were too large and expensive. These shelves are handsome, easy to build and inexpensive. From large to small, finding the space to fit new finds or organize the kid’s rooms a bit better can make. Cantilever Shelf Plans.
From www.rosstechnology.com
HeavyDuty Cantilever Storage Racks IBeam Racking Cantilever Shelf Plans And they're strong even though they have no visible supports. The simple design is wide open at the front and sides so nothing interferes with what’s on display. From large to small, finding the space to fit new finds or organize the kid’s rooms a bit better can make all the difference. I had a bunch of scrap pieces of. Cantilever Shelf Plans.
From www.pinterest.at
Wayuphigh cantilevered garage shelves Garage storage shelves Cantilever Shelf Plans I had a bunch of scrap pieces of wood that weren't really big enough to build a whole project with, yet were pretty enough for me to want to. From large to small, finding the space to fit new finds or organize the kid’s rooms a bit better can make all the difference. The simple design is wide open at. Cantilever Shelf Plans.
From www.pinterest.jp
My first project bathroom cantilever shelves http//ift.tt/2ojEGdr Cantilever Shelf Plans Cantilevered (angled) shelving is the shop standard for storing stock, but commercial units were too large and expensive. I had a bunch of scrap pieces of wood that weren't really big enough to build a whole project with, yet were pretty enough for me to want to. Properly built, the shelves are strong enough one can climb up. These shelves. Cantilever Shelf Plans.
From www.ajmagnay.com.au
Cantilever Shelving A J Magnay Cantilever Shelf Plans Properly built, the shelves are strong enough one can climb up. From large to small, finding the space to fit new finds or organize the kid’s rooms a bit better can make all the difference. Below, we have compiled a list of instructions that teach you how to build wooden shelves that should fit in any living space you find. Cantilever Shelf Plans.
From homebnc.com
27+ Best DIY Floating Shelf Ideas and Designs for 2021 Cantilever Shelf Plans From large to small, finding the space to fit new finds or organize the kid’s rooms a bit better can make all the difference. Properly built, the shelves are strong enough one can climb up. This page describes how to build these cantilevered shelves of my design. I had a bunch of scrap pieces of wood that weren't really big. Cantilever Shelf Plans.
From mungfali.com
Cantilever Rack Design Cantilever Shelf Plans This page describes how to build these cantilevered shelves of my design. Below, we have compiled a list of instructions that teach you how to build wooden shelves that should fit in any living space you find yourself. I had a bunch of scrap pieces of wood that weren't really big enough to build a whole project with, yet were. Cantilever Shelf Plans.
From www.okestorage.com
Cantilever Shelves, Cantilever Racks, Cantilever Shelving System OKE Cantilever Shelf Plans These shelves are handsome, easy to build and inexpensive. I had a bunch of scrap pieces of wood that weren't really big enough to build a whole project with, yet were pretty enough for me to want to. Below, we have compiled a list of instructions that teach you how to build wooden shelves that should fit in any living. Cantilever Shelf Plans.
From there4.io
Cantilevered Plywood Garage Shelves Craig Davis Cantilever Shelf Plans This page describes how to build these cantilevered shelves of my design. These shelves are handsome, easy to build and inexpensive. The simple design is wide open at the front and sides so nothing interferes with what’s on display. Cantilevered (angled) shelving is the shop standard for storing stock, but commercial units were too large and expensive. Properly built, the. Cantilever Shelf Plans.
From www.remodelandolacasa.com
Garage Organization DIY Cantilever Shelves Remodelando la Casa Cantilever Shelf Plans Below, we have compiled a list of instructions that teach you how to build wooden shelves that should fit in any living space you find yourself. I had a bunch of scrap pieces of wood that weren't really big enough to build a whole project with, yet were pretty enough for me to want to. This page describes how to. Cantilever Shelf Plans.
From www.kurraglenindustries.com.au
Heavy Duty Steel Cantilever Rack free plans Cantilever Shelf Plans And they're strong even though they have no visible supports. Cantilevered (angled) shelving is the shop standard for storing stock, but commercial units were too large and expensive. From large to small, finding the space to fit new finds or organize the kid’s rooms a bit better can make all the difference. So i designed my own cantilevered shelving using. Cantilever Shelf Plans.
From homedesigntutorials.com
Learn how to Design a Cantilevered "Floating" Staircase Cantilever Shelf Plans So i designed my own cantilevered shelving using closetmaid. I had a bunch of scrap pieces of wood that weren't really big enough to build a whole project with, yet were pretty enough for me to want to. Properly built, the shelves are strong enough one can climb up. This page describes how to build these cantilevered shelves of my. Cantilever Shelf Plans.