What Is Inert Gas System . Inert gas means a gas or a mixture of gases, such as flue gas, containing insufficient oxygen to support the combustion of. Inert gas system or ig system are among one of the most crucial safety and security functions of oil vessels. The system provides an inert gas (e.g., nitrogen) blanket in tanks in order to displace oxygen and prevent the development. What is inert gas system. Inert gas system (igs) on a ship refers to a system deployed for the prevention of an explosion in. What is an inert gas system? By maintaining a positive pressure in the cargo tanks at all times, with an atmosphere not having an oxygen content greater than 8% by volume,.
from www.inertgasfiresystems.com
Inert gas system (igs) on a ship refers to a system deployed for the prevention of an explosion in. What is an inert gas system? By maintaining a positive pressure in the cargo tanks at all times, with an atmosphere not having an oxygen content greater than 8% by volume,. What is inert gas system. Inert gas system or ig system are among one of the most crucial safety and security functions of oil vessels. The system provides an inert gas (e.g., nitrogen) blanket in tanks in order to displace oxygen and prevent the development. Inert gas means a gas or a mixture of gases, such as flue gas, containing insufficient oxygen to support the combustion of.
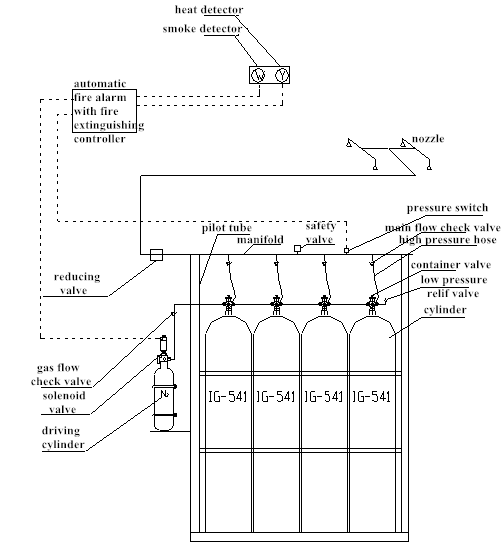
Inert gas fire suppression systems Gielle Industries
What Is Inert Gas System What is inert gas system. Inert gas system (igs) on a ship refers to a system deployed for the prevention of an explosion in. Inert gas system or ig system are among one of the most crucial safety and security functions of oil vessels. What is an inert gas system? Inert gas means a gas or a mixture of gases, such as flue gas, containing insufficient oxygen to support the combustion of. What is inert gas system. The system provides an inert gas (e.g., nitrogen) blanket in tanks in order to displace oxygen and prevent the development. By maintaining a positive pressure in the cargo tanks at all times, with an atmosphere not having an oxygen content greater than 8% by volume,.
From owaysonline.com
Sketch and Explanation on Inert Gas of an Oil Tanker What Is Inert Gas System Inert gas system or ig system are among one of the most crucial safety and security functions of oil vessels. By maintaining a positive pressure in the cargo tanks at all times, with an atmosphere not having an oxygen content greater than 8% by volume,. Inert gas means a gas or a mixture of gases, such as flue gas, containing. What Is Inert Gas System.
From knowledgeofsea.com
Inert gas System Knowledge Of Sea What Is Inert Gas System Inert gas system or ig system are among one of the most crucial safety and security functions of oil vessels. By maintaining a positive pressure in the cargo tanks at all times, with an atmosphere not having an oxygen content greater than 8% by volume,. What is inert gas system. Inert gas system (igs) on a ship refers to a. What Is Inert Gas System.
From www.wartsila.com
Inert gas system What Is Inert Gas System What is an inert gas system? The system provides an inert gas (e.g., nitrogen) blanket in tanks in order to displace oxygen and prevent the development. Inert gas system (igs) on a ship refers to a system deployed for the prevention of an explosion in. What is inert gas system. Inert gas means a gas or a mixture of gases,. What Is Inert Gas System.
From rowher.saisonsdumonde.fr
Wärtsilä Inert Gas Generators for Tankers What Is Inert Gas System By maintaining a positive pressure in the cargo tanks at all times, with an atmosphere not having an oxygen content greater than 8% by volume,. What is inert gas system. The system provides an inert gas (e.g., nitrogen) blanket in tanks in order to displace oxygen and prevent the development. What is an inert gas system? Inert gas system (igs). What Is Inert Gas System.
From knowledgeofsea.com
Inert Gas System Knowledge Of Sea What Is Inert Gas System Inert gas system (igs) on a ship refers to a system deployed for the prevention of an explosion in. The system provides an inert gas (e.g., nitrogen) blanket in tanks in order to displace oxygen and prevent the development. What is an inert gas system? By maintaining a positive pressure in the cargo tanks at all times, with an atmosphere. What Is Inert Gas System.
From knowledgeofsea.com
Inert gas System Knowledge Of Sea What Is Inert Gas System What is an inert gas system? Inert gas means a gas or a mixture of gases, such as flue gas, containing insufficient oxygen to support the combustion of. Inert gas system (igs) on a ship refers to a system deployed for the prevention of an explosion in. The system provides an inert gas (e.g., nitrogen) blanket in tanks in order. What Is Inert Gas System.
From www.seably.com
Inert Gas Systems Seably What Is Inert Gas System Inert gas means a gas or a mixture of gases, such as flue gas, containing insufficient oxygen to support the combustion of. By maintaining a positive pressure in the cargo tanks at all times, with an atmosphere not having an oxygen content greater than 8% by volume,. What is an inert gas system? What is inert gas system. Inert gas. What Is Inert Gas System.
From inertgaszaimono.blogspot.com
Inert Gas Ship Inert Gas System What Is Inert Gas System What is an inert gas system? What is inert gas system. Inert gas system (igs) on a ship refers to a system deployed for the prevention of an explosion in. By maintaining a positive pressure in the cargo tanks at all times, with an atmosphere not having an oxygen content greater than 8% by volume,. Inert gas system or ig. What Is Inert Gas System.
From atsea.group
Inert gas system on board AtSea Marine Platform What Is Inert Gas System Inert gas system (igs) on a ship refers to a system deployed for the prevention of an explosion in. Inert gas system or ig system are among one of the most crucial safety and security functions of oil vessels. What is an inert gas system? What is inert gas system. The system provides an inert gas (e.g., nitrogen) blanket in. What Is Inert Gas System.
From www.alfalaval.com
Inert gas production Alfa Laval What Is Inert Gas System What is an inert gas system? Inert gas system or ig system are among one of the most crucial safety and security functions of oil vessels. The system provides an inert gas (e.g., nitrogen) blanket in tanks in order to displace oxygen and prevent the development. Inert gas means a gas or a mixture of gases, such as flue gas,. What Is Inert Gas System.
From pengadaan-konstruksiku.blogspot.com
Gas Inert Dilengkapi Fungsi, Contoh, CiriCiri, dan Cara Kerjanya Pengadaan3 What Is Inert Gas System What is inert gas system. Inert gas system or ig system are among one of the most crucial safety and security functions of oil vessels. The system provides an inert gas (e.g., nitrogen) blanket in tanks in order to displace oxygen and prevent the development. By maintaining a positive pressure in the cargo tanks at all times, with an atmosphere. What Is Inert Gas System.
From knowledgeofsea.com
Inert gas System Knowledge Of Sea What Is Inert Gas System What is an inert gas system? By maintaining a positive pressure in the cargo tanks at all times, with an atmosphere not having an oxygen content greater than 8% by volume,. The system provides an inert gas (e.g., nitrogen) blanket in tanks in order to displace oxygen and prevent the development. Inert gas means a gas or a mixture of. What Is Inert Gas System.
From knowledgeofsea.com
Inert Gas System Knowledge Of Sea What Is Inert Gas System The system provides an inert gas (e.g., nitrogen) blanket in tanks in order to displace oxygen and prevent the development. Inert gas system (igs) on a ship refers to a system deployed for the prevention of an explosion in. What is inert gas system. Inert gas means a gas or a mixture of gases, such as flue gas, containing insufficient. What Is Inert Gas System.
From www.ceasefire.in
Inert Gas & CO2 Based Fire Suppression Systems Ceasefire Ind P Ltd. What Is Inert Gas System Inert gas system or ig system are among one of the most crucial safety and security functions of oil vessels. What is an inert gas system? The system provides an inert gas (e.g., nitrogen) blanket in tanks in order to displace oxygen and prevent the development. What is inert gas system. Inert gas system (igs) on a ship refers to. What Is Inert Gas System.
From knowledgeofsea.com
Inert gas System Knowledge Of Sea What Is Inert Gas System The system provides an inert gas (e.g., nitrogen) blanket in tanks in order to displace oxygen and prevent the development. Inert gas system or ig system are among one of the most crucial safety and security functions of oil vessels. What is inert gas system. Inert gas system (igs) on a ship refers to a system deployed for the prevention. What Is Inert Gas System.
From www.gwsprinkler.pl
Inert gas extinguishing systems GW SPRINKLER What Is Inert Gas System By maintaining a positive pressure in the cargo tanks at all times, with an atmosphere not having an oxygen content greater than 8% by volume,. What is an inert gas system? The system provides an inert gas (e.g., nitrogen) blanket in tanks in order to displace oxygen and prevent the development. Inert gas system or ig system are among one. What Is Inert Gas System.
From www.seamanmemories.com
What Tankers Do to Not Explode so Easily Inert Gas System Explained What Is Inert Gas System What is an inert gas system? Inert gas system (igs) on a ship refers to a system deployed for the prevention of an explosion in. The system provides an inert gas (e.g., nitrogen) blanket in tanks in order to displace oxygen and prevent the development. Inert gas means a gas or a mixture of gases, such as flue gas, containing. What Is Inert Gas System.
From www.youtube.com
Shortest explanation of Inert gas system and Working IG System Prevent taker explosion YouTube What Is Inert Gas System What is an inert gas system? What is inert gas system. Inert gas means a gas or a mixture of gases, such as flue gas, containing insufficient oxygen to support the combustion of. The system provides an inert gas (e.g., nitrogen) blanket in tanks in order to displace oxygen and prevent the development. Inert gas system or ig system are. What Is Inert Gas System.
From www.gielle.it
Inert gas fire systems, inert gas fire suppression systems What Is Inert Gas System Inert gas system or ig system are among one of the most crucial safety and security functions of oil vessels. Inert gas system (igs) on a ship refers to a system deployed for the prevention of an explosion in. What is an inert gas system? Inert gas means a gas or a mixture of gases, such as flue gas, containing. What Is Inert Gas System.
From www.bloggingsailor.com
Inert gas system and it’s requirements BloggingSailor What Is Inert Gas System Inert gas system or ig system are among one of the most crucial safety and security functions of oil vessels. What is inert gas system. Inert gas means a gas or a mixture of gases, such as flue gas, containing insufficient oxygen to support the combustion of. The system provides an inert gas (e.g., nitrogen) blanket in tanks in order. What Is Inert Gas System.
From inertgaszaimono.blogspot.com
Inert Gas Pv Breaker Inert Gas What Is Inert Gas System What is inert gas system. Inert gas system (igs) on a ship refers to a system deployed for the prevention of an explosion in. The system provides an inert gas (e.g., nitrogen) blanket in tanks in order to displace oxygen and prevent the development. Inert gas means a gas or a mixture of gases, such as flue gas, containing insufficient. What Is Inert Gas System.
From knowledgeofsea.com
Inert gas System Knowledge Of Sea What Is Inert Gas System Inert gas system (igs) on a ship refers to a system deployed for the prevention of an explosion in. What is an inert gas system? Inert gas system or ig system are among one of the most crucial safety and security functions of oil vessels. The system provides an inert gas (e.g., nitrogen) blanket in tanks in order to displace. What Is Inert Gas System.
From marinelords.com
What is the meaning of Inert Gas and its composition Marine Lords What Is Inert Gas System Inert gas system (igs) on a ship refers to a system deployed for the prevention of an explosion in. By maintaining a positive pressure in the cargo tanks at all times, with an atmosphere not having an oxygen content greater than 8% by volume,. What is an inert gas system? The system provides an inert gas (e.g., nitrogen) blanket in. What Is Inert Gas System.
From knowledgeofsea.com
Inert gas System Knowledge Of Sea What Is Inert Gas System The system provides an inert gas (e.g., nitrogen) blanket in tanks in order to displace oxygen and prevent the development. By maintaining a positive pressure in the cargo tanks at all times, with an atmosphere not having an oxygen content greater than 8% by volume,. Inert gas system (igs) on a ship refers to a system deployed for the prevention. What Is Inert Gas System.
From www.maritimepropulsion.com
Inert Gas Systems Produces Significant Fuel Savings What Is Inert Gas System Inert gas system (igs) on a ship refers to a system deployed for the prevention of an explosion in. By maintaining a positive pressure in the cargo tanks at all times, with an atmosphere not having an oxygen content greater than 8% by volume,. Inert gas means a gas or a mixture of gases, such as flue gas, containing insufficient. What Is Inert Gas System.
From inertgaszaimono.blogspot.com
Inert Gas What Is Inert Gas System What Is Inert Gas System What is inert gas system. By maintaining a positive pressure in the cargo tanks at all times, with an atmosphere not having an oxygen content greater than 8% by volume,. Inert gas means a gas or a mixture of gases, such as flue gas, containing insufficient oxygen to support the combustion of. Inert gas system (igs) on a ship refers. What Is Inert Gas System.
From www.maritmeculture.com
INERT GAS SYSTEM DEFINITION AND USE maritmeculture What Is Inert Gas System What is an inert gas system? Inert gas system or ig system are among one of the most crucial safety and security functions of oil vessels. What is inert gas system. Inert gas system (igs) on a ship refers to a system deployed for the prevention of an explosion in. By maintaining a positive pressure in the cargo tanks at. What Is Inert Gas System.
From www.merchantnavydecoded.com
What is an Inert gas Function of IG System on ship. What Is Inert Gas System By maintaining a positive pressure in the cargo tanks at all times, with an atmosphere not having an oxygen content greater than 8% by volume,. Inert gas system or ig system are among one of the most crucial safety and security functions of oil vessels. The system provides an inert gas (e.g., nitrogen) blanket in tanks in order to displace. What Is Inert Gas System.
From study.com
Inert Gas Definition, Examples & Uses Lesson What Is Inert Gas System What is inert gas system. The system provides an inert gas (e.g., nitrogen) blanket in tanks in order to displace oxygen and prevent the development. Inert gas system or ig system are among one of the most crucial safety and security functions of oil vessels. What is an inert gas system? By maintaining a positive pressure in the cargo tanks. What Is Inert Gas System.
From inertgaszaimono.blogspot.com
Inert Gas Oil Tanker Inert Gas System What Is Inert Gas System Inert gas means a gas or a mixture of gases, such as flue gas, containing insufficient oxygen to support the combustion of. What is an inert gas system? What is inert gas system. The system provides an inert gas (e.g., nitrogen) blanket in tanks in order to displace oxygen and prevent the development. By maintaining a positive pressure in the. What Is Inert Gas System.
From www.marinesite.info
Inert Gas System(I.G systems) Marinesite What Is Inert Gas System By maintaining a positive pressure in the cargo tanks at all times, with an atmosphere not having an oxygen content greater than 8% by volume,. Inert gas system or ig system are among one of the most crucial safety and security functions of oil vessels. The system provides an inert gas (e.g., nitrogen) blanket in tanks in order to displace. What Is Inert Gas System.
From www.fm200-system.com
IG541 Inert Gas Fire Suppression System What Is Inert Gas System Inert gas means a gas or a mixture of gases, such as flue gas, containing insufficient oxygen to support the combustion of. The system provides an inert gas (e.g., nitrogen) blanket in tanks in order to displace oxygen and prevent the development. By maintaining a positive pressure in the cargo tanks at all times, with an atmosphere not having an. What Is Inert Gas System.
From www.inertgasfiresystems.com
Inert gas fire suppression systems Gielle Industries What Is Inert Gas System What is inert gas system. The system provides an inert gas (e.g., nitrogen) blanket in tanks in order to displace oxygen and prevent the development. Inert gas system (igs) on a ship refers to a system deployed for the prevention of an explosion in. What is an inert gas system? Inert gas system or ig system are among one of. What Is Inert Gas System.
From www.marinetopics.com
Introduction to Inert Gas Systems (IGS) What Is Inert Gas System Inert gas system (igs) on a ship refers to a system deployed for the prevention of an explosion in. What is an inert gas system? Inert gas system or ig system are among one of the most crucial safety and security functions of oil vessels. What is inert gas system. Inert gas means a gas or a mixture of gases,. What Is Inert Gas System.
From knowledgeofsea.com
Inert gas System Knowledge Of Sea What Is Inert Gas System The system provides an inert gas (e.g., nitrogen) blanket in tanks in order to displace oxygen and prevent the development. What is inert gas system. By maintaining a positive pressure in the cargo tanks at all times, with an atmosphere not having an oxygen content greater than 8% by volume,. What is an inert gas system? Inert gas system or. What Is Inert Gas System.