How To Build A Garage Apartment Cheap . Look for relaxed layouts, flexible spaces, and lots of storage. We’ve rounded up our ultimate list of garage apartment plans below. See how we created a living space from shiplap, metal and rope! A garage apartment plan is a great way to add extra usable space without taking away from your garden area. Looking to turn a portion or all of your garage into a studio apartment? The final price will be. The average cost to build a garage apartment is $150,000, but it’s possible to build one for as little as $50,000. Purchasing any of our garage plans will allow you to set up your garage. Check out our garage apartment floor plans and templates, and start dreaming about what you could create. Smart and affordable, garage plans with apartments (sometimes referred to as adus or accessory dwelling units) make the most of their limited space to give you loads of versatility.
from www.mintdesignblog.com
Looking to turn a portion or all of your garage into a studio apartment? The final price will be. Smart and affordable, garage plans with apartments (sometimes referred to as adus or accessory dwelling units) make the most of their limited space to give you loads of versatility. Purchasing any of our garage plans will allow you to set up your garage. Check out our garage apartment floor plans and templates, and start dreaming about what you could create. We’ve rounded up our ultimate list of garage apartment plans below. See how we created a living space from shiplap, metal and rope! A garage apartment plan is a great way to add extra usable space without taking away from your garden area. The average cost to build a garage apartment is $150,000, but it’s possible to build one for as little as $50,000. Look for relaxed layouts, flexible spaces, and lots of storage.
18 DIY Garage Apartment Plans for Extra Living Space Mint Design Blog
How To Build A Garage Apartment Cheap We’ve rounded up our ultimate list of garage apartment plans below. The final price will be. A garage apartment plan is a great way to add extra usable space without taking away from your garden area. Purchasing any of our garage plans will allow you to set up your garage. See how we created a living space from shiplap, metal and rope! Looking to turn a portion or all of your garage into a studio apartment? Look for relaxed layouts, flexible spaces, and lots of storage. The average cost to build a garage apartment is $150,000, but it’s possible to build one for as little as $50,000. Check out our garage apartment floor plans and templates, and start dreaming about what you could create. Smart and affordable, garage plans with apartments (sometimes referred to as adus or accessory dwelling units) make the most of their limited space to give you loads of versatility. We’ve rounded up our ultimate list of garage apartment plans below.
From louisfeedsdc.com
Garage Apartment Packages Latest Bestapartment Home Building Plans How To Build A Garage Apartment Cheap See how we created a living space from shiplap, metal and rope! Purchasing any of our garage plans will allow you to set up your garage. The final price will be. Check out our garage apartment floor plans and templates, and start dreaming about what you could create. A garage apartment plan is a great way to add extra usable. How To Build A Garage Apartment Cheap.
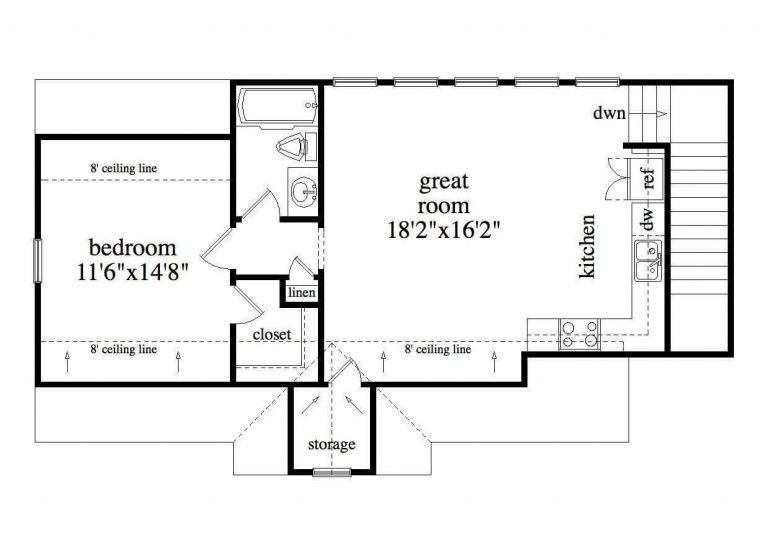
From viewfloor.co
Best Garage Apartment Floor Plans Viewfloor.co How To Build A Garage Apartment Cheap The average cost to build a garage apartment is $150,000, but it’s possible to build one for as little as $50,000. Looking to turn a portion or all of your garage into a studio apartment? Check out our garage apartment floor plans and templates, and start dreaming about what you could create. See how we created a living space from. How To Build A Garage Apartment Cheap.
From sweetyhomee.com
20+ Amazing Garage Apartment Kits Ideas How To Build A Garage Apartment Cheap Check out our garage apartment floor plans and templates, and start dreaming about what you could create. Smart and affordable, garage plans with apartments (sometimes referred to as adus or accessory dwelling units) make the most of their limited space to give you loads of versatility. We’ve rounded up our ultimate list of garage apartment plans below. The average cost. How To Build A Garage Apartment Cheap.
From kobobuilding.com
How to build a garage apartment cheap kobo building How To Build A Garage Apartment Cheap Smart and affordable, garage plans with apartments (sometimes referred to as adus or accessory dwelling units) make the most of their limited space to give you loads of versatility. The average cost to build a garage apartment is $150,000, but it’s possible to build one for as little as $50,000. The final price will be. Look for relaxed layouts, flexible. How To Build A Garage Apartment Cheap.
From www.gegarage.com
HOW TO BUILD A GARAGE APARTMENT CHEAP STEP BY STEP GARAGE GUIDES How To Build A Garage Apartment Cheap Check out our garage apartment floor plans and templates, and start dreaming about what you could create. Smart and affordable, garage plans with apartments (sometimes referred to as adus or accessory dwelling units) make the most of their limited space to give you loads of versatility. A garage apartment plan is a great way to add extra usable space without. How To Build A Garage Apartment Cheap.
From www.gegarage.com
HOW TO BUILD A GARAGE APARTMENT CHEAP STEP BY STEP GARAGE GUIDES How To Build A Garage Apartment Cheap A garage apartment plan is a great way to add extra usable space without taking away from your garden area. We’ve rounded up our ultimate list of garage apartment plans below. Look for relaxed layouts, flexible spaces, and lots of storage. The average cost to build a garage apartment is $150,000, but it’s possible to build one for as little. How To Build A Garage Apartment Cheap.
From floorplans.click
Modern Garage Apartment Floor Plans floorplans.click How To Build A Garage Apartment Cheap Look for relaxed layouts, flexible spaces, and lots of storage. Purchasing any of our garage plans will allow you to set up your garage. Check out our garage apartment floor plans and templates, and start dreaming about what you could create. See how we created a living space from shiplap, metal and rope! The final price will be. Looking to. How To Build A Garage Apartment Cheap.
From www.architecturaldesigns.com
3Car Garage Apartment with 2 Drivethrough Bays 68648VR How To Build A Garage Apartment Cheap The average cost to build a garage apartment is $150,000, but it’s possible to build one for as little as $50,000. Looking to turn a portion or all of your garage into a studio apartment? The final price will be. A garage apartment plan is a great way to add extra usable space without taking away from your garden area.. How To Build A Garage Apartment Cheap.
From www.gegarage.com
HOW TO BUILD A GARAGE APARTMENT CHEAP 4 PLANS How To Build A Garage Apartment Cheap Check out our garage apartment floor plans and templates, and start dreaming about what you could create. Smart and affordable, garage plans with apartments (sometimes referred to as adus or accessory dwelling units) make the most of their limited space to give you loads of versatility. The average cost to build a garage apartment is $150,000, but it’s possible to. How To Build A Garage Apartment Cheap.
From www.gegarage.com
HOW TO BUILD A GARAGE APARTMENT CHEAP 4 PLANS How To Build A Garage Apartment Cheap Look for relaxed layouts, flexible spaces, and lots of storage. See how we created a living space from shiplap, metal and rope! The final price will be. Check out our garage apartment floor plans and templates, and start dreaming about what you could create. We’ve rounded up our ultimate list of garage apartment plans below. The average cost to build. How To Build A Garage Apartment Cheap.
From www.archimple.com
Archimple How to Build a Garage Apartment Cheap A BudgetFriendly Guide? How To Build A Garage Apartment Cheap The final price will be. A garage apartment plan is a great way to add extra usable space without taking away from your garden area. Look for relaxed layouts, flexible spaces, and lots of storage. Looking to turn a portion or all of your garage into a studio apartment? Check out our garage apartment floor plans and templates, and start. How To Build A Garage Apartment Cheap.
From kobobuilding.com
How to build a garage with an apartment kobo building How To Build A Garage Apartment Cheap Smart and affordable, garage plans with apartments (sometimes referred to as adus or accessory dwelling units) make the most of their limited space to give you loads of versatility. We’ve rounded up our ultimate list of garage apartment plans below. Check out our garage apartment floor plans and templates, and start dreaming about what you could create. The final price. How To Build A Garage Apartment Cheap.
From www.architecturaldesigns.com
2Bed Garage Apartment Above a 2Car Garage with Traditional Exterior How To Build A Garage Apartment Cheap The average cost to build a garage apartment is $150,000, but it’s possible to build one for as little as $50,000. Purchasing any of our garage plans will allow you to set up your garage. See how we created a living space from shiplap, metal and rope! Look for relaxed layouts, flexible spaces, and lots of storage. Smart and affordable,. How To Build A Garage Apartment Cheap.
From www.houzz.com
Detached Garage & Apartment Traditional Garage Charlotte by How To Build A Garage Apartment Cheap The final price will be. Check out our garage apartment floor plans and templates, and start dreaming about what you could create. Smart and affordable, garage plans with apartments (sometimes referred to as adus or accessory dwelling units) make the most of their limited space to give you loads of versatility. See how we created a living space from shiplap,. How To Build A Garage Apartment Cheap.
From www.architecturaldesigns.com
3 Car Garage Apartment with Class 14631RK Architectural Designs How To Build A Garage Apartment Cheap The final price will be. The average cost to build a garage apartment is $150,000, but it’s possible to build one for as little as $50,000. Looking to turn a portion or all of your garage into a studio apartment? Check out our garage apartment floor plans and templates, and start dreaming about what you could create. We’ve rounded up. How To Build A Garage Apartment Cheap.
From www.archimple.com
Archimple How to Build a Garage Apartment Cheap A BudgetFriendly Guide? How To Build A Garage Apartment Cheap See how we created a living space from shiplap, metal and rope! We’ve rounded up our ultimate list of garage apartment plans below. Check out our garage apartment floor plans and templates, and start dreaming about what you could create. The average cost to build a garage apartment is $150,000, but it’s possible to build one for as little as. How To Build A Garage Apartment Cheap.
From www.mintdesignblog.com
18 DIY Garage Apartment Plans for Extra Living Space Mint Design Blog How To Build A Garage Apartment Cheap See how we created a living space from shiplap, metal and rope! Look for relaxed layouts, flexible spaces, and lots of storage. We’ve rounded up our ultimate list of garage apartment plans below. Purchasing any of our garage plans will allow you to set up your garage. A garage apartment plan is a great way to add extra usable space. How To Build A Garage Apartment Cheap.
From www.architecturaldesigns.com
2Car Garage Apartment with Small Deck 50190PH Architectural How To Build A Garage Apartment Cheap Purchasing any of our garage plans will allow you to set up your garage. Look for relaxed layouts, flexible spaces, and lots of storage. Smart and affordable, garage plans with apartments (sometimes referred to as adus or accessory dwelling units) make the most of their limited space to give you loads of versatility. A garage apartment plan is a great. How To Build A Garage Apartment Cheap.
From www.archimple.com
Archimple How to Build a Garage Apartment Cheap A BudgetFriendly Guide? How To Build A Garage Apartment Cheap Check out our garage apartment floor plans and templates, and start dreaming about what you could create. We’ve rounded up our ultimate list of garage apartment plans below. The average cost to build a garage apartment is $150,000, but it’s possible to build one for as little as $50,000. Looking to turn a portion or all of your garage into. How To Build A Garage Apartment Cheap.
From www.gegarage.com
HOW TO BUILD A GARAGE APARTMENT CHEAP 4 PLANS How To Build A Garage Apartment Cheap Purchasing any of our garage plans will allow you to set up your garage. The average cost to build a garage apartment is $150,000, but it’s possible to build one for as little as $50,000. Check out our garage apartment floor plans and templates, and start dreaming about what you could create. We’ve rounded up our ultimate list of garage. How To Build A Garage Apartment Cheap.
From www.horizonstructures.com
Two Story Garage Prefab Garage with Apartment Horizon Structures How To Build A Garage Apartment Cheap The average cost to build a garage apartment is $150,000, but it’s possible to build one for as little as $50,000. Purchasing any of our garage plans will allow you to set up your garage. Check out our garage apartment floor plans and templates, and start dreaming about what you could create. Looking to turn a portion or all of. How To Build A Garage Apartment Cheap.
From www.mintdesignblog.com
18 DIY Garage Apartment Plans for Extra Living Space Mint Design Blog How To Build A Garage Apartment Cheap Look for relaxed layouts, flexible spaces, and lots of storage. Looking to turn a portion or all of your garage into a studio apartment? Smart and affordable, garage plans with apartments (sometimes referred to as adus or accessory dwelling units) make the most of their limited space to give you loads of versatility. Check out our garage apartment floor plans. How To Build A Garage Apartment Cheap.
From jhmrad.com
19 House Plans With Garage Apartment Ideas You Should Consider JHMRad How To Build A Garage Apartment Cheap Looking to turn a portion or all of your garage into a studio apartment? Smart and affordable, garage plans with apartments (sometimes referred to as adus or accessory dwelling units) make the most of their limited space to give you loads of versatility. The average cost to build a garage apartment is $150,000, but it’s possible to build one for. How To Build A Garage Apartment Cheap.
From www.architecturaldesigns.com
Two Car Garage Apartment 22108SL Architectural Designs House Plans How To Build A Garage Apartment Cheap A garage apartment plan is a great way to add extra usable space without taking away from your garden area. The final price will be. Check out our garage apartment floor plans and templates, and start dreaming about what you could create. Look for relaxed layouts, flexible spaces, and lots of storage. The average cost to build a garage apartment. How To Build A Garage Apartment Cheap.
From kobobuilding.com
Garage with apartment kobo building How To Build A Garage Apartment Cheap See how we created a living space from shiplap, metal and rope! Purchasing any of our garage plans will allow you to set up your garage. We’ve rounded up our ultimate list of garage apartment plans below. Check out our garage apartment floor plans and templates, and start dreaming about what you could create. Look for relaxed layouts, flexible spaces,. How To Build A Garage Apartment Cheap.
From buildersvilla.com
How to build a garage apartment cheap Builders Villa How To Build A Garage Apartment Cheap Look for relaxed layouts, flexible spaces, and lots of storage. A garage apartment plan is a great way to add extra usable space without taking away from your garden area. Check out our garage apartment floor plans and templates, and start dreaming about what you could create. We’ve rounded up our ultimate list of garage apartment plans below. The final. How To Build A Garage Apartment Cheap.
From strawbaleplans.wordpress.com
garage apartment Straw Bale House Plans How To Build A Garage Apartment Cheap The average cost to build a garage apartment is $150,000, but it’s possible to build one for as little as $50,000. A garage apartment plan is a great way to add extra usable space without taking away from your garden area. Look for relaxed layouts, flexible spaces, and lots of storage. The final price will be. Smart and affordable, garage. How To Build A Garage Apartment Cheap.
From www.thegarageplanshop.com
Garage Apartment Plans Carriage House Plan with 2Car Garage 012G How To Build A Garage Apartment Cheap Looking to turn a portion or all of your garage into a studio apartment? Look for relaxed layouts, flexible spaces, and lots of storage. The average cost to build a garage apartment is $150,000, but it’s possible to build one for as little as $50,000. The final price will be. Purchasing any of our garage plans will allow you to. How To Build A Garage Apartment Cheap.
From www.gegarage.com
HOW TO BUILD A GARAGE APARTMENT CHEAP 4 PLANS How To Build A Garage Apartment Cheap We’ve rounded up our ultimate list of garage apartment plans below. The final price will be. The average cost to build a garage apartment is $150,000, but it’s possible to build one for as little as $50,000. Purchasing any of our garage plans will allow you to set up your garage. Look for relaxed layouts, flexible spaces, and lots of. How To Build A Garage Apartment Cheap.
From tinyhousetalk.com
470sf Garage Converted into AMAZING Modern Living Space How To Build A Garage Apartment Cheap Look for relaxed layouts, flexible spaces, and lots of storage. Purchasing any of our garage plans will allow you to set up your garage. Smart and affordable, garage plans with apartments (sometimes referred to as adus or accessory dwelling units) make the most of their limited space to give you loads of versatility. See how we created a living space. How To Build A Garage Apartment Cheap.
From www.pinterest.com
efficient 3 car garage apartment plans within garage apartment plans 20 How To Build A Garage Apartment Cheap We’ve rounded up our ultimate list of garage apartment plans below. Purchasing any of our garage plans will allow you to set up your garage. The average cost to build a garage apartment is $150,000, but it’s possible to build one for as little as $50,000. Looking to turn a portion or all of your garage into a studio apartment?. How To Build A Garage Apartment Cheap.
From kobobuilding.com
How to build a garage apartment cheap kobo building How To Build A Garage Apartment Cheap See how we created a living space from shiplap, metal and rope! The average cost to build a garage apartment is $150,000, but it’s possible to build one for as little as $50,000. Purchasing any of our garage plans will allow you to set up your garage. Looking to turn a portion or all of your garage into a studio. How To Build A Garage Apartment Cheap.
From www.architecturaldesigns.com
Barnstyle Garage Apartment with Office and 3 Actual Stalls 72344DA How To Build A Garage Apartment Cheap The average cost to build a garage apartment is $150,000, but it’s possible to build one for as little as $50,000. A garage apartment plan is a great way to add extra usable space without taking away from your garden area. We’ve rounded up our ultimate list of garage apartment plans below. The final price will be. Smart and affordable,. How To Build A Garage Apartment Cheap.
From www.architecturaldesigns.com
2 Car Garage Apartment 57064HA Architectural Designs House Plans How To Build A Garage Apartment Cheap Look for relaxed layouts, flexible spaces, and lots of storage. Purchasing any of our garage plans will allow you to set up your garage. Smart and affordable, garage plans with apartments (sometimes referred to as adus or accessory dwelling units) make the most of their limited space to give you loads of versatility. The average cost to build a garage. How To Build A Garage Apartment Cheap.
From www.gegarage.com
HOW TO BUILD A GARAGE APARTMENT CHEAP 4 PLANS How To Build A Garage Apartment Cheap Smart and affordable, garage plans with apartments (sometimes referred to as adus or accessory dwelling units) make the most of their limited space to give you loads of versatility. See how we created a living space from shiplap, metal and rope! Check out our garage apartment floor plans and templates, and start dreaming about what you could create. A garage. How To Build A Garage Apartment Cheap.